정 정 신 고 (보고)
| 2023년 06월 13일 |
1. 정정대상 공시서류 : 증권신고서(지분증권)
2. 정정대상 공시서류의 최초제출일 : 2023년 05월 26일
| [증권신고서 제출 및 정정 연혁] |
| 제출일자 | 문서명 | 비고 |
|---|---|---|
| 2023년 05월 26일 | 증권신고서(지분증권) | 최초 제출 |
| 2023년 06월 13일 | [기재정정]증권신고서(지분증권) | 기재정정(파란색) |
3. 정정사항
※ 금번 정정사항은 증권신고서 내 기재사항 보완에 따른 자진 정정으로, 정정사항 확인의 편의를 위해 정정사항은 '굵은 파란색'을 사용하여 기재하였습니다.
| 항 목 | 정정요구ㆍ명령 관련 여부 |
정정사유 | 정 정 전 | 정 정 후 |
|---|---|---|---|---|
| ※ 요약정보는 본문의 정정사항을 반영하였으며, 정오표를 별도로 기재하지 않았습니다. ※ 단순 오타인 경우 정오표를 별도로 기재하지 않았습니다. |
||||
| 제1부 모집 또는 매출에 관한 사항 | ||||
| I. 모집 또는 매출에 관한 일반사항 | ||||
| 1. 공모개요 | 부 | 기재정정 | (주1) 정정 전 | (주1) 정정 후 |
| III. 투자위험요소 | ||||
| 1. 사업위험 - 바. 외주가공에 따른 위험 | 부 | 기재정정 | (주2) 정정 전 | (주2) 정정 후 |
| 1. 사업위험 - 아. 신규사업 진행에 따른 위험 | 부 | 기재정정 | (주3) 정정 전 | (주3) 정정 후 |
| 1. 사업위험 - 자. 유통채널 확대 및 매출처 편중에 따른 위험 | 부 | 기재정정 | (주4) 정정 전 | (주4) 정정 후 |
| 2. 회사위험 - 가. 스마트 공장 건립 관련 신규시설 투자 위험 | 부 | 기재정정 | (주5) 정정 전 | (주5) 정정 후 |
| 2. 회사위험 - 바. 재고자산 진부화 관련 위험 | 부 | 기재정정 | (주6) 정정 전 | (주6) 정정 후 |
| Ⅴ. 자금의 사용목적 | 부 | 기재정정 | (주7) 정정 전 | (주7) 정정 후 |
(주1) 정정 전
■ 공모일정 등에 관한 사항
당사는 2023년 05월 25일 이사회를 통해 유무상증자를 최초 결의하였으며, 세부 일정은 아래와 같습니다.
| 일자 | 증자절차 | 비고 |
|---|---|---|
| 2023년 05월 25일 | 이사회결의 및 주요사항보고서 공시 | - |
| 2023년 05월 26일 | 증권신고서 및 예비투자설명서제출 | - |
| 2023년 06월 14일 | 발행가액 확정 | 청약일 3거래일전 |
| 2023년 06월 15일 | 발행가액 확정 공고 | 금융감독원 전자공시시스템 (http://dart.fss.or.kr) 당사 인터넷 홈페이지 (http://www.ggumbi-company.com) |
| 2023년 06월 19일 | 청약안내 공고 | 유진투자증권 홈페이지 (http://www.eugenefn.com) 당사 인터넷 홈페이지 (http://www.ggumbi-company.com) |
| 2023년 06월 19일 | 일반공모 청약 | - |
| 2023년 06월 20일 | ||
| 2023년 06월 22일 | 환불 및 주금납입 | - |
| 2023년 06월 27일 | 무상증자 신주배정기준일 | - |
| 2023년 07월 06일 | 유상증자 신주상장 및 유통 예정일 | - |
| 2023년 07월 19일 | 무상증자 신주상장 및 유통 예정일 | - |
| 주1) | 당사는 코스닥시장 상장법인으로 금번 유상증자를 통해 발행되는 주식은 코스닥시장에서 상장될 예정입니다. 금번 증자는 일반공모방식으로 진행되며 일반공모 후 발생하는 미청약주식에 대해서는 미발행 처리합니다. |
| 주2) | 본 증권신고서는 심사과정에서 일부내용이 정정될 수 있으며, 투자판단과 밀접하게 연관된 주요내용의 변경시에는 본 증권신고서 상의 일정에 차질을 가져올 수 있습니다. |
| 주3) | 상기 일정은 예정사항으로 관계기관과의 업무진행과정에서 일정이 변경될 수도 있으므로 투자자 여러분께서는 투자시 이러한 점을 감안하시기 바랍니다. |
(주1) 정정 후
■ 공모일정 등에 관한 사항
당사는 2023년 05월 25일 이사회를 통해 유무상증자를 최초 결의하였으며, 세부 일정은 아래와 같습니다.
| 일자 | 증자절차 | 비고 |
|---|---|---|
| 2023년 05월 25일 | 이사회결의 및 주요사항보고서 공시 | - |
| 2023년 05월 26일 | 증권신고서 및 예비투자설명서 제출 | - |
| 2023년 06월 13일 | (정정) 증권신고서 및 예비투자설명서 제출 | - |
| 2023년 06월 14일 | 발행가액 확정 | 청약일 3거래일전 |
| 2023년 06월 15일 | 발행가액 확정 공고 | 금융감독원 전자공시시스템 (http://dart.fss.or.kr) 당사 인터넷 홈페이지 (http://www.ggumbi-company.com) |
| 2023년 06월 19일 | 청약안내 공고 | 유진투자증권 홈페이지 (http://www.eugenefn.com) 당사 인터넷 홈페이지 (http://www.ggumbi-company.com) |
| 2023년 06월 19일 | 일반공모 청약 | - |
| 2023년 06월 20일 | ||
| 2023년 06월 22일 | 환불 및 주금납입 | - |
| 2023년 06월 27일 | 무상증자 신주배정기준일 | - |
| 2023년 07월 06일 | 유상증자 신주상장 및 유통 예정일 | - |
| 2023년 07월 19일 | 무상증자 신주상장 및 유통 예정일 | - |
| 주1) | 당사는 코스닥시장 상장법인으로 금번 유상증자를 통해 발행되는 주식은 코스닥시장에서 상장될 예정입니다. 금번 증자는 일반공모방식으로 진행되며 일반공모 후 발생하는 미청약주식에 대해서는 미발행 처리합니다. |
| 주2) | 본 증권신고서는 심사과정에서 일부내용이 정정될 수 있으며, 투자판단과 밀접하게 연관된 주요내용의 변경시에는 본 증권신고서 상의 일정에 차질을 가져올 수 있습니다. |
| 주3) | 상기 일정은 예정사항으로 관계기관과의 업무진행과정에서 일정이 변경될 수도 있으므로 투자자 여러분께서는 투자시 이러한 점을 감안하시기 바랍니다. |
(주2) 정정 전
|
바. 판매제품 생산 관련 위험 |
당사는 설립시부터 제품 및 브랜드의 기획과 효과적인 마케팅 등에 집중하기 위해 외주생산업체를 통해 제품을 제조하고 있습니다. 주력 제품군별로 100% 외주가공, OEM 또는 ODM 방식으로 제품군에 따라 그 생산 방식을 달리하고 있으며, 이를 통해 대규모의 설비 투자 없이 높은 매출 성장세를 유지할 수 있었습니다. 또한 같은 제품군에 대해서도 최소한 두개 이상의 업체에서 생산을 진행함으로써 한 곳에서 제품생산할 때 발생할 수 있는 품질하락 이슈 및 제품 생산 위험에 대응하고 있습니다. 2023년 1분기 기준으로는 27여개사를 통하여 외주생산을 진행하고 있으며 신규 매출 품목이출시되면서 외주업체 수도 증가하고 있는 추세입니다.
당사 주력 제품인 매트류는 원자재를 당사가 직매입하여 외주 가공업체에 공급하여 외주가공하는 방식으로 생산하고 있으며, 유아가구 중 원목가구 제품은 해외 생산을 통해 OEM 생산으로 공급받고 있습니다. 스킨케어 제품은 국내 업체에서 개발하여 당사가 선별한 제품을 공급받는 ODM 형태로 공급받고 있습니다. 화장품 원료 및 기본 포뮬러의 개발과 생산을 협력업체가 담당하고, 당사에서 고객 요구사항에 맞도록 개발 요청을 진행하여 생산 입고되는 방식입니다.
이러한 외주생산 기반으로 당사는 아래와 같이 당기 총제조비용 중 외주가공비가 50% 이상을 점유하고 있으며, 매출 확대시 외주가공비용의 동반 증가가 예상됩니다.
| [연도별 외주가공비 비중] |
| (단위 : 백만원) |
|
구 분 |
2023년 1분기 |
2022년 |
2021년 |
2020년 |
|---|---|---|---|---|
|
외주가공비 |
1,077 |
7,066 |
7,711 |
5,508 |
|
당기 총제조비용 대비 비중 |
56.2% |
56.2% |
65.4% |
50.8% |
|
제품 매출액 대비 비중 |
30.7% |
34.9% |
36.9% |
29.8% |
|
외주가공업체 수 |
27사 |
50사 |
32사 |
33사 |
| 출처 : 당사 제공 |
(후략)
(주2) 정정 후
|
바. 외주가공에 따른 위험 |
당사는 설립 시부터 제품 및 브랜드의 기획과 효과적인 마케팅 등에 집중하기 위해 외주 생산업체를 통해 제품을 제조하고 있습니다. 주력 제품군별로 100% 외주가공, OEM 또는 ODM 방식으로 제품군에 따라 그 생산 방식을 달리하고 있으며, 이를 통해 대규모의 설비 투자 없이 높은 매출 증가세를 유지할 수 있었습니다. 또한 같은 제품군에 대해서도 최소한 두 개 이상의 업체에서 생산을 진행함으로써 한 곳에서 제품 생산할 때 발생할 수 있는 품질 하락 이슈 및 제품 생산 위험에 대응하고 있습니다.
당사 주력 제품인 매트류는 원자재를 당사가 직매입하여 외주 가공 업체에 공급하여 외주가공하는 방식으로 생산하고 있으며, 유아가구 중 원목가구 제품은 해외 생산을 통해 OEM 생산으로 공급받고 있습니다. 스킨케어 제품은 국내 업체에서 개발하여 당사가 선별한 제품을 공급받는 ODM 형태로 공급받고 있습니다. 화장품 원료 및 기본 포뮬러의 개발과 생산을 협력업체가 담당하고, 당사에서 고객 요구사항에 맞도록 개발 요청을 진행하여 생산 입고되는 방식입니다.
당사의 최근 3년간 총 제조비용 및 제품 매출액 대비 외주가공비 비중은 다음과 같습니다.
| [최근 3년간 연도별 외주가공비 비중] |
| (단위 : 백만원) |
|
구 분 |
2023년 1분기 |
2022년 1분기 |
2022년 |
2021년 |
2020년 |
|---|---|---|---|---|---|
|
외주가공비 |
1,077 |
2,471 |
7,066 |
7,711 |
5,508 |
|
당기 총제조비용 대비 비중 |
56.2% |
66.75% |
56.2% |
65.4% |
50.8% |
|
제품 매출액 대비 비중 |
30.7% |
41.90% |
34.9% |
36.9% |
29.8% |
|
외주가공업체 수 |
27사 |
32사 |
50사 |
32사 |
33사 |
| 출처 : 당사 제시 |
2023년 1분기 기준 당사는 27개사를 통하여 외주생산을 진행하고 있으며, 외주가공비로는 1,077백만원을 지출하고 있습니다. 이는 전년 동기 대비 5개사, 1,394백만원 감소한 수준으로, 당사가 개발중인 신제품이 2023년 1분기 중으로 개발 완료될 것을 고려하여 구 제품의 재고 수량을 조절하기 위한 발주량 감소에 따른 영향이며, 추후 신제품 생산이 본격적으로 시작 될 경우 2022년과 유사한 수준의 외주가공업체수를 유지 할 것으로 예상하고 있습니다. 이와 같이 당사의 외주가공비 및 외주가공업체 수의 경우 연간 생산계획, 분기별 생산되는 계절성 제품, 각 제품별 재고 상황 등을 고려하여 변동되고 있습니다.
이러한 외주 생산 기반으로 당사는 아래와 같이 당기 총 제조비용 중 외주가공비가 50% 이상을 점유하고 있으며, 매출 확대 시 외주가공비용의 동반 증가가 예상됩니다.
(후략)
(주3) 정정 전
|
아. 신규사업 진행에 따른 위험 |
당사는 기존 주력 사업인 유아 용품 개발 및 판매사업 이외에 기존 사업을 통해 확보한 국내 이커머스 시장에서의 신뢰와 CS 시스템, 높은 품질, 팬덤 마케팅, 다양한 영업채널 등을 기반으로 신규로 유통사업에 진출하였습니다. 2022년부터 본격적으로 유통사업을 시작하였으며 현재 G7커피의 국내 총판사업을 진행하고 있습니다.
G7 커피는 베트남에서 시작되어 현재 한국, 미국, 영국, 프랑스, 독일, 일본, 중국 등 전 세계 80여 개 국가 및 지역에서 판매되고 있는 글로벌 커피 브랜드입니다. G7 커피의 한국지사는 매년 지속 성장을 시현하였으나, 과거 협업을 진행한 기존 유통회사들의 마케팅 및 유통채널 부족 등의 이유로 성장 한계에 직면하게 되었습니다.
특히, G7 커피의 제조사인 쭝웬그룹은 'G7 커피는 싼 커피'라는 국내 인식을 극복하고자 하고 있었습니다. 이를 위해 쭝웬그룹은 이커머스에 특화된 당사의 인프라를 통해 매출 성장과 더불어 G7 커피 브랜드의 프리미엄화를 이끌어 내고자 쭝웬그룹이 먼저 당사와 업무협약을 제안하였고, 2021년 12월 진행하였습니다. 이후 쿠팡을 비롯하여 네이버 스마트스토어 오픈 등 주요 온라인몰로 입점 확대를 진행 중 입니다.
| [G7 계약 이후 진행경과] |
|
일정 |
진행사항 |
| 21년 12월 | 총판 계약 체결 |
| 21년 12월 | 네이버 스마트스토어 오픈 |
| 22년 01월 | 쿠팡 로켓배송 입점 |
| 22년 02월 | 판매 개시 |
| 22년 05월 | 네이버 스마트스토어 쇼핑라이브 진행 |
| 22년 06월 | 보리보리 입점 |
| 22년 09월 | G7 디스트리뷰터 (최공유통) 채널 꿈비 이관 |
| 22년 10월 | 롯데온, 11번가, H몰, SSG, 티몬, NS홈쇼핑, 카카오톡 , VOGO 입점 완료 |
| 22년 11월 | SK stoa, 롯데아이몰, 네이버 빠른배송, 쿠팡 오픈마켓 입점 완료 |
| 22년 12월 | |
| 23년 01월 | 공식몰 오픈 (선오픈) |
| 23년 02월 | 공식몰 어플리케이션 출시 (구글,애플) |
| 23년 03월 | 공식몰 그랜드오프 / G7 한국사무소 출범 |
| 23년 04월 | 링크몰 (일상의 감동)입점 완료 |
| 출처 : 당사 제공 |
현재 G7 커피의 매출의 경우 쿠팡 등 소수 매출처를 통해서 이루어지고 있으나 자체 판매망을 늘리고 타 매출처로 G7 커피 매출을 늘림으로써 마진율을 개선하고자 노력하고 있습니다. 당사 상품매출의 90% 이상이 G7 커피에서 비롯하는데, G7 커피 총판사업을 2022년부터 본격적으로 진행하면서부터 G7 커피 관련 상품매출액이 증가 하고 있으며 당사로의 판매처가 일원화 될 경우 매출이 더 증가할 것으로 판단하고 있습니다.
| [당사 매출/매출원가 유형별 상세] | |
| (K-IFRS, 연결) | (단위 : 백만원) |
|
구 분 |
2023년 1분기 |
2022년 1분기 |
2022년 |
2021년 |
2020년 |
|
제품 매출액 |
3,510 | 5,897 | 20,254 | 19,310 | 17,689 |
|
제품 매출원가 (매출원가율) |
2,163 (61.6%) |
3,436 (58.3%) |
11,907 (58.8%) |
11,135 (57.7%) |
10,874 (61.5%) |
| 상품 매출액 | 3,047 | 530 | 5,712 | 86 | 32 |
|
상품 매출원가 (매출원가율) |
2,519 (82.7%) |
358 (67.6%) |
5,072 (88.8%) |
69 (80.2%) |
32 (100.0%) |
|
용역 매출액 |
305 | 393 | 1,216 | 1,501 | 778 |
|
용역 매출원가 (매출원가율) |
301 (98.7%) |
393 (100.0%) |
1,211 (99.6%) |
1,448 (96.5%) |
778 (100.0) |
| 출처 : 당사 정기보고서 및 당사 제공 |
상기한 당사의 신규사업인 G7 커피 유통사업의 성장 등으로 인하여 상품 매출액 비중이 2020년 0.17%에서 2022년 21.01%로 크게 증가하였습니다. 하지만 상품유통업의 특성상 당사가 영위중인 유아용 제품판매보다 매출원가율이 더 높은편이며, 최근 3년간 상품 매출액이 증가함에 따라 당사의 매출총이익률이 지속적으로 감소하고 있습니다. 당사는 G7 커피상품 매출원가율은 사업 초기 매출원가율이 높은 특정 판매채널의 매출비중이 높았으나 이를 개선하기 위해 노력하고 있습니다. 당사는 2022년 하반기부터 매출채널 다각화를 모색해 2023년 2월에는 G7 자사몰을 오픈하였고, 현재는 스마트스토어 등의 6개의 매출채널 확보하였습니다. 하지만 당사의 노력에도 불구하고 상품 유통업의 특성으로 인하여 매출원가를 절감하지 못할 경우 당사의 수익성은 신규사업추진으로 인하여 지속적으로 악화 될 수 있습니다.
당사는 기 확보한 유통채널, 마케팅 능력 등을 기반으로 사업 확장을 위하여 신규 브랜드 유통에 진입하였고 향후 당사 매출 성장에 기여할 수 있을 것으로 예상됩니다. 그러나 신규 브랜드 런칭은 필연적으로 초기 투자 비용이 발생되기 때문에 단기적으로 재무지표의 악화를 유발할 수 있으며, 해당 사업부가 성공적으로 시장에 안착하지 못할 경우 향후 당사의 재무상태와 성장성에 부정적인 영향을 미칠 수 있습니다. 특히, G7 커피 중심의 상품매출의 경우 당사의 매출비중에서 과거에 비해 많은 비중을 차지하게 된 만큼 G7 커피 수요와 공급에 따라 상품매출이 크게 변동되어 당사의 매출에 영향을 줄 가능성이 높습니다. 따라서 G7 커피 판매량이 감소하는 경우 당사의 매출이 악화되어 수익성이 낮아지는 위험이 존재합니다.
(주3) 정정 후
|
아. 신규사업 진행에 따른 위험 |
당사는 기존 주력 사업인 유아 용품 개발 및 판매사업 이외에 기존 사업을 통해 확보한 국내 이커머스 시장에서의 신뢰와 CS 시스템, 높은 품질, 팬덤 마케팅, 다양한 영업채널 등을 기반으로 신규로 유통사업에 진출하였습니다. 2022년부터 본격적으로 유통사업을 시작하였으며 현재 G7 커피의 국내 총판 사업을 진행하고 있습니다.
당사의 최근 1년간 전체 매출액 대비 G7 커피 매출액 비중은 다음과 같습니다.
| [최근 3년간 전체 매출액 대비 G7 커피 매출액 비중] |
| (단위 : 백만원, %) |
| 구 분 | 2023년 1분기 | 2022년 1분기 | 2022년 |
|---|---|---|---|
| 전체 매출액 | 6,862 | 6,821 | 27,182 |
| G7 커피 매출액 | 2,781 | 449 | 5,314 |
| 전체 매출액 대비 비중 | 40.53% | 6.59% | 19.55% |
| 출처 : | 당사 제시 |
| 주) | 당사의 G7 커피 매출은 2022년 2월부터 발생되었습니다. |
당사는 2022년 2월부터 G7 커피 매출이 발생하고 있으며, 최근 1년간 G7 커피 매출액은 2022년 53.14억원, 2023년 1분기 27.81억원으로, 전체 매출액 대비 G7 커피 매출액 비중은 2022년 19.55%, 2023년 1분기 40.53% 수준입니다.
G7 커피는 베트남에서 시작되어 현재 한국, 미국, 영국, 프랑스, 독일, 일본, 중국 등 전 세계 80여 개 국가 및 지역에서 판매되고 있는 글로벌 커피 브랜드입니다. G7 커피의 한국지사는 매년 지속 성장을 시현하였으나, 과거 협업을 진행한 기존 유통회사들의 마케팅 및 유통채널 부족 등의 이유로 성장 한계에 직면하게 되었습니다.
특히, G7 커피의 제조사인 쭝웬그룹은 'G7 커피는 싼 커피'라는 국내 인식을 극복하고자 하고 있었습니다. 이를 위해 쭝웬그룹은 이커머스에 특화된 당사의 인프라를 통해 매출 성장과 더불어 G7 커피 브랜드의 프리미엄화를 이끌어 내고자 쭝웬그룹이 먼저 당사와 업무협약을 제안하였고, 2021년 12월 진행하였습니다. 이후 쿠팡을 비롯하여 네이버 스마트 스토어 오픈 등 주요 온라인몰로 입점 확대를 진행 중입니다.
| [G7 계약 이후 진행경과] |
|
일정 |
진행사항 |
| 21년 12월 | 총판 계약 체결 |
| 21년 12월 | 네이버 스마트스토어 오픈 |
| 22년 01월 | 쿠팡 로켓배송 입점 |
| 22년 02월 | 판매 개시 |
| 22년 05월 | 네이버 스마트스토어 쇼핑라이브 진행 |
| 22년 06월 | 보리보리 입점 |
| 22년 09월 | G7 디스트리뷰터 (최공유통) 채널 꿈비 이관 |
| 22년 10월 | 롯데온, 11번가, H몰, SSG, 티몬, NS홈쇼핑, 카카오톡 , VOGO 입점 완료 |
| 22년 11월 | SK stoa, 롯데아이몰, 네이버 빠른배송, 쿠팡 오픈마켓 입점 완료 |
| 23년 01월 | 공식몰 오픈 (선오픈) |
| 23년 02월 | 공식몰 어플리케이션 출시 (구글,애플) |
| 23년 03월 | 공식몰 그랜드오프 / G7 한국사무소 출범 |
| 23년 04월 | 링크몰 (일상의 감동)입점 완료 |
| 출처 : 당사 제시 |
현재 G7 커피의 매출의 경우 쿠팡 등 소수 매출처를 통해서 이루어지고 있으나 자체 판매망을 늘리고 타 매출처로 G7 커피 매출을 늘림으로써 마진율을 개선하고자 노력하고 있습니다. 당사 상품 매출의 90% 이상이 G7 커피에서 비롯하는데, G7 커피 총판 사업을 2022년부터 본격적으로 진행하면서부터 G7 커피 관련 상품 매출액이 증가하고 있으며 당사로의 판매처가 일원화될 경우 매출이 더 증가할 것으로 판단하고 있습니다.
| [당사 매출/매출원가 유형별 상세] | |
| (K-IFRS, 연결) | (단위 : 백만원) |
|
구 분 |
2023년 1분기 |
2022년 1분기 |
2022년 |
2021년 |
2020년 |
|
제품 매출액 |
3,510 | 5,897 | 20,254 | 19,310 | 17,689 |
|
제품 매출원가 (매출원가율) |
2,163 (61.6%) |
3,436 (58.3%) |
11,907 (58.8%) |
11,135 (57.7%) |
10,874 (61.5%) |
| 상품 매출액 | 3,047 | 530 | 5,712 | 86 | 32 |
|
상품 매출원가 (매출원가율) |
2,519 (82.7%) |
358 (67.6%) |
5,072 (88.8%) |
69 (80.2%) |
32 (100.0%) |
|
용역 매출액 |
305 | 393 | 1,216 | 1,501 | 778 |
|
용역 매출원가 (매출원가율) |
301 (98.7%) |
393 (100.0%) |
1,211 (99.6%) |
1,448 (96.5%) |
778 (100.0) |
| 출처 : 당사 정기보고서 및 당사 제시 |
상기한 당사의 신규 사업인 G7 커피 유통사업의 성장 등으로 인하여 상품 매출액 비중이 2020년 0.17%에서 2022년 21.01%로 크게 증가하였습니다. 하지만 상품유통업의 특성상 당사가 영위 중인 유아용 제품 판매보다 매출원가율이 더 높은 편이며, 최근 3년간 상품 매출액이 증가함에 따라 당사의 매출 총이익률이 지속적으로 감소하고 있습니다. 당사의 최근 1년간 G7 커피 매출 채널별 매출원가율 현황은 다음과 같습니다.
| [최근 1년간 G7 커피 매출 채널별 매출원가율 현황] |
| (단위 : 백만원, %) |
| 매출 채널 | 2023년 5월 | 2023년 4월 | 2023년 1분기 | 2022년 1분기 | 2022년 | |
|---|---|---|---|---|---|---|
| 외부몰 | 매출액 | 878 | 666 | 2,767 | 449 | 5,314 |
| 매출원가 | 754 | 623 | 2,351 | 450 | 4,788 | |
| 매출원가율 | 85.83% | 93.60% | 84.98% | 100.04% | 90.10% | |
| 자사몰 | 매출액 | 9 | 7 | 14 | - | - |
| 매출원가 | 7 | 5 | 15 | - | - | |
| 매출원가율 | 75.35% | 70.93% | 102.96% | - | - | |
| 합 계 | 매출액 | 888 | 673 | 2,781 | 449 | 5,314 |
| 매출원가 | 761 | 628 | 2,366 | 450 | 4,788 | |
| 매출원가율 | 85.72% | 93.38% | 85.08% | 100.04% | 90.10% | |
| 출처 : | 당사 제시 |
| 주) | 당사의 G7 커피 매출은 2022년 2월부터 발생하였습니다.. |
당사는 2022년 2월부터 G7 커피 매출이 발생하고 있으며, 2022년에는 외부몰, 2023년 1분기부터는 외부몰 및 자사몰을 통해 G7 커피를 판매하고 있습니다. 당사의 G7 커피 매출원가율은 2022년 90.10% 수준에서 2023년 1분기 85.08%로 감소하였는데, 이는 G7 커피 상품을 수입하는 과정에서 2022년 대비 2023년 1분기 원/달러 환율이 하락하여 상품 수입가격, 운반비 등이 감소한 영향입니다.
당사는 2023년 3월, G7 커피 자사몰을 오픈하였으며 2023년 1분기 매출액은 14백만원, 매출원가율은 15백만원으로 매출원가율 102.96%를 기록하였습니다. 자사몰 오픈과 동시에 진행된 할인으로 인해 매출원가율이 일시적으로 100%를 상회하였으나, 2023년 4월 및 5월의 경우에는 정상적으로 판매가 이루어져 매출원가율은 각각 70.93%, 75.35%로 감소하였습니다. 이처럼, 당사는 향후 자사몰을 통한 매출액 확대 및 매출원가율 개선을 계획하고 있으나, 그럼에도 불구하고 자사몰의 매출이 부진하거나, 환율 상승으로 인하여 상품 매입가격이 급등 할 경우, 또는 상품 유통업의 특성으로 인하여 매출원가를 절감하지 못할 경우 당사의 수익성은 신규 사업 추진으로 인하여 지속적으로 악화될 수 있으니 투자자께서는 이 점 유의하시기 바랍니다.
당사는 기 확보한 유통채널, 마케팅 능력 등을 기반으로 사업 확장을 위하여 신규 브랜드 유통에 진입하였고 향후 당사 매출 성장에 기여할 수 있을 것으로 예상됩니다. 그러나 신규 브랜드 런칭은 필연적으로 초기 투자 비용이 발생되기 때문에 단기적으로 재무지표의 악화를 유발할 수 있으며, 해당 사업부가 성공적으로 시장에 안착하지 못할 경우 향후 당사의 재무 상태와 성장성에 부정적인 영향을 미칠 수 있습니다. 특히, G7 커피 중심의 상품 매출의 경우 당사의 매출 비중에서 과거에 비해 많은 비중을 차지하게 된 만큼 G7 커피 수요와 공급에 따라 상품 매출이 크게 변동되어 당사의 매출에 영향을 줄 가능성이 높습니다. 따라서 G7 커피 판매량이 감소하는 경우 당사의 매출이 악화되어 수익성이 낮아지는 위험이 존재합니다.
(주4) 정정 전
|
자. 유통채널 확대 및 매출처 편중에 따른 위험 |
(중략)
| [주요 매출처별 제품 매출현황] |
| (단위 : 백만원) |
|
매출처 |
2023년 1분기 |
2020년 |
2021년 |
2022년 |
|---|---|---|---|---|
|
자사몰 |
966 |
4,135 |
5,652 |
4,413 |
|
N사 |
1,352 |
2,698 |
4,238 |
7,530 |
|
S사 |
139 |
816 |
1,464 |
773 |
|
L사 |
83 |
1,307 |
1,217 |
500 |
|
C사 |
249 |
951 |
908 |
1,000 |
|
Y사 |
- |
3,086 |
2,336 |
2,656 |
|
K사 |
131 |
616 |
642 |
736 |
|
기타 |
891 | 4,858 | 3,935 | 3,857 |
|
합계 |
3,811 |
18,467 |
20,391 |
21,465 |
| 출처 : | 당사 제시 |
(후략)
(주4) 정정 후
|
자. 유통채널 확대 및 매출처 편중에 따른 위험 |
(중략)
| [주요 매출처별 제품 매출현황] |
| (단위 : 백만원) |
|
매출처 |
2023년 1분기 |
2022년 |
2021년 |
2020년 |
|---|---|---|---|---|
|
자사몰 |
966 | 4,413 |
5,652 |
4,135 |
|
N사 |
1,352 | 7,530 |
4,238 |
2,698 |
|
S사 |
139 | 773 |
1,464 |
816 |
|
L사 |
83 | 500 |
1,217 |
1,307 |
|
C사 |
249 | 1,000 |
908 |
951 |
|
Y사 |
- | 2,656 |
2,336 |
3,086 |
|
K사 |
131 | 736 |
642 |
616 |
|
기타 |
891 | 3,857 | 3,935 | 4,858 |
|
합계 |
3,811 | 21,465 |
20,391 |
18,467 |
| 출처 : | 당사 제시 |
(후략)
(주5) 정정 전
|
가. 스마트 공장 건립 관련 신규시설 투자 위험 |
당사는 생산 효율화를 도모하기 위하여 현재 외부생산을 기반으로 사업을 영위하고 있으며, 전체 품목에 대해 매월 판매 계획서를 기반으로 보유하고 있는 재고를 감안하여 생산 계획서를 작성하고, 그 계획에 따라 발주 진행 및 생산을 진행합니다. 다만, 유아용 매트 등 주력 품목들의 매출 규모가 확대되면서 원가 및 품질 경쟁력을 확보하고 물류 비용 절감을 위하여 스마트 공장 건립을 통한 자체 생산 라인 구축을 진행하고 있습니다. 스마트 공장의 구축으로 당사는 원가 절감뿐만 아니라 물류창고 공간확보, 재고자산 부담의 감소 효과가 기대되며 이를 통해 수익성 확대를 기대하고 있습니다.
현재 당사는 설립시부터 생산 효율화를 위해 외주생산을 기반으로 사업을 영위하고 있기 때문에 영업비용에서 외주비가 차지하는 비중이 높습니다. 생산은 100% 외주가공, OEM, ODM 방식으로 제품군에 따라 생산방식을 달리하고 있습니다.
| [당사 제품별 생산방식] |
| 구분 | 방식 | 비고 | |
| 유아용 가구 | 매트 | 원재료 직매입 및 외주가공 |
당사가 원재료를 직매입하여 외주가공업체에 공급하여 생산하는 방식 |
| 원목 가구 등 | OEM 생산 | 국내/해외 OEM 생산 | |
| 유아용 스킨케어 | ODM 생산 | 국내 ODM 생산 | |
| 출처 : 당사 정기보고서 및 당사 제공 |
| [연도별 외주가공비 비중] |
| (단위 : 백만원) |
|
구 분 |
2023년 1분기 |
2022년 |
2021년 |
2020년 |
|---|---|---|---|---|
|
외주가공비 |
1,077 |
7,066 |
7,711 |
5,508 |
|
당기 총제조비용 대비 비중 |
56.2% |
56.2% |
65.4% |
50.8% |
|
제품 매출액 대비 비중 |
30.7% |
34.9% |
36.9% |
29.8% |
|
외주가공업체 수 |
27사 |
50사 |
32사 |
33사 |
| 출처 : 당사 제공 |
상기 표처럼 당사 총제조비용 대비 외주가공비의 비중은 약 50% 이상으로 제조비용의 상당 부분이 외주가공비로 지출되고 있어, 매출이 확대될 수록 외주가공비 또한 동반 상승하는 비용 구조를 가지고 있습니다.
당사는 주력품목들의 매출 규모가 성장하면서 원가 및 품질 경쟁력을 더욱 확보하고, 물류 비용 절감을 위하여 자체 생산시설 확보 계획을 수립하였으며, 신규 공장 건립을 위해 건축물, 기계장치 등을 구매할 계획입니다. 당사의 주력 제품인 유아용 매트는 제품의 특성상 부피가 크기 때문에 SKU가 높아 많은 창고를 필요로 합니다. 이로 인해서, 창고 임대료 부담이 높은 편인데, 안성시에 확보한 자체 물류센터에 유아용 매트를 보관하여 임대료 부담을 낮출 예정입니다. 또한, 판매중인 유아용 매트 중에서 당사가 예측가능한 수요 대해선 해당 부지에 건설된 공장에서 자체 생산함으로써 OEM/ODM에 100% 의존되어 있는 현재의 생산위험을 낮추고, 원가와 물류비를 절감함으로써 수익성을 높일 계획입니다.
당사는 토지비 및 건축비 등이 포함하여 약 210억원을 투자하여 주력품목들을 직접 생산하기 위한 지상3층, 지하1층 규모의 스마트팩토리 신설을 진행 할 예정이며, 2024년 9월까지 공장을 완공하여 본격적인 자체생산에 돌입 할 예정입니다. 이를 위해 당사는 2023년 3월 30일 경기도 안성시에 위치한 9,900㎡ 규모의 토지를 양수하는 계약을 체결하였으며, 2023년 6월 29일 잔급지급 완료 후 양수를 완료하여 생산공장 및 물류센터 신축을 진행할 예정입니다. 또한 당사는 공시서류 제출 전일 현재 공장건물 토목설계 및 건축설계 계약을 진행중에 있습니다.
2023년 1월 30일 당사가 공시한 IPO 일반공모 투자설명서에 따르면, 당사는 총 약 157억원을 투자하여 경기도 용인시 남사읍 북리 토지 총 8,273㎡(2,503평)을 매입 후 스마트팩토리 신설을 계획중인것으로 기재되어 있으나, 이후 추가적인 사업 진행 중 신설예정인 스마트팩토리의 규모가 기존보다 증가하였고, 또한 기존 매입 예정이었던 용인시 남사읍 북리 토지의 가격이 최초 계획시보다 크게 상승하여 최종적으로 경기도 안성시에 위치한 토지를 매입 할 것으로 사업계획을 변경하였습니다. 이에 IPO 투자설명서에 예측한 2023년 12월 입주완료일자 또한 2024년 9월 중 입주 예정으로 변경 되었습니다. 금번 변경된 스마트팩토리 신설관련 총 투자규모 및 계획 및 공장부지 취득 관련 공시사항은 아래와 같습니다.
| [스마트팩토리 신설 관련 투자규모 및 계획] |
| 구분 | 내용 |
|---|---|
| 총 투자규모(예정) | 총 투자규모: 약 210억원 - 토지비(토지매입비 및 취득세 등): 약 49억원 (23년 04월 ~ 23년 06월 사용예정) - 건축비(직접공사비 및 간접공사비 등): 약 135억원 (23년 06월 ~ 24년 09월 사용예정) - 기계장치(공장설비): 약 6억원 (24년 08월 ~ 24년 09월 사용예정) - 기타 설비(렉설치비 및 인테리어 등): 약 20억원 (24년 08월 ~ 24년 09월 사용예정) |
| 투자기간(예정) | 2023년 04월 ~ 2024년 09월 |
| 진행경과 | 2023년 04월: 토지매입 계약 체결완료 및 중도금 지급 현재 토목설계 및 건축설계 계약 진행 중 |
| 향후일정(예정) | 23년 06월: 토지잔금 지급 23년 06월: 설계계약 23년 11월: 인허가 완료 예정 23년 12월: 착공 24년 09월: 완공 및 입주 예정 |
| 출처 : 당사 제공 주) 상기 일정은 당사가 계획중인 일정으로 추후 예상치 못한 변수 발생시 변동 될 수 있습니다 |
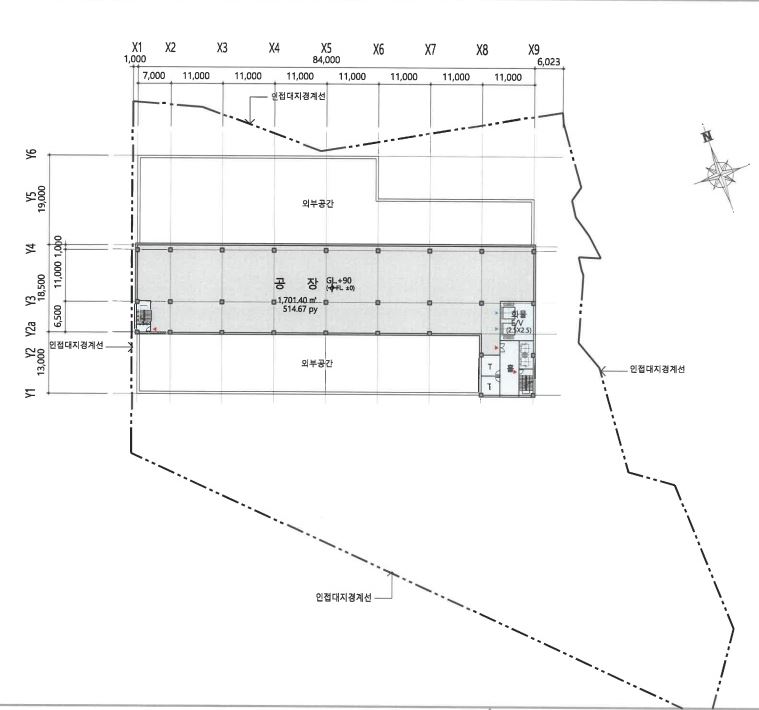
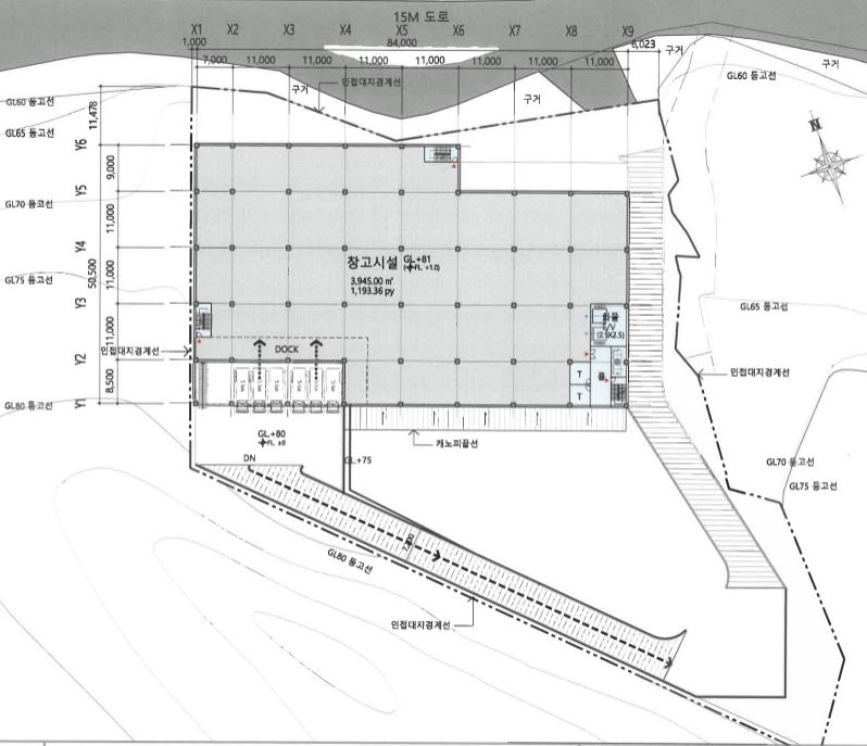
| [스마트팩토리 관련 개요] |
| 구 분 | 내 용 | |||||||||
|---|---|---|---|---|---|---|---|---|---|---|
| 위치 | 안성시 원곡면 성은리 산22-2 | |||||||||
| 지역지구 | 계획관리지역 | |||||||||
| 면적 | 대지 | 9,900㎡ | ||||||||
| 연면적 | 15,000.78㎡ | |||||||||
| 지상 : 9,811.40㎡ / 지하 : 5,189.38㎡ | ||||||||||
| 건폐율/용적률 | 39.85% / 99.11% | |||||||||
| 규모 | 지상 3층 / 지하 1층 | |||||||||
| 스마트팩토리 설계도(안) |
|
|||||||||
| 출처 : 당사 제공 주) 상기 개요는 당사가 계획중인 일정으로 추후 건축사무소와의 설계 변경시 변동 될 수 있습니다 |
| [유형자산 양수내역] |
| 1. 자산구분 | 토지 | |
| - 자산명 | [토지] 경기도 안성시 원곡면 성은리 산22-2 (토지:9,900㎡) | |
| 2. 양수내역 | 양수금액(원) | 4,490,000,000 |
| 자산총액(원) | 11,537,316,507 | |
| 자산총액대비(%) | 38.92 | |
| 3. 양수목적 | 생산공장 및 물류센터 신축을 위한 부지 확보 | |
| 4. 양수영향 | 생산라인 구축 및 물류센터 통합으로 인한 수익성 개선 | |
| 5. 양수예정일자 | 계약체결일 | 2023.03.30 |
| 양수기준일 | 2023.06.29 | |
| 등기예정일 | 2023.06.29 | |
| 6. 거래상대방 | 회사명(성명) | 주식회사 서광인프라 |
| 자본금(원) | 100,000,000 | |
| 주요사업 | 통신ㆍ방송장비 및 부품 도매업 | |
| 본점소재지(주소) | 서울특별시 송파구 백제고분로 75, 311호 | |
| 회사와의 관계 | - | |
| 7. 거래대금지급 |
1) 지급형태 : 현금 2) 자금조달 : 내부보유자금 및 차입금 3) 지급 시기 및 조건 - 계약금 : 449,000,000원 (2023.03.30) - 중도금 : 1,000,000,000원 (2023.04.27) - 잔 금 : 3,041,000,000원 (2023.06.29) |
|
| 8. 외부평가에 관한 사항 | 외부평가 여부 | 예 |
| - 근거 및 사유 |
1) 근거 : 자본시장과 금융투자업에 관한 법률 제161조 제1항 제7호 및 동법 시행령 제171조 제2항 제5호에 의한 적정성 평가 2) 사유 : 회사가 양수하기로 의사결정한 자산양수가액의 적정성 여부를 판단하기 위한 참고자료 제공 |
|
| 외부평가기관의 명칭 | 리안회계법인 | |
| 외부평가 기간 | 2023.03.27 ~ 2023.03.30 | |
| 외부평가 의견 | 적정 | |
| 출처 : 전자공시시스템(dart.fss.or.kr) |
당사는 2023년 3월 30일 토지매수계약을 체결하며 계약금으로 약 4.5억원을, 2023년 4월 27일 1차 중도금으로 10억원을 IPO 공모자금을 사용하여 지급하였으며. 2023년 6월 29일 잔금 약 30억 및 등록비용 약 4억원 또한 IPO 공모자금을 사용하여 지급 할 예정입니다. 당사는 금번 일반공모 유상증자 공모자금 중 약 132억원을 사용하여 스마트팩토리 공사비로 사용할 예정입니다. 또한 당사는 자체자금 약 29억원을 사용하여 공장 기계설비 및 내부 인테리어 등에 필요한 자금을 충당 할 예정입니다. 당사는 건축사무소와 신축공장의 규모, 내부 기계설비 등에 대해 최종적으로 조율중에 있으며, 그 과정에서 최종 사용되는 비용의 규모가 일부 변동 될 수 있습니다.
또한 금번 주가하락으로 인한 일반공모 유상증자의 최종 공모자금 하락 및 일반공모 후 실권주 발생으로 인해 총 발행금액이 축소 될 경우 당사는 보유현금 및 금융기관 추가차입을 통해 스마트팩토리 신설 자금을 충당 할 계획입니다. 공시서류 제출 전일 기준 스마트팩토리 관련 비용 상세내역 및 금번 공모자금 사용 일정은 아래와 같습니다.
| [스마트팩토리 관련 비용 상세내역] |
| (단위: 백만원) |
| 구분 | 내용 | 금액 | 일정 | 자금출처 |
|---|---|---|---|---|
| 토지대금 | 계약금 | 449 | 2023년 04월 | IPO 공모자금 (지급완료) |
| 중도금 | 1,000 | 2023년 05월 | IPO 공모자금 (지급완료) |
|
| 잔금 | 3,041 | 2023년 06월 | IPO 공모자금 (지급예정) |
|
| 소계 | 4,490 | - | - | |
| 등록비용등 | 442 | 2023년 06월 | IPO 공모자금 (지급예정) |
|
| 합계 | 4,932 | - | - | |
| 설계비 | 토목설계 | 30 | 2023년 06월 ~ 2023년 7월 | 자체자금 (지급예정) |
| 건축설계 | 182 | 2023년 06월 ~ 2023년 09월 | IPO 공모자금 (지급예정) |
|
| 감리용역 | 182 | 2023년 10월 ~ 2024년 09월 | IPO 공모자금 (지급예정) |
|
| 합계 | 393 | - | - | |
| 건축비 | 공사비 | 13,193 | 2023년 10월 ~ 2024년 09월 | 금번 일반공모 공모자금 (지급예정) |
| 기계설비 | 공장 설비 | 639 | 2024년 08월 ~ 2024년 09월 | 자체자금 (지급예정) |
| 기타 | 랙설치 | 300 | 2024년 08월 ~ 2024년 09월 | 자체자금 (지급예정) |
| 전시인테리어 | 700 | 2024년 08월 ~ 2024년 09월 | 자체자금 (지급예정) |
|
| 취득비용 등 | 861 | 2024년 10월 | 자체자금 (지급예정) |
|
| 소계 | 1,861 | - | - | |
| 총계 | 21,018 | - | - | |
| 출처 : 당사 제공 주) 상기 비용은 당사가 계획중인 일정으로 추후 건축사무소와의 설계 변경시 변동 될 수 있습니다 |
| [스마트팩토리 관련 비용 산정근거] |
| (단위: 백만원) |
| 구분 | 항목 | 금 액 | 비율 | 비 고 | |
|---|---|---|---|---|---|
| 토지대 | 토지비 | 4,490 | 21.36% | 2,503/평 | |
| 취득제세금 | 251 | 1.20% | 토지비 * 5.6% | ||
| 인허가비용 | 150 | 0.71% | 50/평(대체산림자원조성비 포함) | ||
| 중개수수료 | 40 | 0.19% | 중개수수료 0.9% | ||
| 소 계 | 4,932 | 23.46% | - | ||
| 건축비 | 직접 공사비 | 12,914 | 도급가 | 연면적(평) | 평당 공사비 |
| 61.44% | 4,537.72 | 2,846 | |||
| 각종 인입비 | 150 | 0.71% | 연면적*평당 50 천원 | ||
| 공사 예비비 | 129 | 0.61% | 직접공사비*1% | ||
| 실시토목설계 | 30 | 0.14% | 1식 | ||
| 설계비 | 182 | 0.86% | 연면적*평당 40 천원 | ||
| 감리비 | 182 | 0.86% | 연면적*평당 40 천원 | ||
| 소 계 | 13,586 | 64.64% | 평당 건축비 | 2,994 | |
| 설비 | 기계장치 | 639 | 3.04% | 스마트공장 자동화 설비 컨베이어, 로봇구축비용 | |
| 랙설치비 | 300 | 1.43% | 10식 | ||
| 예비비 | 50 | 0.24% | 기타비용 | ||
| 소 계 | 989 | 4.71% | - | ||
| 기타 | 건축 취등록세 | 761 | 3.62% | 건축비 * 5.6% | |
| 인테리어,가구 | 700 | 3.33% | 전시시설 | ||
| 기타 | 50 | 0.24% | 등기수수료 등 | ||
| 소 계 | 1,511 | 7.19% | - | ||
| 지출총액 | 21,018 | 100.00% | 평당 지출금액 | 4,632 | |
| 출처 : 당사 제공 주) 상기 비용은 당사가 계획중인 일정으로 추후 건축사무소와의 설계 변경시 변동 될 수 있습니다. 주) 당사는 상기 건축 비 중 직접공사비, 각종 인입비, 공사 예비비를 포함한 약 132억원을 금번 일반공모 공모자금을 통해 조달할 예정입니다. |
| [일반공모 공모자금 사용스케줄] |
| (단위 : 백만원) |
| 사용시기 | 금액 | 비고 |
|---|---|---|
| 2023년 4분기 | 4,000 | 공장건물 건축 계약금 및 공사비 지급 |
| 2024년 1분기 | 3,064 | 공장 건물 공사비 |
| 2024년 2분기 | 3,064 | 공장 건물 공사비 |
| 2024년 3분기 | 3,064 | 공장 건물 공사비 |
| 합계 | 13,193 | - |
| 출처 : 당사 제공 주) 상기 공모자금 사용 스케줄은 당사가 계획중인 일정으로 추후 공사 진행상황에 따라 변동 될 수 있습니다 |
당사는 스마트팩토리 신설 완료 후 주요제품 직접생산 및 자체 물류창고 구비를 통해 비용을 절감 할 수 있을것으로 예상하고 있습니다. 유아용 롤매트 월 6,000EA 생산 및 판매시(월 최대 CAPA 9,600EA) 예상되는 매출총이익 에서 기존 1년간 지출중인 평균 외주가공비를 제한 금액을 산정 하였을 때 당사는 1년간 약 5.6억원의 비용을 절감 할 수 있을 것으로 예상하고 있으며, 제품 보관을 위해 지불하던 창고임차료 및 제3자물류 작업비 1년 평균분 약 10.9억원을 절감하여 1년간 총 16.5억원의 매출원가 및 판매비와관리비를 절감 할 수 있을 것으로 예상하고 있습니다. 스마트팩토리 신설로 인한 절감비용 상세내역 및 당사가 구비 예정인 설비내역은 아래와 같습니다.
| [스마트팩토리 신설로 인한 절감비용 내역] |
| (단위 : 백만원) |
| 항목 | 연간 절감 비용 | 산출근거 | 비고 |
|---|---|---|---|
| 외주가공비 절약분 | 560 | 월 6,000EA 생산 기준(최대 CAPA 9,600EA) 1년간 예상 롤매트 매출총이익 - 1년간 지출중인 평균 외주가공비 |
유아용 롤매트 기준 공장 운영비를 감안하여 계산 |
| 창고임차료 절약분 | 727 | 1년간 지출한 평균 물류창고 임차료 | - |
| 제3자물류 작업비 절약분 | 361 | 1년간 지출한 평균 3자물류 작업비 | - |
| 합계 | 1,647 | - | - |
| 출처 : 당사 제공 주) 상기 절감비용 내역은 당사가 산출한 것으로 추후 변동 될 수 있습니다 |
| [스마트팩토리 구비 예정 설비내역] |
| (단위 : 백만원) |
| 시설명 | 수량 | 금액 | 비고 |
|---|---|---|---|
| 기계설비 | |||
| 롤커팅기 | 1 | 25 | 주문제작 생산설비 |
| 롤투입거치대 | 2 | 5 | 주문제작 생산설비 |
| 재단기 | 1 | 20 | 주문제작 생산설비 |
| 봉제로봇 | 4 | 260 | 주문제작 생산설비 |
| 미싱기 | 4 | 7 | - |
| 합봉미싱기 | 6 | 12 | - |
| 상하자동테핑기 | 2 | 20 | 주문제작 생산설비 |
| 적재로봇 | 3 | 100 | 주문제작 생산설비 |
| 컨베어 및 제어시스템 | 1 | 190 | 주문제작 집진설비 |
| 소 계 | 24 | 639 | - |
| 기타설비 | |||
| 렉설치 | 1식 | 300 | - |
| 소 계 | 1식 | 300 | - |
| 합 계 | - | 939 | - |
| 출처 : 당사 제공 주) 상기 구비시설 목록은 당사가 계획중인 것으로 추후 공장규모 및 내부구조 변경으로 인해 변동 될 수 있습니다 |
다만, 당사의 생산시설 확장 및 운영과정에 있어서 원재료 확보의 어려움, 제조장비 공급업체와의 문제, 장비 오작동 및 고장 등으로 인한 추가비용 지출의 위험성과 생산량 확대의 불확실성이 존재합니다. 생산량의 확대가 원활하게 이루어지지 못할 경우 고객의 수요에 대응하기 어려우며, 그 결과 시장 점유율이 하락할 위험이 있습니다.
또한 당사는 공시서류 제출 전일 기준 스마트팩토리 신설을 위한 토지매입 계약 체결완료 및 중도금 지급을 완료한 상태이고, 토목설계 및 건축설계 계약을 진행 중입니다. 따라서 건축설계 과정에서 당사의 예상과는 다르게 그 공장의 규모가 변동될 경우, 당사가 상기한 스마트팩토리 신설 관련 비용 및 추후 당사가 예상하고 있는 매출원가 및 판매비와관리비 절감효과 또한 변동 될 수 있습니다. 또한 당사는 금번 일반공모 공모자금 중 약 132억원을 사용하여 공장 건물 공사비로 사용 예정인 바, 추후 설계 변동으로 인해 추가비적인 비용이 발생 한 경우에는 당사의 자체자금 혹은 추가차입금으로 충당 할 예정이며, 설계 변동으로 인해 예상보다 적은 비용으로 공사비가 지출 될 경우 남은 금액분은 공장 내 기계설비 구비 등의 자금으로 사용 될 예정입니다.
당사는 상기와 같이 스마트팩토리 신설 설비 투자를 통해 매출 증대 및 수익성 개선을 기대하고 있습니다. 공장 증축 및 기계설비 투자의 경우 수익성 개선 기대감의 긍정적인 측면도 있지만, 당사의 신규투자가 반드시 성공을 보장하는 것은 아니며, 수익성 향상에 성공하지 못할 경우 투자 자금의 회수가 어려울 수 있으며, 공장증축을 위해 시공된 건물, 기계장비 등의 유형자산에 손상이 발생해 당사에 심각한 재무적 손실이 발생 할 수도 있습니다. 투자자께서는 이 점 유의하시기 바랍니다.
(주5) 정정 후
|
가. 스마트 공장 건립 관련 신규시설 투자 위험 |
당사는 생산 효율화를 도모하기 위하여 현재 외부생산을 기반으로 사업을 영위하고 있으며, 전체 품목에 대해 매월 판매 계획서를 기반으로 보유하고 있는 재고를 감안하여 생산 계획서를 작성하고, 그 계획에 따라 발주 진행 및 생산을 진행합니다. 다만, 유아용 매트 등 주력 품목들의 매출 규모가 확대되면서 원가 및 품질 경쟁력을 확보하고 물류 비용 절감을 위하여 스마트 공장 건립을 통한 자체 생산 라인 구축을 진행하고 있습니다. 스마트 공장의 구축으로 당사는 원가 절감뿐만 아니라 물류창고 공간확보, 재고자산 보관비용 부담의 감소 효과가 기대되며 이를 통해 수익성 확대를 기대하고 있습니다.
현재 당사는 설립시부터 생산 효율화를 위해 외주생산을 기반으로 사업을 영위하고 있기 때문에 영업비용에서 외주비가 차지하는 비중이 높습니다. 생산은 100% 외주가공, OEM, ODM 방식으로 제품군에 따라 생산방식을 달리하고 있습니다.
| [당사 제품별 생산방식] |
| 구분 | 방식 | 비고 | |
| 유아용 가구 | 매트 | 원재료 직매입 및 외주가공 |
당사가 원재료를 직매입하여 외주가공업체에 공급하여 생산하는 방식 |
| 원목 가구 등 | OEM 생산 | 국내/해외 OEM 생산 | |
| 유아용 스킨케어 | ODM 생산 | 국내 ODM 생산 | |
| 출처 : 당사 정기보고서 및 당사 제공 |
| [연도별 외주가공비 비중] |
| (단위 : 백만원) |
|
구 분 |
2023년 1분기 |
2022년 1분기 |
2022년 |
2021년 |
2020년 |
|---|---|---|---|---|---|
|
외주가공비 |
1,077 |
2,471 |
7,066 |
7,711 |
5,508 |
|
당기 총제조비용 대비 비중 |
56.2% |
66.75% |
56.2% |
65.4% |
50.8% |
|
제품 매출액 대비 비중 |
30.7% |
41.90% |
34.9% |
36.9% |
29.8% |
|
외주가공업체 수 |
27사 |
32사 |
50사 |
32사 |
33사 |
| 출처 : 당사 제공 |
상기 표처럼 당사 총제조비용 대비 외주가공비의 비중은 약 50% 이상으로 제조비용의 상당 부분이 외주가공비로 지출되고 있어, 매출이 확대될 수록 외주가공비 또한 동반 상승하는 비용 구조를 가지고 있습니다.
당사는 주력품목들의 매출 규모가 성장하면서 원가 및 품질 경쟁력을 더욱 확보하고, 물류 비용 절감을 위하여 자체 생산시설 확보 계획을 수립하였으며, 신규 공장 건립을 위해 건축물, 기계장치 등을 구매할 계획입니다. 당사의 주력 제품인 유아용 매트는 제품의 특성상 부피가 크기 때문에 SKU가 높아 많은 창고를 필요로 합니다. 이로 인해서, 창고 임대료 부담이 높은 편인데, 안성시에 확보한 자체 물류센터에 유아용 매트를 보관하여 임대료 부담을 낮출 예정입니다. 또한, 판매중인 유아용 매트 중에서 당사가 예측가능한 수요 대해선 해당 부지에 건설된 공장에서 자체 생산함으로써 OEM/ODM에 100% 의존되어 있는 현재의 생산위험을 낮추고, 원가와 물류비를 절감함으로써 수익성을 높일 계획입니다.
당사는 토지비 및 건축비 등이 포함하여 약 210억원을 투자하여 주력품목들을 직접 생산하기 위한 지상3층, 지하1층 규모의 스마트팩토리 신설을 진행 할 예정이며, 2024년 9월까지 공장을 완공하여 본격적인 자체생산에 돌입 할 예정입니다. 이를 위해 당사는 2023년 3월 30일 경기도 안성시에 위치한 9,900㎡ 규모의 토지를 양수하는 계약을 체결하였으며, 2023년 6월 29일 잔급지급 완료 후 양수를 완료하여 생산공장 및 물류센터 신축을 진행할 예정입니다. 또한 당사는 공시서류 제출 전일 현재 공장건물 토목설계 및 건축설계 계약을 진행중에 있습니다.
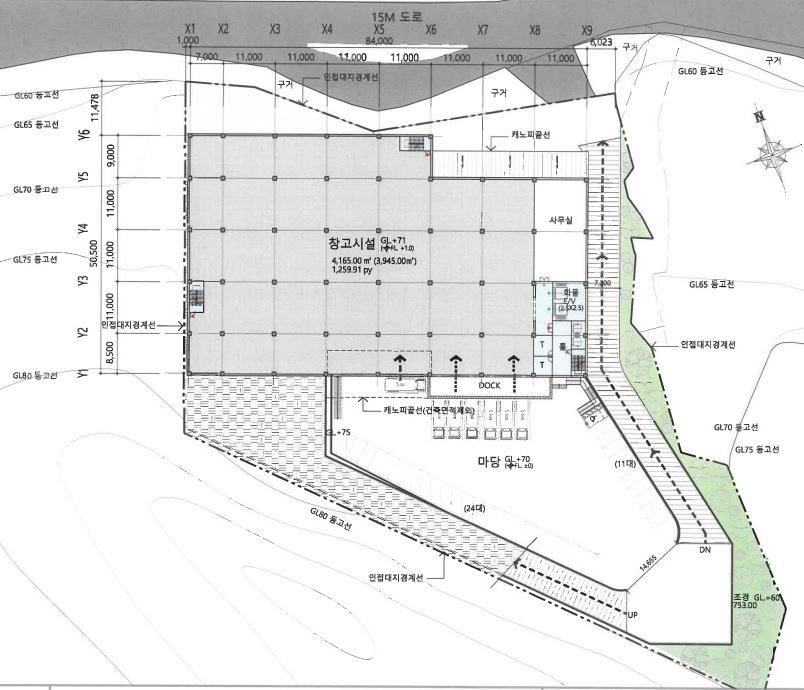
2023년 1월 30일 당사가 공시한 IPO 일반공모 투자설명서에 따르면, 당사는 총 약 157억원을 투자하여 경기도 용인시 남사읍 북리 토지 총 8,273㎡(2,503평)을 매입 후 스마트팩토리 신설을 계획중인것으로 기재되어 있으나, 이후 추가적인 사업 진행 중 신설예정인 스마트팩토리의 규모가 기존보다 증가하였고, 또한 기존 매입 예정이었던 용인시 남사읍 북리 토지의 가격이 최초 계획시보다 크게 상승하여 최종적으로 경기도 안성시에 위치한 토지를 매입 할 것으로 사업계획을 변경하였습니다. 당사가 2023년 1월 30일 공시한 기존 스마트 팩토리 공장설립안 및 금번 일반공모 유상증자를 통해 계획중인 스마트 팩토리 공장설립안은 다음과 같습니다.
| [스마트 팩토리 기존 공장설립안 및 변경안 비교] |
| (단위 : 백만원) |
| 구 분 | 기존(안) | 변경(안) | ||
|---|---|---|---|---|
| 내 용 | 비 고 | 내 용 | 비 고 | |
| 소재지 | 경기도 용인시 남사읍 북리 00번지 일대 | 경기도 안성시 원곡면 성은리 산 22-2 | ||
| 토지면적 | 8,273㎡ | 2,502평 | 9,900㎡ | 2,995평 |
| 건폐율 | 67.95% | 법정 건폐율 70% | 39.85% | 법정 건폐율 40% |
| 용적율 | 99.89% | 법정 용적율 100% | 99.11% | 법정 용적율 100% |
| 건축규모 | 8,264.50㎡ | 공장 300평 창고 2,000평 편의시설 200평 |
15,000.78㎡ | 공장 500평 창고&쇼룸 3,500평 편의시설 180평 |
| 지상층 | 8,264.50㎡ | 지상2층 | 9,811.40㎡ | 지상3층 |
| 지하증 | - | - | 5,189.38㎡ | 지하1층 |
| 건 축 비 용 | ||||
| 토지구입대금 | 7,241 | 4,932 | ||
| 예상 건축비 | 7,876 | 13,586 | ||
| 기계설비 | 932 | 989 | ||
| 기 타 | 160 | 1,511 | ||
| 합 계 | 16,210 | 21,018 | ||
| 생산품목 | 롤매트류(클린롤매트(양면), 슈퍼자이언트매트(양면) 허쉬(양면), 롤매트플러스(단면) 자이언트(단면), 슈퍼자이언트(단면), 5단클린매트(단면) |
|||
| 출처 : | 당사 제시 |
당사는 2022년 상반기부터 공장 및 부대시설인 창고와 창고 시설 내 쇼룸을 설치하고자 당사와 가까운 거리의 매물을 찾고 있었으며, 경기도 용인시 남사읍에 위치한 북리 공단 내 부지에 대하여 부동산 및 실 소유주와 협의를 하여 당사가 상장을 진행할 당시 계약 직전까지 진행되었습니다. 그러나, 상장 이후 부지 계약을 위한 협의 중 2023년 3월 15일 남사읍 일대가 용인 반도체 클러스터 국가산업단지 후보지로 선정되었다는 뉴스가 보도되어 기존 계획했던 사업 부지 확보에 차질이 생기게 되었습니다. 이에 당사는 교통편의성, 인허가 취득 가능성, 부지면적 등의 조건을 고려하여 공장부지를 재검토하였고, 최초 계획하였던 용인시 남사읍 토지에서 약 10km 거리에 있는 경기도 안성시에 위치한 부지를 매입하기로 결정하였습니다.
당사는 기존 계획보다 토지면적, 건축규모, 건축비용면에서 기존 계획보다 규모를 확대하였습니다. 이는 당사가 상장 이후 빠른 매출액 성장을 위해 상품 개발 인력을 작년 4분기 대거 충원 해 왔으며, 그 결과 올해 2분기부터 신상품이 작년 대비 4배 이상 출시되는 등 신상품의 출시 및 제품 카테고리의 확대 그리고 2022년부터 신규로 사업을 영위하고 있는 G7 커피의 매출 또한 전년 대비 크게 성장되어 당초 계획보다 물류 공간이 더 요구되는 상황이기 때문입니다. 또한, 당사는 유아용품을 오프라인에서 직접 경험해 보고 싶었으나 마땅히 체험해 볼 수 있는 쇼핑 공간이 없었던 고객을 위해 본 창고시설 내 쇼룸을 추가적으로 계획하고 있습니다. 당사 제품의 경우 부피가 큰 제품이 많고 가격대가 높은 프리미엄 상품이기에 체험 공간의 필요성이 높으며, 당사 제품 카테고리 확대의 영향으로 자체 쇼룸의 규모도 자연스럽게 확대하였습니다.
또한, IPO 투자설명서에 예측한 2023년 12월 입주완료일자는 2024년 9월 중 입주 예정으로 변경 되었습니다. 금번 변경된 스마트팩토리 신설관련 총 투자규모 및 계획 및 공장부지 취득 관련 공시사항은 아래와 같습니다.
| [스마트팩토리 신설 관련 투자규모 및 계획] |
| 구분 | 내용 |
|---|---|
| 총 투자규모(예정) | 총 투자규모: 약 210억원 - 토지비(토지매입비 및 취득세 등): 약 49억원 (23년 04월 ~ 23년 06월 사용예정) - 건축비(직접공사비 및 간접공사비 등): 약 135억원 (23년 06월 ~ 24년 09월 사용예정) - 기계장치(공장설비): 약 6억원 (24년 08월 ~ 24년 09월 사용예정) - 기타 설비(렉설치비 및 인테리어 등): 약 20억원 (24년 08월 ~ 24년 09월 사용예정) |
| 투자기간(예정) | 2023년 04월 ~ 2024년 09월 |
| 진행경과 | 2023년 04월: 토지매입 계약 체결완료 및 중도금 지급 현재 토목설계 및 건축설계 계약 진행 중 |
| 향후일정(예정) | 23년 06월: 토지잔금 지급 23년 06월: 설계계약 23년 11월: 인허가 완료 예정 23년 12월: 착공 24년 09월: 완공 및 입주 예정 |
| 출처 : 당사 제공 주) 상기 일정은 당사가 계획중인 일정으로 추후 예상치 못한 변수 발생시 변동 될 수 있습니다 |
| [스마트팩토리 관련 개요] |
| 구 분 | 내 용 | |||||||||
|---|---|---|---|---|---|---|---|---|---|---|
| 위치 | 안성시 원곡면 성은리 산22-2 | |||||||||
| 지역지구 | 계획관리지역 | |||||||||
| 면적 | 대지 | 9,900㎡ | ||||||||
| 연면적 | 15,000.78㎡ | |||||||||
| 지상 : 9,811.40㎡ / 지하 : 5,189.38㎡ | ||||||||||
| 건폐율/용적률 | 39.85% / 99.11% | |||||||||
| 규모 | 지상 3층 / 지하 1층 | |||||||||
| 스마트팩토리 설계도(안) |
|
|||||||||
| 출처 : 당사 제공 주) 상기 개요는 당사가 계획중인 일정으로 추후 건축사무소와의 설계 변경시 변동 될 수 있습니다 |
| [유형자산 양수내역] |
| 1. 자산구분 | 토지 | |
| - 자산명 | [토지] 경기도 안성시 원곡면 성은리 산22-2 (토지:9,900㎡) | |
| 2. 양수내역 | 양수금액(원) | 4,490,000,000 |
| 자산총액(원) | 11,537,316,507 | |
| 자산총액대비(%) | 38.92 | |
| 3. 양수목적 | 생산공장 및 물류센터 신축을 위한 부지 확보 | |
| 4. 양수영향 | 생산라인 구축 및 물류센터 통합으로 인한 수익성 개선 | |
| 5. 양수예정일자 | 계약체결일 | 2023.03.30 |
| 양수기준일 | 2023.06.29 | |
| 등기예정일 | 2023.06.29 | |
| 6. 거래상대방 | 회사명(성명) | 주식회사 서광인프라 |
| 자본금(원) | 100,000,000 | |
| 주요사업 | 통신ㆍ방송장비 및 부품 도매업 | |
| 본점소재지(주소) | 서울특별시 송파구 백제고분로 75, 311호 | |
| 회사와의 관계 | - | |
| 7. 거래대금지급 |
1) 지급형태 : 현금 2) 자금조달 : 내부보유자금 및 차입금 3) 지급 시기 및 조건 - 계약금 : 449,000,000원 (2023.03.30) - 중도금 : 1,000,000,000원 (2023.04.27) - 잔 금 : 3,041,000,000원 (2023.06.29) |
|
| 8. 외부평가에 관한 사항 | 외부평가 여부 | 예 |
| - 근거 및 사유 |
1) 근거 : 자본시장과 금융투자업에 관한 법률 제161조 제1항 제7호 및 동법 시행령 제171조 제2항 제5호에 의한 적정성 평가 2) 사유 : 회사가 양수하기로 의사결정한 자산양수가액의 적정성 여부를 판단하기 위한 참고자료 제공 |
|
| 외부평가기관의 명칭 | 리안회계법인 | |
| 외부평가 기간 | 2023.03.27 ~ 2023.03.30 | |
| 외부평가 의견 | 적정 | |
| 출처 : 전자공시시스템(dart.fss.or.kr) |
당사는 2023년 3월 30일 토지매수계약을 체결하며 계약금으로 약 4.5억원을, 2023년 4월 27일 1차 중도금으로 10억원을 IPO 공모자금을 사용하여 지급하였으며. 2023년 6월 29일 잔금 약 30억 및 등록비용 약 4억원 또한 IPO 공모자금을 사용하여 지급 할 예정입니다. 당사는 금번 일반공모 유상증자 공모자금 중 약 132억원을 사용하여 스마트팩토리 공사비로 사용할 예정입니다. 또한 당사는 자체자금 약 29억원을 사용하여 공장 기계설비 및 내부 인테리어 등에 필요한 자금을 충당 할 예정입니다. 당사는 건축사무소와 신축공장의 규모, 내부 기계설비 등에 대해 최종적으로 조율중에 있으며, 그 과정에서 최종 사용되는 비용의 규모가 일부 변동 될 수 있습니다.
또한 금번 주가하락으로 인한 일반공모 유상증자의 최종 공모자금 하락 및 일반공모 후 실권주 발생으로 인해 총 발행금액이 축소 될 경우 당사는 보유현금 및 금융기관 추가차입을 통해 스마트팩토리 신설 자금을 충당 할 계획입니다. 공시서류 제출 전일 기준 스마트팩토리 관련 비용 상세내역 및 금번 공모자금 사용 일정은 아래와 같습니다.
| [스마트팩토리 관련 비용 상세내역] |
| (단위: 백만원) |
| 구분 | 내용 | 금액 | 일정 | 자금출처 |
|---|---|---|---|---|
| 토지대금 | 계약금 | 449 | 2023년 04월 | IPO 공모자금 (지급완료) |
| 중도금 | 1,000 | 2023년 05월 | IPO 공모자금 (지급완료) |
|
| 잔금 | 3,041 | 2023년 06월 | IPO 공모자금 (지급예정) |
|
| 소계 | 4,490 | - | - | |
| 등록비용등 | 442 | 2023년 06월 | IPO 공모자금 (지급예정) |
|
| 합계 | 4,932 | - | - | |
| 설계비 | 토목설계 | 30 | 2023년 06월 ~ 2023년 7월 | 자체자금 (지급예정) |
| 건축설계 | 182 | 2023년 06월 ~ 2023년 09월 | IPO 공모자금 (지급예정) |
|
| 감리용역 | 182 | 2023년 10월 ~ 2024년 09월 | IPO 공모자금 (지급예정) |
|
| 합계 | 393 | - | - | |
| 건축비 | 공사비 | 13,193 | 2023년 10월 ~ 2024년 09월 | 금번 일반공모 공모자금 (지급예정) |
| 기계설비 | 공장 설비 | 639 | 2024년 08월 ~ 2024년 09월 | 자체자금 (지급예정) |
| 기타 | 랙설치 | 300 | 2024년 08월 ~ 2024년 09월 | 자체자금 (지급예정) |
| 전시인테리어 | 700 | 2024년 08월 ~ 2024년 09월 | 자체자금 (지급예정) |
|
| 취득비용 등 | 861 | 2024년 10월 | 자체자금 (지급예정) |
|
| 소계 | 1,861 | - | - | |
| 총계 | 21,018 | - | - | |
| 출처 : 당사 제공 주) 상기 비용은 당사가 계획중인 일정으로 추후 건축사무소와의 설계 변경시 변동 될 수 있습니다 |
| [스마트팩토리 관련 비용 산정근거] |
| (단위: 백만원) |
| 구분 | 항목 | 금 액 | 비율 | 비 고 | |
|---|---|---|---|---|---|
| 토지대 | 토지비 | 4,490 | 21.36% | 2,503/평 | |
| 취득제세금 | 251 | 1.20% | 토지비 * 5.6% | ||
| 인허가비용 | 150 | 0.71% | 50/평(대체산림자원조성비 포함) | ||
| 중개수수료 | 40 | 0.19% | 중개수수료 0.9% | ||
| 소 계 | 4,932 | 23.46% | - | ||
| 건축비 | 직접 공사비 | 12,914 | 도급가 | 연면적(평) | 평당 공사비 |
| 61.44% | 4,537.72 | 2,846 | |||
| 각종 인입비 | 150 | 0.71% | 연면적*평당 50 천원 | ||
| 공사 예비비 | 129 | 0.61% | 직접공사비*1% | ||
| 실시토목설계 | 30 | 0.14% | 1식 | ||
| 설계비 | 182 | 0.86% | 연면적*평당 40 천원 | ||
| 감리비 | 182 | 0.86% | 연면적*평당 40 천원 | ||
| 소 계 | 13,586 | 64.64% | 평당 건축비 | 2,994 | |
| 설비 | 기계장치 | 639 | 3.04% | 스마트공장 자동화 설비 컨베이어, 로봇구축비용 | |
| 랙설치비 | 300 | 1.43% | 1식 | ||
| 예비비 | 50 | 0.24% | 기타비용 | ||
| 소 계 | 989 | 4.71% | - | ||
| 기타 | 건축 취등록세 | 761 | 3.62% | 건축비 * 5.6% | |
| 인테리어,가구 | 700 | 3.33% | 전시시설 | ||
| 기타 | 50 | 0.24% | 등기수수료 등 | ||
| 소 계 | 1,511 | 7.19% | - | ||
| 지출총액 | 21,018 | 100.00% | 평당 지출금액 | 4,632 | |
| 출처 : 당사 제공 주) 상기 비용은 당사가 계획중인 일정으로 추후 건축사무소와의 설계 변경시 변동 될 수 있습니다. 주) 당사는 상기 건축 비 중 직접공사비, 각종 인입비, 공사 예비비를 포함한 약 132억원을 금번 일반공모 공모자금을 통해 조달할 예정입니다. |
| [일반공모 공모자금 사용스케줄] |
| (단위 : 백만원) |
| 사용시기 | 금액 | 비고 |
|---|---|---|
| 2023년 4분기 | 4,000 | 공장건물 건축 계약금 및 공사비 지급 |
| 2024년 1분기 | 3,064 | 공장 건물 공사비 |
| 2024년 2분기 | 3,064 | 공장 건물 공사비 |
| 2024년 3분기 | 3,064 | 공장 건물 공사비 |
| 합계 | 13,193 | - |
| 출처 : 당사 제공 주) 상기 공모자금 사용 스케줄은 당사가 계획중인 일정으로 추후 공사 진행상황에 따라 변동 될 수 있습니다 |
당사는 스마트팩토리 신설 완료 후 주요제품 직접생산 및 자체 물류창고 구비를 통해 비용을 절감 할 수 있을것으로 예상하고 있습니다. 당사는 스마트팩토리를 통해 유아용 롤매트 월 6,000EA(스마트팩토리 최대 CAPA 9,600EA의 62.50%수준) 생산 및 판매시 외주생산 대비 1년간 매출원가 548백만원, 판매비와관리비 1,080백만원, 총 1,628백만원의 비용을 절감할 수 있을 것으로 판단하고 있습니다. 이와 관련된 상세 내역은 아래와 같습니다.
| [스마트팩토리 신설로 인한 예상 절감비용 내역(연간 기준)] |
| (단위 : 백만원) |
| 항 목 | 연간 절감 비용 | 비 고 |
|---|---|---|
| 매출원가 | 548 | 유아용 롤매트 월 6,000EA 생산 기준 |
| 판매비와관리비 | 1,080 | |
| 합 계 | 1,628 | - |
| 출처 : | 당사 제시 |
| 주) | 상기 내역은 당사가 산출한 것으로 추후 변동될 수 있습니다 |
| [스마트팩토리 신설로 인한 예상 절감비용 내역(월기준)] |
| (단위: 백만원, %) |
| 구 분 | 외주 생산 시 | 스마트팩토리 생산 시 |
|---|---|---|
| 매출액 | 1,401 | 1,401 |
| 매출원가 | 642 | 596 |
| 원재료매입 | 382 | 382 |
| 외주가공비 | 218 | - |
| 제조경비 | 42 | 214(주4) |
| 매출원가율 | 45.80% | 42.54% |
| 구 분 | 외주 생산 시 | 스마트팩토리 생산 시 |
| 판매비와관리비(주5) |
707 | 617 |
| 급여 | 234 | 234 |
| 지급임차료 | 60 | 0 |
| 지급수수료 | 110 | 80 |
| 기타 | 303 | 303 |
| 출처 : | 당사 제시 |
| 주1) | 상기 사항은 롤매트 6,000EA 생산을 기준으로 산정하였습니다. |
| 주2) | 제조경비의 경우 공장 운영 인건비 및 소요비를 포함하였습니다. |
| 주3) | 상기 내역은 당사가 산출한 것으로 추후 변동될 수 있습니다. |
| 주4) | 기존 제조경비에 스마트팩토리 제품생산 제조경비 172백만원을 합산한 금액입니다. |
| 주5) | 롤매트 6,000EA생산에 따른 판매비와관리비 구분이 불가하여 월간 전체 판매비와관리비로 계산하였으며, 지급임차료와 3자물류비 등 감안하였습니다. |
| [스마트팩토리 경비 예상 세부내역(월기준)] |
| (단위 : 백만원) |
| 구분 | 세부항목 | 금액 | 비고 |
|---|---|---|---|
| 인건비 | 생산인력(00명)(주2) |
70 | 인당평균 임금 감안(주2) |
| 간접인력(0명)(주2) |
12 | 관리자 및 보조인력(주2) |
|
| 전력비 및 수도광열비 | 공장 전력비 등 예측 | 12 | - |
| 소모품비 | 공장 소모품 | 40 | 소모품 및 수선비 등 |
| 관리비 | 공장 운영비 | 21 | 복리후생비 및 사무실운영비 포함 |
| 감가상각비 | 공장부분건축물 및 기계설비 | 17 | - |
| 합 계 | 172 | - | |
| 출처 : | 당사 제시 |
| 주1) | 상기 내역은 당사가 산출한 것으로 추후 변동될 수 있습니다 |
| 주2) | 인당 평균임금 수준의 공개가 불가능하여 구체적인 생산인력규모는 비공개 하였습니다. |
당사가 기존 100% 외주 생산 방식을 이용하여 롤매트 월 6,000EA를 생산할 시, 월 기준 매출액은 1,401백만원, 매출원가는 642백만원, 매출원가율은 45.80% 수준입니다. 롤매트 생산에 따른 판매비와관리비 구분이 불가하여 월별 전체 판매비와관리비를 계산하였을 때 707백만원 수준으로 지출 될 것으로 예상됩니다.
반면, 당사가 스마트 팩토리를 통해 롤매트 월 6,000EA를 동일하게 생산할 시, 공장 가동으로 인한 제조경비(공장 운영 인건비 및 소요비)가 발생하는 것을 고려 하더라도 외주가공비의 절감효과가 더 클 것으로 예상되어 월 46백만원의 매출원가를 절감할 수 있다고 내부적으로 판단하고 있습니다. 연간으로 계산 하였을 시 스마트팩토리를 통한 롤매트 생산 시 약 5.5억원의 매출원가가 감소할 것으로 판단되며, 매출원가율의 경우 42.54% 수준으로 외주생산방식 대비 3.26%p 감소한 수치입니다.
또한, 판매비와관리비의 경우 월별 전체 금액으로 계산하였을 때 월 90백만원을 절감할 수 있다고 내부적으로 판단하고 있으며, 이는 창고비로 지출되던 지급임차료와 제3자물류비 등의 감소에 기인합니다. 마찬가지로 연간으로 계산 하였을 시 스마트팩토리를 통한 롤매트 생산 시 판매비와관리비는 약 11억원 절감 될 것으로 판단됩니다.
스마트팩토리 신설로 당사가 구비 예정인 설비내역은 아래와 같습니다.
| [스마트팩토리 구비 예정 설비내역] |
| (단위 : 백만원) |
| 시설명 | 수량 | 금액 | 비고 |
|---|---|---|---|
| 기계설비 | |||
| 롤커팅기 | 1 | 25 | 주문제작 생산설비 |
| 롤투입거치대 | 2 | 5 | 주문제작 생산설비 |
| 재단기 | 1 | 20 | 주문제작 생산설비 |
| 봉제로봇 | 4 | 260 | 주문제작 생산설비 |
| 미싱기 | 4 | 7 | - |
| 합봉미싱기 | 6 | 12 | - |
| 상하자동테핑기 | 2 | 20 | 주문제작 생산설비 |
| 적재로봇 | 3 | 100 | 주문제작 생산설비 |
| 컨베어 및 제어시스템 | 1 | 190 | 주문제작 집진설비 |
| 소 계 | 24 | 639 | - |
| 기타설비 | |||
| 렉설치 | 1식 | 300 | - |
| 소 계 | 1식 | 300 | - |
| 합 계 | - | 939 | - |
| 출처 : 당사 제공 주) 상기 구비시설 목록은 당사가 계획중인 것으로 추후 공장규모 및 내부구조 변경으로 인해 변동 될 수 있습니다 |
다만, 당사의 생산시설 확장 및 운영과정에 있어서 원재료 확보의 어려움, 제조장비 공급업체와의 문제, 장비 오작동 및 고장 등으로 인한 추가비용 지출의 위험성과 생산량 확대의 불확실성이 존재합니다. 생산량의 확대가 원활하게 이루어지지 못할 경우 고객의 수요에 대응하기 어려우며, 그 결과 시장 점유율이 하락할 위험이 있습니다.
또한 당사는 공시서류 제출 전일 기준 스마트팩토리 신설을 위한 토지매입 계약 체결완료 및 중도금 지급을 완료한 상태이고, 토목설계 및 건축설계 계약을 진행 중입니다. 따라서 건축설계 과정에서 당사의 예상과는 다르게 그 공장의 규모가 변동될 경우, 당사가 상기한 스마트팩토리 신설 관련 비용 및 추후 당사가 예상하고 있는 매출원가 및 판매비와관리비 절감효과 또한 변동 될 수 있습니다. 또한 당사는 금번 일반공모 공모자금 중 약 132억원을 사용하여 공장 건물 공사비로 사용 예정인 바, 추후 설계 변동으로 인해 추가비적인 비용이 발생 한 경우에는 당사의 자체자금 혹은 추가차입금으로 충당 할 예정이며, 설계 변동으로 인해 예상보다 적은 비용으로 공사비가 지출 될 경우 남은 금액분은 공장 내 기계설비 구비 등의 자금으로 사용 될 예정입니다.
당사는 상기와 같이 스마트팩토리 신설 설비 투자를 통해 매출 증대 및 수익성 개선을 기대하고 있습니다. 공장 증축 및 기계설비 투자의 경우 수익성 개선 기대감의 긍정적인 측면도 있지만, 당사의 신규투자가 반드시 성공을 보장하는 것은 아니며, 수익성 향상에 성공하지 못할 경우 투자 자금의 회수가 어려울 수 있으며, 공장증축을 위해 시공된 건물, 기계장비 등의 유형자산에 손상이 발생해 당사에 심각한 재무적 손실이 발생 할 수도 있습니다. 투자자께서는 이 점 유의하시기 바랍니다.
(주6) 정정 전
|
바. 재고자산 진부화 관련 위험 |
(중략)
최근 3년간 당사의 연결기준 재고자산 평가충당금 설정 현황은 다음과 같습니다.
| [최근 3년간 재고자산 평가충당금 설정 현황] | |
| (K-IFRS, 연결) | (단위 : 백만원) |
| 구분 | 2023년 1분기 | 2022년 | 2021년 | 2020년 | |
|---|---|---|---|---|---|
| 제품 | 평가전금액 | 1,990 | 2,220 | 1,852 | 1,481 |
| 평가충당금 | (69) | (23) | (24) | (63) | |
| 장부금액 | 1,921 | 2,197 | 1,827 | 1,418 | |
| 상품 | 평가전금액 | 1,019 | 1,017 | 30 | - |
| 평가충당금 | (8) | (0) | (0) | - | |
| 장부금액 | 1,011 | 1,017 | 30 | - | |
| 원재료 | 평가전금액 | 58 | 108 | 143 | 117 |
| 평가충당금 | (1) | (28) | (26) | - | |
| 장부금액 | 57 | 80 | 117 | 117 | |
| 저장품 | 평가전금액 | 170 | 159 | 149 | 75 |
| 평가충당금 | - | - | - | - | |
| 장부금액 | 170 | 159 | 149 | 75 | |
| 미착품 | 평가전금액 | 1,217 | 920 | - | - |
| 평가충당금 | - | - | - | - | |
| 장부금액 | 1,217 | 920 | - | - | |
| 합계 | 평가전금액 | 4,453 | 4,426 | 2,174 | 1,674 |
| 평가충당금 | (79) | (51) | (51) | (63) | |
| 장부금액 | 4,375 | 4,374 | 2,123 | 1,611 | |
| 출처 : | 당사 정기보고서, 당사 제공 |
최근 3년간 당사의 재고자산평가충당금은 주로 제품 및 상품에서 발생하고 있으며, 그 규모는 63~79백만원 수준이고, 평가충당설정률 기준으로는 재고자산의 1.77%~3.76% 수준입니다.
상기 내용을 종합해 보면, 당사는 재고자산이 지속적으로 증가하고 있으며, 이를 영업활동을 통해 소진하고 있으나, 향후 경기 변동에 따른 매출의 감소, 공급 차질 요인 및 원재료 수급 불균형 등이 발생할 경우 재고자산이 진부화되어 평가충당금이 발생할 수 있으며, 재고자산평가충당금이 증가할 경우 당사의 수익성이 부정적인 영향을 미칠 수 있으니, 투자자께서는 이 점 유의하시기 바랍니다.
(주6) 정정 후
|
바. 재고자산 진부화 관련 위험 |
(중략)
최근 3년간 당사의 연결기준 재고자산 평가충당금 설정 현황은 다음과 같습니다.
| [최근 3년간 재고자산 평가충당금 설정 현황] | |
| (K-IFRS, 연결) | (단위 : 백만원) |
| 구분 | 2023년 1분기 | 2022년 | 2021년 | 2020년 | |
|---|---|---|---|---|---|
| 제품 | 평가전금액 | 1,990 | 2,220 | 1,852 | 1,481 |
| 평가충당금 | (69) | (23) | (24) | (63) | |
| 장부금액 | 1,921 | 2,197 | 1,827 | 1,418 | |
| 상품 | 평가전금액 | 1,019 | 1,017 | 30 | - |
| 평가충당금 | (8) | (0) | (0) | - | |
| 장부금액 | 1,011 | 1,017 | 30 | - | |
| 원재료 | 평가전금액 | 58 | 108 | 143 | 117 |
| 평가충당금 | (1) | (28) | (26) | - | |
| 장부금액 | 57 | 80 | 117 | 117 | |
| 저장품 | 평가전금액 | 170 | 159 | 149 | 75 |
| 평가충당금 | - | - | - | - | |
| 장부금액 | 170 | 159 | 149 | 75 | |
| 미착품 | 평가전금액 | 1,217 | 920 | - | - |
| 평가충당금 | - | - | - | - | |
| 장부금액 | 1,217 | 920 | - | - | |
| 합계 | 평가전금액 | 4,453 | 4,426 | 2,174 | 1,674 |
| 평가충당금 | (79) | (51) | (51) | (63) | |
| 장부금액 | 4,375 | 4,374 | 2,123 | 1,611 | |
| 출처 : | 당사 정기보고서, 당사 제공 |
최근 3년간 당사의 재고자산평가충당금은 주로 제품 및 상품에서 발생하고 있으며, 그 규모는 63~79백만원 수준이고, 평가충당설정률 기준으로는 재고자산의 1.77%~3.76% 수준입니다.
상기 내용을 종합해 보면, 당사는 재고자산이 지속적으로 증가하고 있으며, 이를 영업활동을 통해 소진하고 있어 평가충당금설정률이 높지 않은 상황입니다. 그러나, 당사는 금번 일반공모 유상증자를 통해 확보한 자금으로 스마트 팩토리 건설을 계획하고 있으며, 제품 생산을 위한 원재료 구매, 창고시설 확대에 따른 제품 및 상품 재고자산의 규모가 확대될 수 있습니다. 만약, 당사가 보유한 재고자산이 매출로 이어지기까지 장기간이 소요될 경우 재고자산에 대한 관리 비용 증가, 시간 경과에 따른 재고자산의 진부화 및 평가충당금의 발생으로 어이질 수 있습니다. 또한, 향후 경기 변동에 따른 매출의 감소, 공급 차질 요인 및 원재료 수급 불균형 등이 발생할 경우 재고자산이 진부화되어 평가충당금이 발생할 수 있으며, 재고자산평가충당금이 증가할 경우 당사의 수익성에 부정적인 영향을 미칠 수 있으니, 투자자께서는 이 점 유의하시기 바랍니다.
(주7) 정정 전
V. 자금의 사용목적
1. 모집 또는 매출에 의한 자금조달 내역
가. 자금조달금액
| (단위: 원) |
| 구 분 | 금 액 |
| 모집 또는 매출총액 (1) | 20,190,000,000 |
| 발 행 제 비 용 (2) | 239,744,200 |
| 순 수 입 금 [ (1) - (2) ] | 19,950,255,800 |
| 주1) 상기 금액은 예정발행가액을 기준으로 기재하였으며, 모집가액 확정시 변경될 수 있습니다. 주2) 발행제비용은 공모금액 및 실권규모에 따라 변경될 수 있습니다. |
나. 발행제비용의 내역
| (단위: 원) |
| 구 분 | 금 액 | 계산근거 |
| 발행분담금 | 3,634,200 | 총모집금액 * 0.018%(10원 미만 절사) |
| 모집주선수수료 | 201,900,000 | 모집총액의 1.0% |
| 상장수수료 | 3,490,000 | 250만원+100억원 초과금액의 10억원당 9만원 |
| 등기관련비용 | 600,000 | 등록세(증자자본금의 0.4%)(지방세법 제28조) |
| 지방교육세 | 120,000 | 교육세(등록세의 20%) |
| 기타비용 | 30,000,000 | 투자설명서 인쇄/발송비 등 |
| 합계 | 239,744,200 | - |
| 주1) 상기 금액은 예정발행가액을 기준으로 기재하였으며, 모집가액 확정시 변경될 수 있습니다. 주2) 실제 발행제비용은 공모금액 및 상장신청일 직전일 한국거래소에서 거래되는 당사의 보통주식 종가기준으로 산정되며, 유관기관 정책 등에 따라 변동될 수 있습니다. 주3) 기타비용은 예상 금액으로 변동될 수 있습니다. |
2. 자금의 사용목적
가. 자금의 사용목적
당사는 금번 일반공모 유상증자를 통해 조달 예정인 자금을 아래와 같이 사용할 예정입니다. 다만, 하기 투자계획은 현 시점에서 예상되는 계획이며, 향후 집행 시점의 경영환경 등을 고려하여 변경될 가능성이 있으므로 투자자께서는 이 점 유의하시기 바랍니다.
| (기준일 : | 2023년 05월 25일 | ) | (단위 : 백만원) |
| 시설자금 | 영업양수 자금 |
운영자금 | 채무상환 자금 |
타법인증권 취득자금 |
기타 | 계 |
|---|---|---|---|---|---|---|
| 13,193 | - | 6,757 | - | - | 240 | 20,190 |
나. 공모자금 세부 사용목적
당사는 금번 일반공모를 통해 스마트팩토리 신설을 위한 공장 건설자금 및 원부자재 구입비 및 외주가공비 등의 목적으로 사용할 예정입니다. 만약 금번 공모금액이 당초 계획한 금액에 미달할 경우 당사는 아래에 표기한 자금사용계획을 집행 시기에 따라 세부적으로 조정할 예정이며, 부족분은 당사 자체자금 및 추가 차입금을 통해 충당할 계획입니다. 금번 일반공모 유상증자를 통해 공모자금의 세부 사용 예정 내역은 아래와 같습니다.
| [자금의 사용목적 개요] |
| (단위: 백만원) |
| 구 분 | 상세현황 | 사용(예정)시기 | 금액 | 우선순위 |
|---|---|---|---|---|
| 시설자금 | 스마트팩토리 공장 건설자금 | 2023년 4분기 ~ 2024년 3분기 | 13,193 | 1순위 |
| 운영자금 | 원부자재구입비 및 외주가공비 등 | 2023년 3분기 ~ 2023년 4분기 | 6,757 | 2순위 |
| 소 계 | 19,950 | - | ||
| 발행제 비용 | 240 | - | ||
| 합 계 | 20,190 | - | ||
| 주2. 상기 금액은 공모금액 및 실권규모에 따라 변경될 수 있으며, 상기 기재 금액은 청약 초과로 인하여 실권이 발생하지 않은 상황을 가정하여 산정되었습니다. |
단, 금번 유상증자를 통해 조달하게 될 스마트팩토리 시설자금 관련 금액에 대한 사용 시기는 상기의 내역과 같이 공시서류 제출 전일 기준으로 작성되었으며, 향후 실제 자금 집행 과정에서 그 금액 또는 사용 시기가 소폭 변경될 수 있습니다.
이와 관련하여 상기 기재된 자금사용 목적 외에 운영자금 사용 및 타용도로 사용시 매 분기별 정기보고서에 공모자금 실제 사용내역에 관하여 성실하게 공시할 예정입니다.
자금 조달로부터 사용시까지 미사용 자금에 대해서는 자금 사용시점 및 금리에 따라 적격금융기관의 수시입출금 예금, 정기예금 등 금융상품 또는 AA등급대(A1등급대)이상의 단기금융상품으로 운용할 예정입니다.
(1) 시설자금 - 스마트팩토리 공장 건설자금
당사는 생산을 효율화를 도모하기 위하여 현재 외부생산을 기반으로 사업을 영위하고 있으며, 전체 품목에 대해 매월 판매 계획서를 기반으로 보유하고 있는 재고를 감안하여 생산 계획서를 작성하고, 그 계획에 따라 발주 진행 및 생산을 진행합니다. 다만, 유아용 매트 등 주력 품목들의 매출 규모가 확대되면서 원가 및 품질 경쟁력을 확보하고 물류 비용 절감을 위하여 스마트 공장 건립을 통한 자체 생산 라인 구축을 진행하고 있습니다. 스마트 공장의 구축으로 당사는 원가 절감뿐만 아니라 물류창고 공간확보, 재고자산 부담의 감소 효과가 기대되며 이를 통해 수익성 확대를 기대하고 있습니다.
당사는 토지비 및 건축비 등이 포함하여 약 210억원을 투자하여 주력품목들을 직접 생산하기 위한 지상3층, 지하1층 규모의 스마트팩토리 신설을 진행 할 예정이며, 2024년 9월까지 공장을 완공하여 본격적인 자체생산에 돌입 할 예정입니다. 이를 위해 당사는 2023년 3월 30일 경기도 안성시에 위치한 9,900㎡ 규모의 토지를 양수하는 계약을 체결하였으며, 2023년 6월 29일 잔급지급 완료 후 양수를 완료하여 생산공장 및 물류센터 신축을 진행할 예정입니다. 또한 당사는 공시서류 제출일 현재 공장건물 토목설계 및 건축설계 계약을 진행중에 있습니다.
2023년 1월 30일 당사가 공시한 IPO 일반공모 투자설명서에 따르면, 당사는 총 약 157억원을 투자하여 경기도 용인시 남사읍 북리 토지 총 8,273㎡(2,503평)을 매입 후 스마트팩토리 신설을 계획중인것으로 기재되어 있으나, 이후 추가적인 사업 진행 중 신설예정인 스마트팩토리의 규모가 기존보다 증가하였고, 또한 기존 매입 예정이었던 용인시 남사읍 북리 토지의 가격이 최초 계획시보다 크게 상승하여 최종적으로 경기도 안성시에 위치한 토지를 매입 할 것으로 사업계획을 변경하였습니다. 이에 IPO 투자설명서에 예측한 2023년 12월 입주완료일자 또한 2024년 9월 중 입주 예정으로 변경 되었습니다. 금번 변경된 스마트팩토리 신설관련 총 투자규모 및 계획 및 공장부지 취득 관련 공시사항은 아래와 같습니다.
| [스마트팩토리 신설 관련 투자규모 및 계획] |
| 구분 | 내용 |
|---|---|
| 총 투자규모(예정) | 총 투자규모: 약 210억원 - 토지비(토지매입비 및 취득세 등): 약 49억원 (23년 04월 ~ 23년 06월 사용예정) - 건축비(직접공사비 및 간접공사비 등): 약 135억원 (23년 06월 ~ 24년 09월 사용예정) - 기계장치(공장설비): 약 6억원 (24년 08월 ~ 24년 09월 사용예정) - 기타 설비(렉설치비 및 인테리어 등): 약 20억원 (24년 08월 ~ 24년 09월 사용예정) |
| 투자기간(예정) | 2023년 04월 ~ 2024년 09월 |
| 진행경과 | 2023년 04월: 토지매입 계약 체결완료 및 중도금 지급 현재 토목설계 및 건축설계 계약 진행 중 |
| 향후일정(예정) | 23년 06월: 토지잔금 지급 23년 06월: 설계계약 23년 11월: 인허가 완료 예정 23년 12월: 착공 24년 09월: 완공 및 입주 예정 |
| 출처 : 당사 제공 주1) 상기 일정은 당사가 계획중인 일정으로 추후 예상치 못한 변수 발생시 변동 될 수 있습니다 |
| [스마트팩토리 관련 개요] |
| 구 분 | 내 용 | |||||||||
|---|---|---|---|---|---|---|---|---|---|---|
| 위치 | 안성시 원곡면 성은리 산22-2 | |||||||||
| 지역지구 | 계획관리지역 | |||||||||
| 면적 | 대지 | 9,900㎡ | ||||||||
| 연면적 | 15,000.78㎡ | |||||||||
| 지상 : 9,811.40㎡ / 지하 : 5,189.38㎡ | ||||||||||
| 건폐율/용적률 | 39.85% / 99.11% | |||||||||
| 규모 | 지상 3층 / 지하 1층 | |||||||||
| 스마트팩토리 설계도(안) |
|
|||||||||
| 출처 : 당사 제공 주1) 상기 개요는 당사가 계획중인 일정으로 추후 건축사무소와의 설계 변경시 변동 될 수 있습니다 |
| [유형자산 양수내역] |
| 1. 자산구분 | 토지 | |
| - 자산명 | [토지] 경기도 안성시 원곡면 성은리 산22-2 (토지:9,900㎡) | |
| 2. 양수내역 | 양수금액(원) | 4,490,000,000 |
| 자산총액(원) | 11,537,316,507 | |
| 자산총액대비(%) | 38.92 | |
| 3. 양수목적 | 생산공장 및 물류센터 신축을 위한 부지 확보 | |
| 4. 양수영향 | 생산라인 구축 및 물류센터 통합으로 인한 수익성 개선 | |
| 5. 양수예정일자 | 계약체결일 | 2023.03.30 |
| 양수기준일 | 2023.06.29 | |
| 등기예정일 | 2023.06.29 | |
| 6. 거래상대방 | 회사명(성명) | 주식회사 서광인프라 |
| 자본금(원) | 100,000,000 | |
| 주요사업 | 통신ㆍ방송장비 및 부품 도매업 | |
| 본점소재지(주소) | 서울특별시 송파구 백제고분로 75, 311호 | |
| 회사와의 관계 | - | |
| 7. 거래대금지급 |
1) 지급형태 : 현금 2) 자금조달 : 내부보유자금 및 차입금 3) 지급 시기 및 조건 - 계약금 : 449,000,000원 (2023.03.30) - 중도금 : 1,000,000,000원 (2023.04.27) - 잔 금 : 3,041,000,000원 (2023.06.29) |
|
| 8. 외부평가에 관한 사항 | 외부평가 여부 | 예 |
| - 근거 및 사유 |
1) 근거 : 자본시장과 금융투자업에 관한 법률 제161조 제1항 제7호 및 동법 시행령 제171조 제2항 제5호에 의한 적정성 평가 2) 사유 : 회사가 양수하기로 의사결정한 자산양수가액의 적정성 여부를 판단하기 위한 참고자료 제공 |
|
| 외부평가기관의 명칭 | 리안회계법인 | |
| 외부평가 기간 | 2023.03.27 ~ 2023.03.30 | |
| 외부평가 의견 | 적정 | |
| 출처 : 금융감독원 전자공시시스템(DART) |
당사는 2023년 3월 30일 토지매수계약을 체결하며 계약금으로 약 4.5억원을, 2023년 4월 27일 1차 중도금으로 10억원을 IPO 공모자금을 사용하여 지급하였으며. 2023년 6월 29일 잔금 약 30억원 및 등록비용 약 4억원 또한 IPO 공모자금을 사용하여 지급 할 예정입니다. 당사는 금번 일반공모 유상증자 공모자금 중 약 132억원을 사용하여 스마트팩토리 공사비로 사용할 예정입니다. 또한 당사는 자체자금 약 29억원을 사용하여 공장 기계설비 및 내부 인테리어 등에 필요한 자금을 충당 할 예정입니다. 당사는 건축사무소와 신축공장의 규모, 내부 기계설비 등에 대해 최종적으로 조율중에 있으며, 그 과정에서 최종 사용되는 비용의 규모가 일부 변동 될 수 있습니다.
또한 금번 주가하락으로 인한 일반공모 유상증자의 최종 공모자금 하락 및 일반공모 후 실권주 발생으로 인해 총 발행금액이 축소 될 경우 당사는 보유현금 및 금융기관 추가차입을 통해 스마트팩토리 신설 자금을 충당 할 계획입니다. 공시서류 제출일 현재 기준 스마트팩토리 관련 비용 상세내역 및 금번 공모자금 사용 일정은 아래와 같습니다.
| [스마트팩토리 관련 비용 상세내역] |
| (단위: 백만원) |
| 구분 | 내용 | 금액 | 일정 | 자금출처 |
|---|---|---|---|---|
| 토지대금 | 계약금 | 449 | 2023년 04월 | IPO 공모자금 (지급완료) |
| 중도금 | 1,000 | 2023년 05월 | IPO 공모자금 (지급완료) |
|
| 잔금 | 3,041 | 2023년 06월 | IPO 공모자금 (지급예정) |
|
| 소계 | 4,490 | - | - | |
| 등록비용등 | 442 | 2023년 06월 | IPO 공모자금 (지급예정) |
|
| 합계 | 4,932 | - | - | |
| 설계비 | 토목설계 | 30 | 2023년 06월 ~ 2023년 7월 | 자체자금 (지급예정) |
| 건축설계 | 182 | 2023년 06월 ~ 2023년 09월 | IPO 공모자금 (지급예정) |
|
| 감리용역 | 182 | 2023년 10월 ~ 2024년 09월 | IPO 공모자금 (지급예정) |
|
| 합계 | 393 | - | - | |
| 건축비 | 공사비 | 13,193 | 2023년 10월 ~ 2024년 09월 | 금번 일반공모 공모자금 (지급예정) |
| 기계설비 | 공장 설비 | 639 | 2024년 08월 ~ 2024년 09월 | 자체자금 (지급예정) |
| 기타 | 랙설치 | 300 | 2024년 08월 ~ 2024년 09월 | 자체자금 (지급예정) |
| 전시인테리어 | 700 | 2024년 08월 ~ 2024년 09월 | 자체자금 (지급예정) |
|
| 취득비용 등 | 861 | 2024년 10월 | 자체자금 (지급예정) |
|
| 소계 | 1,861 | - | - | |
| 총계 | 21,018 | - | - | |
| 출처 : 당사 제공 주1) 상기 비용는 당사가 계획중인 일정으로 추후 건축사무소와의 설계 변경시 변동 될 수 있습니다 |
| [스마트팩토리 관련 비용 산정근거] |
| (단위: 백만원) |
| 구분 | 항목 | 금 액 | 비율 | 비 고 | |
|---|---|---|---|---|---|
| 토지대 | 토지비 | 4,490 | 21.36% | 2,503/평 | |
| 취득제세금 | 251 | 1.20% | 토지비 * 5.6% | ||
| 인허가비용 | 150 | 0.71% | 50/평(대체산림자원조성비 포함) | ||
| 중개수수료 | 40 | 0.19% | 중개수수료 0.9% | ||
| 소 계 | 4,932 | 23.46% | - | ||
| 건축비 | 직접 공사비 | 12,914 | 도급가 | 연면적(평) | 평당 공사비 |
| 61.44% | 4,537.72 | 2,846 | |||
| 각종 인입비 | 150 | 0.71% | 연면적*평당 50 천원 | ||
| 공사 예비비 | 129 | 0.61% | 직접공사비*1% | ||
| 실시토목설계 | 30 | 0.14% | 1식 | ||
| 설계비 | 182 | 0.86% | 연면적*평당 40 천원 | ||
| 감리비 | 182 | 0.86% | 연면적*평당 40 천원 | ||
| 소 계 | 13,586 | 64.64% | 평당 건축비 | 2,994 | |
| 설비 | 기계장치 | 639 | 3.04% | 스마트공장 자동화 설비 컨베이어, 로봇구축비용 | |
| 랙설치비 | 300 | 1.43% | 10식 | ||
| 예비비 | 50 | 0.24% | 기타비용 | ||
| 소 계 | 989 | 4.71% | - | ||
| 기타 | 건축 취등록세 | 761 | 3.62% | 건축비 * 5.6% | |
| 인테리어,가구 | 700 | 3.33% | 전시시설 | ||
| 기타 | 50 | 0.24% | 등기수수료 등 | ||
| 소 계 | 1,511 | 7.19% | - | ||
| 지출총액 | 21,018 | 100.00% | 평당 지출금액 | 4,632 | |
| 출처 : 당사 제공 주1) 상기 비용는 당사가 계획중인 일정으로 추후 건축사무소와의 설계 변경시 변동 될 수 있습니다 주2) 당사는 상기 건축 비 중 직접공사비, 각종 인입비, 공사 예비비를 포함한 약 132억원을 금번 일반공모 공모자금을 통해 조달할 예정입니다 |
| [일반공모 공모자금 사용스케줄] |
| (단위: 백만원) |
| 사용시기 | 금액 | 비고 |
|---|---|---|
| 2023년 4분기 | 4,000 | 공장건물 건축 계약금 및 공사비 지급 |
| 2024년 1분기 | 3,064 | 공장 건물 공사비 |
| 2024년 2분기 | 3,064 | 공장 건물 공사비 |
| 2024년 3분기 | 3,064 | 공장 건물 공사비 |
| 합계 | 13,193 | - |
| 출처 : 당사 제공 주1) 상기 공모자금 사융스케줄은 당사가 계획중인 일정으로 추후 공사 진행상황에 따라 변동 될 수 있습니다 |
당사는 스마트팩토리 신설 완료 후 주요제품 직접생산 및 자체 물류창고 구비를 통해 비용을 절감 할 수 있을것으로 예상하고 있습니다. 유아용 롤매트 월 6,000EA 생산 및 판매시(월 최대 CAPA 9,600EA) 예상되는 매출총이익 에서 기존 1년간 지출중인 평균 외주가공비를 제한 금액을 산정 하였을 때 당사는 1년간 약 5.6억원의 비용을 절감 할 수 있을 것으로 예상하고 있으며, 제품 보관을 위해 지불하던 창고임차료 및 제3자물류 작업비 1년 평균분 약 10.9억원을 절감하여 1년간 총 16.5억원의 매출원가 및 판매비와관리비를 절감 할 수 있을 것으로 예상하고 있습니다. 스마트팩토리 신설로 인한 절감비용 상세내역 및 당사가 구비 예정인 설비내역은 아래와 같습니다.
| [스마트팩토리 신설로 인한 절감비용 내역] |
| (단위: 백만원) |
| 항목 | 년간 절감 비용 | 산출근거 | 비고 |
|---|---|---|---|
| 외주가공비 절약분 | 560 | 월 6,000EA 생산 기준(최대 CAPA 9,600EA) 1년간 예상 롤매트 매출총이익 - 1년간 지출중인 평균 외주가공비 |
유아용 롤매트 기준 공장 운영비를 감안하여 계산 |
| 창고임차료 절약분 | 727 | 1년간 지출한 평균 물류창고 임차료 | - |
| 제3자물류 작업비 절약분 | 361 | 1년간 지출한 평균 3자물류 작업비 | - |
| 합계 | 1,647 | - | - |
| 출처 : 당사 제공 주1) 상기 절감비용 내역은 당사가 산출한 것으로 추후 변동 될 수 있습니다 |
| [스마트팩토리 구비 예정 설비내역] |
| (단위: 백만원) |
| 시설명 | 수량 | 금액 | 비고 |
|---|---|---|---|
| 기계설비 | |||
| 롤커팅기 | 1 | 25 | 주문제작 생산설비 |
| 롤투입거치대 | 2 | 5 | 주문제작 생산설비 |
| 재단기 | 1 | 20 | 주문제작 생산설비 |
| 봉제로봇 | 4 | 260 | 주문제작 생산설비 |
| 미싱기 | 4 | 7 | - |
| 합봉미싱기 | 6 | 12 | - |
| 상하자동테핑기 | 2 | 20 | 주문제작 생산설비 |
| 적재로봇 | 3 | 100 | 주문제작 생산설비 |
| 컨베어 및 제어시스템 | 1 | 190 | 주문제작 집진설비 |
| 소 계 | 24 | 639 | - |
| 기타설비 | |||
| 렉설치 | 1식 | 300 | - |
| 소 계 | 1식 | 300 | - |
| 합 계 | - | 939 | - |
| 출처 : 당사 제공 주1) 상기 구비시설 목록은 당사가 계획중인 것으로 추후 공장규모 및 내부구조 변경으로 인해 변동 될 수 있습니다 |
다만, 당사의 생산시설 확장 및 운영과정에 있어서 원재료 확보의 어려움, 제조장비 공급업체와의 문제, 장비 오작동 및 고장 등으로 인한 추가비용 지출의 위험성과 생산량 확대의 불확실성이 존재합니다. 생산량의 확대가 원활하게 이루어지지 못할 경우 고객의 수요에 대응하기 어려우며, 그 결과 시장 점유율이 하락할 위험이 있습니다.
또한 당사는 공시서류 제출일 현재 스마트팩토리 신설을 위한 토지매입 계약 체결완료 및 중도금 지급을 완료 한 상태이고, 토목설계 및 건축설계 계약을 진행 중입니다. 따라서 건축설계 과정에서 당사의 예상과는 다르게 그 공장의 규모가 변동 될 경우, 당사가 상기한 스마트팩토리 신설 관련 비용 및 추후 당사가 예상하고 있는 매출원가 및 판매비와관리비 절감효과 또한 변동 될 수 있습니다. 또한 당사는 금번 일반공모 공모자금 중 약 132억원을 사용하여 공장 건물 공사비로 사용 예정인 바, 추후 설계 변동으로 인해 추가비적인 비용이 발생 한 경우에는 당사의 자체자금 혹은 추가차입금으로 충당 할 예정이며, 설계 변동으로 인해 예상보다 적은 비용으로 공사비가 지출 될 경우 남은 금액분은 공장 내 기계설비 구비 등의 자금으로 사용 될 예정입니다.
당사는 상기와 같이 스마트팩토리 신설 설비 투자를 통해 매출 증대 및 수익성 개선을 기대하고 있습니다. 공장 증축 및 기계설비 투자의 경우 수익성 개선 기대감의 긍정적인 측면도 있지만, 당사의 신규투자가 반드시 성공을 보장하는 것은 아니며, 수익성 향상에 성공하지 못할 경우 투자 자금의 회수가 어려울 수 있으며, 공장증축을 위해 시공된 건물, 기계장비 등의 유형자산에 손상이 발생해 당사에 심각한 재무적 손실이 발생 할 수도 있습니다. 투자자께서는 이 점 유의하시기 바랍니다.
(중략)
4. 기존에 공모 및 사모를 통해 조달한 자금이 공시에 기재된 대로 사용되었는지의 여부
아래와 같이 당사의 공모 및 사모를 통해 조달한 자금 현황 및 사용내역을 참고하시기 바랍니다
| (기준일 : | 공시서류 제출 전일 | ) | (단위 : 백만원) |
| 구 분 | 회차 | 납입일 | 증권신고서 등의 자금사용 계획 |
실제 자금사용 내역 |
차이발생 사유 등 | ||
|---|---|---|---|---|---|---|---|
| 사용용도 | 조달금액 | 내용 | 금액 | ||||
|
기업공개 (코스닥시장 상장) |
- | 2023.02.03 | 시설자금 | 9,050 |
시설자금 및 상장제비용 등 |
3,050 | (주1) |
(주1) 당사는 2023.03.30일자 주요사항보고서(유형자산 양수결정)을 통해 생산공장 및 물류센터 신축을 위한 부지 확보를 위한 계약(양수금액: 약 45억원)을 체결하였으며, 공시서류 제출 전일 기준 계약금 및 중도금으로 약 14억원을 사용하였습니다. 또한, 당사는 상장 제비용, 차입금상환, 운영자금 등의 목적으로 약 24억원을 사용하였습니다.
(주7) 정정 후
당사는 생산 효율화를 도모하기 위하여 현재 외부생산을 기반으로 사업을 영위하고 있으며, 전체 품목에 대해 매월 판매 계획서를 기반으로 보유하고 있는 재고를 감안하여 생산 계획서를 작성하고, 그 계획에 따라 발주 진행 및 생산을 진행합니다. 다만, 유아용 매트 등 주력 품목들의 매출 규모가 확대되면서 원가 및 품질 경쟁력을 확보하고 물류 비용 절감을 위하여 스마트 공장 건립을 통한 자체 생산 라인 구축을 진행하고 있습니다. 스마트 공장의 구축으로 당사는 원가 절감뿐만 아니라 물류창고 공간확보, 재고자산 보관비용 부담의 감소 효과가 기대되며 이를 통해 수익성 확대를 기대하고 있습니다.
현재 당사는 설립시부터 생산 효율화를 위해 외주생산을 기반으로 사업을 영위하고 있기 때문에 영업비용에서 외주비가 차지하는 비중이 높습니다. 생산은 100% 외주가공, OEM, ODM 방식으로 제품군에 따라 생산방식을 달리하고 있습니다.
| [당사 제품별 생산방식] |
| 구분 | 방식 | 비고 | |
| 유아용 가구 | 매트 | 원재료 직매입 및 외주가공 |
당사가 원재료를 직매입하여 외주가공업체에 공급하여 생산하는 방식 |
| 원목 가구 등 | OEM 생산 | 국내/해외 OEM 생산 | |
| 유아용 스킨케어 | ODM 생산 | 국내 ODM 생산 | |
| 출처 : 당사 정기보고서 및 당사 제공 |
| [연도별 외주가공비 비중] |
| (단위 : 백만원) |
|
구 분 |
2023년 1분기 |
2022년 1분기 |
2022년 |
2021년 |
2020년 |
|---|---|---|---|---|---|
|
외주가공비 |
1,077 |
2,471 |
7,066 |
7,711 |
5,508 |
|
당기 총제조비용 대비 비중 |
56.2% |
66.75% |
56.2% |
65.4% |
50.8% |
|
제품 매출액 대비 비중 |
30.7% |
41.90% |
34.9% |
36.9% |
29.8% |
|
외주가공업체 수 |
27사 |
32사 |
50사 |
32사 |
33사 |
| 출처 : 당사 제공 |
상기 표처럼 당사 총제조비용 대비 외주가공비의 비중은 약 50% 이상으로 제조비용의 상당 부분이 외주가공비로 지출되고 있어, 매출이 확대될 수록 외주가공비 또한 동반 상승하는 비용 구조를 가지고 있습니다.
당사는 주력품목들의 매출 규모가 성장하면서 원가 및 품질 경쟁력을 더욱 확보하고, 물류 비용 절감을 위하여 자체 생산시설 확보 계획을 수립하였으며, 신규 공장 건립을 위해 건축물, 기계장치 등을 구매할 계획입니다. 당사의 주력 제품인 유아용 매트는 제품의 특성상 부피가 크기 때문에 SKU가 높아 많은 창고를 필요로 합니다. 이로 인해서, 창고 임대료 부담이 높은 편인데, 안성시에 확보한 자체 물류센터에 유아용 매트를 보관하여 임대료 부담을 낮출 예정입니다. 또한, 판매중인 유아용 매트 중에서 당사가 예측가능한 수요 대해선 해당 부지에 건설된 공장에서 자체 생산함으로써 OEM/ODM에 100% 의존되어 있는 현재의 생산위험을 낮추고, 원가와 물류비를 절감함으로써 수익성을 높일 계획입니다.
당사는 토지비 및 건축비 등이 포함하여 약 210억원을 투자하여 주력품목들을 직접 생산하기 위한 지상3층, 지하1층 규모의 스마트팩토리 신설을 진행 할 예정이며, 2024년 9월까지 공장을 완공하여 본격적인 자체생산에 돌입 할 예정입니다. 이를 위해 당사는 2023년 3월 30일 경기도 안성시에 위치한 9,900㎡ 규모의 토지를 양수하는 계약을 체결하였으며, 2023년 6월 29일 잔급지급 완료 후 양수를 완료하여 생산공장 및 물류센터 신축을 진행할 예정입니다. 또한 당사는 공시서류 제출 전일 현재 공장건물 토목설계 및 건축설계 계약을 진행중에 있습니다.
2023년 1월 30일 당사가 공시한 IPO 일반공모 투자설명서에 따르면, 당사는 총 약 157억원을 투자하여 경기도 용인시 남사읍 북리 토지 총 8,273㎡(2,503평)을 매입 후 스마트팩토리 신설을 계획중인것으로 기재되어 있으나, 이후 추가적인 사업 진행 중 신설예정인 스마트팩토리의 규모가 기존보다 증가하였고, 또한 기존 매입 예정이었던 용인시 남사읍 북리 토지의 가격이 최초 계획시보다 크게 상승하여 최종적으로 경기도 안성시에 위치한 토지를 매입 할 것으로 사업계획을 변경하였습니다. 당사가 2023년 1월 30일 공시한 기존 스마트 팩토리 공장설립안 및 금번 일반공모 유상증자를 통해 계획중인 스마트 팩토리 공장설립안은 다음과 같습니다.
| [스마트 팩토리 기존 공장설립안 및 변경안 비교] |
| (단위 : 백만원) |
| 구 분 | 기존(안) | 변경(안) | ||
|---|---|---|---|---|
| 내 용 | 비 고 | 내 용 | 비 고 | |
| 소재지 | 경기도 용인시 남사읍 북리 00번지 일대 | 경기도 안성시 원곡면 성은리 산 22-2 | ||
| 토지면적 | 8,273㎡ | 2,502평 | 9,900㎡ | 2,995평 |
| 건폐율 | 67.95% | 법정 건폐율 70% | 39.85% | 법정 건폐율 40% |
| 용적율 | 99.89% | 법정 용적율 100% | 99.11% | 법정 용적율 100% |
| 건축규모 | 8,264.50㎡ | 공장 300평 창고 2,000평 편의시설 200평 |
15,000.78㎡ | 공장 500평 창고&쇼룸 3,500평 편의시설 180평 |
| 지상층 | 8,264.50㎡ | 지상2층 | 9,811.40㎡ | 지상3층 |
| 지하증 | - | - | 5,189.38㎡ | 지하1층 |
| 건 축 비 용 | ||||
| 토지구입대금 | 7,241 | 4,932 | ||
| 예상 건축비 | 7,876 | 13,586 | ||
| 기계설비 | 932 | 989 | ||
| 기 타 | 160 | 1,511 | ||
| 합 계 | 16,210 | 21,018 | ||
| 생산품목 | 롤매트류(클린롤매트(양면), 슈퍼자이언트매트(양면) 허쉬(양면), 롤매트플러스(단면) 자이언트(단면), 슈퍼자이언트(단면), 5단클린매트(단면) |
|||
| 출처 : | 당사 제시 |
당사는 2022년 상반기부터 공장 및 부대시설인 창고와 창고 시설 내 쇼룸을 설치하고자 당사와 가까운 거리의 매물을 찾고 있었으며, 경기도 용인시 남사읍에 위치한 북리 공단 내 부지에 대하여 부동산 및 실 소유주와 협의를 하여 당사가 상장을 진행할 당시 계약 직전까지 진행되었습니다. 그러나, 상장 이후 부지 계약을 위한 협의 중 2023년 3월 15일 남사읍 일대가 용인 반도체 클러스터 국가산업단지 후보지로 선정되었다는 뉴스가 보도되어 기존 계획했던 사업 부지 확보에 차질이 생기게 되었습니다. 이에 당사는 교통편의성, 인허가 취득 가능성, 부지면적 등의 조건을 고려하여 공장부지를 재검토하였고, 최초 계획하였던 용인시 남사읍 토지에서 약 10km 거리에 있는 경기도 안성시에 위치한 부지를 매입하기로 결정하였습니다.
당사는 기존 계획보다 토지면적, 건축규모, 건축비용면에서 기존 계획보다 규모를 확대하였습니다. 이는 당사가 상장 이후 빠른 매출액 성장을 위해 상품 개발 인력을 작년 4분기 대거 충원 해 왔으며, 그 결과 올해 2분기부터 신상품이 작년 대비 4배 이상 출시되는 등 신상품의 출시 및 제품 카테고리의 확대 그리고 2022년부터 신규로 사업을 영위하고 있는 G7 커피의 매출 또한 전년 대비 크게 성장되어 당초 계획보다 물류 공간이 더 요구되는 상황이기 때문입니다. 또한, 당사는 유아용품을 오프라인에서 직접 경험해 보고 싶었으나 마땅히 체험해 볼 수 있는 쇼핑 공간이 없었던 고객을 위해 본 창고시설 내 쇼룸을 추가적으로 계획하고 있습니다. 당사 제품의 경우 부피가 큰 제품이 많고 가격대가 높은 프리미엄 상품이기에 체험 공간의 필요성이 높으며, 당사 제품 카테고리 확대의 영향으로 자체 쇼룸의 규모도 자연스럽게 확대하였습니다.
또한, IPO 투자설명서에 예측한 2023년 12월 입주완료일자는 2024년 9월 중 입주 예정으로 변경 되었습니다. 금번 변경된 스마트팩토리 신설관련 총 투자규모 및 계획 및 공장부지 취득 관련 공시사항은 아래와 같습니다.
| [스마트팩토리 신설 관련 투자규모 및 계획] |
| 구분 | 내용 |
|---|---|
| 총 투자규모(예정) | 총 투자규모: 약 210억원 - 토지비(토지매입비 및 취득세 등): 약 49억원 (23년 04월 ~ 23년 06월 사용예정) - 건축비(직접공사비 및 간접공사비 등): 약 135억원 (23년 06월 ~ 24년 09월 사용예정) - 기계장치(공장설비): 약 6억원 (24년 08월 ~ 24년 09월 사용예정) - 기타 설비(렉설치비 및 인테리어 등): 약 20억원 (24년 08월 ~ 24년 09월 사용예정) |
| 투자기간(예정) | 2023년 04월 ~ 2024년 09월 |
| 진행경과 | 2023년 04월: 토지매입 계약 체결완료 및 중도금 지급 현재 토목설계 및 건축설계 계약 진행 중 |
| 향후일정(예정) | 23년 06월: 토지잔금 지급 23년 06월: 설계계약 23년 11월: 인허가 완료 예정 23년 12월: 착공 24년 09월: 완공 및 입주 예정 |
| 출처 : 당사 제공 주) 상기 일정은 당사가 계획중인 일정으로 추후 예상치 못한 변수 발생시 변동 될 수 있습니다 |
| [스마트팩토리 관련 개요] |
| 구 분 | 내 용 | |||||||||
|---|---|---|---|---|---|---|---|---|---|---|
| 위치 | 안성시 원곡면 성은리 산22-2 | |||||||||
| 지역지구 | 계획관리지역 | |||||||||
| 면적 | 대지 | 9,900㎡ | ||||||||
| 연면적 | 15,000.78㎡ | |||||||||
| 지상 : 9,811.40㎡ / 지하 : 5,189.38㎡ | ||||||||||
| 건폐율/용적률 | 39.85% / 99.11% | |||||||||
| 규모 | 지상 3층 / 지하 1층 | |||||||||
| 스마트팩토리 설계도(안) |
|
|||||||||
| 출처 : 당사 제공 주) 상기 개요는 당사가 계획중인 일정으로 추후 건축사무소와의 설계 변경시 변동 될 수 있습니다 |
| [유형자산 양수내역] |
| 1. 자산구분 | 토지 | |
| - 자산명 | [토지] 경기도 안성시 원곡면 성은리 산22-2 (토지:9,900㎡) | |
| 2. 양수내역 | 양수금액(원) | 4,490,000,000 |
| 자산총액(원) | 11,537,316,507 | |
| 자산총액대비(%) | 38.92 | |
| 3. 양수목적 | 생산공장 및 물류센터 신축을 위한 부지 확보 | |
| 4. 양수영향 | 생산라인 구축 및 물류센터 통합으로 인한 수익성 개선 | |
| 5. 양수예정일자 | 계약체결일 | 2023.03.30 |
| 양수기준일 | 2023.06.29 | |
| 등기예정일 | 2023.06.29 | |
| 6. 거래상대방 | 회사명(성명) | 주식회사 서광인프라 |
| 자본금(원) | 100,000,000 | |
| 주요사업 | 통신ㆍ방송장비 및 부품 도매업 | |
| 본점소재지(주소) | 서울특별시 송파구 백제고분로 75, 311호 | |
| 회사와의 관계 | - | |
| 7. 거래대금지급 |
1) 지급형태 : 현금 2) 자금조달 : 내부보유자금 및 차입금 3) 지급 시기 및 조건 - 계약금 : 449,000,000원 (2023.03.30) - 중도금 : 1,000,000,000원 (2023.04.27) - 잔 금 : 3,041,000,000원 (2023.06.29) |
|
| 8. 외부평가에 관한 사항 | 외부평가 여부 | 예 |
| - 근거 및 사유 |
1) 근거 : 자본시장과 금융투자업에 관한 법률 제161조 제1항 제7호 및 동법 시행령 제171조 제2항 제5호에 의한 적정성 평가 2) 사유 : 회사가 양수하기로 의사결정한 자산양수가액의 적정성 여부를 판단하기 위한 참고자료 제공 |
|
| 외부평가기관의 명칭 | 리안회계법인 | |
| 외부평가 기간 | 2023.03.27 ~ 2023.03.30 | |
| 외부평가 의견 | 적정 | |
| 출처 : 전자공시시스템(dart.fss.or.kr) |
당사는 2023년 3월 30일 토지매수계약을 체결하며 계약금으로 약 4.5억원을, 2023년 4월 27일 1차 중도금으로 10억원을 IPO 공모자금을 사용하여 지급하였으며. 2023년 6월 29일 잔금 약 30억 및 등록비용 약 4억원 또한 IPO 공모자금을 사용하여 지급 할 예정입니다. 당사는 금번 일반공모 유상증자 공모자금 중 약 132억원을 사용하여 스마트팩토리 공사비로 사용할 예정입니다. 또한 당사는 자체자금 약 29억원을 사용하여 공장 기계설비 및 내부 인테리어 등에 필요한 자금을 충당 할 예정입니다. 당사는 건축사무소와 신축공장의 규모, 내부 기계설비 등에 대해 최종적으로 조율중에 있으며, 그 과정에서 최종 사용되는 비용의 규모가 일부 변동 될 수 있습니다.
또한 금번 주가하락으로 인한 일반공모 유상증자의 최종 공모자금 하락 및 일반공모 후 실권주 발생으로 인해 총 발행금액이 축소 될 경우 당사는 보유현금 및 금융기관 추가차입을 통해 스마트팩토리 신설 자금을 충당 할 계획입니다. 공시서류 제출 전일 기준 스마트팩토리 관련 비용 상세내역 및 금번 공모자금 사용 일정은 아래와 같습니다.
| [스마트팩토리 관련 비용 상세내역] |
| (단위: 백만원) |
| 구분 | 내용 | 금액 | 일정 | 자금출처 |
|---|---|---|---|---|
| 토지대금 | 계약금 | 449 | 2023년 04월 | IPO 공모자금 (지급완료) |
| 중도금 | 1,000 | 2023년 05월 | IPO 공모자금 (지급완료) |
|
| 잔금 | 3,041 | 2023년 06월 | IPO 공모자금 (지급예정) |
|
| 소계 | 4,490 | - | - | |
| 등록비용등 | 442 | 2023년 06월 | IPO 공모자금 (지급예정) |
|
| 합계 | 4,932 | - | - | |
| 설계비 | 토목설계 | 30 | 2023년 06월 ~ 2023년 7월 | 자체자금 (지급예정) |
| 건축설계 | 182 | 2023년 06월 ~ 2023년 09월 | IPO 공모자금 (지급예정) |
|
| 감리용역 | 182 | 2023년 10월 ~ 2024년 09월 | IPO 공모자금 (지급예정) |
|
| 합계 | 393 | - | - | |
| 건축비 | 공사비 | 13,193 | 2023년 10월 ~ 2024년 09월 | 금번 일반공모 공모자금 (지급예정) |
| 기계설비 | 공장 설비 | 639 | 2024년 08월 ~ 2024년 09월 | 자체자금 (지급예정) |
| 기타 | 랙설치 | 300 | 2024년 08월 ~ 2024년 09월 | 자체자금 (지급예정) |
| 전시인테리어 | 700 | 2024년 08월 ~ 2024년 09월 | 자체자금 (지급예정) |
|
| 취득비용 등 | 861 | 2024년 10월 | 자체자금 (지급예정) |
|
| 소계 | 1,861 | - | - | |
| 총계 | 21,018 | - | - | |
| 출처 : 당사 제공 주) 상기 비용은 당사가 계획중인 일정으로 추후 건축사무소와의 설계 변경시 변동 될 수 있습니다 |
| [스마트팩토리 관련 비용 산정근거] |
| (단위: 백만원) |
| 구분 | 항목 | 금 액 | 비율 | 비 고 | |
|---|---|---|---|---|---|
| 토지대 | 토지비 | 4,490 | 21.36% | 2,503/평 | |
| 취득제세금 | 251 | 1.20% | 토지비 * 5.6% | ||
| 인허가비용 | 150 | 0.71% | 50/평(대체산림자원조성비 포함) | ||
| 중개수수료 | 40 | 0.19% | 중개수수료 0.9% | ||
| 소 계 | 4,932 | 23.46% | - | ||
| 건축비 | 직접 공사비 | 12,914 | 도급가 | 연면적(평) | 평당 공사비 |
| 61.44% | 4,537.72 | 2,846 | |||
| 각종 인입비 | 150 | 0.71% | 연면적*평당 50 천원 | ||
| 공사 예비비 | 129 | 0.61% | 직접공사비*1% | ||
| 실시토목설계 | 30 | 0.14% | 1식 | ||
| 설계비 | 182 | 0.86% | 연면적*평당 40 천원 | ||
| 감리비 | 182 | 0.86% | 연면적*평당 40 천원 | ||
| 소 계 | 13,586 | 64.64% | 평당 건축비 | 2,994 | |
| 설비 | 기계장치 | 639 | 3.04% | 스마트공장 자동화 설비 컨베이어, 로봇구축비용 | |
| 랙설치비 | 300 | 1.43% | 1식 | ||
| 예비비 | 50 | 0.24% | 기타비용 | ||
| 소 계 | 989 | 4.71% | - | ||
| 기타 | 건축 취등록세 | 761 | 3.62% | 건축비 * 5.6% | |
| 인테리어,가구 | 700 | 3.33% | 전시시설 | ||
| 기타 | 50 | 0.24% | 등기수수료 등 | ||
| 소 계 | 1,511 | 7.19% | - | ||
| 지출총액 | 21,018 | 100.00% | 평당 지출금액 | 4,632 | |
| 출처 : 당사 제공 주) 상기 비용은 당사가 계획중인 일정으로 추후 건축사무소와의 설계 변경시 변동 될 수 있습니다. 주) 당사는 상기 건축 비 중 직접공사비, 각종 인입비, 공사 예비비를 포함한 약 132억원을 금번 일반공모 공모자금을 통해 조달할 예정입니다. |
| [일반공모 공모자금 사용스케줄] |
| (단위 : 백만원) |
| 사용시기 | 금액 | 비고 |
|---|---|---|
| 2023년 4분기 | 4,000 | 공장건물 건축 계약금 및 공사비 지급 |
| 2024년 1분기 | 3,064 | 공장 건물 공사비 |
| 2024년 2분기 | 3,064 | 공장 건물 공사비 |
| 2024년 3분기 | 3,064 | 공장 건물 공사비 |
| 합계 | 13,193 | - |
| 출처 : 당사 제공 주) 상기 공모자금 사용 스케줄은 당사가 계획중인 일정으로 추후 공사 진행상황에 따라 변동 될 수 있습니다 |
당사는 스마트팩토리 신설 완료 후 주요제품 직접생산 및 자체 물류창고 구비를 통해 비용을 절감 할 수 있을것으로 예상하고 있습니다. 당사는 스마트팩토리를 통해 유아용 롤매트 월 6,000EA(스마트팩토리 최대 CAPA 9,600EA의 62.50%수준) 생산 및 판매시 외주생산 대비 1년간 매출원가 548백만원, 판매비와관리비 1,080백만원, 총 1,628백만원의 비용을 절감할 수 있을 것으로 판단하고 있습니다. 이와 관련된 상세 내역은 아래와 같습니다.
| [스마트팩토리 신설로 인한 예상 절감비용 내역(연간 기준)] |
| (단위 : 백만원) |
| 항 목 | 연간 절감 비용 | 비 고 |
|---|---|---|
| 매출원가 | 548 | 유아용 롤매트 월 6,000EA 생산 기준 |
| 판매비와관리비 | 1,080 | |
| 합 계 | 1,628 | - |
| 출처 : | 당사 제시 |
| 주) | 상기 내역은 당사가 산출한 것으로 추후 변동될 수 있습니다 |
| [스마트팩토리 신설로 인한 예상 절감비용 내역(월기준)] |
| (단위: 백만원, %) |
| 구 분 | 외주 생산 시 | 스마트팩토리 생산 시 |
|---|---|---|
| 매출액 | 1,401 | 1,401 |
| 매출원가 | 642 | 596 |
| 원재료매입 | 382 | 382 |
| 외주가공비 | 218 | - |
| 제조경비 | 42 | 214(주4) |
| 매출원가율 | 45.80% | 42.54% |
| 구 분 | 외주 생산 시 | 스마트팩토리 생산 시 |
| 판매비와관리비(주5) |
707 | 617 |
| 급여 | 234 | 234 |
| 지급임차료 | 60 | 0 |
| 지급수수료 | 110 | 80 |
| 기타 | 303 | 303 |
| 출처 : | 당사 제시 |
| 주1) | 상기 사항은 롤매트 6,000EA 생산을 기준으로 산정하였습니다. |
| 주2) | 제조경비의 경우 공장 운영 인건비 및 소요비를 포함하였습니다. |
| 주3) | 상기 내역은 당사가 산출한 것으로 추후 변동될 수 있습니다. |
| 주4) | 기존 제조경비에 스마트팩토리 제품생산 제조경비 172백만원을 합산한 금액입니다. |
| 주5) | 롤매트 6,000EA생산에 따른 판매비와관리비 구분이 불가하여 월간 전체 판매비와관리비로 계산하였으며, 지급임차료와 3자물류비 등 감안하였습니다. |
| [스마트팩토리 경비 예상 세부내역(월기준)] |
| (단위 : 백만원) |
| 구분 | 세부항목 | 금액 | 비고 |
|---|---|---|---|
| 인건비 | 생산인력(00명)(주2) |
70 | 인당평균 임금 감안(주2) |
| 간접인력(0명)(주2) |
12 | 관리자 및 보조인력(주2) |
|
| 전력비 및 수도광열비 | 공장 전력비 등 예측 | 12 | - |
| 소모품비 | 공장 소모품 | 40 | 소모품 및 수선비 등 |
| 관리비 | 공장 운영비 | 21 | 복리후생비 및 사무실운영비 포함 |
| 감가상각비 | 공장부분건축물 및 기계설비 | 17 | - |
| 합 계 | 172 | - | |
| 출처 : | 당사 제시 |
| 주1) | 상기 내역은 당사가 산출한 것으로 추후 변동될 수 있습니다 |
| 주2) | 인당 평균임금 수준의 공개가 불가능하여 구체적인 생산인력규모는 비공개 하였습니다. |
당사가 기존 100% 외주 생산 방식을 이용하여 롤매트 월 6,000EA를 생산할 시, 월 기준 매출액은 1,401백만원, 매출원가는 642백만원, 매출원가율은 45.80% 수준입니다. 롤매트 생산에 따른 판매비와관리비 구분이 불가하여 월별 전체 판매비와관리비를 계산하였을 때 707백만원 수준으로 지출 될 것으로 예상됩니다.
반면, 당사가 스마트 팩토리를 통해 롤매트 월 6,000EA를 동일하게 생산할 시, 공장 가동으로 인한 제조경비(공장 운영 인건비 및 소요비)가 발생하는 것을 고려 하더라도 외주가공비의 절감효과가 더 클 것으로 예상되어 월 46백만원의 매출원가를 절감할 수 있다고 내부적으로 판단하고 있습니다. 연간으로 계산 하였을 시 스마트팩토리를 통한 롤매트 생산 시 약 5.5억원의 매출원가가 감소할 것으로 판단되며, 매출원가율의 경우 42.54% 수준으로 외주생산방식 대비 3.26%p 감소한 수치입니다.
또한, 판매비와관리비의 경우 월별 전체 금액으로 계산하였을 때 월 90백만원을 절감할 수 있다고 내부적으로 판단하고 있으며, 이는 창고비로 지출되던 지급임차료와 제3자물류비 등의 감소에 기인합니다. 마찬가지로 연간으로 계산 하였을 시 스마트팩토리를 통한 롤매트 생산 시 판매비와관리비는 약 11억원 절감 될 것으로 판단됩니다.
스마트팩토리 신설로 당사가 구비 예정인 설비내역은 아래와 같습니다.
| [스마트팩토리 구비 예정 설비내역] |
| (단위 : 백만원) |
| 시설명 | 수량 | 금액 | 비고 |
|---|---|---|---|
| 기계설비 | |||
| 롤커팅기 | 1 | 25 | 주문제작 생산설비 |
| 롤투입거치대 | 2 | 5 | 주문제작 생산설비 |
| 재단기 | 1 | 20 | 주문제작 생산설비 |
| 봉제로봇 | 4 | 260 | 주문제작 생산설비 |
| 미싱기 | 4 | 7 | - |
| 합봉미싱기 | 6 | 12 | - |
| 상하자동테핑기 | 2 | 20 | 주문제작 생산설비 |
| 적재로봇 | 3 | 100 | 주문제작 생산설비 |
| 컨베어 및 제어시스템 | 1 | 190 | 주문제작 집진설비 |
| 소 계 | 24 | 639 | - |
| 기타설비 | |||
| 렉설치 | 1식 | 300 | - |
| 소 계 | 1식 | 300 | - |
| 합 계 | - | 939 | - |
| 출처 : 당사 제공 주) 상기 구비시설 목록은 당사가 계획중인 것으로 추후 공장규모 및 내부구조 변경으로 인해 변동 될 수 있습니다 |
다만, 당사의 생산시설 확장 및 운영과정에 있어서 원재료 확보의 어려움, 제조장비 공급업체와의 문제, 장비 오작동 및 고장 등으로 인한 추가비용 지출의 위험성과 생산량 확대의 불확실성이 존재합니다. 생산량의 확대가 원활하게 이루어지지 못할 경우 고객의 수요에 대응하기 어려우며, 그 결과 시장 점유율이 하락할 위험이 있습니다.
또한 당사는 공시서류 제출 전일 기준 스마트팩토리 신설을 위한 토지매입 계약 체결완료 및 중도금 지급을 완료한 상태이고, 토목설계 및 건축설계 계약을 진행 중입니다. 따라서 건축설계 과정에서 당사의 예상과는 다르게 그 공장의 규모가 변동될 경우, 당사가 상기한 스마트팩토리 신설 관련 비용 및 추후 당사가 예상하고 있는 매출원가 및 판매비와관리비 절감효과 또한 변동 될 수 있습니다. 또한 당사는 금번 일반공모 공모자금 중 약 132억원을 사용하여 공장 건물 공사비로 사용 예정인 바, 추후 설계 변동으로 인해 추가비적인 비용이 발생 한 경우에는 당사의 자체자금 혹은 추가차입금으로 충당 할 예정이며, 설계 변동으로 인해 예상보다 적은 비용으로 공사비가 지출 될 경우 남은 금액분은 공장 내 기계설비 구비 등의 자금으로 사용 될 예정입니다.
당사는 상기와 같이 스마트팩토리 신설 설비 투자를 통해 매출 증대 및 수익성 개선을 기대하고 있습니다. 공장 증축 및 기계설비 투자의 경우 수익성 개선 기대감의 긍정적인 측면도 있지만, 당사의 신규투자가 반드시 성공을 보장하는 것은 아니며, 수익성 향상에 성공하지 못할 경우 투자 자금의 회수가 어려울 수 있으며, 공장증축을 위해 시공된 건물, 기계장비 등의 유형자산에 손상이 발생해 당사에 심각한 재무적 손실이 발생 할 수도 있습니다. 투자자께서는 이 점 유의하시기 바랍니다.
(중략)
4. 기존에 공모 및 사모를 통해 조달한 자금이 공시에 기재된 대로 사용되었는지의 여부
아래와 같이 당사의 공모 및 사모를 통해 조달한 자금 현황 및 사용내역을 참고하시기 바랍니다.
| (기준일 : | 공시서류 제출 전일 | ) | (단위 : 백만원) |
| 구 분 | 회차 | 납입일 | 증권신고서 등의 자금사용 계획 |
실제 자금사용 내역 |
차이발생 사유 등 | ||
|---|---|---|---|---|---|---|---|
| 사용용도 | 조달금액 | 내용 | 금액 | ||||
|
기업공개 (코스닥시장 상장) |
- | 2023.02.03 | 시설자금 | 9,050 |
시설자금, 상장제비용, |
5,250 | (주1) |
(주1) 당사는 2023.03.30일자 주요사항보고서(유형자산 양수결정)을 통해 생산공장 및 물류센터 신축을 위한 부지 확보를 위한 계약(양수금액: 약 45억원)을 체결하였으며, 공시서류 제출 전일 기준 계약금 및 중도금으로 약 14억원을 사용하였습니다. 또한, 당사는 상장 제비용, 차입금상환, 운영자금 등의 목적으로 약 38억원을 사용하였습니다.
당사는 금번 일반공모 유상증자에 앞서 2023년 2월 유상증자(IPO 일반공모) 90.5억원을 조달한 이력이 있습니다. 당사는 2023년 1월 제출한 증권신고서에 용인시 처인구 남사읍 북리 일대 부지를 자체자금 및 금융기관 차입금으로 매입 후 공모자금 중 약 85.2억원을 사용하여 공장 건물 건설 및 기계장치 설비를 구비할 것으로 계획하였습니다. 또한 공모자금의 실제 집행 시기까지의 보유기간에는 국내 제1금융권 등 안정성 높은 금융기관의 상품에 예치할 계획이며, 자금의 사용시기가 도래하여 단기간 내에 자금의 사용이 예상되는 경우에는 단기금융상품 계좌 등에 일시 예치하여 운용할 예정라고 기재한 바 있습니다.
하지만 당사가 미사용 자금에 대해 납입부터 금번 공시서류 제출일 현재까지 상기 기재한 것과 같이 적절하게 사내에 유보했는지를 살펴보면, 당사는 해당 공모 및 사모 자금 미사용 자금이 별도의 계좌에 구분되어 예치되지 않고 있기 때문에 각 조달 방법에 따른 자금들을 명확하게 구분하기 어려운것으로 파악되고 있습니다. 따라서 만기가 도래한 차입금의 상환, 원부재자 구입 및 외주비등과 같은 운영자금 지출 또한 IPO 일반공모 공모자금 납입금을 통해 지급이 된 것으로 파악되고 있으며, 2023년 1분기말 기준 공모자금 사용내역은 분기보고서에 기재하였습니다.
당사의 2023년 1월 IPO 공모 당시 증권신고서에 따르면 용인시 남사읍의 스마트팩토리 토지매입자금의 경우 자체자금 및 금융기관 차입금으로 매입할 예정이며, 공모자금 중 약 85.2억원을 사용하여 공장 건물 건설 및 기계장치 설비를 구비할 것으로 계획하였으나, 이후 추가적인 사업계획 수립 중 신설 예정인 스마트팩토리의 규모가 IPO 공모시점 보다 증가하였고, 기존 매입 예정이었던 용인시 남사읍 북리 토지의 가격이 최초 계획당시보다 크게 상승하여 최종적으로 경기도 안성시에 위치한 토지를 매입하여 스마트팩토리를 신설할 것으로 사업계획을 변경하였습니다. 또한, 최근 원자재 가격 상승으로 인한 건축비 상승 및 금리인상으로 인한 금융기관 자금차입 부담이 증가하며 당사는 기존 계획을 변경하여 IPO 공모자금 중 약 14.5억원을 사용하여 경기도 안성시에 위치한 토지의 계약금 및 중도금을 납입 하였으며, 2023년 6월 29일 잔금 약 30억원을 IPO 공모자금을 통해 충당할 예정입니다.
공시서류 제출일 현재 전체 스마트팩토리 관련 비용 중 지급완료된, 또는 추후에 추가적으로 IPO 공모자금으로 사용될 자금의 내역은 아래와 같습니다.
| [스마트팩토리 관련 비용 상세내역] |
| (단위: 백만원) |
| 구분 | 내용 | 금액 | 일정 | 자금출처 |
|---|---|---|---|---|
| 토지대금 | 계약금 | 449 | 2023년 04월 | IPO 공모자금 (지급완료) |
| 중도금 | 1,000 | 2023년 05월 | IPO 공모자금 (지급완료) |
|
| 잔금 | 3,041 | 2023년 06월 | IPO 공모자금 (지급예정) |
|
| 소계 | 4,490 | - | - | |
| 등록비용등 | 442 | 2023년 06월 | IPO 공모자금 (지급예정) |
|
| 합계 | 4,932 | - | - | |
| 설계비 | 토목설계 | 30 | 2023년 06월 ~ 2023년 7월 | 자체자금 (지급예정) |
| 건축설계 | 182 | 2023년 06월 ~ 2023년 09월 | IPO 공모자금 (지급예정) |
|
| 감리용역 | 182 | 2023년 10월 ~ 2024년 09월 | IPO 공모자금 (지급예정) |
|
| 합계 | 393 | - | - | |
| 건축비 | 공사비 | 13,193 | 2023년 10월 ~ 2024년 09월 | 금번 일반공모 공모자금 (지급예정) |
| 기계설비 | 공장 설비 | 639 | 2024년 08월 ~ 2024년 09월 | 자체자금 (지급예정) |
| 기타 | 랙설치 | 300 | 2024년 08월 ~ 2024년 09월 | 자체자금 (지급예정) |
| 전시인테리어 | 700 | 2024년 08월 ~ 2024년 09월 | 자체자금 (지급예정) |
|
| 취득비용 등 | 861 | 2024년 10월 | 자체자금 (지급예정) |
|
| 소계 | 1,861 | - | - | |
| 총계 | 21,018 | - | - | |
| 출처 : 당사 제공 주) 상기 비용은 당사가 계획중인 일정으로 추후 건축사무소와의 설계 변경시 변동 될 수 있습니다 |
이와 같이 당사가 미사용 자금에 대해 납입부터 금번 공시서류 제출일 현재까지 상기 기재한 것과 같이 적절하게 사내에 유보했는지 여부를 확인하기 위해서는 위 공모 및 사모 자금이 각각 별도의 계좌로 구분되어 관리가 되어야 합니다. 당사는 위 공모 및 사모 조달자금을 별도의 계좌에 각각 예치하지 않았기 때문에 각 자금 출처에 따른 유입 자금과 유출 자금의 구분이 명확하지 않습니다. 공시서류 제출일 현재 당사는 IPO 공모자금 약 85.2억원 중 약 14.5억원을 스마트팩토리 토지매입대금으로 사용하였으며, 약 8.3억원을 금융기관 차입금 상환, 약 29.7억원을 일시적인 유동성 부족으로 인해 원부자재 구매 및 외주비 등의 운영자금으로 사용하였습니다. 따라서 현재 정기예금 등의 공모자금 잔액은 38억원이 존재하는 것으로 파악되고 있으며, 해당자금은 추후 스마트팩토리 토지매입 잔금 및 공장 건축설계 자금 등의 시설자금으로 모두 사용 될 예정입니다. IPO 공모자금의 사용내역 및 잔여자금 사용계획은 아래표와 같습니다.
| [IPO 일반공모 자금 사용내역] |
| (단위: 백만원) |
| 구 분 | 내 역 | 사용금액 |
|---|---|---|
| 토지대금 사용 | 스마트팩토리 토지구입 계약금 및 중도금 | 1,449 |
| 차입금 상환 | 농협은행 차입금 상환 | 834 |
| 운영자금 | 원부자재 및 외주비 등 운영자금 | 2,437 |
| 정기예금 등 잔액 | 공시서류 제출 전일 현재 잔액 (토지매입 잔금 및 건축설계비로 사용 예정) |
3,800 |
| 합 계 | 8,520 | |
| 출처 : 당사 제공 |
| [잔여 IPO 일반공모 자금 사용계획] |
| (단위: 백만원) |
| 구 분 | 상세현황 | 사용(예정)시기 | 금액 |
|---|---|---|---|
| 시설 자금 |
스마트팩토리 토지구입 잔금 | 2023년 6월 중 | 3,040 |
| 스마트팩토리 토지대금 등록비용 등 | 2023년 6월 중 | 442 | |
| 스마트팩토리 건축설계 비용 | 2023년 6월 ~ 2023년 9월 | 182 | |
| 스마트팩토리 건축 감리용역 비용 | 2023년 6월 ~ 2024년 9월 | 182 | |
| 합 계 | 3,846 | ||
| 출처 : | 당사 제공 |
| 주) | 상기 비용은 당사가 계획중인 일정으로 추후 건축사무소와의 설계 변경시 변동 될 수 있으며, 초과분이 발생할 경우 당사 자체자금으로 충당할 계획입니다. |
당사는 상기한 바와 같이 기존 IPO 일반공모 납입대금을 기존 증권신고서 상의 자금의 사용목적과는 상이하게 사용한 이력이 있습니다. 이는 당사가 신설 계획중인 스마트팩토리의 사업계획 변경 및 당사의 일시적인 유동성 악화에 대응하기 위해 사용되었습니다.
당사는 금번 일반공모 공모자금 중 약 132억원을 사용하여 공장 건물 공사비로 사용 예정이나, 현재 진행중이 공장 건물 토목설계 및 건축설계 과정 중 당사의 예상과는 다르게 공장의 규모가 변동 될 경우 당사가 계획한 자금의사용목적과 다르게 운영자금 등의 목적으로 자금이 추가적으로 사용 될 수 있으며, 이와 같이 부득이한 사유로 인해 사용 목적과 다르게 사용되는 경우에는 자율공시를 통해 이를 주주 및 투자자에게 충분히 공시할 예정입니다.
당사는 공모 자금의 미사용 자금 운용과 관련하여, 관리 감독기관의 판단에 따라 미사용 자금 운용방법의 불명확성, 증권신고서 및 정기보고서(사업보고서, 반기 및 분기보고서) 허위기재 등 「자본시장과 금융투자업에 관한 법률」 제125조 제1항에 따른 신고 및 공시의무 위반으로 과징금, 임원의 해임, 일정기간 증권의 발행제한 등의 조치를 받을 수 있습니다. 또한 해당 위반이 확정될 경우 당사의 부정적 이미지 발생등으로 주가 하락은 물론, 금번 유상증자의 청약율 저하로 인해 공모자금 규모가 축소 될 경우 추가적인 차입발생으로 인해 재무안정성이 악화 될 수 있으니, 투자자께서는 이 점 유의하시기 바랍니다.
【 대표이사 등의 확인 】
![]() |
|
대표이사등의확인서(2023.06.13) |
증 권 신 고 서
| ( 지 분 증 권 ) |
| [증권신고서 제출 및 정정 연혁] |
| 제출일자 | 문서명 | 비고 |
|---|---|---|
| 2023년 05월 26일 | 증권신고서(지분증권) | 최초 제출 |
| 2023년 06월 13일 | [기재정정]증권신고서(지분증권) | 기재정정(파란색) |
| 금융위원회 귀중 | 2023년 05월 26일 |
| 회 사 명 : |
주식회사 꿈비 |
| 대 표 이 사 : |
박 영 건 |
| 본 점 소 재 지 : |
경기도 수원시 영통구 법조로 25 A동 713호 (SK레이크뷰타워) |
| (전 화) 1644-8135 | |
| (홈페이지) http://www.ggumbi-company.com | |
| 작 성 책 임 자 : | (직 책) 이사 (성 명) 박 보 선 |
| (전 화) 1644-8135 | |
| 모집 또는 매출 증권의 종류 및 수 : | 기명식 보통주 1,500,000주 | |
| 모집 또는 매출총액 : | 20,190,000,000 | 원 |
| 증권신고서 및 투자설명서 열람장소 |
| 가. 증권신고서 |
| 전자문서 : 금융위(금감원) 전자공시시스템 → http://dart.fss.or.kr |
| 나. 투자설명서 |
| 전자문서 : 금융위(금감원) 전자공시시스템 → http://dart.fss.or.kr |
| 서면문서 : (주)꿈비: 경기도 수원시 영통구 법조로25 A동 713호 유진투자증권(주): 서울특별시 영등포구 국제금융로 24 |
【 대표이사 등의 확인 】
![]() |
|
대표이사등의확인_0526 |
요약정보
1. 핵심투자위험
| 하단의 핵심투자위험은 증권신고서 본문에 기재된 투자위험요소 중 중요한 항목만을 투자자의 이해도 제고를 위하여 간단ㆍ명료하게 요약한 것입니다. 자세한 투자위험요소는 "본문-제1부 모집 또는 매출에 관한 사항-Ⅲ. 투자위험요소"에 기재되어 있으니 참고하시기 바랍니다. |
| 구 분 | 내 용 |
| 사업위험 |
가. 대외요인(COVID-19, 우크라이나-러시아 전쟁 등)에 의해 세계경제와 금융시장의 불확실성이 확대될 위험 다. 규제 강화에 따른 위험 다만, 당사가 사업에 대한 지속적인 관리 부실 및 부진한 기술개발 등의 요인으로 관련 기준에 부합하지 못한 제품을 생산하였을 경우 브랜드 신뢰도가 하락되고 당사의 영업환경에 부정적인 영향을 미칠 수 있습니다. 또한, 어린이 제품과 관련한 신규규정 적용을 위해 기존 생산시설 변경 및 신규 생산시설을 설치할 경우 예상치 못한 비용의 소요로 당사의 수익성이 악화시킬 수 있으니, 투자자께서는 이 점 유의하시기 바랍니다. 라. 경쟁 심화에 따른 위험 또한 유아용품 산업의 진입장벽에도 불구하고 대기업이 상대적으로 높은 자본력을 바탕으로 해당 시장에 진출할 경우 산업 내 경쟁이 심화될 수 있습니다. 뿐만아니라, 신규 중소업체 경쟁사의 지속적인 진입 및 글로벌 주요 기업의 시장 진입, 경쟁사들의 서비스 단가 인하 등으로 시장 내 경쟁강도가 높아질 경우 당사의 시장 내 경쟁 우위가 약화될 수 있으며 이는 당사의 향후 실적에 부정적인 영향을 미칠 수 있으니, 투자자께서는 이 점 유의하시기 바랍니다. |
| 회사위험 | 가. 스마트 공장 건립 관련 신규시설 투자 위험 당사는 생산 효율화를 도모하기 위하여 현재 외부생산을 기반으로 사업을 영위하고 있으며, 전체 품목에 대해 매월 판매 계획서를 기반으로 보유하고 있는 재고를 감안하여 생산 계획서를 작성하고, 그 계획에 따라 발주 진행 및 생산을 진행합니다. 다만, 유아용 매트 등 주력 품목들의 매출 규모가 확대되면서 원가 및 품질 경쟁력을 확보하고 물류 비용 절감을 위하여 스마트 공장 건립을 통한 자체 생산 라인 구축을 진행하고 있습니다. 스마트 공장의 구축으로 당사는 원가 절감뿐만 아니라 물류창고 공간확보, 재고자산 보관 비용 부담의 감소 효과가 기대되며 이를 통해 수익성 확대를 기대하고 있습니다. 당사는 토지비 및 건축비 등이 포함하여 약 210억을 투자하여 주력품목들을 직접 생산하기 위한 지상3층, 지하1층 규모의 스마트팩토리 신설을 진행 할 예정이며, 2024년 9월까지 공장을 완공하여 본격적인 자체생산에 돌입 할 예정입니다. 이를 위해 당사는 2023년 3월 30일 경기도 안성시에 위치한 9,900㎡ 규모의 토지를 양수하는 계약을 체결하였으며, 2023년 6월 29일 잔급지급 완료 후 양수를 완료하여 생산공장 및 물류센터 신축을 진행할 예정입니다. 또한 당사는 공시서류 제출일 현재 공장건물 토목설계 및 건축설계 계약을 진행중에 있습니다. 당사는 2023년 3월 30일 토지매수계약을 체결하며 계약금으로 약 4.5억원을, 2023년 4월 27일 1차 중도금으로 10억원을 IPO 공모자금을 사용하여 지급하였으며. 2023년 6월 29일 잔금 약 30억 및 등록비용 약 4억원 또한 IPO 공모자금을 사용하여 지급 할 예정입니다. 당사는 금번 일반공모 유상증자 공모자금 중 약 132억원을 사용하여 스마트팩토리 공사비로 사용할 예정입니다. 또한 당사는 자체자금 약 29억원을 사용하여 공장 기계설비 및 내부 인테리어 등에 필요한 자금을 충당 할 예정입니다. 당사는 건축사무소와 신축공장의 규모, 내부 기계설비 등에 대해 최종적으로 조율중에 있으며, 그 과정에서 최종 사용되는 비용의 규모가 일부 변동 될 수 있습니다. 당사는 이와 같이 스마트팩토리 신설 설비 투자를 통해 매출 증대 및 수익성 개선을 기대하고 있습니다. 공장 증축 및 기계설비 투자의 경우 수익성 개선 기대감의 긍정적인 측면도 있지만, 당사의 신규투자가 반드시 성공을 보장하는 것은 아니며, 수익성 향상에 성공하지 못할 경우 투자 자금의 회수가 어려울 수 있으며, 공장증축을 위해 시공된 건물, 기계장비 등의 유형자산에 손상이 발생해 당사에 심각한 재무적 손실이 발생 할 수도 있습니다. 투자자께서는 이 점 유의하시기 바랍니다. 나. 시장성조달 자금 중 미사용 자금 운용 위험 당사가 미사용 자금에 대해 납입부터 금번 공시서류 제출일 현재까지 상기 기재한 것과 같이 적절하게 사내에 유보했는지를 살펴보면, 당사는 해당 공모 및 사모 자금 미사용 자금이 별도의 계좌에 구분되어 예치되지 않고 있기 때문에 각 조달 방법에 따른 자금들을 명확하게 구분하기 어려운것으로 파악되고 있습니다. 따라서 만기가 도래한 차입금의 상환, 원부재자 구입 및 외주비등과 같은 운영자금 지출 또한 IPO 일반공모 공모자금 납입금을 통해 지급이 된 것으로 파악되고 있습니다. 또한 당사의 2023년 1월 IPO 공모 당시 증권신고서에 따르면 용인시 남사읍의 스마트팩토리 토지매입자금의 경우 자체자금 및 금융기관 차입금으로 매입 할 예정이며, 공모자금 중 약 85.2억원을 사용하여 공장 건물 건설 및 기계장치 설비를 구비할 것으로 계획하였으나, 이후 추가적인 사업계획 수립 중 신설 예정인 스마트팩토리의 규모가 IPO 공모시점 보다 증가하였고, 기존 매입 예정이었던 용인시 남사읍 북리 토지의 가격이 최초 계획당시보다 크게 상승하여 최종적으로 경기도 안성시에 위치한 토지를 매입하여 스마트팩토리를 신설 할 것으로 사업계획을 변경하였습니다. 또한 최근 원자재 가격 상승으로 인한 건축비 상승 및 금리인상으로 인한 금융기관 자금차입 부담이 증가하며 당사는 기존 계획을 변경하여 IPO 공모자금 중 약 14.5억원을 사용하여 경기도 안성시에 위치한 토지의 계약금 및 중도금을 납입 하였으며, 2023년 6월 29일 잔금 약 30억원을 IPO 공모자금을 통해 충당할 예정입니다. 당사는 공모 자금의 미사용 자금 운용과 관련하여, 관리 감독기관의 판단에 따라 미사용 자금 운용방법의 불명확성, 증권신고서 및 정기보고서(사업보고서, 반기 및 분기보고서) 허위기재 등 「자본시장과 금융투자업에 관한 법률」 제125조 제1항에 따른 신고 및 공시의무 위반으로 과징금, 임원의 해임, 일정기간 증권의 발행제한 등의 조치를 받을 수 있습니다. 또한 해당 위반이 확정될 경우 당사의 부정적 이미지 발생등으로 주가 하락은 물론, 금번 유상증자의 청약율 저하로 인해 공모자금 규모가 축소 될 경우 추가적인 차입발생으로 인해 재무안정성이 악화 될 수 있으니, 투자자께서는 이 점 유의하시기 바랍니다. 다. 성장성 및 수익성 악화 위험 당사는 2014년 10월 27일 설립되어 유아용 매트, 유아용 침구류 등의 유아가구 제조 및 판매사업을 주요 사업으로 영위하고 있으며, 2023년 02월 09일자로 코스닥 시장에 상장하였습니다. 당사는 영유아를 위한 다양한 제품을 제공하고 있으며, 생산은 전문 생산업체를 통해 외주 생산하고 있습니다. 당사 매출의 대부분은 소비자와 직접적으로 판매하는 B2C 전자상거래로 발생하며, 국내 주요 온라인 판매몰 및 자사몰을 통해 온라인으로 판매하고 있습니다. 최근 3년간 당사의 연결기준 총자산 규모는 2020년 9,245백만원, 2021년 11,537백만원, 2022년 15,964백만원, 2023년 1분기 24,023백만원으로 지속적으로 증가하였습니다. 이는 당기순이익 시현, G7 커피 유통 사업을 영위함에 따라 매출채권 및 재고자산의 규모가 확대되었으며, 일반공모 유상증자를 통해 현금및현금성자산이 증가하였기 때문입니다. 당사의 연결기준 매출액은 2020년 18,499백만원, 2021년 20,896백만원, 2022년 27,182백만원으로 지속적으로 증가하였습니다. 이는 당사 주력 제품인 유아용 매트가 아이 안전을 위한 필수재로 인식되면서 판매량이 증가하였으며, 2021년 12월부터 G7 커피 유통 사업을 신규 사업으로 추진하여 매출액이 확대되었기 때문입니다. 그러나, 당사는 2022년 영업이익 및 당기순이익률이 감소하였는데, 이는 수익성이 낮은 상품 매출(G7 커피 유통 사업)의 매출액 대비 비중이 확대되어 매출원가율이 악화되었으며, 2023년 1분기 적자전환의 사유는 코스닥 시장 상장에 따라 일회성 비용이 증가하였기 때문입니다. 당사는 총자산과 매출액 등 기업의 외형을 평가하는 지표는 최근 3년간 지속적으로 성장하였으나, 원재료 가격의 상승 및 원가율이 높은 신규 사업 부문의 성장으로 인해 매출원가율이 악화되고 있는 추세입니다. 당사는 이를 개선하고자 스마트 공장을 건설하여 원가 및 품질의 경쟁력을 확보하고 자체 생산 라인을 통해 재고자산 보관 비용의 부담을 감소시킬 계획입니다. 그러나, 당사의 예상과 달리 시장 환경이 변화하여 사업 환경이 악화될 경우 당사의 총자산 및 매출액 등 기업의 외형이 축소되어 당사의 성장이 정체되고 당사의 수익성에 부정적인 영향을 미칠 수 있으니 투자자께서는 이 점 유의하시기 바랍니다. 라. 재무안정성 관련 위험 당사의 2022년말 연결기준 유동비율은 151.58%, 부채비율은 98.05%, 차입금의존도는 39.93%입니다. 2023년 1분기 기준 유동비율은 256.12%, 부채비율은 51.14%, 차입금의존도는 23.31%입니다. 최근 3년간 당사의 매출액은 지속적으로 증가하였으며, 이에 따라 당기순이익을 시현하였습니다. 또한, 유상증자를 통해 자본을 확충하고 현금 유입을 통해 차입금을 상환하면서 2023년 1분기 연결기준 당사의 부채비율, 유동비율, 차입금 의존도는 양호한 수준을 기록하였습니다. 그러나, 당사는 매출원가율이 높은 상품 매출 비중의 증가, 지급수수료 등 일회성 비용이 발생하며 수익성이 악화되었으며 2023년 1분기 적자전환하며 음(-)의 이자보상배율을 기록하였습니다. 당사는 G7 커피 유통 사업 관련 운전자금 확보를 위해 금융기관으로부터 차입금을 조달하는 등 이자비용이 지속적으로 발생하고 있으며, 향후 경기 변동 및 금리 상승 등의 예측할 수 없는 변수로 인해 이자비용이 더욱 확대되어 당사의 수익성 및 재무안정성 지표들이 악화될 위험이 존재합니다. 또한, 향후 외부 금융환경 변화로 인해 차입금의 상환 요구가 발생하거나 계획대로 만기연장이 이루어지지 않을 시 당사의 유동성에 위기가 발생할 수 있으며, 금번 유상증자의 청약율 저하로 인해 공모자금 규모가 축소 될 경우 추가적인 차입발생으로 인해 재무안정성이 악화 될 수 있으니, 투자자께서는 이 점 유의하시기 바랍니다. 마. 매출채권 미회수 관련 위험 당사는 2021년 12월부터 신규 사업인 G7 커피 유통 사업을 영위하였으며, 이는 당사의 매출채권 증가 주요 원인으로 작용하고 있습니다. 최근 3년간 당사의 연결기준 매출채권은 2020년 583백만원, 2021년 771백만원, 2022년 2,930백만원, 2023년 1분기 2,973백만원으로 지속적으로 증가하였으며, 매출액 대비 매출채권 비중은 2020년 3.15%, 2021년 3.69%, 2022년 10.78%, 2023년 1분기 10.83% 수준입니다. 최근 3년간 당사의 매출채권회전율은 2020년 31.72회, 2021년 30.87회, 2022년 14.69회, 2023년 1분기 9.30회로 지속적으로 낮아지고 있으며, 이는 당사의 매출액 증가율 대비 매출채권 증가율이 높은 수준을 기록하였기 때문입니다. 한편, 최근 3년간 당사의 매출채권 대손충당금 설정률은 2020년 1.73%, 2021년 0.59%, 2022년 0.05%, 2023년 1분기 4.39% 수준입니다. 당사는 매출액 대비 매출채권의 비중이 높지 않은 편이나 매출채권회전율이 지속적으로 낮아지고 있으며, 연체채권이 발생하고 있는 상황입니다. 향후, 급격한 경기변동과 예상치 못한 거래처의 사정 악화에 따른 채무불이행 등으로 인해 매출채권의 회수가 원활히 이루어지지 않을 경우 당사의 현금흐름 및 수익성이 악화되어 영업안정성에 부정적인 영향을 미칠 수 있습니다. 또한, 온라인몰을 비롯하여 전반적인 유통 산업은 대기업을 중심으로 여전히 최저가 경쟁이 이어지고 있는 상황이며, 이러한 기업들이 한계기업으로 몰릴 경우 이로 인해 당사가 추가적으로 매출채권에 대해 전액 대손상각을 인식하여 당사의 수익성에 부정적인 영향을 미칠 수 있으니 투자자께서는 이 점 유의하시기 바랍니다. 바. 재고자산 진부화 관련 위험 최근 3년간 당사의 연결기준 재고자산은 2020년 1,611백만원, 2021년 2,123백만원, 2022년 4,375백만원으로 지속적으로 증가하였으며, 이는 G7 커피 유통 사업 관련 매출이 확대되며 G7 커피 재고자산이 증가하였기 때문입니다. 당사는 G7 커피 약 2개월 판매분 물량을 안전재고로 보유하고 있으며, 이는 G7 커피가 식품으로 분류되어 검역 등 타 상품 대비 통관 시일이 길게 소요되기 때문입니다. 2023년 1분기 연결기준 재고자산은 4,375백만원으로 2022년과 유사한 수준을 기록하였습니다. 최근 3년간 당사의 재고자산회전율은 2020년 7.25회, 2021년 6.78회, 2022년 5.60회, 2023년 1분기 4.56회로 지속적으로 낮아지는 등 재고자산의 매출화 속도가 느려지고 있습니다. 최근 3년간 당사의 재고자산평가충당금은 주로 제품 및 상품에서 발생하고 있으며, 그 규모는 63~79백만원 수준이고, 평가충당설정률 기준으로는 재고자산의 1.77%~3.76% 수준입니다. 당사는 재고자산이 지속적으로 증가하고 있으며, 이를 영업활동을 통해 소진하고 있어 평가충당금설정률이 높지 않은 상황입니다. 그러나, 당사는 금번 일반공모 유상증자를 통해 확보한 자금으로 스마트 팩토리 건설을 계획하고 있으며, 제품 생산을 위한 원재료 구매, 창고시설 확대에 따른 제품 및 상품 재고자산의 규모가 확대될 수 있습니다. 만약, 당사가 보유한 재고자산이 매출로 이어지기까지 장기간이 소요될 경우 재고자산에 대한 관리 비용 증가, 시간 경과에 따른 재고자산의 진부화 및 평가충당금의 발생으로 어이질 수 있습니다. 또한, 향후 경기 변동에 따른 매출의 감소, 공급 차질 요인 및 원재료 수급 불균형 등이 발생할 경우 재고자산이 진부화되어 평가충당금이 발생할 수 있으며, 재고자산평가충당금이 증가할 경우 당사의 수익성에 부정적인 영향을 미칠 수 있으니, 투자자께서는 이 점 유의하시기 바랍니다. 사. 현금흐름 악화 관련 위험 최근 3년간 당사의 연결기준 영업활동현금흐름은 2020년 +2,902백만원, 2021년 +1,847백만원으로 순유입(+)을 기록하였으나, 2022년 -3,332백만원, 2023년 1분기 -679백만원으로 순유출(-)을 기록하였습니다. 최근 3년간 당사의 연결기준 투자활동현금흐름은 2020년 -1,150백만원, 2021년 -846백만원, 2022년 -606백만원, 2023년 1분기 -4.311백만원으로 지속적으로 순유출(-)을 기록하였습니다. 최근 3년간 당사의 연결기준 재무활동현금흐름은 2020년 -1,479백만원으로 순유출(-)을 기록하였으나, 2021년 +377백만원, 2022년 +2,086백만원, 2023년 1분기 +8,177백만원으로 순유입(+)을 기록하였습니다. 당사는 최근 3년간 지속적으로 매출이 확대되면서 당기순이익을 시현하고 영업활동에서 현금을 창출할 수 있었습니다. 또한, 자사몰 및 온라인몰을 통해 고객에게 직접 제품을 판매하는 B2C 구조인 만큼, 매출채권이 비교적 단기간 내 회수되었으며, 외주생산을 진행하기 때문에 대규모 시설투자를 위한 현금 유출도 이루어지지 않았습니다. 그러나 2021년 12월 이후 신규 사업으로 G7 커피 유통 사업을 영위하기 시작함에 따라 관련 매출채권, 미수금, 재고자산 등이 일시에 증가하여 영업활동현금흐름의 순유출(-)을 기록하였으며, 운전자금 확보를 통한 금융기관 차입 등으로 인해 재무활동현금흐름의 순유입(+)이 발생하였습니다. 공시서류 제출 전일 기준, 당사의 커피 유통 사업 관련 발주, 판매, 매출채권 회수가 안정적으로 이뤄지고 있는 것으로 판단되나, 향후 경기 변동에 따른 매출 감소 등으로 인해 현금흐름이 악화될 수 있으니, 투자자께서는 이 점 유의하시기 바랍니다. 아. 종속기업 경영 실적 부진에 따른 연결 손익 악화 위험 공시서류 제출 전일 기준 당사는 총 2개의 종속회사 및 관계회사를 보유하고 있습니다. 당사의 종속회사 및 관계회사의 재무실적은 당사의 총자산이나 매출액에서 차지하는 비중이 낮으나, 향후 영업환경 악화로 인해 경영실적이 부진하게될 경우 당사의 연결 손익에 부정적인 영향을 미쳐 당사의 수익성을 악화시킬 수 있으니, 투자자께서는 이 점 유의하시기 바랍니다. 자. 특수관계자 거래 관련 위험 당사는 특수관계자와의 매출, 채권ㆍ채무 등의 거래가 발생하고 있으며, 특수관계자와의 거래규정 하에 이루어지고 있습니다. 그러나, 향후 예상치 못한 특수관계자 거래가 발생하고 당사의 적절한 내부통제 절차가 진행되지 않아 특수관계자의 부의 이전 등이 발생하게 될 경우, 당사의 재무구조 및 수익성에 부정적인 영향을 미칠 수 있으니, 투자자께서는 이 점 유의하시기 바랍니다. 차. 소송 및 우발채무에 따른 위험 공시서류 제출 전일 기준 영업에 중대한 영향을 미치는 소송 등의 분쟁 사항은 존재하지 않습니다. 하지만, 향후 당사 기술과 관련된 특허권 분쟁, 핵심인력의 이탈로 인한 기술의 유출이 발생하거나, 임직원 및 관련자가 당사에 중대한 손해를 입히는 경우 등과 관련된 다양한 종류의 분쟁 또는 소송이 발생할 수 있습니다. 또한, 당사는 금융기관 차입금 등과 관련하여 담보를 제공하고 있으며, 차입금 약정을 통해 자금을 조달하고 있습니다. 당사의 우발채무 및 약정사항은 공시서류 제출 전일 현재 당사의 재무제표에 예상치 못한 영향을 미치고 있지는 아니하지만, 향후 이로 인한 우발상황의 발생여부에 따라 당사의 재무안정성 및 경영실적에 부정적인 영향을 미칠 수 있으니 투자자께서는 이 점 유의하시기 바랍니다. 카. 내부 정보 관리 및 내부회계관리제도 미흡 관련 위험 코스닥시장 상장법인은 공시의무사항 및 투자판단에 영향을 미치는 중요사항 발생시 이를 종합적으로 관리하고 적시에 공개할 수 있는 관련 규정 및 공시 체계를 정비하여야 하며, 불공정거래를 예방할 수 있는 시스템을 구축하여야 합니다. 이를 위하여 당사는 내부정보관리규정을 제정하고 공시 조직을 구축하였으며, 상장 후에는 공시 책임자 및 담당자의 공시전문교육 이수, 전체 임직원 대상 교육 실시, 공시 의무 준수 확약서 및 불공정거래행위 규제 준수 확약서 등을 징구할 계획입니다. 당사의 상기와 같은 노력에도 불구하고 여러 사유들로 인해 중요한 사항에 대한 공시가 누락되거나, 적시에 공시되지 못할 위험을 원천적으로 배제할수 없으므로 투자자께서는 이 점 유의하시기 바랍니다. |
| 기타 투자위험 | 가. 최대주주 청약 참여 등에 따른 지분율 변동 위험 공시서류 제출 전일 기준 당사의 최대주주인 박영건 대표이사 및 특수관계인의 청약 계획은 현재 알 수 없으며, 구체적으로 확정된 사항 또한 없습니다. 당사의 최대주주인 박영건 대표이사 및 특수관계인이 금번 일반공모 유상증자에 참여하지 않고 무상증자까지 진행될 경우, 당사 최대주주 및 특수관계인의 지분율 합계는 64.14%에서 54.60%로 9.54%p 하락이 예상됩니다. 일반공모의 특성 상 최대주주는 경쟁률에 따라 청약분만큼 배정받지 못할 가능성을 배제할 수 없습니다. 투자자들께서는 금번 일반공모의 특성상 최대주주가 청약을 하더라도 청약분 만큼 배정을 받지 못할 가능성이 존재함에 유의하시기 바랍니다. 또한, 최대주주 등의 지분율 하락은 향후 당사의 안정적인 경영권 유지에 부정적인 영향을 미칠 수 있으며, 그 밖에 예상치 못한 경영권 혼란 가능성도 있을 수 있으니, 투자자께서는 이 점 유의하시기 바랍니다. 나. 청약률 미달에 따른 자금조달 실패 위험 당사가 금번 진행하는 유상증자는 일반공모 방식으로 진행됩니다. 이는 최근 가장 보편적으로 사용되는 유상증자 방식 중 하나인 주주배정 후 실권주 일반공모 방식의 유상증자가 기존 주주들에게 우선적인 청약의 기회를 제공하고 미달된 잔여 주식에 대하여 일반공모를 실시함으로서 실권 발생의 가능성을 최소화하는 것과 달리, 기존 주주들에 대한 신주인수권을 배제하고 정관의 규정에 의하여 이사회 결의로써 구주주를 포함한 불특정다수를 대상으로 일반공모를 진행하기에 상대적으로 실권이 발생할 가능성이 더 높을 가능성이 존재합니다. 투자자께서는 당사의 금번 일반공모 유상증자 방식의 경우, 구주주를 포함하여 불특정다수를 대상으로 신주모집을 진행하기에 실권이 발생할 가능성이 높음에 유의하시기 바랍니다. 나아가 당사가 의도한 자금의 사용목적과 다르게 일부 또는 전부의 자금조달이 실패할 경우 사업계획 및 재무개선 계획 등에 차질을 빚을 수 있으니 투자자께서는 이 점 유의하시기 바랍니다. 다. 청약 후 추가상장일까지 환금성 제약 및 주가의 급격한 변동에 따른 손실위험 당사의 금번 유상증자로 인한 발행신주는 주금납입일 이후 코스닥시장 추가상장일까지 유동성이 제한될 수 있으며, 추가상장 시점에서 신주발행가액보다 시장의 주가수준이 낮은 경우 환금성 위험 및 원금 손실의 위험이 있습니다. 본 유상증자 기간동안 주가의 변동이 있을 수 있다는 점, 투자자께서는 유의하여 주시기 바랍니다. 라. 유통주식수 증가에 따른 희석화 및 신주 물량 등 일시 출회에 따른 주가 하락 위험 당사는 공시서류 제출일 현재 잠재주식수가 총 192,943주 존재하며, 그 내역은 미행사 주식매수선택권 192,943주 입니다. 주식매수선택권이 행사될 경우 총 발행주식수 7,971,546의 약 2.4%에 해당되며, 금번 유상증자 1,500,000주 포함시에는 약 2.0%에 해당됩니다. 이러한 주가 희석화 및 물량출회로 인해 투자자의 손실을 초래할 위험이 있습니다. 투자자께서는 이 점 유의하시기 바랍니다. 주식시장의 특성상 향후 주가에 대한 변동성으로 인해 금번 유상증자에 따른 모집가격 산정 시 결정된 1주당 모집가액 보다 추가 상장 후 거래 시점의 주가가 낮아질 경우 투자자에게 금전적 손실을 끼칠 가능성이 존재하며, 금번 유상증자에 따른 1,500,000주의 유상신주가 코스닥시장에 추가 상장될 경우 전량 보호 예수되지 않아 일시에 물량이 출회될 수 있습니다. 투자자께서는 이 점을 반드시 유의하여 주시기 바랍니다. 마. 유상증자에 따른 주식가치 하락 및 기재정보 의존에 따른 투자위험 금번 유상증자를 통해 취득한 당사의 주식가치가 하락할 수 있으며, 상기 투자위험요소 및 기타 기재된 정보에만 의존하여, 투자판단을 해서는 안되며 투자자 여러분의 독자적인 판단에 의해야 하니 투자자께서는 이점 유의하시기 바랍니다. 바. 유상증자 일정 변경 가능성에 따른 위험 본 증권신고서는 공시심사 과정에서 일부내용이 정정될 수 있으며, 투자판단과 밀접하게 연관된 주요내용이 변경될 시에는 본 신고서상의 일정에 차질을 가져올 수 있습니다. 또한, 관계기관과의 업무진행 과정에서 일정이 변경될 수도 있으므로 투자자들께서는 투자시 이러한 점을 감안하시기 바랍니다. 사. 차입공매도 유상증자 참여 제한 관련 위험 「자본시장과 금융투자업에 관한 법률 시행령」일부 개정령에 따라, 주권상장법인이 유상증자 계획을 공시한 이후 발행가격 산정을 위한 대상 거래기간의 마지막 날(발행가격 산정 기산일)까지, 해당 기업의 주식을 공매도 한 자는 증자 참여를 제한하되, 예외적인 경우에만 증자 참여가 허용됩니다(「자본시장과 금융투자업에 관한 법률」제180조의4). 투자자께서는 이 점 유의하시기 바랍니다. 아. 유상증자 철회에 따른 위험 금번 일반공모 유상증자는 대표주관회사의 잔액인수 없이 모집주선 방식으로 진행됩니다. 유상증자 진행 중, 모집절차의 진행에 있어 중대한 영향을 미칠만한 사유가 발생할 경우 당사 혹은 모집주선회사의 판단에 따라 유상증자가 철회될 수 있습니다. 본 증권신고서가 유상증자 납입전에 철회될 경우 청약으로 인한 손실은 발생하지 않으나, 철회시점에 따라 권리락에 따른 주가하락 등이 발생할 수 있습니다. 또한, 당사가 계획한 자금사용목적의 자금이 조달되지 않기 때문에 당사는 당사의 성장을 위해 수립한 경영계획에 차질이 생길 수 있습니다. 유상증자가 철회될 경우 매우 위험한 상황이 발생할 수 있으니 이점 유의하시기 바랍니다. 자. 집단 소송 제기 가능성 위험 당사가 잘못된 정보를 제공하거나 부실감사 등으로 주주들에게 손해를 끼칠 시 일부 주주들로부터 집단 소송이 제기될 위험이 있습니다. 차. 관리감독기준 위반에 따른 위험 최근 상장 기업에 대한 관리감독기준이 강화되는 추세이며, 향후 당사가 상장기업 관리감독기준을 위반할 경우 주권매매정지, 관리종목지정, 상장폐지실질심사, 상장폐지 등의 조치가 취해질 수 있습니다. 카. 청약자 유형별 배정에 따른 위험 금번 당사의 유상증자는 일반공모 방식으로 진행됩니다. 일반공모 청약 결과 '증권 인수업무 등에 관한 규정' 제9조 제2항에 따라 고위험고수익투자신탁에 공모주식의 5%를 배정하고, 벤처기업투자신탁에 공모주식의 30%를 배정합니다. 나머지에 해당하는 주식은 개인청약자 및 기관투자자에게 구분 없이 배정합니다. 고위험고수익투자신탁 및 코스닥벤처펀드의 청약 수량이 최초 우선 배정된 5%와 30%에 미달하는 경우 해당 미달 수량을 일반 청약자에게 배정하게 되며, 그 결과 일반 청약자의 청약 경쟁률보다 실제 배정받는 물량이 훨씬 많을 수가 있습니다. 일반청약자들께서는 이점 유의하시어 투자 의사 결정하시기 바랍니다. 타. 기타 투자자 유의사항 당사의 대내외적 경영환경 변화에 따라 당사 실적의 급변동이 있을 경우, 투자원금에 대한 손실이 발생할 수 있으므로, 상기 투자위험요소 및 본 증권신고서에 기재된 정보에만 의존하여 투자 판단을 해서는 안되며, 투자자 여러분의 독자적인 판단에 의해야 함을 유의하시어 투자에 임하시기 바랍니다. |
2. 모집 또는 매출에 관한 일반사항
| (단위 : 원, 주) |
| 증권의 종류 |
증권수량 | 액면가액 | 모집(매출) 가액 |
모집(매출) 총액 |
모집(매출) 방법 |
|---|---|---|---|---|---|
| 보통주 | 1,500,000 | 100 | 13,460 | 20,190,000,000 | 일반공모 |
| 인수(주선) 여부 | 지분증권 등 상장을 위한 공모여부 | ||
|---|---|---|---|
| 주선 | 아니오 | 해당없음 | 해당없음 |
| 인수(주선)인 | 증권의 종류 |
인수수량 | 인수금액 | 인수대가 | 인수방법 | |
|---|---|---|---|---|---|---|
| 주선 | 유진증권 | 기타 | - | - | - | - |
| 청약기일 | 납입기일 | 청약공고일 | 배정공고일 | 배정기준일 |
|---|---|---|---|---|
| 2023.06.19 ~ 2023.06.20 | 2023.06.22 | 2023.06.19 | 2023.06.22 | - |
| 청약이 금지되는 공매도 거래 기간 | |
|---|---|
| 시작일 | 종료일 |
| 2023.05.26 | 2023.06.14 |
| 자금의 사용목적 | |
|---|---|
| 구 분 | 금 액 |
| 시설자금 | 13,192,993,000 |
| 운영자금 | 6,757,262,800 |
| 발행제비용 | 239,744,200 |
| 신주인수권에 관한 사항 | ||
|---|---|---|
| 행사대상증권 | 행사가격 | 행사기간 |
| - | - | - |
| 매출인에 관한 사항 | ||||
|---|---|---|---|---|
| 보유자 | 회사와의 관계 |
매출전 보유증권수 |
매출증권수 | 매출후 보유증권수 |
| - | - | - | - | - |
| 일반청약자 환매청구권 | ||||
|---|---|---|---|---|
| 부여사유 | 행사가능 투자자 | 부여수량 | 행사기간 | 행사가격 |
| - | - | - | - | - |
| 【주요사항보고서】 | 주요사항보고서(유무상증자결정)-2023.05.25 |
| 【기 타】 | 1. 상기 모집가액은 예정가액이며, 확정발행가액은 청약일전 3거래일에 확정되어 전자공시시스템(http://dart.fss.or.kr)에 공시됩니다. 2. 일반공모 청약은 모집주선회사인 유진투자증권(주)의 본·지점, 홈페이지 및 HTS, MTS에서 가능합니다. 3. 일반공모 청약결과 발생하는 실권주 및 단수주는 미발행 처리할 예정입니다. 4. 유진투자증권(주)은 금번 주식회사 꿈비 일반공모의 모집주선회사입니다. 금번 유상증자는 모집주선 방식으로 진행되는 바, 유진투자증권(주)은 투자중개업자로서 타인의 계산으로 증권의 발행ㆍ인수에 대한 청약의 권유, 청약, 청약의 승낙을 영업으로 하게 되며, 자본시장과 금융투자업에관한 법률상 증권의 인수업무를 수행하지 않습니다. 5. 금융감독원에서 본 증권신고서를 심사하는 과정에서 정정명령 조치를 취할 수 있으며, 만약 정정 명령이 발생할 경우에는 동 신고서에 기재된 일정이 변경될 수 있습니다. 6. 증권신고서의 효력의 발생은 본 증권신고서의 기재사항이 진실 또는 정확하다는 것을 인정하거나, 정부가 이 증권의 가치를 보증 또는 승인한 것이 아니므로 본 증권에 대한 투자는 전적으로 주주 및 투자자에게 귀속됩니다. 7. '자본시장법과금융투자업에관한법률' 제180조의4 및 동법 시행령 제208조의4제1항에 의거, 2023년 05월 26일부터 2023년 06월 14일까지 당사의 주식을 공매도 하거나 공매도 주문을 위탁한 자는 금번 모집(매출)에 청약할 수 없으며, 이를 위반하여 주식을 취득할 경우 동법 제429조의3제2항에 따라 과징금이 부과될 수 있습니다. 다만, 모집(매출)가액의 공정한 가격형성을 저해하지 않는 경우로서 동법 시행령 제208조의4제2항 및 금융투자업규정 제6-34조에 해당할 경우에는 예외적으로 주식 취득이 허용됩니다. |
제1부 모집 또는 매출에 관한 사항
I. 모집 또는 매출에 관한 일반사항
1. 공모개요
당사는 2023년 05월 25일 이사회 결의를 통하여 기명식 보통주 1,500,000주를 일반공모 방식으로 발행하기로 결정하여 계약을 맺었으며, 동 증권의 개요는 다음과 같습니다.
| [공모 개요] |
| (단위 : 원, 주) |
| 증권의 종류 |
증권수량 | 액면가액 | 모집(매출) 가액 |
모집(매출) 총액 |
모집(매출) 방법 |
|---|---|---|---|---|---|
| 기명식 보통주 | 1,500,000 | 100 | 13,460 | 20,190,000,000 | 일반공모 |
| 주) | 1주당 모집가액 및 모집총액은 예정금액입니다. |
■ 모집(예정)가액
당사는 금번 유상증자의 1주당 예정발행가액을 "증권의 발행 및 공시 등에 관한 규정 " 제5-16조 및 제5-18조의 일반공모 방식으로 유상증자를 하는 경우의 발행가액 산정 방식을 준용하여 25%의 할인율을 적용한 가액으로 산정합니다.
모집(예정)가액은 최초 이사회결의일(2023년 05월 25일) 직전거래일인 2023년 05월 24일을 기산일로 하여 산출하며, 기산일로부터 과거 제3거래일부터 제5거래일까지의 가중산술평균주가(총 거래대금 ÷ 총 거래량)를 기준주가로 하여 할인율 25%를 적용하여 산정합니다. 산정한 가액이 액면가액 이하일 경우에는 액면가액을 예정 발행가액으로 하며, 호가단위 미만은 호가단위로 절상합니다.
| [예정발행가액 산정표] | |
| (기산일 : 2023년 05월 24일) | (단위 : 원, 주) |
| 구분 | 일 자 | 거 래 량 | 거 래 대 금 | 비 고 |
|---|---|---|---|---|
| 1 | 2023-05-19 | 392,527 | 6,493,979,270 | 할인율: 25% |
| 2 | 2023-05-18 | 2,830,976 | 51,534,379,140 | |
| 3 | 2023-05-17 | 109,884 | 1,785,591,180 | |
| 합 계 | 3,333,387 | 59,813,949,590 | ||
| 기 준 주 가 | 17,944 | = 총 거래대금 / 총 거래량 | ||
| 발 행 가 액 | 13,460 | 기준주가 × (1 - 할인율) 호가단위 미만은 호가단위 절상 (단, 액면가액 이하인 경우 액면가로 발행함) |
||
■ 확정발행가액 산정
확정발행가액은 "증권의 발행 및 공시등에 관한 규정" 5-18조(유상증자의 발행가액 결정)의 산출근거에 의거, 청약일전 과거 제3거래일부터 제5거래일까지의 가중산술평균주가를 기준주가로 하여 할인율 25%를 적용하여 산정합니다. 따라서 일반공모 청약 초일 전 과거 제3거래일부터 제5거래일까지의 가중산술평균주가를 기준주가로 하여 25%의 할인율을 적용한 확정발행가액을 산출하여 금융위원회(금융감독원) 전자공시시스템에 공시할 예정이며, 회사의 인터넷 홈페이지(http://www.ggumbi-company.com)에 게재하여 개별통지에 갈음할 예정입니다. 산정한 가액이 액면가액 이하일 경우에는 액면가액을 확정발행가액으로 하며, 호가단위 미만은 호가단위로 절상합니다. 확정발행가액은 2023년 06월 14일 결정되어, 익영업일 금융감독원 전자공시시스템(http://dart.fss.or.kr)에 공시될 예정입니다.
■ 유상증자 방식
본 건 유상증자의 인수방식 유형은 모집주선의 방식입니다. 모집주선의 방식은 증권 모집주선에 관한 사무절차 등을 금융투자회사에 위탁하며, 증권의 모집 결과 발생하는 미청약분에 대해서 인수책임을 인수기관이 부담하지 않고 발행사가 부담합니다.이에 따라, 일반공모 청약결과 총 청약주식수가 모집주식수에 미달하는 경우에는 청약주식수대로 배정하고, 최종 미청약된 잔여 주식은 미발행 처리합니다. 이 점 참고하시기 바랍니다.
■ 공모일정 등에 관한 사항
당사는 2023년 05월 25일 이사회를 통해 유무상증자를 최초 결의하였으며, 세부 일정은 아래와 같습니다.
| 일자 | 증자절차 | 비고 |
|---|---|---|
| 2023년 05월 25일 | 이사회결의 및 주요사항보고서 공시 | - |
| 2023년 05월 26일 | 증권신고서 및 예비투자설명서 제출 | - |
| 2023년 06월 13일 | (정정) 증권신고서 및 예비투자설명서 제출 | - |
| 2023년 06월 14일 | 발행가액 확정 | 청약일 3거래일전 |
| 2023년 06월 15일 | 발행가액 확정 공고 | 금융감독원 전자공시시스템 (http://dart.fss.or.kr) 당사 인터넷 홈페이지 (http://www.ggumbi-company.com) |
| 2023년 06월 19일 | 청약안내 공고 | 유진투자증권 홈페이지 (http://www.eugenefn.com) 당사 인터넷 홈페이지 (http://www.ggumbi-company.com) |
| 2023년 06월 19일 | 일반공모 청약 | - |
| 2023년 06월 20일 | ||
| 2023년 06월 22일 | 환불 및 주금납입 | - |
| 2023년 06월 27일 | 무상증자 신주배정기준일 | - |
| 2023년 07월 06일 | 유상증자 신주상장 및 유통 예정일 | - |
| 2023년 07월 19일 | 무상증자 신주상장 및 유통 예정일 | - |
| 주1) | 당사는 코스닥시장 상장법인으로 금번 유상증자를 통해 발행되는 주식은 코스닥시장에서 상장될 예정입니다. 금번 증자는 일반공모방식으로 진행되며 일반공모 후 발생하는 미청약주식에 대해서는 미발행 처리합니다. |
| 주2) | 본 증권신고서는 심사과정에서 일부내용이 정정될 수 있으며, 투자판단과 밀접하게 연관된 주요내용의 변경시에는 본 증권신고서 상의 일정에 차질을 가져올 수 있습니다. |
| 주3) | 상기 일정은 예정사항으로 관계기관과의 업무진행과정에서 일정이 변경될 수도 있으므로 투자자 여러분께서는 투자시 이러한 점을 감안하시기 바랍니다. |
■ 무상증자에 관한 사항
당사는 2023년 05월 25일 개최된 이사회에서 무상증자를 결의하였으며, 유상증자 납입일(2023년 06월 22일)의 3영업일 후인 2023년 06월 27일을 무상증자 신주배정기준일로 하여, 유상증자 후 주주명부에 기재된 주주(자기주식 제외)에 대하여 소유주식 1주당 0.3주의 비율로 신주를 무상으로 배정하는 증자를 시행할 예정입니다. 금번 유상증자로 인해 발행되는 신주의 경우에도 자동적으로 무상증자에 참여하여 신주를 받을 수 있는 권리가 발생합니다. 본 무상증자 계획은 관계기관의 조정 또는 증권신고서 수리과정 등에서 변경될 수 있습니다. 또한, 기타 본 건 신주 발행을 위하여 이사회에서 정하지 않은 사항 및 제반 계약서의 체결, 부수사항 및 제비용 집행 등 세부사항은 대표이사에게 위임합니다.
| [무상증자 개요] |
| 구 분 | 내 용 |
|---|---|
| 무상증자 신주배정기준일 | 2023년 06월 27일 |
| 무상증자 신주의 주당 발행가액 | 100원 |
| 무상증자 신주의 종류와 수 | 보통주 2,704,045주 |
| 1주당 신주배정 주식 수 | 보통주 0.3주 |
| 무상증자 신주의 재원 | 주식발행초과금 |
| 무상증자 신주권 유통 예정일 | 2023년 07월 19일 |
| 무상증자 신주상장 예정일 | 2023년 07월 19일 |
| 주1) | 무상증자 신주의 수는 현재까지 발행한 주식의 총수에서 자기주식을 제외한 유통주식수에 금번 유무상증자 이사회 결의시 결의한 유상증자 주식수를 더한 주식수에 0.3을 곱한 주식수입니다.(1주 미만 절사) |
| 주2) | 무상증자 신주 수는 주식매수선택권 행사, 자기주식수 변동, 단수주, 일반공모 실권주 발생 등에 의하여 변동될 수 있습니다. |
2. 공모방법
| [공모방법: 일반공모] |
| 모 집 대 상 | 주 수(%) | 비 고 |
|---|---|---|
| 일 반 모 집 | 1,500,000주(100%) | 청약일: 2023년 06월 19일 ~ 2023년 06월 20일 |
| 주 주 배 정 | - | - |
| 기 타(우리사주 등) | - | - |
| 합 계 | 1,500,000주(100%) | - |
| 주1) | 본 건 유상증자는 '자본시장과 금융투자업에 관한 법률' 제165조의6 및 당사의 정관에 의거하여 일반공모방식으로 이루어집니다. 따라서, 금번 유상증자는 주주의 신주인수권을 배제하고 공모주식 전체를 일반에게 공개모집합니다. |
| 주2) | 우리사주조합원에 대한 신주 우선배정은 없습니다.(해당사항 없음) |
| 주3) | '증권인수업무등에관한규정' 제9조 제2항 제3호에 따라 고위험고수익투자신탁에 전체 일반공모 주식수의 5% 이상을 배정합니다. 또한 '증권인수업무등에관한규정' 제9조 제2항 제4호에 의거하여 벤처기업투자신탁에 전체 일반공모 주식수의 30%를 배정하되, 벤처기업투자신탁에 배정하는 금액은 '증권인수업무등에관한규정' 제9조 제8항에 따라 해당 벤처기업투자신탁의 자산총액의 100분의 10 이내가 되도록 합니다. 이 경우, 자산총액은 고위험고수익투자신탁, 벤처기업투자신탁을 운용하는 기관투자자가 제출한 자료를 기준으로 산정합니다. 나머지 65%에 해당하는 주식은 개인청약자 및 기관투자자에게 구분없이 배정합니다. 또한, 고위험고수익투자신탁 배정분(전체 일반공모 주식수의 5%)과 벤처기업투자신탁 배정분(전체 일반공모 주식수의 30%), 개인 및 법인투자자 배정분(전체 일반공모 주식수의 65%)에 대한 청약경쟁률과 최종 배정은 청약자 유형군별로 별도 산출 및 배정합니다. 다만, 한 그룹만 청약미달이 발생할 경우, 청약미달에 해당하는 주식은 청약초과 그룹에 배정합니다. |
| 주4) | '증권인수업무등에관한규정' 제9조 제2항 제3호, 제9조 제2항 제6호, 제9조 제7항에 따라 고위험고수익투자신탁에 배정하는 주식은 해당 고위험고수익투자신탁의 자산총액의 100분의 20 이내(공모의 방법으로 설정 또는 설립된 고수익고위험투자신탁은 100분의 10)가 되도록 합니다. |
| 주5) | '증권인수업무등에관한규정' 제9조 제2항 제4호, 제9조 제2항 제6호에 따라 벤처기업투자신탁에 배정하는 주식은 '증권인수업무등에관한규정' 제9조 제8항에 따라 해당 벤처기업투자신탁의 자산총액의 100분의 10 이내가 되도록 합니다. 이 경우 자산총액은 고위험고수익투자신탁, 벤처기업투자신탁을 운용하는 기관투자자가 제출한 자료를 기준으로 산정합니다. |
| 주6) | 금번 증자는 일반공모방식으로 진행되며 일반공모 후 발생하는 미청약주식에 대해서는 미발행 처리합니다. |
| 주7) |
'자본시장법과금융투자업에관한법률' 제180조의4 및 동법 시행령 제208조의4제1항에 의거, 2023년 05월 26일부터 2023년 06월 14일까지 당사의 주식을 공매도 하거나 공매도 주문을 위탁한 자는 금번 모집(매출)에 청약할 수 없으며, 이를 위반하여 주식을 취득할 경우 동법 제429조의3제2항에 따라 과징금이 부과될 수 있습니다. 다만, 모집(매출)가액의 공정한 가격형성을 저해하지 않는 경우로서 동법 시행령 제208조의4제2항 및 금융투자업규정 제6-34조에 해당할 경우에는 예외적으로 주식 취득이 허용됩니다. ※ 예외적으로 모집(매출)에 따른 주식 취득이 허용되는 경우 ① 모집(매출)에 따른 주식 취득이 금지되는 공매도 거래 기간 중에 전체 공매도 주문수량보다 많은 수량의 주식을 가격경쟁에 의한 거래 방식으로 매수한 경우 (매매계약 체결일 기준으로 정규시장의 매매거래시간에 매수한 경우로 한정) ② 한국거래소의 증권시장업무규정 또는 파생상품시장업무규정에서 정한 유동성 공급 및 시장조성 목적을 위해 해당 주식을 공매도하거나 공매도 주문을 위탁한 경우 ③ 동일한 법인 내에서 모집(매출)에 따른 주식 취득 참여가 금지되는 공매도 거래 기간 중 공매도를 하지 않거나 공매도 주문을 위탁하지 않은 독립거래단위*가 모집(매출)에 따른 주식을 취득하는 경우 * 금융투자업규정 제6-30조 제5항에 따라 의사결정이 독립적이고 상이한 증권계좌를 사용하는 등의 요건을 갖춘 거래단위 |
3. 공모가격 결정방법
■ 모집(예정)가액
당사는 금번 유상증자의 1주당 예정발행가액을 "증권의 발행 및 공시 등에 관한 규정 " 제5-16조 및 제5-18조의 일반공모 방식으로 유상증자를 하는 경우의 발행가액 산정 방식을 준용하여 25%의 할인율을 적용한가액으로 산정합니다.
모집(예정)가액은 최초 이사회결의일(2023년 05월 25일) 직전거래일인 2023년 05월 24일을 기산일로 하여 산출하며, 기산일로부터 과거 제3거래일부터 제5거래일까지의 가중산술평균주가(총 거래대금 ÷ 총 거래량)를 기준주가로 하여 할인율 25%를 적용하여 산정합니다. 산정한 가액이 액면가액 이하일 경우에는 액면가액을 예정 발행가액으로 하며, 호가단위 미만은 호가단위로 절상합니다.
■ 확정발행가액 산정
확정발행가액은 "증권의 발행 및 공시등에 관한 규정" 5-18조(유상증자의 발행가액 결정)의 산출근거에 의거, 청약일전 과거 제3거래일부터 제5거래일까지의 가중산술평균주가를 기준주가로 하여 할인율 25%를 적용하여 산정합니다. 따라서 일반공모 청약 초일 전 과거 제3거래일부터 제5거래일까지의 가중산술평균주가를 기준주가로 하여 25%의 할인율을 적용한 확정발행가액을 산출하여 금융위원회(금융감독원) 전자공시시스템에 공시할 예정이며, 회사의 인터넷 홈페이지(http://www.ggumbi-company.com)에 게재하여 개별통지에 갈음할 예정입니다. 산정한 가액이 액면가액 이하일 경우에는 액면가액을 확정발행가액으로 하며, 호가단위 미만은 호가단위로 절상합니다. 확정발행가액은 2023년 06월 14일 결정되어, 익영업일 금융감독원 전자공시시스템(http://dart.fss.or.kr)에 공시될 예정입니다.
4. 모집 또는 매출절차 등에 관한 사항
가. 모집 또는 매출 조건
| 항 목 | 내 용 | ||||||||||||||||||||||||||||
|---|---|---|---|---|---|---|---|---|---|---|---|---|---|---|---|---|---|---|---|---|---|---|---|---|---|---|---|---|---|
| 모집 또는 매출주식의 수 | 기명식 보통주 1,500,000주 | ||||||||||||||||||||||||||||
| 주당 모집가액 또는 매출가액 |
예정가액 | 13,460원 | |||||||||||||||||||||||||||
| 확정가액 | - | ||||||||||||||||||||||||||||
| 모집총액 또는 매출총액 | 예정가액 | 20,190,000,000원 | |||||||||||||||||||||||||||
| 확정가액 | - | ||||||||||||||||||||||||||||
| 청 약 단 위 |
일반공모의 최소 청약 단위는 100주로 하며, 다음과 같이 결정하였습니다. 단, 일반공모 청약자의 청약한도는 "일반공모 배정분"의 100% 범위 내로 하며, 청약한도를 초과하는 부분에 대해서는 청약이 없는 것으로 봅니다.
|
||||||||||||||||||||||||||||
| 일반공모 청약기일 |
개시일 | 2023년 06월 19일 | |||||||||||||||||||||||||||
| 종료일 | 2023년 06월 20일 | ||||||||||||||||||||||||||||
| 청약증거금 | 주당 모집가액의 100% | ||||||||||||||||||||||||||||
| 납입기일 | 2023년 06월 22일 | ||||||||||||||||||||||||||||
| 배당기산일(결산일) | 2023년 01월 01일 | ||||||||||||||||||||||||||||
| 주1) | 본 증권신고서는 금융감독원에서 심사하는 과정에서 정정요구 등 조치를 취할 수 있으며, 만약 정정요구 등이 발생할 경우에는 동 신고서에 기재된 일정이 변경될 수 있습니다. |
| 주2) | 본 증권신고서의 효력발생은 증권신고서의 기재사항이 진실 또는 정확하다는 것을 인정하거나, 정부가 이 증권의 가치를 보증 또는 승인한 것이 아니므로 본 증권에 대한 투자는 전적으로 주주 및 투자자에게 귀속됩니다. |
나. 모집 또는 매출의 절차
(1) 공고의 일자 및 방법
| 구분 | 일자 | 공고 방법 |
|---|---|---|
| 모집가액 확정 공고 | 2023년 06월 15일 | 전자공시시스템 (http://dart.fss.or.kr) 당사 인터넷 홈페이지 (http://www.ggumbi-company.com) |
| 청약 공고 | 2023년 06월 19일 | 유진투자증권 홈페이지 (http://www.eugenefn.com) 당사 인터넷 홈페이지 (http://www.ggumbi-company.com) |
| 배정 공고 | 2023년 06월 22일 | 유진투자증권 홈페이지 (http://www.eugenefn.com) |
| 주1) | 모집가액 확정 공시는 발행가액 확정기준일인 청약일전 3거래일(2023년 06월 14일)에 결정되어, 직후 거래일에 금융감독원 전자공시스템(http://dart.fss.or.kr)에 공시합니다. |
| 주2) | 청약결과 초과청약금 환불에 대한 통지는 유진투자증권(주) 홈페이지에 게시함으로써 개별통지에 갈음합니다. |
(2) 청약 방법
① 해당 청약사무취급처에서 사전에 정하여 공시하는 청약방법에 따라 청약사무취급처에 실명확인증표와 청약서, 청약증거금을 제시하고 청약합니다. 단, 청약증거금은 청약금액의 100%로 하며, 주금납입일에 납입금으로 대체하되, 청약증거금에 대해서는 무이자로 합니다. 한개의 청약처에서 이중청약은 불가능하며, 집합투자기구 중 운용주체가 다른 집합투자기구를 제외한 청약자의 한 개의 청약처에 대한 복수청약은 불가능합니다.
② 고위험고수익투자신탁, 벤처기업투자신탁은 청약 시, 청약사무 취급처에 '증권 인수업무 등에 관한 규정' 제2조 제18호, 제19호, 제20호 및 제9조 제7항, 제8항, 제9항에 따른 요건을 충족함을 확약하는 서류 및 자산총액이 기재되어 있는 서류를 함께 제출하여야 합니다.
③ 본 유상증자에 청약하고자 하는 투자자('자본시장과금융투자업에관한법률' 제 9조 제 5항에 규정된 전문투자자 및 '자본시장과금융투자업에관한법률시행령' 제 132조에 따라 투자설명서의 교부가 면제되는 자 제외)는 청약 전 반드시 투자설명서를 교부 받아야 하고, 이를 확인하는 서류에 서명 또는 기명날인하여야 합니다.
④ '자본시장과 금융투자업에 관한 법률' 제180조의4 및 동법 시행령 제208조의4제1항에 따라 2023년 05월 26일부터 2023년 06월 14일까지 공매도를 하거나 공매도 주문을 위탁한 자는 금번 모집(매출)에 청약할 수 없으며, 이를 위반하여 주식을 취득할 경우 동법 제429조의3제2항에 따라 과징금이 부과될 수 있습니다. 다만, 모집(매출)가액의 공정한 가격형성을 저해하지 않는 경우로서 동법 시행령 제208조의4제2항 및 금융투자업규정 제6-34조에 해당할 경우에는 예외적으로 주식 취득이 허용됩니다.
|
※ 예외적으로 모집(매출)에 따른 주식 취득이 허용되는 경우 ① 모집(매출)에 따른 주식 취득이 금지되는 공매도 거래 기간 중에 전체 공매도 주문수량보다 많은 수량의 주식을 가격경쟁에 의한 거래 방식으로 매수한 경우 (매매계약 체결일 기준으로 정규시장의 매매거래시간에 매수한 경우로 한정) ② 한국거래소의 증권시장업무규정 또는 파생상품시장업무규정에서 정한 유동성 공급 및 시장조성 목적을 위해 해당 주식을 공매도하거나 공매도 주문을 위탁한 경우 ③ 동일한 법인 내에서 모집(매출)에 따른 주식 취득 참여가 금지되는 공매도 거래 기간 중 공매도를 하지 않거나 공매도 주문을 위탁하지 않은 독립거래단위*가 모집(매출)에 따른 주식을 취득하는 경우 *금융투자업규정 제6-30조 제5항에 따라 의사결정이 독립적이고 상이한 |
(3) 청약 취급처
- 유진투자증권(주)의 본/지점, HTS, MTS, 홈페이지 등
(4) 청약결과 배정방법
① '증권인수업무등에관한규정' 제9조 제2항 제3호 내지 제4호에 의거하여, 고위험고수익투자신탁 총 배정분은 전체 일반공모주식수의 5% 이상을 배정하기로 합니다. 또한 일반공모 배정분 중 30% 이상을 벤처기업투자신탁에 배정하고, 증권 인수업무 등에 관한 규정 제9조 제2항 제4호, 제6호에 따라 벤처기업투자신탁에 배정하는 주식은 '증권인수업무등에관한규정' 제9조 제8항에 따라 해당 벤처기업투자신탁의 자산총액의 100분의 10이내가 되도록 합니다. 이 경우 자산총액은 해당 고위험고수익투자신탁, 벤처기업투자신탁을 운용하는 기관투자자가 제출한 자료를 기준으로 산정합니다. 이를 제외한 나머지 일반공모 주식은 개인청약자 및 기관투자자에게 구분 없이 배정합니다. 고위험고수익투자신탁에 대한 공모주식 5%, 벤처기업투자신탁 30%와 개인투자자 및 기관투자자에 대한 공모주식 65%에 대한 청약경쟁률은 별도로 산출 및 배정합니다. 다만, 한 그룹만 청약미달이 발생할 경우, 청약미달에 해당하는 주식은 청약초과 그룹에 배정합니다.
② 일반공모 청약결과 일반공모 총 청약자의 청약주식수가 공모주식수를 초과하는 경우에는 청약경쟁률에 따라 5사6입을 원칙으로 안분 배정하여 잔여주식이 최소화되도록 합니다. 이후 최종 잔여주식은 최대청약자부터 순차적으로 우선 배정하되, 동순위 최대청약자가 최종 잔여 주식보다 많은 경우에는 대표주관회사가 무작위 추첨방식을 통하여 배정합니다.
③ 일반공모 청약 결과 일반공모 총 청약 주식수가 일반공모 주식수에 미달하는 경우에는 청약주식대로 배정하며, 배정 결과 발생하는 잔여주식은 미발행 처리합니다.
(5) 투자설명서 교부에 관한 사항
① '자본시장과 금융투자업에 관한 법률' 제124조에 의거, 본 주식의 청약에 대한 투자설명서 교부 의무는 대표주관회사인 유진투자증권(주)가 부담하며, 금번 유상증자의 청약에 참여하시는 투자자께서는 투자설명서를 의무적으로 교부받으셔야 합니다.
② 금번 유상증자에 청약하고자 하는 투자자(동법 제9조 제5항에 규정된 전문투자자 및 동법 시행령 제132조에 따라 투자설명서의 교부가 면제되는자 제외)께서는 청약하시기 전, 본 투자설명서의 교부에 대한 확인 등의 절차를 수행하지 아니하면, 금번 유상증자의 청약에 참여하실 수 없음에 유의하시기 바랍니다.
③ 투자설명서 수령 거부 의사 표시는 서면, 전화, 전신, 모사전송, 전자우편 및 이와 비슷한 전자통신, 그리고 그밖에 금융위원회가 정하여 고시하는 방법으로만 가능합니다.
| 자본시장과 금융투자업에 관한 법률 |
|---|
| 제9조 (그 밖의 용어의 정의) ⑤ 이 법에서 "전문투자자"란 금융투자상품에 관한 전문성 구비 여부, 소유자산규모 등에 비추어 투자에 따른 위험감수능력이 있는 투자자로서 다음 각 호의 어느 하나에 해당하는 자를 말한다. 다만, 전문투자자 중 대통령령으로 정하는 자가 일반투자자와 같은 대우를 받겠다는 의사를 금융투자업자에게 서면으로 통지하는 경우 금융투자업자는 정당한 사유가 있는 경우를 제외하고는 이에 동의하여야 하며, 금융투자업자가 동의한 경우에는 해당 투자자는 일반투자자로 본다. 1. 국가 2. 한국은행 3. 대통령령으로 정하는 금융기관 4. 주권상장법인. 다만, 금융투자업자와 장외파생상품 거래를 하는 경우에는 전문투자자와 같은 대우를 받겠다는 의사를 금융투자업자에게 서면으로 통지하는 경우에 한한다. 5. 그 밖에 대통령령으로 정하는 자 제124조 (정당한 투자설명서의 사용) ① 누구든지 증권신고의 효력이 발생한 증권을 취득하고자 하는 자(전문투자자, 그 밖에 대통령령으로 정하는 자를 제외한다)에게 제123조에 적합한 투자설명서(집합투자증권의 경우 투자자가 제123조에 따른 투자설명서의 교부를 별도로 요청하지 아니하는 경우에는 제2항제3호에 따른 간이투자설명서를 말한다. 이하 이 항 및 제132조에서 같다)를 미리 교부하지 아니하면 그 증권을 취득하게 하거나 매도하여서는 아니 된다. 이 경우 투자설명서가 제436조에 따른 전자문서의 방법에 따르는 때에는 다음 각 호의 요건을 모두 충족하는 때에 이를 교부한 것으로 본다. 1. 전자문서에 의하여 투자설명서를 받는 것을 전자문서를 받을 자(이하 “전자문서수신자”라 한다)가 동의할 것 2. 전자문서수신자가 전자문서를 받을 전자전달매체의 종류와 장소를 지정할 것 3. 전자문서수신자가 그 전자문서를 받은 사실이 확인될 것 4. 전자문서의 내용이 서면에 의한 투자설명서의 내용과 동일할 것 |
| 자본시장과 금융투자업에 관한 법률 시행령 |
|---|
|
제11조 (증권의 모집·매출) ① 법 제9조제7항 및 제9항에 따라 50인을 산출하는 경우에는 청약의 권유를 하는 날 이전 6개월 이내에 해당 증권과 같은 종류의 증권에 대하여 모집이나 매출에 의하지 아니하고 청약의 권유를 받은 자를 합산한다. 다만, 다음 각 호의 어느 하나에 해당하는 자는 합산 대상자에서 제외한다. 1. 다음 각 목의 어느 하나에 해당하는 전문가 가. 전문투자자 나. 삭제 다. 「공인회계사법」에 따른 회계법인 라. 신용평가회사(법 제335조의3에 따라 신용평가업인가를 받은 자를 말한다. 이하 같다) 마. 발행인에게 회계, 자문 등의 용역을 제공하고 있는 공인회계사ㆍ감정인ㆍ변호사ㆍ변리사ㆍ세무사 등 공인된 자격증을 가지고 있는 자 바. 그 밖에 발행인의 재무상황이나 사업내용 등을 잘 알 수 있는 전문가로서 금융위원회가 정하여 고시하는 자 제132조(투자설명서의 교부가 면제되는 자) 1. 제11조제1항제1호다목부터 바목까지 및 같은 항 제2호 각 목의 어느 하나에 해당하는 자 1의2. 제11조제2항제2호 및 제3호에 해당하는 자 2. 투자설명서를 받기를 거부한다는 의사를 서면, 전화ㆍ전신ㆍ팩스, 전자우편 및 이와 비슷한 전자통신, 그 밖에 금융위원회가 정하여 고시하는 방법으로 표시한 자 3. 이미 취득한 것과 같은 집합투자증권을 계속하여 추가로 취득하려는 자. 다만, 해당 집합투자증권의 투자설명서의 내용이 직전에 교부한 투자설명서의 내용과 같은 경우만 해당한다. |
④ 투자설명서 교부방법 및 일시
| 구분 | 교부방법 | 교부일시 |
|---|---|---|
| 일반 청약자 |
1),2)를 병행 1) 유진투자증권(주) 본,지점에서 교부 2) 유진투자증권(주) 홈페이지나 HTS, MTS 등에서 교부 |
1) 유진투자증권(주) 본,지점 : 청약종료일(2023년 06월 20일)까지 2) 유진투자증권(주) 홈페이지, HTS, MTS 등 : 청약종료일 (2023년 06월 20일)까지 |
| 주) | 본 투자설명서의 교부에 대한 확인 등의 절차를 수행하지 아니하면, 금번 유상증자의 청약에 참여하실 수 없음에 유의하시기 바랍니다. |
⑤ 투자설명서 수령 확인 절차
- 지점 방문을 통한 투자설명서 수령 시: 직접 투자설명서 교부 확인서를 작성하시고 청약을 진행하시기 바랍니다.
- 홈페이지, HTS, MTS를 통한 투자설명서 수령 시: 청약화면에 추가된 투자설명서 다운로드 및 투자설명서 교부 확인에 체크가 선행되어야 청약업무 진행이 가능합니다.
(6) 주권 교부에 관한 사항
- 주권유통개시(예정)일: 2023년 07월 06일
(2019년 09월 16일 전자증권제도가 시행됨에 따라 실물 주권의 교부 없이 각 주주의 계좌로 상장일에 주식이 전자등록발행되어 입고되며, 상장일부터 유통됩니다. 단, 유관기관과의 업무 협의 과정에서 상기 일정은 변경될 수 있음을 유의하시기 바랍니다.)
(7) 청약증거금의 대체 및 반환 등에 관한 사항
① 청약증거금은 청약금액의 100%로 하고, 주금 납입기일에 주금 납입으로 대체하며, 청약증거금에 대해서는 무이자로 합니다.
② 초과청약증거금의 환불통지는 2023년 06월 22일 청약취급처인 유진투자증권(주) 홈페이지(http://www.eugenefn.com)에 공시함으로써 개별통지에 갈음합니다.
③ 청약증거금 환불일 : 2023년 06월 22일
(8) 주금납입장소: KB국민은행 광교상현역지점
다. 기타 모집 또는 매출에 관한 사항
(1) 본 증권신고서는 공시심사과정에서 일부내용이 정정될 수 있으며, 투자판단과 밀접하게 연관된 주요 내용의 변경시에는 본 신고서상의 일정에 차질을 가져올 수 있습니다. 또한, 관계기관과의 업무진행 과정에서 일정이 변경될 수도 있으므로 투자자께서는 이 점 감안하시기 바랍니다.
(2) '자본시장과 금융투자업에 관한 법률' 제120조 3항에 의거 본 증권신고서의 효력의 발생은 증권신고서의 기재사항이 진실 또는 정확하다는 것을 인정하거나, 정부가 이 증권의 가치를 보증 또는 승인한 것이 아니므로 본 증권에 대한 투자는 전적으로 주주 및 투자자에게 귀속됩니다.
(3) 청약자가 '금융실명거래및비밀보장에관한법률'에 의거, 실명에 의하여 청약하지 아니한 경우에는 이를 무효처리합니다.
(4) 금융감독원 전자공시 홈페이지(http://dart.fss.or.kr)에는 당사의 사업보고서, 반기보고서, 분기보고서 및 감사보고서 등 기타 정기공시사항과 수시공시사항 등이 전자공시되어 있사오니 투자의사를 결정하시는 데 참조하시기 바랍니다.
5. 인수 등에 관한 사항
유진투자증권(주)은 금번 (주)꿈비 일반공모 유상증자의 모집주선회사이며, 투자중개업자로서 타인의 계산으로 증권의 발행ㆍ인수에 대한 청약의 권유, 청약, 청약의 승낙을 영업으로 하게 되며, 자본시장법상 증권의 인수업무를 수행하지 않습니다.
II. 증권의 주요 권리내용
당사가 금번 일반공모 유상증자를 통하여 발행할 증권은 기명식 보통주이며, 동 증권의 주요 권리내용은 다음과 같습니다.
1. 주식에 관한 사항
|
제5조 (회사가 발행할 주식의 총수) 당 회사가 발행할 주식의 총수는 50,000,000주로 한다. 제6조 (1주의 금액) 당 회사가 발행하는 주식 1주의 금액은 금 100원으로 한다. 제7조 (회사의 설립시에 발행하는 주식 총수) 당 회사는 설립시에 5,000주의 주식(1주의 금액 10,000원 기준)을 발행하기로 한다. 제8조 (주식 및 주권의 종류) ① 회사가 발행할 회사의 주식은 보통주식과 종류주식으로 한다. ② 회사의 주권은 1주권, 5주권, 10주권, 50주권, 100주권, 500주권, 1,000주권, 10,000주권의 8종으로 한다. 다만, 「주식·사채 등의 전자등록에 관한 법률」에 따라 전자등록계좌부에 주식등을 전자등록하는 경우에는 동 항은 적용하지 않는다. ③ 회사가 발행하는 종류주식은 이익배당 또는 잔여재산분배에 관한 우선주식, 의결권 배제 또는 제한에 관한 주식, 상환주식, 전환주식 및 이들의 전부 또는 일부를 혼합한 주식으로 한다. |
2. 신주인수권에 관한 사항
|
제10조 (신주인수권) ① 이 회사의 주주는 신주발행에 있어서 그가 소유한 주식 수에 비례하여 신주의 배정을 받을 권리를 가진다. ② 제1항의 규정에도 불구하고 다음 각 호의 경우에는 주주 외의 자에게 신주를 배정할 수 있다. 1. 발행주식 총수의 100분의 50을 초과하니 않는 범위 내에서 「자본시장과 금융투자업에 관한 법률」 제 165조의 6의 규정에 의하여 이사회의 결의로 일반공모증자 방식으로 신주를 발행하는 경우 2. 「자본시장과 금융투자업에 관한 법률」 제 165조의 6의 규정에 의하여 주식총수의 100분의 20 범위 내에서 우리사주 조합원에게 신주를 우선 배정하는 경우 3. 「상법」 제 542조의 3의 규정에 의하여 주식매수선택권의 행사로 인하여 신주를 발행하는 경우 4. 발행주식 총수의 100분의 30을 초과하지 않는 범위 내에서 긴급한 자금조달을 위하여 국내외 금융기관 또는 기관 투자자에게 신주를 발행하는 경우 5. 발행주식총수의 100분의 30을 초과하지 않는 범위 내에서 사업상 중요한 기술도입, 연구개발, 생산, 판매, 자본제휴를 위하여 그 상대방에게 신주를 발행하는 경우 6. 주권을 유가증권시장에 상장하거나 코스닥시장에 상장하기 위하여 신주를 모집하거나 인수인에게 인수하게 하는 경우 ③ 제2항의 각 호 중 어느 하나의 규정에 의해 신주를 발행할 경우 발행할 주식의 종류와 수 및 발행가격 등은 이사회의 결의로 한다. ④ 주주가 신주인수권의 포기 또는 상실하거나 신주배정에서 단주가 발생하는 경우에 그 처리방법은 이사회의 결의로 정한다. ⑤ 제2항에 따라 주주외의 자에게 신주를 배정하는 경우 상법 제416조 제1호, 제2호, 제2호의2, 제3호 및 제4호에서 정하는 사항을 그 납입기일의 2주 전까지 주주에게 통지하거나 공고하여야 한다. |
3. 의결권에 관한 사항
|
제26조 (결의) 주주의 의결권은 1주마다 1개로 하며, 주주총회의 결의는 법령 또는 정관에 다른 규정이 있는 경우를 제외하고는 출석한 주주의 의결권의 과반수와 발행주식 총수의 4분의 1이상의 수로서 한다. 제27조 (의결권의 대리행사) 주주는 대리인으로 하여금 의결권을 행사할 수 있다. 대리인이 의결권을 행사함에는 표결 전에 그 권한을 증명하는 서면을 의장에게 제출하여야 한다.
회사, 회사와 회사의 자회사 또는 회사의 자회사가 다른 회사의 발행주식 총수의 10분의 1을 초과하는 주식을 가지고 있는 경우 그 다른 회사가 가지고 있는 회사의 주식은 의결권이 없다. 제29조 (의결권의 불통일행사) ① 2 이상의 의결권을 가지고 있는 주주가 의결권을 불통일행사를 하고자 할 때에는 회일의 3일 전에 회사에 대하여 서면 또는 전자문서로 그 뜻과 이유를 통지하여야 한다. ② 회사는 주주의 의결권의 불통일행사를 거부할 수 있다. 그러나 주주가 주식의 신탁을 인수하였거나 기타 타인을 위하여 주식을 가지고 있는 경우에는 그러하지 아니하다. |
4. 배당에 관한 사항
|
제11조 (신주의 동등배당) 회사가 정한 배당기준일 전에 유상증자, 무상증자 및 주식배당에 의하여 발행한 동종 주식에 대하여는 동등 배당한다. 제51조 (이익금의 처분) 회사는 매사업연도의 처분 전 이익잉여금을 다음과 같이 처분한다. 1. 이익준비금 2. 기타의 법정준비금 3. 배당금 4. 임의적립금 5. 기타의 이익잉여금처분액 제52조 (이익 배당) ① 이익의 배당은 금전 또는 금전 외의 재산으로 할 수 있다. ② 이익의 배당을 주식으로 하는 경우 회사가 종류주식을 발행한 때에는 각각 그와 같은 종류의 주식으로 할 수 있다. ③ 제1항의 배당은 제14조 제1항에 따라 정한 날 현재의 주주명부에 기재된 주주 또는 등록된 질권자에게 지급한다. ④ 이익배당은 주주총회의 결의로 정한다. 제53조 (분기 배당) ① 회사는 이사회의 결의로 사업연도 개시일부터 3월, 6월 및 9월이 말일(이하 “분기배당 기준일”이라 한다)의 주주에게 「자본시장과 금융투자업에 관한 법률」 제165조의12에 따라 분기배당을 할 수 있다. ② 제1항의 이사회 결의는 분기배당 기준일 이후 45일 내에 하여야 한다. ③ 분기배당은 직전결산기의 대차대조표상의 순자산액에서 다음 각호의 금액을 공제한 액을 한도로 한다. 1. 직전결산기의 자본금의 액 2. 직전결산기까지 적립된 자본준비금과 이익준비금의 합계액 3. 직전결산기의 정기주주총회에서 이익배당하기로 정한 금액 4. 직전결산기까지 정관의 규정 또는 주주총회의 결의에 의하여 특정목적을 위해 적립한 임의준비금 5. 「상법 시행령」 제19조에서 정한 미실현이익 6. 분기배당에 따라 당해 결산기에 적립하여야 할 이익준비금의 합계액 ④ 제1항의 분기배당은 분기배당 기준일 전에 발행한 주식에 대하여 동등배당한다. ⑤ 제8조의2의 종류주식에 대한 분기배당은 보통주식과 동일한 배당률을 적용한다. |
III. 투자위험요소
| 【투자자 유의사항】 |
|---|
| ■ 본 건 공모주식을 청약하고자 하는 투자자들은 투자결정을 하기 전에 본 공시서류의 다른 기재 부분 뿐만 아니라, 특히 아래에 기재된 「투자위험요소」를 주의깊게 검토한후 이를 고려하여 최종적인 투자판단을 해야 합니다. ■ 당사는 본 공시서류를 통하여 청약 전에 투자자께서 숙지하셔야 하는 부분에 대하여 성실히 기재하고자 노력하고 있습니다. 다만, 당사가 현재 알고 있지 못하거나 중요하지 않다고 판단하여 아래 투자위험요소에 기재하지 않은 사항이라 하더라도 당사의 운영에 중대한 부정적 영향을 미칠 수 있다는 가능성을 배제할 수 없으므로, 투자자는 아래 투자위험요소에 기재된 정보에만 의존하여 투자판단을 해서는 안 되며, 투자자 자신의 독자적이고도 세밀한 판단에 의해야 합니다. 따라서 본 공시서류에 기재된 사항은 투자 판단 시 참고 자료로 활용하실 것을 권고 드리며, 투자자의 투자 판단에 대한 결과는 투자자 본인에게 귀속됩니다. ■ 만일, 아래 기재한 투자위험요소가 실제로 발생하는 경우, 당사의 사업, 재무상태, 기타 영업활동에 중대한 부정적 영향을 미칠 수 있으며, 이에 따라 투자자가 금번 공모과정에서 취득하게 되는 당사 주식의 시장가격이 하락하여 투자금액의 일부 또는 전부를 잃게 될 수도 있음을 유의하시기 바랍니다. ■ 2009년 2월 4일 부로 시행된 「자본시장과 금융투자업에 관한 법률」 제124조에 의거 누구든지 증권신고의 효력이 발생한 증권을 취득하고자 하는 자 (전문투자자, 그밖에 대통령령으로 정하는 자를 제외함) 에게 적합한 투자설명서를 미리 교부하지 아니하면 그 증권을 취득하게 하거나 매도하여서는 안됩니다. 다만, 「자본시장과 금융투자업에 관한 법률 시행령」 제132조에 의거하여 투자설명서를 받기를 거부한다는 의사를 서면으로 표시한 자는 투자설명서의 교부없이 청약이 가능합니다. ■ 당사 재무정보는 한국채택국제회계기준 작성기준에 따라 작성되었으며, 당사의 제10기(2023년) 1분기의 재무제표는 외부감사인의 감사를 받지 않은 재무제표이며, 당사의 제9기(2022년), 제8기(2021년), 제7기(2020년)의 재무제표는 외부감사인의 감사를 받은 재무제표입니다. ■ 본 공시서류의 기재사항은 투자 결정을 위한 참고사항일 뿐이며, 투자에 대한 모든 손익 및 투자책임은 투자자 본인에게 귀속됨을 다시 한 번 말씀드립니다. |
1. 사업위험
당사는 2010년 개인사업자를 설립하여 유아용 놀이방매트, 패브릭 소품의 제조/판매를 시작하였으며, 이후 좀더 체계적이고 고품질 프리미엄 브랜드를 지향하고자 2014년에 ㈜꿈비로 법인 전환하였습니다. 법인 전환 이후 꿈비(GGUMBI), 리코코(LICOCO), 오가닉그라운드(Organic ground), 미미루(MIMIRU), 파미야(FAMIYA) 등의 브랜드를 런칭하여 놀이방 매트 뿐만 아니라 유아용 침구류 및 가구, 스킨케어, 세제, 반려동물 용품 등으로 사업확장을 진행중입니다. 당사는 기존 주력사업 외에도 글로벌 커피브랜드인 G7의 국내총판사업을 진행하는 등, 자체 운영하는 브랜드 중심의 사업에서 벗어나 외국회사의 에이전트 사업을 진행하는 등 사업다각화를 통해 매출 다변화를 진행하고 있습니다.
당사가 운영 및 총판 중인 주요 브랜드 현황은 다음과 같습니다.
|
브랜드 |
특징 |
|
꿈비 |
- '꿈꾸는 베이비'의 줄임말로 2015년 01월 런칭 - 범퍼침대, 베이비룸, 원목거실 가구 등 유아 거실 가구를 주력 제품으로 판매 |
|
미미루 |
- 북유럽 신화에 기록된 지혜의 샘 수호신인 거인 '미미르'의 이름을 따온 브랜드로 2015년 06월 런칭 - 알러지케어 기능성 아기 침구, 베개, 낮잠이불 아기 침구를 판매 |
|
리코코 |
- 독일어로 '사랑'을 뜻하는 'Liebe'와 아이가 다쳤을 때 아프지 말라고 입으로 호호 불어주는 소리를 뜻하는 순우리말 '코코'를 결합하여 탄생한 프리미엄 놀이방매트 브랜드 |
|
파미야 |
- '가족'이란 뜻의 FAMILY에서 따온 이름으로 내 가족인 반려동물과 안전한 생활을 할 수 있도록 돕는 브랜드로 2019년 07월 런칭 - 반려동물과 교감을 더 많이 하고 반려동물의 권리를 보호할 수 있는 제품으로, 강아지계단, 강아지매트 등을 판매 |
|
오가닉그라운드 (Organic ground) |
- 자연 성분과 유기농 인증 성분을 담은 유아 화장품 브랜드 - 2019년 5월 런칭, 글로벌 6대 안심인증 획득 |
|
소브 |
- 아이를 사랑하는 엄마아빠의 부드러운 마음을 담아 지은 SOFT LOVE의 줄임말로 2021년 08월 런칭 - 중저가의 폴더매트, 셀프시공 롤매트, 퍼즐매트 등 판매 |
|
바바디토 |
- 아이를 뜻하는 BABA와 ~과같다를 뜻하는 DITTO의 합성어 - 아이와 같은 순수함을 담은 프리미엄 감성 세제 브랜드 - 2021년 10월 런칭한 세탁세제, 주방세제 등을 판매 |
|
G7 |
- 베트남의 유명 커피 생산업체인 쭝웬(Trung Nguyen)에서 런칭한 커피 브랜드 - 값싸고 편리하게 커피를 마실 수 있는 인스턴트 커피라는 점에서 국내외 인기있는 커피브랜드 중 하나임 |
당사의 최근 3개년도 품목별 매출액 현황은 다음과 같습니다.
| [품목별 매출 현황] |
| (K-IFRS, 연결) | (단위 : 백만원) |
| 매출유형 | 품 목 | 2023년 1분기 | 2022년 | 2021년 | 2020년 | |||||
| 금액 | 비율 | 금액 | 비율 | 금액 | 비율 | 금액 | 비율 | |||
| 제품 |
유아가구 (가구,매트,베이비룸 외) |
내 수 | 2,597 | 37.84% | 12,748 | 46.90% | 14,116 | 67.55% | 12,004 | 64.89% |
| 수 출 | 232 | 3.39% | 4,415 | 16.24% | 3,150 | 15.07% | 4,224 | 22.83% | ||
| 소 계 | 2,829 | 41.23% | 17,163 | 63.14% | 17,266 | 82.63% | 16,228 | 87.72% | ||
|
유아용 스킨케어 세제 외 |
내 수 | 556 | 8.10% | 1,730 | 6.36% | 915 | 4.38% | 348 | 1.88% | |
| 수 출 | - | - | 10 | 0.04% | 9 | 0.04% | 8 | 0.04% | ||
| 소 계 | 556 | 8.10% | 1,740 | 6.40% | 924 | 4.42% | 356 | 1.92% | ||
| 반려동물용품, 패브릭 외 | 내 수 | 114 | 1.66% | 1,225 | 4.51% | 1,020 | 4.88% | 989 | 5.35% | |
| 수 출 | 11 | 0.16% | 126 | 0.46% | 100 | 0.48% | 116 | 0.63% | ||
| 소 계 | 125 | 1.82% | 1,351 | 4.97% | 1,120 | 5.36% | 1,105 | 5.97% | ||
| 상품 | G7 커피, 반려동물용품 외 | 내 수 | 3,044 | 44.37% | 5,712 | 21.01% | 86 | 0.41% | 32 | 0.17% |
| 수 출 | 2 | 0.03% | - | - | - | - | - | - | ||
| 소 계 | 3,047 | 44.40% | 5,712 | 21.01% | 86 | 0.41% | 32 | 0.17% | ||
| 용역 | 배송 외 | 내 수 | 305 | 4.45% | 1,216 | 4.47% | 1500 | 7.18% | 778 | 4.21% |
| 수 출 | - | - | - | - | - | - | - | - | ||
| 소 계 | 305 | 4.45% | 1,216 | 4.47% | 1500 | 7.18% | 778 | 4.21% | ||
| 합 계 | 내 수 | 6,616 | 96.42% | 22,631 | 83.26% | 17,637 | 84.40% | 14,151 | 76.50% | |
| 수 출 | 246 | 3.58% | 4,551 | 16.74% | 3,259 | 15.60% | 4,348 | 23.50% | ||
| 합 계 | 6,862 | 100.00% | 27,182 | 100.00% | 20,896 | 100.00% | 18,499 | 100.00% | ||
| 출처 : 당사 정기보고서 주1) 제품 매출에는 배송비 매출이 포함되어 있습니다. |
| [주요 용어설명] |
|
용어 |
설명 |
|
고관여 |
관여도는 재화나 서비스를 구매할 때 소비자가 정보 탐색에 시간과 노력을 기울이는 정도로, 고관여는 소비자가 구매 전 많은시간과 노력을 기울여 정보 탐색을 적극적으로 수행하는 것을 의미 |
|
락인효과 |
특정 제품이나 서비스를 이용하기 시작하면 새로운 제품이나 서비스가 출시되어도 소비전환을 하지 않고 기존의 것을 계속해서 이용하는 것으로, 고객 이탈을 방지하고 지속적으로 제품과 서비스를 이용하게 만드는 효과 |
|
리텐션 |
특정기간 동안 브랜드의 제품과 서비스를 장기적으로 이용하는고객의 수로, 신규 고객을 유입시키기 보다는 기존에 보유하고 있는 고객 유지율을 증가시켜 매출을 극대화하는 마케팅 기법 |
|
온라인 직접 판매 |
제조사가 중간 유통단계를 제거하고 온라인몰 등에서 소비자에게 직접 제품을 판매하는 방식 |
|
임율 |
시간당 지급되는 노무비(인건비) 금액으로, 총 지급 노무비(인건비)를 작업시간으로 나누어서 산출함 |
|
팬덤 마케팅 |
고객을 브랜드의 팬으로 만드는 마케팅 전략으로, 고객과 브랜드 사이에 끈끈한 유대 관계를 형성함으로써 충성 고객을 확보하는 전략 |
|
폴리에틸렌 |
플라스틱의 일종으로 인체에 무해한 플라스틱 재질임.주로 투명 필름, 페트병, 시트, 포장재 등에 사용되며, 가공이 용이하고안전한 소재로 놀이방 매트에도 많이 적용됨 |
|
저밀도 폴리에틸렌 |
폴리에틸렌을 밀도에 따라 분류한 한 종류로, 상온에서 투명한 고체이며 가공이 쉽고 유연하여 투명한 비닐이나 필름, 코팅용 등으로 사용됨. |
|
폴리우레탄 |
우레탄 결합을 주요 구성요소로 가지는 고분자 화합물로 내마모성, 내용제성 등이 우수하여 탄성 섬유, 도료, 합성 피혁 원료등에 사용됨 |
|
폴리염화비닐 |
비닐 고분자의 하나로 방수 기능이 있어 장화, 우비, 비치백, 장판 등에 많이 쓰이는 재질 |
|
주문자상표부착생산 |
유통망을 확보한 주문업체에서 생산 시설을 확보한 제조업체에자사에서 요구하는 제품을 제조하도록 위탁하여 생산하고, 완성된 제품을 주문자의 브랜드로 판매하는 방식 |
|
제조업자 개발 생산 |
단순 생산만 진행하는 OEM 방식과는 달리 주문업체가 제조업체에 제품의 생산을 위탁하면 제조업체는 해당 제품을 개발 및 생산하여 주문업체에 공급하고 주문업체는 동 제품을 유통/판매하는 방식 |
|
SKU |
상품관리나 재고관리를 위한 최소 분류 단위 |
|
가. 대외요인(COVID-19, 우크라이나-러시아 전쟁 등)에 의해 세계경제와 금융시장의 불확실성이 확대될 위험 |
2019년 12월 중국 후베이성 우한시에서 발생한 신종 코로나 바이러스 감염증(이하 'COVID-19')은 급성 호흡기 질환의 일종으로, 감염 확산세가 전세계적으로 확대되면서 세계경제는 지역, 산업을 막론하고 전방위적인 충격을 받았으며 이에 따라 세계 경제성장률은 2020년 -3.2%으로 크게 위축되었습니다.
2023년 04월 국제통화기금(IMF)이 발표한 세계경제전망에 따르면 2022년은 COVID-19의 영향 및 긴축적 통화ㆍ재정정책과 더불어 우크라이나-러시아 전쟁으로 인해 글로벌 공급망 훼손되었고 인플레이션이 상승하였습니다. 이에 따라 세계 경제성장률은 2022년 3.4%로 추정하고 있고, 2023년과 2024년에는 각각 2.8%, 3.0%로 전망하는 등, 직전 전망 대비 경제성장률 전망치가 낮아졌으며 향후 2년간 세계 경제 성장률이 2022년 수준을 상회하지못할 것으로 예상하고 있습니다. 다만, 주요 선진국 및 신흥개도국의 2023년 경제 성장률 전망치는 직전 예상치보다 상승하였는데, 금리인상, 인플레이션 상승 및 러시아ㆍ우크라이나 전쟁으로 세계경제 변동성이 확대되는 상황속에서 선진국 중심의 견조한 소비세와 중국 리오프닝 경제성장률 추정에 반영되었기 때문입니다.
| [글로벌 경제 성장률 전망] |
| (단위 : %, %p) |
| 구분 | 2022년 | 2023년 전망 | 2024년 전망 | 직전 전망과의 차이 | |
| 2023년 | 2024년 | ||||
| 세계 | 3.4 | 2.8 | 3.0 | -0.1 | -0.1 |
| 선진국 | 2.7 | 1.3 | 1.4 | 0.1 | 0.0 |
| 미국 | 2.1 | 1.6 | 1.1 | 0.2 | 0.1 |
| 유로존 | 3.5 | 0.8 | 1.4 | 0.1 | -0.2 |
| 일본 | 1.1 | 1.3 | 1.0 | -0.5 | 0.1 |
| 영국 | 4.0 | -0.3 | 1.0 | 0.3 | 0.1 |
| 캐나다 | 3.4 | 1.5 | 1.5 | 0.0 | 0.0 |
| 신흥개도국 | 4.0 | 3.9 | 4.2 | -0.1 | 0.0 |
| 중국 | 3.0 | 5.2 | 4.5 | 0.0 | 0.0 |
| 인도 | 6.8 | 5.9 | 6.3 | -0.2 | -0.5 |
| 러시아 | -2.1 | 0.7 | 1.3 | 0.4 | -0.8 |
| 브라질 | 2.9 | 0.9 | 1.5 | -0.3 | 0.0 |
| 멕시코 | 3.1 | 1.8 | 1.6 | 0.1 | 0.0 |
| 사우디아라비아 | 8.7 | 3.1 | 3.1 | 0.5 | -0.3 |
| 한국 | 2.6 | 1.5 | 2.4 | -0.2 | -0.2 |
| 출처 : 2023년 04월 IMF 세계경제전망(WEO Update April 2023, IMF |
또한, 한국은행이 2023년 02월에 발표한 '경제전망보고서'에 따르면, 국내 GDP는 2022년에 2.6%의 성장률를 기록하였으며 최근 국내외 여건변화 등을 감안할 때 2023년 1.6%, 2023년에는 2.4% 수준을 나타낼 것으로 예상됩니다. 국내 경제는 주요국 경기 동반 부진 등으로 잠재수준을 하회하는 성장 흐름이 이어지나 2023년 하반기 이후 대외 불확실성이 줄어들면서 부진이 점차 완화될 전망입니다.
| [한국은행 국내 경제성장 전망] |
| (단위 : %) |
| 구분 | 2022년 | 2023년(E) | 2024년(E) | ||||
| 상반 | 하반 | 연간 | 상반 | 하반 | 연간 | 연간 | |
| GDP | 3.0% | 2.2% | 2.6% | 1.1% | 2.0% | 1.6% | 2.4% |
| 민간소비 | 4.1% | 4.6% | 4.4% | 3.3% | 1.3% | 2.3% | 2.4% |
| 설비투자 | -6.4% | 5.4% | -0.7% | 3.2% | -8.9% | -3.1% | 3.6% |
| 지적재산생산물투자 | 4.6% | 5.0% | 4.8% | 3.6% | 3.5% | 3.5% | 3.5% |
| 건설투자 | -4.5% | -2.6% | -3.5% | 0.1% | -1.5% | -0.7% | 0.4% |
| 상품수출 | 6.0% | 0.3% | 3.1% | -4.0% | 5.0% | 0.5% | 3.4% |
| 상품수입 | 5.% | 3.9% | 4.6% | -0.4% | -0.1% | -0.2% | 3.1% |
| 출처 : 한국은행 경제전망보고서, 2023.02 |
2023년 04월 미국은 COVID-19로 인한 국가비상사태 해제를 선포하였고, 중국은 제로코로나 정책에서 벗어나 위드코로나로 전환하였으며 국내에서도 실내외 마스크 착용 의무화를해제하는 등 전 세계적으로 코로나로 인한 경제ㆍ사회적인 부정적 영향에서 조금씩 벗어나고 있습니다. 그러나, 이러한 노력에도 불구하고 COVID-19의 재확산 가능성을 완전히 배제할 수 없으며 변이 바이러스는 지속적으로 생성되고 있는 등, 변이 바이러스의 확산으로 인한 코로나 대유행 사태가 다시 발생하는 변수가 생길 수 있습니다.
또한, 최근 미국 연방준비은행의 긴축적인 통화정책 기조에 따라 경기침체 가능성이 높아지고 있으며, 실제로 미 연준의 3월 정례회의 회의록에 따르면 2023년 하반기부터 완만한 경기침체가 시작될 것이라는 정례회의 인사들의 언급이 있었습니다. 추가적으로 우크라이나-러시아 전쟁 심화와 전쟁 확전에 따른 지정학적 위험 확대는 글로벌 공급망의 추가적인 손상을 야기하여 실물ㆍ금융 경제변동성을 높일 가능성이 있습니다.
당사가 주력으로 영위하는 유아용 매트 및 가구 사업은 소매유통업으로 사업의 특성상 가계의 소득 및 구매력과 밀접한 연관이 있으며, 경기변동에 민감한 편입니다. 최근 인플레이션 조절을 위해서 금리가 상승하고 있고 향후 추가 상승 가능성이 존재하며 앞서 언급한우크라이나-러시아 전쟁 확전에 따른 지정학적 위험의 증가는 금융시장에 부정적인 영향을 줄 가능성이 높습니다. 이러한 대외 충격들로 인해 금융시장이 급격히 변동할 경우 공모 이후 당사의 주가 역시 급격한 변동성을 보일 가능성이 존재합니다. 투자자께서는 이 점 유의하시기 바랍니다.
| 나. 출산율 저하에 따른 산업 축소 위험 대한민국의 경우 1980년대 중반 이후 지속적으로 국내 출산률이 저하되고 있는 추세입니다. 2002년부터 2016년까지 15년간 40만명대를 유지하던 출생아 수는 2017년 30만명대로 떨어졌고, 2020년에는 20만명대로 진입했습니다. 인구 1천명당 출생아 수를 뜻하는 조(粗)출생률은 5.3명으로 역대 최저치를 기록하였으며, 이는 OECD 중 최저 수준입니다. 또한 최근 대한민국의 혼인건수가 역대 최저로 떨어졌고, 반대로 초혼 연령은 역대 최고를 기록했습니다. 통계청이 발표한 ‘2022년 혼인ㆍ이혼 통계’에 따르면, 2022년 혼인건수는 19만2000건으로 2021년 보다 8000건(0.4%) 감소했습니다. 인구 1천명당 혼인건수인 조혼인율은 3.7건으로, 혼인건수와 조혼인율은 관련 통계 작성이 시작된 1970년 이후 가장 낮은 수준입니다. 맞벌이 가구의 증가 및 초혼연령 증가로 부부합산소득은 증가한 사회적 구조에 기인하여 최근 5년간 유아용품 산업이 지속적으로 성장 한 바 있습니다. 하지만 또 다시 사회 구조적인 변화가 이루어지거나 지속적으로 출생아 수가 절대적으로 감소하는 경우, 수요 감소로 인해 당사가 영위하고 있는 유아용품 산업 시장 자체의 성장이 둔화될 수 있으니 투자자께서는 이 점 유의하시기 바랍니다. |
글로벌 유아용품 산업은 가계 소득의 확대로 인한 구매자의 소비력 확대, 콘텐츠의 확장 등에 따라 제품의 고급화ㆍ전문화가 일어나고 있으며 산업은 더욱 성장하고 있습니다. Research and markets에 따르면 글로벌 유아용품 시장은 2022년 126억 달러에서 2030년 197억달러로 연평균 5.8%의 견조한 성장세를 보일 것으로 전망하고 있습니다.
| [글로벌 유아용품 시장 규모] |
![]() |
|
global markets for baby products |
| 출처 : Research and Markets |
반면에 대한민국의 경우 1980년대 중반 이후 지속적으로 국내 출산률이 저하되고 있는 추세입니다. 2002년부터 2016년까지 15년간 40만명대를 유지하던 출생아 수는 2017년 30만명대로 떨어졌고, 2020년에는 20만명대로 진입했습니다. 인구 1천명당 출생아 수를 뜻하는 조(粗)출생률은 5.3명으로 역대 최저치를 기록하였으며, 이는 OECD 중 최저 수준입니다.
또한 최근 대한민국의 혼인건수가 역대 최저로 떨어졌고, 반대로 초혼 연령은 역대 최고를 기록했습니다. 통계청이 발표한 ‘2022년 혼인ㆍ이혼 통계’에 따르면, 2022년 혼인건수는 19만2000건으로 2021년 보다 8000건(0.4%) 감소했습니다. 인구 1천명당 혼인건수인 조혼인율은 3.7건으로, 혼인건수와 조혼인율은 관련 통계 작성이 시작된 1970년 이후 가장 낮은 수준입니다.
2022년의 평균 초혼 연령은 남자가 33.7세, 여자가 31.3세로, 이는 통계 작성 이후 가장 높은 수준입니다. 혼인 건수 감소와 초혼 연령 증가로 인하여 향후 대한민국의 출산율 하락은 더욱 가속될 것으로 판단됩니다. 혼인이 줄면 출생아도 감소할 가능성이 높고, 초혼 연령이 올라가면 아이를 낳을 수 있는 기간도 짧아지기 때문입니다.
| [전국 출생아수 및 합계출산율] |
| 여자 1명당 명) |
|
구분 |
2015년 |
2016년 |
2017년 |
2018년 |
2019년 |
2020년 |
2021년 |
2022년 |
|---|---|---|---|---|---|---|---|---|
|
출생아수 |
438.0 |
406.2 |
357.8 |
326.8 |
302.7 |
272.4 |
265.0 |
249.0 |
|
합계 출산율 |
1.239 |
1.172 |
1.052 |
0.977 |
0.918 |
0.837 |
0.808 |
0.78 |
| 출처 : 통계청 |
| [전국 출생아수 및 합계출산율] |
| (단위 : 천명, 가임여자 1명당 명) |
![]() |
|
통계청_혼인건수및조혼인율_2022 |
| 출처 : 통계청 |
| [성별 평균 초혼연령 추이] |
![]() |
|
성별 평균 초혼연령 (2002~2022) |
| 출처 : 통계청 |
통계청에 따르면 혼인연령이 늦춰지며 신혼부부 가구인 혼인 1년차에서 혼인 5년차의 연평균소득은 2015년부터 2021년 모든 구간에서 감소세 없이 꾸준히 증가하여, 지난 6년간 연평균 4% 중후반의 성장률을 보였습니다. 신혼부부가구의 평균소득이 높아짐과 동시에 자녀에 대한 투자를 아끼지 않는 경향으로 국내 유아용품 산업은 2015년 2조 4천억원 규모에서 2020년 4조원대 시장으로 꾸준히 성장한것으로 당사는 추산하고 있습니다.
| [국내 출생아 수 대비 유아용품 시장규모 현황(2015년 ~ 2020년)] |
![]() |
|
국내 출생아 수 대비 유아용품 시장규모 현황 |
| 출처 : 당사 제시 |
| [신혼부부 혼인연차별 연평균소득] |
| (단위 : 만원) |
|
구 분 |
2015년 |
2016년 |
2017년 |
2018년 |
2019년 |
2020년 |
2021년 |
연평균 |
|
혼인 1년차 |
4,950 |
5,131 |
5,370 |
5,639 |
5,867 |
6,175 |
6,582 |
4.86% |
|
혼인 2년차 |
4,694 |
4,873 |
5,127 |
5,353 |
5,596 |
5,773 |
6,304 |
5.04% |
|
혼인 3년차 |
4,685 |
4,897 |
5,125 |
5,555 |
5,601 |
5,859 |
6,122 |
4.56% |
|
혼인 4년차 |
4,884 |
5,032 |
5,301 |
5,398 |
5,627 |
5,983 |
6,515 |
4.92% |
|
혼인 5년차 |
4,976 |
5,263 |
5,459 |
5,577 |
5,843 |
6,151 |
6,487 |
4.52% |
| 출처 : 통계청 |
맞벌이 가구의 증가 및 초혼연령 증가로 부부합산소득은 증가한 사회적 구조에 기인하여 최근 5년간 유아용품 산업이 지속적으로 성장한 바 있습니다. 하지만 또 다시 사회 구조적인 변화가 이루어지거나 지속적으로 출생아 수가 절대적으로 감소하는 경우, 수요 감소로 인해 당사가 영위하고 있는 유아용품 산업 시장 자체의 성장이 둔화될 수 있으니 투자자께서는 이 점 유의하시기 바랍니다.
|
다. 규제 강화에 따른 위험 다만, 당사가 사업에 대한 지속적인 관리 부실 및 부진한 기술개발 등의 요인으로 관련 기준에 부합하지 못한 제품을 생산하였을 경우 브랜드 신뢰도가 하락되고 당사의 영업환경에 부정적인 영향을 미칠 수 있습니다. 또한, 어린이 제품과 관련한 신규규정 적용을 위해 기존 생산시설 변경 및 신규 생산시설을 설치할 경우 예상치 못한 비용의 소요로 당사의 수익성이 악화시킬 수 있으니, 투자자께서는 이 점 유의하시기 바랍니다. |
최근 어린이 제품과 관련하여 안전성 이슈가 되는 제품사고의 지속적인 발생으로 영유아 및 어린이 안전에 대한 사회적 관심이 증가하고 있습니다. 유아용 제품의 경우 새로운 제품의 계속적 출시 및 유통 신종 유해화학물질 출현, 각종 신소재 및 아이디어가 접목된 융복합 기술을 응용한 어린이제품의 출시는 어린이 안전 사고로 이어질 수 있어 어린이 제품에 대한 안전규제 수위가 강화되고 있습니다. 특히, 당사가 영위하는 어린이 제품(유아용품) 산업은 유명 콘텐츠 관련 상품과 트렌드에 민감한 제품이 많아 생활용품 대비 신규 인증의 취득이 빈번하며 안전기준을 확보하고 관리하는 역량이 더욱 중요해지고 있습니다.
| [어린이 제품 관련 규정] |
|
구분 |
내용 |
|
어린이제품안전특별법 |
만 13세 이하의 어린이가 사용하기 위하여 제조 또는 유통되는 어린이제품의 안전에 관한 기본적인 사항을 규정 |
|
환경보건법 |
어린이용품에서의 유해물질 관리에 관한 규정 |
|
화장품법 |
만5세 미만 어린이가 개봉하기 어렵게 안전용기 및 포장을 의무화 |
|
화장품 안전기준 등에 관한 규정 |
3세 이하 어린이에게 사용이 금지되는 원료 규정 |
|
식품위생법 |
어린이용품 제조시 내분비계 교란물질 사용을 제한 |
어린이 제품과 관련하여 과거 다양한 법률에서 규제하고 있었으나, 어린이 제품을 단독으로 규제하는 법률은 전무하였습니다. 다양한 어린이 제품이 출시되고 신종 화학 물질 출현 등에 따라 어린이 안전을 확보하기 위하여 2015년 6월 '어린이 제품 안전 특별법'이 시행되면서 2016년 '제1차 어린이 제품 안전관리 기본계획(2016~2018)' 등 어린이 관련 정책이 발표되었고, 현재 '제3차 어린이 제품 안전관리 기본계획(2022~2024)' 발표로 관련 정책은 점차 구체화되고 있습니다.
| [어린이 제품 관련 법ㆍ정책 시행 현황] |
| 일자 | 내용 |
| 2015년 6월 4일 | 어린이 제품 안전 특별법 시행 |
| 2016년 3월 4일 | 제1차 어린이 제품 안전관리 기본계획 공고 |
| 2019년 12월 5일 | 제2차 어린이 제품 안전관리 기본계획 공고 |
| 2022년 1월 20일 | 제3차 어린이 제품 안전관리 기본계획 공고 |
| 출처: 제3차 어린이제품 안전관리 기본계획('2022년~2024년) |
| 중점추진과제 | 세부내용 |
| 1. 어린이 제품 안전사고 예방 | 1. 사고 저감 중심 안전기준 강화 |
| 2. 안전 관리대상 확대 | |
| 3. 인증제품 유통 강화 | |
| 2. 불법ㆍ불량 어린이제품 근절 | 1. 유통 관리체계 확립 |
| 2. 위해품목 집중 단속 | |
| 3. 유통 취약채널 관리 | |
| 3. 기업ㆍ소비자 지원 강화 | 1. 자발적 안전관리 강화 |
| 2. 기업 지원 확대 | |
| 3. 소비자 안전문화 확산 | |
| 4. 안전관리 인프라 확충 | 1. 디지털 기반 안전관리 체계 구축 |
| 2. 시험인증 역량 강화 | |
| 3. 어린이제품안전센터 설립 |
특히, 어린이 제품 안전 특별법 시행 이후 부적합 비율은 2019년 10.9%에서 2021년 5.7%로 감소하였으며, 안전사고 발생 건수도 2015년 25,152건에서 2021년 15,871건으로 감소하는 추세로 전환되어 관련 법령 및 정책은 지속적으로 운영될 것으로 예상됩니다.
| [어린이 안전사고 현황] |
| (단위 : 건) |
| 구분 | 2014년 | 2015년 | 2016년 | 2017년 | 2018년 | 2019년 | 2020년 | 2021년 |
| 전체 안전사고 건수 | 67,037 | 68,002 | 69,018 | 71,000 | 72,013 | 73,007 | 70,022 | 74,000 |
| 어린이 안전사고 건수 | 27,381 | 25,152 | 22,545 | 25,699 | 24,097 | 24,971 | 18,494 | 15,871 |
| 전년대비 증감율 | - | -8.1% | -10.4% | 14.0% | -6.2% | 3.6% | -25.9% | -14.2% |
| 어린이 안전사고 비율 | 40.8% | 37.0% | 32.7% | 36.2% | 33.5% | 34.2% | 26.4% | 21.4% |
| 관련 정책 | - | 어린이 제품 안전 특별법 시행('15.06~) | ||||||
| - | 제1차 어린이제품 안전관리 기본계획('16~'18) | 제2차 어린이제품 안전관리 기본계획('19~'21) | ||||||
| 출처 : 산업통상자원부, 제3차 어린이제품 안전관리 기본계획, 2022.01 |
| 주) 어린이 안전사고 비율은 전체 안전사고 중에서 어린이 안전사고가 차지하는 비율을 의미합니다. |
어린이 제품 안전 특별법 시행규칙에서 안전확인대상으로 규정한 어린이제품은 총 16가지가 있으며, 그 중 합성수지제 어린이제품은 어린이용 침대가드, 바닥 매트 등을 포함하고 있습니다.
|
법률 |
대상 |
|
어린이 제품 안전특별법 '안전확인대상 어린이 제품 종류' |
유아용 섬유제품, 합성수지제 어린이 제품, 어린이용 스포츠 보호용품, 어린이용 스케이트보드, 아동용 이단침대, 완구, 유아용 삼륜차, 유아용 의자, 어린이용 자전거, 학융품, 보행기, 유모차, 유아용 침대, 어린이용 온열팩, 유아용 캐리어, 어린이용 스포츠용 구명복 |
바닥매트는 방 안에서 일정 면적의 바닥위에 놓고 사용하는 합성수지 재질로 만들어진 제품을 말하며, 외장재와 관계없이 내장재가 합성수지인 제품도 포함됩니다. 일반적으로 유아용 매트는 걸음마단계의 영유아의 부상을 방지하고 가정 내 어린이의 활동 소음 저감을 위해 사용되고 있으며, 유해물질에 대한 안전기준에 따라 제조되어야 합니다.
| [유아용 매트 안전기준] |
|
구분 |
상세기준 설명 |
|
겉모양 |
1. 모양이 바르고, 찌그러짐, 비틀림 등의 변형이 없고 균형이 잡혀 있어야 함. 2. 색상은 선명하고 색 얼룩이 없고 균일하여야 하며, 변색이 없어야 함. 3. 눈에 띄는 홈, 조각 등 상처가 없어야 함. 4. 도장은 이중칠, 불순물, 들뜸이 없어야 함. 5. 인쇄 및 표시는 선명해야 함. 6. 때, 거칠음, 먼지 등이 없이 끝손질이 양호하여야 함. 7. 터짐, 잔금이 없고, 가소제 및 착색제의 우러나옴이 없어야 함. 8. 정서를 심히 해할 우려가 없어야 함. (※ 정서를 심히 해할 우려라 함은 인체의 피와 유사한 물질 등을 사용하는 등에 따른 혐오감을 유발할 수 있거나 선정적 형상 및 우리나라 전통미풍 관습에 저해되는 정도가 큰 것을 말함.) |
|
작은 부품 |
1. 36개월 미만의 어린이를 사용대상으로 하는 바닥매트와 분리되는 부품은 안전확인 안전기준에 따라 시험한 결과 어떤 방향에서도 작은 부품 원통 안에 완전히 들어가서는 안됨. 2. 36개월 이상의 어린이를 사용대상으로 하는 바탁매트와 분리되는 부품은 안전확인 안전기준에 따라 시험한 결과 작은 부품 실린더 안에 완전히 들어가면 경고 문구를 표시하여야 함. |
|
가장자리 |
바닥매트에 있는 접근할 수 있는 가장자리, 모서리, 또는 성형부분에는 안전확인 안전기준에 따라 시험했을 때 거스러미와 플래시로 인한 위해한 날카로운 가장자리가 있어서는 안 됨. 그렇지 않다면 위해한 날카로운 가장자리에 접근할 수 없도록 보호 장치가 되어 있어야 함. |
|
날카로운 끝 |
바닥매트의 접근할 수 있는 끝에 대하여 안전확인 안전기준에 따라 시험했을 때 위해한 날카로운 끝이 없어야 함. |
|
돌출부 |
잠재적으로 피부를 찌를 위해의 우려가 있는 돌출부는 철사의 끝을 접거나 매끈하게 가공된 보호 뚜껑 또는 덮개를 부착하는 것과 같이 피부와의 접촉면적을 효과적으로 증가시킬 수 있는 적절한 수단으로 보호되어 있어야 함. 이 보호 뚜껑 또는 덮개는 안전확인 안전기준에 따라 시험했을 때 분리되지 않아야함. |
|
자석과 자석부품 |
“어린이제품 공통안전기준”에 따른 시험 전·후 50 kG2mm2(0.5 T2mm2) 미만이거나, 작은 부품이 아니어야 함. (단, 전기 또는 전자부품의 기능자석에는 적용하지 않음.) |
| 출처 : 어린이제품 안전특별법 시행규칙 |
| [유아용 매트 유해물질 안전기준] |
|
구분 |
유해물질명 |
기준 |
비고 |
|
유해 중금속 등 |
안티모니 |
60mg/kg 이하 |
- |
|
비소 |
25mg/kg 이하 |
- |
|
|
바륨 |
1,000mg/kg 이하 |
- |
|
|
카드뮴 |
75mg/kg 이하 |
총 카드뮴 75mg/kg 이하 |
|
|
크로뮴 |
60mg/kg 이하 |
- |
|
|
납 |
90mg/kg 이하 |
총 납 300mg/kg 이하 |
|
|
수은 |
60mg/kg 이하 |
- |
|
|
셀레늄 |
500mg/kg 이하 |
- |
|
|
DEHP, DBP, BBP, DINP, DIDP, DnOP |
총 함유량 0.1% 이하 |
- |
|
|
DBT(dibutyltin) |
1.0mg/kg 이하 |
- |
|
|
TBT(tributyltin) |
0.5mg/kg 이하 |
- |
|
|
휘발성 |
톨루엔 |
1.40mg/(m2/h) 이하 |
- |
|
폼아마이드 |
0.20mg/(m2/h) 이하 |
- |
|
|
N,N-다이메틸폼아마이드 |
0.40mg/(m2/h) 이하 |
- |
|
|
2-에틸헥소익 에시드 |
0.25mg/(m2/h) 이하 |
- |
|
|
부틸하이드록시톨루엔 |
0.50mg/(m2/h) 이하 |
- |
|
|
2-메톡시에탄올 |
0.30mg/(m2/h) 이하 |
- |
|
|
폼알데하이드 |
0.05mg/(m2/h) 이하 |
- |
| 출처 : 어린이제품 안전특별법 시행규칙 |
또한 그간 안전기준은 유해물질 관리 등 화학적 요인에 집중하였으나, 실제 안전사고는 대부분 물리적 요인에 의해 발생함에 따라 정부는 '제3차 어린이제품 안전관리 기본계획'에 따라 물리적 안전기준 개정을 준비중입니다. 특히 바닥매트의 경우 미끄러짐 사고가 빈번히 발생함에 따라 관련 사고에 대한 위해성 평가를 통해 사고 저감 및 재발 방지를 위한 기준이 정비될 예정입니다.
당사의 주력 제품인 유아용 매트는 현재로서는 산업 관련 각종 인증 및 테스트를 통과한 제품이나, 추후 안전기준 변동으로 인하여 혹은 당사가 예상하지 못한 사유로 인하여 생산중인 제품이 안전기준에 부합하지 못하는 사유가 발생한 경우, 당사의 평판 및 수익성에 부정적인 영향을 미칠 수 있습니다.
| [주요 제품 관련 각종 산업 표준] |
|
구분 |
인증일 |
인증내용 |
인증기관 |
비고 |
|
ASTM |
2015.07.06 |
미국 소비자 안전인증 |
SGS |
폴더매트 |
|
SGS 테스트 |
2019.02.25 |
유럽 안전인증 |
SGS |
폴더매트 |
|
KC |
2015~2022 |
한국 유아/어린이 안전확인 인증 |
KCL, KATRI, |
모든 제품 |
|
소음 테스트 |
2016~2022 |
한국 경량충격음, 중량충격음 소음테스트 |
KCL, 한국소음인증 |
폴더매트, PVC매트, 셀프시공매트, |
|
항균도 |
2020~2022 |
한국 항균도 시험 |
FITI |
모든 제품 |
|
유해성검사 |
2015~2022 |
한국 유해성분 시험 |
SGS, KCL, KATRI |
모든 제품 |
|
라돈 |
2018~2022 |
한국 라돈 가스 방출 검사 |
한일원자력 |
매트, 폼, 원단, 매트리스, 내장재 |
|
중국 CCC 인증 |
2022.01.04 |
중국 유아용 매트 안전 인증 |
CVC Certification & Testing Co., ltd. |
폴더매트, PVC매트 |
| 출처 : | 당사 제시 |
어린이 제품과 관련된 각종 규제와 정책은 제품 공급자가 사업을 영위하기 위한 필수 규제이며 해당 기준을 충족하기 위해서 일정 수준 이상의 제조시설과 체계, 기술을 확보하고 있어야 하기 때문에 시장 진입자들에게는 진입장벽으로 작용할 수 있습니다.
당사가 사업에 대한 지속적인 관리 부실 및 부진한 기술개발 등의 요인으로 관련 기준에 부합하지 못한 제품을 생산하였을 경우 브랜드 신뢰도가 하락되고 당사의 영업환경에 부정적인 영향을 미칠 수 있습니다.
또한, 어린이 제품 관련 규제의 지속적인 개정이 있는 경우 당사는 신규규정에 부합하는 제품을 생산해야 합니다. 그런데 신규규정이 기존규정 대비 엄격한 기준을 요구하여 기존의 생산방식을 변경해야 하거나 새로운 생산시설을 추가적으로 설치하는 경우, 제품을 생산하는 과정에서 예상치 못한 비용이 추가적으로 소요 될 수 있으며, 이는 당사의 수익성을 악화시킬 수 있으니, 투자자께서는 이 점 유의하시기 바랍니다.
|
라. 경쟁 심화에 따른 위험 또한 유아용품 산업의 진입장벽에도 불구하고 대기업이 상대적으로 높은 자본력을 바탕으로 해당 시장에 진출할 경우 산업 내 경쟁이 심화될 수 있습니다. 뿐만아니라, 신규 중소업체 경쟁사의 지속적인 진입 및 글로벌 주요 기업의 시장 진입, 경쟁사들의 서비스 단가 인하 등으로 시장 내 경쟁강도가 높아질 경우 당사의 시장 내 경쟁 우위가 약화될 수 있으며 이는 당사의 향후 실적에 부정적인 영향을 미칠 수 있으니, 투자자께서는 이 점 유의하시기 바랍니다. |
유아용품 기업의 매출 구조 특성상 대기업이 진출하기에는 구조적 진입장벽이 있습니다. 특히, 유아매트 시장은 고관여 제품군으로 고객 니즈를 빠르게 반영해야 하는 환경으로 인하여 유명 대기업일지라도 단기간의 브랜딩을 통해 매출을 일으키기는 어렵습니다. 단기간에 성과를 내야하는 대기업의 특성상 브랜딩을 할 수 있는 시간적인 여유가 부족한 점과다양한 구성과 카테고리 확장의 어려움 등이 유아용품 시장에 대기업이 진입하기 힘든 이유입니다.
한 예로 학생가구로 유명한 대기업 가구업체의 유아매트 출시는 2017년 출시 후 3년을 채 버티지 못하고 시장에서 사라졌습니다. 다양한 고객층과 오프라인 매장, 온라인 전문몰까지 갖추었음에도 불구하고 전문성 부족과 고객 니즈를 빠르게 반영하지 못한 이유로 시장에서 자리잡지 못한 것으로 분석하고 있습니다.
따라서 당사의 주력 품목인 놀이방매트 및 유아가구의 경우 유아용 제품에 특화된 중소기업들이 경쟁하고 있으며 경쟁업체들은 각사가 주력으로 영위하는 사업이 특정되어 있어 업체들의 매출규모가 크지 않고, 각 품목별로 시장을 선점한 소수의 업체들이 시장을 점유하고 있는 구조입니다.
| [국내 주요 유아용 가구업체] |
| (단위 : 백만원) |
|
구분 |
꿈비 |
파크론 |
제이월드산업 |
|
주요사업 |
유아용 매트 및 가구 |
매트류 (유아, 펫, 온수매트, 생활, 캠핑 등) |
매트, 베이비룸, |
|
설립연도 |
2014년 |
2006년 |
2010년 |
|
매출액 |
26,910 |
39,873 |
29,724 |
|
영업이익 |
1,139 |
-251 |
1,117 |
|
당기순이익 |
1,318 |
-1,742 |
1,709 |
|
총자산 |
16,021 |
29,473 |
35,802 |
|
총부채 |
7,884 |
17,517 |
26,345 |
|
자기자본 |
8,137 |
11,956 |
9,457 |
| 출처 : 당사 제공 및 금융감독원 전자공시시스템 주) 주요 재무자료는 2022년 별도 재무제표 기준입니다. |
국내의 경우 당사 외 파크론, 제이월드산업 등이 주요 경쟁업체입니다. 파크론은 매트전문기업으로 유아매트 뿐 아니라 반려동물용품, 계절가전, 캠핑 매트를 판매하고 있으며, 주요 제품은 PVC 소재의 롤매트 등으로 다양한 카테고리의 품목을 보유하고 있습니다. 또한 알집매트로 알려진 제이월드산업은 유아매트와 가구(범퍼침대, 베이비룸)를 주력으로 온라인, 홈쇼핑 등을 통해 판매중이며, 주요 제품은 더블제로매트와 PVC 롤매트입니다.
당사는 유아매트 및 유아용 가구 시장의 후발주자로서 이를 극복하기 위하여 지속적인 특허권 취득 및 디자인 개발을 통해 경쟁력을 확보 중 입니다. 하지만 지속적으로 변동하는 고객의 니즈를 빠르게 파악해야 하는 산업의 특성 상, 당사가 개발한 특허권 및 디자인이 시장의 수요를 반영하지 못한다면 당사의 수익성에 부정적인 영향을 미칠 수 있습니다.
| [국내 등록 특허 및 디자인 보유 현황 비교] |
| 구분 | 꿈비 | 제이월드산업 | 파크론 | |||
| 특허권 | 디자인 | 특허권 | 디자인 | 특허권 | 디자인 | |
| 건수 | 14건 | 65건 | 3건 | 12건 | 15건 | 10건 |
|
구분 |
특허권 |
디자인 |
실용신안 |
상표 |
저작권 |
|||||
|
국내 |
해외 |
합계 |
국내 |
해외 |
합계 |
국내 |
국내 |
해외 |
국내 |
|
|
등록 |
14 | 3 | 17 | 65 | 73 | 138 | 1 | 84 | 83 | 1 |
|
출원 |
8 | 17 | 25 | 16 | 7 | 23 | - | 2 | 14 | - |
|
합계 |
22 | 20 | 42 | 81 | 80 | 161 | 1 | 86 | 97 | 1 |
| 주) 경쟁사의 특허권 등은 특허정보검색서비스 키프리스를 통해 자체적으로 조사한 결과이며, 거절, 취하, 소멸, 포기는 제외하였으며 최종 권리자로 등록된 특허/디자인권을 기준으로 기재하였습니다. |
또한 유아용품 산업의 진입장벽에도 불구하고 대기업이 상대적으로 높은 자본력을 바탕으로 해당 시장에 진출할 경우 산업 내 경쟁이 심화될 수 있습니다. 뿐만아니라, 신규 중소업체 경쟁사의 지속적인 진입 및 글로벌 주요 기업의 시장 진입, 경쟁사들의 서비스 단가 인하 등으로 시장 내 경쟁강도가 높아질 경우 당사의 시장 내 경쟁 우위가 약화될 수 있으며 이는 당사의 향후 실적에 부정적인 영향을 미칠 수 있으니, 투자자께서는 이 점 유의하시기 바랍니다.
| 마. 원재료 수급 관련 위험 당사는 주요 제품 중 유아용 매트를 제외하고 모두 외주가공업체에서 원재료까지 조달하여 생산된 제품을 제공하고 있습니다. 주요 원재료의 경우 PE폼, PU원단 등 보편적으로 유통되는 제품으로 원료의 수급자체에는 어려움은 없으나, 최근 3개년간 원재료 가격이 꾸준하게 상승하였으며, 2022년부터 원재료 가격의 상승이 본격적으로 시작되어 2023년 1분기까지 지속되는 경향이 있습니다. 유아 제품 특성상 유해 물질이 검출되지 않거나 기준치 이하인 원재료를 사용해야 한다는 원칙이 있어 당사는 국내에 직접 제조 공장을 확보한 복수의 거래처와 거래를 하고 있으며, 정기적으로 유해 물질 함유에 대해 공인기관의 성적서를 제출받고 있습니다. 또한 원재료는 생산 기간을(원재료 조달 기간 약3주) 고려하여 당사의 생산 계획에 따라 당월에 사용할 원재료 발주를 전월에 진행하여 원활한 생산이 이루어져 적기에 완제품화할 수 있도록 수행하고 있습니다. 하지만, 안정적인 원재료 수급을 위한 당사의 노력에도 불구하고 주요 제품의 원료인 PE폼과 PU원단의 공급처는 특정 소수업체에 집중되어 있는 만큼, 해당 업체들과의 원재료 가격 협상에 있어서 지속적으로 불리한 위치에 있을 가능성이 있고 이로 인해 예상치 못한원가율 상승으로 수익성 악화의 가능성이 있습니다. 특히 PE폼과 PU원단 모두 두 곳의 공급업체를 통해서 100% 조달하는 만큼 공급업체의 담합을 통해 갑작스러운 원재료 가격 인상 요구하는 경우, 당사는 원재료 조달 협상에 있어서 교섭력 열위에 있을 가능성이 높습니다.따라서 당사는 원재료의 높은 공급처 집중도와 일시적인 수급불균형으로 인한 가격변동에 능동적으로 대응하기 어려울 가능성이 높으며 이는당사의 제품 생산과 원가 관리에 부정적인 영향을 미칠 수 있으니, 투자자께서는 이 점 유의하시기 바랍니다. |
당사는 주요 제품 중 유아용 매트를 제외하고 모두 외주가공업체에서 원재료까지 조달하여 생산된 제품을 제공하고 있습니다. 주요 원재료의 경우 PE폼, PU원단 등 보편적으로 유통되는 제품으로 원료의 수급자체에는 어려움은 없으나, 최근 3개년간 원재료 가격이 꾸준하게 상승하였으며, 2022년부터 원재료 가격의 상승이 본격적으로 시작되어 2023년 1분기까지 지속되는 경향이 있습니다.
| [원재료 가격변동추이] |
|
품목 |
2020년 (제7기) |
2021년 (제8기) |
2022년 (제9기) |
2023년 1분기 (제10기) |
||
|
PE 폼 |
천원/Ton |
1,497 |
1,943 |
2,107 |
2,107 | |
|
PU 원단 |
단면 |
원/yd |
3,800 |
3,900 |
4,130 |
4,130 |
|
양면 |
원/yd |
5,468 |
5,578 |
6,035 |
6,035 | |
|
출처 : 당사 제공 |
원재료의 단가 상승요인은 PE폼의 경우 석유화학 제품인 LDPE를 주 원재료로 하는 원료로서 국제 유가 및 에틸렌의 국제 가격에 영향을 받습니다. 따라서 국제 유가가 상승함에 따라 단가 인상에 대한 이슈가 일부 존재하며, 이와 관련하여 당사는 인상 근거 확인 및 협상 진행을 통하여 안정적으로 원재료를 수급하고자 노력하고 있습니다. 특히, 당사는 2020년까지는 특정업체에서 PE폼을 전량 수급하였으나 2021년부터 공급처 한 곳을 더 추가하여 점진적으로 두 공급업체의 PE폼 조달 비율을 50:50으로 유지하고 있습니다. 당사는 이러한 공급처 이원화를 통해 한 공급업체의 갑작스러운 원자재 가격 인상 및 수급 위험에대응하고 있습니다.
| [최근 3년간 PE폼 주요 공급처 비중 추이] |
| 구분 | 2023년 1분기 | 2022년 | 2021년 | 2020년 |
| H사 | 48% | 49% | 87% | 100% |
| J사 | 52% | 51% | 13% | 0% |
| 출처 : 당사 제공 |
또한, PU원단의 경우 국제 원사의 가격과 코팅을 위한 용제(에탄올 등의 석유화학제품)등의 가격에 영향을 받으며, 2021년부터 국제 원사 가격 및 용제 제조용 석유화학 제품류의 단가 인상으로 당사의 PU원단의 가격도 일부 상승되었습니다. PU원단 역시 PE폼과 마찬가지로 복수의 거래처를 통해 공급받고 있으며, 품질(유해 물질 및 유아용품 특성상의 제품 안정성)이 매우 중요하기 때문에 단가 경쟁력을 확보하기 위한 인위적인 거래처 변경은 지양하고 있습니다. 따라서 단가 인상요인이 발생하였을 시 물량의 대폭적인 발주를 통한 인상 억제 요청, 인상 전 재고 확보를 충분히 하여 당사가 받는 impact 최소화 등의 방법을 통해 방어 하고 있습니다. 또한, 반기 또는 분기별로 단가 인하 요청을 통해 인상분에대한 상쇄를 수시 요청하고 있습니다.
| [최근 3년간 PU원단 주요 공급처 비중 추이] |
| 구분 | 2023년 1분기 | 2022년 | 2021년 | 2020년 |
| S사 | 52% | 37% | 30% | 33% |
| I사 | 48% | 63% | 70% | 67% |
| 출처 : 당사 제시 |
유아 제품 특성상 유해 물질이 검출되지 않거나 기준치 이하인 원재료를 사용해야 한다는 원칙이 있어 당사는 국내에 직접 제조 공장을 확보하여 거래를 하고 있으며, 정기적으로 유해 물질 함유에 대해 공인기관의 성적서를 제출받고 있습니다. 또한 원재료는 생산 기간을(원재료 조달 기간 약 3주) 고려하여 당사의 생산 계획에 따라 당월에 사용할 원재료 발주를 전월에 진행하여 원활한 생산이 이루어져 적기에 완제품화 할 수 있도록 수행하고 있습니다.
하지만, 안정적인 원재료 수급을 위한 당사의 노력에도 불구하고 주요 제품의 원료인 PE폼과 PU원단의 공급처는 특정 소수업체에 집중되어 있는 만큼, 해당 업체들과의 원재료 가격 협상에 있어서 지속적으로 불리한 위치에 있을 가능성이 있고 이로 인해 예상치 못한원가율 상승으로 수익성 악화의 가능성이 있습니다.
특히 PE폼과 PU원단 모두 두 곳의 공급업체를 통해서 100% 조달하는 만큼 공급업체의 담합을 통해 갑작스러운 원재료 가격 인상 요구하는 경우, 당사는 원재료 조달 협상에 있어서 교섭력 열위에 있을 가능성이 높습니다. 따라서 당사는 원재료의 높은 공급처 집중도와일시적인 수급불균형으로 인한 가격변동에 능동적으로 대응하기 어려울 가능성이 높으며 이는 당사의 제품생산과 원가 관리에 부정적인 영향을 미칠 수 있으니, 투자자께서는 이 점 유의하시기 바랍니다.
|
바. 외주가공에 따른 위험 |
당사는 설립 시부터 제품 및 브랜드의 기획과 효과적인 마케팅 등에 집중하기 위해 외주 생산업체를 통해 제품을 제조하고 있습니다. 주력 제품군별로 100% 외주가공, OEM 또는 ODM 방식으로 제품군에 따라 그 생산 방식을 달리하고 있으며, 이를 통해 대규모의 설비 투자 없이 높은 매출 증가세를 유지할 수 있었습니다. 또한 같은 제품군에 대해서도 최소한 두 개 이상의 업체에서 생산을 진행함으로써 한 곳에서 제품 생산할 때 발생할 수 있는 품질 하락 이슈 및 제품 생산 위험에 대응하고 있습니다.
당사 주력 제품인 매트류는 원자재를 당사가 직매입하여 외주 가공 업체에 공급하여 외주가공하는 방식으로 생산하고 있으며, 유아가구 중 원목가구 제품은 해외 생산을 통해 OEM 생산으로 공급받고 있습니다. 스킨케어 제품은 국내 업체에서 개발하여 당사가 선별한 제품을 공급받는 ODM 형태로 공급받고 있습니다. 화장품 원료 및 기본 포뮬러의 개발과 생산을 협력업체가 담당하고, 당사에서 고객 요구사항에 맞도록 개발 요청을 진행하여 생산 입고되는 방식입니다.
당사의 최근 3년간 총 제조비용 및 제품 매출액 대비 외주가공비 비중은 다음과 같습니다.
| [최근 3년간 연도별 외주가공비 비중] |
| (단위 : 백만원) |
|
구 분 |
2023년 1분기 |
2022년 1분기 |
2022년 |
2021년 |
2020년 |
|---|---|---|---|---|---|
|
외주가공비 |
1,077 |
2,471 |
7,066 |
7,711 |
5,508 |
|
당기 총 제조비용 대비 비중 |
56.2% |
66.75% |
56.2% |
65.4% |
50.8% |
|
제품 매출액 대비 비중 |
30.7% |
41.90% |
34.9% |
36.9% |
29.8% |
|
외주가공업체 수 |
27사 |
32사 |
50사 |
32사 |
33사 |
| 출처 : 당사 제시 |
2023년 1분기 기준 당사는 27개사를 통하여 외주생산을 진행하고 있으며, 외주가공비로는 1,077백만원을 지출하고 있습니다. 이는 전년 동기 대비 5개사, 1,394백만원 감소한 수준으로, 당사가 개발중인 신제품이 2023년 1분기 중으로 개발 완료될 것을 고려하여 구 제품의 재고 수량을 조절하기 위한 발주량 감소에 따른 영향이며, 추후 신제품 생산이 본격적으로 시작 될 경우 2022년과 유사한 수준의 외주가공업체수를 유지 할 것으로 예상하고 있습니다. 이와 같이 당사의 외주가공비 및 외주가공업체 수의 경우 연간 생산계획, 분기별 생산되는 계절성 제품, 각 제품별 재고 상황 등을 고려하여 변동되고 있습니다.
이러한 외주 생산 기반으로 당사는 아래와 같이 당기 총 제조비용 중 외주가공비가 50% 이상을 점유하고 있으며, 매출 확대 시 외주가공비용의 동반 증가가 예상됩니다.
외주가공비는 제품 사이즈와 제품 난이도, 양면ㆍ단면에 따른 품목별로 단가가 정해집니다. 단가가 한 번 정해지면 거의 인상의 요인이 발생하지 않으나, 매년 인건비의 상승 및 물류비용 등의 증가로 인해 인상 요청이 발생할 수 있습니다.
| [연도별 최저임금 현황] |
| (단위 : 원) |
| 구분 | 2014년 | 2015년 | 2016년 | 2017년 | 2018년 | 2019년 | 2020년 | 2021년 | 2022년 | 2023년 |
| 최저임금 | 5,210 | 5,580 | 6,030 | 6,470 | 7,530 | 8,350 | 8,590 | 8,720 | 9,160 | 9,620 |
| 인상률 | 7.2% | 7.1% | 8.1% | 7.3% | 16.4% | 10.9% | 2.9% | 1.5% | 5.1% | 5.0% |
| 출처 : | 최저임금위원회 |
외주 가공 업체가 단가 인상 요청 시, 당사는 가공 업체에 인건비와 임률, 시간당 생산량, 간접비용 등을 구분하여 검토서 작성을 요청하고 있으며, 이를 바탕으로 검증하고 합당한지를 파악하여 인상의 요인이 합당한 근거에 기인하지 않을 경우 단가 협상을 통해 이의를 제기하여 인상을 억제하고, 인상의 요인이 합당할 경우 당사 원가에 반영하여 각 사업 팀에 공유하고 있습니다.
당사는 설립 초기부터 높은 수준의 품질 관리 정책을 고수하고 있으며 이에 따라 외주처에 대해서도 정기적인 관리를 진행하고 있습니다. 외주처 선정 시부터 외주처의 생산 전문성, 생산 능력, 재무구조 등을 파악하여 업체 선정을 진행하며, 매월 말 기준으로 원부자재 재고 조사를 실시하고 분기별로는 실지 재고조사를 통해 재고 확인증을 발급받고 회계팀과 대사를 실사하며 수시로 수율이나 품질에 대한 관리를 실시하고 있습니다. 당사의 관리 정책에서 벗어날 경우 신규 업체 개발을 통해 외주처를 교체하는 등 생산 효율화 및 원가 관리를 위한 노력을 진행하고 있습니다.
또한, 당사는 외주업체에 절대적으로 의존하는 생산방식을 개선하기 위하여 자체 스마트 공장 신설을 통해 유아용 매트 등 당사 주력 제품 일부를 자체 생산할 계획입니다. 스마트 공장 신설과 관련한 자세한 사항은 "제1부 모집 또는 매출에 관한 사항 - III. 투자위험요소-2. 회사위험-가. 스마트 공장 건립 관련 신규시설 투자 위험"을 참고하시기 바랍니다.
그럼에도 불구하고 당사는 아직까지 OEM/ODM 형태를 통해 제품을 100% 생산하는 만큼외주가공업체에 대한 생산 의존도가 높습니다. 이러한 높은 의존도는 외주가공 업체의 생산능력 저하, 서비스 품질 문제, 과도한 비용 청구로 당사 제품 품질에 영향을 미칠 수 있으며, 가격경쟁력 하락과 같은 위험이 존재합니다. 또한 갑작스러운 대량 주문 등으로 인해 외주업체의 생산능력을 초과할 경우 납기가 지연될 위험성이 존재하며 납기지연으로 인해 발생하는 당사의 신뢰도 저하는 영업활동에 부정적인 영향을 줄 수 있으며, 인건비 상승 및 물류비용 상승에 따라 외주가공비가 인상될 경우 수익성이 하락할 수 있습니다.
| 사. 브랜드 신뢰도 및 평판에 관한 위험 당사가 영위하는 유아용품 산업의 경우 구매자의 제품 구매 기준이 타 제품 대비 높기 때문에 제품의 신뢰도가 매우 중요하며, 브랜드 가치의 유지 및 향상은 이용자 기반 확대, 신규 비즈니스 기회 및 파트너사 확보에 중요한 요소입니다. 신규 이용자 유치를 위해서는 기존 이용자의 만족도 향상이 중요한 요소라고 판단하고 있습니다. 따라서 브랜드 가치를 높이기 위하여 기존 이용자을 통해 지속적으로 피드백을 받아 제품의 기능을 향상시키고, 지속적으로 고객이 필요한 제품을 노출하여 충성도를 높이기 위해 노력하고 있습니다. 그러나 당사가 출시한 제품이 시장에 정상적으로 안착하지 못하거나 고객의 니즈를 제대로 반영하지 못하여 이용자에게 높은 만족도를 주지 못할 수도 있습니다. 당사는 브랜드 가치의 유지 및 향상을 위해 연구개발을 지속하고 고객 클레임 관리, 반품률 관리, 불량률 관리를 통해 제품 품질을 향상시키고자 노력하고 있으나 이러한 사전 조치가 당사가 개발하는 제품 전체에 발생할 수 있는 관리 부실 위험 요인을 차단하는 것으로 판단할 수 없으며 당사가 예상하지 못하는 요인에 의해 브랜드 가치가 훼손될 수 있습니다. 따라서 브랜드 가치를 성공적으로 유지하거나향상시키지 못하는 경우가 발생할 경우 이는 당사 사업, 재무상태 및 영업실적에 부정적인 영향을 미칠 수 있습니다. |
당사는 유아용 매트 및 범퍼 침대 등 유아용 가구를 주력 사업으로 영위하고 있으며 시장에서 상당한 브랜드 인지도를 확보하고 있습니다. 특히, 당사는 기존 매트 구매자를 중심으로 구성된 충성고객을 기반으로 제품 카테고리 확장을 통하여 판매 전환을 유도하고 있습니다. 아이의 성장 단계에 따른 제품군들과 각 제품의 호환성을 통하여 한번 당사의 제품을 구매한 고객을 대상으로 아이의 성장과정에 따라 지속적으로 당사의 제품을 구매할 수 있게 사업전략을 수립 중 입니다.
당사가 영위하는 유아용품 산업의 경우 제품의 사용대상이 영유아이기 때문에 제품의 사소한 특성과 미세한 차이에도 예민할 만큼 제품 구매 기준이 타 제품 대비 높습니다. 이로 인해, 제품의 신뢰도가 매우 중요하고 브랜드 가치의 유지 및 향상은 이용자 기반 확대, 신규 비즈니스 기회 및 파트너사 확보에 중요한 요소입니다. 신규 이용자 유치를 위해서는 기존 이용자의 만족도 향상과 브랜드가치 제고가 중요한 요소라고 판단하고 있습니다. 따라서 기존 이용자들의 불편함을 해소하고 고객의 재구매율을 높여 브랜드가치를 높이기 위해 지속적으로 피드백을 받아 제품의 기능을 향상시키고, 지속적으로 고객이 필요한 제품을 노출하여 충성도를 높이기 위해 노력하고 있습니다.
이를 위해 당사는 설립 초기부터 기본적인 인증 뿐만 아니라 품질 관리 체계를 도입하여 운영중이며 고객 클레임 관리, 반품률 관리, 불량률 관리를 통해 고객 만족도를 제고시키고 있어 반품률 지표는 1% 내외로 유지하고 있는 만큼 상당히 낮은 편입니다.
| [반품률 현황] |
| (단위 : 백만원) |
|
구분 |
2023년 1분기 |
2022년 |
2021년 |
2020년 |
|---|---|---|---|---|
|
판매액(주1) |
4,607 | 19,064 |
17,764 |
14,899 |
|
반품액 |
57 | 201 |
182 |
153 |
|
반품률 |
1.17% | 1.06% |
1.02% |
1.03% |
| 주1) 전산상 판매액으로 회계상 매출액과는 차이가 있으며, 상기 반품률을 기준으로 재무제표상 반품자산회수권 및 환불부채를 계상하였습니다. |
특히, 당사의 CS 센터인 '엄마감동팀'은 말 그대로 고객들의 불편함 또는 문의사항에 대해빠르고 친절하게 대응함으로써 육아에 지친 엄마들에게 제품 만족은 물론 서비스에 대한 감동까지 제공하고 있어 소비자 만족도 조사에서 지속적으로 1위를 차지하며 소비자로부터 인정 받고 있습니다. 빠른 고객 대응을 위해 당사는 인바운드 성공률 96%, 당일 아웃바운드 100% 진행하여 빠르게 고객에게 대응하고 있습니다. 또한 클레임이 발생시 AS를 지체하지 않고 7일이내 빠른 처리로 고객 만족도를 최우선하고 있습니다.
| [소비자만족도 수상 내역] |
|
수상일자 |
수상내역 |
|
2017년 2월 |
'2017 한국소비자만족지수 1위' 유아용품(범퍼침대) 부문 1위 |
|
2018년 1월 |
'2018 한국소비자만족지수 1위' 유아용품(범퍼침대) 부문 1위 |
|
2019년 2월 |
'2019 한국소비자만족지수 1위' 유아용품(놀이방매트) 부문 1위 |
|
2020년 2월 |
'2020 한국소비자만족지수 1위' 유아용품(놀이방매트) 부문 1위 |
|
2021년 2월 |
'2021 한국소비자만족지수 1위' 유아용품(놀이방매트) 부문 1위 |
|
2022년 2월 |
'2022 한국소비자만족지수 1위' 유아용품(놀이방매트) 부문 1위 |
그러나 당사가 출시한 제품이 시장에 정상적으로 안착하지 못하거나 고객의 니즈를 제대로 반영하지 못하여 이용자에게 높은 만족도를 주지 못할 수도 있습니다. 또한, 법률 또는 규제 미준수 및 품질관리 부실 등의 행위는 당사 브랜드 평판에 부정적인 영향을 미칠 수 있습니다.
당사는 브랜드 가치의 유지 및 향상을 위해 연구개발을 지속하고 고객 클레임 관리, 반품률 관리, 불량률 관리를 통해 제품 품질을 향상시키고자 노력하고 있으나 이러한 사전 조치가 당사가 개발하는 제품 전체에 발생할 수 있는 관리 부실 위험 요인을 차단하는 것으로 판단할 수 없으며 당사가 예상하지 못하는 요인에 의해 브랜드 가치가 훼손될 수 있습니다. 따라서 브랜드 가치를 성공적으로 유지하거나 향상시키지 못하는 경우가 발생할 경우 이는 당사 사업, 재무상태 및 영업실적에 부정적인 영향을 미칠 수 있습니다.
|
아. 신규사업 진행에 따른 위험 |
당사는 기존 주력 사업인 유아 용품 개발 및 판매사업 이외에 기존 사업을 통해 확보한 국내 이커머스 시장에서의 신뢰와 CS 시스템, 높은 품질, 팬덤 마케팅, 다양한 영업채널 등을 기반으로 신규로 유통사업에 진출하였습니다. 2022년부터 본격적으로 유통사업을 시작하였으며 현재 G7 커피의 국내 총판 사업을 진행하고 있습니다.
당사의 최근 1년간 전체 매출액 대비 G7 커피 매출액 비중은 다음과 같습니다.
| [최근 3년간 전체 매출액 대비 G7 커피 매출액 비중] |
| (단위 : 백만원, %) |
| 구 분 | 2023년 1분기 | 2022년 1분기 | 2022년 |
|---|---|---|---|
| 전체 매출액 | 6,862 | 6,821 | 27,182 |
| G7 커피 매출액 | 2,781 | 449 | 5,314 |
| 전체 매출액 대비 비중 | 40.53% | 6.59% | 19.55% |
| 출처 : | 당사 제시 |
| 주) | 당사의 G7 커피 매출은 2022년 2월부터 발생되었습니다. |
당사는 2022년 2월부터 G7 커피 매출이 발생하고 있으며, 최근 1년간 G7 커피 매출액은 2022년 53.14억원, 2023년 1분기 27.81억원으로, 전체 매출액 대비 G7 커피 매출액 비중은 2022년 19.55%, 2023년 1분기 40.53% 수준입니다.
G7 커피는 베트남에서 시작되어 현재 한국, 미국, 영국, 프랑스, 독일, 일본, 중국 등 전 세계 80여 개 국가 및 지역에서 판매되고 있는 글로벌 커피 브랜드입니다. G7 커피의 한국지사는 매년 지속 성장을 시현하였으나, 과거 협업을 진행한 기존 유통회사들의 마케팅 및 유통채널 부족 등의 이유로 성장 한계에 직면하게 되었습니다.
특히, G7 커피의 제조사인 쭝웬그룹은 'G7 커피는 싼 커피'라는 국내 인식을 극복하고자 하고 있었습니다. 이를 위해 쭝웬그룹은 이커머스에 특화된 당사의 인프라를 통해 매출 성장과 더불어 G7 커피 브랜드의 프리미엄화를 이끌어 내고자 쭝웬그룹이 먼저 당사와 업무협약을 제안하였고, 2021년 12월 진행하였습니다. 이후 쿠팡을 비롯하여 네이버 스마트 스토어 오픈 등 주요 온라인몰로 입점 확대를 진행 중입니다.
| [G7 계약 이후 진행경과] |
|
일정 |
진행사항 |
| 21년 12월 | 총판 계약 체결 |
| 21년 12월 | 네이버 스마트스토어 오픈 |
| 22년 01월 | 쿠팡 로켓배송 입점 |
| 22년 02월 | 판매 개시 |
| 22년 05월 | 네이버 스마트스토어 쇼핑라이브 진행 |
| 22년 06월 | 보리보리 입점 |
| 22년 09월 | G7 디스트리뷰터 (최공유통) 채널 꿈비 이관 |
| 22년 10월 | 롯데온, 11번가, H몰, SSG, 티몬, NS홈쇼핑, 카카오톡 , VOGO 입점 완료 |
| 22년 11월 | SK stoa, 롯데아이몰, 네이버 빠른배송, 쿠팡 오픈마켓 입점 완료 |
| 23년 01월 | 공식몰 오픈 (선오픈) |
| 23년 02월 | 공식몰 어플리케이션 출시 (구글,애플) |
| 23년 03월 | 공식몰 그랜드오프 / G7 한국사무소 출범 |
| 23년 04월 | 링크몰 (일상의 감동)입점 완료 |
| 출처 : 당사 제시 |
현재 G7 커피의 매출의 경우 쿠팡 등 소수 매출처를 통해서 이루어지고 있으나 자체 판매망을 늘리고 타 매출처로 G7 커피 매출을 늘림으로써 마진율을 개선하고자 노력하고 있습니다. 당사 상품 매출의 90% 이상이 G7 커피에서 비롯하는데, G7 커피 총판 사업을 2022년부터 본격적으로 진행하면서부터 G7 커피 관련 상품 매출액이 증가하고 있으며 당사로의 판매처가 일원화될 경우 매출이 더 증가할 것으로 판단하고 있습니다.
| [당사 매출/매출원가 유형별 상세] | |
| (K-IFRS, 연결) | (단위 : 백만원) |
|
구 분 |
2023년 1분기 |
2022년 1분기 |
2022년 |
2021년 |
2020년 |
|
제품 매출액 |
3,510 | 5,897 | 20,254 | 19,310 | 17,689 |
|
제품 매출원가 (매출원가율) |
2,163 (61.6%) |
3,436 (58.3%) |
11,907 (58.8%) |
11,135 (57.7%) |
10,874 (61.5%) |
| 상품 매출액 | 3,047 | 530 | 5,712 | 86 | 32 |
|
상품 매출원가 (매출원가율) |
2,519 (82.7%) |
358 (67.6%) |
5,072 (88.8%) |
69 (80.2%) |
32 (100.0%) |
|
용역 매출액 |
305 | 393 | 1,216 | 1,501 | 778 |
|
용역 매출원가 (매출원가율) |
301 (98.7%) |
393 (100.0%) |
1,211 (99.6%) |
1,448 (96.5%) |
778 (100.0) |
| 출처 : 당사 정기보고서 및 당사 제시 |
상기한 당사의 신규 사업인 G7 커피 유통사업의 성장 등으로 인하여 상품 매출액 비중이 2020년 0.17%에서 2022년 21.01%로 크게 증가하였습니다. 하지만 상품유통업의 특성상 당사가 영위 중인 유아용 제품 판매보다 매출원가율이 더 높은 편이며, 최근 3년간 상품 매출액이 증가함에 따라 당사의 매출 총이익률이 지속적으로 감소하고 있습니다.당사의 최근 1년간 G7 커피 매출처별 매출원가율 현황은 다음과 같습니다.
| [최근 1년간 G7 커피 매출처별 매출원가율 현황] |
| (단위 : 백만원, %) |
| 매출처 | 구 분 | 2023년 5월 | 2023년 4월 | 2023년 1분기 | 2022년 1분기 | 2022년 |
|---|---|---|---|---|---|---|
| 외부몰 | 매출액 | 878 | 666 | 2,767 | 449 | 5,314 |
| 매출원가 | 754 | 623 | 2,351 | 450 | 4,788 | |
| 매출원가율 | 85.83% | 93.60% | 84.98% | 100.04% | 90.10% | |
| 자사몰 | 매출액 | 9 | 7 | 14 | - | - |
| 매출원가 | 7 | 5 | 15 | - | - | |
| 매출원가율 | 75.35% | 70.93% | 102.96% | - | - | |
| 합 계 | 매출액 | 888 | 673 | 2,781 | 449 | 5,314 |
| 매출원가 | 761 | 628 | 2,366 | 450 | 4,788 | |
| 매출원가율 | 85.72% | 93.38% | 85.08% | 100.04% | 90.10% |
| 출처 : | 당사 제시 |
| 주) | 당사의 G7 커피 매출은 2022년 2월부터 발생되었습니다. |
당사는 2022년 2월부터 G7 커피 매출이 발생하고 있으며, 2022년에는 외부몰, 2023년 1분기부터는 외부몰 및 자사몰을 통해 G7 커피를 판매하고 있습니다. 당사의 G7 커피 매출원가율은 2022년 90.10% 수준에서 2023년 1분기 85.08%로 감소하였는데, 이는 G7 커피 상품을 수입하는 과정에서 2022년 대비 2023년 1분기 원/달러 환율이 하락하여 상품 수입가격, 운반비 등이 감소한 영향입니다.
당사는 2023년 3월, G7 커피 자사몰을 오픈하였으며 2023년 1분기 매출액은 14백만원, 매출원가율은 15백만원으로 매출원가율 102.96%를 기록하였습니다. 자사몰 오픈과 동시에 진행된 할인으로 인해 매출원가율이 일시적으로 100%를 상회하였으나, 2023년 4월 및 5월의 경우에는 정상적으로 판매가 이루어져 매출원가율은 각각 70.93%, 75.35%로 감소하였습니다. 이처럼, 당사는 향후 자사몰을 통한 매출액 확대 및 매출원가율 개선을 계획하고 있으나, 그럼에도 불구하고 자사몰의 매출이 부진하거나, 환율 상승으로 인하여 상품 매입가격이 급등 할 경우, 또는 상품 유통업의 특성으로 인하여 매출원가를 절감하지 못할 경우 당사의 수익성은 신규 사업 추진으로 인하여 지속적으로 악화될 수 있으니 투자자께서는 이 점 유의하시기 바랍니다.
당사는 기 확보한 유통채널, 마케팅 능력 등을 기반으로 사업 확장을 위하여 신규 브랜드 유통에 진입하였고 향후 당사 매출 성장에 기여할 수 있을 것으로 예상됩니다. 그러나 신규 브랜드 런칭은 필연적으로 초기 투자 비용이 발생되기 때문에 단기적으로 재무지표의 악화를 유발할 수 있으며, 해당 사업부가 성공적으로 시장에 안착하지 못할 경우 향후 당사의 재무 상태와 성장성에 부정적인 영향을 미칠 수 있습니다. 특히, G7 커피 중심의 상품 매출의 경우 당사의 매출 비중에서 과거에 비해 많은 비중을 차지하게 된 만큼 G7 커피 수요와 공급에 따라 상품 매출이 크게 변동되어 당사의 매출에 영향을 줄 가능성이 높습니다. 따라서 G7 커피 판매량이 감소하는 경우 당사의 매출이 악화되어 수익성이 낮아지는 위험이 존재합니다.
|
자. 유통채널 확대 및 매출처 편중에 따른 위험 |
최근 인터넷쇼핑몰, 홈쇼핑, 아울렛 등 다양한 형태의 유통 채널 등장으로 유통채널의 확보 및 활용이 중요하게 작용하고 있습니다. 특히, 인터넷 쇼핑몰의 경우 기존 오프라인 쇼핑에 비해 편리한 요소를 갖추고 있어 시장점유율이 높은 편이며, 최근에는 인플루언서를 통한 마케팅 또한 확대되고 있습니다.
이러한 온라인 쇼핑의 확대는 유통업 내 경쟁을 더욱 가속화하여, 유통업체들의 온-오프라인 혼합 서비스 및 상품 판매채널이 다양해지고 온라인 기반의 판매채널이 증가할 것으로 예상됩니다. 당사의 경우 국내는 온라인을 통한 D2C 판매를 기본 정책으로 하고 있으며, 자사몰을 비롯하여 네이버 스마트스토어 및 오픈마켓, 채널(SSG, 롯데쇼핑 등)에 입점하여 소비자 접점을 넓히고 판매를 확대하고 있습니다.
수출의 경우 B2B 판매 구조로 각 국가별 계약을 체결한 총판에게 당사의 제품을 공급하면총판이 유통채널을 통해 최종 고객에게 판매되는 구조입니다. 그 외에도 해외 박람회 및 컨퍼런스 참여 등을 통해 대형 제조사 및 각 국가별 주요 대리점을 발굴하고 추가 교육 등의 협력을 통해 시장 확대를 진행하고 있습니다.
| [주요 매출처별 제품 매출현황] |
| (단위 : 백만원) |
|
매출처 |
2023년 1분기 |
2022년 |
2021년 |
2020년 |
|---|---|---|---|---|
|
자사몰 |
966 | 4,413 |
5,652 |
4,135 |
|
N사 |
1,352 | 7,530 |
4,238 |
2,698 |
|
S사 |
139 | 773 |
1,464 |
816 |
|
L사 |
83 | 500 |
1,217 |
1,307 |
|
C사 |
249 | 1,000 |
908 |
951 |
|
Y사 |
- | 2,656 |
2,336 |
3,086 |
|
K사 |
131 | 736 |
642 |
616 |
|
기타 |
891 | 3,857 | 3,935 | 4,858 |
|
합계 |
3,811 | 21,465 |
20,391 |
18,467 |
| 출처 : | 당사 제시 |
당사는 대부분의 매출이 온라인 판매채널을 통해 발생하고 있으나, 오프라인매장으로 판매채널을 확장하여 매출을 확대할 계획입니다. 유아용품 전문 매장 입점을 시작으로 체험형 쇼룸, 백화점 및 아울렛, 대형마트 등 입점을 계획하고 있으며, 향후 온라인 및 오프라인 상품 구성 및 사양을 세분화하여 마진구조 특화 상품 중심으로 이원화할 계획입니다.
당사의 매출은 자사몰을 통한 발생 비율이 높고 그 외 다양한 종합쇼핑몰로 유통망이 확대되고 있으며 유통망 확대 꾸준히 진행함에 따라 매출처를 다변화함으로써 매출처 편중 위험을 낮추기 위한 노력 중입니다. 또한, 매출처와의 지속적인 거래를 통하여 우호적인 사업관계를 형성함으로써 매출처에서 갑작스럽게 판매수수료를 높이는 등 당사의 수익성을 악화시키는 위험을 줄이고자 노력하고 있습니다.
당사의 매출처 다각화 노력에도 불구하고, 제품 매출에서 자사몰을 통한 매출 비중은 평균적으로 25% 내외인 반면 매출처 상위 3개 회사에 대한 비중은 2020년 38.4%에서 2023년 1분기 45.7%로 상승하는 추세에 있습니다. 당사의 D2C 거래에서 매출처 주요 3개사가 판매의 절반 가까이를 차지하고 있는 만큼, 이러한 판매비중의 증가는 제품 판매시 향후 매출처와의 수익 배분에 있어 교섭력을 점진적을 약화시켜 제품 판매마진을 악화시키는 위험요소로 작용할 수 있습니다.
| [매출처 주요 3개사 판매 비중] |
| 구분 | 2023년 1분기 | 2022년 | 2021년 | 2020년 |
| 판매비중 | 45.7% | 52.1% | 39.0% | 38.4% |
| 출처 : | 당사 제시 |
또한, 자사몰 대비 최종 소비자에 대한 직접적인 관리가 어렵기 때문에 관리영역에 제한이따를 수 있어 유통망 관리를 철저히 하지 못할 경우 매출 및 브랜드 평판을 악화시킬 가능성이 존재합니다. 덧붙여, 오프라인 채널로 판매 영역을 넓힐 경우 인건비 및 마케팅 비용 등 비용이 확대될 뿐만 아니라 COVID-19와 같은 전염병이 확산될 경우 매출에 직접적인 타격이 있을 수 있어 당사 수익성에 부정적인 영향을 미칠 수 있습니다.
|
차. 이자율 및 환율 변동에 따른 위험 |
최근 미국이 인플레이션 등을 고려하여 자산매입 축소, 기준금리 인상 등을 통한 시중의 유동성을 줄이기 위한 조치 계획 등을 발표하고 있으며, 2023년 5월 미국의 기준금리는 5.00%~5.25%로 이전 4.75%~5.00% 대비 0.25%p 상승하였습니다. 금번 금리인상까지 더해 연준은 FOMC 에서 작년 3월 이후 10회 연속 금리 인상을 단행하였으며, 현재 미국의 기준금리는 2007년 이후 16년 만에 최고 수준입니다. 그럼에도 불구하고, 현재 한국은행의 기준금리와 미 연준의 정책금리 상단의 격차는 175bp로 금통위에 금리 추가인상 부담으로 작용하고 있습니다. 금통위는 물가 상승 방지와 환율 등을 고려하여 미 연방준비제도의 금리 인상 기조에 따른 추가적인 금리 인상의 가능성을 배제할 수 없습니다.
2023년 1분기말 연결기준 당사 고정금리 및 변동금리 차입금은 다음과 같습니다.
| [2023년 1분기 기준 고정금리 및 변동금리 차입금 현황] | |
| (K-IFRS, 연결) | (단위 : 백만원) |
| 구분 | 2023년 1분기 |
| 고정금리 차입금 | 1,783 |
| 변동금리 차입금 | 3,817 |
| 합계 | 5,600 |
| 출처 : | 당사 정기보고서, 당사 제시 |
당사는 2023년 1분기 연결기준 고정금리 차입금 약 18억원, 변동금리 차입금 약 38억원을 보유하고 있으며, 총 차입금 약 56억원 대비 변동금리 차입금의 비중이 약 68% 수준으로, 금리 상승에 따른 이자비용 상승의 영향을 받을 위험이 존재합니다.
2023년 1분기 연결기준 당사의 금리 상승에 따른 이자비용 시뮬레이션은 다음과 같습니다.
| [금리 상승에 따른 이자비용 시뮬레이션] | |
| (K-IFRS, 연결) | (단위 : 백만원) |
| 구분 | 2023년 1분기 | |
| 100bp 상승시 | 100bp 하락시 | |
| 이자비용 | (22) | 22 |
| 출처 : | 당사 정기보고서, 당사 제시 |
만약, 이자율이 100bp 상승시 당사는 차입금에 대한 이자비용을 연간 22백만원 추가로 부담할 위험이 있으며, 이는 당사의 손익에 부정적인 영향을 미칠 수 있습니다.
당사는 대부분의 원재료 수급 및 외주생산을 국내에서 진행하고 있어 원화 결제 비중이 높은 편이나 제품 수출, G7 커피 수입, 일부 해외 외주 가공 등을 진행하고 있어 환율변동에 따른 위험에 노출되어 있는 상황입니다. 2023년 1분기말 연결기준 당사의 외화 관련 손익 세부내역은 다음과 같습니다.
| [2023년 1분기 외화 관련 손익 세부내역] | |
| (K-IFRS, 연결) | (단위 : 백만원) |
| 구분 | 금액 |
| 외환차익(A) | 19 |
| 외화환산이익(B) | 86 |
| 외환차손(C) | 5 |
| 외화환산손실(D) | 2 |
| 외화 관련 손익 합계(A+B-C-D) | 97 |
| 출처 : | 당사 정기보고서, 당사 제시 |
| 주1) | 원/달러 환율은 1,303.8원 기준 |
2023년 1분기 연결기준 당사는 외환차익 19백만원, 외화환산이익 86백만원, 외환차손 5백만원, 외화환산손실 2백만원 등이 발생하여 외화수익 총 97백만원이 발생하였습니다.
2023년 1분기 기준 통화별 주요 외화금융자산 및 부채의 내역은 다음과 같습니다.
| [2023년 1분기 기준 통화별 주요 외화금융자산 및 부채 내역] | |
| (K-IFRS, 연결) | (단위 : USD, 백만원) |
| 구 분 | 화폐단위 | 외화금액 | 원화금액 |
| 외화자산 | USD | 647,806 | 845 |
| 외화부채 | - | - | - |
| 출처 : | 당사 정기보고서, 당사 제시 |
| 주1) | 원/달러 환율은 1,303.8원 기준 |
2023년 1분기말 현재 다른 모든 변수가 일정하고 각 달러에 대한 원화의 환율 5% 변동시 당사의 세전손익에 미치는 영향은 다음과 같습니다.
| [환율 5% 변동시 당사의 세전손익에 미치는 영향] | |
| (K-IFRS, 연결) | (단위 : 백만원) |
| 구 분 | 상승시 | 하락시 |
| 세전손익의증가(감소) | 42 | (42) |
| 출처 : 당사 제시 |
당사는 환율 현황 및 전망에 대한 모니터링을 지속적으로 수행할 예정이며, 위험 관리 목적상 필요한 경우 외부 전문가의 컨설팅을 통하여 금융상품 가입 등을 통해 환헷지 업무 프로세스를 구축할 것을 고려하고 있습니다. 다만, 상기 당사의 노력에도 불구하고 향후 국제금융시장 변동 등에 따라 환율 변동이 커질 경우 외환 위험이 발생할 가능성이 존재하므로 투자자께서는 이 점 유의하시기 바랍니다.
|
카. 연구개발인력 이탈 위험 |
당사가 사업을 영위하는 유아가구 산업 내 당사의 주요 경쟁력은 제품 기술개발력으로, 관련 연구개발 인력의 확보가 매우 중요합니다. 업종의 특성상 연구개발인력의 이탈이 빈번하지는 않으나, 업종의 특수성으로 인해 인력을 단기간에 충원하기 어려운 분야입니다. 따라서 당사가 독자적인 유아가구 제품을 지속적으로 개발하고 출시하기 위해서는 관련 연구개발인력의 확보가 중요하며, 주요 인력의 이탈이 빈번하게 발생할 경우 당사 제품 경쟁력에 부정적인 영향을 미칠 수 있습니다.
공시서류 제출 전일 기준 당사의 연구개발 조직 현황은 다음과 같습니다.
| [당사 연구개발 조직] |
| (기준일 : 공시서류 제출 전일) |
|
구분 |
인원 |
주요 업무 |
|
|
연구소 |
연구소장 |
1명 |
- 연구소 총괄 |
|
혁신상품개발팀 |
6명 |
- 시장/트렌드 분석 및 자료조사 - 상품기획 및 개발 - 제품 디자인 - 샘플진행 및 본 생산 진행 - 신제품 런칭 초기제품 관리 - 지재권 확보 - 정부지원사업 수행 |
|
|
브랜드디자인팀 |
8명 |
- PC/M 홈페이지 디자인 - 상품 상세페이지 디자인 - 프로모션/이벤트 디자인 - 체험단 페이지 디자인 - SNS 카드뉴스 디자인 - 브로셔 및 제안서 디자인 - 사진, 영상 컨텐츠 기획 및 촬영 |
|
|
합계 |
15명 |
- |
|
| 출처 : | 당사 제시 |
당사는 매년 연구개발인력의 일부 변동이 발생하고 있으나, 대부분 근속연수가 낮은 연구개발자 등의 이직에 기인하는 것으로, 팀장급 이상의 주요 핵심 인력의 변동은 거의 없는 상황입니다. 연구소 인원의 평균 재직기간은 2년 9개월이며, 그 중 팀장급 이상의 재직기간은 5년 3개월, 시니어급 3년 3개월, 주니어급 1년 4개월로 연구소 주요인력인 시니어급 이상의 평균 재직기간이 5년으로 안정적인 연구소 인력을 유지하고 있습니다.
| [연구개발조직 근속연수] |
| (기준일 : 공시서류 제출 전일) |
|
직책 |
직급 |
인원수 |
평균 근속연수 |
|
연구소장 |
Excutive Director |
1인 |
8년 7개월 |
|
이사 |
Director |
1인 |
4년 6개월 |
|
팀장 |
팀장 |
1인 |
3년 11개월 |
|
시니어 |
Senior |
4인 |
3년 7개월 |
|
주니어 |
Junior |
8인 |
1년 7개월 |
| 출처 : | 당사 제시 |
당사는 기존 주요 인력의 안정적 유지를 위하여 우리사주조합 결성 및 주식 배정, 주식매수선택권 부여, 다양한 복리후생 등 인센티브를 제공하여 장기근속을 유도하고 있습니다.
| [연구개발 인력 우리사주조합 및 주식매수선택권 부여 현황] |
| (기준일 : 공시서류 제출 전일) |
| 구분 | 내용 | |
| 주식매수선택권(1차) | 부여일 | 2020/11/01 |
| 부여대상 | 임직원 2인 | |
| 부여주식수 | 16,305주 | |
| 우리사주조합 | 부여일 | 2022/01/27 외 |
| 부여대상 | 임직원 12인 | |
| 부여주식수 | 23,522 | |
| 주식매수선택권(2차) | 부여일 | 2022/08/16 |
| 부여대상 | 임직원 2인 | |
| 부여주식수 | 10,512주 | |
| 출처 : 당사 제공 |
그럼에도 불구하고 인력확보 경쟁이 심화되거나 신규인력 확보에 어려움이 생기는 경우 신규 제품 개발 등에 어려움을 겪을 수 있으며 이는 당사가 오랜기간 시장 내 구축해온 신뢰도에 부정적인 영향을 미칠 수 있으니, 투자자께서는 이 점 유의하시기 바랍니다.
2. 회사위험
| [최근 3년간 요약 재무 현황] | |
| (K-IFRS, 연결) | (단위 : 백만원, %, 배) |
| 구 분 |
2023년 1분기 |
2022년 (제 9기) |
2021년 (제 8기) |
2020년 (제 7기) |
비고 |
|---|---|---|---|---|---|
| 외부감사인의 감사(검토)의견 | - | 적정 | 적정 | 적정 | - |
| 1. 자산총계 | 24,023 | 15,964 | 11,537 | 9,245 | - |
| - 유동자산 | 15,867 | 8,973 | 5,374 | 4,060 | - |
| 2. 부채총계 | 8,129 | 7,903 | 6,126 | 6,238 | - |
| - 유동부채 | 6,195 | 5,920 | 3,778 | 3,807 | - |
| 3. 자본총계 | 15,894 | 8,060 | 5,411 | 3,007 | - |
| - 자본금 | 794 | 613 | 613 | 449 | - |
| 4. 부채비율(%) | 51.14% | 98.05% | 113.21% | 207.46% | 부채총계 ÷ 자본총계 |
| 5. 유동비율(%) | 256.12% | 151.58% | 142.22% | 106.65% | 유동자산 ÷ 유동부채 |
| 6. 총차입금 | 5,600 | 6,375 | 4,385 | 4,463 | 유동성 차입금 + 비유동성 차입금 |
| ① 유동성 차입금 | 3,667 | 4,392 | 2,054 | 2,039 | - |
| ② 비유동성 차입금 | 1,933 | 1,983 | 2,330 | 2,424 | - |
| - 총차입금 의존도(%) | 23.31% | 39.93% | 38.00% | 48.27% | 총차입금 ÷ 자산총계 |
| - 유동성 차입금 비중(%) | 65.48% | 68.89% | 46.85% | 45.70% | 유동성 차입금 ÷ 총차입금 |
| 7. 영업활동 현금흐름 | (679) | (3,332) | 1,847 | 2,902 | - |
| - 영업활동현금흐름 총부채 비율(%) | (8.36%) | (42.16%) | 30.15% | 46.53% | 영업활동현금흐름 ÷ 부채총계 |
| 8. 투자활동 현금흐름 | (4,311) | (606) | (846) | (1,150) | - |
| 9. 재무활동 현금흐름 | 8,177 | 2,086 | 377 | (1,479) | - |
| 10. 현금 및 현금성자산 기말 잔고 | 3,396 | 209 | 2,062 | 683 | - |
| 11. 순차입금 | 2,204 | 6,166 | 2,323 | 3,780 | 총차입금 - 현금및현금성자산 |
| - 순차입금 의존도(%) | 9.18% | 38.62% | 20.14% | 40.89% | 순차입금 ÷ 자산총계 |
| 12. 매출액 | 6,862 | 27,182 | 20,896 | 18,499 | - |
| 13. 매출총이익(손실) | 1,878 | 8,990 | 8,244 | 6,815 | - |
| 14. 영업이익(손실) | (1,199) | 1,133 | 2,327 | 2,088 | - |
| - 영업이익률(%) | (17.47%) | 4.17% | 11.14% | 11.29% | 영업이익 ÷ 매출액 |
| 15. 이자비용 | 74 | 165 | 100 | 149 | - |
| - 이자보상배수(배) | -16.22 | 6.86 | 23.16 | 14.05 | 영업이익 ÷ 이자비용 |
| 16. 당기순이익(손실) | (1,155) | 1,319 | 1,731 | 2,021 | - |
| - 당기순이익률(%) | (16.84%) | 4.85% | 8.28% | 10.92% | 당기순이익 ÷ 매출액 |
| 출처 : | 당사 정기보고서, 당사 제시 |
|
가. 스마트 공장 건립 관련 신규시설 투자 위험 |
당사는 생산 효율화를 도모하기 위하여 현재 외부생산을 기반으로 사업을 영위하고 있으며, 전체 품목에 대해 매월 판매 계획서를 기반으로 보유하고 있는 재고를 감안하여 생산 계획서를 작성하고, 그 계획에 따라 발주 진행 및 생산을 진행합니다. 다만, 유아용 매트 등 주력 품목들의 매출 규모가 확대되면서 원가 및 품질 경쟁력을 확보하고 물류 비용 절감을 위하여 스마트 공장 건립을 통한 자체 생산 라인 구축을 진행하고 있습니다. 스마트 공장의 구축으로 당사는 원가 절감뿐만 아니라 물류창고 공간확보, 재고자산 보관비용 부담의 감소 효과가 기대되며 이를 통해 수익성 확대를 기대하고 있습니다.
현재 당사는 설립시부터 생산 효율화를 위해 외주생산을 기반으로 사업을 영위하고 있기 때문에 영업비용에서 외주비가 차지하는 비중이 높습니다. 생산은 100% 외주가공, OEM, ODM 방식으로 제품군에 따라 생산방식을 달리하고 있습니다.
| [당사 제품별 생산방식] |
| 구분 | 방식 | 비고 | |
| 유아용 가구 | 매트 | 원재료 직매입 및 외주가공 |
당사가 원재료를 직매입하여 외주가공업체에 공급하여 생산하는 방식 |
| 원목 가구 등 | OEM 생산 | 국내/해외 OEM 생산 | |
| 유아용 스킨케어 | ODM 생산 | 국내 ODM 생산 | |
| 출처 : 당사 정기보고서 및 당사 제공 |
| [연도별 외주가공비 비중] |
| (단위 : 백만원) |
|
구 분 |
2023년 1분기 |
2022년 1분기 |
2022년 |
2021년 |
2020년 |
|---|---|---|---|---|---|
|
외주가공비 |
1,077 |
2,471 |
7,066 |
7,711 |
5,508 |
|
당기 총제조비용 대비 비중 |
56.2% |
66.75% |
56.2% |
65.4% |
50.8% |
|
제품 매출액 대비 비중 |
30.7% |
41.90% |
34.9% |
36.9% |
29.8% |
|
외주가공업체 수 |
27사 |
32사 |
50사 |
32사 |
33사 |
| 출처 : 당사 제공 |
상기 표처럼 당사 총제조비용 대비 외주가공비의 비중은 약 50% 이상으로 제조비용의 상당 부분이 외주가공비로 지출되고 있어, 매출이 확대될 수록 외주가공비 또한 동반 상승하는 비용 구조를 가지고 있습니다.
당사는 주력품목들의 매출 규모가 성장하면서 원가 및 품질 경쟁력을 더욱 확보하고, 물류 비용 절감을 위하여 자체 생산시설 확보 계획을 수립하였으며, 신규 공장 건립을 위해 건축물, 기계장치 등을 구매할 계획입니다. 당사의 주력 제품인 유아용 매트는 제품의 특성상 부피가 크기 때문에 SKU가 높아 많은 창고를 필요로 합니다. 이로 인해서, 창고 임대료 부담이 높은 편인데, 안성시에 확보한 자체 물류센터에 유아용 매트를 보관하여 임대료 부담을 낮출 예정입니다. 또한, 판매중인 유아용 매트 중에서 당사가 예측가능한 수요 대해선 해당 부지에 건설된 공장에서 자체 생산함으로써 OEM/ODM에 100% 의존되어 있는 현재의 생산위험을 낮추고, 원가와 물류비를 절감함으로써 수익성을 높일 계획입니다.
당사는 토지비 및 건축비 등이 포함하여 약 210억원을 투자하여 주력품목들을 직접 생산하기 위한 지상3층, 지하1층 규모의 스마트팩토리 신설을 진행 할 예정이며, 2024년 9월까지 공장을 완공하여 본격적인 자체생산에 돌입 할 예정입니다. 이를 위해 당사는 2023년 3월 30일 경기도 안성시에 위치한 9,900㎡ 규모의 토지를 양수하는 계약을 체결하였으며, 2023년 6월 29일 잔급지급 완료 후 양수를 완료하여 생산공장 및 물류센터 신축을 진행할 예정입니다. 또한 당사는 공시서류 제출 전일 현재 공장건물 토목설계 및 건축설계 계약을 진행중에 있습니다.
2023년 1월 30일 당사가 공시한 IPO 일반공모 투자설명서에 따르면, 당사는 총 약 157억원을 투자하여 경기도 용인시 남사읍 북리 토지 총 8,273㎡(2,503평)을 매입 후 스마트팩토리 신설을 계획중인것으로 기재되어 있으나, 이후 추가적인 사업 진행 중 신설예정인 스마트팩토리의 규모가 기존보다 증가하였고, 또한 기존 매입 예정이었던 용인시 남사읍 북리 토지의 가격이 최초 계획시보다 크게 상승하여 최종적으로 경기도 안성시에 위치한 토지를 매입 할 것으로 사업계획을 변경하였습니다. 당사가 2023년 1월 30일 공시한 기존 스마트 팩토리 공장설립안 및 금번 일반공모 유상증자를 통해 계획중인 스마트 팩토리 공장설립안은 다음과 같습니다.
| [스마트 팩토리 기존 공장설립안 및 변경안 비교] |
| (단위 : 백만원) |
| 구 분 | 기존(안) | 변경(안) | ||
|---|---|---|---|---|
| 내 용 | 비 고 | 내 용 | 비 고 | |
| 소재지 | 경기도 용인시 남사읍 북리 00번지 일대 | 경기도 안성시 원곡면 성은리 산 22-2 | ||
| 토지면적 | 8,273㎡ | 2,502평 | 9,900㎡ | 2,995평 |
| 건폐율 | 67.95% | 법정 건폐율 70% | 39.85% | 법정 건폐율 40% |
| 용적율 | 99.89% | 법정 용적율 100% | 99.11% | 법정 용적율 100% |
| 건축규모 | 8,264.50㎡ | 공장 300평 창고 2,000평 편의시설 200평 |
15,000.78㎡ | 공장 500평 창고&쇼룸 3,500평 편의시설 180평 |
| 지상층 | 8,264.50㎡ | 지상2층 | 9,811.40㎡ | 지상3층 |
| 지하증 | - | - | 5,189.38㎡ | 지하1층 |
| 건 축 비 용 | ||||
| 토지구입대금 | 7,241 | 4,932 | ||
| 예상 건축비 | 7,876 | 13,586 | ||
| 기계설비 | 932 | 989 | ||
| 기 타 | 160 | 1,511 | ||
| 합 계 | 16,210 | 21,018 | ||
| 생산품목 | 롤매트류(클린롤매트(양면), 슈퍼자이언트매트(양면) 허쉬(양면), 롤매트플러스(단면) 자이언트(단면), 슈퍼자이언트(단면), 5단클린매트(단면) |
|||
| 출처 : | 당사 제시 |
당사는 2022년 상반기부터 공장 및 부대시설인 창고와 창고 시설 내 쇼룸을 설치하고자 당사와 가까운 거리의 매물을 찾고 있었으며, 경기도 용인시 남사읍에 위치한 북리 공단 내 부지에 대하여 부동산 및 실 소유주와 협의를 하여 당사가 상장을 진행할 당시 계약 직전까지 진행되었습니다. 그러나, 상장 이후 부지 계약을 위한 협의 중 2023년 3월 15일 남사읍 일대가 용인 반도체 클러스터 국가산업단지 후보지로 선정되었다는 뉴스가 보도되어 기존 계획했던 사업 부지 확보에 차질이 생기게 되었습니다. 이에 당사는 교통편의성, 인허가 취득 가능성, 부지면적 등의 조건을 고려하여 공장부지를 재검토하였고, 최초 계획하였던 용인시 남사읍 토지에서 약 10km 거리에 있는 경기도 안성시에 위치한 부지를 매입하기로 결정하였습니다.
당사는 기존 계획보다 토지면적, 건축규모, 건축비용면에서 기존 계획보다 규모를 확대하였습니다. 이는 당사가 상장 이후 빠른 매출액 성장을 위해 상품 개발 인력을 작년 4분기 대거 충원 해 왔으며, 그 결과 올해 2분기부터 신상품이 작년 대비 4배 이상 출시되는 등 신상품의 출시 및 제품 카테고리의 확대 그리고 2022년부터 신규로 사업을 영위하고 있는 G7 커피의 매출 또한 전년 대비 크게 성장되어 당초 계획보다 물류 공간이 더 요구되는 상황이기 때문입니다. 또한, 당사는 유아용품을 오프라인에서 직접 경험해 보고 싶었으나 마땅히 체험해 볼 수 있는 쇼핑 공간이 없었던 고객을 위해 본 창고시설 내 쇼룸을 추가적으로 계획하고 있습니다. 당사 제품의 경우 부피가 큰 제품이 많고 가격대가 높은 프리미엄 상품이기에 체험 공간의 필요성이 높으며, 당사 제품 카테고리 확대의 영향으로 자체 쇼룸의 규모도 자연스럽게 확대하였습니다.
또한, IPO 투자설명서에 예측한 2023년 12월 입주완료일자는 2024년 9월 중 입주 예정으로 변경 되었습니다. 금번 변경된 스마트팩토리 신설관련 총 투자규모 및 계획 및 공장부지 취득 관련 공시사항은 아래와 같습니다.
| [스마트팩토리 신설 관련 투자규모 및 계획] |
| 구분 | 내용 |
|---|---|
| 총 투자규모(예정) | 총 투자규모: 약 210억원 - 토지비(토지매입비 및 취득세 등): 약 49억원 (23년 04월 ~ 23년 06월 사용예정) - 건축비(직접공사비 및 간접공사비 등): 약 135억원 (23년 06월 ~ 24년 09월 사용예정) - 기계장치(공장설비): 약 6억원 (24년 08월 ~ 24년 09월 사용예정) - 기타 설비(렉설치비 및 인테리어 등): 약 20억원 (24년 08월 ~ 24년 09월 사용예정) |
| 투자기간(예정) | 2023년 04월 ~ 2024년 09월 |
| 진행경과 | 2023년 04월: 토지매입 계약 체결완료 및 중도금 지급 현재 토목설계 및 건축설계 계약 진행 중 |
| 향후일정(예정) | 23년 06월: 토지잔금 지급 23년 06월: 설계계약 23년 11월: 인허가 완료 예정 23년 12월: 착공 24년 09월: 완공 및 입주 예정 |
| 출처 : 당사 제공 주) 상기 일정은 당사가 계획중인 일정으로 추후 예상치 못한 변수 발생시 변동 될 수 있습니다 |
| [스마트팩토리 관련 개요] |
| 구 분 | 내 용 | |||||||||
|---|---|---|---|---|---|---|---|---|---|---|
| 위치 | 안성시 원곡면 성은리 산22-2 | |||||||||
| 지역지구 | 계획관리지역 | |||||||||
| 면적 | 대지 | 9,900㎡ | ||||||||
| 연면적 | 15,000.78㎡ | |||||||||
| 지상 : 9,811.40㎡ / 지하 : 5,189.38㎡ | ||||||||||
| 건폐율/용적률 | 39.85% / 99.11% | |||||||||
| 규모 | 지상 3층 / 지하 1층 | |||||||||
| 스마트팩토리 설계도(안) |
|
|||||||||
| 출처 : 당사 제공 주) 상기 개요는 당사가 계획중인 일정으로 추후 건축사무소와의 설계 변경시 변동 될 수 있습니다 |
| [유형자산 양수내역] |
| 1. 자산구분 | 토지 | |
| - 자산명 | [토지] 경기도 안성시 원곡면 성은리 산22-2 (토지:9,900㎡) | |
| 2. 양수내역 | 양수금액(원) | 4,490,000,000 |
| 자산총액(원) | 11,537,316,507 | |
| 자산총액대비(%) | 38.92 | |
| 3. 양수목적 | 생산공장 및 물류센터 신축을 위한 부지 확보 | |
| 4. 양수영향 | 생산라인 구축 및 물류센터 통합으로 인한 수익성 개선 | |
| 5. 양수예정일자 | 계약체결일 | 2023.03.30 |
| 양수기준일 | 2023.06.29 | |
| 등기예정일 | 2023.06.29 | |
| 6. 거래상대방 | 회사명(성명) | 주식회사 서광인프라 |
| 자본금(원) | 100,000,000 | |
| 주요사업 | 통신ㆍ방송장비 및 부품 도매업 | |
| 본점소재지(주소) | 서울특별시 송파구 백제고분로 75, 311호 | |
| 회사와의 관계 | - | |
| 7. 거래대금지급 |
1) 지급형태 : 현금 2) 자금조달 : 내부보유자금 및 차입금 3) 지급 시기 및 조건 - 계약금 : 449,000,000원 (2023.03.30) - 중도금 : 1,000,000,000원 (2023.04.27) - 잔 금 : 3,041,000,000원 (2023.06.29) |
|
| 8. 외부평가에 관한 사항 | 외부평가 여부 | 예 |
| - 근거 및 사유 |
1) 근거 : 자본시장과 금융투자업에 관한 법률 제161조 제1항 제7호 및 동법 시행령 제171조 제2항 제5호에 의한 적정성 평가 2) 사유 : 회사가 양수하기로 의사결정한 자산양수가액의 적정성 여부를 판단하기 위한 참고자료 제공 |
|
| 외부평가기관의 명칭 | 리안회계법인 | |
| 외부평가 기간 | 2023.03.27 ~ 2023.03.30 | |
| 외부평가 의견 | 적정 | |
| 출처 : 전자공시시스템(dart.fss.or.kr) |
당사는 2023년 3월 30일 토지매수계약을 체결하며 계약금으로 약 4.5억원을, 2023년 4월 27일 1차 중도금으로 10억원을 IPO 공모자금을 사용하여 지급하였으며. 2023년 6월 29일 잔금 약 30억 및 등록비용 약 4억원 또한 IPO 공모자금을 사용하여 지급 할 예정입니다. 당사는 금번 일반공모 유상증자 공모자금 중 약 132억원을 사용하여 스마트팩토리 공사비로 사용할 예정입니다. 또한 당사는 자체자금 약 29억원을 사용하여 공장 기계설비 및 내부 인테리어 등에 필요한 자금을 충당 할 예정입니다. 당사는 건축사무소와 신축공장의 규모, 내부 기계설비 등에 대해 최종적으로 조율중에 있으며, 그 과정에서 최종 사용되는 비용의 규모가 일부 변동 될 수 있습니다.
또한 금번 주가하락으로 인한 일반공모 유상증자의 최종 공모자금 하락 및 일반공모 후 실권주 발생으로 인해 총 발행금액이 축소 될 경우 당사는 보유현금 및 금융기관 추가차입을 통해 스마트팩토리 신설 자금을 충당 할 계획입니다. 공시서류 제출 전일 기준 스마트팩토리 관련 비용 상세내역 및 금번 공모자금 사용 일정은 아래와 같습니다.
| [스마트팩토리 관련 비용 상세내역] |
| (단위: 백만원) |
| 구분 | 내용 | 금액 | 일정 | 자금출처 |
|---|---|---|---|---|
| 토지대금 | 계약금 | 449 | 2023년 04월 | IPO 공모자금 (지급완료) |
| 중도금 | 1,000 | 2023년 05월 | IPO 공모자금 (지급완료) |
|
| 잔금 | 3,041 | 2023년 06월 | IPO 공모자금 (지급예정) |
|
| 소계 | 4,490 | - | - | |
| 등록비용등 | 442 | 2023년 06월 | IPO 공모자금 (지급예정) |
|
| 합계 | 4,932 | - | - | |
| 설계비 | 토목설계 | 30 | 2023년 06월 ~ 2023년 7월 | 자체자금 (지급예정) |
| 건축설계 | 182 | 2023년 06월 ~ 2023년 09월 | IPO 공모자금 (지급예정) |
|
| 감리용역 | 182 | 2023년 10월 ~ 2024년 09월 | IPO 공모자금 (지급예정) |
|
| 합계 | 393 | - | - | |
| 건축비 | 공사비 | 13,193 | 2023년 10월 ~ 2024년 09월 | 금번 일반공모 공모자금 (지급예정) |
| 기계설비 | 공장 설비 | 639 | 2024년 08월 ~ 2024년 09월 | 자체자금 (지급예정) |
| 기타 | 랙설치 | 300 | 2024년 08월 ~ 2024년 09월 | 자체자금 (지급예정) |
| 전시인테리어 | 700 | 2024년 08월 ~ 2024년 09월 | 자체자금 (지급예정) |
|
| 취득비용 등 | 861 | 2024년 10월 | 자체자금 (지급예정) |
|
| 소계 | 1,861 | - | - | |
| 총계 | 21,018 | - | - | |
| 출처 : 당사 제공 주) 상기 비용은 당사가 계획중인 일정으로 추후 건축사무소와의 설계 변경시 변동 될 수 있습니다 |
| [스마트팩토리 관련 비용 산정근거] |
| (단위: 백만원) |
| 구분 | 항목 | 금 액 | 비율 | 비 고 | |
|---|---|---|---|---|---|
| 토지대 | 토지비 | 4,490 | 21.36% | 2,503/평 | |
| 취득제세금 | 251 | 1.20% | 토지비 * 5.6% | ||
| 인허가비용 | 150 | 0.71% | 50/평(대체산림자원조성비 포함) | ||
| 중개수수료 | 40 | 0.19% | 중개수수료 0.9% | ||
| 소 계 | 4,932 | 23.46% | - | ||
| 건축비 | 직접 공사비 | 12,914 | 도급가 | 연면적(평) | 평당 공사비 |
| 61.44% | 4,537.72 | 2,846 | |||
| 각종 인입비 | 150 | 0.71% | 연면적*평당 50 천원 | ||
| 공사 예비비 | 129 | 0.61% | 직접공사비*1% | ||
| 실시토목설계 | 30 | 0.14% | 1식 | ||
| 설계비 | 182 | 0.86% | 연면적*평당 40 천원 | ||
| 감리비 | 182 | 0.86% | 연면적*평당 40 천원 | ||
| 소 계 | 13,586 | 64.64% | 평당 건축비 | 2,994 | |
| 설비 | 기계장치 | 639 | 3.04% | 스마트공장 자동화 설비 컨베이어, 로봇구축비용 | |
| 랙설치비 | 300 | 1.43% | 1식 | ||
| 예비비 | 50 | 0.24% | 기타비용 | ||
| 소 계 | 989 | 4.71% | - | ||
| 기타 | 건축 취등록세 | 761 | 3.62% | 건축비 * 5.6% | |
| 인테리어,가구 | 700 | 3.33% | 전시시설 | ||
| 기타 | 50 | 0.24% | 등기수수료 등 | ||
| 소 계 | 1,511 | 7.19% | - | ||
| 지출총액 | 21,018 | 100.00% | 평당 지출금액 | 4,632 | |
| 출처 : 당사 제공 주) 상기 비용은 당사가 계획중인 일정으로 추후 건축사무소와의 설계 변경시 변동 될 수 있습니다. 주) 당사는 상기 건축 비 중 직접공사비, 각종 인입비, 공사 예비비를 포함한 약 132억원을 금번 일반공모 공모자금을 통해 조달할 예정입니다. |
| [일반공모 공모자금 사용스케줄] |
| (단위 : 백만원) |
| 사용시기 | 금액 | 비고 |
|---|---|---|
| 2023년 4분기 | 4,000 | 공장건물 건축 계약금 및 공사비 지급 |
| 2024년 1분기 | 3,064 | 공장 건물 공사비 |
| 2024년 2분기 | 3,064 | 공장 건물 공사비 |
| 2024년 3분기 | 3,064 | 공장 건물 공사비 |
| 합계 | 13,193 | - |
| 출처 : 당사 제공 주) 상기 공모자금 사용 스케줄은 당사가 계획중인 일정으로 추후 공사 진행상황에 따라 변동 될 수 있습니다 |
당사는 스마트팩토리 신설 완료 후 주요제품 직접생산 및 자체 물류창고 구비를 통해 비용을 절감 할 수 있을것으로 예상하고 있습니다. 당사는 스마트팩토리를 통해 유아용 롤매트 월 6,000EA(스마트팩토리 최대 CAPA 9,600EA의 62.50%수준) 생산 및 판매시 외주생산 대비 1년간 매출원가 548백만원, 판매비와관리비 1,080백만원, 총 1,628백만원의 비용을 절감할 수 있을 것으로 판단하고 있습니다. 이와 관련된 상세 내역은 아래와 같습니다.
| [스마트팩토리 신설로 인한 예상 절감비용 내역(연간 기준)] |
| (단위 : 백만원) |
| 항 목 | 연간 절감 비용 | 비 고 |
|---|---|---|
| 매출원가 | 548 | 유아용 롤매트 월 6,000EA 생산 기준 |
| 판매비와관리비 | 1,080 | |
| 합 계 | 1,628 | - |
| 출처 : | 당사 제시 |
| 주) | 상기 내역은 당사가 산출한 것으로 추후 변동될 수 있습니다 |
| [스마트팩토리 신설로 인한 예상 절감비용 내역(월기준)] |
| (단위: 백만원, %) |
| 구 분 | 외주 생산 시 | 스마트팩토리 생산 시 |
|---|---|---|
| 매출액 | 1,401 | 1,401 |
| 매출원가 | 642 | 596 |
| 원재료매입 | 382 | 382 |
| 외주가공비 | 218 | - |
| 제조경비 | 42 | 214(주4) |
| 매출원가율 | 45.80% | 42.54% |
| 구 분 | 외주 생산 시 | 스마트팩토리 생산 시 |
| 판매비와관리비(주5) |
707 | 617 |
| 급여 | 234 | 234 |
| 지급임차료 | 60 | 0 |
| 지급수수료 | 110 | 80 |
| 기타 | 303 | 303 |
| 출처 : | 당사 제시 |
| 주1) | 상기 사항은 롤매트 6,000EA 생산을 기준으로 산정하였습니다. |
| 주2) | 제조경비의 경우 공장 운영 인건비 및 소요비를 포함하였습니다. |
| 주3) | 상기 내역은 당사가 산출한 것으로 추후 변동될 수 있습니다. |
| 주4) | 기존 제조경비에 스마트팩토리 제품생산 제조경비 172백만원을 합산한 금액입니다. |
| 주5) | 롤매트 6,000EA생산에 따른 판매비와관리비 구분이 불가하여 월간 전체 판매비와관리비로 계산하였으며, 지급임차료와 3자물류비 등 감안하였습니다. |
| [스마트팩토리 경비 예상 세부내역(월기준)] |
| (단위 : 백만원) |
| 구분 | 세부항목 | 금액 | 비고 |
|---|---|---|---|
| 인건비 | 생산인력(00명)(주2) |
70 | 인당평균 임금 감안(주2) |
| 간접인력(0명)(주2) |
12 | 관리자 및 보조인력(주2) |
|
| 전력비 및 수도광열비 | 공장 전력비 등 예측 | 12 | - |
| 소모품비 | 공장 소모품 | 40 | 소모품 및 수선비 등 |
| 관리비 | 공장 운영비 | 21 | 복리후생비 및 사무실운영비 포함 |
| 감가상각비 | 공장부분건축물 및 기계설비 | 17 | - |
| 합 계 | 172 | - | |
| 출처 : | 당사 제시 |
| 주1) | 상기 내역은 당사가 산출한 것으로 추후 변동될 수 있습니다 |
| 주2) | 인당 평균임금 수준의 공개가 불가능하여 구체적인 생산인력규모는 비공개 하였습니다. |
당사가 기존 100% 외주 생산 방식을 이용하여 롤매트 월 6,000EA를 생산할 시, 월 기준 매출액은 1,401백만원, 매출원가는 642백만원, 매출원가율은 45.80% 수준입니다. 롤매트 생산에 따른 판매비와관리비 구분이 불가하여 월별 전체 판매비와관리비를 계산하였을 때 707백만원 수준으로 지출 될 것으로 예상됩니다.
반면, 당사가 스마트 팩토리를 통해 롤매트 월 6,000EA를 동일하게 생산할 시, 공장 가동으로 인한 제조경비(공장 운영 인건비 및 소요비)가 발생하는 것을 고려 하더라도 외주가공비의 절감효과가 더 클 것으로 예상되어 월 46백만원의 매출원가를 절감할 수 있다고 내부적으로 판단하고 있습니다. 연간으로 계산 하였을 시 스마트팩토리를 통한 롤매트 생산 시 약 5.5억원의 매출원가가 감소할 것으로 판단되며, 매출원가율의 경우 42.54% 수준으로 외주생산방식 대비 3.26%p 감소한 수치입니다.
또한, 판매비와관리비의 경우 월별 전체 금액으로 계산하였을 때 월 90백만원을 절감할 수 있다고 내부적으로 판단하고 있으며, 이는 창고비로 지출되던 지급임차료와 제3자물류비 등의 감소에 기인합니다. 마찬가지로 연간으로 계산 하였을 시 스마트팩토리를 통한 롤매트 생산 시 판매비와관리비는 약 11억원 절감 될 것으로 판단됩니다.
스마트팩토리 신설로 당사가 구비 예정인 설비내역은 아래와 같습니다.
| [스마트팩토리 구비 예정 설비내역] |
| (단위 : 백만원) |
| 시설명 | 수량 | 금액 | 비고 |
|---|---|---|---|
| 기계설비 | |||
| 롤커팅기 | 1 | 25 | 주문제작 생산설비 |
| 롤투입거치대 | 2 | 5 | 주문제작 생산설비 |
| 재단기 | 1 | 20 | 주문제작 생산설비 |
| 봉제로봇 | 4 | 260 | 주문제작 생산설비 |
| 미싱기 | 4 | 7 | - |
| 합봉미싱기 | 6 | 12 | - |
| 상하자동테핑기 | 2 | 20 | 주문제작 생산설비 |
| 적재로봇 | 3 | 100 | 주문제작 생산설비 |
| 컨베어 및 제어시스템 | 1 | 190 | 주문제작 집진설비 |
| 소 계 | 24 | 639 | - |
| 기타설비 | |||
| 렉설치 | 1식 | 300 | - |
| 소 계 | 1식 | 300 | - |
| 합 계 | - | 939 | - |
| 출처 : 당사 제공 주) 상기 구비시설 목록은 당사가 계획중인 것으로 추후 공장규모 및 내부구조 변경으로 인해 변동 될 수 있습니다 |
다만, 당사의 생산시설 확장 및 운영과정에 있어서 원재료 확보의 어려움, 제조장비 공급업체와의 문제, 장비 오작동 및 고장 등으로 인한 추가비용 지출의 위험성과 생산량 확대의 불확실성이 존재합니다. 생산량의 확대가 원활하게 이루어지지 못할 경우 고객의 수요에 대응하기 어려우며, 그 결과 시장 점유율이 하락할 위험이 있습니다.
또한 당사는 공시서류 제출 전일 기준 스마트팩토리 신설을 위한 토지매입 계약 체결완료 및 중도금 지급을 완료한 상태이고, 토목설계 및 건축설계 계약을 진행 중입니다. 따라서 건축설계 과정에서 당사의 예상과는 다르게 그 공장의 규모가 변동될 경우, 당사가 상기한 스마트팩토리 신설 관련 비용 및 추후 당사가 예상하고 있는 매출원가 및 판매비와관리비 절감효과 또한 변동 될 수 있습니다. 또한 당사는 금번 일반공모 공모자금 중 약 132억원을 사용하여 공장 건물 공사비로 사용 예정인 바, 추후 설계 변동으로 인해 추가비적인 비용이 발생 한 경우에는 당사의 자체자금 혹은 추가차입금으로 충당 할 예정이며, 설계 변동으로 인해 예상보다 적은 비용으로 공사비가 지출 될 경우 남은 금액분은 공장 내 기계설비 구비 등의 자금으로 사용 될 예정입니다.
당사는 상기와 같이 스마트팩토리 신설 설비 투자를 통해 매출 증대 및 수익성 개선을 기대하고 있습니다. 공장 증축 및 기계설비 투자의 경우 수익성 개선 기대감의 긍정적인 측면도 있지만, 당사의 신규투자가 반드시 성공을 보장하는 것은 아니며, 수익성 향상에 성공하지 못할 경우 투자 자금의 회수가 어려울 수 있으며, 공장증축을 위해 시공된 건물, 기계장비 등의 유형자산에 손상이 발생해 당사에 심각한 재무적 손실이 발생 할 수도 있습니다. 투자자께서는 이 점 유의하시기 바랍니다.
|
나. 시장성조달 자금 중 미사용 자금 운용 위험 당사가 미사용 자금에 대해 납입부터 금번 공시서류 제출일 현재까지 상기 기재한 것과 같이 적절하게 사내에 유보했는지를 살펴보면, 당사는 해당 공모 및 사모 자금 미사용 자금이 별도의 계좌에 구분되어 예치되지 않고 있기 때문에 각 조달 방법에 따른 자금들을 명확하게 구분하기 어려운것으로 파악되고 있습니다. 따라서 만기가 도래한 차입금의 상환, 원부재자 구입 및 외주비등과 같은 운영자금 지출 또한 IPO 일반공모 공모자금 납입금을 통해 지급이 된 것으로 파악되고 있습니다. |
당사는 금번 일반공모 유상증자에 앞서 2023년 2월 유상증자(IPO 일반공모) 90.5억원을 조달한 이력이 있습니다. 당사는 2023년 1월 제출한 증권신고서에 용인시 처인구 남사읍 북리 일대 부지를 자체자금 및 금융기관 차입금으로 매입 후 공모자금 중 약 85.2억원을 사용하여 공장 건물 건설 및 기계장치 설비를 구비할 것으로 계획하였습니다. 또한 공모자금의 실제 집행 시기까지의 보유기간에는 국내 제1금융권 등 안정성 높은 금융기관의 상품에 예치할 계획이며, 자금의 사용시기가 도래하여 단기간 내에 자금의 사용이 예상되는 경우에는 단기금융상품 계좌 등에 일시 예치하여 운용할 예정라고 기재한 바 있습니다.
하지만 당사가 미사용 자금에 대해 납입부터 금번 공시서류 제출일 현재까지 상기 기재한 것과 같이 적절하게 사내에 유보했는지를 살펴보면, 당사는 해당 공모 및 사모 자금 미사용 자금이 별도의 계좌에 구분되어 예치되지 않고 있기 때문에 각 조달 방법에 따른 자금들을 명확하게 구분하기 어려운것으로 파악되고 있습니다. 따라서 만기가 도래한 차입금의 상환, 원부재자 구입 및 외주비등과 같은 운영자금 지출 또한 IPO 일반공모 공모자금 납입금을 통해 지급이 된 것으로 파악되고 있으며, 2023년 1분기말 기준 공모자금 사용내역은 분기보고서에 기재하였습니다.
당사의 2023년 1월 IPO 공모 당시 증권신고서에 따르면 용인시 남사읍의 스마트팩토리 토지매입자금의 경우 자체자금 및 금융기관 차입금으로 매입할 예정이며, 공모자금 중 약 85.2억원을 사용하여 공장 건물 건설 및 기계장치 설비를 구비할 것으로 계획하였으나, 이후 추가적인 사업계획 수립 중 신설 예정인 스마트팩토리의 규모가 IPO 공모시점 보다 증가하였고, 기존 매입 예정이었던 용인시 남사읍 북리 토지의 가격이 최초 계획당시보다 크게 상승하여 최종적으로 경기도 안성시에 위치한 토지를 매입하여 스마트팩토리를 신설할 것으로 사업계획을 변경하였습니다. 또한, 최근 원자재 가격 상승으로 인한 건축비 상승 및 금리인상으로 인한 금융기관 자금차입 부담이 증가하며 당사는 기존 계획을 변경하여 IPO 공모자금 중 약 14.5억원을 사용하여 경기도 안성시에 위치한 토지의 계약금 및 중도금을 납입 하였으며, 2023년 6월 29일 잔금 약 30억원을 IPO 공모자금을 통해 충당할 예정입니다.
공시서류 제출일 현재 전체 스마트팩토리 관련 비용 중 지급완료된, 또는 추후에 추가적으로 IPO 공모자금으로 사용될 자금의 내역은 아래와 같습니다.
| [스마트팩토리 관련 비용 상세내역] |
| (단위: 백만원) |
| 구분 | 내용 | 금액 | 일정 | 자금출처 |
|---|---|---|---|---|
| 토지대금 | 계약금 | 449 | 2023년 04월 | IPO 공모자금 (지급완료) |
| 중도금 | 1,000 | 2023년 05월 | IPO 공모자금 (지급완료) |
|
| 잔금 | 3,041 | 2023년 06월 | IPO 공모자금 (지급예정) |
|
| 소계 | 4,490 | - | - | |
| 등록비용등 | 442 | 2023년 06월 | IPO 공모자금 (지급예정) |
|
| 합계 | 4,932 | - | - | |
| 설계비 | 토목설계 | 30 | 2023년 06월 ~ 2023년 7월 | 자체자금 (지급예정) |
| 건축설계 | 182 | 2023년 06월 ~ 2023년 09월 | IPO 공모자금 (지급예정) |
|
| 감리용역 | 182 | 2023년 10월 ~ 2024년 09월 | IPO 공모자금 (지급예정) |
|
| 합계 | 393 | - | - | |
| 건축비 | 공사비 | 13,193 | 2023년 10월 ~ 2024년 09월 | 금번 일반공모 공모자금 (지급예정) |
| 기계설비 | 공장 설비 | 639 | 2024년 08월 ~ 2024년 09월 | 자체자금 (지급예정) |
| 기타 | 랙설치 | 300 | 2024년 08월 ~ 2024년 09월 | 자체자금 (지급예정) |
| 전시인테리어 | 700 | 2024년 08월 ~ 2024년 09월 | 자체자금 (지급예정) |
|
| 취득비용 등 | 861 | 2024년 10월 | 자체자금 (지급예정) |
|
| 소계 | 1,861 | - | - | |
| 총계 | 21,018 | - | - | |
| 출처 : 당사 제공 주) 상기 비용은 당사가 계획중인 일정으로 추후 건축사무소와의 설계 변경시 변동 될 수 있습니다 |
이와 같이 당사가 미사용 자금에 대해 납입부터 금번 공시서류 제출일 현재까지 상기 기재한 것과 같이 적절하게 사내에 유보했는지 여부를 확인하기 위해서는 위 공모 및 사모 자금이 각각 별도의 계좌로 구분되어 관리가 되어야 합니다. 당사는 위 공모 및 사모 조달자금을 별도의 계좌에 각각 예치하지 않았기 때문에 각 자금 출처에 따른 유입 자금과 유출 자금의 구분이 명확하지 않습니다. 공시서류 제출일 현재 당사는 IPO 공모자금 약 85.2억원 중 약 14.5억원을 스마트팩토리 토지매입대금으로 사용하였으며, 약 8.3억원을 금융기관 차입금 상환, 약 29.7억원을 일시적인 유동성 부족으로 인해 원부자재 구매 및 외주비 등의 운영자금으로 사용하였습니다. 따라서 현재 정기예금 등의 공모자금 잔액은 38억원이 존재하는 것으로 파악되고 있으며, 해당자금은 추후 스마트팩토리 토지매입 잔금 및 공장 건축설계 자금 등의 시설자금으로 모두 사용 될 예정입니다. IPO 공모자금의 사용내역은 아래표와 같습니다.
| [IPO 공모자금 사용내역] |
| (단위: 백만원) |
| 구분 | 내역 | 사용금액 |
|---|---|---|
| 토지대금 사용 | 스마트팩토리 토지구입 계약금 및 중도금 | 1,449 |
| 차입금 상환 | 농협은행 차입금 상환 | 834 |
| 운영자금 | 원부자재 및 외주비 등 운영자금 | 2,437 |
| 정기예금 등 잔액 | 공시서류 제출 전일 현재 잔액 (토지매입 잔금 및 건축설계비로 사용 예정) |
3,800 |
| 합계 | 8,520 | |
| 출처 : 당사 제공 |
당사는 상기한 바와 같이 기존 IPO 일반공모 납입대금을 기존 증권신고서 상의 자금의 사용목적과는 상이하게 사용한 이력이 있습니다. 이는 당사가 신설 계획중인 스마트팩토리의 사업계획 변경 및 당사의 일시적인 유동성 악화에 대응하기 위해 사용되었습니다.
당사는 금번 일반공모 공모자금 중 약 132억원을 사용하여 공장 건물 공사비로 사용 예정이나, 현재 진행중이 공장 건물 토목설계 및 건축설계 과정 중 당사의 예상과는 다르게 공장의 규모가 변동 될 경우 당사가 계획한 자금의사용목적과 다르게 운영자금 등의 목적으로 자금이 추가적으로 사용 될 수 있으며, 이와 같이 부득이한 사유로 인해 사용 목적과 다르게 사용되는 경우에는 자율공시를 통해 이를 주주 및 투자자에게 충분히 공시할 예정입니다.
당사는 공모 자금의 미사용 자금 운용과 관련하여, 관리 감독기관의 판단에 따라 미사용 자금 운용방법의 불명확성, 증권신고서 및 정기보고서(사업보고서, 반기 및 분기보고서) 허위기재 등 「자본시장과 금융투자업에 관한 법률」 제125조 제1항에 따른 신고 및 공시의무 위반으로 과징금, 임원의 해임, 일정기간 증권의 발행제한 등의 조치를 받을 수 있습니다. 또한 해당 위반이 확정될 경우 당사의 부정적 이미지 발생등으로 주가 하락은 물론, 금번 유상증자의 청약율 저하로 인해 공모자금 규모가 축소 될 경우 추가적인 차입발생으로 인해 재무안정성이 악화 될 수 있으니, 투자자께서는 이 점 유의하시기 바랍니다.
|
다. 성장성 및 수익성 악화 위험 |
당사는 2014년 10월 27일 설립되어 유아용 매트, 유아용 침구류 등의 유아가구 제조 및 판매사업을 주요 사업으로 영위하고 있으며, 2023년 02월 09일자로 코스닥 시장에 상장하였습니다. 당사는 영유아를 위한 다양한 제품을 제공하고 있으며, 생산은 전문 생산업체를 통해 외주 생산하고 있습니다. 당사 매출의 대부분은 소비자와 직접적으로 판매하는 B2C 전자상거래로 발생하며, 국내 주요 온라인 판매몰 및 자사몰을 통해 온라인으로 판매하고 있습니다.
최근 3년간 당사의 성장성 지표 추이는 다음과 같습니다.
| [최근 3년간 성장성 지표 현황] | |
| (K-IFRS, 연결) | (단위 : 백만원, %) |
| 구 분 | 2023년 1분기 | 2022년 | 2021년 | 2020년 |
|---|---|---|---|---|
| 총자산 | 24,023 | 15,964 | 11,537 | 9,245 |
| 매출액 | 6,862 | 27,182 | 20,896 | 18,499 |
| 영업이익 | (1,199) | 1,133 | 2,327 | 2,088 |
| 당기순이익 | (1,155) | 1,319 | 1,731 | 2,021 |
| 총자산증가율 | 50.49% | 38.36% | 24.80% | - |
| 매출액증가율 | 0.60% | 30.08% | 12.96% | - |
| 영업이익증가율 | 적자전환 | (51.30%) | 11.44% | - |
| 순이익증가율 | 적자전환 | (23.79%) | (14.35%) | - |
| 출처 : | 당사 정기보고서 |
| 주1) 총자산증가율 = | (해당 연도 총자산- 전년도 총자산) ÷ 전년도 총자산 |
| 주2) 매출액증가율 = | (해당 연도 매출액- 전년도 매출액) ÷ 전년도 매출액 |
| 주3) 영업이익증가율 = | (해당 연도 영업이익- 전년도 영업이익) ÷ 전년도 영업이익 |
| 주4) 순이익증가율 = | (해당 연도 순이익- 전년도 순이익) ÷전년도 순이익 |
| 주5) 당사의 2019년 재무자료의 경우 IFRS 기준으로 작성되지 않았기 때문에, 2020년 증가율은 기재하지 않았습니다. | |
최근 3년간 당사의 연결기준 총자산 규모는 2020년 9,245백만원, 2021년 11,537백만원, 2022년 15,964백만원, 2023년 1분기 24,023백만원으로 지속적으로 증가하였습니다. 2021년의 경우, 당사의 총자산 규모는 2020년 대비 2,292백만원이 증가하였는데, 이는 매출액 증가에 따른 당기순이익의 시현으로 현금및현금성자산이 유입되었기 때문입니다. 2022년의 경우 당사의 총자산 규모는 2021년 대비 4,426백만원이 증가하였는데, 이는 당사가 2021년 12월부터 신규사업인 G7 커피 유통 사업을 영위함에 따라 매출채권 및 재고자산의 규모가 확대되었기 때문입니다. 2023년 1분기의 경우, 당사의 총자산 규모는 2022년 대비 8,060백만원이 증가하였는데, 일반공모 유상증자를 통해 현금및현금성자산이 증가하였기 때문입니다. 이처럼, 당사의 최근 3년간 총자산 증가율은 2021년 24.8%, 2022년 38.4%, 2023년 1분기 50.5%로 지속적으로 증가하는 추세를 보이고 있습니다.
최근 3년간 당사의 연결기준 사업부문별 매출액 및 비중은 다음과 같습니다.
| [최근 3년간 사업부문별 매출액 및 비중] | |
| (K-IFRS, 연결) | (단위 : 백만원, %) |
| 구 분 | 사업부문 | 주요제품 및 서비스 | 2023년 1분기 | 2022년 1분기 | 2022년 | 2021년 | 2020년 | |||||
|---|---|---|---|---|---|---|---|---|---|---|---|---|
| 매출액 | 비중 | 매출액 | 비중 | 매출액 | 비중 | 매출액 | 비중 | 매출액 | 비중 | |||
| 제품매출 | 유아가구 | 아기침대,베이비룸,매트 외 | 2,829 | 41.23% | 5,196 | 76.18% | 17,163 | 63.14% | 17,265 | 82.62% | 16,228 | 87.72% |
| 유아스킨케어 | 유아용 스킨케어, 세제 외 | 556 | 8.10% | 387 | 5.67% | 1,740 | 6.40% | 924 | 4.42% | 356 | 1.92% | |
| 기타 | 반려동물용품, 패브릭 제품 외 | 125 | 1.82% | 323 | 4.74% | 1,351 | 4.97% | 1,120 | 5.36% | 1,105 | 5.97% | |
| 소 계 | 3,510 | 51.15% | 5,907 | 86.60% | 20,254 | 74.51% | 19,310 | 92.41% | 17,689 | 95.62% | ||
| 상품매출 | 기타 | G7 커피, 반려동물 용품 외 | 3,047 | 44.40% | 530 | 7.77% | 5,712 | 21.01% | 86 | 0.41% | 32 | 0.17% |
| 용역매출 | 기타 | 배송비 외 | 305 | 4.44% | 384 | 5.63% | 1,216 | 4.47% | 1,500 | 7.18% | 778 | 4.21% |
| 합 계 | 6,862 | 100.00% | 6,821 | 100.00% | 27,182 | 100.00% | 20,896 | 100.00% | 18,499 | 100.00% | ||
| 출처 : | 당사 정기보고서, 당사 제시 |
최근 3년간 당사의 연결기준 매출액은 2020년 18,499백만원, 2021년 20,896백만원, 2022년 27,182백만원으로 지속적으로 증가하였습니다. 2021년의 경우 매출액이 전년 대비 12.96% 상승하였는데, 이는 유아가구, 유아스킨케어 등 유아 관련 제품 매출이 확대되었기 때문입니다. 2022년의 경우 매출액이 전년 대비 30.08% 증가하였는데, 이는 2021년 12월에 당사가 커피 유통 사업을 신규사업으로 추진하면서 상품 매출이 추가적으로 발생하였기 때문입니다. 이에 따라, 기존 2021년의 제품 매출 비중 92.41%, 상품 매출 0.41% 수준에서, 2022년 제품 매출 비중은 74.5%로, 상품 매출은 21.0% 수준으로 변동되었습니다. 2023년 1분기 연결기준 매출액의 경우, 6,862백만원으로 전년 동기와 유사한 수준을 기록하였으며, 제품 매출 비중 51.2%, 상품 매출 비중 44.4%를 기록하였습니다.
이처럼 당사의 총자산, 매출액 등 기업 외형을 평가하는 지표는 최근 3년간 지속적으로 증가하는 추세를 보이고 있습니다. 이는 당사 주력 제품인 유아용 매트가 아이 안전을 위한 필수재로 인식되면서 판매량이 증가하였으며, 2021년 12월부터 커피 유통 사업을 신규 사업으로 추진하면서 매출액이 확대되었기 때문입니다. 그럼에도 불구하고, 향후 예측할 수 없는 변수로 인하여 당사의 전방 산업이 부정적인 영향을 받아 공급과 수요가 부진하게 되거나, 사업과 관련된 대내외적인 변수들로 인하여 당사의 총자산과 매출액 등 기업의 외형이 축소되어 성장이 정체될 수 있으니, 투자자께서는 이 점 유의하시기 바랍니다.
최근 3년간 당사의 연결기준 손익계산서상 주요 항목 추이는 다음과 같습니다.
| [최근 3년간 손익계산서상 주요 항목 추이] | |
| (K-IFRS, 연결) | (단위 : 백만원, %) |
| 구 분 | 2023년 1분기 | 2022년 1분기 | 2022년 | 2021년 | 2020년 |
|---|---|---|---|---|---|
| 매출액 | 6,862 | 6,821 | 27,182 | 20,896 | 18,499 |
| 매출원가 | 4,984 | 4,188 | 18,192 | 12,653 | 11,684 |
| 판매비와관리비 | 3,077 | 1,974 | 7,857 | 5,917 | 4,727 |
| 영업이익(손실) | (1,199) | 659 | 1,133 | 2,327 | 2,088 |
| 당기순이익(손실) | (1,155) | 630 | 1,319 | 1,731 | 2,021 |
| 매출원가율 | 72.63% | 61.40% | 66.93% | 60.55% | 63.16% |
| 판관비율 | 44.84% | 28.94% | 28.90% | 28.31% | 25.55% |
| 영업이익률 | (17.47%) | 9.67% | 4.17% | 11.14% | 11.29% |
| 당기순이익률 | (16.84%) | 9.23% | 4.85% | 8.28% | 10.92% |
| 출처 : | 당사 정기보고서 |
최근 3년간 당사의 연결기준 매출액은 2020년 18,499백만원, 2021년 20,896백만원, 2022년 27,182백만원이며, 매출원가는 2020년 11,684백만원, 2021년 12,653백만원, 2022년 18,192백만원으로, 매출원가율은 2020년 63.16%, 2021년 60.55%, 2022년 66.93% 수준입니다. 2023년 1분기 연결기준 매출액은 6,862백만원으로 전년 동기와 유사한 수준을 기록하였으며, 매출원가는 4,984백만원으로, 매출원가율은 전년 동기 대비 11.24%p 증가한 72.63%를 기록하였습니다.
최근 3년간 당사의 연결기준 매출원가 현황은 다음과 같습니다.
| [최근 3년간 매출원가 현황] |
|
| (K-IFRS, 연결) | (단위 : 백만원, %) |
| 구 분 | 2023년 1분기 | 2022년 1분기 | 2022년 | 2021년 | 2020년 | |
|---|---|---|---|---|---|---|
| 제품매출 | 매출액 | 3,510 | 5,907 | 20,254 | 19,310 | 17,689 |
| 매출원가 | 2,163 | 3,436 | 11,907 | 11,135 | 10,874 | |
| 매출원가율 | 61.62% | 58.17% | 58.79% | 57.66% | 61.47% | |
| 상품매출 | 매출액 | 3,047 | 530 | 5,712 | 86 | 32 |
| 매출원가 | 2,519 | 358 | 5,072 | 69 | 32 | |
| 매출원가율 | 82.67% | 67.55% | 88.80% | 80.23% | 100.00% | |
| 용역매출 | 매출액 | 305 | 384 | 1,216 | 1,500 | 778 |
| 매출원가 | 301 | 393 | 1,211 | 1,448 | 778 | |
| 매출원가율 | 98.69% | 102.34% | 99.59% | 96.53% | 100.00% | |
| 합 계 | 매출액 | 6,862 | 6,821 | 27,182 | 20,896 | 18,499 |
| 매출원가 | 4,984 | 4,188 | 18,192 | 12,653 | 11,684 | |
| 매출원가율 | 72.63% | 61.40% | 66.93% | 60.55% | 63.16% | |
| 출처 : | 당사 정기보고서, 당사 제시 |
최근 3년간 당사의 연결기준 매출원가율이 지속적으로 악화된 점은 수익성이 낮은 상품 매출(G7 커피 유통 사업)의 매출액 대비 비중이 확대되었기 때문입니다. G7 커피 유통 사업이 본격적으로 시작된 2022년의 경우 매출원가율은 66.93%로 전년 대비 6.38%p 증가하였습니다. 또한, 2022년 1분기 당사의 매출원가율은 61.40%였으나, 2023년 1분기 매출원가율은 72.63%로 매출원가율이 전년 동기 대비 11.24%p 상승하였습니다. 이는 수익성이 낮은 커피 유통 사업의 매출 비중이 확대되었기 때문으로, 2023년 1분기 기준 제품 매출 대비 상품 매출의 원가율이 11.05%p 정도 높은 수준을 기록하고 있습니다.
한편, 최근 3년간 당사의 판매비와관리비는 2020년 4,727백만원, 2021년 5,917백만원, 2022년 7,857백만원, 2023년 1분기 3,077백만원으로, 매출액 대비 판매비와관리비율은 2020년 25.55%, 2021년 28.31%, 2022년 28.90%, 2023년 1분기 44.84% 수준입니다.
최근 3년간 당사의 연결기준 판매비와관리비 주요 세부내역은 다음과 같습니다.
| [최근 3년간 판매비와관리비 주요 세부내역] | |
| (K-IFRS, 연결) | (단위 : 백만원, %) |
| 구분 | 2023년 1분기 | 2022년 1분기 | 2022년 | 2021년 | 2020년 | |||||
|---|---|---|---|---|---|---|---|---|---|---|
| 매출액 | 비중 | 매출액 | 비중 | 매출액 | 비중 | 매출액 | 비중 | 매출액 | 비중 | |
| 급 여 | 887 | 28.83% | 595 | 30.14% | 2,375 | 30.23% | 1,953 | 33.01% | 1,640 | 34.69% |
| 지급수수료 | 748 | 24.31% | 282 | 14.29% | 1,024 | 13.03% | 640 | 10.82% | 327 | 6.92% |
| 판매수수료 | 236 | 7.67% | 226 | 11.45% | 874 | 11.12% | 584 | 9.87% | 461 | 9.75% |
| 경상연구개발비 | 211 | 6.86% | 137 | 6.94% | 559 | 7.11% | 352 | 5.95% | 353 | 7.47% |
| 지급임차료 | 176 | 5.72% | 15 | 0.76% | 162 | 2.06% | 19 | 0.32% | 39 | 0.83% |
| 기 타 | 819 | 26.62% | 719 | 36.42% | 2,863 | 36.44% | 2,369 | 40.04% | 1,907 | 40.34% |
| 합 계 | 3,077 | 100.00% | 1,974 | 100.00% | 7,857 | 100.00% | 5,917 | 100.00% | 4,727 | 100.00% |
| 출처 : | 당사 정기보고서, 당사 제시 |
최근 3년간 당사의 연결기준 판매비와관리비 주요 세부내역을 살펴보면, 주로 급여, 지급수수료, 판매수수료, 경상연구개발비 등의 항목에서 발생하고 있습니다. 2022년 연결기준 항목의 비중은 급여 30.23%, 지급수수료 13.03%, 판매수수료 11.12%, 경상연구개발비 7.11%를 기록하고 있습니다.
최근 3년간 당사의 급여는 2020년 1,640백만원, 2021년 1,953백만원, 2022년 2,375백만원으로 지속적으로 증가하였으며 해당 기간 직원 수는 2020년 61명, 2021년 74명, 2022년 76명으로, 1인 평균 급여액은 최근 3년간 유사한 수준입니다. 또한, 당사는 회계감사 및 물류작업 인건비와 관련하여 지급수수료가 발생하고 있습니다. 최근 3년간 지급수수료는 2020년 327백만원, 2021년 640백만원, 2022년 1,024백만원으로 총 판매비와관리비 대비 비중은 각각 2020년 10.82%, 2021년 13.03%, 2022년 24.31%를 차지하고 있습니다. 2023년 1분기의 경우, 상장과 관련한 회계감사 및 평가수수료 발생으로 인해 지급수수료의 비중 24.31%로 전년 동기 대비 10.02%p 증가하였으며, 리스부채가 소멸되어 지급임차료로 계상되어 지급임차료의 비중이 증가하였습니다.
상기와 같은 판매비와관리비를 지출하여 최근 3년간 당사의 영업이익은 2020년 2,088백만원, 2021년 2,327백만원, 2022년 1,133백만원으로, 영업이익률은 2020년 11.29%, 2021년 11.14%, 2022년 4.17% 수준입니다. 한편, 2023년 1분기의 경우 연결기준 영업손실 -1,199백만원으로 적자전환하였으며, 영업손실률은 -17.47%를 기록하였습니다.
최근 3년간 당사의 연결기준 금융손익 세부내역은 다음과 같습니다.
| [최근 3년간 금융손익 세부내역] | |
| (K-IFRS, 연결) | (단위 : 백만원) |
| 구분 | 2023년 1분기 | 2022년 1분기 | 2022년 | 2021년 | 2020년 | |
|---|---|---|---|---|---|---|
| 금융수익 | 이자수익 | 30 | 1 | 2 | 2 | 6 |
| 외환차익 | 19 | 2 | 14 | 17 | 4 | |
| 외화환산이익 | 86 | - | 1 | 0 | - | |
| 장기금융상품처분이익 | - | 0 | 0 | - | - | |
| 장기금융상품평가이익 | 0 | - | - | 1 | 1 | |
| 합 계 | 136 | 2 | 17 | 20 | 11 | |
| 금융비용 | 이자비용 | 74 | 26 | 165 | 100 | 148 |
| 외환차손 | 5 | 0 | 70 | 1 | 13 | |
| 외화환산손실 | 2 | - | 42 | 0 | 16 | |
| 장기금융상품평가손실 | - | - | 2 | - | ||
| 합 계 | 81 | 26 | 279 | 102 | 177 | |
| 금융손익 | 54 | (24) | (262) | (81) | (166) | |
| 출처 : | 당사 정기보고서, 당사 제시 |
최근 3년간 당사의 금융손익은 2020년 -166백만원, 2021년 -81백만원, 2022년 -262백만원으로 지속적인 금융손실이 발생하였습니다. 이는 환율 변동에 따른 외화 관련 손실 및 금융기관 차입금 등에 따른 이자비용이 발생하였기 때문입니다. 반면, 2023년 1분기의 경우 연초 대비 환율이 상승하여 외화 관련 이익이 증가하였으며, 정기예적금 가입을 통해 이자수익이 증가하는 등 54백만원의 금융이익이 발생하였습니다.
최근 3년간 당사의 연결기준 기타손익 세부내역은 다음과 같습니다.
| [최근 3년간 기타손익 세부내역] | |
| (K-IFRS, 연결) | (단위 : 백만원) |
| 구분 | 2023년 1분기 | 2022년 1분기 | 2022년 | 2021년 | 2020년 | |
|---|---|---|---|---|---|---|
| 기타수익 | 유형자산처분이익 | - | - | 52 | 6 | - |
| 리스해지이익 | - | - | 2 | - | - | |
| 잡이익 | 1 | 1 | 5 | 6 | 28 | |
| 합 계 | 1 | 1 | 59 | 12 | 28 | |
| 기타비용 | 기타의대손상각비 | - | - | - | 9 | - |
| 기부금 | 10 | - | 1 | 61 | 21 | |
| 유형자산처분손실 | 0 | - | 0 | 12 | - | |
| 리스해지손실 | - | - | 1 | - | - | |
| 잡손실 | 0 | 7 | 8 | 6 | 3 | |
| 재고자산평가손실 | 1 | - | 9 | 89 | - | |
| 합 계 | 12 | 7 | 18 | 177 | 43 | |
| 기타손익 | (11) | (6) | 41 | (165) | (15) | |
| 출처 : | 당사 정기보고서, 당사 제시 |
최근 3년간 당사의 기타손익은 2020년 -15백만원, 2021년 -165백만원, 2022년 41백만원을 기록하며, 당사의 매출액 규모 대비 크지 않은 수준을 보이고 있습니다. 2022년 유형자산처분이익 52백만원은 법인차량 매각에 따라 발생하였으며, 기부금의 경우 당사가 소외계층에게 매트류를 기부하면서 발생하였습니다.
이에 따라, 당사는 최근 3년간 연결기준 당기순이익 2020년 2,021백만원, 2021년 1,731백만원, 2022년 1,319백만원을 시현하였으나, 2023년 1분기 연결기준 당기순손실 -1,155백만원을 기록하였습니다.
이처럼, 당사는 영업외손익이 지속적으로 발생하고 있으나 전체 매출 및 영업이익 대비 그 규모가 크지 않은 상황입니다. 그럼에도 불구하고, 향후 급격한 환율 및 이자율의 변동이 발생할 경우 당사의 영업외손익이 악화되어 당사의 수익성에 부정적인 영향을 미칠 수 있으니 투자자께서는 이 점 유의하시기 바랍니다.
상기 기재한 내용을 종합해 보면, 당사의 총자산과 매출액 등 기업의 외형을 평가하는 지표는 최근 3년간 지속적으로 성장하였으나, 원재료 가격의 상승 및 원가율이 높은 신규 사업 부문의 성장으로 인해 매출원가율이 악화되고 있는 추세입니다. 당사는 이를 개선하고자 스마트 공장을 건설하여 원가 및 품질의 경쟁력을 확보하고 자체 생산 라인을 통해 재고자산 보관 비용의 부담을 감소시킬 계획입니다. 그러나, 당사의 예상과 달리 시장 환경이 변화하여 사업 환경이 악화될 경우 당사의 총자산 및 매출액 등 기업의 외형이 축소되어 당사의 성장이 정체되고 당사의 수익성에 부정적인 영향을 미칠 수 있으니 투자자께서는 이 점 유의하시기 바랍니다.
|
라. 재무안정성 관련 위험 |
최근 3년간 당사의 주요 재무안정성 지표 추이는 다음과 같습니다.
| [최근 3년간 주요 재무안정성 지표 추이] | |
| (K-IFRS, 연결) | (단위 : %) |
| 구 분 | 2023년 1분기 | 2022년 | 2021년 | 2020년 |
|---|---|---|---|---|
| 유동비율 | 256.12% | 151.58% | 142.22% | 106.65% |
| 부채비율 | 51.14% | 98.05% | 113.21% | 207.46% |
| 차입금의존도 | 23.31% | 39.93% | 38.00% | 48.27% |
| 이자보상배율(배) | -16.22 | 6.86 | 23.16 | 14.05 |
| 출처 : | 당사 정기보고서 |
| 주1) | 유동비율 = 유동자산 ÷ 유동부채 |
| 주2) | 부채비율 = 부채총계 ÷ 자본총계 |
| 주3) | 차입금의존도 = 총차입금 ÷ 자산총계 |
| 주4) | 이자보상배율 = 영업이익 ÷ 이자비용 |
최근 3년간 당사의 연결기준 부채비율은 2020년 207.46%, 2021년 113.21%, 2022년 98.05%로 지속적으로 감소하였으며, 유동비율은 2020년 106.65%, 2021년 142.22%, 2022년 151.58%로 지속적으로 증가하였습니다. 이는 당사가 매년 실적이 개선되어 당기순이익을 시현함에 따라 안정적으로 현금을 창출할 수 있었고, 제품 생산을 100% 외주로 진행하는 구조이므로 대규모 시설투자가 수반되지 않아 큰 규모의 현금 유출이 발생하지 않았기 때문입니다. 2023년 1분기의 경우, 연결기준 부채비율은 51.14%로 감소하였으며, 유동비율은 256.12%로 증가하였는데 이는 유상증자를 통해 자본이 확충되고 현금이 유입되었으며, 단기차입금 등을 상환하였기 때문입니다.
한편, 당사의 연결기준 차입금 의존도는 2020년 48.27%, 2021년 38.00%로 감소하였으나, 2022년 39.93%로 증가하였습니다. 당사는 2021년 12월 G7 커피 판매에 관한 업무 협약을 체결하고 커피 유통 사업을 개시하면서 재고자산과 매출채권이 증가하였으며, 이러한 운전자본 증가에 대응하기 위해 시중은행 차입 등을 통해 2022년 중 차입금 규모가 확대되었습니다. 반면, 2023년 1분기의 경우 당사의 차입금 의존도는 23.31%로 재차 감소하였는데, 이는 유상증자를 통해 현금이 유입되었으며, 단기차입금을 일부 상환하였기 때문입니다.
최근 3년간 당사의 연결기준 이자보상배율은 2020년 14.05배, 2021년 23.16배, 2022년 6.86배 수준입니다. 이자보상배율은 기업의 이자부담 능력을 판단하는 지표로, 이자보상배율이 1배가 넘으면 기업이 이자비용을 부담하고도 수익을 발생시킨다는 의미이고, 1배 미만일 경우에는 영업활동을 통하여 창출한 이익으로 이자비용조차 지불할 수 없다는 것을 의미합니다. 2023년 1분기 이자보상배율은 -16.22배로 1배 미만을 기록하였는데, 이는 당사의 상품 매출 비중의 증가에 따라 매출원가율이 악화되었으며, 코스닥 시장 상장 과정에서 일회성 비용인 지급수수료 등이 발생하여 영업적자를 기록하였기 때문입니다. 향후에도 당사가 예상한 외부 변수 발생 및 실적 악화 등으로 인해 이자보상배율이 1배 미만을 하회할 가능성이 존재하며, 만약, 지속으로 이자보상배율이 1배 미만으로 악화될 경우 사업 영위를 위한 운영자금 조달에 부정적인 영향을 미칠 수 있습니다.
최근 3년간 당사의 차입금 현황은 다음과 같습니다.
| [최근 3년간 차입금 현황] | |
| (K-IFRS, 연결) | (단위 : 백만원) |
| 구 분 | 2023년 1분기 | 2022년 | 2021년 | 2020년 |
|---|---|---|---|---|
| 자산총계 | 24,023 | 15,964 | 11,537 | 9,245 |
| 부채총계 | 8,129 | 7,903 | 6,126 | 6,238 |
| 총차입금 | 5,600 | 6,375 | 4,385 | 4,463 |
| 유동성차입금 | 3,667 | 4,392 | 2,054 | 2,039 |
| 비유동성차입금 | 1,933 | 1,983 | 2,330 | 2,424 |
| 총차입금의존도 | 23.31% | 39.93% | 38.00% | 48.27% |
| 현금및현금성자산 | 3,396 | 209 | 2,062 | 683 |
| 순차입금 | 2,204 | 6,166 | 2,323 | 3,780 |
| 순차입금의존도 | 9.18% | 38.62% | 20.14% | 40.89% |
| 출처 : | 당사 정기보고서 |
| 주1) 유동성차입금 = | 단기차입금 + 유동성장기부채 + 리스부채 |
| 주2) 비유동성차입금 = | 장기차입금 + 장기리스부채 |
| 주3) 총차입금의존도 = | 총차입금 ÷ 자산총계 |
| 주4) 순차입금의존도 = | 순차입금 ÷ 자산총계 |
최근 3년간 당사의 총차입금 규모는 2020년 4,463백만원, 2021년 4,385백만원로 유사한 수준을 보이다 2022년 6,375백만원으로 증가하였습니다. 이는 당사의 G7 커피 유통 사업 관련 운전자금을 차입금을 통해 조달한 점에 기인하며, 이로 인해 유동성 차입금이 2020년 2,039백만원, 2021년 2,054백만원에서 2022년 4,392백만원으로 증가하였습니다. 한편, 2023년 1분기의 경우 당사의 총차입금 규모는 5,600백만원으로 전년 대비 775백만원이 감소하였는데, 이는 당사가 단기차입금을 일부 상환하였기 때문입니다. 이에 따라, 현금및현금성자산을 제외한 순차입금의존도는 9.18%로 전년 대비 29.44%p 감소하였습니다.
공시서류 제출 전일 기준 당사의 연결기준 장ㆍ단기차입금 세부내역은 다음과 같습니다.
| [장ㆍ단기차입금 세부내역] | |
| (K-IFR, 연결) | (단위 : 백만원) |
| 구 분 | 차입처 | 내역 | 만기일 | 연이자율 | 공시서류 제출 전일 | 2023년 1분기 |
|---|---|---|---|---|---|---|
| 단기차입금 | 국민은행 | 운전자금대출 | 2023-10-21 | 4.76% | 500 | 500 |
| KEB하나은행 | 운전자금대출 | 2024-05-20 | 6.00% | 500 | 500 | |
| 운전자금대출 | 2023-11-07 | 5.47% | 1,000 | 1,000 | ||
| 신한은행 | 운전자금대출 | 2023-06-15 | 5.86% | 500 | 500 | |
| 단기차입금 소계 | 2,500 | 2,500 | ||||
| 장기차입금 | 국민은행 | 일반자금대출 | 2029-11-11 | 2.90% | 1,100 | 1,100 |
| 2023-11-12 | 4.97% | 67 | 67 | |||
| 2024-05-28 | 4.57% | 650 | 650 | |||
| 시설자금대출 | 2023-11-12 | 5.02% | 900 | 900 | ||
| 신한은행 | 운전자금대출 | 2024-11-26 | 3.11% | 167 | 167 | |
| 중소벤처 | 운전자금대출 | 2025-05-19 | 2.99% | 217 | 217 | |
| 장기차입금 소계 | 3,100 | 3,100 | ||||
| 합 계 | 5,600 | 5,600 | ||||
| 출처 : | 당사 정기보고서, 당사 제시 |
공시서류 제출 전일 기준 당사의 연결기준 장ㆍ단기차입금은 총 5,600백만원으로, 단기차입금 2,500백만원, 장기차입금 3,100백만원입니다. 당사의 경우, 차입처로부터 상환 또는 기간 연장이 정상적으로 이뤄지고 있으며, 단기차입금에 대해 만기 연장을 계획하고 있습니다. 그러나, 향후 당사의 사업 실적이 악화될 경우 금융기관으로부터 긴급한 자금 상환 요청이 발생할 수 있으며, 금융기관의 상환 요청에도 불구하고 당사의 상환 여력이 부족하여 기한이익 상실 등이 발생할 경우 당사의 신용도는 크게 하락할 수 있으며, 이는 당사의 사업에 부정적인 영향을 미칠 수 있으니 투자자께서는 이 점 유의하시기 바랍니다.
상기 내용을 종합해보면, 최근 3년간 당사의 매출액은 지속적으로 증가하였으며, 이에 따라 당기순이익을 시현하였습니다. 또한, 유상증자를 통해 자본을 확충하고 현금 유입을 통해 차입금을 상환하면서 2023년 1분기 연결기준 당사의 부채비율, 유동비율, 차입금 의존도는 양호한 수준을 기록하였습니다. 그러나, 당사는 매출원가율이 높은 상품 매출 비중의 증가, 지급수수료 등 일회성 비용이 발생하며 수익성이 악화되었으며 2023년 1분기 적자전환하며 음(-)의 이자보상배율을 기록하였습니다. 당사는 G7 커피 유통 사업 관련 운전자금 확보를 위해 금융기관으로부터 차입금을 조달하는 등 이자비용이 지속적으로 발생하고 있으며, 향후 경기 변동 및 금리 상승 등의 예측할 수 없는 변수로 인해 이자비용이 더욱 확대되어 당사의 수익성 및 재무안정성 지표들이 악화될 위험이 존재합니다. 또한, 향후 외부 금융환경 변화로 인해 차입금의 상환 요구가 발생하거나 계획대로 만기연장이 이루어지지 않을 시 당사의 유동성에 위기가 발생할 수 있으며, 금번 유상증자의 청약율 저하로 인해 공모자금 규모가 축소 될 경우 추가적인 차입발생으로 인해 재무안정성이 악화 될 수 있으니, 투자자께서는 이 점 유의하시기 바랍니다.
|
마. 매출채권 미회수 관련 위험 |
당사는 주로 자사몰이나 온라인몰 등을 통해 고객에게 직접 제품을 판매하는 D2C 구조로, 매출액 대비 매출채권의 비중이 높지 않은 상황입니다. 당사는 매출채권에 대하여 전체 기간 기대신용손실을 손실충당금으로 인식하는 간편법으로 대손충당금을 설정하고 있으며, 2023년 1분기 기준 평균 180일 이상된 매출채권에 대하여 100% 대손충당금을 설정하고 있습니다.
최근 3년간 당사의 연결기준 매출채권 추이는 다음과 같습니다.
| [최근 3년간 매출채권 현황 및 지표 추이] | |
| (K-IFRS, 연결) | (단위 : 백만원) |
| 구 분 | 2023년 1분기 | 2022년 | 2021년 | 2020년 |
|---|---|---|---|---|
| 매출액 | 6,862 | 27,182 | 20,896 | 18,499 |
| 매출채권 | 2,973 | 2,930 | 771 | 583 |
| 매출액 대비 매출채권 비중 | 10.83% | 10.78% | 3.69% | 3.15% |
| 매출채권회전율(회) | 9.30 | 14.69 | 30.87 | 31.72 |
| 출처 : | 당사 정기보고서, 당사 제시 |
| 주1) | 매출채권회전율 = 매출액 ÷ [(전기 매출채권 + 당기 매출채권) ÷ 2] |
| 주2) | 2023년 1분기 매출채권회전율은 매출액을 연환산하여 계산하였습니다. |
| 주3) | 당사의 2019년 재무자료의 경우 IFRS 기준으로 작성되지 않았기 때문에 2020년 매출채권회전율은 2020년 매출액 / 2020년말 매출채권 으로 계산하였습니다. |
당사는 2021년 12월부터 신규 사업인 G7 커피 유통 사업을 영위하였으며, 이는 당사의 매출채권 증가 주요 원인으로 작용하고 있습니다. 최근 3년간 당사의 연결기준 매출채권은 2020년 583백만원, 2021년 771백만원, 2022년 2,930백만원, 2023년 1분기 2,973백만원으로 지속적으로 증가하였으며, 매출액 대비 매출채권 비중은 2020년 3.15%, 2021년 3.69%, 2022년 10.78%, 2023년 1분기 10.83% 수준입니다.
1년 동안 매출채권이 현금으로 회수되는 횟수를 뜻하는 매출채권회전율은 기업의 활동성을 평가하는 정량적 지표 중 하나로 활용되고 있습니다. 최근 3년간 당사의 매출채권회전율은 2020년 31.72회, 2021년 30.87회, 2022년 14.69회, 2023년 1분기 9.30회로 지속적으로 낮아지고 있으며, 이는 당사의 매출액 증가율 대비 매출채권 증가율이 높은 수준을 기록하였기 때문입니다.
최근 3년간 매출채권 및 기타채권 대손충당금 설정 현황은 다음과 같습니다.
| [최근 3년간 매출채권 및 기타채권 대손충당금 설정 현황] |
| (단위 : 백만원, %) |
| 구 분 | 2023년 1분기 | 2022년 | 2021년 | 2020년 | |
|---|---|---|---|---|---|
| 매출채권 | 채권 총액 | 3,109 | 2,932 | 775 | 594 |
| 대손충당금 | 136 | 2 | 5 | 10 | |
| 장부금액 | 2,973 | 2,930 | 771 | 583 | |
| 대손충당금 설정률 | 4.39% | 0.05% | 0.59% | 1.73% | |
| 미수금 | 채권 총액 | 900 | 559 | 17 | 125 |
| 장부금액 | 900 | 559 | 17 | 125 | |
| 미수수익 | 채권 총액 | 12 | 0 | 0 | 4 |
| 장부금액 | 12 | 0 | 0 | 4 | |
| 장기보증금 | 채권 총액 | 6 | 6 | 6 | 5 |
| 장부금액 | 6 | 6 | 6 | 5 | |
| 합 계 | 채권 총액 | 4,027 | 3,497 | 798 | 728 |
| 대손충당금 | 136 | 2 | 5 | 10 | |
| 장부금액 | 3,891 | 3,495 | 794 | 717 | |
| 대손충당금 설정률 | 3.39% | 0.05% | 0.57% | 1.41% | |
| 출처 : | 당사 정기보고서, 당사 제시 |
최근 3년간 당사의 매출채권 대손충당금 설정률은 2020년 1.73%, 2021년 0.59%, 2022년 0.05%, 2023년 1분기 4.39% 수준이며, 미수금, 미수수익, 장기보증금에 대해서는 대손충당금을 설정하고 있지 않습니다, 미수금의 경우 당사가 업무협약에 따라 G7 커피 판매 등의 특정 조건을 충족하게 되면, 다음 발주 시에 총 매입대금에서 차감되는 구조로 업무협약에 따라 인센티브를 수령할 수 있으며, 차감되지 않은 인센티브가 계상된 금액입니다.
2023년 1분기 연결기준 당사의 매출채권 연령분석 및 대손충당금 설정 세부 내역은 다음과 같습니다.
| [2023년 1분기 매출채권 연령분석 및 대손충당금 설정 세부 내역] |
|
| (K-IFRS, 연결) | (단위 : 백만원) |
| 구 분 | 장부금액 | 대손충당금 | 순장부금액 | 대손충당금 설정률 | |
|---|---|---|---|---|---|
| 미연체 | 1,532 | - | 1,532 | - | |
| 연체된 일수 |
30일 미만 | 759 | 0 | 759 | 0.03% |
| 31~60일 | 71 | 68 | 3 | 96.32% | |
| 61~90일 | 12 | 12 | - | 100.00% | |
| 91~120일 | 47 | 3 | 44 | 5.94% | |
| 121~180일 | 688 | 52 | 636 | 7.54% | |
| 180일 초과 | 1 | 1 | - | 100.00% | |
| 합 계 | 3,109 | 136 | 2,973 | 4.39% | |
| 출처 : | 당사 정기보고서, 제시 |
당사는 G7 커피의 국내 온라인 총판권을 확보하고 있으며, 쿠팡, 네이버, 카카오톡 등 외부몰을 통해 상품을 판매하고 있습니다. 2023년 1분기 연결기준 매출채권 연령을 세부적으로 살펴보면, 3개월 미만 매출채권 잔액이 전체 매출채권 잔액 대비 높은 비중을 차지하고 있는데, 이는 당사의 주요 판매채널인 쿠팡향 매출의 경우 상품 납품 50일 이후 판매대금이 정산되어 입금되는 구조로 매출채권을 회수하고 있습니다.
한편, 당사는 베이비룸 등을 중국 소재 법인인 YANBIAN HUANXUAN TRADING CO., LTD.에 수출하고 있으며, YANBIAN HUANXUAN TRADING CO., LTD.에 대한 매출채권 잔액은 2023년 1분기말 기준으로 688백만원으로, 전체 매출채권의 약 22% 수준입니다. YANBIAN HUANXUAN TRADING CO., LTD.은 당사와 장기간 매출 거래를 해온 매출처로, 과거 매출채권 미회수 내역은 존재하지 않으나, 2023년 1분기 기준 연체 매출채권 잔액이 증가하였습니다. 이는 YANBIAN HUANXUAN TRADING CO., LTD.의 창고가 위치한 연변 지역이 지속된 봉쇄로 컨테이너 및 택배 입출고가 원활하지 못 함에 따라 수출된 물량의 판매가 지연되었기 때문입니다.
| [2023년 1분기 매출채권 회수현황] | |
| (K-IFRS, 연결) | (단위 : 백만원) |
|
회사명 |
2023년 1분기 (A) |
회수현황(B) |
잔액 (A-B) |
|
|
4월 |
5월 |
|||
| YANBIAN HUANXUAN TRADING CO., LTD. | 688 | - | - | 688 |
| 쿠팡 | 1,827 | 840 | 987 | - |
| 네이버 스마트 스토어 | 28 | 28 | - | - |
| 기타 | 566 | 486 | - | 80 |
|
합계 |
3,109 | 1,354 | 987 | 768 |
| 출처 : | 당사 제시 |
| 주) | 5월 회수현황은 공시서류 제출 전일 현재까지 회수된 금액 기준 입니다. |
당사는 정기적인 화상회의 등을 통해 YANBIAN HUANXUAN TRADING CO., LTD.향 매출채권 회수 상황을 관리하고 있습니다. 최근, 중국의 봉쇄 조치 종료 및 5월 어린이날, 6월 중국 내 온라인 플랫폼 정기 할인행사 등에 따라 당사 제품의 판매가 확대가 예상되어 2023년 2분기 중 판매대금을 정산받을 것으로 예상하고 있으며, 2023년 4월말 YANBIAN HUANXUAN TRADING CO., LTD.으로부터 6월 중 매출대금에 지연이자를 포함하여 분할 정산 받기로 하는 공문을 수령하였습니다. 이와 더불어, 당사는 YANBIAN HUANXUAN TRADING CO., LTD.와는 직접수출이 아닌 간접수출 형태로 변경하는 등의 방법으로 일부 수출을 진행 중에 있습니다.
한편, 당사는 2023년 1분기 기준 장기 연체 매출채권에 미회수 위험 외 추가로 거래 처 파산, 회생절차에 따른 매출채권 전액 일시 대손상각의 위험이 존재합니다. 당사는 자사몰 및 다양한 온라인 쇼핑몰을 통해 당사 제품을 판매해왔으나, 라이브커머스 플랫폼 '보고(VOGO)'에서 유아용품 등을 판매해왔습니다. 그러나, 보고를 운영하는 '보고플레이'가 2023년 3월 회생절차에 들어가면서 매출채권 잔액 79백만원 전액을 2023년 1분기 기준 대손상각 처리하여 판매비와관리비에 반영하였습니다. 향후, 회생과 관련한 진행상황에 따라 당사의 회수가능 금액 및 추가사항에 대해서 지속적으로 파악할 예정이며, 당사는 해당 위험을 사전에 방지하고 매출채권 보증보험의 가입기준을 늘려 추가적인 대손 인식의 위험을 줄이고자 노력하고 있습니다.
상기 기재한 바와 같이, 당사는 매출액 대비 매출채권의 비중이 높지 않은 편이나 매출채권회전율이 지속적으로 낮아지고 있으며, 연체채권이 발생하고 있는 상황입니다. 향후, 급격한 경기변동과 예상치 못한 거래처의 사정 악화에 따른 채무불이행 등으로 인해 매출채권의 회수가 원활히 이루어지지 않을 경우 당사의 현금흐름 및 수익성이 악화되어 영업안정성에 부정적인 영향을 미칠 수 있습니다. 또한, 온라인몰을 비롯하여 전반적인 유통 산업은 대기업을 중심으로 여전히 최저가 경쟁이 이어지고 있는 상황이며, 이러한 기업들이 한계기업으로 몰릴 경우 이로 인해 당사가 추가적으로 매출채권에 대해 전액 대손상각을 인식하여 당사의 수익성에 부정적인 영향을 미칠 수 있으니 투자자께서는 이 점 유의하시기 바랍니다.
|
바. 재고자산 진부화 관련 위험 |
당사는 재고자산을 취득원가와 순실현가능가치 중 낮은 금액으로 측정하고 있습니다. 순실현가능가치는 통상적인 영업과정의 예상 판매가격에서 예상되는 추가 완성원가와 판매비용을 차감한 금액으로서 당사의 재고자산은 최종 판매 시점 이후 1년 이상 경과된 품목에 대해서 재고의 변동이 없을시 100%의 충당금을 설정하고 있습니다. 또한, 매년말 평가를 통하여 매출액 대비 원가가 높은 제품에 대해서는 추가적인 충당금을 설정하고 있으며, 매 회계연도말 평가기준의 적정성 검토를 진행하고 있습니다.
당사의 재고자산은 제품, 상품, 원재료, 저장품, 미착품 총 5개의 항목으로 구성되어 있습니다. 제품의 경우 회사의 설계 또는 디자인이 반영되어 외주생산 입고 후 매출이 이루어지지 않은 재고를 의미하며, 상품의 경우 타사의 물품을 구입하여 유통 및 판매가 이루어지지 않은 재고를 의미합니다. 또한, 원재료의 경우 PE폼, PU원단 등 제품 생산에 투입되어지기 위해 외주처에 보관되어 있는 재고, 저장품의 경우 박스, 스티커 등 제품 생산을 위해 외주처 및 창고에 보관되어 있는 재고를 의미합니다. 마지막으로, 미착품의 경우 G7 커피 관련 재고로 수입처 항구에 선적은 되었으나 창고에 미입고된 재고를 의미합니다.
최근 3년간 당사의 연결기준 재고자산 변동 내역은 다음과 같습니다.
| [최근 3년간 재고자산 변동 내역] | |
| (K-IFRS, 연결) | (단위 : 백만원) |
|
구분 |
2023년 1분기 |
2022년 |
2021년 |
2020년 |
|
매출액 |
6,862 | 27,182 | 20,896 | 18,499 |
|
매출원가 |
4,984 | 18,192 | 12,653 | 11,684 |
|
재고자산 |
4,375 | 4,375 | 2,123 | 1,611 |
|
재고자산회전율(회) |
4.56회 | 5.60회 | 6.78회 | 7.25회 |
| 출처 : | 당사 정기보고서 |
| 주1) | 재고자산회전율 = 매출원가 ÷ ((기초재고자산 + 기말재고자산) ÷ 2) |
| 주2) | 2023년 1분기 매출액 대비 재고자산 및 재고자산회전율에서 매출액은 연환산 수치를 사용하였습니다. |
| 주3) | 당사의 2019년 재무자료의 경우 IFRS 기준으로 작성되지 않았기 때문에, 2020년 재고자산회전율은 2020년 매출원가/ 2020년말 재고자산으로 계산하였습니다. |
최근 3년간 당사의 연결기준 재고자산은 2020년 1,611백만원, 2021년 2,123백만원, 2022년 4,375백만원으로 지속적으로 증가하였으며, 이는 G7 커피 유통 사업 관련 매출이 확대되며 G7 커피 재고자산이 증가하였기 때문입니다. 당사는 G7 커피 약 2개월 판매분 물량을 안전재고로 보유하고 있으며, 이는 G7 커피가 식품으로 분류되어 검역 등 타 상품 대비 통관 시일이 길게 소요되기 때문입니다. 2023년 1분기 연결기준 재고자산은 4,375백만원으로 2022년과 유사한 수준을 기록하였습니다.
재고자산회전율이 높다는 것은 재고수준에 비해 많은 매출 및 매출원가가 발생 즉, 영업활동이 활발함을 의미하고 재고자산회전율이 낮다는 것은 매출이 부진하여 창고에 오랫동안 재고자산이 쌓여 있다는 것을 의미합니다. 상기 서술한 바와 같이 최근 3년간 당사의 매출액 및 재고자산은 지속적으로 증가하였으나, 매출액 증가율 대비 재고자산 증가율이 높은 수준을 기록하였습니다. 이에 따라, 재고자산회전율은 2020년 7.25회, 2021년 6.78회, 2022년 5.60회, 2023년 1분기 4.56회로 지속적으로 낮아지는 등 재고자산의 매출화 속도가 느려지고 있습니다.
최근 3년간 당사의 연결기준 재고자산 평가충당금 설정 현황은 다음과 같습니다.
| [최근 3년간 재고자산 평가충당금 설정 현황] | |
| (K-IFRS, 연결) | (단위 : 백만원) |
| 구분 | 2023년 1분기 | 2022년 | 2021년 | 2020년 | |
|---|---|---|---|---|---|
| 제품 | 평가전금액 | 1,990 | 2,220 | 1,852 | 1,481 |
| 평가충당금 | (69) | (23) | (24) | (63) | |
| 장부금액 | 1,921 | 2,197 | 1,827 | 1,418 | |
| 상품 | 평가전금액 | 1,019 | 1,017 | 30 | - |
| 평가충당금 | (8) | (0) | (0) | - | |
| 장부금액 | 1,011 | 1,017 | 30 | - | |
| 원재료 | 평가전금액 | 58 | 108 | 143 | 117 |
| 평가충당금 | (1) | (28) | (26) | - | |
| 장부금액 | 57 | 80 | 117 | 117 | |
| 저장품 | 평가전금액 | 170 | 159 | 149 | 75 |
| 평가충당금 | - | - | - | - | |
| 장부금액 | 170 | 159 | 149 | 75 | |
| 미착품 | 평가전금액 | 1,217 | 920 | - | - |
| 평가충당금 | - | - | - | - | |
| 장부금액 | 1,217 | 920 | - | - | |
| 합계 | 평가전금액 | 4,453 | 4,426 | 2,174 | 1,674 |
| 평가충당금 | (79) | (51) | (51) | (63) | |
| 장부금액 | 4,375 | 4,374 | 2,123 | 1,611 | |
| 출처 : | 당사 정기보고서, 당사 제공 |
최근 3년간 당사의 재고자산평가충당금은 주로 제품 및 상품에서 발생하고 있으며, 그 규모는 63~79백만원 수준이고, 평가충당설정률 기준으로는 재고자산의 1.77%~3.76% 수준입니다.
상기 내용을 종합해 보면, 당사는 재고자산이 지속적으로 증가하고 있으며, 이를 영업활동을 통해 소진하고 있어 평가충당금설정률이 높지 않은 상황입니다. 그러나, 당사는 금번 일반공모 유상증자를 통해 확보한 자금으로 스마트 팩토리 건설을 계획하고 있으며, 제품 생산을 위한 원재료 구매, 창고시설 확대에 따른 제품 및 상품 재고자산의 규모가 확대될 수 있습니다. 만약, 당사가 보유한 재고자산이 매출로 이어지기까지 장기간이 소요될 경우 재고자산에 대한 관리 비용 증가, 시간 경과에 따른 재고자산의 진부화 및 평가충당금의 발생으로 어이질 수 있습니다. 또한, 향후 경기 변동에 따른 매출의 감소, 공급 차질 요인 및 원재료 수급 불균형 등이 발생할 경우 재고자산이 진부화되어 평가충당금이 발생할 수 있으며, 재고자산평가충당금이 증가할 경우 당사의 수익성에 부정적인 영향을 미칠 수 있으니, 투자자께서는 이 점 유의하시기 바랍니다.
|
사. 현금흐름 악화 관련 위험 |
당사의 최근 3년간 현금흐름표상 주요 항목 변동 추이를 요약하자면 다음과 같습니다.
| [최근 3년간 현금흐름표상 주요 항목 변동 추이] | |
| (K-IFRS, 연결) | (단위 : 백만원) |
| 구 분 | 2023년 1분기 | 2022년 | 2021년 | 2020년 |
|---|---|---|---|---|
|
영업활동현금흐름 |
(679) | (3,332) | 1,847 | 2,902 |
| 당기순이익 | (1,155) | 1,319 | 1,731 | 2,021 |
| 당기순이익에 대한 조정 | 267 | 571 | 1,282 | 641 |
| 영업활동 자산ㆍ부채의 증감 | 270 | (4,923) | (1,005) | 360 |
|
투자활동현금흐름 |
(4,311) | (606) | (846) | (1,150) |
|
재무활동현금흐름 |
8,177 | 2,086 | 377 | (1,479) |
| 현금및현금성자산에 대한 환율변동효과 | (0) | - | 0 | (15) |
| 현금및현금성자산의순증가(감소) | 3,187 | (1,852) | 1,379 | 258 |
| 기초현금및현금성자산 | 209 | 2,062 | 683 | 425 |
| 기말현금및현금성자산 | 3,396 | 209 | 2,062 | 683 |
| 출처 : | 당사 정기보고서, 당사 제시 |
① 영업활동현금흐름
당사의 최근 3년간 영업활동현금흐름상 주요 항목 변동 추이는 다음과 같습니다.
| [최근 3년간 영업활동현금흐름표상 주요 항목 변동 추이] | |
| (K-IFRS, 연결) | (단위 : 백만원) |
| 구 분 | 2023년 1분기 | 2022년 | 2021년 | 2020년 |
|---|---|---|---|---|
| 영업활동현금흐름 | (679) | (3,332) | 1,847 | 2,902 |
| 당기순이익 | (1,155) | 1,319 | 1,731 | 2,021 |
| 당기순이익에 대한 조정 | 267 | 571 | 1,282 | 641 |
| 영업활동 자산ㆍ부채의 증감 | 270 | (4,923) | (1,005) | 360 |
| 이자수취 | 12 | 2 | 7 | 12 |
| 이자지급 | (72) | (157) | (101) | (121) |
| 법인세납부 | (2) | (144) | (67) | (11) |
| 출처 : | 당사 정기보고서, 당사 제시 |
최근 3년간 당사의 연결기준 영업활동현금흐름은 2020년 +2,902백만원, 2021년 +1,847백만원으로 순유입(+)을 기록하였으나, 2022년 -3,332백만원, 2023년 1분기 -679백만원으로 순유출(-)을 기록하였습니다.
2020년의 경우 매출액 증가에 따른 당기순이익(+2,021백만원)을 기록하여, 총 +2,902백만원의 순유입(+)을 기록하였으며, 2021년의 경우 매출액 증가에 따른 당기순이익(+1,731백만원)을 기록하여 총 +1,847백만원의 순유입(+)을 기록하였습니다.
2022년의 경우 당기순이익(+1,319백만원)을 시현했음에도 불구하고, G7 커피 유통 사업의 매출액 증가에 따른 재고자산 및 매출채권 등 운전자본이 확대되어 영업활동 자산ㆍ부채의 감소(-4,923백만원) 등의 영향으로 총 -3,332백만원의 순유출(-)이 발생하였습니다. 당사는 2021년 12월부터 G7 커피 1차 발주를 시작하였으며, G7 커피는 발주부터 입고까지 약 2~3달의 기간이 소요됨에 따라, 약 2개월 물량을 안전재고로 보유하고 있는 상황입니다. G7 커피 유통 사업의 매출액이 증가함에 따라, G7 커피 유통 사업의 재고자산이 자연스럽게 증가하였으며, 주요 매출처인 쿠팡의 경우 G7 커피 납품 후 50일 이후 대금이 정산되는 구조로 매출채권 잔액 또한 증가하였습니다.
2023년 1분기의 경우, 유아용품 판매의 부진과 상장과 관련된 비용 등이 증가하여 당기순손실(-1,155백만원)이 발생하였으나, PE,PU 원재료 구입 및 유아용품 상품 제작주문과 G7커피 선적에 따른 신용장 발급 증가로 매입채무(+530백만원), 미지급금(+234백만원), 계약부채(+215백만원) 등의 영향으로 순운전자본이 +270백만원 증가하여 총 -679백만원의 순유출(-)을 기록하였습니다.
② 투자활동현금흐름
당사의 최근 3년간 투자활동현금흐름 상 주요 항목 변동 추이는 다음과 같습니다.
| [최근 3년간 투자활동현금흐름표상 주요 항목 변동 추이] | |
| (K-IFRS, 연결) | (단위 : 백만원) |
| 구 분 | 2023년 1분기 | 2022년 | 2021년 | 2020년 |
|---|---|---|---|---|
| 투자활동현금흐름 | (4,311) | (606) | (846) | (1,150) |
| 단기금융상품의 처분 | - | 10 | 1,099 | - |
| 단기금융상품의 취득 | (3,000) | - | (179) | (930) |
| 장기대여금의 증가 | - | - | (617) | - |
| 기타포괄손익인식-금융자산의 취득 | (500) | (300) | - | - |
| 유형자산의 취득 | (717) | (405) | (1,150) | (254) |
| 출처 : | 당사 정기보고서, 당사 제시 |
최근 3년간 당사의 연결기준 투자활동현금흐름은 2020년 -1,150백만원, 2021년 -846백만원, 2022년 -606백만원, 2023년 1분기 -4.311백만원으로 지속적으로 순유출(-)을 기록하였습니다.
2020년의 경우, 단기금융상품의 취득(-930백만원), 물류창고의 물품보관을 위한 파렛트랙 설치대금 및 인테리어 공사대금(-250백만원) 등의 영향으로 총 -1,150백만원의 순유출(-)을 기록하였습니다.
2021년의 경우, 단기금융상품의 처분(+1,099백만원), 당사 주식 청약을 목적으로 한 우리사주조합 장기대여금(-617백만원), 당사의 자회사인 (주)소브의 사무실 계약 등으로 인한 유형자산 취득(-1,150백만원) 등의 영향으로 총 -846백만원의 순유출(-)을 기록하였습니다.
2022년의 경우, 당사의 관계회사 (주)일상의감동 지분출자 금액인 기타포괄손익인식-금융자산의 취득(-300백만원), 제품 제작을 위한 TPU 퍼즐매트, 살균수납함 금형 등 유형자산의 취득(-405백만원) 등의 영향으로 총 -606백만원의 순유출(-)을 기록하였습니다.
2023년 1분기의 경우, 정기 예적금 가입에 따른 단기금융상품의 취득(-3,000백만원), 당사 코스닥 시장 상장에 따른 공모주 청약을 위해 우리사주조합 추가 대여금(-500백만원), 자체 생산시설 확보를 위한 경기도 안성시 부지 매입 계약 체결 등으로 유형자산의 취득(-717백만원)이 발생하여 총 -4,311백만원의 순유출(-)을 기록하였습니다.
③ 재무활동현금흐름
당사의 최근 3년간 재무활동현금흐름 상 주요 항목 변동 추이는 다음과 같습니다.
| [최근 3년간 재무활동현금흐름표상 주요 항목 변동 추이] | |
| (K-IFRS, 연결) | (단위 : 백만원) |
| 구 분 | 2023년 1분기 | 2022년 | 2021년 | 2020년 |
|---|---|---|---|---|
| 재무활동현금흐름 | 8,177 | 2,086 | 377 | (1,479) |
| 단기차입금의 차입 | - | 4,460 | - | - |
| 단기차입금의 상환 | (700) | (1,545) | (400) | - |
| 장기차입금의 차입 | - | 900 | 650 | 300 |
| 장기차입금의 상환 | - | - | - | (1,350) |
| 유상증자(신주발행) | 8,944 | - | 617 | - |
| 유동성장기부채의 상환 | (75) | (1,358) | (108) | (8) |
| 출처 : | 당사 정기보고서, 당사 제시 |
최근 3년간 당사의 연결기준 재무활동현금흐름은 2020년 -1,479백만원으로 순유출(-)을 기록하였으나, 2021년 +377백만원, 2022년 +2,086백만원, 2023년 1분기 +8,177백만원으로 순유입(+)을 기록하였습니다.
2020년의 경우, 장기차입금의 차입(+300백만원), 장기차입금의 상환(-1,350백만원) 등의 영향으로 총 -1,479백만원의 순유출(-)을 기록하였습니다.
2021년의 경우, 장기차입금의 차입(+650백만원), 단기차입금의 상환(-400백만원), 우리사주조합 대상 유상증자(+617백만원) 등의 영향으로 총 +377백만원의 순유입(+)을 기록하였습니다.
2022년의 경우, G7 커피 유통 사업의 본격화되어 운전자본이 크게 증가하였고, 이를 확보하기 위한 단기차입금의 차입(+4,460백만원), 단기차입금의 상환(-1,545백만원), 장기차입금의 차입(+900백만원), 유동성장기부채의 상환(-1,358백만원) 등의 영향으로 총 +2,086백만원의 순유입(+)을 기록하였습니다.
2023년 1분기의 경우, 단기차입금의 상환(-700백만원), 당사의 코스닥 시장 상장에 따른 유상증자(+8,944백만원) 등의 영향으로 총 +8,177백만원의 순유입(+)을 기록하였습니다.
상기 기재한 내용을 종합해 보면, 당사는 최근 3년간 지속적으로 매출이 확대되면서 당기순이익을 시현하고 영업활동에서 현금을 창출할 수 있었습니다. 또한, 자사몰 및 온라인몰을 통해 고객에게 직접 제품을 판매하는 B2C 구조인 만큼, 매출채권이 비교적 단기간 내 회수되었으며, 외주생산을 진행하기 때문에 대규모 시설투자를 위한 현금 유출도 이루어지지 않았습니다. 그러나 2021년 12월 이후 신규 사업으로 G7 커피 유통 사업을 영위하기 시작함에 따라 관련 매출채권, 미수금, 재고자산 등이 일시에 증가하여 영업활동현금흐름의 순유출(-)을 기록하였으며, 운전자금 확보를 통한 금융기관 차입 등으로 인해 재무활동현금흐름의 순유입(+)이 발생하였습니다. 공시서류 제출 전일 기준, 당사의 커피 유통 사업 관련 발주, 판매, 매출채권 회수가 안정적으로 이뤄지고 있는 것으로 판단되나, 향후 경기 변동에 따른 매출 감소 등으로 인해 현금흐름이 악화될 수 있으니, 투자자께서는 이 점 유의하시기 바랍니다.
|
아. 종속기업 경영 실적 부진에 따른 연결 손익 악화 위험 |
당사는 공시서류 제출 전일 기준 (주)소브, (주)일상의감동 총 2개의 종속회사 및 관계회사를 보유하고 있으며, 이들의 경영실적이 당사의 연결재무제표에 반영되고 있습니다. 당사의 종속회사에 대한 지분투자 금액은 K-IFRS 회계처리 기준에 따라 해당 개별 종속회사의 영업실적에 의한 재무제표 작성 후, 연결재무제표로 합산 작성되어 공시되고 있어 실적에 따라 연결재무제표 손익에 직접적인 영향을 미치고 있습니다.
공시서류 제출 전일 기준 당사의 종속회사 및 관계회사 현황은 다음과 같습니다.
① (주)소브
| [당사 종속회사 및 관계회사 현황] |
| (기준일 : 공시서류 제출 전일) |
| 회사명 | 소재 국가 | 주요 사업 | 지분율(%) | 결산월 | 비고 |
|---|---|---|---|---|---|
| ㈜소브 | 대한민국 | 중저가형 매트 | 100.00 | 12월 | - |
| ㈜일상의감동 | 대한민국 | 아이 돌봄 서비스 플랫폼 | 10.00 | 12월 | 최대주주 등 지분 보유 법인 (박영건(당사 대표이사) 등 특수관계인 84.6% 보유) |
| 출처 : | 당사 정기보고서, 당사 제시 |
당사의 종속회사인 (주)소브의 최근 2년간 주요 재무 현황은 다음과 같습니다.
| [(주)소브 최근 2년간 주요 재무현황] |
| (단위 : 백만원) |
| 구분 | 2023년 1분기 | 2022년 | 2021년 |
|---|---|---|---|
| 자산총계 | 160 | 115 | 120 |
| 부채총계 | 179 | 143 | 148 |
| 자본총계 | (20) | (27) | (28) |
| 매출액 | 190 | 295 | 48 |
| 당기순이익 | 7 | 1 | (78) |
| 출처 : | 당사 정기보고서, 당사 제시 |
| 주1) | (주)소브는 2021년 3월 설립되었습니다. |
| 주2) | 상기 재무현황은 감사 / 검토 받지 않은 재무제표입니다. |
당사는 2021년 3월 상대적으로 가격이 저렴한 중저가 제품을 판매하기 위한 목적으로 (주)소브를 설립하였습니다. 당사는 프리미엄 제품을 판매하고 있어, 중저가 제품을 동시에 판매하기에는 기존 브랜드 및 제품 이미지와 충돌이 발생될 수 있어 별도의 법인으로 설립하여 운영 중에 있습니다. 폴더매트, 셀프시공매트, 퍼즐매트 등 총 26종의 SKU를 '소브'라는 브랜드로 운영 중이며 온라인을 통해 판매하고 있습니다.
2023년 1분기 기준 (주)소브의 자산총계는 160백만원, 부채총계는 179백만원, 자본총계는 -20백만원으로 자본잠식 상태입니다. 설립년도인 2021년의 경우, 초기 제품 인증비용과 광고비로 인해 -78백만원의 당기순손실이 발생하였으며, 2022년의 경우, 흑자전환에 성공하였으나, 그 규모가 미미한 수준입니다.
② (주)일상의감동
한편, 당사의 관계회사인 (주)일상의감동의 최근 2년간 주요 재무 현황은 다음과 같습니다.
| [(주)일상의감동 최근 2년간 주요 재무현황] |
| (단위 : 백만원) |
| 구분 | 2023년 1분기 | 2022년 | 2021년 |
|---|---|---|---|
| 자산총계 | 756 | 719 | 404 |
| 부채총계 | 174 | 456 | 412 |
| 자본총계 | 583 | 262 | (8) |
| 매출액 | 2 | - | - |
| 당기순이익 | (175) | - | 18 |
| 출처 : | 당사 정기보고서, 당사 제시 |
| 주1) | (주)일상의감동은 2020년 12월 설립되었습니다. |
| 주2) | 상기 재무현황은 감사 / 검토 받지 않은 재무제표입니다. |
당사는 2020년 12월 아이 돌봄 서비스 사업 진출을 위해 (주)일상의감동을 설립하였습니다. (주)일상의감동은 위치 기반 육아 품앗이 플랫폼을 개발 및 운영하기 위한 목적으로 설립되었으며, 박영건 대표이사 및 특수관계인이 개인적으로 자금을 출자하여 설립한 법인입니다. 박영건 대표이사 및 특수관계인은 플랫폼 비즈니스의 특성상 초기 개발에 대한 투자자금, 서비스 런칭 이후 가입자 유치를 위한 공격적인 마케팅 등에 자금 소요가 필요하고 단기간 내 흑자전환이 어려울 것으로 판단하여 당사의 재무적인 영향을 최소화 하기 위하여 개인적으로 자금을 출자하게 되었습니다.
(주)일상의감동은 2022년 1월 '링크맘'이라는 앱을 런칭하여 운영중에 있습니다. '링크맘'은 아이 돌봄이 필요한 부모님과 여유 시간에 아이 돌봄이 가능한 돌봄 선생님을 연결해주는 서비스로, 내 위치 기준으로 근처의 부모님과 돌봄선생님을 찾고 매칭을 할 수 있는 서비스입니다. 2023년 1분기 기준 자산총계는 756백만원, 부채총계는 174백만원, 자본총계는 583백만원이며, 매출액은 2백만원, 당기순손실-175백만원.이 발생하였으며, 이는 개발비용 및 회원유치를 위한 광고비용 등이 증가한 점에 기인합니다.
상기 기재한 바와 같이, 공시서류 제출 전일 기준 당사는 총 2개의 종속회사 및 관계회사를 보유하고 있습니다. 당사의 종속회사 및 관계회사의 재무실적은 당사의 총자산이나 매출액에서 차지하는 비중이 낮으나, 향후 영업환경 악화로 인해 경영실적이 부진하게될 경우 당사의 연결 손익에 부정적인 영향을 미쳐 당사의 수익성을 악화시킬 수 있으니, 투자자께서는 이 점 유의하시기 바랍니다.
|
자. 특수관계자 거래 관련 위험 |
공시서류 제출 전일 기준 당사의 특수관계자 현황은 다음과 같습니다.
| [특수관계자 현황] |
| (기준일 : 공시서류 제출 전일) |
| 구 분 | 특수관계자명 |
|---|---|
| 종속기업 | (주)소브 |
| 기타특수관계자 | (주)일상의감동 |
| 기타특수관계자 | 우리사주조합 |
| 출처 : | 당사 제시 |
최근 3년간 당사의 특수관계자와의 거래 내역은 다음과 같습니다.
| [최근 3년간 특수관계자와의 주요 거래내역] |
| (단위 : 백만원) |
|
구분 |
특수관계자명 |
거래내용 |
2023년 1분기 |
2022년 |
2021년 |
2020년 |
| 종속기업 | (주)소브 | 매출 | 69 | 24 | 2 | - |
| 기타특수관계자 | (주)일상의감동 | 매출 | 3 | - | 370 | - |
| 출처 : | 당사 정기보고서 |
[(주)소브]
당사는 (주)소브와 2021년부터 매출 거래가 발생하고 있습니다. 당사는 사업자 한명당 입점몰의 제한을 받는 점을 고려하여 (주)소브를 통해 일부 외부몰에 G7 커피를 판매하고 있으며, 부재료인 전사지, 박스 판매 등 영업활동과 관련된 매출 거래도 발생하고 있습니다.
[(주)일상의감동]
당사는 (주)일상의감동과 2021년부터 매출 거래가 발생하고 있습니다. 2021년의 경우 370백만원의 매출 거래는 당사의 플랫폼 개발 용역에 대한 거래가 발생한 것이며, 2023년 1분기 매출 거래의 경우 (주)일상의감동이 이커머스 사업을 시행하면서 당사 제품 중 일부를 B2B로 납품받아 자사몰에 판매하면서 발생한 거래입니다.
최근 3년간 특수관계자와의 채권ㆍ채무내역은 다음과 같습니다.
| [최근 3년간 특수관계자와의 채권ㆍ채무내역] |
| (단위 : 백만원) |
|
구분 |
특수관계자명 |
거래내용 |
2023년 |
2022년 |
2021년 |
2020년 |
|
종속기업 |
(주)소브 | 매출채권 | 49 | 28 | - | - |
| 대여금 | 90 | 95 | 65 | - | ||
| 미수금 | - | - | 2 | - | ||
| 기타특수관계자 | 우리사주조합 | 대여금 | 655 | 617 | 617 | - |
| 출처 : | 당사 정기보고서 |
[(주)소브]
당사는 최근 3년간 (주)소브와의 매출채권, 대여금, 미수금 거래가 발생하였습니다. 매출채권의 경우 G7 커피 공급에 따라 발생하였습니다. 또한, 당사는 2021년 및 2022년 중 생산자금 등 운영자금 지원을 목적으로 이사회의 승인을 득하고 계약서를 작성한 후 대여금 약 95백만원을 무이자로 (주)소브에 대여하였습니다. (주)소브는 2022년부터 흑자전환에 성공하여 당사에 대여금 분할 상환을 진행 중이며, 2023년 1분기 기준 대여금 잔액은 90백만원입니다. 2021년 중 발생한 미수금의 경우, 제조에 필요한 부재료 일부를 공급한 건에 해당합니다.
[우리사주조합]
당사는 우리사주조합과 2021년부터 대여금 거래가 발생하고 있습니다. 당사는 2021년 직원의 복리후생 증진을 위하여 우리사주조합에 유상증자 참여를 승인하였으며 우리사주 취득자가 취득자금에 대하여 대여를 희망하여 대여금이 발생하게 되었습니다. 또한, 2023년 2월 코스닥 시장 상장 당시 우리사주조합 배정분에 대한 청약 참여 자금에 대하여 우리사주 취득을 희망하는 직원들을 대상으로 자금 대여를 진행하였습니다. 자금 대여는 이사회의 승인을 득하여 계약서를 작성한 후 무이자로 진행되었으며, 당사는 우리사주조합 의무예탁기간 경과 후 우리사주 처분일에 해당 대여금을 일부 회수 하였으며, 잔여분은 처분 시 개별적으로 회수할 예정입니다.
당사는 2021년 9월에 제정한 '이해관계자 거래에 대한 통제 규정'의 제4조(거래의 범위), 5조 (거래의 제한 및 절차) 및 7조(이사회를 불요로 하는 거래)을 통해 내부통제를 하고 있으며, 세부내용은 다음과 같습니다.
|
이해관계자와의 거래에 대한 통제 규정 |
|
|
제4조 [거래의 범위] |
이해관계자 거래의 유형은 다음의 각 호와 같다. 1. 매출 / 매입거래 2. 부동산 구입 / 처분 3. 용역거래 4. 대리 및 임대차 협약 5. 연구개발의 이전 6. 면허 약정 7. 대여와 출자를 포함하는 금융거래 8. 담보 / 보증 9. 경영계약 및 기타의 거래 |
|
제5조 [거래의 제한 및 절차] |
① 이해관계자와의 거래는 제7조 각 호에 해당하는 거래를 제외하고는 원칙적으로 불가하다. 그러나, 불가피하게 그 거래를 행하지 않으면 안 되는 경우에는 거래의 사전에 대표이사는 이사회를 소집하고 그 이사회에서 대표이사는 참석 이사들에게 그 거래의 객관성과 당위성을 자세히 설명하고 참석이사들의 만장일치 결의를 얻어 그 거래를 집행한다. ② 회사는 거래 규모가 최근 사업연도말 자산총액 또는 매출 총액의 100분의 1이상인 거래에 대해서는 제1항에 따른 이사회의 승인 결의 뿐만 아니라 주주총회 승인을 얻어야 한다. |
|
제7조 [이사회를 불요로 하는 거래] |
이해관계자거래에서는 다음 각호는 이사회의 결의를 행하지 아니한다. 1. 경상적인 영업활동에서 발생하는 매출 / 매입 거래 2. 경상적인 기업활동에서 발생하는 보수 / 비용 |
이처럼 당사는 각종 내부 규정 제정을 통해 내부통제시스템을 구축하였으며, 특히 주주에 이익에 반하고 주된 사업활동과 무관한 이해관계자와의 거래에 대해서는 원칙적으로 통제하고 있습니다.
상기 기재한 바와 같이, 당사는 특수관계자와의 매출, 채권ㆍ채무 등의 거래가 발생하고 있으며, 특수관계자와의 거래규정 하에 이루어지고 있습니다. 그러나, 향후 예상치 못한 특수관계자 거래가 발생하고 당사의 적절한 내부통제 절차가 진행되지 않아 특수관계자의 부의 이전 등이 발생하게 될 경우, 당사의 재무구조 및 수익성에 부정적인 영향을 미칠 수 있으니, 투자자께서는 이 점 유의하시기 바랍니다.
|
차. 소송 및 우발채무에 따른 위험 |
당사는 공시서류 제출 전일 기준 영업에 중대한 영향을 미치는 소송 등의 분쟁 사항은 존재하지 않습니다. 하지만, 향후 당사 기술과 관련된 특허권 분쟁, 핵심인력의 이탈로 인한 기술의 유출이 발생하거나, 임직원 및 관련자가 당사에 중대한 손해를 입히는 경우 등과 관련된 다양한 종류의 분쟁 또는 소송이 발생할 수 있습니다.
법률 분쟁은 통상적으로 장기간에 걸쳐 진행되며, 사안에 따라 매우 큰 규모의 분쟁이 될 경우 큰 규모의 소송비용이 발생할 수 있습니다. 당사는 법률위반으로 인한 위험을 회피하고자 주요 시점마다 회사의 영업활동에 관련된 법률검토 및 자문을 받고 있으며 담당 임직원에 대한 법률적 내부통제를 하고 있습니다. 다만, 소송이나 분쟁, 예상치 못한 법률적 위험이 발생할 경우 당사의 영업 및 재무구조에 부정적인 영향을 미칠 수 있으니, 투자자께서는 이 점에 유의하시기 바랍니다.
공시서류 제출 전일 기준 당사는 차입 목적의 담보제공으로 장부금액 약 56억원의 유형자산에 대해 약 35억원의 담보를 설정하고 있습니다.
| [담보 제공자산 내역] | |
| (기준일 : 공시서류 제출 전일) | (단위 : 백만원) |
| 담보제공자산 | 장부금액 | 설정금액 | 수혜자 | 설정권자 | 관련채무의 내용 |
| 토지 및 건물 | 5,556 | 3,540 | 연결회사 | 국민은행 | 차입금 |
| 출처 : 당사 제시 |
| 주) 특수관계자를 위한 담보나 기타 타인을 위한 담보제공 내역은 없습니다. |
공시서류 제출 전일 기준 당사가 차입금 등과 관련하여 대표이사 등으로부터 지급보증 받은 내용은 다음과 같습니다.
| [타인으로부터 제공받은 보증의 내용] | |
| (기준일 : 공시서류 제출 전일) | (단위 : 백만원, USD) |
| 보증 제공자 | 제공받은 보증내용 |
보증금액 | 보증처 |
| 대표이사 | 포괄외화지급보증 | USD 990,000 | 국민은행 |
| 차입금지급보증 | 770 | ||
| 720 | 하나은행 | ||
| 780 | 신한은행 | ||
| 신용장지급보증 | USD 1,200,000 | ||
| 원 소 계 | 2,270 | - | |
| USD 소 계 | USD 2,190,000 | - | |
| 서울보증보험 | 이행보증 | 290 | 거래처 등 |
| 정보보호 | 200 | ||
| 소 계 | 490 | - | |
| 원 합계 | 2,760 | - | |
| USD 합계 | USD 2,190,000 | - | |
| 출처 : 당사 제시 |
| 주) 당사가 타인에게 제공한 지급보증내역은 없습니다. |
공시서류 제출 전일 기준 당사가 금융기관 등과 체결한 주요 약정사항은 다음과 같습니다.
| [금융기관 등과 체결한 주요 약정사항] | |
| (기준일 : 공시서류 제출 전일) | (단위 : USD, 백만원) |
| 금융기관명 | 구 분 | 약정한도액 | 실행금액 |
| 하나은행 | 기업운전일반자금대출(통장)(한도) | 100 | - |
| 운전자금대출 | 500 | 500 | |
| 운전자금대출 | 1,000 | 1,000 | |
| 운전자금대출 | 500 | - | |
| 신한은행 |
<기운>일반자금대출(일시상환) 기술평가(TCB) 우수 기업대출 |
500 | 500 |
| 기업자유예금 | 150, | - | |
| 일람불수입신용장 | USD1,000,000 | USD 491,502 | |
| 국민은행 | KB우수기술기업 TCB신용대출 | 200 | - |
| KB메가셀러론 | 500 | - | |
| 수입신용장 | USD 900,000 | - | |
| 원화 합계 | 3,450 | 2,000 | |
| 달러화 합계 | USD 1,900,000 | USD 491,502 | |
| 출처 : 당사 제시 |
당사의 우발채무 및 약정사항은 공시서류 제출 기준 당사의 재무제표에 예상치 못한 영향을 미치고 있지는 아니하지만, 향후 이로 인한 우발상황의 발생여부에 따라 당사의 재무안정성 및 경영실적에 부정적인 영향을 미칠 수 있으니 투자자께서는 이 점 유의하시기 바랍니다.
|
카. 내부 정보 관리 및 내부회계관리제도 미흡 관련 위험 |
당사는 2023년 2월 9일 상장 이후 공시규정 등 관련 규정에서 정하고 있는 주요한 사항들을 적시에 공시 가능하도록 공시 조직을 구축하였으며 공시책임자 교육은 이수완료 하였습니다, 공시담당자는 상장 이후 코스닥시장 공시규정 및 동 규정 시행세칙에서 정하는 공시전문교육을 이수할 예정입니다.
당사는 공시의무의 성실한 이행을 위해 공시담당 임직원에 대해 "코스닥시장 공시규정 제2장 공시의무 제1절 주요 경영사항 신고 및 공시" 등 관련 법률 및 제규정을 충분히 숙지하도록 하고 있으며, 상장 이후 거래소 및 금융감독원에 정기공시, 수시공시 및 공정공시 등의 의무를 성실하게 준수하기 위해 공시전담조직을 체계적으로 갖추었습니다. 당사의 공시책임자와 공시담당자는 다음과 같습니다.
|
직위 |
성명 |
담당업무 |
주요경력 |
|
이사 |
박보선 |
공시책임자 |
- 92.02 오산대학교 세무회계학 학사 - 96.11~99.06 청호세무회계사무소 부장 - 00.04~01.05 에이스벤처캐피탈 부장 - 02.03~04.06 한울회계법인 사무장 - 07.08~11.07 탑스리빙월드 부장 - 16.05~18.12 대호 부장 - 18.12~ 현재 ㈜꿈비 경영혁신본부 본부장 |
| SM |
서우석 |
공시담당자 |
- 11.02 백석대학교 법정경찰학부 학사 - 10.03~22.05 누리플랜 차장 - 22.08 ~ 현재 ㈜꿈비 비전기획팀 SM |
또한, 당사는 주요 정보의 공시 및 임직원의 내부자 거래 방지를 위하여 2021년 09월 15일 내부정보관리규정을 제정하였으며, 향후 동 규정의 개정시 임직원 전체를 대상으로 교육을 실시할 예정입니다.
당사는 코스닥시장 상장을 위해 내부통제 및 경영투명성을 강화하고자, 내부회계관리제도 구축을 위한 용역계약을 체결하여 2022년 12월 초에 시스템 구축을 완료하였습니다. 이에 당사는 상장 후 최초로 도래하는 사업연도부터 매 사업연도마다 권상장법인으로서 내부회계관리자가 사업연도별로 이사회 및 감사에게 내부회계관리제도의 운영실태를 보고하고, 감사는 회계감사인에게 이를 보고하여 회계감사인의 내부회계관리제도에 대한 검토 또는 감사의견을 득할 예정입니다.
다만, 내부회계관리를 철저히 운영함에도 불구하고 회계처리 위반, 혹은 관련 임직원의 배임 및 횡령 등 발생으로 내부회계관리가 적절하게 운영되지 않을 경우 과태료 등의 법적 제재가 부과될 수 있습니다. 과태료 부과 시 법정최고금액에 과태료 예정금액 산정표에 따른 비율을 적용하여 예정금액을 산정하고, 가증, 감경하여 최종 과태료부과금액을 결정하고 있습니다.
| [과태료 부과기준(외감규정 별표9 참조)] |
|
| 출처 : | 금융감독원 보도자료 |
특히, 이사 등 내부회계관리제도 운영 관련자가 회계정보를 내부회계관리제도에 의하지 아니하고 위조, 변조, 훼손 또는 파기한 사실이 확인되는 경우, 5년 이하의 징역 또는 5천만원 이하의 벌금이 부과될 수 있습니다.
또한, 코스닥시장 상장규정에 따라 내부회계관리제도 비적정 시 투자주의환기종목에 지정될 수 있으며(「코스닥시장 상장규정」제52조), 2년 연속 내부회계관리제도 비적정 의견을 받는 경우 상장적격성 실질심사에 따른 상장폐지 요건에 해당할 수 있습니다(「코스닥시장 상장규정」제56조).
당사의 상기와 같은 노력에도 불구하고 공시 위반이나 불공정거래 등의 발생,그리고 예상치 못한 관리인력 이탈 발생과 내부회계관리조직이 적절하게 운영되지 않을 경우 당사 경영에 부정적인 영향이 있을 수 있으니, 투자자께서는 이 점 유의하시기 바랍니다.
3. 기타위험
| ※ 금번 유상증자는 일반공모방식으로 진행되며, 청약결과 미청약분에 대해서는 미발행 처리됩니다. 투자위험요소에 기재한 지분율 변동 및 발행예정주식수 등은 공시서류 제출일 현재의 예상내역이며, 실제 발행주식수는 청약률에 따라 변동될 수 있습니다. 이에 따라 당사가 계획한 대로 자금을 조달하지 못할 수 있습니다. |
|
가. 최대주주 청약 참여 등에 따른 지분율 변동 위험 |
공시서류 제출 전일 기준 당사의 최대주주인 박영건 대표이사 및 특수관계인의 청약 계획은 현재 알 수 없으며, 구체적으로 확정된 사항 또한 없습니다. 이를 반영한 당사의 최대주주 및 특수관계인의 유무상증자 후 지분율 변동 시뮬레이션은 다음과 같습니다.
| [유무상증자 후 지분율 변동 시뮬레이션] |
| (단위: 주, %) |
| 주주명 | 관계 |
유상증자 전 (공시서류 제출 전일 기준) |
유상증자 후 (최대주주 및 특수관계인 미청약 가정 시) |
무상증자 후 (1 : 0.3 무상증자) |
|||
|---|---|---|---|---|---|---|---|
| 주식수 | 지분율(%) | 주식수 | 지분율(%) | 주식수 | 지분율(%) | ||
| 박영건 | 최대주주 | 2,158,900 | 27.08% | 2,158,900 | 22.79% | 2,806,570 | 23.05% |
| 최연서 외 7인 | 특수관계인 | 2,954,416 | 37.06% | 2,954,416 | 31.19% | 3,840,740 | 31.54% |
| 소 계 | 5,113,316 | 64.14% | 5,113,316 | 53.99% | 6,647,310 | 54.60% | |
| 자기주식 수 | 458,060 | 5.75% | 458,060 | 4.84% | 458,060 | 3.76% | |
| 기타주주 | 2,400,170 | 30.11% | 3,900,170 | 41.18% | 5,070,221 | 41.64% | |
| 합 계 | 7,971,546 | 100.00% | 9,471,546 | 100.00% | 12,175,591 | 100.00% | |
| 출처 : | 당사 제시 |
| 주1). | 금번 일반공모 유상증자의 청약결과 실권주가 발생하지 않고 100% 청약이 이루어지는 것을 가정하였습니다. |
| 주2) | 최대주주의 지분율을 최대한 보수적으로 점검하기 위해 공모주식은 전량 기타주주(공모주주 포함)에게 배정되는 것을 가정하였습니다. |
당사의 최대주주인 박영건 대표이사 및 특수관계인이 금번 일반공모 유상증자에 참여하지 않고 무상증자까지 진행될 경우, 당사 최대주주 및 특수관계인의 지분율 합계는 64.14%에서 54.60%로 9.54%p 하락이 예상됩니다.
일반공모의 특성 상 최대주주는 경쟁률에 따라 청약분만큼 배정받지 못할 가능성을 배제할 수 없습니다. 투자자들께서는 금번 일반공모의 특성상 최대주주가 청약을 하더라도 청약분 만큼 배정을 받지 못할 가능성이 존재함에 유의하시기 바랍니다. 또한, 최대주주 등의 지분율 하락은 향후 당사의 안정적인 경영권 유지에 부정적인 영향을 미칠 수 있으며, 그 밖에 예상치 못한 경영권 혼란 가능성도 있을 수 있으니, 투자자께서는 이 점 유의하시기 바랍니다.
| 나. 청약률 미달에 따른 자금조달 실패 위험 당사가 금번 진행하는 유상증자는 일반공모 방식으로 진행됩니다. 이는 최근 가장 보편적으로 사용되는 유상증자 방식 중 하나인 주주배정 후 실권주 일반공모 방식의 유상증자가 기존 주주들에게 우선적인 청약의 기회를 제공하고 미달된 잔여 주식에 대하여 일반공모를 실시함으로서 실권 발생의 가능성을 최소화하는 것과 달리, 기존 주주들에 대한 신주인수권을 배제하고 정관의 규정에 의하여 이사회 결의로써 구주주를 포함한 불특정다수를 대상으로 일반공모를 진행하기에 상대적으로 실권이 발생할 가능성이 더 높을 가능성이 존재합니다. 투자자께서는 당사의 금번 일반공모 유상증자 방식의 경우, 구주주를 포함하여 불특정다수를 대상으로 신주모집을 진행하기에 실권이 발생할 가능성이 높음에 유의하시기 바랍니다. 나아가 당사가 의도한 자금의 사용목적과 다르게 일부 또는 전부의 자금조달이 실패할 경우 사업계획 및 재무개선 계획 등에 차질을 빚을 수 있으니 투자자께서는 이 점 유의하시기 바랍니다. |
당사가 금번 진행하는 유상증자는 일반공모 방식으로 진행됩니다. 이는 최근 가장 보편적으로 사용되는 유상증자 방식 중 하나인 주주배정 후 실권주 일반공모 방식의 유상증자가 기존 주주들에게 우선적인 청약의 기회를 제공하고 미달된 잔여 주식에 대하여 일반공모를 실시함으로서 실권 발생의 가능성을 최소화하는 것과 달리, 기존 주주들에 대한 신주인수권을 배제하고 정관의 규정에 의하여 이사회 결의로써 구주주를 포함한 불특정다수를 대상으로 일반공모를 진행하기에 상대적으로 실권이 발생할 가능성이 더 높을 가능성이 존재합니다.
| [유상증자 방식별 요약] |
| 유상증자 방식 | 내용 | |
| 주주배정 증자 |
주주배정 | 기존주주에게 주식수에 따라 배정하며, 실권주는 발행하지 않음 |
| 주주배정 후 실권주 일반공모 |
기존주주에게 주식수에 따라 배정을 하며, 실권주는 일반에게 공모 | |
| 공모증자 | 주주우선공모 | 기존주주에게 우선청약권을 부여하며, 실권주는 일반에게 공모 |
| 일반공모 | 기존주주에게 주식수에 따른 배정 또는 우선청약권 부여 없이 일반에게 공모 | |
| 제3자배정 증자 | 특정의 제3자를 대상으로 발행 | |
당사는 자금의 조기 납입을 위해 납입 일정을 앞당길 수 있는 일반공모방식의 유상증자를 진행하기로 결정하였습니다. 제3자 배정, 주주우선공모, 주주배정공모 방식의 유상증자는 투자자 탐색 또는 주주배정을 위한 절차 및 구주주청약 진행등 유상증자에 소요되는 기간이 3개월 이상 소요될것으로 예상되어, 실권이 발생할 가능성이 있음에도 불구하고 상대적으로 짧은 기간에 자금조달이 가능한 일반공모방식의 유상증자를 진행할것으로 결정하였습니다.
투자자들께서는 당사의 금번 일반공모 유상증자 방식의 경우, 구주주를 포함하여 불특정다수를 대상으로 신주모집을 진행하기에 실권이 발생할 가능성이 높음에 유의하시기 바랍니다. 나아가 당사가 의도한 자금의 사용목적과 다르게 일부 또는 전부의 자금조달이 실패할 경우 사업계획 및 재무개선 계획 등에 차질을 빚을 수 있으니 투자자께서는 이 점 유의하시기 바랍니다.
| 다. 청약 후 추가상장일까지 환금성 제약 및 주가의 급격한 변동에 따른 손실위험 당사의 금번 유상증자로 인한 발행신주는 주금납입일 이후 코스닥시장 추가상장일까지 유동성이 제한될 수 있으며, 추가상장 시점에서 신주발행가액보다 시장의 주가수준이 낮은 경우 환금성 위험 및 원금 손실의 위험이 있습니다. 본 유상증자 기간동안 주가의 변동이 있을 수 있다는 점, 투자자께서는 유의하여 주시기 바랍니다. |
당사는 코스닥시장 상장법인으로서 이번 유상증자로 발행되는 신주는 코스닥시장에 상장되어 거래될 예정이므로 유동성과 관계된 심각한 환금성 위험은 존재하지 않습니다. 그러나 유상증자 청약에 참여하여 신주를 배정받을 경우, 신주가 상장되어 매매가 가능할 때까지 납입주금에 대한 유동성의 제약이 있습니다.
본 유상증자의 자세한 일정은 본 신고서의 "제1부 모집 또는 매출에 관한 사항 - I. 모집 또는 매출에 관한 일반사항" 중 '1. 공모개요'를 참고하시기 바랍니다.
또한 코스닥시장에 추가 상장될 때까지 유상증자로 발행되는 신주의 발행가액 수준의 주가가 유지되지 않을 수 있으며, 당사의 내적인 환경변화 또는 시장전체의 환경 변화 등에 의한 급격한 주가하락이 발생할 경우, 투자원금에 대한 손실이 발생할 수 있으니 투자자께서는 이 점 유의하시기 바랍니다.
| 라. 유통주식수 증가에 따른 희석화 및 신주 물량 등 일시 출회에 따른 주가 하락 위험 당사는 공시서류 제출일 현재 잠재주식수가 총 192,943주 존재하며, 그 내역은 미행사 주식매수선택권 192,943주 입니다. 주식매수선택권이 행사될 경우 총 발행주식수 7,971,546의 약 2.4%에 해당되며, 금번 유상증자 1,500,000주 포함시에는 약 2.0%에 해당됩니다. 이러한 주가 희석화 및 물량출회로 인해 투자자의 손실을 초래할 위험이 있습니다. 투자자께서는 이 점 유의하시기 바랍니다. 주식시장의 특성상 향후 주가에 대한 변동성으로 인해 금번 유상증자에 따른 모집가격 산정 시 결정된 1주당 모집가액 보다 추가 상장 후 거래 시점의 주가가 낮아질 경우 투자자에게 금전적 손실을 끼칠 가능성이 존재하며, 금번 유상증자에 따른 1,500,000주의 유상신주가 코스닥시장에 추가 상장될 경우 전량 보호 예수되지 않아 일시에 물량이 출회될 수 있습니다. 투자자께서는 이 점을 반드시 유의하여 주시기 바랍니다. |
당사는 공시서류 제출일 현재 잠재주식수가 총 192,943주 존재하며, 그 내역은 미행사 주식매수선택권 192,943주 입니다.
| [스톡옵션 부여 현황] | |||
| (단위 : 원, 주) | |||
| 부여 받은자 |
관 계 | 부여일 | 주식의 종류 |
부여 수량 |
변동수량 | 미행사 수량 |
행사기간 | 행사 가격 |
의무 보유 여부 |
의무 보유 기간 |
|
| 행사 | 취소 | ||||||||||
| 박oo | 임직원 | 2020.11.01 | 보통주 | 16,310 | - | - | 16,310 | 2023.11.01~ 2028.10.31 |
836 | - | - |
| 2022.08.16 | 보통주 | 12,615 | - | - | 12,615 | 2025.02.16~ 2030.02.15 |
6,050 | - | - | ||
| 신oo | 임직원 | 2020.11.01 | 보통주 | 10,870 | - | - | 10,870 | 2023.11.01~ 2028.10.31 |
836 | - | - |
| 2022.08.16 | 보통주 | 5,256 | - | - | 5,256 | 2025.02.16~ 2030.02.15 |
6,050 | ||||
| 조oo 외 4인 | 임직원 | 2020.11.01 | 보통주 | 38,043 | - | - | 38,043 | 2023.11.01~ 2028.10.31 |
836 | - | - |
| 김oo 외 16인 | 임직원 | 2022.08.16 | 보통주 | 109,849 | - | - | 109,849 | 2025.02.16~ 2030.02.15 |
6,050 | - | - |
| 출처: | 당사 제공 |
이 중 현재 권리행사가 가능한 수량은 존재하지 않으며, 금년부터 주식매수선택권 행사 가능 수량이 65,223주가 추가됩니다. 이에 따라 향후 주식매수선택권 행사로 인한 신주 발행물량이 더해져 주식 희석화 가능성이 존재함에 유의하시기 바랍니다.
| [당사 잠재주식수 비율] |
| 구분 | 주식수 |
| 총발행주식수 (A) | 7,971,546주 |
| 주식매수선택권 (B) | 192,943주 |
| 총발행주식수 대비 잠재주식수 (B) / (A) | 2.42% |
| 금번 유상증자 발행예정 주식 수 (C) | 1,500,000주 |
| 총발행주식수 및 발행예정 주식 수 대비 잠재주식수 (B) / (A+C) | 2.04% |
금번 유상증자에 따른 모집가액은 (구) 「유가증권의 발행 및 공시 등에 관한 규정」 제57조를 일부 준용하여 산출할 예정입니다. 그러나 주식시장의 특성상 향후 주가에 대한 변동성으로 인해 증자에 따른 모집가격 산정 시 결정된 1주당 모집가액 보다 추가 상장 후 거래 시점의 주가가 낮아져 투자자에게 금전적 손실을 끼칠 가능성이 있습니다.
또한, 당사는 금번 유상증자로 인해 추가 발행되는 주식은 유통주식수 증가에 따른 희석화 위험과 일시적인 물량출회에 따른 주가 하락의 가능성이 동시에 존재합니다. 당사가 금번 유상증자를 통해 발행 예정인 1,500,000주는 증자비율이 약 18.82%에 해당되는 물량이며, 유상신주가 코스닥시장에 추가 상장될 경우 전량 보호예수되지 않아 일시에 물량이 출회될 수 있습니다. 투자자께서는 이 점을 반드시 유의하여 주시기 바랍니다.
한편, 당사는 잠재 주식 및 금번 유상증자 외 2023년 2월 기업공개(IPO)를 통해 최대주주 및 특수관계인과 우리사주 등의 보유주식 5,864,543주가 의무보유등록이 되어있으며, 그 중 우리사주의 예탁분 중 미등기 임원의 보호예수분인 16,970주는 코스닥 시장에 상장된 일자로부터 6개월이 경과된 2023년 8월 8일 이후 의무보유기간이 종료됨에 따라 향후 당사 보통주의 매각으로인한 주가 하락 가능성이 있으니 투자자께서는 이 점을 유의하시기 바랍니다.
| [보호예수 현황] |
| (단위 : 주) |
| 주식의 종류 | 예수주식수 | 예수일 | 반환예정일 | 보호예수기간 | 보호예수사유 | 총발행주식수 |
| 보통주 | 225,000 | 2023년 02월 09일 | 2023년 08월 08일 | 6개월 | 최대주주 등의 지분에 대한 의무보유등록 | 7,971,546주 |
| 보통주 | 153,224 | 2023년 02월 09일 | 2023년 08월 08일 | 6개월 | 최대주주 등의 지분 인수자 의무보유 | |
| 보통주 | 16,970 | 2023년 02월 09일 | 2023년 08월 08일 | 6개월 | 우리사주의 예탁분 중 미등기 임원 보호예수 | |
| 보통주 | 15,300 | 2022년 10월 07일 | 2023년 10월 06일 | 1년 | 우리사주의 예탁분 | |
| 보통주 | 12,089 | 2022년 12월 29일 | 2023년 12월 28일 | 1년 | 우리사주의 예탁분 | |
| 보통주 | 95,584 | 2023년 02월 13일 | 2024년 02월 12일 | 1년 | 우리사주의 예탁분 | |
| 보통주 | 5,346,376 | 2023년 02월 09일 | 2025년 08월 08일 | 2년 6개월 | 최대주주 등의 지분에 대한 의무보유등록 |
| 출처 : 당사 제공 주1) 우리사주의 예탁분의 경우 임직원 퇴사 시 예탁분 반환에 따라 일부 물량이 조기 출회할 가능성이 있습니다. |
| 마. 유상증자에 따른 주식가치 하락 및 기재정보 의존에 따른 투자위험 금번 유상증자를 통해 취득한 당사의 주식가치가 하락할 수 있으며, 상기 투자위험요소 및 기타 기재된 정보에만 의존하여, 투자판단을 해서는 안되며 투자자 여러분의 독자적인 판단에 의해야 하니 투자자께서는 이 점 유의하시기 바랍니다. |
금번 유상증자 실시로 당사의 주식가치가 향후 하락할 수 있으므로 투자자께서는 유의하시기 바랍니다.
이 증권신고서의 효력발생은 정부가 증권신고서의 기재사항이 진실 또는 정확하다는것을 인정하거나 이 유가증권의 가치를 보증 또는 승인한 것이 아니며, 기재사항은 청약일 이전에 변경될 수 있으며, 본 건 공모주식을 청약하고자 하는 투자자들은 투자결정을 하기 전에 본 증권신고서의 다른 기재 부분 뿐만 아니라 상기 투자위험요소를 주의 깊게 검토한 후 이를 고려하여 최종적인 투자판단을 해야 합니다.
다만, 당사가 현재 알고 있지 못하거나 중요하지 않다고 판단하여 상기 투자위험요소에 기재하지 않은 사항이라 하더라도 당사의 운영에 중대한 부정적 영향을 미칠 수 있다는 가능성을 배제할 수는 없으므로, 투자자는 상기 투자위험요소에 기재된 정보에만 의존하여 투자판단을 해서는 안되며, 자신의 독자적인 판단에 의해야 합니다.
당사는 상기에 기술된 투자위험요소 외에도 전반적으로 불안정한 경제상황 등에 의하여 직접적으로 또는 간접적으로 영향을 받을 수 있습니다. 당사의 재무제표는 당사의 재무상태에 영향을 미칠 수 있는 경제상황에 대한 경영자의 현재까지의 평가를 반영하고 있으나 그 실제결과는 현재시점에서의 평가와는 상당히 다를 수 있는 만큼, 투자자 여러분께서는 이 점 유의하여 투자에 임하시기 바랍니다.
만일 상기 투자위험요소가 실제로 발생하는 경우 당사의 사업, 재무상태, 기타 운영결과에 부정적 영향을 미칠 수 있으며, 이에 따라 투자자가 금번 공모 과정에서 취득하게 되는 당사 주식의 시장가격이 하락하여 투자금액의 일부 또는 전부를 잃게 될 수도 있습니다. 또한 금번 공모를 위한 분석 중에는 예측정보가 포함되어 있습니다. 그러나 예측정보에 대한 실제 결과는 대내외적으로 여러가지 요소들의 영향에 따라 애초에 예측했던 것과 다를 수 있으니 투자자께서는 이 점 유의하시기 바랍니다.
| 바. 유상증자 일정 변경 가능성에 따른 위험 본 증권신고서는 공시심사 과정에서 일부내용이 정정될 수 있으며, 투자판단과 밀접하게 연관된 주요내용이 변경될 시에는 본 신고서상의 일정에 차질을 가져올 수 있습니다. 또한, 관계기관과의 업무진행 과정에서 일정이 변경될 수도 있으므로 투자자들께서는 투자시 이러한 점을 감안하시기 바랍니다. |
「자본시장과 금융투자업에 관한 법률」제120조3항에 의거하여 본 증권신고서의 효력의 발생은 증권신고서의 기재사항이 진실 또는 정확하다는 것을 인정하거나, 정부가 이 증권의 가치를 보증 또는 승인한 것이 아니므로 본 증권에 대한 투자는 전적으로 투자자에게 귀속됩니다.
| ※「자본시장과 금융투자업에관한 법률」제120조(신고의 효력발생시기 등) |
| ① 제119조제1항 및 제2항에 따른 증권의 신고(이하 "증권신고"라 한다)는 그 증권신고서가 금융위원회에 제출되어 수리된 날부터 증권의 종류 또는 거래의 특성 등을 고려하여 총리령으로 정하는 기간이 경과한 날에 그 효력이 발생한다. ② 금융위원회는 증권신고서의 형식을 제대로 갖추지 아니한 경우 또는 그 증권신고서 중 중요사항에 관하여 거짓의 기재 또는 표시가 있거나 중요사항이 기재 또는 표시되지 아니한 경우를 제외하고는 그 수리를 거부하여서는 아니 된다. ③ 제1항의 효력의 발생은 그 증권신고서의 기재사항이 진실 또는 정확하다는 것을 인정하거나 정부에서 그 증권의 가치를 보증 또는 승인하는 효력을 가지지 아니한다. ④ 증권의 발행인은 증권신고를 철회하고자 하는 경우에는 그 증권신고서에 기재된 증권의 취득 또는 매수의 청약일 전일까지 철회신고서를 금융위원회에 제출하여야 한다 |
금융감독원 전자공시 홈페이지(http://dart.fss.or.kr)에는 당사의 사업보고서(분기 및 반기보고서 포함) 및 감사보고서 등 기타 정기공시사항과 수시공시사항 등이 전자공시되어 있사오니 투자의사를 결정하시는 데 참조하시기 바랍니다.
본 증권신고서는 공시심사과정에서 일부내용이 정정될 수 있으며, 투자판단과 밀접하게 연관된 주요내용이 변경될 경우에는 본 신고서상의 일정에 차질을 가져올 수 있습니다. 또한, 관계기관과의 업무진행과정에서 일정이 변경될 수도 있으므로 투자자께서는 이 점 유의하시기 바랍니다.
| 사. 차입공매도 유상증자 참여 제한 관련 위험 「자본시장과 금융투자업에 관한 법률 시행령」일부 개정령에 따라, 주권상장법인이 유상증자 계획을 공시한 이후 발행가격 산정을 위한 대상 거래기간의 마지막 날(발행가격 산정 기산일)까지, 해당 기업의 주식을 공매도 한 자는 증자 참여를 제한하되, 예외적인 경우에만 증자 참여가 허용됩니다(「자본시장과 금융투자업에 관한 법률」제180조의4). 투자자께서는 이 점 유의하시기 바랍니다. |
「자본시장과 금융투자업에 관한 법률 시행령」일부 개정령에 따라, 주권상장법인이 유상증자 계획을 공시한 이후 해당 기업의 주식을 공매도 한 자는 증자 참여를 제한하되, 예외적인 경우 증자 참여를 허용하고 있습니다. (「자본시장과 금융투자업에 관한 법률」제180조의4). 이와 관련 유상증자 참여가 제한되는 공매도 시점과, 증자참여가 허용되는 예외사유를 시행령에서 정하도록 위임하고 있습니다.
동법 시행령에 따르면, 유상증자 계획이 공시된 다음 날부터, 발행가격 산정을 위한 대상 거래기간의 마지막 날(발행가격 산정 기산일)까지 공매도한 경우 증자 참여가 제한됩니다. (「자본시장과 금융투자업에 관한 법률 시행령」208조의4제1항)
다만, 다음의 경우 공매도를 통해 발행가격에 부당한 영향을 미쳤다고 보지 않아 증자참여가 허용됩니다. (「자본시장과 금융투자업에 관한 법률 시행령」제208조의4제2항)
ⅰ) 마지막 공매도 이후 발행가격 산정 기산일까지 공매도 주문 수량 이상을 증권시장 정규거래시간에 매수(체결일 기준)
ⅱ) 금융위원회가 정하는 기준을 충족한 독립된 거래단위를 운영하는 법인 내에서 공매도를 하지 않은 거래단위가 증자 참여
ⅲ) 시장조성 또는 유동성공급을 위한 거래 과정에서 공매도
상기 공매도 제도 개선 관련 「자본시장과 금융투자업에 관한 법률 시행령」 개정안에 따라, 당사의 주식을 해당 기간 동안 공매도하는 투자자께서는 금번 유상증자 참여가 제한될 수 있음을 유의하시기 바랍니다. 해당 법령과 관련된 자세한 금융관련 법규는 "국가법령정보센터(http://law.go.kr)", "금융감독원 금융법규서비스(http://fss.or.kr)", "KRX법규서비스(http://law.krx.co.kr)" 등을 참고하시기 바랍니다.
| 아. 유상증자 철회에 따른 위험 금번 일반공모 유상증자는 대표주관회사의 잔액인수 없이 모집주선 방식으로 진행됩니다. 유상증자 진행 중, 모집절차의 진행에 있어 중대한 영향을 미칠만한 사유가 발생할 경우 당사 혹은 모집주선회사의 판단에 따라 유상증자가 철회될 수 있습니다. 본 증권신고서가 유상증자 납입전에 철회될 경우 청약으로 인한 손실은 발생하지 않으나, 철회시점에 따라 권리락에 따른 주가하락 등이 발생할 수 있습니다. 또한, 당사가 계획한 자금사용목적의 자금이 조달되지 않기 때문에 당사는 당사의 성장을 위해 수립한 경영계획에 차질이 생길 수 있습니다. 유상증자가 철회될 경우 매우 위험한 상황이 발생할 수 있으니 이 점 유의하시기 바랍니다. |
금번 일반공모 유상증자는 대표주관회사의 잔액인수 없이 모집주선 방식으로 진행됩니다. 유상증자 진행 중, 모집절차의 진행에 있어 중대한 영향을 미칠만한 사유가 발생할 경우 당사 혹은 모집주선회사의 판단에 따라 유상증자가 철회될 수 있습니다.
본 증권신고서가 유상증자 납입전에 철회될 경우 청약으로 인한 손실은 발생하지 않으나, 철회시점에 따라 권리락에 따른 주가하락 등이 발생할 수 있습니다. 또한, 당사가 계획한 자금사용목적의 자금이 조달되지 않기 때문에 당사는 당사의 성장을 위해 수립한 경영계획에 차질이 생길 수 있습니다. 유상증자가 철회될 경우 매우 위험한 상황이 발생할 수 있으니 이 점 유의하시기 바랍니다.
| 자. 집단 소송 제기 가능성 위험 당사가 잘못된 정보를 제공하거나 부실감사 등으로 주주들에게 손해를 끼칠 시 일부 주주들로부터 집단 소송이 제기될 위험이 있습니다. |
'증권관련 집단소송법' 제12조(소송허가 요건)에 따라 50명 이상의 개인이 발행주식총수의 0.01% 이상 보유할 경우 한 명 이상의 대표 당사자가 상기 50인 이상의 당사자들을 대리하여 회사가 발행한 증권의 거래과정에서 발생한 피해에 대하여 소송을 제기할 수 있습니다.
당사가 잘못된 정보를 제공하거나 부실감사 등으로 주주들에게 손해를 끼칠 시 일부 주주들로부터 집단 소송이 제기될 위험이 있습니다. 본 증권신고서 및 투자설명서에서 기재된 잘못된 내용, 잘못된 사업보고서의 공시, 내부자거래에 의한 손해배상청구및 회계부정으로 인한 손해배상 청구 등이 주요한 소송 사유에 포함됩니다. 당사는 향후 이와 같은 집단소송의 대상이 되지 않는다고 확신할 수 없으며, 만약 당사에 대하여 집단소송이 제기될 경우 상당한 소송비용이 발생할 수 있습니다.
| 차. 관리감독기준 위반에 따른 위험 최근 상장 기업에 대한 관리감독기준이 강화되는 추세이며, 향후 당사가 상장기업 관리감독기준을 위반할 경우 주권매매정지, 관리종목지정, 상장폐지실질심사, 상장폐지 등의 조치가 취해질 수 있습니다. |
최근 상장 기업에 대한 금융감독기관 등의 관리감독기준이 엄격해지고 있는 상황으로 관련 규정을 위반할 경우 주권매매정지, 관리종목지정, 상장폐지실질심사, 상장폐지 등의 조치가 취해질 수 있습니다.
특히, 「코스닥시장 상장규정」 제53조(관리종목), 「코스닥시장 상장규정」 제54조(형식적 상장폐지) 및 「코스닥시장 상장규정」 제56조(상장적격성 실질심사에 다른 상장폐지)"에 유의하시기 바랍니다.
당사는 코스닥시장 상장사이며, 코스닥시장 관리종목 지정 및 상장폐지 주요요건에 해당하는 사안은 없습니다. 하지만 금융감독기관 등의 관리감독기준이 엄격해지고 있는 상황으로 관련 규정을 위반할 경우 주권매매정지, 관리종목지정, 상장폐지실질심사, 상장폐지 등의 조치가 취해질 수 있습니다.
| [코스닥시장 관리종목 지정 사유 및 퇴출 요건] |
| 구분 | 관리종목 | 상장적격성 실질심사 | 형식적 상장폐지 |
| 매출액 | 최근 사업연도 30억원 미만(지주회사는 연결 기준) | 관리종목으로 지정된 다음 해에도 매출액 30억원 미달 사유 발생 | |
| 기술성장기업(우량기업부 기업 제외) 및 이익미실현기업은 상장일 속한 사업연도 포함 5개 사업연도에 미적용 | |||
| 검토결과 | 2022년 매출액 약 269억원(해당없음) | ||
| 법인세비용차감전 계속사업손실 |
자기자본 50% 초과(&10억원 이상)의 법인세비용차감전계속사업손실이 최근 3년간 2회 이상(& 최근 사업연도 법인세비용차감전계속사업손실 발생) | 관리종목으로 지정된 다음 해에도 자기자본 50% 초과 & 10억원 이상의 법인세비용차감전계속사업손실 발생 | |
| 기술성장기업(우량기업부 기업 제외) 상장일 속한 사업연도 포함 3개 사업연도 미적용, 이익미실현 기업 상장일 속한 사업연도 포함 5개 사업연도 미적용 | |||
| 검토결과 | 최근 3개 사업년도 연속 법인세차감전순이익 달성(해당없음) | ||
| 자본잠식 | 최근 사업연도 말 자본잠식률 50% 이상 | 관리종목으로 지정된 다음 해에도 자본잠식률 50% 이상 발생 | 최근 사업연도 전액 자본잠식 |
| 검토결과 | 2022년말 자본금: 약 6억원, 자본총계: 약 81억원(해당없음) | ||
| 자기자본 미달 | 최근 사업연도 말 자기자본 10억원 미만 | 관리종목으로 지정된 다음 해에도 자기자본 10억원 미만 발생 | |
| 검토결과 | 2022년말 자본총계: 약 81억원(해당없음) | ||
| 감사의견 | 최근 사업연도 감사의견 비적정(부적정ㆍ의견거절ㆍ범위제한 한정) | ||
| 검토결과 | 2022년 신우회계법인 감사의견 적정(해당없음) | ||
| 시가총액 | 시가총액이 40억원 미만인 상태가 연속하여 30일 지속 | 관리종목 지정 후 90일 간 “연속 10일 & 누적 30일 이상 시가총액 40억원 이상”의 조건을 미충족 | |
| 검토결과 | 해당없음 | ||
| 정기보고서 미제출 | 분기, 반기, 사업보고서를 법정제출기한 내 미제출 | 2년간 3회 이상 분기, 반기, 사업보고서를 법정제출기한 내 미제출 | |
| 사업보고서 법정제출기한 후 10일 내 미제출 | |||
| 분기, 반기, 사업보고서 미제출로 관리종목 지정된 상태에서 분기, 반기, 사업보고서를 미제출 | |||
| 검토결과 | 해당없음 | ||
| 거래량 | 분기 월평균 거래량이 유동주식 수의 1%에 미달 | 2분기 연속 | |
| 월간 거래량 1만주, 소액주주 300인 이상이 20% 이상 지분 보유 등은 적용 배제 | |||
| 검토결과 | 해당없음 | ||
| 지분분산 | 최근 사업연도 말 기준 소액주주 200인 미만 또는 소액주주의 지분이 20% 미만 | 2년 연속 | |
| 300인 이상의 소액주주가 유동주식수의 10%이상으로서 100만주 이상 소유하는 경우 제외 | |||
| 검토결과 | 해당없음 | ||
| 불성실공시 | - | 1년 간 불성실공시 벌점 15점 이상 | |
| 검토결과 | 해당없음 | ||
| 지배구조 | 사외이사/감사위원회 요건 미충족 | 2년 연속 | |
| 검토결과 | 해당없음 | ||
| 회생절차/파산신청 | 회생절차 개시 신청 또는 파산신청 | 개시신청 기각, 결정 취소, 회생계획 불인가 등 | |
| 검토결과 | 해당없음 | ||
| 재무관리 위반 | 변경·추가 상장이 유예된 기간 중에 증권의 발행 및 공시 등에 관한 규정에 따른 재무관리 기준을 위반한 경우 | ||
| 검토결과 | 해당없음 | ||
| 기타 상장폐지 사유 | 모든 상장폐지 사유(형식 상장폐지 및 상장적격성 실질심사 대상 결정)가 발생한 경우 관리종목 지정 | 최종 부도 또는 은행거래정지 | |
| 해산사유(피흡수합병, 파산선고) | |||
| 정관 등에 주식양도 제한을 두는 경우 | |||
| 유가증권시장 상장의 경우 | |||
| 우회상장시 우회상장 관련 규정 위반 시 (심사 종료 전 기업결합 완료 및 의무보유 위반 등) |
|||
| 검토결과 | 해당없음 | ||
(출처: 한국거래소)
자세한 금융관련 법규는 "국가법령정보센터(http://law.go.kr)", "금융감독원 금융감독법규정보시스템(http://law.fss.or.kr)", "KRX법규서비스(http://law.krx.co.kr)" 등을 참고하시기 바랍니다.
| 카. 청약자 유형별 배정에 따른 위험 금번 당사의 유상증자는 일반공모 방식으로 진행됩니다. 일반공모 청약 결과 '증권 인수업무 등에 관한 규정' 제9조 제2항에 따라 고위험고수익투자신탁에 공모주식의 5%를 배정하고, 벤처기업투자신탁에 공모주식의 30%를 배정합니다. 나머지에 해당하는 주식은 개인청약자 및 기관투자자에게 구분 없이 배정합니다. 고위험고수익투자신탁 및 코스닥벤처펀드의 청약 수량이 최초 우선 배정된 5%와 30%에 미달하는 경우 해당 미달 수량을 일반 청약자에게 배정하게 되며, 그 결과 일반 청약자의 청약 경쟁률보다 실제 배정받는 물량이 훨씬 많을 수가 있습니다. 일반청약자들께서는 이 점 유의하시어 투자 의사 결정하시기 바랍니다. |
금번 당사의 유상증자는 일반공모 방식으로 진행됩니다. 일반공모 청약 결과 '증권 인수업무 등에 관한 규정' 제9조 제2항에 따라 고위험고수익투자신탁에 공모주식의 5%를 배정하고, 벤처기업투자신탁에 공모주식의 30%를 배정합니다. 나머지에 해당하는 주식은 개인청약자 및 기관투자자에게 구분 없이 배정합니다.
한편, 고위험고수익투자신탁에 대한 공모주식 5%와 벤처기업투자신탁에 공모주식의 30%와 개인투자자 및 기관투자자에 대한 공모주식 65%에 대한 청약경쟁률과 배정은 별도로 산출 및 배정하되, 어느 한 그룹에서 청약미달이 발생할 경우 청약미달에 해당하는 주식은 청약초과 그룹에 배정합니다.
이에 따라 금번 유상증자에서 일반공모 진행 결과 고위험고수익투자신탁 및 코스닥벤처펀드의 청약 수량이 최초 우선 배정된 5%와 30%에 미달하는 경우 해당 미달 수량을 일반 청약자에게 배정하게 되며, 그 결과 일반 청약자의 청약 경쟁률보다 실제 배정받는 물량이 훨씬 많을 수가 있습니다. 일반청약자들께서는 이 점 유의하시어 투자 의사 결정하시기 바랍니다.
| 타. 기타 투자자 유의사항 당사의 대내외적 경영환경 변화에 따라 당사 실적의 급변동이 있을 경우, 투자원금에 대한 손실이 발생할 수 있으므로, 상기 투자위험요소 및 본 증권신고서에 기재된 정보에만 의존하여 투자 판단을 해서는 안되며, 투자자 여러분의 독자적인 판단에 의해야 함을 유의하시어 투자에 임하시기 바랍니다. |
(1) 금번 유상증자 실시로 당사의 주식가치가 향후 하락할 수 있으므로 투자자 여러분들께서는 이 점을 유의하여 주시기 바랍니다.
(2)「자본시장과 금융투자업에 관한 법률」제120조 제3항에 의거하여 본 증권신고서의 효력의 발생은 증권신고서의 기재사항이 진실 또는 정확하다는 것을 인정하거나, 정부가 이 증권의 가치를 보증 또는 승인한 것이 아니므로 본 증권에 대한 투자는 전적으로 투자자에게 귀속됩니다.
(3) 이 증권신고서의 공시심사 과정에서 기재사항은 청약일 이전에 변경될 수 있고, 일부 내용은 정정될 수 있으며, 투자판단과 밀접하게 연관된 주요내용이 변경될 시에는 본 신고서상의 일정에 차질을 가져올 수 있습니다. 또한 관계기관과의 업무진행 과정에서 일정이 변경될 수도 있습니다.
(4) 본 건 공모주식을 청약하고자 하는 투자자들은 투자결정을 하기 전에 본 증권신고서의 다른 기재 부분 뿐만 아니라 상기 투자위험요소를 주의 깊게 검토한 후 이를 고려하여 최종적인 투자판단을 해야 합니다. 다만, 당사가 현재 알고 있지 못하거나 중요하지 않다고 판단하여 상기 투자위험요소에 기재하지 않은 사항이라 하더라도 당사의 운영에 중대한 부정적 영향을 미칠 수 있다는 가능성을 배제할 수는 없으므로, 투자자는 상기 투자위험요소에 기재된 정보에만 의존하여 투자판단을 해서는 안되며, 자신의 독자적인 판단에 의해야 합니다.
(5) 당사는 상기에 기술된 투자위험요소 외에도 전반적으로 불안정한 경제상황 등에 의하여 직접적으로 또는 간접적으로 영향을 받을 수 있습니다. 당사의 재무제표는 당사의 재무상태에 영향을 미칠 수 있는 경제상황에 대한 경영자의 현재까지의 평가를 반영하고 있으나, 그 실제결과는 현재시점에서의 평가와는 상당히 다를 수 있는 만큼, 투자자 여러분께서는 이 점을 유의하여 투자에 임하시기 바랍니다.
(6) 만일 상기 투자위험요소가 실제로 발생하는 경우 당사의 사업, 재무상태, 기타 운영결과에 중대한 부정적 영향을 미칠 수 있으며, 이에 따라 투자자가 금번 공모 과정에서 취득하게 되는 당사 주식의 시장가격이 하락하여 투자금액의 일부 또는 전부를 잃게 될 수도 있습니다.
(7) 본건 공모를 위한 분석 중에는 예측정보가 포함되어 있습니다. 그러나 예측정보에 대한 실제 결과는 대내외적으로 여러가지 요소들의 영향에 따라 애초에 예측했던 것과 다를 수 있다는 점에 유의해야 합니다.
(8) 금융감독원 전자공시 홈페이지(http://dart.fss.or.kr)에는 당사의 사업보고서(분기 및 반기보고서 포함) 및 감사보고서 등 기타 정기공시사항과 수시공시사항 등이 전자공시되어 있으니 투자의사를 결정하시는 데 참조하시기 바랍니다.
이와 같이, 본 건 유상증자를 통해 취득한 당사의 주식 가치는 하락할 수 있으며, 본 증권신고서에서 제시된 투자위험요소 및 기타 기재된 정보에만 의존하여 투자판단을 해서는 안되며, 투자자 여러분의 독자적인 판단에 의해야 함을 다시 한번 유의하여 주시기 바랍니다.
| ※ 상기 제반사항을 고려하시어 투자자 제위의 현명한 판단을 바랍니다. 투자자는 본건 공모주식에의 투자 여부를 결정함에 있어서 필요한 경우 스스로 별도의 독립된 자문을 받아야 하며, 이에 따른 투자의 결과에 대하여는 투자자가 책임을 부담합니다. |
IV. 인수인의 의견(분석기관의 평가의견)
유진투자증권(주)는 금번 일반공모 유상증자의 모집주선회사이며, 투자중개업자로서 타인의 계산으로 증권의 발행ㆍ인수에 대한 청약의 권유, 청약, 청약의 승낙을 영업으로 하게 되며, 「자본시장과 금융투자업에 관한 법률」에 의거한 증권의 인수업무를 수행하지 않습니다.
V. 자금의 사용목적
1. 모집 또는 매출에 의한 자금조달 내역
가. 자금조달금액
| (단위: 원) |
| 구 분 | 금 액 |
| 모집 또는 매출총액 (1) | 20,190,000,000 |
| 발 행 제 비 용 (2) | 239,744,200 |
| 순 수 입 금 [ (1) - (2) ] | 19,950,255,800 |
| 주1) 상기 금액은 예정발행가액을 기준으로 기재하였으며, 모집가액 확정시 변경될 수 있습니다. 주2) 발행제비용은 공모금액 및 실권규모에 따라 변경될 수 있습니다. |
나. 발행제비용의 내역
| (단위: 원) |
| 구 분 | 금 액 | 계산근거 |
| 발행분담금 | 3,634,200 | 총모집금액 * 0.018%(10원 미만 절사) |
| 모집주선수수료 | 201,900,000 | 모집총액의 1.0% |
| 상장수수료 | 3,490,000 | 250만원+100억원 초과금액의 10억원당 9만원 |
| 등기관련비용 | 600,000 | 등록세(증자자본금의 0.4%)(지방세법 제28조) |
| 지방교육세 | 120,000 | 교육세(등록세의 20%) |
| 기타비용 | 30,000,000 | 투자설명서 인쇄/발송비 등 |
| 합계 | 239,744,200 | - |
| 주1) 상기 금액은 예정발행가액을 기준으로 기재하였으며, 모집가액 확정시 변경될 수 있습니다. 주2) 실제 발행제비용은 공모금액 및 상장신청일 직전일 한국거래소에서 거래되는 당사의 보통주식 종가기준으로 산정되며, 유관기관 정책 등에 따라 변동될 수 있습니다. 주3) 기타비용은 예상 금액으로 변동될 수 있습니다. |
2. 자금의 사용목적
가. 자금의 사용목적
당사는 금번 일반공모 유상증자를 통해 조달 예정인 자금을 아래와 같이 사용할 예정입니다. 다만, 하기 투자계획은 현 시점에서 예상되는 계획이며, 향후 집행 시점의 경영환경 등을 고려하여 변경될 가능성이 있으므로 투자자께서는 이 점 유의하시기 바랍니다.
| (기준일 : | 2023년 06월 12일 | ) | (단위 : 백만원) |
| 시설자금 | 영업양수 자금 |
운영자금 | 채무상환 자금 |
타법인증권 취득자금 |
기타 | 계 |
|---|---|---|---|---|---|---|
| 13,193 | - | 6,757 | - | - | 240 | 20,190 |
나. 공모자금 세부 사용목적
당사는 금번 일반공모를 통해 스마트팩토리 신설을 위한 공장 건설자금 및 원부자재 구입비 및 외주가공비 등의 목적으로 사용할 예정입니다. 만약 금번 공모금액이 당초 계획한 금액에 미달할 경우 당사는 아래에 표기한 자금사용계획을 집행 시기에 따라 세부적으로 조정할 예정이며, 부족분은 당사 자체자금 및 추가 차입금을 통해 충당할 계획입니다. 금번 일반공모 유상증자를 통해 공모자금의 세부 사용 예정 내역은 아래와 같습니다.
| [자금의 사용목적 개요] |
| (단위: 백만원) |
| 구 분 | 상세현황 | 사용(예정)시기 | 금액 | 우선순위 |
|---|---|---|---|---|
| 시설자금 | 스마트팩토리 공장 건설자금 | 2023년 4분기 ~ 2024년 3분기 | 13,193 | 1순위 |
| 운영자금 | 원부자재구입비 및 외주가공비 등 | 2023년 3분기 ~ 2023년 4분기 | 6,757 | 2순위 |
| 소 계 | 19,950 | - | ||
| 발행제 비용 | 240 | - | ||
| 합 계 | 20,190 | - | ||
| 주2. 상기 금액은 공모금액 및 실권규모에 따라 변경될 수 있으며, 상기 기재 금액은 청약 초과로 인하여 실권이 발생하지 않은 상황을 가정하여 산정되었습니다. |
단, 금번 유상증자를 통해 조달하게 될 스마트팩토리 시설자금 관련 금액에 대한 사용 시기는 상기의 내역과 같이 공시서류 제출 전일 기준으로 작성되었으며, 향후 실제 자금 집행 과정에서 그 금액 또는 사용 시기가 소폭 변경될 수 있습니다.
이와 관련하여 상기 기재된 자금사용 목적 외에 운영자금 사용 및 타용도로 사용시 매 분기별 정기보고서에 공모자금 실제 사용내역에 관하여 성실하게 공시할 예정입니다.
자금 조달로부터 사용시까지 미사용 자금에 대해서는 자금 사용시점 및 금리에 따라 적격금융기관의 수시입출금 예금, 정기예금 등 금융상품 또는 AA등급대(A1등급대)이상의 단기금융상품으로 운용할 예정입니다.
(1) 시설자금 - 스마트팩토리 공장 건설자금
당사는 생산 효율화를 도모하기 위하여 현재 외부생산을 기반으로 사업을 영위하고 있으며, 전체 품목에 대해 매월 판매 계획서를 기반으로 보유하고 있는 재고를 감안하여 생산 계획서를 작성하고, 그 계획에 따라 발주 진행 및 생산을 진행합니다. 다만, 유아용 매트 등 주력 품목들의 매출 규모가 확대되면서 원가 및 품질 경쟁력을 확보하고 물류 비용 절감을 위하여 스마트 공장 건립을 통한 자체 생산 라인 구축을 진행하고 있습니다. 스마트 공장의 구축으로 당사는 원가 절감뿐만 아니라 물류창고 공간확보, 재고자산 보관비용 부담의 감소 효과가 기대되며 이를 통해 수익성 확대를 기대하고 있습니다.
현재 당사는 설립시부터 생산 효율화를 위해 외주생산을 기반으로 사업을 영위하고 있기 때문에 영업비용에서 외주비가 차지하는 비중이 높습니다. 생산은 100% 외주가공, OEM, ODM 방식으로 제품군에 따라 생산방식을 달리하고 있습니다.
| [당사 제품별 생산방식] |
| 구분 | 방식 | 비고 | |
| 유아용 가구 | 매트 | 원재료 직매입 및 외주가공 |
당사가 원재료를 직매입하여 외주가공업체에 공급하여 생산하는 방식 |
| 원목 가구 등 | OEM 생산 | 국내/해외 OEM 생산 | |
| 유아용 스킨케어 | ODM 생산 | 국내 ODM 생산 | |
| 출처 : 당사 정기보고서 및 당사 제공 |
| [연도별 외주가공비 비중] |
| (단위 : 백만원) |
|
구 분 |
2023년 1분기 |
2022년 1분기 |
2022년 |
2021년 |
2020년 |
|---|---|---|---|---|---|
|
외주가공비 |
1,077 |
2,471 |
7,066 |
7,711 |
5,508 |
|
당기 총제조비용 대비 비중 |
56.2% |
66.75% |
56.2% |
65.4% |
50.8% |
|
제품 매출액 대비 비중 |
30.7% |
41.90% |
34.9% |
36.9% |
29.8% |
|
외주가공업체 수 |
27사 |
32사 |
50사 |
32사 |
33사 |
| 출처 : 당사 제공 |
상기 표처럼 당사 총제조비용 대비 외주가공비의 비중은 약 50% 이상으로 제조비용의 상당 부분이 외주가공비로 지출되고 있어, 매출이 확대될 수록 외주가공비 또한 동반 상승하는 비용 구조를 가지고 있습니다.
당사는 주력품목들의 매출 규모가 성장하면서 원가 및 품질 경쟁력을 더욱 확보하고, 물류 비용 절감을 위하여 자체 생산시설 확보 계획을 수립하였으며, 신규 공장 건립을 위해 건축물, 기계장치 등을 구매할 계획입니다. 당사의 주력 제품인 유아용 매트는 제품의 특성상 부피가 크기 때문에 SKU가 높아 많은 창고를 필요로 합니다. 이로 인해서, 창고 임대료 부담이 높은 편인데, 안성시에 확보한 자체 물류센터에 유아용 매트를 보관하여 임대료 부담을 낮출 예정입니다. 또한, 판매중인 유아용 매트 중에서 당사가 예측가능한 수요 대해선 해당 부지에 건설된 공장에서 자체 생산함으로써 OEM/ODM에 100% 의존되어 있는 현재의 생산위험을 낮추고, 원가와 물류비를 절감함으로써 수익성을 높일 계획입니다.
당사는 토지비 및 건축비 등이 포함하여 약 210억원을 투자하여 주력품목들을 직접 생산하기 위한 지상3층, 지하1층 규모의 스마트팩토리 신설을 진행 할 예정이며, 2024년 9월까지 공장을 완공하여 본격적인 자체생산에 돌입 할 예정입니다. 이를 위해 당사는 2023년 3월 30일 경기도 안성시에 위치한 9,900㎡ 규모의 토지를 양수하는 계약을 체결하였으며, 2023년 6월 29일 잔급지급 완료 후 양수를 완료하여 생산공장 및 물류센터 신축을 진행할 예정입니다. 또한 당사는 공시서류 제출 전일 현재 공장건물 토목설계 및 건축설계 계약을 진행중에 있습니다.
2023년 1월 30일 당사가 공시한 IPO 일반공모 투자설명서에 따르면, 당사는 총 약 157억원을 투자하여 경기도 용인시 남사읍 북리 토지 총 8,273㎡(2,503평)을 매입 후 스마트팩토리 신설을 계획중인것으로 기재되어 있으나, 이후 추가적인 사업 진행 중 신설예정인 스마트팩토리의 규모가 기존보다 증가하였고, 또한 기존 매입 예정이었던 용인시 남사읍 북리 토지의 가격이 최초 계획시보다 크게 상승하여 최종적으로 경기도 안성시에 위치한 토지를 매입 할 것으로 사업계획을 변경하였습니다. 당사가 2023년 1월 30일 공시한 기존 스마트 팩토리 공장설립안 및 금번 일반공모 유상증자를 통해 계획중인 스마트 팩토리 공장설립안은 다음과 같습니다.
| [스마트 팩토리 기존 공장설립안 및 변경안 비교] |
| (단위 : 백만원) |
| 구 분 | 기존(안) | 변경(안) | ||
|---|---|---|---|---|
| 내 용 | 비 고 | 내 용 | 비 고 | |
| 소재지 | 경기도 용인시 남사읍 북리 00번지 일대 | 경기도 안성시 원곡면 성은리 산 22-2 | ||
| 토지면적 | 8,273㎡ | 2,502평 | 9,900㎡ | 2,995평 |
| 건폐율 | 67.95% | 법정 건폐율 70% | 39.85% | 법정 건폐율 40% |
| 용적율 | 99.89% | 법정 용적율 100% | 99.11% | 법정 용적율 100% |
| 건축규모 | 8,264.50㎡ | 공장 300평 창고 2,000평 편의시설 200평 |
15,000.78㎡ | 공장 500평 창고&쇼룸 3,500평 편의시설 180평 |
| 지상층 | 8,264.50㎡ | 지상2층 | 9,811.40㎡ | 지상3층 |
| 지하증 | - | - | 5,189.38㎡ | 지하1층 |
| 건 축 비 용 | ||||
| 토지구입대금 | 7,241 | 4,932 | ||
| 예상 건축비 | 7,876 | 13,586 | ||
| 기계설비 | 932 | 989 | ||
| 기 타 | 160 | 1,511 | ||
| 합 계 | 16,210 | 21,018 | ||
| 생산품목 | 롤매트류(클린롤매트(양면), 슈퍼자이언트매트(양면) 허쉬(양면), 롤매트플러스(단면) 자이언트(단면), 슈퍼자이언트(단면), 5단클린매트(단면) |
|||
| 출처 : | 당사 제시 |
당사는 2022년 상반기부터 공장 및 부대시설인 창고와 창고 시설 내 쇼룸을 설치하고자 당사와 가까운 거리의 매물을 찾고 있었으며, 경기도 용인시 남사읍에 위치한 북리 공단 내 부지에 대하여 부동산 및 실 소유주와 협의를 하여 당사가 상장을 진행할 당시 계약 직전까지 진행되었습니다. 그러나, 상장 이후 부지 계약을 위한 협의 중 2023년 3월 15일 남사읍 일대가 용인 반도체 클러스터 국가산업단지 후보지로 선정되었다는 뉴스가 보도되어 기존 계획했던 사업 부지 확보에 차질이 생기게 되었습니다. 이에 당사는 교통편의성, 인허가 취득 가능성, 부지면적 등의 조건을 고려하여 공장부지를 재검토하였고, 최초 계획하였던 용인시 남사읍 토지에서 약 10km 거리에 있는 경기도 안성시에 위치한 부지를 매입하기로 결정하였습니다.
당사는 기존 계획보다 토지면적, 건축규모, 건축비용면에서 기존 계획보다 규모를 확대하였습니다. 이는 당사가 상장 이후 빠른 매출액 성장을 위해 상품 개발 인력을 작년 4분기 대거 충원 해 왔으며, 그 결과 올해 2분기부터 신상품이 작년 대비 4배 이상 출시되는 등 신상품의 출시 및 제품 카테고리의 확대 그리고 2022년부터 신규로 사업을 영위하고 있는 G7 커피의 매출 또한 전년 대비 크게 성장되어 당초 계획보다 물류 공간이 더 요구되는 상황이기 때문입니다. 또한, 당사는 유아용품을 오프라인에서 직접 경험해 보고 싶었으나 마땅히 체험해 볼 수 있는 쇼핑 공간이 없었던 고객을 위해 본 창고시설 내 쇼룸을 추가적으로 계획하고 있습니다. 당사 제품의 경우 부피가 큰 제품이 많고 가격대가 높은 프리미엄 상품이기에 체험 공간의 필요성이 높으며, 당사 제품 카테고리 확대의 영향으로 자체 쇼룸의 규모도 자연스럽게 확대하였습니다.
또한, IPO 투자설명서에 예측한 2023년 12월 입주완료일자는 2024년 9월 중 입주 예정으로 변경 되었습니다. 금번 변경된 스마트팩토리 신설관련 총 투자규모 및 계획 및 공장부지 취득 관련 공시사항은 아래와 같습니다.
| [스마트팩토리 신설 관련 투자규모 및 계획] |
| 구분 | 내용 |
|---|---|
| 총 투자규모(예정) | 총 투자규모: 약 210억원 - 토지비(토지매입비 및 취득세 등): 약 49억원 (23년 04월 ~ 23년 06월 사용예정) - 건축비(직접공사비 및 간접공사비 등): 약 135억원 (23년 06월 ~ 24년 09월 사용예정) - 기계장치(공장설비): 약 6억원 (24년 08월 ~ 24년 09월 사용예정) - 기타 설비(렉설치비 및 인테리어 등): 약 20억원 (24년 08월 ~ 24년 09월 사용예정) |
| 투자기간(예정) | 2023년 04월 ~ 2024년 09월 |
| 진행경과 | 2023년 04월: 토지매입 계약 체결완료 및 중도금 지급 현재 토목설계 및 건축설계 계약 진행 중 |
| 향후일정(예정) | 23년 06월: 토지잔금 지급 23년 06월: 설계계약 23년 11월: 인허가 완료 예정 23년 12월: 착공 24년 09월: 완공 및 입주 예정 |
| 출처 : 당사 제공 주) 상기 일정은 당사가 계획중인 일정으로 추후 예상치 못한 변수 발생시 변동 될 수 있습니다 |
| [스마트팩토리 관련 개요] |
| 구 분 | 내 용 | |||||||||
|---|---|---|---|---|---|---|---|---|---|---|
| 위치 | 안성시 원곡면 성은리 산22-2 | |||||||||
| 지역지구 | 계획관리지역 | |||||||||
| 면적 | 대지 | 9,900㎡ | ||||||||
| 연면적 | 15,000.78㎡ | |||||||||
| 지상 : 9,811.40㎡ / 지하 : 5,189.38㎡ | ||||||||||
| 건폐율/용적률 | 39.85% / 99.11% | |||||||||
| 규모 | 지상 3층 / 지하 1층 | |||||||||
| 스마트팩토리 설계도(안) |
|
|||||||||
| 출처 : 당사 제공 주) 상기 개요는 당사가 계획중인 일정으로 추후 건축사무소와의 설계 변경시 변동 될 수 있습니다 |
| [유형자산 양수내역] |
| 1. 자산구분 | 토지 | |
| - 자산명 | [토지] 경기도 안성시 원곡면 성은리 산22-2 (토지:9,900㎡) | |
| 2. 양수내역 | 양수금액(원) | 4,490,000,000 |
| 자산총액(원) | 11,537,316,507 | |
| 자산총액대비(%) | 38.92 | |
| 3. 양수목적 | 생산공장 및 물류센터 신축을 위한 부지 확보 | |
| 4. 양수영향 | 생산라인 구축 및 물류센터 통합으로 인한 수익성 개선 | |
| 5. 양수예정일자 | 계약체결일 | 2023.03.30 |
| 양수기준일 | 2023.06.29 | |
| 등기예정일 | 2023.06.29 | |
| 6. 거래상대방 | 회사명(성명) | 주식회사 서광인프라 |
| 자본금(원) | 100,000,000 | |
| 주요사업 | 통신ㆍ방송장비 및 부품 도매업 | |
| 본점소재지(주소) | 서울특별시 송파구 백제고분로 75, 311호 | |
| 회사와의 관계 | - | |
| 7. 거래대금지급 |
1) 지급형태 : 현금 2) 자금조달 : 내부보유자금 및 차입금 3) 지급 시기 및 조건 - 계약금 : 449,000,000원 (2023.03.30) - 중도금 : 1,000,000,000원 (2023.04.27) - 잔 금 : 3,041,000,000원 (2023.06.29) |
|
| 8. 외부평가에 관한 사항 | 외부평가 여부 | 예 |
| - 근거 및 사유 |
1) 근거 : 자본시장과 금융투자업에 관한 법률 제161조 제1항 제7호 및 동법 시행령 제171조 제2항 제5호에 의한 적정성 평가 2) 사유 : 회사가 양수하기로 의사결정한 자산양수가액의 적정성 여부를 판단하기 위한 참고자료 제공 |
|
| 외부평가기관의 명칭 | 리안회계법인 | |
| 외부평가 기간 | 2023.03.27 ~ 2023.03.30 | |
| 외부평가 의견 | 적정 | |
| 출처 : 전자공시시스템(dart.fss.or.kr) |
당사는 2023년 3월 30일 토지매수계약을 체결하며 계약금으로 약 4.5억원을, 2023년 4월 27일 1차 중도금으로 10억원을 IPO 공모자금을 사용하여 지급하였으며. 2023년 6월 29일 잔금 약 30억 및 등록비용 약 4억원 또한 IPO 공모자금을 사용하여 지급 할 예정입니다. 당사는 금번 일반공모 유상증자 공모자금 중 약 132억원을 사용하여 스마트팩토리 공사비로 사용할 예정입니다. 또한 당사는 자체자금 약 29억원을 사용하여 공장 기계설비 및 내부 인테리어 등에 필요한 자금을 충당 할 예정입니다. 당사는 건축사무소와 신축공장의 규모, 내부 기계설비 등에 대해 최종적으로 조율중에 있으며, 그 과정에서 최종 사용되는 비용의 규모가 일부 변동 될 수 있습니다.
또한 금번 주가하락으로 인한 일반공모 유상증자의 최종 공모자금 하락 및 일반공모 후 실권주 발생으로 인해 총 발행금액이 축소 될 경우 당사는 보유현금 및 금융기관 추가차입을 통해 스마트팩토리 신설 자금을 충당 할 계획입니다. 공시서류 제출 전일 기준 스마트팩토리 관련 비용 상세내역 및 금번 공모자금 사용 일정은 아래와 같습니다.
| [스마트팩토리 관련 비용 상세내역] |
| (단위: 백만원) |
| 구분 | 내용 | 금액 | 일정 | 자금출처 |
|---|---|---|---|---|
| 토지대금 | 계약금 | 449 | 2023년 04월 | IPO 공모자금 (지급완료) |
| 중도금 | 1,000 | 2023년 05월 | IPO 공모자금 (지급완료) |
|
| 잔금 | 3,041 | 2023년 06월 | IPO 공모자금 (지급예정) |
|
| 소계 | 4,490 | - | - | |
| 등록비용등 | 442 | 2023년 06월 | IPO 공모자금 (지급예정) |
|
| 합계 | 4,932 | - | - | |
| 설계비 | 토목설계 | 30 | 2023년 06월 ~ 2023년 7월 | 자체자금 (지급예정) |
| 건축설계 | 182 | 2023년 06월 ~ 2023년 09월 | IPO 공모자금 (지급예정) |
|
| 감리용역 | 182 | 2023년 10월 ~ 2024년 09월 | IPO 공모자금 (지급예정) |
|
| 합계 | 393 | - | - | |
| 건축비 | 공사비 | 13,193 | 2023년 10월 ~ 2024년 09월 | 금번 일반공모 공모자금 (지급예정) |
| 기계설비 | 공장 설비 | 639 | 2024년 08월 ~ 2024년 09월 | 자체자금 (지급예정) |
| 기타 | 랙설치 | 300 | 2024년 08월 ~ 2024년 09월 | 자체자금 (지급예정) |
| 전시인테리어 | 700 | 2024년 08월 ~ 2024년 09월 | 자체자금 (지급예정) |
|
| 취득비용 등 | 861 | 2024년 10월 | 자체자금 (지급예정) |
|
| 소계 | 1,861 | - | - | |
| 총계 | 21,018 | - | - | |
| 출처 : 당사 제공 주) 상기 비용은 당사가 계획중인 일정으로 추후 건축사무소와의 설계 변경시 변동 될 수 있습니다 |
| [스마트팩토리 관련 비용 산정근거] |
| (단위: 백만원) |
| 구분 | 항목 | 금 액 | 비율 | 비 고 | |
|---|---|---|---|---|---|
| 토지대 | 토지비 | 4,490 | 21.36% | 2,503/평 | |
| 취득제세금 | 251 | 1.20% | 토지비 * 5.6% | ||
| 인허가비용 | 150 | 0.71% | 50/평(대체산림자원조성비 포함) | ||
| 중개수수료 | 40 | 0.19% | 중개수수료 0.9% | ||
| 소 계 | 4,932 | 23.46% | - | ||
| 건축비 | 직접 공사비 | 12,914 | 도급가 | 연면적(평) | 평당 공사비 |
| 61.44% | 4,537.72 | 2,846 | |||
| 각종 인입비 | 150 | 0.71% | 연면적*평당 50 천원 | ||
| 공사 예비비 | 129 | 0.61% | 직접공사비*1% | ||
| 실시토목설계 | 30 | 0.14% | 1식 | ||
| 설계비 | 182 | 0.86% | 연면적*평당 40 천원 | ||
| 감리비 | 182 | 0.86% | 연면적*평당 40 천원 | ||
| 소 계 | 13,586 | 64.64% | 평당 건축비 | 2,994 | |
| 설비 | 기계장치 | 639 | 3.04% | 스마트공장 자동화 설비 컨베이어, 로봇구축비용 | |
| 랙설치비 | 300 | 1.43% | 1식 | ||
| 예비비 | 50 | 0.24% | 기타비용 | ||
| 소 계 | 989 | 4.71% | - | ||
| 기타 | 건축 취등록세 | 761 | 3.62% | 건축비 * 5.6% | |
| 인테리어,가구 | 700 | 3.33% | 전시시설 | ||
| 기타 | 50 | 0.24% | 등기수수료 등 | ||
| 소 계 | 1,511 | 7.19% | - | ||
| 지출총액 | 21,018 | 100.00% | 평당 지출금액 | 4,632 | |
| 출처 : 당사 제공 주) 상기 비용은 당사가 계획중인 일정으로 추후 건축사무소와의 설계 변경시 변동 될 수 있습니다. 주) 당사는 상기 건축 비 중 직접공사비, 각종 인입비, 공사 예비비를 포함한 약 132억원을 금번 일반공모 공모자금을 통해 조달할 예정입니다. |
| [일반공모 공모자금 사용스케줄] |
| (단위 : 백만원) |
| 사용시기 | 금액 | 비고 |
|---|---|---|
| 2023년 4분기 | 4,000 | 공장건물 건축 계약금 및 공사비 지급 |
| 2024년 1분기 | 3,064 | 공장 건물 공사비 |
| 2024년 2분기 | 3,064 | 공장 건물 공사비 |
| 2024년 3분기 | 3,064 | 공장 건물 공사비 |
| 합계 | 13,193 | - |
| 출처 : 당사 제공 주) 상기 공모자금 사용 스케줄은 당사가 계획중인 일정으로 추후 공사 진행상황에 따라 변동 될 수 있습니다 |
당사는 스마트팩토리 신설 완료 후 주요제품 직접생산 및 자체 물류창고 구비를 통해 비용을 절감 할 수 있을것으로 예상하고 있습니다. 당사는 스마트팩토리를 통해 유아용 롤매트 월 6,000EA(스마트팩토리 최대 CAPA 9,600EA의 62.50%수준) 생산 및 판매시 외주생산 대비 1년간 매출원가 548백만원, 판매비와관리비 1,080백만원, 총 1,628백만원의 비용을 절감할 수 있을 것으로 판단하고 있습니다. 이와 관련된 상세 내역은 아래와 같습니다.
| [스마트팩토리 신설로 인한 예상 절감비용 내역(연간 기준)] |
| (단위 : 백만원) |
| 항 목 | 연간 절감 비용 | 비 고 |
|---|---|---|
| 매출원가 | 548 | 유아용 롤매트 월 6,000EA 생산 기준 |
| 판매비와관리비 | 1,080 | |
| 합 계 | 1,628 | - |
| 출처 : | 당사 제시 |
| 주) | 상기 내역은 당사가 산출한 것으로 추후 변동될 수 있습니다 |
| [스마트팩토리 신설로 인한 예상 절감비용 내역(월기준)] |
| (단위: 백만원, %) |
| 구 분 | 외주 생산 시 | 스마트팩토리 생산 시 |
|---|---|---|
| 매출액 | 1,401 | 1,401 |
| 매출원가 | 642 | 596 |
| 원재료매입 | 382 | 382 |
| 외주가공비 | 218 | - |
| 제조경비 | 42 | 214(주4) |
| 매출원가율 | 45.80% | 42.54% |
| 구 분 | 외주 생산 시 | 스마트팩토리 생산 시 |
| 판매비와관리비(주5) |
707 | 617 |
| 급여 | 234 | 234 |
| 지급임차료 | 60 | 0 |
| 지급수수료 | 110 | 80 |
| 기타 | 303 | 303 |
| 출처 : | 당사 제시 |
| 주1) | 상기 사항은 롤매트 6,000EA 생산을 기준으로 산정하였습니다. |
| 주2) | 제조경비의 경우 공장 운영 인건비 및 소요비를 포함하였습니다. |
| 주3) | 상기 내역은 당사가 산출한 것으로 추후 변동될 수 있습니다. |
| 주4) | 기존 제조경비에 스마트팩토리 제품생산 제조경비 172백만원을 합산한 금액입니다. |
| 주5) | 롤매트 6,000EA생산에 따른 판매비와관리비 구분이 불가하여 월간 전체 판매비와관리비로 계산하였으며, 지급임차료와 3자물류비 등 감안하였습니다. |
| [스마트팩토리 경비 예상 세부내역(월기준)] |
| (단위 : 백만원) |
| 구분 | 세부항목 | 금액 | 비고 |
|---|---|---|---|
| 인건비 | 생산인력(00명)(주2) |
70 | 인당평균 임금 감안(주2) |
| 간접인력(0명)(주2) |
12 | 관리자 및 보조인력(주2) |
|
| 전력비 및 수도광열비 | 공장 전력비 등 예측 | 12 | - |
| 소모품비 | 공장 소모품 | 40 | 소모품 및 수선비 등 |
| 관리비 | 공장 운영비 | 21 | 복리후생비 및 사무실운영비 포함 |
| 감가상각비 | 공장부분건축물 및 기계설비 | 17 | - |
| 합 계 | 172 | - | |
| 출처 : | 당사 제시 |
| 주1) | 상기 내역은 당사가 산출한 것으로 추후 변동될 수 있습니다 |
| 주2) | 인당 평균임금 수준의 공개가 불가능하여 구체적인 생산인력규모는 비공개 하였습니다. |
당사가 기존 100% 외주 생산 방식을 이용하여 롤매트 월 6,000EA를 생산할 시, 월 기준 매출액은 1,401백만원, 매출원가는 642백만원, 매출원가율은 45.80% 수준입니다. 롤매트 생산에 따른 판매비와관리비 구분이 불가하여 월별 전체 판매비와관리비를 계산하였을 때 707백만원 수준으로 지출 될 것으로 예상됩니다.
반면, 당사가 스마트 팩토리를 통해 롤매트 월 6,000EA를 동일하게 생산할 시, 공장 가동으로 인한 제조경비(공장 운영 인건비 및 소요비)가 발생하는 것을 고려 하더라도 외주가공비의 절감효과가 더 클 것으로 예상되어 월 46백만원의 매출원가를 절감할 수 있다고 내부적으로 판단하고 있습니다. 연간으로 계산 하였을 시 스마트팩토리를 통한 롤매트 생산 시 약 5.5억원의 매출원가가 감소할 것으로 판단되며, 매출원가율의 경우 42.54% 수준으로 외주생산방식 대비 3.26%p 감소한 수치입니다.
또한, 판매비와관리비의 경우 월별 전체 금액으로 계산하였을 때 월 90백만원을 절감할 수 있다고 내부적으로 판단하고 있으며, 이는 창고비로 지출되던 지급임차료와 제3자물류비 등의 감소에 기인합니다. 마찬가지로 연간으로 계산 하였을 시 스마트팩토리를 통한 롤매트 생산 시 판매비와관리비는 약 11억원 절감 될 것으로 판단됩니다.
스마트팩토리 신설로 당사가 구비 예정인 설비내역은 아래와 같습니다.
| [스마트팩토리 구비 예정 설비내역] |
| (단위 : 백만원) |
| 시설명 | 수량 | 금액 | 비고 |
|---|---|---|---|
| 기계설비 | |||
| 롤커팅기 | 1 | 25 | 주문제작 생산설비 |
| 롤투입거치대 | 2 | 5 | 주문제작 생산설비 |
| 재단기 | 1 | 20 | 주문제작 생산설비 |
| 봉제로봇 | 4 | 260 | 주문제작 생산설비 |
| 미싱기 | 4 | 7 | - |
| 합봉미싱기 | 6 | 12 | - |
| 상하자동테핑기 | 2 | 20 | 주문제작 생산설비 |
| 적재로봇 | 3 | 100 | 주문제작 생산설비 |
| 컨베어 및 제어시스템 | 1 | 190 | 주문제작 집진설비 |
| 소 계 | 24 | 639 | - |
| 기타설비 | |||
| 렉설치 | 1식 | 300 | - |
| 소 계 | 1식 | 300 | - |
| 합 계 | - | 939 | - |
| 출처 : 당사 제공 주) 상기 구비시설 목록은 당사가 계획중인 것으로 추후 공장규모 및 내부구조 변경으로 인해 변동 될 수 있습니다 |
다만, 당사의 생산시설 확장 및 운영과정에 있어서 원재료 확보의 어려움, 제조장비 공급업체와의 문제, 장비 오작동 및 고장 등으로 인한 추가비용 지출의 위험성과 생산량 확대의 불확실성이 존재합니다. 생산량의 확대가 원활하게 이루어지지 못할 경우 고객의 수요에 대응하기 어려우며, 그 결과 시장 점유율이 하락할 위험이 있습니다.
또한 당사는 공시서류 제출 전일 기준 스마트팩토리 신설을 위한 토지매입 계약 체결완료 및 중도금 지급을 완료한 상태이고, 토목설계 및 건축설계 계약을 진행 중입니다. 따라서 건축설계 과정에서 당사의 예상과는 다르게 그 공장의 규모가 변동될 경우, 당사가 상기한 스마트팩토리 신설 관련 비용 및 추후 당사가 예상하고 있는 매출원가 및 판매비와관리비 절감효과 또한 변동 될 수 있습니다. 또한 당사는 금번 일반공모 공모자금 중 약 132억원을 사용하여 공장 건물 공사비로 사용 예정인 바, 추후 설계 변동으로 인해 추가비적인 비용이 발생 한 경우에는 당사의 자체자금 혹은 추가차입금으로 충당 할 예정이며, 설계 변동으로 인해 예상보다 적은 비용으로 공사비가 지출 될 경우 남은 금액분은 공장 내 기계설비 구비 등의 자금으로 사용 될 예정입니다.
당사는 상기와 같이 스마트팩토리 신설 설비 투자를 통해 매출 증대 및 수익성 개선을 기대하고 있습니다. 공장 증축 및 기계설비 투자의 경우 수익성 개선 기대감의 긍정적인 측면도 있지만, 당사의 신규투자가 반드시 성공을 보장하는 것은 아니며, 수익성 향상에 성공하지 못할 경우 투자 자금의 회수가 어려울 수 있으며, 공장증축을 위해 시공된 건물, 기계장비 등의 유형자산에 손상이 발생해 당사에 심각한 재무적 손실이 발생 할 수도 있습니다. 투자자께서는 이 점 유의하시기 바랍니다.
(2) 운영자금 - 원부자재구입비 및 외주가공비 등
당사의 원부자재 구입비 등, 인건비, 외주비 및 기타운전자금은 월평균(2022년 11월 ~ 2023년 4월 평균) 약 15억원이 소요되고 있습니다. 이 중 원부자재구입비는 당사의 주력상품인 유아매트 제품 제작에 필수적인 자금이며, 당사의 유아매트를 제외한 타 제품군의 생산을 의뢰하기 위해 발생하는 외주비 또한 당사의 운영자금에 큰 비중을 차지하고 있습니다. 당사는 2023년 1분기말 별도기준 33억원의 현금성 자산을 보유하고 있어 당사가 계획하고 있는 스마트팩토리 관련 투자, 차입금으로 부터 발생하는 이자비용 등을 고려하였을 때 원부자재 구입비 등의 운영자금 지출을 위한 유동성이 부족한 상황입니다.
이에 당사는 본 유상증자를 통해 조달한 자금 중 약 68억원을 운영자금으로 활용할 예정이며, 이 외의 목적으로 사용하지 않을 계획이나, 추후 우발채무 발생 등의 당사가 예상하지 못한 불가피한 사정으로 인하여 상기 기재된 자금사용 목적 외에 타용도로 사용시 매 분기별 정기보고서에 공모자금 실제 사용내역에 관하여 성실하게 공시할 예정입니다. 아래는 당사의 6개월간 평균 운전자금 현황 및 2023년 3~4분기 중 공모자금을 이용한 운영자금 사용계획 입니다. 당사의 운영자금 사용계획의 경우 과거 6개월간의 운영자금 사용내역을 기반으로 유추한 것으로, 당사가 예상하지 못한 대내외 변수로 인하여 운영자금 사용시기 및 금액은 소폭 변동 될 수 있습니다.
| [2022년 11월 ~ 2023년 4월 평균 운전자금 현황] |
| (단위: 백만원) |
| 구분 | 2022년 11월 | 2022년 12월 | 2023년 1월 | 2023년 2월 | 2023년 3월 | 2023년 4월 | 합계 | 평균 |
|---|---|---|---|---|---|---|---|---|
| 원부자재구입 | 280 | 224 | 227 | 190 | 246 | 255 | 1,423 | 237 |
| 신규제품 런칭 및 상품 구입대금 |
375 | 785 | 253 | 121 | 1,502 | 865 | 3,901 | 650 |
| 인건비 | 244 | 246 | 235 | 366 | 341 | 263 | 1,695 | 283 |
| 연구개발비 | 43 | 41 | 60 | 67 | 83 | 52 | 348 | 58 |
| 외주비 | 409 | 422 | 289 | 372 | 390 | 331 | 2,212 | 369 |
| 합계 | 1,350 | 1,718 | 1,065 | 1,116 | 2,562 | 1,767 | 9,579 | 1,597 |
| 출처: 당사 제공 |
| [운영자금 상세 사용계획] |
| (단위: 백만원) |
| 사업부 | 사용내역 | 사용시기 | 사용총액 | ||||
|---|---|---|---|---|---|---|---|
| 2023년 8월 | 2023년 9월 | 2023년 10월 | 2023년 11월 | 2023년 12월 | |||
| 국내사업부 | 원부자재구입 | 300 | 350 | 500 | 500 | 500 | 1,500 |
| 외주비 | 400 | 500 | 600 | 500 | 500 | 1,600 | |
| 연구개발비 | 60 | 60 | 60 | 60 | 60 | 180 | |
| 인건비 | 250 | 250 | 250 | 250 | 250 | 750 | |
| 신규제품 런칭 및 상품 구입대금 |
500 | 600 | 700 | 670 | 357 | 1,727 | |
| 소계 | 1,510 | 1,760 | 2,110 | 1,980 | 1,667 | 5,757 | |
| 해외 제품 외주비 | 200 | 200 | 200 | 200 | 200 | 1,000 | |
| 합계 | 1,710 | 1,960 | 2,310 | 2,180 | 1,867 | 6,757 | |
| 출처: 당사 제공 |
또한 상기 금액은 공모금액 및 실권규모에 따라 변경될 수 있으며, 상기 기재 금액은 청약 초과로 인하여 실권이 발생하지 않은 상황을 가정하여 산정되었습니다. 청약 결과 실권이 발생하여 공모자금 규모가 축소 될 경우 당사의 운영자금 규모는 축소 될 수 있습니다. 이 경우 당사는 자체 보유 현금 및 금융기관 차입을 통해 운영자금을 충당할 예정입니다.
3. 청약미달시 자금집행 우선순위, 미달자금 충원계획
당사는 금번 유상증자로 조달된 자금은 상기 우선순위에 따라 집행할 계획입니다. 다만, 당사의 경영실적이 저하되거나 주식시장이 급격하게 변동됨에 따라 확정발행가가 예정발행가를 크게 하회하거나, 청약률이 부진하여 최초 모집 예정금액 대비 낮은 금액을 조달할 수 있습니다. 이러한 경우, 부족한 자금은 당사의 자체자금 등을 통해 우선적으로 충당할 계획이며, 만약 당사의 자체 자금으로도 계획했던 공모금액에 미달한다면 시장상황에 따라 금융기관 등을 통해 자금을 추가 조달할 예정입니다.
4. 기존에 공모 및 사모를 통해 조달한 자금이 공시에 기재된 대로 사용되었는지의 여부
아래와 같이 당사의 공모 및 사모를 통해 조달한 자금 현황 및 사용내역을 참고하시기 바랍니다.
| (기준일 : | 공시서류 제출 전일 | ) | (단위 : 백만원) |
| 구 분 | 회차 | 납입일 | 증권신고서 등의 자금사용 계획 |
실제 자금사용 내역 |
차이발생 사유 등 | ||
|---|---|---|---|---|---|---|---|
| 사용용도 | 조달금액 | 내용 | 금액 | ||||
|
기업공개 (코스닥시장 상장) |
- | 2023.02.03 | 시설자금 | 9,050 |
시설자금, 상장제비용, |
5,250 | (주1) |
(주1) 당사는 2023.03.30일자 주요사항보고서(유형자산 양수결정)을 통해 생산공장 및 물류센터 신축을 위한 부지 확보를 위한 계약(양수금액: 약 45억원)을 체결하였으며, 공시서류 제출 전일 기준 계약금 및 중도금으로 약 14억원을 사용하였습니다. 또한, 당사는 상장 제비용, 차입금상환, 운영자금 등의 목적으로 약 38억원을 사용하였습니다.
당사는 금번 일반공모 유상증자에 앞서 2023년 2월 유상증자(IPO 일반공모) 90.5억원을 조달한 이력이 있습니다. 당사는 2023년 1월 제출한 증권신고서에 용인시 처인구 남사읍 북리 일대 부지를 자체자금 및 금융기관 차입금으로 매입 후 공모자금 중 약 85.2억원을 사용하여 공장 건물 건설 및 기계장치 설비를 구비할 것으로 계획하였습니다. 또한 공모자금의 실제 집행 시기까지의 보유기간에는 국내 제1금융권 등 안정성 높은 금융기관의 상품에 예치할 계획이며, 자금의 사용시기가 도래하여 단기간 내에 자금의 사용이 예상되는 경우에는 단기금융상품 계좌 등에 일시 예치하여 운용할 예정라고 기재한 바 있습니다.
하지만 당사가 미사용 자금에 대해 납입부터 금번 공시서류 제출일 현재까지 상기 기재한 것과 같이 적절하게 사내에 유보했는지를 살펴보면, 당사는 해당 공모 및 사모 자금 미사용 자금이 별도의 계좌에 구분되어 예치되지 않고 있기 때문에 각 조달 방법에 따른 자금들을 명확하게 구분하기 어려운것으로 파악되고 있습니다. 따라서 만기가 도래한 차입금의 상환, 원부재자 구입 및 외주비등과 같은 운영자금 지출 또한 IPO 일반공모 공모자금 납입금을 통해 지급이 된 것으로 파악되고 있으며, 2023년 1분기말 기준 공모자금 사용내역은 분기보고서에 기재하였습니다.
당사의 2023년 1월 IPO 공모 당시 증권신고서에 따르면 용인시 남사읍의 스마트팩토리 토지매입자금의 경우 자체자금 및 금융기관 차입금으로 매입할 예정이며, 공모자금 중 약 85.2억원을 사용하여 공장 건물 건설 및 기계장치 설비를 구비할 것으로 계획하였으나, 이후 추가적인 사업계획 수립 중 신설 예정인 스마트팩토리의 규모가 IPO 공모시점 보다 증가하였고, 기존 매입 예정이었던 용인시 남사읍 북리 토지의 가격이 최초 계획당시보다 크게 상승하여 최종적으로 경기도 안성시에 위치한 토지를 매입하여 스마트팩토리를 신설할 것으로 사업계획을 변경하였습니다. 또한, 최근 원자재 가격 상승으로 인한 건축비 상승 및 금리인상으로 인한 금융기관 자금차입 부담이 증가하며 당사는 기존 계획을 변경하여 IPO 공모자금 중 약 14.5억원을 사용하여 경기도 안성시에 위치한 토지의 계약금 및 중도금을 납입 하였으며, 2023년 6월 29일 잔금 약 30억원을 IPO 공모자금을 통해 충당할 예정입니다.
공시서류 제출일 현재 전체 스마트팩토리 관련 비용 중 지급완료된, 또는 추후에 추가적으로 IPO 공모자금으로 사용될 자금의 내역은 아래와 같습니다.
| [스마트팩토리 관련 비용 상세내역] |
| (단위: 백만원) |
| 구분 | 내용 | 금액 | 일정 | 자금출처 |
|---|---|---|---|---|
| 토지대금 | 계약금 | 449 | 2023년 04월 | IPO 공모자금 (지급완료) |
| 중도금 | 1,000 | 2023년 05월 | IPO 공모자금 (지급완료) |
|
| 잔금 | 3,041 | 2023년 06월 | IPO 공모자금 (지급예정) |
|
| 소계 | 4,490 | - | - | |
| 등록비용등 | 442 | 2023년 06월 | IPO 공모자금 (지급예정) |
|
| 합계 | 4,932 | - | - | |
| 설계비 | 토목설계 | 30 | 2023년 06월 ~ 2023년 7월 | 자체자금 (지급예정) |
| 건축설계 | 182 | 2023년 06월 ~ 2023년 09월 | IPO 공모자금 (지급예정) |
|
| 감리용역 | 182 | 2023년 10월 ~ 2024년 09월 | IPO 공모자금 (지급예정) |
|
| 합계 | 393 | - | - | |
| 건축비 | 공사비 | 13,193 | 2023년 10월 ~ 2024년 09월 | 금번 일반공모 공모자금 (지급예정) |
| 기계설비 | 공장 설비 | 639 | 2024년 08월 ~ 2024년 09월 | 자체자금 (지급예정) |
| 기타 | 랙설치 | 300 | 2024년 08월 ~ 2024년 09월 | 자체자금 (지급예정) |
| 전시인테리어 | 700 | 2024년 08월 ~ 2024년 09월 | 자체자금 (지급예정) |
|
| 취득비용 등 | 861 | 2024년 10월 | 자체자금 (지급예정) |
|
| 소계 | 1,861 | - | - | |
| 총계 | 21,018 | - | - | |
| 출처 : 당사 제공 주) 상기 비용은 당사가 계획중인 일정으로 추후 건축사무소와의 설계 변경시 변동 될 수 있습니다 |
이와 같이 당사가 미사용 자금에 대해 납입부터 금번 공시서류 제출일 현재까지 상기 기재한 것과 같이 적절하게 사내에 유보했는지 여부를 확인하기 위해서는 위 공모 및 사모 자금이 각각 별도의 계좌로 구분되어 관리가 되어야 합니다. 당사는 위 공모 및 사모 조달자금을 별도의 계좌에 각각 예치하지 않았기 때문에 각 자금 출처에 따른 유입 자금과 유출 자금의 구분이 명확하지 않습니다. 공시서류 제출일 현재 당사는 IPO 공모자금 약 85.2억원 중 약 14.5억원을 스마트팩토리 토지매입대금으로 사용하였으며, 약 8.3억원을 금융기관 차입금 상환, 약 29.7억원을 일시적인 유동성 부족으로 인해 원부자재 구매 및 외주비 등의 운영자금으로 사용하였습니다. 따라서 현재 정기예금 등의 공모자금 잔액은 38억원이 존재하는 것으로 파악되고 있으며, 해당자금은 추후 스마트팩토리 토지매입 잔금 및 공장 건축설계 자금 등의 시설자금으로 모두 사용 될 예정입니다. IPO 공모자금의 사용내역은 아래표와 같습니다.
| [IPO 일반공모 자금 사용내역] |
| (단위: 백만원) |
| 구 분 | 내 역 | 사용금액 |
|---|---|---|
| 토지대금 사용 | 스마트팩토리 토지구입 계약금 및 중도금 | 1,449 |
| 차입금 상환 | 농협은행 차입금 상환 | 834 |
| 운영자금 | 원부자재 및 외주비 등 운영자금 | 2,437 |
| 정기예금 등 잔액 | 공시서류 제출 전일 현재 잔액 (토지매입 잔금 및 건축설계비로 사용 예정) |
3,800 |
| 합 계 | 8,520 | |
| 출처 : 당사 제공 |
| [잔여 IPO 일반공모 자금 사용계획] |
| (단위: 백만원) |
| 구 분 | 상세현황 | 사용(예정)시기 | 금액 |
|---|---|---|---|
| 시설 자금 |
스마트팩토리 토지구입 잔금 | 2023년 6월 중 | 3,040 |
| 스마트팩토리 토지대금 등록비용 등 | 2023년 6월 중 | 442 | |
| 스마트팩토리 건축설계 비용 | 2023년 6월 ~ 2023년 9월 | 182 | |
| 스마트팩토리 건축 감리용역 비용 | 2023년 6월 ~ 2024년 9월 | 182 | |
| 합 계 | 3,846 | ||
| 출처 : | 당사 제공 |
| 주) | 상기 비용은 당사가 계획중인 일정으로 추후 건축사무소와의 설계 변경시 변동 될 수 있으며, 초과분이 발생할 경우 당사 자체자금으로 충당할 계획입니다. |
당사는 상기한 바와 같이 기존 IPO 일반공모 납입대금을 기존 증권신고서 상의 자금의 사용목적과는 상이하게 사용한 이력이 있습니다. 이는 당사가 신설 계획중인 스마트팩토리의 사업계획 변경 및 당사의 일시적인 유동성 악화에 대응하기 위해 사용되었습니다.
당사는 금번 일반공모 공모자금 중 약 132억원을 사용하여 공장 건물 공사비로 사용 예정이나, 현재 진행중이 공장 건물 토목설계 및 건축설계 과정 중 당사의 예상과는 다르게 공장의 규모가 변동 될 경우 당사가 계획한 자금의 사용목적과 다르게 운영자금 등의 목적으로 자금이 추가적으로 사용 될 수 있으며, 이와 같이 부득이한 사유로 인해 사용 목적과 다르게 사용되는 경우에는 자율공시를 통해 이를 주주 및 투자자에게 충분히 공시할 예정입니다.
당사는 공모 자금의 미사용 자금 운용과 관련하여, 관리 감독기관의 판단에 따라 미사용 자금 운용방법의 불명확성, 증권신고서 및 정기보고서(사업보고서, 반기 및 분기보고서) 허위기재 등 「자본시장과 금융투자업에 관한 법률」 제125조 제1항에 따른 신고 및 공시의무 위반으로 과징금, 임원의 해임, 일정기간 증권의 발행제한 등의 조치를 받을 수 있습니다. 또한 해당 위반이 확정될 경우 당사의 부정적 이미지 발생등으로 주가 하락은 물론, 금번 유상증자의 청약율 저하로 인해 공모자금 규모가 축소 될 경우 추가적인 차입발생으로 인해 재무안정성이 악화 될 수 있으니, 투자자께서는 이 점 유의하시기 바랍니다.
VI. 그 밖에 투자자보호를 위해 필요한 사항
당사는 공시서류 제출 전일 기준 해당사항이 없습니다.
제2부 발행인에 관한 사항
I. 회사의 개요
1. 회사의 개요
가. 연결대상 종속회사 개황
(1) 연결대상 종속회사 현황(요약)
| (단위 : 사) |
| 구분 | 연결대상회사수 | 주요 종속회사수 |
|||
|---|---|---|---|---|---|
| 기초 | 증가 | 감소 | 기말 | ||
| 상장 | - | - | - | - | - |
| 비상장 | 1 | - | - | 1 | - |
| 합계 | 1 | - | - | 1 | - |
(2) 연결대상회사의 변동내용
| 구 분 | 자회사 | 사 유 |
|---|---|---|
| 신규 연결 |
- | - |
| - | - | |
| 연결 제외 |
- | - |
| - | - |
나. 회사의 법적, 상업적 명칭
당사의 명칭은 주식회사 꿈비이며, 영문으로는 GGUMBI Inc. 입니다.
다. 설립일자
당사는 2014년 10월 27일에 유아용품 제조 및 도소매 등을 목적으로 설립되었으며, 2023년 2월 9일자로 코스닥시장에 상장되어 공개기업이 되었습니다. 당사는 별도의 존속기한을 정하고 있지 않습니다.
라. 본사의 주소, 전화번호, 홈페이지 주소
| 구분 | 내용 |
|---|---|
| 주소 | 경기도 수원시 영통구 법조로25 A동713호 |
| 전화번호 | 1644-8135 |
| 홈페이지 주소 | http://www.ggumbi-company.com |
마. 중소기업 등 해당 여부
당사는 「중소기업기본법」 제2조 및 동법 시행령 제3조에 따라 중소기업에 해당합니다. 또한 당사는 「벤처기업육성에관한특별조치법」제2조제1항의 규정에 의한 벤처기업에 해당합니다.
| 중소기업 해당 여부 | 해당 | |
| 벤처기업 해당 여부 | 해당 | |
| 중견기업 해당 여부 | 미해당 | |
바. 주요 사업의 내용 및 향후 추진하려는 신규사업
당사는 "일상의 감동, 육아를 함께하는 기업" 이라는 기업이념으로 놀이방 매트, 유아거실가구, 스킨케어 등 영유아를 위한 다양한 제품을 제공하고 있으며, 지속적인 R&D를 통해 다양한 신규제품을 런칭하고 있습니다. 국내 사업장으로는 경기도 수원시에 본사를 두고 있으며, 생산은 전문 생산업체를 통해 외주 생산하고 있습니다. 또한, 동지역에 스마트 물류센터를 구축하여 운영중에 있습니다. 당사의 매출의 대부분은 소비자와 직접적으로 판매하는 B to C 전자상거래로 영업활동 영위하고 있습니다. 국내 주요 온라인 판매몰에 입점하여 온라인 판매를 주력으로 하고 있으며, 자사몰을 통해서도 온라인 판매를 영위하고 있습니다. 당사는 향후에도 소비자 니즈에 맞는 지속적인 R&D를 통해 매출 증대 확대에 주력할 계획입니다. 당사의 품목별 주요제품 및 서비스 등의 현황은 아래의 표와 같습니다.
| (기준일:2023.03.31) | (단위:백만원,%) |
| 구 분 | 품목 | 주요제품 및 서비스 등 | 제10기 1분기 | |
|---|---|---|---|---|
| 매출액 | 비중 | |||
| 제품매출 | 유아가구 | 아기침대,베이비룸,매트 외 | 2,829 | 41% |
| 유아스킨케어 | 유아용 스킨케어, 세제 외 | 556 | 8% | |
| 기타 | 반려동물용품, 패브릭 제품 외 | 125 | 2% | |
| 상품매출 | 기타 | G7 커피, 반려동물 용품 외 | 3,047 | 44% |
| 용역매출 | 기타 | 배송비 외 | 305 | 4% |
| 합 계 | 6,862 | 100% | ||
(주1) 한국채택국제회계기준(K-IFRS)에 따라 작성된 연결기준이며, 상세내용은 동 공시서류의 'Ⅱ.사업의 내용'을 참조하시기 바랍니다.
사. 회사의 주권상장(또는 등록ㆍ지정)여부 및 특례상장에 관한 사항
| 주권상장 (또는 등록ㆍ지정)여부 |
주권상장 (또는 등록ㆍ지정)일자 |
특례상장 등 여부 |
특례상장 등 적용법규 |
|---|---|---|---|
| 코스닥시장 | 2023.02.09 | 해당사항 없음 | 해당사항 없음 |
2. 회사의 연혁
가. 회사의 본점소재지 및 그 변경
| 일자 | 내용 |
|---|---|
| 2014년 10월 27일 | 대전광역시 유성구 계룡로32번길26(구암동) |
| 2014년 12월 30일 | 대전광역시 유성구 계룡로32번길34, 1동104호(구암동) |
| 2016년 01월 28일 | 대전광역시 유성구 죽동로 81, 에이동(죽동) |
| 2019년 02월 01일 | 경기도 수원시 영통구 광교중앙로248번길7-1, 씨동 310호 |
| 2019년 12월 27일 | 경기도 수원시 영통구 법조로25 A동 713호 |
나. 경영진 및 감사의 중요한 변동
| 변동일자 | 주총종류 | 선임 | 임기만료 또는 해임 |
|
|---|---|---|---|---|
| 신규 | 재선임 | |||
| 2020.05.06 | - | - | - |
공동대표이사 최연서(주2) 공동대표이사 최진희(주2) |
| 2020.10.27 | 임시주총 | - |
대표이사 박영건 사내이사 최연서 사내이사 최진희 사내이사 이은석 |
- |
| 2021.10.01 | 임시주총 |
사내이사 박보선 사외이사 조원섭 감사 류재언 |
- |
사내이사 최연서(주3) 사내이사 최진희(주3) 사내이사 이은석(주3) |
| 2023.03.31 | 정기주총 | - | 대표이사 박영건 | - |
(주1) 변동일자에는 주주총회 개최일을 기재하였으며, 주주총회가 개최되지 않은 경영진의 변동의 경우에는 이사회 등 실제 변동이 발생한 일자를 기재하였습니다.
(주2) 공동대표이사 사임으로 인해 대표이사 박영건이 단독 대표이사로 변경되었습니다.
(주3) 사내이사 최연서, 사내이사 최진희, 사내이사 이은석은 일신상의 사유로 사임하였습니다.
다. 최대주주의 변동
당사는 2010년 08월 개인사업자(박영건, 최진희, 최연서)로 시작하여 2014년 박영건 대표이사 및 특수관계인 3인이 지분을 출자하여 설립(법인전환)되었습니다. 설립 이후 2회 최대주주 변경 내역이 존재하나 이는 실질적인 경영권 변동은 발생되지 않은 최대주주의 변경입니다. 현재 최대주주 박영건 대표이사는 2019년 유상증자 참여를 통해 최대주주가 되었고 현재까지 변동사항은 없습니다.
라. 상호의 변경
해당사항 없음
마. 회사가 화의, 회사정리절차 그 밖에 이에 준하는 절차를 밟은 적이 있거나 현재 진행중인 경우 그 내용과 결과
해당사항 없음
바. 회사가 합병 등을 한 경우 그 내용
해당사항 없음
사. 회사의 업종 또는 주된 사업의 변화
해당사항 없음
아. 그 밖의 경영활동과 관련된 중요한 사실의 발생내용
|
구 분 |
내 용 |
|---|---|
|
2014.10 |
㈜꿈비 설립(자본금 50백만원, 공동대표이사 박영건, 최연서, 최진희) 본점 소재지 : 대전광역시 유성구 계룡로32번길 26 (구암동) |
|
2014.12 |
변신범퍼침대 런칭 |
|
2014.12 |
본점 이전(대전광역시 유성구 계룡로32번길 34, 1동104호(구암동)) |
|
2015.04 |
벤처기업 인증(기술보증기금, 제201501029170호) |
|
2015.12 |
2015 우수디자인(GB)상품 선정(한국디자인진흥원장) |
|
2015.12 |
자본금 증자(유상증자, 증자후 자본금 300백만원) |
|
2016.01 |
자본금 증자(유상증자, 증자후 자본금 400백만원) |
|
2016.01 |
본점 이전(대전광역시 유성구 죽동로 81 에이동) |
|
2016.11 |
지점 설치(경기도 용인시 수지구 광교호수로378번길 4-33(상현동)) |
|
2016.12 |
기업부설연구소 설립(한국산업기술진흥협회 제2016115972호) |
|
2017.11 |
지점 이전(경기도 수원시 영통구 광교중앙로248번길 7-2 씨동311호(하동, 원희캐슬광교)) |
|
2018.03 |
여성기업 인증(대전. 충남 지방 중소벤처기업청, 제0115-2018-01961호) |
|
2018.04 |
글로벌강소기업 지정(중소벤처기업부, 제2018-110호) |
|
2018.08 |
수출유망중소기업 지정(중소벤처기업부, 제3029 대전충남-07호) |
|
2018.11 |
유망중소기업 인증(대전광역시, 제2018-2호) |
|
2018.12 |
가족친화인증(여성가족부, 제2018-0372호) |
|
2018.12 |
백만불 수출의탑 수상(한국무역협회) |
|
2019.02 |
본점 이전(경기도 수원시 영통구 광교중앙로248번길 7-2, 씨동 310호(하동, 원희캐슬광교)) |
|
2019.02 |
지점 폐쇄(경기도 용인시 수지구 광교호수로378번길 4-33(상현동)) |
|
2017.02 |
변신범퍼침대 럭키스타 'iF디자인 어워드' 수상 |
|
2017.07 |
변신범퍼침대 레전드-뉴문 'Red Dot 어워드' 수상 |
|
2018.07 |
변신범퍼침대 모닝스타 'Red Dot 어워드' 수상 |
|
2018.07 |
변신범퍼침대 월드스타 'Red Dot 어워드' 수상 |
|
2018.09 |
변신범퍼침대 모닝스타 'IDEA 디자인 어워드' 수상 |
|
2019.08 |
자본금 증자(유상증자, 증자후 자본금 415백만원) |
|
2019.09 |
이노비즈 인증(벤처기업부, 제190601-00810호) |
|
2019.12 |
본점 이전(경기도 수원시 영통구 법조로 25 7층 에이동 712호(하동, 광교에스케이뷰레이크)) |
|
2020.02 |
자본금 증자(유상증자, 증자후 자본금 449백만원) |
|
2020.05 |
대표이사 변경(공동 대표이사 박영건, 최진희, 최연서 → 단독 대표이사 박영건) |
|
2020.07 |
수출유망중소기업 지정(중소벤처기업부, 제2020 경기-47호) |
|
2020.08 |
지점 설치(경기도 용인시 수지구 광교호수로359번길 8, 지하1층(상현동) |
|
2020.08 |
액면분할 (10,000원→500원), 주식수 898,920주 |
|
2020.10 |
문화체육부장관 독서경영 우수직장 최우수상 수상 |
|
2020.12 |
삼백만불 수출의 탑 수상(한국무역협회), 산업통상자원부 장관 표창 |
|
2020.12 |
경기도 유망중소기업 지정(경기도, 제2020-083호) |
|
2021.03 |
지능정보 연구소 설립(한국산업기술진흥협회, 제2021112038호) |
|
2021.04 |
올스타 원목 아기침대 'iF 디자인 어워드' 수상 |
|
2021.09 |
올스타 원목 아기침대 'IDEA 디자인 어워드' Bronze 수상 |
|
2021.10 |
무상증자(증자 후 자본금 597백만원, 주식수 1,194,920주) |
|
2021.11 |
자본금 증자(우리사주 유상증자, 증자 후 자본금 612백만원) |
|
2021.12 |
가족친화기업 인증(여성가족부, 제2018-0372호) |
|
2021.12 |
대한상공회의소 일하기좋은중소기업 선정 |
|
2022.02 |
2022 한국소비자만족지수 유아용품(놀이방매트) 부문 1위 |
|
2022.03 |
지점이전(경기도 수원시 영통구 법조로 25, 14층 에이동 1415호, 광교에스케이뷰레이크) |
|
2022.05 |
액면분할 (500원→100원), 주식수 6,128,930주 |
|
2022.05 |
2022 글로벌 강소기업 선정(경기지방중소벤처기업청) |
|
2022.06 |
2022년 '브랜드 K'기업 선정(놀이방매트 클린롤매트, 중소기업벤처부) |
| 2023.02 |
한국거래소 코스닥시장 상장(일반공모, 증자 후 자본금 793백만원, 주식수 7,938,930주) |
3. 자본금 변동사항
가. 자본금 변동추이
| (단위 : 원, 주) |
| 종류 | 구분 |
10기 (2023년 현재) |
9기 (2022년말) |
8기 (2021년말) |
7기 (2020년말) |
6기 (2019년말) |
|---|---|---|---|---|---|---|
| 보통주 | 발행주식총수 | 7,971,546 | 6,128,930 | 1,225,786 | 898,920 | 41,500 |
| 액면금액 | 100 | 100 | 500 | 500 | 10,000 | |
| 자본금 | 797,154,600 | 612,893,000 | 612,893,000 | 449,460,000 | 415,000,000 | |
| 우선주 | 발행주식총수 | - | - | - | - | - |
| 액면금액 | - | - | - | - | - | |
| 자본금 | - | - | - | - | - | |
| 기타 | 발행주식총수 | - | - | - | - | - |
| 액면금액 | - | - | - | - | - | |
| 자본금 | - | - | - | - | - | |
| 합계 | 자본금 | 797,154,600 | 612,893,000 | 612,893,000 | 449,460,000 | 415,000,000 |
4. 주식의 총수 등
당사의 정관상 발행할 주식의 총수는 50,000,000주이며, 기준일 현재까지 발행한 주식의 총수는 보통주 7,971,546주 입니다. 보통주 이외 회사가 발행한 다른 종류의 주식은 없습니다.
가. 주식의 총수 현황
| (기준일 : | 증권신고서 제출전일 | ) | (단위 : 주) |
| 구 분 | 주식의 종류 | 비고 | |||
|---|---|---|---|---|---|
| 보통주 | 우선주 | 합계 | |||
| Ⅰ. 발행할 주식의 총수 | 50,000,000 | - | 50,000,000 | - | |
| Ⅱ. 현재까지 발행한 주식의 총수 | 7,971,546 | - | 7,971,546 | - | |
| Ⅲ. 현재까지 감소한 주식의 총수 | - | - | - | - | |
| 1. 감자 | - | - | - | - | |
| 2. 이익소각 | - | - | - | - | |
| 3. 상환주식의 상환 | - | - | - | - | |
| 4. 기타 | - | - | - | - | |
| Ⅳ. 발행주식의 총수 (Ⅱ-Ⅲ) | 7,971,546 | - | 7,971,546 | - | |
| Ⅴ. 자기주식수 | 458,060 | - | 458,060 | - | |
| Ⅵ. 유통주식수 (Ⅳ-Ⅴ) | 7,513,486 | - | 7,513,486 | - | |
나. 자기주식 취득 및 처분 현황
| (기준일 : | 증권신고서 제출전일 | ) | (단위 : 주) |
| 취득방법 | 주식의 종류 | 기초수량 | 변동 수량 | 기말수량 | 비고 | ||||
|---|---|---|---|---|---|---|---|---|---|
| 취득(+) | 처분(-) | 소각(-) | |||||||
| 배당 가능 이익 범위 이내 취득 |
직접 취득 |
장내 직접 취득 |
보통주 | - | - | - | - | - | - |
| 우선주 | - | - | - | - | - | - | |||
| 장외 직접 취득 |
보통주 | - | - | - | - | - | - | ||
| 우선주 | - | - | - | - | - | - | |||
| 공개매수 | 보통주 | - | - | - | - | - | - | ||
| 우선주 | - | - | - | - | - | - | |||
| 소계(a) | 보통주 | - | - | - | - | - | - | ||
| 우선주 | - | - | - | - | - | - | |||
| 신탁 계약에 의한 취득 |
수탁자 보유물량 | 보통주 | - | - | - | - | - | - | |
| 우선주 | - | - | - | - | - | - | |||
| 현물보유물량 | 보통주 | - | - | - | - | - | - | ||
| 우선주 | - | - | - | - | - | - | |||
| 소계(b) | 보통주 | - | - | - | - | - | - | ||
| 우선주 | - | - | - | - | - | - | |||
| 기타 취득(c) | 보통주 | 458,060 | - | - | - | 458,060 | - | ||
| 우선주 | - | - | - | - | - | - | |||
| 총 계(a+b+c) | 보통주 | 458,060 | - | - | - | 458,060 | - | ||
| 우선주 | - | - | - | - | - | - | |||
다. 다양한 종류의 주식
당사는 보고기간말 현재 보통주 이외에 발행한 다른 종류의 주식은 없습니다.
5. 정관에 관한 사항
가. 정관의 최근 개정일
당사의 최근 정관 개정일은 2023년 3월 31일이며, 정관 변경 이력은 다음과 같습니다.
나. 정관 변경 이력
| 정관변경일 | 해당주총명 | 주요변경사항 | 변경이유 |
|---|---|---|---|
| 2023년 03월 31일 | 제9기 정기주주총회 |
1. 사업목적 추가 2. 공고방법 3. 기준일 4. 주주명부 작성 및 비치 5. 이사의 직무 등 |
목적사업 추가 공고방법 정비 코스닥협회 표준정관 반영에 따른 조문정비 등 |
| 2022년 09월 08일 | 제9기 임시주주총회 | 1. 주식매수선택권 | 주식매수선택권 정비 |
| 2022년 08월 26일 | 제9기 임시주주총회 | 1. 공고방법 | 공고방법 정비 |
| 2022년 03월 30일 | 제9기 임시주주총회 |
1. 회사가 발행할 주식의 총수 2. 주식 및 주권의 종류 3. 신주의 동등배당 4. 주주의 주소 등의 신고 5. 사채발행에 관한 준용기준 6. 이사의 직무 7. 감사의 직무 등 |
상장 추진을 위한 표준정관 정비 액면분할, 전자증권제도 등 관련 조문 정비 |
| 2021년 11월 29일 | 제8기 임시주주총회 |
1. 상호(영문명) 변경 2. 사업목적의 추가 및 삭제 |
상호(영문명) 변경, 사업목적 추가 및 삭제 |
| 2020년 10월 06일 | 제7기 임시주주총회 | 1. 주식매수선택권 설정 | 주식매수선택권 설정 |
| 2020년 07월 29일 | 제7기 임시주주총회 | 1. 발행할 주식의 총수 변경 | 발행주식 총수 변경 |
| 2020년 06월 30일 | 제7기 임시주주총회 |
1. 공고방법 2. 1주의금액(액면분할) |
공고방법 및 1주의 금액 변경 |
II. 사업의 내용
1. 사업의 개요
당사는 "일상의 감동, 육아를 함께하는 기업" 이라는 기업이념으로 유아가구, 유아매트, 스킨케어 등 다양한 제품을 제공하는 유아용품 전문기업 입니다. 당사의 주요 브랜드는 꿈비, 리코코, 오가닉그라운드, 바바디토, 미미루, 파미야 등이 있으며 지속적인 R&D를 통해 신규 제품을 선보이고 있습니다. 당사 및 종속회사의 주요사업은 아래표와 같습니다.
| 회사명 | 품목 | 주요사업 | 비고 |
|---|---|---|---|
| ㈜꿈비 |
놀이방매트, 유아가구, 스킨케어, 패브릭, 반려동물용품 외 |
유아용품 전자상거래업 유아용 교재, 완구, 소품 제조 및 도소매 가구, 침구류 제조 및 도소매, 수입업 제품 디자인업 외 |
당사 (지배회사) |
|
㈜소브 |
유아매트 외 |
유아용품 제조 및 도소매업 가구, 침구류 제조 및 도소매업 통신판매업, 전자상거래업 |
종속회사 |
| (기준일:2023.03.31) | (단위 : 백만원) |
| 구 분 | 품목 | 주요제품 및 서비스 등 | 매출액 | 비중 |
|---|---|---|---|---|
| 제품매출 | 유아가구 | 아기침대,베이비룸,매트 외 | 2,829 | 41% |
| 유아스킨케어 | 유아용 스킨케어, 세제 외 | 556 | 8% | |
| 기타 | 반려동물용품, 패브릭 제품 외 | 125 | 2% | |
| 상품매출 | 기타 | G7 커피, 반려동물 용품 외 | 3,047 | 44% |
| 용역매출 | 기타 | 배송비 외 | 305 | 4% |
| 합 계 | 6,862 | 100% | ||
※ 한국채택국제회계기준(K-IFRS)에 따라 작성된 연결기준입니다.
당사의 유아가구 주요 제품인 놀이방 매트는 아이들의 안전을 위한 장치이자 층간 소음방지라는 두가지 큰 목적을 가지고 성장하고 있습니다. 당사의 제품은 안전, 층간소음을 문제를 해결함과 동시에 특허 받은 구조 디자인 설계로 다양한 소재와 사이즈의 제품을 출시하여 소비자의 니즈를 충족시키고 있습니다. 또한, 전 제품 99.9% 향균 제품으로 안심하고 사용할 수 있으며, 현재 셀프시공매트, 폴더매트, 퍼즐매트를 통해 놀이방 매트 시장을 선도하고 있습니다. 당사의 신생아 원목 침대는 소파, 책상, 베이비룸 등 7가지 제품으로 변신하여 사용할 수 있도록 구조 디자인되어, 유아의 사용시기에 따라 10년을 두고 오래 사용할 수 있도록 구조 디자인된 제품으로, 독보적인 기술 경쟁력을 보유하고 있습니다.
당사의 유아스킨케어 제품은 유아 스킨케어 최초로 글로벌 6대 안심인증을 모두 획득하여 소비자의 신뢰를 확보하는 브랜드로 자리매김 하고 있습니다. 주요 제품 구성으로 워시, 로션, 오일, 수딩크림, 고보습크림 등의 라인업을 갖추고 있습니다.
당사의 기타 제품매출으로는 패브릭 용품, 반려동물용품 등이 있으며, 기타 상품매출 부문은 G7커피, 반려동물용품 등이 있습니다.
당사는 향후에도 소비자 니즈에 맞는 지속적인 R&D를 통해 다양한 신제품을 지속적으로 출시하여, 매출 증대 확대에 주력할 계획입니다.
보다 자세한 내용은 "Ⅱ.사업의 내용" 의 "2. 주요 제품 및 서비스" 부터 "7. 기타 참고사항" 항목에 상세히 기재되어 있으니 이를 참고하여 주시기 바랍니다.
2. 주요 제품 및 서비스
가. 주요 제품 등 의 현황
당사는 꿈비(GGUMBI), 리코코(LICOCO), 오가닉그라운드(Organic ground), 미미루(MIMIRU), 파미야(FAMIYA) 등의 브랜드를 런칭하여 놀이방 매트 뿐만 아니라 유아용 침구류 및 가구, 스킨케어, 세제, 반려동물용품 등을 개발 및 판매하고 있습니다. 당사가 운영 중인 주요 브랜드 현황은 다음과 같습니다.
|
브랜드 |
특 징 |
|---|---|
|
꿈비 |
- '꿈꾸는 베이비'의 줄임말로 2015년 01월 런칭 - 범퍼침대, 베이비룸, 원목거실 가구 등 유아 거실 가구를 주력 제품으로 판매 |
|
미미루 |
- 북유럽 신화에 기록된 지혜의 샘 수호신인 거인 '미미르'의 이름을 따온 브랜드로 2015년 06월 런칭 - 알러지케어 기능성 아기 침구, 베개, 낮잠이불 아기 침구를 판매 |
|
리코코 |
- 독일어로 '사랑'을 뜻하는 'Liebe'와 아이가 다쳤을 때 아프지 말라고 입으로 호호 불어주는 소리를 뜻하는 순우리말 '코코'를 결합하여 탄생한 프리미엄 놀이방매트 브랜드 |
|
파미야 |
- '가족'이란 뜻의 FAMILY에서 따온 이름으로 내 가족인 반려동물과 안전한 생활을 할 수 있도록 돕는 브랜드로 2019년 07월 런칭 - 반려동물과 교감을 더 많이 하고 반려동물의 권리를 보호할 수 있는 제품으로, 강아지계단, 강아지매트 등을 판매 |
|
오가닉그라운드 (Organic ground) |
- 자연 성분과 유기농 인증 성분을 담은 유아 화장품 브랜드 - 2019년 5월 런칭, 글로벌 6대 안심인증 획득 |
|
소브 |
- 아이를 사랑하는 엄마아빠의 부드러운 마음을 담아 지은 SOFT LOVE의 줄임말로 2021년 08월 런칭 - 중저가의 폴더매트, 셀프시공 롤매트, 퍼즐매트 등 판매 |
|
바바디토 |
- 아이를 뜻하는 BABA와 ~과같다를 뜻하는 DITTO의 합성어 - 아이와 같은 순순함을 담은 프리미엄 감성 세제 브랜드 - 2021년 10월 런칭한 세탁세제, 주방세제 등을 판매 |
(가) 유아매트
유아매트는 아이들의 안전을 위한 장치이자 층간 소음방지라는 두 가지 큰 목적을 지닙니다. 당사는 안전과 층간소음을 해결함과 동시에 특허 받은 당사만의 구조로 다양한 소재와 사이즈의 제품을 출시하며 소비자의 선택의 폭을 넓혀 주었고 전 제품 99.9% 항균 제품으로 안심하고 사용할 수 있도록 출시하였습니다.
| [유아매트 제품 라인업] |
| 품목 |
내 용 |
|---|---|
|
폴더매트 |
- 특허청에 디자인 등록된 클린 롤구조와 국가 공인인증기관으로부터 층간소음 저감효과 검증받은 제품으로 유아매트 부문 소비자만족지수 8년 연속 1위 - 독자적인 양면이중 프리미엄 코팅원단 사용으로 내구성이 뛰어나고 먼지, 곰팡이 세균 걱정없이 사용가능 - 유해물질로부터 안전하며 FiTi 곰팡이 저항성 실험을 통한 곰팡이 항균력 강화 효과 입증 및 아이를 위협하는 6대세균 항균 검증 완료 (포도상구균, 대장균, 살모넬라균, 폐렴구균, 녹농균, 황색포도상구균) - 열 압축방식의 고밀도 10중 무가교 PE폼을 내장재로 사용하여 우수한 복원력과 충격 흡수에 탁월함 - 먼지걱정 없이 사용가능한 롤구조는 한방향으로 접을 수 있어 이동 및 보관, 청소가 용이하며 위생적인 사용을 위한 PU코팅 생활방수 제품 |
|
퍼즐매트 |
- 십자 클립형 내부결합 구조는 층간소음 저감효과는 물론 이물 받이 강화로 이물질 침투를 강력하게 차단하여 거주공간 바닥면 보호 효과가 탁월함 - 바닥면 매트와 매트 사이를 연결하는 십자 클립 형태의 커넥터는 매트의 틈새가 생기지 않도록 잡아주어 틈새로 이물질이 끼지 않고 매트가 밀리지 않도록 잡아주어 더욱 안전하게 사용가능 - 아기용품, 의료용품, 주방용품 등 생활에서 다양하게 사용되는 TPU필름 코팅 제품으로 프리미엄 디자인 필름을 화학 접착제가 아닌 열 가공방식의 인체 무해한 안심 공법 사용하여 안전성 확보 - TPU필름의 탁월한 내구성 및 생활방수 기능으로 청결하게 사용 가능 - 탄성력이 높은 고밀도 폴리우레탄폼 사용으로 충격 분산 및 흡수 효과가 뛰어나며 미끄러움을 최소화한 논슬립 기능으로 안전사고 방지 - 단열기능이 높은 폴리우레탄 소재는 외부 및 바닥 면에서 올라오는 냉기 차단하는 뛰어난 단열 성능으로 에너지 효율 개선에 기여 - 별도의 시공비용이 들지 않아 경제적이며 특히, 고객이 이사 등으로 매트 이동해야 할 경우 고객이 직접 조립시공 가능 - 사용하지 않을 때는 분리해서 수납할 수 있어 공간을 많이 차지하지 않고 보관과 이동이 용이 - 시공을 원하는 공간의 바닥 면 사이즈를 측정 후 매트 필요 수량을 파악하여 고객이 자유롭게 설치할 수 있는 셀프시공 매트로 시공을 원하는 공간의 사이즈로 고객이 셀프 재단하여 맞춤시공 가능 |
|
셀프시공 |
- 마루, 타일 등 기존 바닥재 위에 소비자가 원하는 공간에 원하는 사이즈로 DIY 셀프시공이 가능한 합리적인 가격대의 바닥매트 제품 - 아이들이 있는 가정에서는 아이의 활동 반경의 제한을 둘 수 없는 상황에서 바닥매트로 실내 바닥 전체 공간을 안전하게 채워 줌으로써 안전한 놀이 공간 확보 가능하며 메인 사용자인 영, 유아 및 어린이들이 안전하게 층간소음 걱정 없이 마음대로 뛰어 놀 수 있는 공간 제공이 가능해짐 - 또한, 오래된 아파트 거실 등 기존 바닥재 위에 설치가 가능하여 인테리어 공사 없이 인테리어 한 것과 같은 효과를 얻을 수 있고 가정에서 일어나는 생활 오염 및 스크래치 방지하여 바닥재를 효과적으로 보호할 수 있음 - 복원력이 뛰어난 PVC와 충격완화 효과가 뛰어난 PE폼을 합지한 제품으로 층간소음 저감효과 및 단열 효과가 뛰어나며 안티 스크래치 강화 필름 코팅으로 긁힘 및 뜯김 최소화 하였음 - 생활방수 처리로 위생적 사용 가능하며 픽스 테이프 사용으로 들뜸 현상 및 밀림 현상 방지할 수 있음 |
(나) 유아거실가구
원목 유아거실가구 시장은 신생아 침대를 중심으로 형성되어 왔으며, 신생아 침대는 사용기간이 짧아 구매하기 보다는 렌탈로 이용하는 경우가 많았습니다. 당사는 신생아 원목 침대를 소파, 책상, 베이비룸 등 7가지 제품으로 변신하여 사용할 수 있도록 하여 한번 쓰고 버리는 제품이 아닌, 10년을 두고 오래 사용할 수 있는 제품 컨셉으로 접근하였습니다.
| [유아거실가구 제품 라인업] |
|
제품명 |
사용시기 |
특징 |
|---|---|---|
|
원목 아기침대 |
출생 직후 |
- 성장 시기별 4단계 높낮이 조절 - 바퀴부착으로 이동 가능 - 측면 높낮이 조절 시 사이드 침대로 활용 - 기저귀 교환대 호환 사용 - 범퍼침대 및 베이비룸으로 변신 가능 |
|
원목 범퍼침대 |
출생 직후 |
- 저상 범퍼침대로 사용 - 고정밴드 구조로 밀리지 않음 |
|
원목 베이비룸 |
출생 직후 |
- 자사 폴더매트와 100% 호환 - 고정밴드 구조로 밀리지 않음 |
|
원목 |
5개월 |
- 공간 분리에 사용(부엌, 현관 등) - 원목 범퍼침대, 원목 베이비룸에서 확장 사용 가능 |
|
원목 |
약 12개월 ~7세 |
- 원목 범퍼침대, 베이비룸에서 확장 사용 가능 - 프레임이 얇아 공간 차지를 덜 함 - 오픈형, 도어형 선택 |
|
원목 주니어 |
약 12개월~7세 |
- 원목 아기침대에서 확장 사용 가능 |
(다) 유아용 스킨케어
당사의 오가닉 그라운드는 출생 후 급격한 외부 온도 변화와 자극으로부터 손상되기 쉬운 아기 피부를 보호하고, 국내외에서 지속적으로 성장하고 있는 프리미엄 유아 시장을 타겟으로 신생아부터 안심하고 사용할 수 있는 스킨케어 브랜드입니다. 특히 국내 유아 스킨케어 최초로 글로벌 6대 안심인증을 모두 획득 한 것은 물론, 2019년 개정된 식약처 기준, 유기농 화장품 인증을 획득한 유기농 화장품으로 일반적인 영유아 스킨케어 제품에서 보기힘든 글로벌 안심인증 획득을 통하여서 소비자 신뢰를 확보하는 브랜드로 자리매김 하고 있습니다.
| [유아 스킨케어 제품 라인업] |
|
제품명 |
용도 |
|---|---|
|
탑투토워시 |
신생아부터 사용 가능한 유기농 샴푸&바디워시 |
|
스쿠스쿠 로션 |
신생아부터 사용 가능한 피부 보습을 위한 페이스&바디 겸용 유기농 로션 |
|
스쿠스쿠 오일 |
신생아부터 사용 가능한 유기농 보습 오일 |
|
캐터스 수딩 크림 |
신생아부터 사용 가능한 피부 진정, 보습용 유기농 수딩 크림 |
|
스쿠스쿠 고보습 크림 |
신생아부터 사용 가능한 고농축 보습성분의 유기농 보습 크림 |
|
논나노 미네랄 선크림 |
생후 6개월 이후부터 사용 가능한 크림타입의 유기농 자외선 차단제 |
|
논나노 미네랄 선쿠션 |
생후 6개월 이후부터 사용 가능한 쿠션 퍼프 타입의 유기농 자외선 차단제 |
|
천연 곤약 스펀지 |
제주산 곤약으로 만들어진 목욕 및 세안용 곤약 스펀지 |
나. 주요제품의 매출액
| (기준일 : 2023.03.31) | (단위 : 백만원) |
| 구 분 | 품목 | 주요제품 및 서비스 등 | 제10기 1분기 | |
|---|---|---|---|---|
| 매출액 | 비중 | |||
| 제품매출 | 유아가구 | 아기침대, 베이비룸, 매트 외 | 2,829 | 41% |
| 유아스킨케어 | 유아용 스킨케어, 세제 외 | 556 | 8% | |
| 기타 | 반려동물용품, 패브릭 외 | 125 | 2% | |
| 상품매출 | 기타 | G7 커피, 반려동물 용품 외 | 3,047 | 44% |
| 용역매출 | 기타 | 배송비 외 | 305 | 4% |
| 합 계 | 6,862 | 100% | ||
※ 한국채택국제회계기준(K-IFRS)에 따라 작성된 연결기준입니다.
다. 주요 제품 등의 가격변동 추이
당사가 제공하는 제품은 주요 판매처별 가격 정책(제품 구성, 할인, 프로모션 등)이 상이하여 일괄적인 가격 산출 및 가격 변동에 대한 추이 산출이 어려우며, 주요 제품 등과 관련하여 회사의 재무상태 및 경영성과에 중요한 영향을 미칠 수 있는 가격변동이 없었습니다.
3. 원재료 및 생산설비
가. 주요 원재료에 관한 사항
(1) 주요 원재료 매입 현황
| (단위 : 백만원) |
| 매입 유형 |
품목 | 구입처 | 2023년 (제10기 1분기) |
2022년 (제9기) |
2021년 (제8기) |
|---|---|---|---|---|---|
| 원재료 | PU 원단류 | S사 외 | 302 | 2,471 | 2,471 |
| PE 폼류 | H사 외 | 226 | 1,810 | 1,810 | |
| 기타 | C사 외 | 12 | 97 | 97 | |
| 합 계 | 540 | 4,378 | 4,378 | ||
(2) 원재료 등의 조달(공급) 안정성
당사는 주요 제품 중 유아매트를 제외하고 모두 외주가공업체에서 원재료까지 조달하여 생산된 제품을 제공하고 있습니다. 당사 제품의 대부분의 원재료는 희소성이 크지 않은 재료들로 구성되어 있습니다. 주요 원재료의 경우 PE폼, PU원단 등 보편적으로 유통되는 제품으로 기술력이 요하는 제품이 아니기에 수급에 어려움은 없으며, 단가 또한 최근 3개년 원재료 가격은 큰 변동성이 없는 형태로 안정적인 모습을 보이고 있습니다. 다만, 유아 제품 특성상 유해 물질이 검출되지 않거나 기준치 이하인 원재료를 사용해야 한다는 원칙이 있어 당사는 국내에 직접 제조 공장을 확보한 복수의 거래처와 거래를 하고 있으며, 정기적으로 유해 물질 함유에 대해 공인기관의 성적서를 제출받고 있습니다. 또한 원재료는 생산 기간을(원재료 조달 기간 약 3주) 고려하여 당사의 생산 계획에 따라 당월에 사용할 원재료 발주를 전월에 진행하여 원활한 생산이 이루어져 적기에 완제품화 할 수 있도록 수행하고 있습니다.
(3) 주요 원재료 가격(매입단가) 변동추이
| 품목 | 2023년 (제10기 1분기) |
2022년 (제9기) |
2021년 (제8기) |
||
|---|---|---|---|---|---|
| PU 원단 | 단면 | 원/yd | 4,130 | 4,130 | 3,900 |
| 양면 | 원/yd | 6,035 | 6,035 | 5,578 | |
| PE 폼 | 천원/Ton | 2,107 | 2,107 | 1,943 | |
나. 생산 및 생산설비에 관한 사항
(1) 생산능력 및 생산실적
당사는 전량 외주생산을 진행하고 있어 생산능력은 해당사항이 없습니다. 이에 따라 당사 주요품목을 기준으로 주요 외주생산처의 생산능력은 기재하였습니다.
| (단위 : EA) |
| 품목 | 구 분 |
2023년 (제10기 1분기) |
2022년 (제9기) |
2021년 (제8기) |
|---|---|---|---|---|
| 롤매트류 | 생산능력 | 25,000 | 100,000 | 100,000 |
| 생산실적 | 1,547 | 38,868 | 70,640 | |
| 가동율 | 6.19% | 38.87% | 70.64% | |
| 셀공매트 | 생산능력 | 13,500 | 54,000 | 54,000 |
| 생산실적 | 1,995 | 14,393 | 29,058 | |
| 가동율 | 14.78% | 26.65% | 53.81% | |
| 사출 베이비룸 |
생산능력 | 37,500 | 150,000 | 150,000 |
| 생산실적 | 36,099 | 167,397 | 138,012 | |
| 가동율 | 96.26% | 111.60% | 92.01% | |
| TPU 매트 | 생산능력 | 215,000 | 860,000 | 860,000 |
| 생산실적 | 18,443 | 103,744 | 72,530 | |
| 가동율 | 8.58% | 12.06% | 8.43% |
(주1) 생산능력은 외주가공 협력사 설비에 따른 Capa 및 관련 설비 기준으로 산출되었으며, 근무시간은 1일 8시간, 작업일수는 20일을 기준으로 하였습니다.
(주2) 상기 제10기 1분기의 '생산능력' 및 '가동율'은 1분기까지의 생산능력을 근거로 작성하였습니다.
(2) 생산설비에 관한 사항
당사는 전량 외주생산을 통해 제품을 생산하고 있어 당사가 보유한 생산설비는 해당사항 없습니다. 다만, 제품 제작을 위한 금형은 당사가 직접 개발 요청하여 당사 소유 자산으로 계상하고 있습니다.
| (단위 : 천원) |
| 구 분 | 기 초 | 취 득 | 처 분 | 감가상각 | 대 체 | 국고보조 | 기 말 |
|---|---|---|---|---|---|---|---|
| 금형 | 289,111 | 72,250 | - | (27,525) | 59,250 | - | 393,086 |
(3) 생산설비의 투자계획
당사는 설립시부터 생산 효율화를 위해 외주생산을 기반으로 사업을 영위해왔습니다. 다만, 주력 품목들의 매출 규모가 성장하면서 자체 생산 라인 구축을 통한 원가절감과 품질 경쟁력 확보, 물류센터 통합으로 인한 물류비용 절감을 위하여 생산공장 신설 및 물류센터 신축을 위한 부지 확보를 진행중에 있습니다.
| (단위 : 원) |
| 구분 | 목적 | 내용 | 기간 | 계약금액 |
|---|---|---|---|---|
| 토지 |
생산공장 및 물류센터 신축을 위한 부지 확보 |
경기도 안성시 원곡면 성은리 산22-2 (토지:9,900㎡) |
계약체결일:2023.03.30 양수기준일:2023.06.29 등기예정일:2023.06.29 |
4,490,000,000 |
(주1) 상기 사항은 2023.03.30일자 기공시된 "주요사항보고서(유형자산양수결정)"을 참고하여 주시기 바랍니다.
4. 매출 및 수주상황
가. 매출실적
| (단위 : 백만원) |
| 매출유형 | 품 목 | 제10기 1분기 | 제9기 | 제8기 | ||||
|---|---|---|---|---|---|---|---|---|
| 금액 | 비율 | 금액 | 비율 | 금액 | 비율 | |||
| 제품 |
유아가구 (가구,매트,베이비룸 외) |
내 수 | 2,597 | 37.84% | 12,748 | 46.90% | 14,116 | 67.55% |
| 수 출 | 232 | 3.39% | 4,415 | 16.24% | 3,150 | 15.07% | ||
| 소 계 | 2,829 | 41.23% | 17,163 | 63.14% | 17,266 | 82.63% | ||
|
유아용 스킨케어 세제 외 |
내 수 | 556 | 8.10% | 1,730 | 6.36% | 915 | 4.38% | |
| 수 출 | - | - | 10 | 0.04% | 9 | 0.04% | ||
| 소 계 | 556 | 8.10% | 1,740 | 6.40% | 924 | 4.42% | ||
| 반려동물용품, 패브릭 외 | 내 수 | 114 | 1.66% | 1,225 | 4.51% | 1,020 | 4.88% | |
| 수 출 | 11 | 0.16% | 126 | 0.46% | 100 | 0.48% | ||
| 소 계 | 125 | 1.82% | 1,351 | 4.97% | 1,120 | 5.36% | ||
| 상품 | G7 커피, 반려동물용품 외 | 내 수 | 3,044 | 44.37% | 5,712 | 21.01% | 86 | 0.41% |
| 수 출 | 2 | 0.03% | - | - | - | - | ||
| 소 계 | 3,047 | 44.40% | 5,712 | 21.01% | 86 | 0.41% | ||
| 용역 | 배송 외 | 내 수 | 305 | 4.45% | 1,216 | 4.47% | 1500 | 7.18% |
| 수 출 | - | - | - | - | - | - | ||
| 소 계 | 305 | 4.45% | 1,216 | 4.47% | 1500 | 7.18% | ||
| 합 계 | 내 수 | 6,616 | 96.42% | 22,631 | 83.26% | 17,637 | 84.40% | |
| 수 출 | 246 | 3.58% | 4,551 | 16.74% | 3,259 | 15.60% | ||
| 합 계 | 6,862 | 100.00% | 27,182 | 100.00% | 20,896 | 100.00% | ||
※ 한국채택국제회계기준(K-IFRS)에 따라 작성된 연결기준입니다.
나. 판매경로
(1) 판매조직
당사는 자체적인 영업/판매조직을 갖추고 있으며, 국내사업팀와과 해외사업팀 및 스킨케어 사업팀으로 구분되어 있습니다. 당사의 영업/판매조직은 국내외 영업과 해외영업을 전담하는 부서로서 영업뿐만 아니라 경쟁력있는 제품 생산을 위해 시장조사와 고객의 니즈를 반영하여 고객이 참여하는 제품을 만들어 판매 등의 시너지를 창출하고 있습니다.
|
구분 |
주요 업무 |
|
|---|---|---|
|
영업 |
국내 |
국내 영업 (B2B, B2C) |
|
해외 |
해외업체 발굴 및 기존 총판업체 영업 |
|
|
스킨케어 |
국내외 스킨케어 영업 (B2B, B2C) |
|
(2) 판매경로
당사는 국내의 경우 기본적으로 온라인을 통한 D2C(Direct to Consumer) 판매를 기본 정책으로 하고 있습니다. 따라서 자사몰을 비롯하여 네이버 스마트스토어를 통해 불필요한 유통단계를 제거하고 소비자에게 직접 판매할 수 있는 판매구조를 확립하였으며, 더불어 오픈 마켓 및 다양한 채널몰(SSG, 롯데, G마켓 등)에도 입점하여 소비자 접점을 넓히고 판매를 확대하고 있습니다. 이러한 판매 구조 이외에 쿠팡을 통한 판매의 경우 B2B 판매를 같이 진행하고 있습니다. 수출의 경우는 B2B 판매 구조로 각 국가별 계약을 체결한 총판에게 당사의 제품을 공급하면 총판이 유통채널을 통해 최종 고객에게 판매되는 구조입니다.
(3) 판매전략
당사는 온라인 판매를 기반으로 사업을 영위하고 있습니다. 온라인 판매 특성상 평판관리 및 A/S에 대한 빠른 대처를 기반으로 당사의 제품은 믿고 쓸 수 있다는 인식을 가지도록 하였으며, 사용자가 제품 개발 등에 참여할 수 있게 하는 등 고객 충성도를 강화하여 재구매율을 높이고 있습니다. 이외에도 당사는 해외시장을 적극 공략하고 있으며 해외 박람회 및 컨퍼런스 참여 등을 통해 대형 제조사 및 각 국가별 주요 대리점을 발굴하고 추가 교육 등의 협력을 통해 시장 확대를 진행하고 있습니다.
| [당사 주요 영업전략] |
|
구분 |
주요 업무 |
|---|---|
|
유아용품 및 스킨케어 |
- 프리미엄 제품 포지셔닝 및 브랜드 랭킹 상위 유지, 네이버 실시간 상위 랭킹으로 매출 활성화 - 지속적인 신제품 출시로 카테고리 확대 - 입점몰 프로모션을 정기화 하여 기획전 활용 - 쇼핑라이브를 통한 광고와 매출의 증가 - 해외시장 확대 |
다. 수주 상황
당사는 온라인 판매를 통해 고객에게 직접 판매하는 구조로 판매를 진행하고 있어 수주현황은 해당사항 없습니다.
5. 위험관리 및 파생거래
가. 시장위험과 위험관리
당사는 보고서 제출일 현재 최근 사업년도 말 자산총액이 1천억원 미만인 소규모 기업에 해당하므로 기재를 생략합니다.
나. 파생상품 및 풋백옵션 등 거래 현황
해당사항 없음
6. 주요계약 및 연구개발활동
가. 경영상의 주요계약 등
당사는 회사의 일상적인 영업활동 이외에 회사의 재무상태에 영향을 미치는 비경상적인 중요계약은 존재하지 않습니다.
나. 연구개발활동
(1) 연구개발 담당조직
| 연구소명 | (주)꿈비 가치 디자인 연구소 기업부설연구소 |
|---|---|
| 소 재 지 | 경기도 수원시 영통구 법조로 25 A동 707~708호 |
| 설 립 일 | 2016년 12월 20일 |
| 인정번호 | 제2016115972호 |
| 연구분야 | 유아용품 디자인 |
| 연구인력 현황 |
연구소장(1명), 전담요원(10명), 보조원(2명), 관리직(2명) |
(2) 연구개발 비용
| (기준일 : 2023.03.31) | (단위: 백만원, %) |
| 구 분 |
제10기 1분기 |
제9기 |
제8기 |
|---|---|---|---|
| 연구개발비용 계(*) | 211 | 559 | 352 |
| (정부보조금) | - | - | - |
|
연구개발비 / 매출액 비율 [연구개발비용계÷당기매출액×100] |
3.08 | 2.06 | 1.68 |
(*)정부보조금(국고보조금)을 차감하기전의 연구개발비용 지출총액을 기준으로 산정
※ 한국채택국제회계기준(K-IFRS)에 따라 작성된 연결기준입니다.
(3) 연구개발실적
당사는 자체개발 및 정부지원 사업등을 통해 지속적인 R&D를 진행하고 있습니다. 당사의 주요 연구개발의 내용은 아래표와 같습니다.
|
연구개발명 |
주요 연구내용 |
연구기간 |
|---|---|---|
|
먼지 걱정 없는 클린범퍼침대 |
특허등록된 클린 롤구조를 활용하여 먼지가 끼지 않는 청소가 간편한 구조로 설계. 6가지(침대,놀이방매트,패밀리소파,아기소파,아기테이블,베이비품)으로 변형하여 사용 가능하도록 설계하여 아이의 연령에 따라 필요한 제품으로 변형하여 사용할 수 있음. 당사의 다양한 제품과 결합하여 사용할 수 있도록 설계하여 연계상품 판매 등의 역할 할 수 있을것으로 기대. | 2019.10 ~ 2020.07 |
|
TPU 워터가드 퍼즐매트 |
기존의 TPU매트는 고객이 직접 설치하기 어려운 구조로 별도의 설치비용이 발생하였고 바닥면에 밀착하여 부착되는 형태로서 통풍이 어렵고 매트이 연결부위로 이물질이나 액체가 스며들어갈 경우 매트를 분리하고 환기시키기 어려운 구조로 이러한 문제점을 해결 될 수 있도록 설계 하였음. 상하좌우 방향으로 연속 조립되어 시공되며, 이러한 형상을 통해 필요에 따라 매트를 독립적으로 탈부착이 가능하도록 하였음. 십자형태의 상하 이중결합방식 커넥터는 매트와 매트 사이를 견고하게 잡아주어 매트 연결부위의 틈새를 통해 스며들어간 액체 및 이물질에 대한 바닥면의 오염이나 곰팡이의 발생을 방지할 수 있는 결합구조임. | 2021.06 ~ 2022.01 |
| 장난감 살균기 |
꿈비 장난감 살균기의 살균력은 국내 인증기관을 통해 실험한 결과로 일상 생활에서 쉽게 노출될 수 있는 5대균 (대장균/녹농균/비브리오균/황색포도상구균/연쇄상구균)등 눈에 보이지 않는 유해 세균의 DNA까지 99.99% 강력한 살균력 검증함. UV- C LED 16개를 장착하여 강력한 출력량으로 확실한 살균력을 보여줄 수 있는 제품을 개발하였으며, 분리가 가능한 모듈 설계로 보조배터리를 호환하여 별도 사용이 가능하도록 설계. | 2020.11 ~ 2022.02 |
7. 기타 참고사항
가. 지적재산권 보유현황
당사는 영위하는 사업과 관련하여 변화하는 고객니즈에 대응하고, 지속적으로 유아 업계의 위상을 확고히 하고자 R&D 역량을 강화하고 있습니다. 지적재산권 보유 건수는 권리의 신규 취득, 존속기간 만료 등으로 인하여 수시로 변동되고 있으며, 기준일 현재 취득하여 보유중인 지적재산권 현황은 아래와 같습니다.
| (기준일 : 2023.03.31) |
|
구분 |
특허권 |
디자인 |
실용 |
상표 |
저작권 |
||||||
|---|---|---|---|---|---|---|---|---|---|---|---|
|
국내 |
해외 |
합계 |
국내 |
해외 |
합계 |
국내 |
국내 |
해외 |
합계 |
국내 |
|
|
등록 |
14 | 3 | 17 | 65 | 73 | 138 | 1 | 84 | 83 | 1 |
1 |
|
출원 |
8 | 17 | 25 | 16 | 7 | 23 | - | 2 | 14 | - |
- |
|
합계 |
22 | 20 | 42 | 81 | 80 | 161 | 1 | 86 | 97 | 1 |
1 |
나. 시장여건 및 영업의 개황
(산업의 특성, 성장성, 경기변동의 특성)
최근 소비문화를 이끄는 새로운 소비계층으로 영유아가 부상하면서 영유아를 대상으로 한 상품과 서비스를 제공하는 유아 산업이 성장하고 있습니다. 유아 산업의 성장은 주 수요층인 영유아의 규모를 결정하는 중요한 양적요인인 출산율과 연관이 높습니다. 1970년대만 하더라도 4명을 상회했던 국내 출산율은 산아 제한 정책 등을 통해 지속적으로 감소하면서 1984년에는 2명 이하로 하락하였으며, 2021년에는 0.81명으로 사상 최저치를 기록하였습니다. 이러한 출산율의 감소와 경기 불황에도 불구하고 유아 산업은 지속적으로 성장하고 있습니다. 이는 출산율 감소로 인해 소비층은 축소되었으나, 높아진 초혼 연령에 따른 부모의 경제력 상승, 맞벌이 가구의 증가 등으로 인해 유아용품의 고급화, 전문화 추세가 지속되고 있고, 한자녀 가구의 증가로 평균 소비단가가 상승한 점 등이 주요 요인으로 파악됩니다. 이에 따라 유아용품을 선택하는 기준이 가격, 디자인 등에서 친환경, 웰빙, 품질 등으로 변화하고 있어 안정적이며 지속적으로 견조한 성장세를 보이고 있습니다. 또한, 유아관련 산업의 경기는 국내외 경제 상황에 따라 소비가 위축 및 활성화 될 수 있으나, 이러한 경기변동에 따른 영향력은 다른 산업군에 비해 그리 크지 않습니다.
(시장점유율)
당사가 영위하는 업종에 관련 시장점유율은 정확하게 추정하기가 어렵습니다. 이는 현재 관련 협회나 공공기관에서 공식적으로 집계가 되는 데이터나 자료가 부재하며, 또한 산업의 범위를 정하는 방법에 따라 그 규모가 달라질 수 있어 정확한 점유율을 파악하기 어려운 실정으로 기재를 생략합니다.
(시장 경쟁상황 및 당사 경쟁력)
국내 유아용품 시장은 각 세부항목별로 시장이 분할되어 형성되어 있으며 대기업 보다는 중소기업 위주로 경쟁체제가 형성되어 있습니다. 특히, 유아용품업체들은 각사가 주력으로 영위하는 품목 위주로 사업을 하고 있어 업체들의 절대 매출 규모가 크지 않고, 각 품목별로 시장을 선점한 소수의 업체들이 대부분을 점유하고 있는 구조입니다. 국내 유아용품 시장은 유독 대기업의 진출이 어렵습니다. 특히, 유아매트 시장은 고관여 제품군으로 고객 니즈를 빠르게 반영해야 하는 환경으로 유명 대기업일 지라도 단기간의 브랜딩을 통해 매출을 일으키기는 어려운 구조입니다. 단기간에 성과를 내야하는 대기업의 특성상 브랜딩을 할 수 있는 시간적인 여유가 부족한 점과 다양한 구성과 카테고리 확장의 어려움 등이 유아용품 시장에 대기업이 진입하기 어려운 이유입니다.
당사의 주요 경쟁력으로 당사제품에 대한 '평판 관리' 및 '발빠른 A/S 대처'를 기반으로 "꿈비의 제품은 믿고 쓸 수 있다"는 인식을 가지도록 적극적인 영업전략을 시행하고 있습니다. 또한, 사용자가 제품 개발 등에 참여할 수 있도록 하게 하는 등 꿈비 브랜드에 대한 팬덤이 형성될 수 있도록 하여 재구매율을 높이는 등 시장 경쟁력을 강화하고 있습니다. 당사는 '안전, 실용성, 디자인' 이라는 3가지 핵심가치로 제품개발을 시행하고 있으며, "꿈비가 만들면 다르다" 라는 소비자들의 인식 개선을 통해, 타사의 제품과 차별을 두고 있습니다. 이외에도 당사는 해외시장을 적극 공략하고 있으며 해외 박람회 및 컨퍼런스 등을 통해 대형 제조사 및 각 국가별 주요 대리점을 발굴 하는 등 협력을 통한 시장확대에 주력하고 있습니다.
다. 사업부문별 주요 재무정보
당사는 별도로 사업부문을 구분하고 있지 않으며, 당사의 주요 재무정보는 아래표와 같습니다.
| (단위 : 백만원) |
| 구 분 | 제10기 1분기 | 제9기 | 제8기 |
|---|---|---|---|
| 매 출 | 6,862 | 27,182 | 20,896 |
| 영업이익 | (1,199) | 1,133 | 2,327 |
| 자 산 | 24,023 | 15,964 | 11,537 |
※ 한국채택국제회계기준(K-IFRS)에 따라 작성된 연결기준입니다.
라. 신규사업 등의 내용 및 전망
당사는 세계 80여개국에 수출 판매 중인 베트남 "G7커피"와 140년 전통의 독일 유아거실가구 "고이터(Geuther)"의 유통사업을 확대합니다.
2014년 한국시장에 진출한 G7 커피는 지난 2021년 한국지사 설립 후 전년대비 31.3% 성장, 글로벌 시장은 57.6% 성장세를 보이고 있습니다. 이러한 성장세를 앞세워 쭝웬 레전드그룹은G7 커피의 국내시장 확대를 위해 당사와 2021년 12월 업무협약을 체결하였습니다. 이커머스에 특화된 당사의 인프라를 통해 매출 성장과 더불어 G7커피 브랜드의 프리미엄화를 이끌어 내고자 당사와 업무협약을 진행하였고, 향후 보다 체계적이고 고급화 된 브랜딩을 통해 육성할 계획입니다.
독일 140년 전통 고이터(Geuther)는 1881년 독일 공장 설립 후 독일과 베트남에 약 9,000평 규모의 직영 공장을 운영하고 있으며, 당사의 원목가구를 고이터 베트남 공장을 통해 공급 받고 있습니다. 고이터는 프리미엄 유아 가구 브랜드로써 꿈비의 기존 고객층을 공략하여, 하이체어를 시작으로 국내시장 진출을 시작 하였습니다. 당사는 고이터의 국내시장 유통 및 오프라인 전개 등 공격적인 마케팅 전략을 적극 활용하여, 고이터의 고퀄리티 하이체어를 고품격 유아가구 브랜드로 육성할 계획입니다.
III. 재무에 관한 사항
1. 요약재무정보
당사는 보고서 제출일 현재 최근 사업년도 말 자산총액이 1천억원 미만인 소규모 기업에 해당하므로 기재를 생략합니다.
2. 연결재무제표
|
연결 재무상태표 |
|
제 10 기 1분기말 2023.03.31 현재 |
|
제 9 기말 2022.12.31 현재 |
|
(단위 : 원) |
|
제 10 기 1분기말 |
제 9 기말 |
|
|---|---|---|
|
자산 |
||
|
유동자산 |
15,867,384,819 |
8,973,155,076 |
|
현금및현금성자산 |
3,395,711,136 |
209,028,461 |
|
매출채권 및 기타채권 |
3,884,480,263 |
3,488,939,709 |
|
기타금융자산 |
3,655,356,000 |
617,320,000 |
|
기타유동자산 |
548,140,473 |
276,209,755 |
|
재고자산 |
4,374,706,620 |
4,374,563,084 |
|
당기법인세자산 |
8,990,327 |
7,094,067 |
|
비유동자산 |
8,155,776,142 |
6,990,417,440 |
|
장기매출채권 및 기타채권 |
6,101,930 |
6,101,930 |
|
장기기타금융자산 |
824,635,035 |
312,368,821 |
|
유형자산 |
6,883,692,737 |
6,261,129,276 |
|
무형자산 |
196,121,014 |
165,591,987 |
|
이연법인세자산 |
245,225,426 |
245,225,426 |
|
자산총계 |
24,023,160,961 |
15,963,572,516 |
|
부채 |
||
|
유동부채 |
6,195,398,877 |
5,919,845,139 |
|
매입채무 및 기타채무 |
2,252,413,919 |
1,484,851,750 |
|
단기차입금 |
2,500,000,000 |
3,200,000,000 |
|
유동성장기부채 |
1,166,586,676 |
1,191,586,675 |
|
기타유동부채 |
32,189,920 |
12,142,650 |
|
계약부채 |
244,208,362 |
31,264,064 |
|
비유동부채 |
1,933,273,598 |
1,983,253,598 |
|
장기차입금 |
1,933,260,000 |
1,983,240,000 |
|
이연법인세부채 |
13,598 |
13,598 |
|
부채총계 |
8,128,672,475 |
7,903,098,737 |
|
자본 |
||
|
지배기업의 소유주에게 귀속되는 자본 |
15,894,488,486 |
8,060,473,779 |
|
자본금 |
793,893,000 |
612,893,000 |
|
기타불입자본 |
9,365,203,322 |
602,029,180 |
|
기타자본구성요소 |
213,515,898 |
168,332,154 |
|
기타포괄손익누계액 |
1,230,745,174 |
1,230,745,174 |
|
이익잉여금(결손금) |
4,291,131,092 |
5,446,474,271 |
|
비지배지분 |
||
|
자본총계 |
15,894,488,486 |
8,060,473,779 |
|
자본과부채총계 |
24,023,160,961 |
15,963,572,516 |
|
연결 포괄손익계산서 |
|
제 10 기 1분기 2023.01.01 부터 2023.03.31 까지 |
|
제 9 기 1분기 2022.01.01 부터 2022.03.31 까지 |
|
(단위 : 원) |
|
제 10 기 1분기 |
제 9 기 1분기 |
|||
|---|---|---|---|---|
|
3개월 |
누적 |
3개월 |
누적 |
|
|
매출액 |
6,861,659,204 |
6,861,659,204 |
6,820,780,409 |
6,820,780,409 |
|
매출원가 |
4,983,785,376 |
4,983,785,376 |
4,187,622,636 |
4,187,622,636 |
|
매출총이익 |
1,877,873,828 |
1,877,873,828 |
2,633,157,773 |
2,633,157,773 |
|
판매비와관리비 |
3,076,933,668 |
3,076,933,668 |
1,973,660,591 |
1,973,660,591 |
|
영업이익(손실) |
(1,199,059,840) |
(1,199,059,840) |
659,497,182 |
659,497,182 |
|
금융수익 |
135,525,306 |
135,525,306 |
2,135,120 |
2,135,120 |
|
금융비용 |
81,282,049 |
81,282,049 |
25,876,521 |
25,876,521 |
|
기타수익 |
1,478,354 |
1,478,354 |
937,855 |
937,855 |
|
기타비용 |
12,004,950 |
12,004,950 |
6,914,868 |
6,914,868 |
|
법인세비용차감전순이익(손실) |
(1,155,343,179) |
(1,155,343,179) |
629,778,768 |
629,778,768 |
|
법인세비용(수익) |
||||
|
당기순이익(손실) |
(1,155,343,179) |
(1,155,343,179) |
629,778,768 |
629,778,768 |
|
기타포괄손익 |
||||
|
총포괄손익 |
(1,155,343,179) |
(1,155,343,179) |
629,778,768 |
629,778,768 |
|
주당이익 |
||||
|
기본주당이익(손실) (단위 : 원) |
(161) |
(161) |
103 |
103 |
|
희석주당이익(손실) (단위 : 원) |
(161) |
(161) |
103 |
103 |
|
연결 자본변동표 |
|
제 10 기 1분기 2023.01.01 부터 2023.03.31 까지 |
|
제 9 기 1분기 2022.01.01 부터 2022.03.31 까지 |
|
(단위 : 원) |
|
자본 |
|||||||
|---|---|---|---|---|---|---|---|
|
지배기업의 소유주에게 귀속되는 자본 |
자본 합계 |
||||||
|
자본금 |
기타불입자본 |
기타자본구성요소 |
기타포괄손익누계액 |
이익잉여금 |
지배기업의 소유주에게 귀속되는 자본 합계 |
||
|
2022.01.01 (기초자본) |
612,893,000 |
602,029,180 |
68,853,204 |
4,127,429,008 |
5,411,204,392 |
5,411,204,392 |
|
|
주식선택권 부여 |
14,754,258 |
14,754,258 |
14,754,258 |
||||
|
당기순이익(손실) |
629,778,768 |
629,778,768 |
629,778,768 |
||||
|
유상증자 |
|||||||
|
2022.03.31 (기말자본) |
612,893,000 |
602,029,180 |
83,607,462 |
4,757,207,776 |
6,055,737,418 |
6,055,737,418 |
|
|
2023.01.01 (기초자본) |
612,893,000 |
602,029,180 |
168,332,154 |
1,230,745,174 |
5,446,474,271 |
8,060,473,779 |
8,060,473,779 |
|
주식선택권 부여 |
45,183,744 |
45,183,744 |
45,183,744 |
||||
|
당기순이익(손실) |
(1,155,343,179) |
(1,155,343,179) |
(1,155,343,179) |
||||
|
유상증자 |
181,000,000 |
8,763,174,142 |
8,944,174,142 |
8,944,174,142 |
|||
|
2023.03.31 (기말자본) |
793,893,000 |
9,365,203,322 |
213,515,898 |
1,230,745,174 |
4,291,131,092 |
15,894,488,486 |
15,894,488,486 |
|
연결 현금흐름표 |
|
제 10 기 1분기 2023.01.01 부터 2023.03.31 까지 |
|
제 9 기 1분기 2022.01.01 부터 2022.03.31 까지 |
|
(단위 : 원) |
|
제 10 기 1분기 |
제 9 기 1분기 |
|
|---|---|---|
|
영업활동현금흐름 |
(679,315,497) |
(805,016,594) |
|
당기순이익 |
(1,155,343,179) |
629,778,768 |
|
당기순이익에 대한 조정 |
267,482,682 |
199,843,134 |
|
영업활동 자산ㆍ부채의 증감 |
270,125,378 |
(1,611,283,589) |
|
이자수취 |
12,331,412 |
|
|
이자지급 |
(72,015,530) |
(23,279,187) |
|
법인세납부 |
(1,896,260) |
(75,720) |
|
투자활동현금흐름 |
(4,311,412,272) |
(181,628,808) |
|
장기금융상품의 처분 |
14,968,637 |
|
|
단기대여금의 감소 |
461,964,000 |
|
|
단기금융상품의 취득 |
(3,000,000,000) |
|
|
단기대여금의 증가 |
(500,000,000) |
|
|
기타포괄손익인식-금융자산의 취득 |
(499,888,975) |
|
|
장기금융상품의 취득 |
(11,927,977) |
(1,627,671) |
|
유형자산의 취득 |
(716,709,320) |
(192,129,774) |
|
무형자산의 취득 |
(44,850,000) |
(2,840,000) |
|
재무활동현금흐름 |
8,177,420,197 |
(200,522,357) |
|
정부보조금의 수취 |
8,226,054 |
|
|
유상증자(신주발행) |
8,944,174,142 |
|
|
단기차입금의 상환 |
(700,000,000) |
|
|
유동성장기부채의 상환 |
(74,979,999) |
(99,989,999) |
|
리스부채의 원금상환 |
(100,532,358) |
|
|
현금및현금성자산에 대한 환율변동효과 |
(9,753) |
|
|
현금및현금성자산의순증가(감소) |
3,186,682,675 |
(1,187,167,759) |
|
기초현금및현금성자산 |
209,028,461 |
2,061,502,191 |
|
기말현금및현금성자산 |
3,395,711,136 |
874,334,432 |
3. 연결재무제표 주석
| 제 10기 1분기 2023년 03월 31일 현재 |
| 제 9기 2022년 12월 31일 현재 |
| 주식회사 꿈비와 그 종속기업 |
1. 일반사항
(1) 지배기업의 개요
주식회사 꿈비(이하 '회사')는 2014년 11월 설립되었으며 당사와 그 종속기업(이하 "연결회사")는 경기 수원시 영통구 법조로 25 A동 7층 713호(하동, 광교SK뷰레이크)에 본사를 두고 유아용품 제조 및 도소매 등을 주요 사업목적으로 하고 있습니다. 당사의 당기말 현재 자본금은 793,893천원이며, 주주현황은 다음과 같습니다.
| 주주명 | 소유주식수(주) | 지분율(%) |
| 박영건 | 2,158,900 | 27.19% |
| 최연서 | 1,239,695 | 15.62% |
| 최진희 | 983,628 | 12.39% |
| 이은석 | 282,468 | 3.56% |
| 우리사주조합 | 139,943 | 1.76% |
| 꿈비 자사주 | 458,060 | 5.77% |
| 기타 | 2,676,236 | 33.71% |
| 합계 | 7,938,930 | 100.00% |
(2) 종속기업의 개요
1) 종속기업 현황
당기말 현재 회사의 종속기업 현황은 다음과 같습니다.
| 기업명 | 소재국가 | 결산월 | 당기말 | 전기말 |
|---|---|---|---|---|
| 지분율(%) | 지분율(%) | |||
| 주식회사 소브 | 한국 | 12월 | 100 | 100 |
2) 종속기업의 요약 재무정보
당기말 및 전기말 현재 연결대상 종속기업의 요약재무정보는 다음과 같습니다.
| (당분기말) | (단위 : 원) |
| 구분 | 자산 | 부채 | 매출액 | 당기순손익 | 총포괄손익 |
|---|---|---|---|---|---|
| 주식회사 소브 | 158,619,294 | 179,153,092 | 190,231,598 | 6,558,772 | 6,558,772 |
| (전기말) | (단위 : 원) |
| 구분 | 자산 | 부채 | 매출액 | 당기순손익 | 총포괄손익 |
|---|---|---|---|---|---|
| 주식회사 소브 | 115,435,290 | 142,527,860 | 294,649,543 | 569,971 | 569,971 |
2. 중요한 회계정책
연결회사의 연결재무제표는 한국채택국제회계기준(이하 "기업회계기준")에 따라 작성됐습니다. 한국채택국제회계기준은 국제회계기준위원회가 발표한 기준서와 해석서 중 대한민국이 채택한 내용을 의미합니다.
연결재무제표 작성을 위하여 채택한 중요한 회계정책은 다음과 같습니다.
(1) 회계정책의 변경과 공시
1) 연결회사가 채택한 제ㆍ개정 기준서
연결회사가 2023년 1월 1일 이후 개시하는 회계기간부터 적용한 제ㆍ개정 기준서 및 해석서는 다음과 같습니다.
(가) 기업회계기준서 제1103호 '사업결합' 개정 - 개념체계의 인용
사업결합 시 인식할 자산과 부채의 정의를 개정된 재무보고를 위한 개념체계를 참조하도록 개정되었으나, 기업회계기준서 제1037호 '충당부채, 우발부채 및 우발자산' 및 해석서 제2121호 '부담금' 의 적용범위에 포함되는 부채 및 우발부채에 대해서는 해당 기준서를 적용하도록 예외를 추가하고, 우발자산이 취득일에 인식되지 않는다는 점을 명확히 하였습니다. 해당 기준서의 개정이 연결재무제표에 미치는 중요한 영향은 없습니다.
(나) 기업회계기준서 제1016호 '유형자산' 개정 - 의도한 사용 전의 매각금액
기업이 자산을 의도한 방식으로 사용하기 전에 생산된 품목의 판매에서 발생하는 수익을 생산원가와 함께 당기손익으로 인식하도록 요구하며, 유형자산의 취득원가에서차감하는 것을 금지하고 있습니다. 해당 기준서의 개정이 연결재무제표에 미치는 중요한 영향은 없습니다.
(다) 기업회계기준서 제1037호 '충당부채, 우발부채 및 우발자산' 개정 - 손실부담계약:계약이행원가
손실부담계약을 식별할 때 계약이행원가의 범위를 계약 이행을 위한 증분원가와 계약 이행에 직접 관련되는 다른 원가의 배분이라는 점을 명확히 하였습니다. 해당 기준서의 개정이 연결재무제표에 미치는 중요한 영향은 없습니다.
(라) 한국채택국제회계기준 연차개선 2018-2020
한국채택국제회계기준 연차개선 2018-2020은 2022년 1월 1일 이후 시작하는 회계연도부터 적용되며, 조기적용이 허용됩니다. 해당 기준서의 개정이 연결재무제표에 미치는 중요한 영향은 없습니다.
·기업회계기준서 제1101호 '한국채택국제회계기준의 최초 채택': 최초채택기업인종속기업
·기업회계기준서 제1109호 '금융상품': 금융부채 제거 목적의 10% 테스트 관련 수수료
·기업회계기준서 제1041호 '농림어업': 공정가치 측정
2) 공표되었으나 아직 시행되지 않은 제ㆍ개정 기준서 및 해석서
당기말 현재 제정ㆍ공표되었으나 시행일이 도래하지 아니하였고, 연결회사가 조기 적용하지 아니한 제ㆍ개정 기업회계기준서 및 해석서는 다음과 같습니다.
(가) 기업회계기준서 제1001호 '재무제표 표시' 개정 - 부채의 유동/비유동 분류
보고기간말 현재 존재하는 실질적인 권리에 따라 유동 또는 비유동으로 분류되며, 부채의 결제를 연기할 수 있는 권리의 행사가능성이나 경영진의 기대는 고려하지 않습니다. 또한, 부채의 결제에 자기지분상품의 이전도 포함되나, 복합금융상품에서 자기지분상품으로 결제하는 옵션이 지분상품의 정의를 충족하여 부채와 분리하여 인식된경우는 제외됩니다. 동 개정사항은 2023년 1월 1일 이후 시작하는 회계연도부터 적용하며, 조기적용이 허용됩니다. 연결실체는 동 개정으로 인해 연결재무제표에 중요한 영향은 없을 것으로 예상하고 있습니다.
(나) 기업회계기준서 제1001호 '재무제표 표시' - '회계정책'의 공시
중요한 회계정책을 정의하고 공시하도록 하며, 중요성 개념을 적용하는 방법에 대한 지침을 제공하기 위하여 기준서 제 1001호는 회사의 유의적인 회계정책을 공시하도록 요구합니다. 개정사항은 '유의적인' 회계정책을 '중요한' 회계정책으로 변경하고, 중요한 회계정책 정보에 대한 설명을 추가하였습니다
동 개정 사항은 2023년 1월 1일 이후 최초로 시작하는 회계연도부터 적용되며 조기적용이 허용됩니다. 연결실체는 동 개정으로 인해 연결재무제표에 중요한 영향은 없을 것으로 예상하고 있습니다.
(다) 기업회계기준서 제1008호 '회계정책, 회계추정의 변경 및 오류' - '회계추정'의 정의
회계추정을 정의하고, 회계정책의 변경과 구별하는 방법을 명확히 하였습니다. 동 개정 사항은 2023년 1월 1일 이후 최초로 시작하는 회계연도부터 적용되며 조기적용이허용됩니다. 연결실체는 동 개정으로 인해 연결재무제표에 중요한 영향은 없을 것으로 예상하고 있습니다.
(라) 기업회계기준서 제1012호 '법인세' - 단일거래에서 생기는 자산과 부채에 대한 이연법인세
자산 또는 부채가 최초로 인식되는 거래의 최초 인식 예외 요건에 거래시점 동일한 가산할 일시적차이와 차감할 일시적차이를 발생시키지 않는 거래라는 요건을 추가하였습니다. 동 개정사항은 2023년 1월 1일 이후 시작하는 회계연도부터 적용하며, 조기적용이 허용됩니다. 연결실체는 동 개정으로 인해 연결재무제표에 중요한 영향은 없을 것으로 예상하고 있습니다.
(마) 기업회계기준서 제1117호 '보험계약' 제정
기업회계기준서 제1117호 '보험계약'은 기업회계기준서 제1104호 '보험계약'을 대체합니다. 보험계약에 따른 모든 현금흐름을 추정하고 보고시점의 가정과 위험을 반영한 할인율을 사용하여 보험부채를 측정하고, 매 회계연도별로 계약자에게 제공한 서비스(보험보장)를 반영하여 수익을 발생주의로 인식하도록 합니다. 또한, 보험사건과 관계없이 보험계약자에게 지급하는 투자요소(해약/만기환급금)는 보험수익에서 제외하며, 보험손익과 투자손익을 구분 표시하여 정보이용자가 손익의 원천을 확인할 수 있도록 하였습니다. 동 기준서는 2023년 1월 1일 이후 최초로 시작하는 회계연도부터 적용되며, 기업회계기준서 제1109호 '금융상품'을 적용한 기업은 조기적용이허용됩니다. 연결실체는 동 개정으로 인해 연결재무제표에 중요한 영향은 없을 것으로 예상하고 있습니다.
(바) 기업회계기준서 제1001호 ' 재무제표 표시 ' - 행사가격 조정 조건이 있는 금융부채 평가손익 공시
발행자의 주가 변동에 따라 행사가격이 조정되는 조건이 있는 금융상품의 전부나 일부가 금융부채로 분류되는 경우 그 금융부채의 장부금액과 관련 손익을 공시하도록 하였습니다. 동 개정사항은 2023년 1월 1일 이후 시작하는 회계연도부터 적용하며, 조기적용이 허용됩니다. 연결실체는 동 개정으로 인해 연결재무제표에 중요한 영향은 없을 것으로 예상하고 있습니다.
(2) 연결재무제표 작성기준
1) 회계기준
연결재무제표는 주식회사 등의 외부감사에 관한 법률에서 규정하고 있는 국제회계기준위원회의 국제회계기준을 채택하여 정한 회계처리기준인 한국채택국제회계기준에 따라 작성되었습니다.
2) 측정기준
연결재무제표는 금융상품 등 아래의 회계정책에서 별도로 언급하고 있는 사항을 제외하고는 역사적원가를 기준으로 작성되었습니다.
3) 기능통화와 표시통화
연결재무제표는 연결회사의 기능통화이면서 표시통화인 "원(KRW)"으로 표시되고 있으며 별도로 언급하고 있는 사항을 제외하고는 "원(KRW)" 단위로 표시되고 있습니다.
(3) 연결기준
종속기업은 연결회사의 지배를 받고 있는 기업이며, 연결회사는 피투자자에 대한 관여로 변동이익에 노출되거나 변동이익에 대한 권리가 있고 피투자자에 대하여 자신의 힘으로 그러한 이익에 영향을 미치는 능력이 있을 때 피투자자를 지배합니다. 연결회사가 다른 기업에 대한 지배력을 평가할 때는 다른 당사자가 보유한 잠재적 의결권뿐만 아니라 자신이 보유한 잠재적 의결권도 고려하고 있습니다.
연결재무제표는 지배기업과 종속기업의 자산, 부채, 자본, 수익, 비용 및 현금흐름을 같은 항목별로 합산하고, 지배기업의 각 종속기업에 대한 투자자산의 장부금액과 각 종속기업의 자본 중 지배기업지분을 상계(제거)하며, 연결회사 내 기업간의 거래와 관련된 연결회사 내의 자산과 부채, 자본, 수익, 비용 및 현금흐름을 모두 제거하여 작성되고 있으며, 종속기업의 수익과 비용은 연결회사가 종속기업에 대해 지배력을 획득하는 시점부터 지배력을 상실하기 전까지 연결재무제표에 포함되고 있습니다
연결재무제표를 작성할 때 사용되는 지배기업과 종속기업의 재무제표는 동일한 보고기간종료일을 가집니다. 지배기업의 보고기간종료일과 종속기업의 보고기간종료일이 다른 경우, 종속기업은 연결재무제표를 작성하기 위하여 지배기업이 종속기업의 재무정보를 연결할 수 있도록 지배기업의 재무제표와 동일한 보고기간종료일의 추가적인 재무정보를 작성하고 있습니다. 다만, 종속기업이 실무적으로 적용할 수 없는 경우, 지배기업은 종속기업의 재무제표일과 연결재무제표일 사이에 발생한 유의적인거래나 사건의 영향을 조정한 종속기업의 가장 최근의 재무제표를 사용하여 종속기업의 재무정보를 연결하며, 어떠한 경우라도 종속기업의 재무제표일과 연결재무제표일의 차이는 3개월을 초과하지 않고 있으며, 보고기간의 길이 그리고 재무제표일의 차이는 매 기간마다 동일하게 적용하고 있습니다.
연결회사는 연결재무제표 작성시 연결회사를 구성하는 기업이 유사한 상황에서 발생한 동일한 거래와 사건에 대하여 연결재무제표에서 채택한 회계정책과 다른 회계정책을 사용한 경우에는 연결회사의 회계정책과 일치하도록 그 재무제표를 적절히 수정하여 연결재무제표를 작성하고 있습니다.
비지배지분은 연결재무상태표에서 자본에 포함하되 지배기업의 소유주지분과는 구분하여 별도로 표시하고 있습니다. 당기순손익과 기타포괄손익의 각 구성요소는 지배기업의 소유주와 비지배지분에 귀속되며, 비지배지분이 부(-)의 잔액이 되더라도 총포괄손익은 지배기업의 소유주와 비지배지분에 귀속되고 있습니다.
종속기업에 대한 지배기업의 소유지분이 변동한 결과로 지배기업이 종속기업에 대한지배력을 상실하지 않는다면, 그것은 자본거래(즉, 소유주로서의 자격을 행사하는 소유주와의 거래)로 회계처리하고 있습니다.
지배기업이 종속기업에 대한 지배력을 상실한 경우 연결재무상태표에서 종전의 종속기업에 대한 자산과 부채를 제거하고, 종전의 종속기업에 대한 잔존 투자는 지배력을상실한 때의 공정가치로 인식하며, 그러한 투자 및 종전의 종속기업과 주고 받을 금액에 대해서는 관련 한국채택국제회계기준에 따라 후속적으로 회계처리하고 있으며,종전의 지배지분에 귀속되는 지배력 상실 관련 손익을 인식하고 있습니다.
(4) 외화환산
기능통화로 외화거래를 최초로 인식하는 경우에 거래일의 외화와 기능통화 사이의 현물환율을 외화금액에 적용하여 기록하며, 보고기간말 화폐성 외화항목은 마감환율로 환산하며, 역사적원가로 측정하는 비화폐성 외화항목은 거래일의 환율로 환산하고, 공정가치로 측정하는 비화폐성 외화항목은 공정가치가 결정된 날의 환율로 환산하고 있습니다.
화폐성항목의 결제시점에 생기는 외환차이와 화폐성항목의 환산에 사용한 환율이 회계기간 중 최초로 인식한 시점이나 전기의 연결재무제표 환산시점의 환율과 다르기 때문에 생기는 외환차이는 그 외환차이가 생기는 회계기간의 손익으로 인식하고 있으며, 일정요건을 충족하는 위험회피회계를 적용하는 외환차이 등은 기타포괄손익으로 보고하고 있습니다.
비화폐성항목에서 생긴 손익을 기타포괄손익으로 인식하는 경우에 그 손익에 포함된환율변동효과도 기타포괄손익으로 인식하며, 비화폐성항목에서 생긴 손익을 당기손익으로 인식하는 경우에는 그 손익에 포함된 환율변동효과도 당기손익으로 인식하고있습니다.
(5) 현금및현금성자산
연결회사는 보유현금과 요구불예금, 유동성이 매우 높은 단기 투자자산으로서 확정된 금액의 현금으로 전환이 용이하고 가치변동의 위험이 경미한 자산을 현금 및 현금성자산으로 분류하고 있습니다. 지분상품은 현금성자산에서 제외하고 있으며 다만 상환일이 정해져 있고 취득일로부터 상환일까지의 기간이 단기인 우선주와 같이 실질적인 현금성자산인 경우에는 현금성자산에 포함하고 있으며, 금융회사의 요구에 따라 즉시 상환하여야 하는 당좌차월은 현금및현금성자산의 구성요소에 포함하고 있습니다.
(6) 금융상품
1) 금융자산
금융자산은 금융상품의 계약당사자가 되는 때에만 재무상태표에 인식하고 있으며, 금융자산의 정형화된 매입이나 매도는 매매일 또는 결제일에 인식하고 있습니다. 금융상품의 최초 인식시점에 사업모형과 금융자산의 계약상 현금흐름의 특성에 따라금융자산은 당기손익-공정가치측정금융자산, 기타포괄손익-공정가치측정금융자산,상각후원가측정금융자산으로 분류하고 있습니다.
금융자산은 최초인식시 공정가치로 측정하고 있으며, 당기손익-공정가치금융자산이 아닌 경우 당해 금융자산의 취득과 직접 관련되는 거래원가는 최초인식하는 공정가치에 가산하여 측정하고 있습니다.
(가) 당기손익-공정가치측정금융자산
금융자산을 단기매매목적으로 보유하고 있거나, 당기손익-공정가치측정금융자산으로 지정하는 경우와 기타포괄손익-공정가치측정금융자산 또는 상각후원가측정금융자산으로 분류되지 않는 금융자산은 당기손익-공정가치측정금융자산으로 분류합니다.
또한 당기손익-공정가치측정금융자산의 지정이 서로 다른 기준에 따라 자산이나 부채를 측정하거나, 그에 따른 평가손익 등을 인식함으로써 발생할 수 있는 인식과 측정상의 불일치를 제거하거나 상당히 감소시킬 수 있는 경우에는 당기손익-공정가치 측정금융자산으로 지정할 수 있습니다.
당기손익-공정가치측정금융자산은 공정가치로 측정하며 공정가치 변동으로 인한 평가손익은 당기손익으로 인식하고 있습니다. 금융자산으로부터 획득한 배당금과 이자수익도 당기손익으로 인식합니다.
(나) 기타포괄손익-공정가치측정금융자산
채무증권 중 사업모형이 현금흐름 수취 및 매도 사업모형으로 분류되고 계약상 현금흐름이 원금과 이자만으로 구성되어 있는지에 대한 검토를 만족하는 금융자산이나 단기간 내 매도할 목적이 아닌 지분증권 중 기타포괄손익-공정가치측정금융자산으로 지정한 상품은 기타포괄손익-공정가치측정금융자산으로 분류하고 있습니다. 기타포괄손익-공정가치측정금융자산은 최초인식 후에 공정가치로 측정합니다. 공정가치의 변동으로 인하여 발생하는 손익은 유효이자율법에 따른 이자수익, 배당수익 및 손익으로 직접 인식되는 화폐성자산에 대한 외환차이를 제외하고는 자본의 기타포괄손익항목으로 인식하고 있습니다.
기타포괄손익-공정가치측정금융자산을 처분하는 경우 기타포괄손익으로 인식한 누적손익은 해당 기간의 당기손익으로 인식합니다. 다만, 기타포괄손익-공정가치측정 금융자산으로 지정한 지분증권에서 발생한 누적평가손익은 처분시 해당기간의 당기손익으로 인식되지 않습니다.
외화로 표시된 기타포괄손익-공정가치측정금융자산의 공정가치는 해당 외화로 측정되며 보고기간 말 현재 환율로 환산합니다. 공정가치 변동분 중 상각후원가의 변동으로 인한 환산차이에서 발생한 부분은 당기손익으로 인식하며 기타 변동은 자본으로 인식하고 있습니다.
(다) 상각후원가측정금융자산
사업모형이 현금흐름 수취로 분류되고 계약상현금흐름 특성 평가를 만족하는 금융자산은 상각후원가 측정 금융자산으로 분류합니다. 최초 인식 후에는 유효이자율법을 사용한 상각후원가로 측정하며, 이자수익은 유효이자율법을 사용하여 인식합니다.
(라) 금융자산의 제거
금융자산의 현금흐름에 대한 계약상 권리가 소멸하거나, 금융자산의 현금흐름에 대한 권리를 양도하고 금융자산의 소유에 따른 위험과 보상의 대부분을 이전할 때 금융자산을 제거하고 있습니다. 만약, 금융자산의 소유에 따른 위험과 보상의 대부분을 보유하지도 않고 이전하지도 아니한 경우, 연결회사가 금융자산을 통제하고 있지도 않다면 금융자산을 제거하고, 금융자산을 계속 통제하고 있다면 그 양도자산에 대하여 지속적으로 관여하는 정도까지 계속하여 인식하고, 관련 부채를 함께 인식하고 있습니다.
2) 금융자산(채무상품)의 기대신용손실
당기손익-공정가치측정금융자산을 제외한 상각후원가측정금융자산 및 기타포괄손익-공정가치측정채무상품은 매 보고기간 말에 기대신용손실을 평가하고 있습니다. 손실충당금의 측정방식은 신용위험의 유의적인 증가 여부에 따라 결정됩니다. 금융자산의 최초 인식 후 신용위험의 유의적인 증가 여부에 따라 아래 표와 같이 3단계로 구분하여 12개월 기대신용손실이나 전체기간 기대신용손실에 해당하는 금액으로 손실충당금을 인식합니다.
|
구 분 |
손실충당금 |
|
|---|---|---|
|
Stage 1 |
최초 인식 후 신용위험이 유의적으로 증가하지 않은 경우(주1) |
12개월 기대신용손실: 보고기간 말 이후 12개월 내에 발생 가능한 금융상품의 채무불이행 사건으로 인한 기대신용손실 |
|
Stage 2 |
최초 인식 후 신용위험이 유의적으로 증가한 경우 |
전체기간 기대신용손실: 기대존속기간에 발생할 수 있는 모든 채무불이행 사건으로 인한 기대신용손실 |
|
Stage 3 |
신용이 손상된 경우 |
|
(주1) 보고기간 말 신용위험이 낮은 경우에는 신용위험이 유의적으로 증가하지 않은 것으로 간주할 수 있음
최초 인식 시점에 신용이 손상된 금융자산에 대하여 최초 인식 후 전체기간 기대신용손실의 누적변동분만을 손실충당금으로 계상합니다.
한편, 매출채권, 계약자산, 리스채권 등에 대해서는 전체기간 기대신용손실에 해당하는 금액으로 손실충당금을 측정하는 간편법을 적용하고 있습니다.
기대신용손실은 일정 범위의 발생 가능한 결과를 확률가중한 값으로, 화폐의 시간가치를 반영하고, 보고기간 말에 과거사건, 현재 상황과 미래 경제적 상황에 대한 예측에 대한 과도한 원가나 노력 없이 이용할 수 있는 정보를 반영해 측정합니다.
3) 금융부채
금융부채는 금융상품의 계약당사자가 되는 때에만 재무상태표에 인식하고 있으며, 금융부채의 최초 인식시 당기손익-공정가치측정금융부채 또는 기타금융부채로 분류하고 공정가치로 측정하고 있습니다. 당기손익-공정가치측정금융부채를 제외하고는 해당 금융부채의 발생과 직접 관련되는 거래비용은 최초 측정시 공정가치에 차감하고 있습니다.
(가) 당기손익-공정가치측정부채
당기손익-공정가치측정금융부채는 최초 인식시점에 당기손익-공정가치측정금융부채로 지정한 금융부채를 포함하고 있습니다. 당기손익-공정가치측정금융부채는 최초 인식 후 공정가치로 측정하며, 공정가치의 변동은 당기손익으로 인식하고 있습니다. 한편,최초 인식시점에 발행과 관련하여 발생한 거래비용은 발생 즉시 당기손익으로 인식하고 있습니다.
(나) 당기손익-공정가치측정부채로 분류되지 않는 금융부채
당기손익-공정가치측정부채로 분류되지 않는 금융부채는 다음의 금융부채를 제외하고는 최초인식 후 유효이자율법을 사용하여 상각후원가로 측정하고 있습니다.
금융자산의 양도가 제거 조건을 충족하지 못하거나 지속적관여접근법이 적용되는 경우에 발생하는 금융부채의 경우, 양도자산을 상각후원가로 측정한다면 양도자산과 관련부채의 순장부금액이 양도자가 보유하는 권리와 부담하는 의무의 상각후원가가 되도록 관련부채를 측정하며, 양도자산을 공정가치로 측정한다면 양도자산과 관련부채의 순장부금액이 양도자가 보유하는 권리와 부담하는 의무의 독립적으로 측정된 공정가치가 되도록 관련부채를 측정하고 있습니다.
금융보증부채(금융자산의 양도가 제거 조건을 충족하지 못하거나 지속적관여접근법이 적용되는 경우에 발생하는 금융부채 제외)와 시장이자율보다 낮은 이자율로 대출하기로 한 약정은 기대신용손실모형에 따른 손실충당금과 최초인식금액에서 이익누계액을 차감한 금액 중 큰 금액으로 측정됩니다.
(다) 금융부채의 제거
금융부채(또는 금융부채의 일부)는 소멸한 경우(즉, 계약상 의무가 이행, 취소 또는 만료된 경우)에만 재무상태표에서 제거하고 있습니다. 기존 차입자와 대여자가 실질적으로 다른 조건으로 채무상품을 교환하거나 기존 금융부채(또는 금융부채의 일부)의 조건이 실질적으로 변경된 경우 최초의 금융부채를 제거하고 새로운 금융부채를 인식하고 있으며, 소멸하거나 제3자에게 양도한 금융부채(또는 금융부채의 일부)의 장부금액과 지급한 대가의 차액은 당기손익으로 인식하고 있습니다.
4) 금융자산과 금융부채의 상계
연결회사는 인식한 자산과 부채에 대해 법적으로 집행가능한 상계권리를 현재 보유하고 있으면서 순액으로 결제하거나 자산을 실현하는 동시에 부채를 결제할 의도를 가지고 있는 경우에 금융자산과 금융부채를 상계하고 재무상태표에 순액으로 표시하고 있습니다.
5) 부채와 자본의 분류
채무상품과 지분상품은 계약의 실질 및 금융부채와 지분상품의 정의에 따라 금융부채 또는 자본으로 분류하고 있습니다.
(7) 재고자산
재고자산의 취득원가는 매입원가, 전환원가 및 재고자산을 현재의 장소에 현재의 상태로 이르게 하는 데 발생한 기타 원가 모두를 포함하고 있으며, 재고자산의 단위원가는 총평균법을 사용하여 결정하고 있습니다.
재고자산은 취득원가와 순실현가능가치 중 낮은 금액으로 측정하고 있습니다. 순실현가능가치는 통상적인 영업과정의 예상 판매가격에서 예상되는 추가 완성원가와 판매비용을 차감한 금액으로서 매 후속기간에 순실현가능가치를 재평가하고 있습니다.
재고자산의 판매시 관련된 수익을 인식하는 기간에 재고자산의 장부금액을 비용으로인식하고 있으며 재고자산을 순실현가능가치로 감액한 평가손실과 모든 감모손실은 감액이나 감모가 발생한 기간에 비용으로 인식하며, 순실현가능가치의 상승으로 인한 재고자산 평가손실의 환입은 환입이 발생한 기간의 비용으로 인식된 재고자산 금액의 차감액으로 인식하고 있습니다.
(8) 유형자산
토지와 건물을 제외한 자산은 최초 인식 후에 원가에서 감가상각누계액과 손상차손누계액을 차감한 금액을 장부금액으로 하고 있으며, 토지와 건물은 최초 인식 후에 재평가일의 공정가치에서 이후의 감가상각누계액과 손상차손누계액을 차감한 재평가금액을 장부금액으로 하고 있습니다. 재평가는 보고기간말에 자산의 장부금액이 공정가치와 중요하게 차이가 나지 않도록 주기적으로 수행하고 있습니다
유형자산의 원가는 관세 및 환급불가능한 취득 관련 세금을 가산하고 매입할인과 리베이트 등을 차감한 구입가격, 경영진이 의도하는 방식으로 자산을 가동하는 데 필요한 장소와 상태에 이르게 하는 데 직접 관련되는 원가와 자산을 해체, 제거하거나 부지를 복구하는 데 소요될 것으로 최초에 추정되는 원가로 구성되고 있습니다.
후속원가는 자산으로부터 발생하는 미래경제적효익이 유입될 가능성이 높으며, 자산의 원가를 신뢰성 있게 측정할 수 있는 경우 자산의 장부금액에 포함하거나 적절한 경우 별도의 자산으로 인식하고 있으며, 일상적인 수선ㆍ유지와 관련하여 발생하는 원가는 발생시점에 당기손익으로 인식하고 있습니다.
유형자산 중 토지에 대해서는 감가상각을 하지 않으며, 토지를 제외한 유형자산은 아래의 내용연수와 감가상각방법을 적용하여 감가상각하고 있습니다.
| 구 분 | 내 용 연 수 | 감가상각방법 |
|---|---|---|
| 건물 | 40년 | 정액법 |
| 차량운반구 | 5년 | 정액법 |
| 공구와기구 | 5년 | 정액법 |
| 비품 | 5년 | 정액법 |
| 시설장치 | 5년 | 정액법 |
| 금형 | 5년 | 정액법 |
유형자산을 구성하는 일부의 원가가 당해 유형자산의 전체원가에 비교하여 유의적이라면 해당 유형자산을 감가상각할 때 그 부분은 별도로 구분하여 감가상각하고 있습니다.
유형자산의 감가상각방법, 잔존가치 및 내용연수는 매 보고기간말에 재검토하고 있으며, 이를 변경하는 것이 적절하다고 판단되는 경우 회계추정의 변경으로 회계처리하고 있습니다.
유형자산의 장부금액은 처분하는 때, 사용이나 처분을 통하여 미래경제적효익이 기대되지 않을 때 제거하고 있으며 제거로 인하여 발생하는 손익은 자산을 제거할 때 당기손익으로 인식하고 있습니다.
(9) 무형자산
연결회사는 자산에서 발생하는 미래경제적효익이 기업에 유입될 가능성이 높고 자산의 원가를 신뢰성 있게 측정할 수 있는 경우에 무형자산으로 인식하고 있으며, 최초 인식 후에 무형자산은 원가에서 상각누계액과 손상차손누계액을 차감한 금액을 장부금액으로 하고 있습니다.
1) 개별취득
개별 취득하는 무형자산의 원가는 구입가격(매입할인과 리베이트를 차감하고 수입관세와 환급받을 수 없는 제세금을 포함)과 자산을 의도한 목적에 사용할 수 있도록 준비하는 데 직접 관련되는 원가로 구성되고 있습니다.
2) 영업권
사업결합과 관련하여 이전대가, 피취득자에 대한 비지배지분의 금액 및 단계적으로 이루어지는 사업결합의 경우 연결회사가 이전에 보유하고 있던 피취득자에 대한 지분의 취득일의 공정가치의 합계금액이 취득일의 식별가능한 취득 자산과 인수 부채의 순액을 초과하는 경우 그 초과금액을 영업권으로 인식하고 있습니다.
3) 사업결합으로 인한 취득
사업결합으로 취득하는 영업권과 분리하여 인식하는 무형자산의 취득원가는 취득일의 공정가치로 측정하고 있습니다.
4) 내부적으로 창출한 무형자산
연구(또는 내부 프로젝트의 연구단계)에서 발생한 지출은 발생시점에 비용으로 인식하고 있으며, 무형자산을 사용하거나 판매하기 위해 그 자산을 완성할 수 있는 기술적 실현가능성,무형자산을 완성하여 사용하거나 판매하려는 기업의 의도, 무형자산을 사용하거나 판매할 수 있는 기업의 능력, 무형자산이 미래경제적효익을 창출하는 방법, 무형자산의 개발을 완료하고 그것을 판매하거나 사용하는 데 필요한 기술적, 재정적 자원 등의 입수가능성, 개발과정에서 발생한 무형자산 관련 지출을 신뢰성 있게 측정할 수 있는 기업의 능력을 모두 제시할 수 있는 경우에만 개발활동(또는 내부 프로젝트의 개발단계)에서 발생한 무형자산을 인식하고 있습니다. 내부적으로 창출한 무형자산의 원가는 무형자산의 인식기준을 최초로 충족시킨 이후에 발생한 지출금액의 합으로 하며 그 자산의 창출, 제조 및 경영자가 의도하는 방식으로 운영될 수 있게 준비하는 데 필요한 직접 관련된 모든 원가를 포함하고 있습니다. 내부적으로 창출한 영업권은 자산으로 인식하지 아니하고 있습니다.
5) 내용연수 및 상각
내용연수가 유한한 무형자산의 경우 상각대상금액은 자산이 사용가능한 때부터 내용연수동안 정액법으로 배분하고 있습니다. 상각대상금액은 잔존가치를 차감하여 결정하고 있으며, 잔존가치는 내용연수 종료 시점에 제 3자가 자산을 구입하기로 한 약정이 있거나, 무형자산의 활성시장이 있어 잔존가치를 그 활성시장에 기초하여 결정할 수 있고 그러한 활성시장이 내용연수 종료 시점에 존재할 가능성이 높은 경우를 제외하고는 영(0)으로 하고 있습니다. 내용연수가 유한한 무형자산의 상각기간과 상각방법은 매 보고기간말에 재검토하고 있으며 이를 변경하는 것이 적절하다고 판단되는 경우 회계추정의 변경으로 회계처리하고 있습니다.
내용연수가 비한정인 무형자산은 상각하지 아니하며, 매 보고기간말 혹은 손상을 시사하는 징후가 있을 때 회수가능액과 장부금액을 비교하여 손상검사를 수행하고 있습니다. 무형자산의 내용연수가 비한정이라는 평가를 계속하여 정당화하는지를 매 보고기간말에 재검토하여 적절하지 않은 경우 회계추정의 변경으로 처리하고 있습니다.
무형자산은 아래의 내용연수와 상각방법을 적용하고 있습니다.
| 구 분 | 내 용 연 수 | 상각방법 |
|---|---|---|
| 소프트웨어 | 5년 | 정액법 |
| 산업재산권 | 5년 | 정액법 |
6) 무형자산의 제거
무형자산은 처분하는 때, 사용이나 처분으로부터 미래경제적효익이 기대되지 않을 때 재무상태표에서 제거하며 무형자산의 제거로 인하여 발생하는 이익이나 손실은 순매각가액과 장부금액의 차이로 결정하고 자산을 제거할 때 당기손익으로 인식하고있습니다.
(10) 정부보조금
연결회사는 정부보조금에 부수되는 조건의 준수와 보조금 수취에 대한 합리적인 확신이 있을 경우에만 정부보조금을 인식하고 있으며 시장이자율보다 낮은 이자율의 정부대여금의 효익은 정부보조금으로 처리하고 있습니다.
수익관련정부보조금은 정부보조금으로 보전하려 하는 관련원가와 대응시키기 위해 필요한 기간에 걸쳐 체계적인 기준에 따라 정부보조금을 수익으로 인식하며, 자산관련정부보조금은 자산의 장부금액을 결정할 때 차감하여 표시하고 감가상각자산의 내용연수에 걸쳐 감가상각비를 감소시키는 방식으로 당기손익으로 인식하고 있습니다.
이미 발생한 비용이나 손실에 대한 보전 또는 향후의 관련원가 없이 연결회사에 제공되는즉각적인 금융지원으로 수취하는 정부보조금은 정부보조금을 수취할 권리가 발생하는 기간에 수익으로 인식하며, 비화폐성자산을 정부보조금으로 수취하는 경우 비화폐성자산의 공정가치를 평가하여 보조금과 자산 모두를 그 공정가치로 회계처리하고있습니다. 상환의무가 발생하게 된 정부보조금은 회계추정의 변경으로 회계처리하고 있습니다.
(11) 리스
리스는 리스제공자가 대가와 교환하여 식별되는 자산의 사용 통제권을 일정기간 동안 리스이용자에게 이전하는 계약입니다. 연결회사는 계약의 약정시점에, 계약 자체가 리스인지, 계약이 리스를 포함하는지를 판단합니다.
리스이용자 및 리스제공자는 리스계약이나 리스를 포함하는 계약에서 계약의 각 리스요소를 리스가 아닌 요소(이하'비리스요소'라고 함)와 분리하여 리스로 회계처리합니다. 다만, 연결회사는 리스이용자로서의 회계처리에서 실무적 간편법을 적용하여 비리스요소를 리스요소와 분리하지 않고 각 리스요소와 관련 비리스요소를 하나의 리스요소로 회계처리합니다.
연결회사는 리스개시일에 기초자산을 사용할 권리를 나타내는 사용권자산과 리스료를 지급할 의무를 나타내는 리스부채를 인식합니다. 다만 연결회사는 단기리스와 소액기초자산리스에 대하여 리스이용자의 인식, 측정 및 표시 규정을 적용하지 않는 예외규정을선택하였습니다.
사용권자산은 리스개시일에 원가로 측정하고, 후속적으로 원가에서 감가상각누계액과 손상차손누계액을 차감하고, 리스부채의 재측정에 따른 조정을 반영하여 측정합니다. 또한 사용권자산은 리스개시일부터 사용권자산의 내용연수 종료일과 리스기간종료일 중 이른 날까지 감가상각합니다.
(12) 충당부채
충당부채는 과거사건의 결과로 현재의무가 존재하고, 당해 의무를 이행하기 위하여 경제적효익을 갖는 자원이 유출될 가능성이 높으며 당해 의무의 이행에 소요되는 금액을 신뢰성 있게 추정할 수 있는 경우에 인식하고 있습니다.
충당부채로 인식하는 금액은 현재의무를 보고기간말에 이행하기 위하여 소요되는 지출에 대한 최선의 추정치로서 최선의 추정치를 구할 때에는 관련된 사건과 상황에 대한 불가피한 위험과 불확실성을 고려하고 있습니다. 화폐의 시간가치 효과가 중요한 경우 충당부채는 의무를 이행하기 위하여 예상되는 지출액의 현재가치로 평가하고 있으며 할인율은 부채의 고유한 위험과 화폐의 시간가치에 대한 현행 시장의 평가를 반영한 세전 이율이며 이 할인율에 반영되는 위험에는 미래 현금흐름을 추정할 때 고려된 위험은 반영하지 아니하고 있습니다. 현재의무를 이행하기 위하여 소요되는 지출 금액에 영향을 미치는 미래사건이 발생할 것이라는 충분하고 객관적인 증거가 있는 경우에는 그러한 미래사건을 감안하여 충당부채 금액을 추정하고 있으며, 자산의 예상처분이익은 충당부채를 측정하는 데 고려하지 아니하고 있습니다.
충당부채를 결제하기 위하여 필요한 지출액의 일부 또는 전부를 제 3자가 변제할 것이 예상되는 경우 연결회사가 의무를 이행한다면 변제를 받을 것이 거의 확실하게 되는 때에 한하여 변제금액을 인식하고 별도의 자산으로 회계처리하고 있으며 자산으로 인식하는 금액은 관련 충당부채 금액을 초과할 수 없습니다.
매 보고기간말마다 충당부채의 잔액을 검토하고, 보고기간말 현재 최선의 추정치를 반영하여 조정하며 의무이행을 위하여 경제적효익을 갖는 자원이 유출될 가능성이 더 이상 높지 아니한 경우에는 관련 충당부채를 환입하고 있습니다. 충당부채는 최초인식과 관련있는 지출에만 사용하고 있습니다.
(13) 주식기준보상
주식기준보상거래에서 제공받는 재화나 용역은 그 재화나 용역을 제공받는 날에 인식하고 있습니다. 주식결제형 주식기준보상거래로 재화나 용역을 제공받는 경우에는그에 상응한 자본의 증가를 인식하고, 현금결제형 주식기준보상거래로 재화나 용역을 제공받는 경우에는 그에 상응한 부채의 증가를 인식하고 있으며, 주식기준보상거래에서 제공받는 재화나 용역이 자산의 인식요건을 충족하지 못하는 경우에는 비용으로 인식하고 있습니다.
1) 주식결제형 주식기준보상거래
연결회사가 재화나 용역을 제공받는 대가로 자신의 지분상품(주식 또는 주식선택권 등)을부여하는 주식기준보상거래 혹은 재화나 용역을 제공받지만 이를 제공한 자에게 주식기준보상거래를 결제할 의무가 없는 주식기준보상거래에 대하여, 제공받는 재화나용역과 그에 상응하는 자본의 증가를 제공받는 재화나 용역의 공정가치로 직접 측정하며, 제공받는 재화나 용역의 공정가치를 신뢰성 있게 추정할 수 없다면 제공받는 재화나 용역과 그에 상응하는 자본의 증가는 부여한 지분상품의 공정가치에 기초하여 간접 측정하고 있습니다. 특정기간의 용역을 제공하여야 부여된 지분상품이 가득되는 경우 지분상품의 대가에 해당하는 용역을 미래 가득기간에 제공받는 것으로 보아 당해 용역은 가득기간에 배분하여 인식하며 그에 상응하여 자본의 증가를 인식하고 있습니다.
시장조건이 아닌 가득조건은 거래금액 측정시 포함되는 지분상품의 수량을 조정할 때 고려하여 부여한 지분상품의 대가로 제공받는 재화나 용역에 대해 인식하는 금액이 궁극적으로 가득되는 지분상품의 수량에 기초하여 결정될 수 있도록 하고 있으며 후속적인 정보에 비추어 볼 때 미래에 가득될 것으로 예상되는 지분상품의 수량이 직전 추정치와 다르다면 당해 추정치를 변경하여 가득일에는 궁극적으로 가득된 지분상품의 수량과 일치하도록 당해 추정치를 변경하고 있습니다. 목표주가와 같은 시장조건은 부여한 지분상품의 공정가치를 추정할 때 고려하고 있습니다.
지정된 가득조건(시장조건 제외)이 충족되지 않아 지분상품이 가득되지 못하는 경우를 제외하고는 지분상품을 부여한 당시의 조건을 변경하는지, 부여한 지분상품을 취소하거나 중도청산하는지 여부와 관계없이 제공받는 근무용역은 최소한 지분상품의 부여일당시의 공정가치에 따라 인식하고 있으며 주식기준보상약정의 총공정가치를 증가시키거나 종업원에게 유리하게 조건을 변경하는 경우에는 추가로 조건변경의 효과를 인식하고 있습니다.
부여한 지분상품이 가득기간 중에 취소되거나 중도청산되는 경우에는 취소나 중도청산으로 인해 부여한 지분상품이 일찍 가득된 것으로 보아 취소나 중도청산이 없다면 잔여가득기간에 제공받을 용역에 대해 인식될 금액을 즉시 인식하며, 취소나 중도청산시 종업원 등에게 지급하는 금액은 자기지분상품의 재매입으로 보아 자본에서 차감하고 있습니다.
2) 현금결제형 주식기준보상거래
연결회사가 재화나 용역을 제공받는 대가로 연결회사의 지분상품(주식 또는 주식선택권 등)의가격(또는 가치)에 기초한 금액만큼 현금이나 그 밖의 자산을 지급해야 하는 부채를 재화나 용역의 공급자에게 부담하는 주식기준보상거래에 대하여 제공받는 재화나 용역과 그 대가로 부담하는 부채를 부채의 공정가치로 측정하고 부채가 결제될 때까지 매 보고기간말과 결제일에 부채의 공정가치를 재측정하고 공정가치의 변동액은 당기손익으로 인식하고 있으며, 종업원에게서 제공받는 근무용역과 그 대가로 부담하는 부채는 근무용역을 제공받는 기간에 인식하고 있습니다.
(14) 수익
연결회사는 기업회계기준서 제1115호 '고객과의 계약에서 생기는 수익'의 적용범위에 포함되는 고객과의 모든 계약에 5단계 수익인식모형(① 계약 식별 → ② 수행의무 식별 → ③ 거래가격 산정 → ④ 거래가격을 수행의무에 배분 →⑤ 수행의무 이행 시 수익 인식)을 적용하여 수익을 인식합니다.
1) 수행의무의 식별
연결회사는 유아용품 등을 제조하여 고객에게 판매하는 사업을 영위하고 있습니다. 연결회사는 ① 고객이 재화나 용역 그 자체에서 효익을 얻거나 고객이 쉽게 구할 수 있는 다른 자원과 함께하여 그 재화나 용역에서 효익을 얻을 수 있고, ② 고객에게 재화나 용역을 이전하기로 하는 약속을 계약 내의 다른 약속과 별도로 식별해 낼 수 있다면 구별되는 별도의 수행의무로 식별합니다. 고객과의 계약에서 제품의 공급과 배송용역과 같이 구별되는 수행의무를 식별하여 수익을 인식하였습니다. 또한, 각각의 수행의무를 한 시점에 이행하는지 기간에 걸쳐 이행하는지에 따라 연결회사의 수익인식 시점이 변경되었습니다.
2) 한 시점에 이행하는 수행의무
재화의 판매에 따른 수익은 자산을 이전하여 수행의무를 이행할 때 인식하고 있으며,한 시점에 이행하는 수행의무는 제품이 고객에게 이전되고 고객이 구매를 확정하는 시점에 이행되고 있습니다. 연결회사는 수행의무를 이행하는 시점을 판단하기 위한 통제 이전의 지표로 다음을 참고하고 있습니다.
① 기업은 자산에 대해 현재 지급청구권이 있다
② 고객에게 자산의 법적 소유권이 있다
③ 기업이 자산의 물리적 점유를 이전하였다
④ 자산의 소유에 따른 유의적인 위험과 보상이 고객에게 있다
⑤ 고객이 자산을 인수하였다
3) 기간에 걸쳐 이행하는 수행의무
연결회사는 고객에게 연결회사의 제품을 고객에게 배송용역을 제공하는 계약을 체결하였습니다. 연결회사는 다음 기준 중 어느 하나를 충족하는 경우 재화나 용역에 대한 통제를 기간에 걸쳐 이전하므로, 기간에 걸쳐 수행의무를 이행하는 것으로 보아 기간에 걸쳐 수익을 인식하고 있습니다.
① 고객은 기업이 수행하는 대로 기업의 수행에서 제공하는 효익을 동시에 얻고 소비한다
② 기업이 수행하여 만들어지거나 가치가 높아지는 대로 고객이 통제하는 자산을 연결회사가 만들거나 그 자산 가치를 높인다
③ 기업이 수행하여 만든 자산이 기업 자체에는 대체 용도가 없고 지금까지 수행을 완료한 부분에 대해 집행 가능한 지급청구권이 기업에 있다
4) 변동대가
연결회사는 계약에서 약속한 대가에 변동금액이 포함된 경우에 고객에게 약속한 재화나 용역을 이전하고 그 대가로 받을 권리를 갖게 될 금액을 추정하고 있습니다. 대가는 할인(discount), 리베이트, 환불, 공제(credits), 가격할인(price concessions), 장려금(incentives), 성과보너스, 위약금이나 그 밖의 비슷한 항목 때문에 변동될 수 있습니다. 연결회사가 대가를 받을 권리가 미래 사건의 발생 여부에 달려있는 경우에도 약속한 대가는 변동될 수 있습니다. 예를 들면 반품권을 부여하여 제품을 판매하거나 특정 단계에 도달해야 고정금액의 성과보너스를 주기로 약속한 경우에 대가는 변동될 수 있습니다.
5) 유의적인 금융요소
연결회사는 거래가격을 산정할 때, 계약 당사자들 간에 합의한 지급시기 때문에 고객에게재화나 용역을 이전하면서 유의적인 금융 효익이 고객이나 기업에 제공되는 경우에는 화폐의 시간가치가 미치는 영향을 반영하여 약속된 대가를 조정하고 있습니다.
6) 거래가격의 배분
연결회사는 하나의 계약에서 식별된 여러 수행의무에 상대적 개별 판매가격을 기초로 거래가격을 배분합니다. 연결회사는 각 수행의무의 개별 판매가격을 추정하기 위하여 '시장평가 조정 접근법'을 사용합니다.
7) 고객충성제도
연결회사는 고객충성제도를 운영하고 있습니다. 고객은 구매를 통해 누적된 포인트를 미래 구매 시 할인에 사용할 수 있습니다. 보상점수로부터의 수익은 포인트가 상환되거나 소멸될 때 인식합니다. 또한 계약부채는 포인트가 상환되거나 소멸될 때까지 인식합니다. 포인트는 고객이 계약을 체결하지 않았다면 받을 수 없었던 중요한 권리를 고객에게 제공합니다. 따라서, 고객에게 포인트를 제공하는 약속은 별도의 수행의무입니다. 수행의무별 거래가격은 상품과 포인트의 개별 판매가격을 기준으로 배분됩니다. 경영진은 포인트의 개별 판매가격을 포인트가 상환될 때 부여되는 할인과 과거경험에 기초한 상환 가능성에 근거하여 추정합니다.
8) 계약자산 및 계약부채
계약자산은 기업이 고객에게 이전한 재화나 용역에 대하여 그 대가를 받을 기업의 권리이며, 계약부채는 기업이 고객에게서 이미 받은 대가(또는 지급기일이 된 대가)에 상응하여 고객에게 재화나 용역을 이전하여야 하는 기업의 의무로 정의됩니다. 연결회사는 한 계약에서 발생한 계약자산과 계약부채는 상계하여 순액으로 재무상태표에 표시하고 있습니다.
(15) 종업원급여
1) 단기종업원급여
단기종업원급여는 임금, 사회보장분담금, 종업원이 관련 근무용역을 제공하는 회계기간의 말부터 12개월 이내에 결제될 유급연차휴가 또는 유급병가 등과 같은 단기유급휴가, 종업원이 관련 근무용역을 제공하는 회계기간의 말부터 12개월 이내에 지급될 이익분배금과 상여금 및 현직종업원을 위한 비화폐성급여를 포함하고 있습니다. 종업원이 회계기간에 근무용역을 제공한 때 근무용역과 교환하여 지급이 예상되는 단기종업원급여의 할인되지 않은 금액을 이미 지급한 금액을 차감한 후 미지급비용으로 인식하며, 이미 지급한 금액이 해당 급여의 할인되지 않은 금액보다 많은 경우에는 그 초과액 때문에 미래 지급액이 감소하거나 현금이 환급되는 만큼을 선급비용으로 인식하며, 다른 한국채택국제회계기준서에 따라 해당 급여를 자산의 원가에 포함하는 경우를 제외하고는 비용으로 인식하고 있습니다.
2) 퇴직급여
확정기여제도는 연결회사가 별개의 실체(기금)에 고정 기여금을 납부하고 연결회사의 법적의무나 의제의무는 기금에 출연하기로 약정한 금액으로 한정되며 종업원이 받을 퇴직급여액은 연결회사와 종업원이 퇴직급여제도나 보험, 연결회사에 출연하는 기여금과 그 기여금에서 발생하는 투자수익에 따라 결정되는 퇴직급여제도입니다. 일정기간 종업원이 근무용역을 제공하였을 때 그 근무용역과 교환하여 확정기여제도에 납부해야 할 기여금은 이미 납부한 기여금을 차감한 후 미지급비용으로 인식하고, 이미 납부한 기여금이 보고기간말 이전에 제공된 근무용역에 대해 납부하여야 하는 기여금을 초과하는 경우에는 초과 기여금 때문에 미래 지급액이 감소하거나 현금이 환급되는 만큼을 선급비용으로 인식하며, 다른 한국채택국제회계기준서에 따라 해당 기여금을 자산의 원가에 포함하는 경우를 제외하고는 비용으로 인식하고 있습니다.
3) 기타장기종업원급여
기타장기종업원급여는 종업원이 관련 근무용역을 제공한 회계기간의 말부터 12개월이 지난 후에 결제될 것으로 예상되는 장기유급휴가, 그 밖의 장기근속급여, 장기장애급여, 이익분배금과 상여금, 이연보상을 포함하고 있습니다. 기타장기종업원급여와 관련하여 부채로 인식할 금액은 보고기간말 현재 확정급여채무의 현재가치에서 관련 확정급여채무를 직접 결제하는 데 사용할 수 있는 사외적립자산의 보고기간말 현재 공정가치를 차감하여 인식하고 있습니다.
4) 해고급여
해고급여에 대한 부채와 비용은 연결회사가 해고급여의 제안을 더 이상 철회할 수 없을 때와 기업회계기준서 제1037호 '충당부채, 우발부채, 우발자산'의 적용범위에 포함되고 해고급여의 지급을 수반하는 구조조정에 대한 원가를 인식할 때 중 이른 날에인식합니다.
(16) 자산손상
재고자산, 기업회계기준서 제1115호 '고객과의 계약에서 생기는 수익'에 따라 인식하는 계약자산과 계약을 체결하거나 이행하기 위해 든 원가에서 생기는 자산, 이연법인세자산, 종업원급여에서 생기는 자산,금융자산, 공정가치로 측정되는 투자부동산, 매각예정비유동자산 등을 제외한 모든 자산의 손상은 아래의 방법으로 손상차손을 인식하고 있습니다.
내용연수가 비한정인 무형자산, 아직 사용할 수 없는 무형자산 및 사업결합으로 취득한 영업권에 대해서는 자산손상을 시사하는 징후가 있는지에 관계없이 매년 회수가능액을 추정하고 장부금액과 비교하여 손상검사를 하고 있으며, 그 외의 자산은 매 보고기간말마다 자산손상을 시사하는 징후가 있는지를 검토하고 그러한 징후가 있다면 개별 자산별로 회수가능액을 추정하며 개별 자산의 회수가능액을 추정할 수 없다면 그 자산이 속하는 현금창출단위의 회수가능액을 추정하고 있습니다.
자산의 회수가능액은 자산 또는 현금창출단위의 순공정가치와 사용가치 중 더 많은 금액으로 측정하고 있습니다. 자산의 회수가능액이 장부금액에 미달하는 경우 자산의 장부금액을 회수가능액으로 감소시키며, 손상차손은 즉시 당기손익으로 인식하고 있습니다.
손상검사 목적상 사업결합으로 취득한 영업권은 사업결합으로 인한 시너지효과의 혜택을 받게 될 것으로 기대되는 각 현금창출단위에 취득일로부터 배분되고 있습니다. 영업권이 배분된 현금창출단위에 대해서는 매년 그리고 손상을 시사하는 징후가 있을 때마다 영업권을 포함한 현금창출단위의 장부금액과 회수가능액을 비교하여 손상검사를 하고 있으며 현금창출단위의 장부금액이 회수가능액을 초과하는 경우에는 손상차손을 인식하고 있습니다. 현금창출단위의 손상차손은 우선 현금창출단위에 배분된 영업권의 장부금액을 감소시키고 그 다음 현금창출단위에 속하는 다른 자산에 각각 장부금액에 비례하여 배분하고 있습니다.
매 보고기간말마다 영업권을 제외한 자산에 대해 과거에 인식한 손상차손이 더 이상 존재하지 않거나 감소된 것을 시사하는 징후가 있는지를 검토하여 징후가 있는 경우 당해 자산의 회수가능액을 추정하고 있으며 직전 손상차손의 인식시점 이후 회수가능액을 결정하는 데 사용된 추정치에 변화가 있는 경우에만 환입하고 있습니다. 손상차손환입으로 증가된 장부금액은 과거에 손상차손을 인식하기 전 장부금액의 감가상각 또는 상각 후 잔액을 초과할 수 없으며, 손상차손환입은 즉시 당기손익으로 인식하고 있습니다. 현금창출단위의 손상차손환입은 현금창출단위를 구성하는 자산들(영업권 제외)의 장부금액에 비례하여 배분하며, 영업권에 대해 인식한 손상차손은 후속기간에 환입하지 않고 있습니다.
(17) 법인세
법인세비용(수익)은 당기법인세비용(수익)과 이연법인세비용(수익)으로 구성되고 있습니다. 당기법인세와 이연법인세는 수익이나 비용으로 인식하여 당기손익에 포함하고 있으며, 동일 회계기간 또는 다른 회계기간에 자본에 직접 가감되는 항목과 관련된 당기법인세와 이연법인세는 자본에 직접 가감하고 있습니다.
1) 당기법인세
당기법인세는 회계기간의 과세소득(세무상결손금)에 대하여 납부할(환급받을) 법인세액이며, 과세소득(세무상결손금)은 과세당국이 제정한 법규에 따라 납부할(환급받을) 법인세를 산출하는 대상이 되는 회계기간의 이익(손실)으로서 포괄손익계산서의 손익과는 차이가 있습니다.
당기 및 과거기간의 당기법인세부채(자산)는 보고기간말까지 제정되었거나 실질적으로 제정된 세율(및 세법)을 사용하여, 과세당국에 납부할(과세당국으로부터 환급받을) 것으로 예상되는 금액으로 측정하고 있습니다.
당기 및 과거기간의 당기법인세 중 납부되지 않은 부분을 부채로 인식하며, 과거기간에 납부하여야 할 금액을 초과해서 납부하였다면 그 초과금액은 자산으로 인식하고 있으며, 과거 회계기간의 당기법인세에 대하여 소급공제가 가능한 세무상결손금과 관련된 혜택은 자산으로 인식하고 있습니다.
2) 이연법인세
연결회사는 모든 가산할 일시적차이에 대하여 이연법인세부채를 인식하고 있습니다. 다만 영업권을 최초로 인식하는 경우와 자산·부채가 최초로 인식되는 거래가 사업결합거래가 아니고 거래 당시의 회계이익이나 과세소득(세무상결손금)에 영향을 미치지 아니하는 거래인 경우 및 종속기업·지점 및 관계기업에 대한 투자자산 그리고 공동약정투자지분과 관련된 가산할 일시적차이에 대하여 지배기업· 투자자 또는 참여자가 일시적차이의 소멸시점을 통제할 수 있고 예측가능한 미래에 일시적차이가 소멸하지 않을 가능성이 높을 경우에 발생하는 이연법인세부채는 인식하지 아니하고 있습니다.
연결회사는 차감할 일시적차이가 사용될 수 있는 과세소득의 발생가능성이 높은 경우에 모든 차감할 일시적차이에 대하여 이연법인세자산을 인식하고 있습니다. 다만, 자산이나 부채를 최초로 인식할 때 발생하는 거래로 사업결합거래가 아니고 거래 당시 회계이익이나 과세소득(세무상결손금)에 영향을 미치지 않는 거래인 경우 및 종속기업·지점 및 관계기업에 대한 투자자산 그리고 공동약정투자지분과 관련된 모든 차감할 일시적차이에 대하여 일시적차이가 예측가능한 미래에 소멸할 가능성이 높지않거나 일시적차이가 사용될 수 있는 과세소득이 발생할 가능성이 높지 않은 경우에는 이연법인세자산은 인식하지 아니하고 있습니다. 미사용 세무상결손금과 세액공제가 사용될 수 있는 미래 과세소득의 발생가능성이 높은 경우 그 범위 안에서 이월된 미사용 세무상결손금과 세액공제에 대하여 이연법인세자산을 인식하고 있습니다.
이연법인세자산의 장부금액은 매 보고기간말에 검토하며 이연법인세자산의 일부 또는 전부에 대한 혜택이 사용되기에 충분한 과세소득이 발생할 가능성이 더 이상 높지않다면 이연법인세자산의 장부금액을 감액시키고 감액된 금액은 사용되기에 충분한 과세소득이 발생할 가능성이 높아지면 그 범위 내에서 환입하고 있습니다.
이연법인세 자산과 부채는 보고기간말까지 제정되었거나 실질적으로 제정된 세율(및세법)에 근거하여 당해 자산이 실현되거나 부채가 결제될 회계기간에 적용될 것으로 기대되는 세율을 사용하여 측정하고 있으며 이연법인세 자산과 부채는 할인하지 아니하고 있습니다.
연결회사가 당기법인세자산과 당기법인세부채를 상계할 수 있는 법적으로 집행가능한 권리를 가지고 있으며 동일한 과세당국에 의해서 부과되는 법인세와 관련하여 이연법인세자산과 이연법인세부채를 상계하고 있습니다.
(18) 주당이익
연결회사는 기본주당이익과 희석주당이익을 보통주에 귀속되는 계속영업손익과 당기순손익에 대하여 계산하고 포괄손익계산서에 표시하고 있습니다.
기본주당이익은 보통주에 귀속되는 특정 회계기간의 당기순손익을 그 기간에 유통된보통주식수를 가중평균한 주식수로 나누어 계산하고 있으며, 보통주에 귀속되는 금액은 계속영업손익과 당기순손익 각각의 금액에서 자본으로 분류된 우선주에 대한 세후우선주 배당금,우선주 상환시 발생한 차액 및 유사한 효과를 조정한 금액입니다.
희석주당이익은 모든 희석효과가 있는 잠재적보통주의 영향을 고려하여 보통주에 귀속되는 당기순손익 및 가중평균유통보통주식수를 조정하여 계산하고 있습니다.
(19) 매각예정비유동자산
비유동자산(또는 처분자산집단)의 장부금액이 계속사용이 아닌 매각거래를 통하여 주로 회수될 것이라면 이를 매각예정으로 분류하며 순공정가치와 장부금액 중 작은 금액으로 측정하고, 그 자산은 감가상각(또는 상각)하지 아니하고 있습니다. 매각예정으로 분류된 비유동자산은 다른 자산과 별도로 재무상태표에 표시하며 매각예정으로 분류된 처분자산집단에 포함되는 자산이나 부채는 다른 자산이나 부채와 별도로 재무상태표에 표시하고 있습니다.
(20) 중단영업
연결회사는 별도의 주요 사업계열이나 영업지역을 처분하거나 매각예정으로 분류되는 경우 등을 중단영업으로 분류하고 있으며, 중단영업이 있는 경우 세후 중단영업손익 등을 포괄손익계산서에 단일금액으로 표시하고 중단영업의 수익, 비용 및 세전 중단영업손익 등을 공시하고 있습니다. 또한, 연결회사는 비교표시되는 과거 연결재무제표에 중단영업관련 공시사항을 다시 표시하고 있습니다.
(21) 오류수정
특정기간에 미치는 오류의 영향이나 오류의 누적효과를 실무적으로 결정할 수 없는 경우를 제외하고는 중요한 전기오류가 발견된 이후 최초로 발행을 승인하는 연결재무제표에 오류가 발생한 과거기간의 연결재무제표가 비교표시되는 경우 그 재무정보를 재작성하고 있습니다.
(22) 중요한 회계추정 및 판단
연결재무제표의 작성시 경영진은 회계정책의 적용이나 자산, 부채, 수익, 비용의 장부금액 및 우발부채의 금액에 영향을 미칠 수 있는 판단과 추정 및 가정을 하여야 합니다.보고기간말 현재 이러한 추정치는 경영진의 최선의 판단 및 추정에 따라 이루어지고 있으며 추정치와 추정에 대한 가정은 지속적으로 검토되고 있으나 향후 경영환경의 변화에 따라 실제 결과와는 중요하게 다를 수도 있습니다.
회계정책을 적용하는 과정에서 추정에 관련된 공시와는 별도로 연결재무제표에 인식되는금액에 가장 유의적인 영향을 미칠 수 있는 경영진이 내린 판단 및 미래에 대한 가정과 보고기간말의 추정 불확실성과 관련하여 다음 회계연도에 자산과 부채의 장부금액에 대한 중요한 조정을 유발할 수 있는 유의적인 위험을 내포하고 있는 사항은다음과 같습니다.
1) 금융상품의 공정가치
금융상품에 대한 활성시장이 없는 경우 공정가치는 평가기법을 사용하여 결정하고 있으며, 평가기법은 합리적인 판단력과 거래의사가 있는 독립된 당사자 사이의 최근 거래를 사용하는 방법, 실질적으로 동일한 다른 금융상품의 현행 공정가치를 참조하는 방법, 현금흐름할인방법과 옵션가격결정모형 등을 포함하고 있습니다. 연결회사는 주기적으로 평가기법을 조정하며 관측가능한 현행 시장거래의 가격을 사용하거나 관측가능한 시장자료에기초하여 그 타당성을 검토하는 등 다양한 평가기법의 선택과 가정에 대한 판단을 하고 있습니다.
2) 수익인식
연결회사는 고객에게 제품 판매 후 고객이 반품할 것으로 예상되는 제품에 대하여 환불부채와 회수할 재화에대한 권리를 인식하고 있습니다. 판매시점에 포트폴리오 수준에서 누적된 경험에 기초하여 기댓값 방법으로 반품율을 예측하고 있으며, 연결회사의 수익은 예측된 반품율의 변동에 영향을 받습니다.
3) 이연법인세
이연법인세 자산과 부채는 보고기간말까지 제정되었거나 실질적으로 제정된 세율(및세법)에 근거하여 당해 자산이 실현되거나 부채가 결제될 회계기간에 적용될 것으로 기대되는 세율을 사용하여 추정하고 있으며 이연법인세자산의 장부금액은 이연법인세자산의일부 또는 전부에 대한 혜택이 사용되기에 충분한 과세소득이 발생할 가능성이 높은 경우 최선의 추정치로 인식하고 있습니다. 이러한 추정치는 미래의 실제 법인세부담과 다를 수 있습니다.
3. 재무위험관리
(1) 재무위험관리요소
연결회사는 경영활동과 관련하여 신용위험, 유동성위험 및 시장위험 등 다양한 금융위험에 노출되어 있습니다. 연결회사는 금융위험이 경영에 미칠 수 있는 불리한 효과를 최소화하기 위해 노력하고 있습니다.
(2) 시장위험
1) 외환위험
당분기말과 전기말 현재 현재 연결회사의 통화별 주요 외화금융자산ㆍ부채의 내역은 다음과 같습니다.
| (단위 : USD, 원) |
| 구 분 | 화폐단위 | 당분기말 | 전기말 | ||
|---|---|---|---|---|---|
| 외화금액 | 원화금액 | 외화금액 | 원화금액 | ||
| 외화자산 | USD | 647,806.48 | 844,610,089 | 476,948.06 | 604,436,276 |
| JPY | - | - | 64,976.00 | 823,441 | |
한편, 당분기말과 전기말 현재 다른 모든 변수가 일정하고 각 외화에 대한 원화의 환율5% 변동시 연결회사의 세전손익에 미치는 영향은 다음과 같습니다.
| (단위 : 원) |
| 구 분 | 당분기 | 전기 | ||
|---|---|---|---|---|
| 상승시 | 하락시 | 상승시 | 하락시 | |
| USD | 42,230,504 | (42,230,504) | 30,221,814 | (30,221,814) |
| JPY | - | - | 41,172 | (41,172) |
2) 이자율 위험
당분기 및 전기 중 다른 모든 변수가 일정하고 이자율이 1% 변동시 연결회사의 세전손익에미치는 영향은 다음과 같습니다.
| (단위 : 원) |
| 구 분 | 당분기 | 전 기 |
|---|---|---|
| 상승시 | (21,794,365) | (39,182,167) |
| 하락시 | 21,794,365 | 39,182,167 |
(3) 신용위험
연결회사는 채무불이행으로 인한 재무적 손실을 경감시키기 위하여 신용도가 일정 수준 이상인 거래처와 거래하고, 충분한 담보 또는 지급보증을 수취하고 있습니다. 회사는 신용위험노출 및 거래처의 신용등급을 주기적으로 검토하여 거래처의 여신한도 및 담보수준을 재조정하는 등 신용위험을 관리하고 있습니다.
금융상품 종류별 신용위험의 최대 노출금액은 다음과 같습니다.
| (단위 : 원) |
| 구 분 | 당분기말 | 전기말 |
|---|---|---|
| 현금및현금성자산 (*) | 3,395,664,136 | 208,981,461 |
| 매출채권 및 기타채권 | 3,884,480,263 | 3,488,939,709 |
| 장기매출채권 및 기타채권 | 6,101,930 | 6,101,930 |
| 기타금융자산 | 3,655,356,000 | 617,320,000 |
| 장기기타금융자산 | 824,635,035 | 312,368,821 |
| 합 계 | 11,766,237,364 | 4,633,711,921 |
(*) 현금 시재액은 제외하였습니다.
(4) 유동성 위험
연결회사는 미래의 현금흐름을 예측하여 단기 및 중장기 자금조달 계획을 수립하여 유동성위험을 관리하고 있으며, 금융부채의 잔존계약 만기에 따른 만기분석내용은 다음과 같습니다.
| (당기말) | (단위 : 원) |
| 구 분 | 1년 미만 | 1~3년 | 3~5년 | 5년 초과 | 합 계 |
|---|---|---|---|---|---|
| 차입금 | 3,924,652,012 | 1,294,177,716 | 47,849,652 | 597,845,652 | 5,864,525,032 |
| 매입채무 및 기타채무 | 2,252,413,919 | - | - | - | 2,252,413,919 |
| 합 계 | 6,177,065,931 | 1,294,177,716 | 47,849,652 | 597,845,652 | 8,116,938,951 |
| (전기말) | (단위 : 원) |
| 구 분 | 1년 미만 | 1~3년 | 3~5년 | 5년 초과 | 합 계 |
|---|---|---|---|---|---|
| 차입금 | 4,653,792,961 | 1,325,805,357 | 582,995,760 | 186,998,640 | 6,749,592,718 |
| 매입채무 및 기타채무 | 1,484,851,750 | - | - | - | 1,484,851,750 |
| 합 계 | 6,138,644,711 | 1,325,805,357 | 582,995,760 | 186,998,640 | 8,234,444,468 |
(5) 자본위험관리
연결회사의 자본관리 정책은 투자자와 채권자, 시장의 신뢰 및 사업의 향후 발전을 위해 건전한 자본을 유지하는 것입니다. 경영진은 주주에 대한 배당의 수준과 자본수익률을 감독하고 있습니다. 연결회사의 자본구조는 차입금에서 현금및현금성자산을 차감한 순차입금과 자본으로 구성되며, 당분기말과 전기말 현재 연결회사가 자본으로 관리하고 있는 항목의 내역은 다음과 같습니다.
| (단위 : 원) |
| 구분 | 당분기말 | 전기말 |
| 차입금 총계 | 5,599,846,676 | 6,374,826,675 |
| 현금 및 현금성자산 | (3,395,711,136) | (209,028,461) |
| 순차입금 | 2,204,135,540 | 6,165,798,214 |
| 자본총계 | 15,894,488,486 | 8,060,473,779 |
| 총자본 | 18,098,624,026 | 14,226,271,993 |
| 순차입금자본비율 | 12.18% | 43.34% |
4. 공정가치 서열체계에 따른 구분
연결회사는 공정가치측정에 사용된 투입변수의 유의성을 반영하는 공정가치 서열체계에 따라 공정가치측정치를 분류하고 있으며, 공정가치 서열체계의 수준은 다음과 같습니다.
| 서열체계 | 투입변수의 유의성 |
|---|---|
| 수준1 | 측정일에 동일한 자산이나 부채에 대한 접근 가능한 활성시장의 조정되지 않은 공시가격 |
| 수준2 | 수준 1의 공시가격 이외에 자산이나 부채에 대해 직접적으로 또는 간접적으로 관측가능한 투입변수 |
| 수준3 | 자산이나 부채에 대한 관측가능하지 않은 투입변수 |
당분기말 및 전기말 현재 공정가치로 측정되거나 공정가치가 공시되는 자산의 공정가치 서열체계 구분은 다음과 같습니다.
| (당분기말) | (단위 : 원) |
| 구 분 | 수준 1 | 수준 2 | 수준 3 | 합 계 |
| 장기금융자산 : | ||||
| 당기손익-공정가치측정금융자산 | 24,746,060 | - | - | 24,746,060 |
| 기타포괄손익-공정가치측정금융자산 | - | - | 799,888,975 | 799,888,975 |
| 합계 | 24,746,060 | - | 799,888,975 | 824,635,035 |
| (전기말) | (단위 : 원) |
| 구 분 | 수준 1 | 수준 2 | 수준 3 | 합 계 |
| 장기금융자산 : | ||||
| 당기손익-공정가치측정금융자산 | 12,368,821 | - | - | 12,368,821 |
| 기타포괄손익-공정가치측정금융자산 | - | - | 300,000,000 | 300,000,000 |
| 합계 | 12,368,821 | - | 300,000,000 | 312,368,821 |
5. 범주별 금융상품
(1) 금융자산
당분기말과 전기말 현재 범주별 금융자산의 내역은 다음과 같습니다.
| (당분기말) | (단위 : 원) |
| 구 분 | 당기손익-공정가치 측정금융자산 |
기타포괄손익-공정가치 측정금융자산 |
상각후원가 측정금융자산 |
합 계 |
|---|---|---|---|---|
| 매출채권 | - | - | 2,972,946,277 | 2,972,946,277 |
| 미수금 | - | - | 899,517,548 | 899,517,548 |
| 단기대여금 | - | - | 655,356,000 | 655,356,000 |
| 장기금융상품 | 24,746,060 | 799,888,975 | - | 824,635,035 |
| 장기보증금 | - | - | 6,101,930 | 6,101,930 |
| 합 계 | 24,746,060 | 799,888,975 | 4,533,921,755 | 5,358,556,790 |
| (전기말) | (단위 : 원) |
| 구 분 | 당기손익-공정가치 측정금융자산 |
기타포괄손익-공정가치 측정금융자산 |
상각후원가 측정금융자산 |
합 계 |
|---|---|---|---|---|
| 매출채권 | - | - | 2,930,398,689 | 2,930,398,689 |
| 미수금 | - | - | 558,541,020 | 558,541,020 |
| 단기대여금 | - | - | 617,320,000 | 617,320,000 |
| 장기금융상품 | 12,368,821 | 300,000,000 | - | 312,368,821 |
| 장기보증금 | - | - | 6,101,930 | 6,101,930 |
| 합 계 | 12,368,821 | 300,000,000 | 4,112,361,639 | 4,424,730,460 |
(2) 금융부채
당기말과 전기말 현재 연결회사의 금융부채는 모두 상각후원가로 측정하는 금융부채로 분류하고 있습니다.
(3) 당분기 및 전분기의 금융상품 범주별 순손익의 현황은 다음과 같습니다.
| (단위 : 원) |
| 구 분 | 당분기 | 전분기 |
| 상각후원가측정금융자산 : | ||
| 이자수익 | 30,177,789 | 502,942 |
| 대손상각비환입 | (134,802,546) | - |
| 외환차손익 | 13,911,429 | 1,406,093 |
| 외화환산손익 | 83,623,912 | - |
| 당기손익-공정가치측정금융자산 : | ||
| 장기금융상품평가이익 | - | - |
| 장기금융상품처분손익 | - | 34,891 |
| 상각후원가측정금융부채 | ||
| 이자비용 | (73,919,135) | (25,685,327) |
| 합 계 | (81,008,551) | (23,741,401) |
6. 현금 및 현금성자산
당분기말과 전기말 현재 현금및현금성자산의 구성내역은 다음과 같습니다.
| (단위 : 원) |
| 구 분 | 당분기말 | 전기말 |
|---|---|---|
| 현금시재액 | 47,000 | 47,000 |
| 은행예금 등 | 3,395,664,136 | 208,981,461 |
| 합 계 | 3,395,711,136 | 209,028,461 |
7. 기타금융자산
(1) 당분기말과 전기말 현재 금융자산의 내역은 다음과 같습니다.
| (단위 : 원) |
| 구 분 | 당분기말 | 전기말 |
| 단기금융자산 : | ||
| 상각후원가측정기타금융자산 | 3,655,356,000 | 617,320,000 |
| 소계 | 3,655,356,000 | 617,320,000 |
| 장기금융자산 : | ||
| 당기손익-공정가치측정금융자산 | 24,746,060 | 12,368,821 |
| 기타포괄손익-공정가치측정금융자산 | 799,888,975 | 300,000,000 |
| 상각후원가측정기타금융자산 | - | 617,320,000 |
| 소계 | 824,635,035 | 312,368,821 |
| 합계 | 4,479,991,035 | 929,688,821 |
(2) 당분기말 및 전기말 현재 당기손익-공정가치측정금융자산의 내용은 다음과 같습니다.
| (단위 : 원) |
| 구 분 | 당분기말 | 전기말 |
| 장기금융자산 : | ||
| 저축성보험 | 24,746,060 | 12,368,821 |
| 합계 | 24,746,060 | 12,368,821 |
(3) 당기말 및 전기말 현재 기타포괄손익-공정가치측정금융자산의 내용은 다음과 같습니다.
| (단위 : 원) |
| 구 분 | 당분기말 | 전기말 |
| 장기금융자산 : | ||
| 지분증권 | 799,888,975 | 300,000,000 |
| 합계 | 799,888,975 | 300,000,000 |
(4) 당기말 및 전기말 현재 상각후원가측정기타금융자산의 내용은 다음과 같습니다.
| (단위 : 원) |
| 구 분 | 당기말 | 전기말 |
| 단기금융자산 : | ||
| 정기예적금 | 3,000,000,000 | - |
| 단기대여금 | 655,356,000 | 617,320,000 |
| 장기금융자산 : | ||
| 장기대여금 | - | - |
| 합계 | 3,655,356,000 | 617,320,000 |
8. 매출채권 및 기타채권
(1) 당분기말 및 전기말 현재 매출채권 및 기타채권의 상세내역은 다음과 같습니다.
| (단위 : 원) |
| 구 분 | 당분기말 | 전기말 | ||||
| 총액 | 손실충당금 | 장부금액 | 총액 | 손실충당금 | 장부금액 | |
| 매출채권 | 3,109,335,522 | (136,389,245) | 2,972,946,277 | 2,931,985,388 | (1,586,699) | 2,930,398,689 |
| 미수금 | 899,517,548 | - | 899,517,548 | 558,541,020 | - | 558,541,020 |
| 미수수익 | 12,016,438 | - | 12,016,438 | - | - | - |
| 장기보증금 | 6,101,930 | - | 6,101,930 | 6,101,930 | - | 6,101,930 |
| 합 계 | 4,026,971,438 | (136,389,245) | 3,890,582,193 | 3,496,628,338 | (1,586,699) | 3,495,041,639 |
(2) 당분기말 및 전기말 현재 매출채권에 대해 전체 기간 기대신용손실을 손실충당금으로 인식하는 간편법을 적용하고 있으며, 매출채권의 신용위험정보의 세부내용은 다음과 같습니다.
| (당분기말) | (단위 : 원) |
| 구 분 | 미 연 체 | 연체된 일수 | |||||
| 3개월 이내 | 4~6개월 | 6~9개월 | 9~12개월 | 1년 초과 채권 | 계 | ||
| 총장부금액 | 2,449,246,104 | 841,552,304 | 734,745,600 | - | - | 1,427,430 | 4,026,971,438 |
| 기대손실율 | - | 9.55% | 7.44% | - | - | 100.00% | - |
| 전체기간기대손실 | - | 80,330,210 | 54,631,543 | 62 | - | 1,427,430 | 136,389,245 |
| 순장부금액 | 2,449,246,104 | 761,222,094 | 680,114,057 | (62) | - | - | 3,890,582,193 |
| (전기말) | (단위 : 원) |
| 구 분 | 미 연 체 | 연체된 일수 | |||||
| 3개월 이내 | 4~6개월 | 6~9개월 | 9~12개월 | 1년 초과 채권 | 계 | ||
| 총장부금액 | 2,992,470,570 | 493,359,435 | 2,131,703 | 125,400 | 7,113,800 | 1,427,430 | 3,496,628,338 |
| 기대손실율 | - | 0.03% | 0.80% | - | 100.00% | - | |
| 전체기간기대손실 | - | 123,344 | 17,085 | 18,840 | - | 1,427,430 | 1,586,699 |
| 순장부금액 | 2,992,470,570 | 493,236,091 | 2,114,618 | 106,560 | 7,113,800 | - | 3,495,041,639 |
(3) 당분기와 전기 중 매출채권 및 기타채권의 손실충당금(대손충당금)의 변동내용은 다음과 같습니다.
| (당기) | (단위 : 원) |
| 구 분 | 기초 | 설정 | 환입 | 기타 | 기말 |
| 대손충당금 | 1,586,699 | 134,802,546 | - | - | 136,389,245 |
| 합 계 | 1,586,699 | 134,802,546 | - | - | 136,389,245 |
| (전기) | (단위 : 원) |
| 구 분 | 기초 | 설정 | 환입 | 기타 | 기말 |
| 대손충당금 | 4,546,506 | - | (2,959,807) | - | 1,586,699 |
| 합 계 | 4,546,506 | - | (2,959,807) | - | 1,586,699 |
9. 재고자산
당분기말 및 전기말 현재 재고자산의 구성내역은 다음과 같습니다.
| (단위 : 원) |
| 구 분 | 당분기말 | 전기말 | ||||
| 평가전금액 | 평가충당금(*) | 장부금액 | 평가전금액 | 평가충당금(*) | 장부금액 | |
| 제품 | 1,989,944,904 | (69,394,800) | 1,920,550,104 | 2,220,427,841 | (23,210,738) | 2,197,217,103 |
| 상품 | 1,019,166,603 | (8,279,417) | 1,010,887,186 | 1,017,199,740 | (82,273) | 1,017,117,467 |
| 원재료 | 57,820,614 | (990,000) | 56,830,614 | 108,468,489 | (27,783,764) | 80,684,725 |
| 저장품 | 169,897,475 | - | 169,897,475 | 159,268,053 | - | 159,268,053 |
| 미착품 | 1,216,541,241 | - | 1,216,541,241 | 920,275,736 | - | 920,275,736 |
| 합 계 | 4,453,370,837 | (78,664,217) | 4,374,706,620 | 4,425,639,859 | (51,076,775) | 4,374,563,084 |
(*) 재고자산의 순실현가능가치 평가에 따라 당기와 전기 중 평가손실환입으로 계상된 금액은 각각 27,587 천원과 312천원입니다. 재고자산의 평가손실환입액은 매출원가에 포함됩니다
10. 기타유동자산
당분기말 및 전기말 현재 기타유동자산의 구성내역은 다음과 같습니다.
| (단위 : 원) |
| 구 분 | 당분기말 | 전기말 |
| 선급금 | 473,579,471 | 232,242,871 |
| 선급비용 | 70,877,195 | 38,606,638 |
| 반품자산회수권 | 3,683,807 | 5,360,246 |
| 합 계 | 548,140,473 | 276,209,755 |
11. 유형자산
(1) 당분기말과 전기말 현재 유형자산의 장부금액의 구성내역은 다음과 같습니다.
| (단위 : 원) |
| 구 분 | 당기말 | 전기말 | ||||||
| 취득원가 | 감가상각 누계액 |
국고보조금 | 장부금액 | 취득원가 | 감가상각 누계액 |
국고보조금 | 장부금액 | |
| 토지 | 2,240,400,000 | - | - | 2,240,400,000 | 2,240,400,000 | - | - | 2,240,400,000 |
| 건물 | 3,360,600,000 | (44,878,224) | - | 3,315,721,776 | 3,360,600,000 | (22,439,112) | - | 3,338,160,888 |
| 차량운반구 | 206,068,838 | (63,865,407) | - | 142,203,431 | 63,068,838 | (58,748,788) | - | 4,320,050 |
| 공구와기구 | 12,965,909 | (11,039,530) | - | 1,926,379 | 12,965,909 | (10,766,386) | - | 2,199,523 |
| 비품 | 270,078,973 | (153,429,550) | - | 116,649,423 | 267,600,211 | (142,767,066) | - | 124,833,145 |
| 시설장치 | 291,051,826 | (173,132,271) | - | 117,919,555 | 286,651,826 | (158,726,744) | - | 127,925,082 |
| 금형 | 622,995,980 | (214,062,554) | (15,847,881) | 393,085,545 | 491,495,980 | (185,640,285) | (16,744,932) | 289,110,763 |
| 건설중인자산 | 564,312,682 | - | (8,526,054) | 555,786,628 | 134,479,825 | - | (300,000) | 134,179,825 |
| 합 계 | 7,568,474,208 | (660,407,536) | (24,373,935) | 6,883,692,737 | 6,857,262,589 | (579,088,381) | (17,044,932) | 6,261,129,276 |
(2) 당분기 및 전기 중 유형자산의 변동내역은 다음과 같습니다.
| (당분기) | (단위 : 원) |
| 구 분 | 기 초 | 취 득 | 재평가 | 처 분 | 감가상각 | 대 체(*) | 기 말 |
| 토지 | 2,240,400,000 | - | - | - | - | - | 2,240,400,000 |
| 건물 | 3,338,160,888 | - | - | - | (22,439,112) | - | 3,315,721,776 |
| 차량운반구 | 4,320,050 | 143,000,000 | - | - | (5,116,619) | - | 142,203,431 |
| 공구와기구 | 2,199,523 | - | - | - | (273,144) | - | 1,926,379 |
| 비품 | 124,833,145 | 4,413,863 | - | (338,682) | (12,258,903) | - | 116,649,423 |
| 시설장치 | 127,925,082 | 4,400,000 | - | - | (14,405,527) | - | 117,919,555 |
| 금형 | 305,855,695 | 72,250,000 | - | - | (28,422,269) | 59,250,000 | 408,933,426 |
| 국고보조금 | (16,744,932) | - | - | - | 897,051 | - | (15,847,881) |
| 건설중인자산 | 134,479,825 | 492,645,457 | - | - | - | (62,812,600) | 564,312,682 |
| 국고보조금 | (300,000) | (8,226,054) | - | - | (8,526,054) | ||
| 합 계 | 6,261,129,276 | 708,483,266 | - | (338,682) | (82,018,523) | (3,562,600) | 6,883,692,737 |
(*)무형자산으로 대체된 내역을 포함하고 있습니다.
| (전기) | (단위 : 원) |
| 구 분 | 기 초 | 취 득 | 처 분 | 감가상각 | 대 체(*) | 기 말 |
|---|---|---|---|---|---|---|
| 토지 | 1,715,960,677 | - | 524,439,323 | - | - | - |
| 건물 | 2,373,859,825 | - | 1,033,465,961 | - | (69,164,898) | - |
| 차량운반구 | 69,549,175 | - | - | (53,447,172) | (11,781,953) | - |
| 공구와기구 | 3,292,099 | - | - | - | (1,092,576) | - |
| 비품 | 155,742,776 | 19,124,542 | - | (77,991) | (49,956,182) | - |
| 시설장치 | 185,253,846 | - | - | - | (57,328,764) | - |
| 금형 | 79,071,137 | 294,170,480 | - | - | (83,585,922) | 16,200,000 |
| 국고보조금 | - | (17,941,000) | - | - | 1,196,068 | - |
| 건설중인자산 | 96,862,900 | 93,189,058 | - | - | - | (55,572,133) |
| 국고보조금 | (26,375,264) | (1,963,082) | - | - | - | 28,038,346 |
| 합 계 | 4,653,217,171 | 386,579,998 | 1,557,905,284 | (53,525,163) | (271,714,227) | (11,333,787) |
(*)무형자산으로 대체된 내역을 포함하고 있습니다.
(3) 감가상각비 중 28,548 천원(전기: 36,556 천원)은 매출원가, 54,340 천원(전기: 49,741 천원)은 판매관리비에 포함돼 있습니다.
(4) 당분기말 현재 토지 및 건물은 연결회사의 차입금에 대하여 담보로 제공되고 있습니다. (주석30참조)
(5) 연결회사는 유형자산 중 토지와 건물에 대해 재평가모형을 적용하고 있으며, 2022년 9월 30일을 기준일로 하여 회사와 독립적이고 전문적 자격이 있는 평가인인 ㈜정일감정평가법인이 산출한 감정가액을 이용하여 토지와 건물을 재평가하였습니다. 평가방법은 대상 토지와 건물과 가치형성요인이 같거나 비슷한 토지와 건물의 거래사례와 비교하여 대상 토지와 건물의 현황에 맞게 사정보정 시점수정 가치형성요인 비교 등의 과정을 거쳐 대상물건의 가액을 산정하는 거래사례비교법으로 평가하였습니다. 재평가에 따른 토지의 장부금액과 원가모형으로 평가되었을 경우의 장부금액은 다음과 같습니다.
| (단위 : 원) |
| 구 분 | 재평가모형 | 원가모형 |
| 토 지 | 2,240,400,000 | 1,715,960,677 |
| 건 물 | 3,338,160,888 | 2,327,134,039 |
| 합 계 | 5,578,560,888 | 4,043,094,716 |
한편, 상기 토지 재평가로 인해 당기말까지 기타포괄이익으로 인식한 재평가잉여금의 누계액은 1,230,745 천원(법인세효과 차감 후)입니다.
(6) 재평가잉여금은 관련 법률에 따라 주주에게 배당할 수 없습니다.
12. 리스
전기말 리스자산 소멸로 해당사항 없습니다.
13. 무형자산
(1) 당분기말과 전기말 현재 무형자산의 장부금액의 구성내역은 다음과 같습니다.
| (단위 : 원) |
| 구 분 | 당분기말 | 전기말 | ||||
| 취득원가 | 상각누계액 | 장부금액 | 취득원가 | 상각누계액 | 장부금액 | |
| 산업재산권 | 250,426,433 | (137,833,944) | 112,592,489 | 246,863,833 | (125,384,730) | 121,479,103 |
| 소프트웨어 | 137,620,000 | (54,091,475) | 83,528,525 | 92,770,000 | (48,657,116) | 44,112,884 |
| 합 계 | 388,046,433 | (191,925,419) | 196,121,014 | 339,633,833 | (174,041,846) | 165,591,987 |
(2) 당분기 및 전기 중 무형자산의 변동내역은 다음과 같습니다.
| (당분기) | (단위 : 원) |
| 구 분 | 기 초 | 취 득 | 대 체 | 감가상각 | 기 말 |
| 산업재산권 | 121,479,103 | - | 3,562,600 | (12,449,214) | 112,592,489 |
| 소프트웨어 | 44,112,884 | 44,850,000 | - | (5,434,359) | 83,528,525 |
| 합 계 | 165,591,987 | 44,850,000 | 3,562,600 | (17,883,573) | 196,121,014 |
| (전기) | (단위 : 원) |
| 구 분 | 기 초 | 취 득 | 대 체 | 감가상각 | 기 말 |
|---|---|---|---|---|---|
| 산업재산권 | 142,399,628 | 15,079,142 | 11,333,787 | (47,333,454) | 121,479,103 |
| 소프트웨어 | 51,262,910 | 10,545,000 | - | (17,695,026) | 44,112,884 |
| 합 계 | 193,662,538 | 25,624,142 | 11,333,787 | (65,028,480) | 165,591,987 |
(3) 당기와 전기 중 무형자산 상각비는 전액 판매관리비에 포함되었습니다.
(4) 연결회사가 비용으로 인식한 연구와 개발 지출의 총액은 211,436 천원 (전분기: 136,717 천원)입니다.
14. 매입채무 및 기타채무
당분기말과 전기말 현재 장단기 매입채무 및 기타채무의 내역은 다음과 같습니다.
| (단위 : 원) |
| 구분 | 당분기말 | 전기말 |
| 매입채무및기타채무 : | ||
| 매입채무 | 1,334,418,257 | 772,619,127 |
| 미지급금 | 725,143,466 | 490,778,461 |
| 미지급비용 | 186,975,482 | 212,349,940 |
| 환불부채 | 5,876,714 | 9,104,222 |
| 합 계 | 2,252,413,919 | 1,484,851,750 |
| 장기기타채무 : | ||
| 장기미지급비용 | - | - |
| 합 계 | - | - |
15. 차입금
(1) 당분기말과 전기말 현재 차입금의 상세내역은 다음과 같습니다.
| (당분기) | (단위 : 원) |
| 차입처 | 내역 | 연이자율 | 당기말 | 전기말 |
| 단기차입금 : | ||||
| 국민은행 | 운전자금대출 | 4.76% | 500,000,000 | 500,000,000 |
| KEB하나은행 | 운전자금대출 | 5.70% | 500,000,000 | 500,000,000 |
| 운전자금대출 | 5.47% | 1,000,000,000 | 1,000,000,000 | |
| 신한은행 | 운전자금대출 | 5.86% | 500,000,000 | 500,000,000 |
| 농협은행 | 운전자금대출 | 4.00% | - | 500,000,000 |
| 운전자금대출 | 4.10% | - | 200,000,000 | |
| 단기차입금 소계 | 2,500,000,000 | 3,200,000,000 | ||
| 장기차입금 : | ||||
| 국민은행 | 일반자금대출 | 2.90% | 1,100,000,000 | 1,100,000,000 |
| 4.97% | 66,666,676 | 91,666,675 | ||
| 4.57% | 650,000,000 | 650,000,000 | ||
| 시설자금대출 | 5.02% | 900,000,000 | 900,000,000 | |
| 신한은행 | 운전자금대출 | 0.00% | - | - |
| 중소벤처 기업진흥공단 |
운전자금대출 | 3.11% | 166,600,000 | 191,590,000 |
| 2.99% | 216,580,000 | 241,570,000 | ||
| 장기차입금 소계 | 3,099,846,676 | 3,174,826,675 | ||
| 차감 : 1년이내 만기도래분 | (1,166,586,676) | (1,191,586,675) | ||
| 합계 | 1,933,260,000 | 1,983,240,000 | ||
(2) 장기차입금 상환일정
당분기말 현재 장기차입금 상환일정은 다음과 같습니다.
| (단위 : 원) |
| 구분 | 장기차입금 |
| 1년이내 | 1,166,586,676 |
| 1년초과 2년이내 | 999,940,000 |
| 2년초과 3년이내 | 199,992,000 |
| 3년초과 4년이내 | 183,332,000 |
| 4년초과 5년이내 | 183,332,000 |
| 5년초과 | 366,664,000 |
| 합계 | 3,099,846,676 |
16. 기타유동부채
당분기말과 전기말 현재 기타유동부채의 내역은 다음과 같습니다.
| (단위 : 원) |
| 구분 | 당분기말 | 전기말 |
| 예수금 | 32,189,920 | 12,142,650 |
| 합 계 | 32,189,920 | 12,142,650 |
17. 계약부채
(1) 연결회사가 고객과의 계약에서 생기는 수익과 관련하여 인식하고 있는 계약부채는 아래와 같습니다.
| (단위 : 원) |
| 구분 | 당분기말 | 전기말 |
| 고객충성제도 | 4,445,501 | 6,595,325 |
| 계약부채 | 239,762,861 | 24,668,739 |
| 합 계 | 244,208,362 | 31,264,064 |
(2) 당분기 및 전기 중 계약부채의 변동내역은 다음과 같습니다.
| (단위 : 원) |
| 구분 | 당기 | 전기 | ||
| 고객충성제도 | 계약부채 | 고객충성제도 | 계약부채 | |
| 기초 | 6,595,325 | 24,668,739 | 28,013,748 | 114,792,929 |
| 전입 | (6,595,325) | (24,668,739) | (28,013,748) | (114,792,929) |
| 환입 | 4,445,501 | 239,762,861 | 6,595,325 | 24,668,739 |
| 기말 | 4,445,501 | 239,762,861 | 6,595,325 | 24,668,739 |
18. 퇴직급여
연결회사는 확정기여형 퇴직급여제도를 운영중이며, 당분기 및 전분기에 비용으로 인식한 금액은 다음과 같습니다.
| (단위 : 원) |
| 구분 | 당분기 | 전기 |
| 매출원가 | 2,389,171 | 4,568,354 |
| 판매비와관리비 | 39,219,547 | 35,706,849 |
| 경상연구개발비 | 8,556,994 | 4,728,423 |
| 합계 | 50,165,712 | 45,003,626 |
19. 자본금
(1) 당분기말과 전기말 현재 자본금의 내역은 다음과 같습니다.
| (단위 : 원) |
| 구 분 | 당기말 | 전기말 |
| 발행할 주식의 총수 | 10,000,000 주 | 10,000,000 주 |
| 주당액면가액 | 100 원 | 100 원 |
| 발행한 주식의 총수(*) | 7,938,930 주 | 6,128,930 주 |
| 보통주 자본금 | 793,893,000 | 612,893,000 |
(*) 당분기 중 코스닥상장을 위해 발행한 주식의 수가 증가하였습니다.
(2) 당분기 및 전기 중 유통주식수의 변동내역은 다음과 같습니다.
| (단위 : 주) |
| 구 분 | 당분기 | 전기 |
| 기초 | 6,128,930 | 1,225,786 |
| 유상증자(*) | 1,810,000 | - |
| 액면분할 | - | 4,903,144 |
| 자기주식 (*) | (458,060) | (458,060) |
| 기말 | 7,480,870 | 5,670,870 |
(*) 연결회사는 당분기 중 코스닥 상장을 위해 1,810,000 주를 일반공모 진행하였습니다.
(3) 당분기말과 전기말 현재 기타불입자본의 내역은 다음과 같습니다.
| (단위 : 원) |
| 구 분 | 당분기말 | 전기말 |
| 주식발행초과금 | 9,365,203,322 | 602,029,180 |
| 합 계 | 9,365,203,322 | 602,029,180 |
(4) 당분기말과 전기말 현재 기타자본구성요소의 내역은 다음과 같습니다.
| (단위 : 원) |
| 구 분 | 당기말 | 전기말 |
| 주식선택권 | 213,515,898 | 168,332,154 |
| 합 계 | 213,515,898 | 168,332,154 |
(5) 당기말과 전기말 현재 기타포괄손익누계액의 내역은 다음과 같습니다.
| (단위 : 원) |
| 구 분 | 당분기말 | 전기말 |
| 재평가잉여금 | 1,230,745,174 | 1,230,745,174 |
| 합 계 | 1,230,745,174 | 1,230,745,174 |
20. 주식기준보상
(1) 연결회사는 주주총회 결의에 의거 연결회사의 임직원에게 주식선택권을 부여하였는 바, 주요사항은 다음과 같습니다.
| (단위 : 주, 원) |
| 약정유형 | 1차 | 2차 | 3차 |
| 권리부여일 | 2020년 11월 01일 | 2020년 11월 01일 | 2022년 08월 16일 |
| 부여형태 | 신주발행 | 신주발행 | 신주발행 |
| 부여주식수 | 65,223 | 32,616 | 127,720 |
| 기본조건 | 부여일로부터 3년간 근무 | 부여일로부터 2.5년간 근무 | 부여일로부터 2.5년간 근무 |
| 행사가격 | 836 | 836 | 6,050 |
| 공정가치 | 1,598 | 1,642 | 2,564 |
| 행사가능기간 | 2023년 11월 01일~ 2028년 10월 31일 |
2023년 05월 01일~ 2028년 4월 30일 |
2025년 02월 15일~ 2030년 2월 15일 |
(2) 주식선택권의 수량과 가중평균행사가격의 변동은 다음과 같습니다.
| (단위 : 원) |
| 구 분 | 주식선택권 수량 | 가중평균행사가격 | ||
| 당기 | 전기 | 당기 | 전기 | |
| 기초 잔여주 | 219,339 | 103,274 | 3,974 | 836 |
| 부여 | - | 127,720 | - | 3,139 |
| 행사 | - | - | - | - |
| 소멸 | - | (5,435) | - | - |
| 기말 잔여주 | 219,339 | 219,339 | 3,974 | 3,974 |
(3) 공정가치 산정에 사용된 방법과 가정은 다음과 같습니다.
| (단위 : 주, 원) |
| 구 분 | 1차 | 2차 | 3차 |
| 부여일의 주가 | 2,704 | 2,704 | 4,984 |
| 행사가격 | 836 | 836 | 6,050 |
| 기대주가변동성 | 37.42% | 37.42% | 51.15% |
| 옵션만기 | 2028년 10월 31일 | 2028년 04월 30일 | 2030년 02월 15일 |
| 무위험이자율 (주1) | 1.34% | 1.34% | 3.10% |
| 공정가치 | 1,598 | 1,642 | 2,564 |
(주1) 무위험이자율은 5년 만기의 국고채 이자율을 이용하였습니다.
(4) 당기말 현재 잔여 주식선택권의 만기 및 행사가격은 다음과 같습니다.
| (단위 : 주, 원) |
| 구 분 | 만 기 | 주식선택권 수량 | 주당 행사가격 |
| 1차 | 2028년 10월 31일 | 65,223 | 836 |
| 2차 | 2028년 4월 30일 | 32,616 | 836 |
| 3차 | 2030년 2월 15일 | 127,720 | 6,050 |
| 합 계 | 219,339 | - | |
(5) 당기와 전기 중 비용으로 인식한 주식기준보상은 각각 45,184 천원과 14,754 천원이며, 전액 주식결제형 주식기준보상과 관련한 비용입니다.
21. 이익잉여금
당분기말과 전기말 현재 이익잉여금 구성내역은 다음과 같습니다.
| (단위 : 원) |
| 구 분 | 당분기말 | 전기말 |
| 이익준비금 | 10,787,040 | 10,787,040 |
| 미처분이익잉여금 | 4,280,344,052 | 5,435,687,231 |
| 합 계 | 4,291,131,092 | 5,446,474,271 |
22. 매출액 및 매출원가
(1) 당분기와 전분기 매출액의 내역은 다음과 같습니다.
| (단위 : 원) |
| 구 분 | 당분기 | 전분기 |
| 제품매출액 | 3,509,712,708 | 5,897,408,066 |
| 상품매출액 | 3,046,621,883 | 530,173,882 |
| 용역매출액 | 305,324,613 | 393,198,461 |
| 합계 | 6,861,659,204 | 6,820,780,409 |
(2) 당분기와 전분기 매출원가의 내역은 다음과 같습니다.
| (단위 : 원) |
| 구 분 | 당분기 | 전분기 |
| 제품매출원가 | 2,163,044,496 | 3,436,216,610 |
| 상품매출원가 | 2,519,391,267 | 358,207,565 |
| 용역매출원가 | 301,349,613 | 393,198,461 |
| 합계 | 4,983,785,376 | 4,187,622,636 |
23. 판매비와 관리비
당분기와 전분기 중 판매비와 관리비의 내역은 다음과 같습니다.
| (단위 : 원) |
| 구분 | 당분기 | 전분기 |
| 급여 | 886,819,618 | 595,301,709 |
| 퇴직급여 | 39,219,547 | 35,706,849 |
| 복리후생비 | 105,570,913 | 84,351,103 |
| 여비교통비 | 12,411,939 | 2,279,409 |
| 접대비 | 3,043,400 | 451,600 |
| 통신비 | 3,780,818 | 5,226,019 |
| 수도광열비 | 917,714 | 448,833 |
| 세금과공과 | 56,412,136 | 28,531,210 |
| 감가상각비 | 54,340,110 | 49,740,951 |
| 지급임차료 | 176,166,186 | 15,363,677 |
| 수선비 | - | - |
| 보험료 | 12,991,361 | 13,164,480 |
| 차량유지비 | 1,086,537 | 2,650,868 |
| 경상연구개발비 | 211,436,097 | 136,716,724 |
| 운반비 | 15,701,000 | 12,631,805 |
| 교육훈련비 | 10,287,000 | 316,000 |
| 도서인쇄비 | 9,009,690 | 438,130 |
| 사무용품비 | 2,821,495 | 1,639,264 |
| 소모품비 | 28,012,329 | 40,788,482 |
| 지급수수료 | 748,173,768 | 282,235,998 |
| 광고선전비 | 242,178,582 | 262,086,279 |
| 판매촉진비 | 633,429 | 15,596,409 |
| 대손상각비(환입) | 134,802,546 | - |
| 건물관리비 | 12,771,890 | 11,675,530 |
| 수출제비용 | 9,031,032 | 22,635,438 |
| 판매수수료 | 236,247,214 | 226,103,019 |
| 무형자산상각비 | 17,883,573 | 15,645,072 |
| 사용권자산상각비 | - | 97,181,475 |
| 주식보상비용 | 45,183,744 | 14,754,258 |
| 합계 | 3,076,933,668 | 1,973,660,591 |
24. 금융수익 및 금융비용
(1) 당분기와 전분기 중 금융수익의 내역은 다음과 같습니다.
| (단위 : 원) |
| 구분 | 당분기 | 전분기 |
| 이자수익 | 30,177,789 | 502,942 |
| 외환차익 | 18,781,130 | 1,597,287 |
| 외화환산이익 | 86,117,125 | - |
| 장기금융상품처분이익 | - | 34,891 |
| 장기금융상품평가이익 | 449,262 | - |
| 합계 | 135,525,306 | 2,135,120 |
(2) 당분기와 전분기 중 금융비용의 내역은 다음과 같습니다.
| (단위 : 원) |
| 구분 | 당분기 | 전분기 |
| 이자비용 | 73,919,135 | 25,685,327 |
| 외환차손 | 4,869,701 | 191,194 |
| 외화환산손실 | 2,493,213 | - |
| 장기금융상품평가손실 | - | - |
| 합계 | 81,282,049 | 25,876,521 |
25. 기타수익 및 기타비용
(1) 당분기와 전분기 중 기타수익의 내역은 다음과 같습니다.
| (단위 : 원) |
| 구분 | 당분기 | 전분기 |
| 유형자산처분이익 | - | - |
| 리스해지이익 | - | - |
| 잡이익 | 1,478,354 | 937,855 |
| 합계 | 1,478,354 | 937,855 |
(2) 당기와 전기 중 기타비용의 내역은 다음과 같습니다.
| (단위 : 원) |
| 구분 | 당분기 | 전분기 |
| 기타의대손상각비 | - | - |
| 기부금 | 10,405,306 | - |
| 유형자산처분손실 | 338,682 | - |
| 리스해지손실 | - | - |
| 잡손실 | 270,962 | 6,914,868 |
| 재고자산평가손실 | 990,000 | - |
| 합계 | 12,004,950 | 6,914,868 |
26. 법인세비용 및 이연법인세
법인세비용은 전체 회계연도에 대해서 예상되는 최선의 가중평균연간법인세율의 추정에 기초하여 인식하였습니다.
27. 비용의 성격별 분류
당기 및 전기 중 발생한 비용의 성격별 분류내역은 다음과 같습니다.
| (단위 : 원) |
| 구분 | 당분기 | 전분기 |
| 재고자산의 변동 | (143,536) | (295,295,344) |
| 원재료 및 상품의 매입 | 3,108,554,911 | 1,640,884,467 |
| 종업원급여 | 973,168,680 | 699,048,315 |
| 복리후생비 | 109,788,175 | 88,965,893 |
| 감가상각ㆍ무형자산상각비 | 100,772,096 | 177,155,234 |
| 경상개발비 | 211,436,097 | 136,716,724 |
| 지급임차료 | 176,166,186 | 15,363,677 |
| 소모품비 | 151,776,894 | 256,190,669 |
| 외주비 | 1,077,231,112 | 2,470,778,927 |
| 지급수수료 | 752,553,168 | 285,870,048 |
| 광고선전비 | 242,178,582 | 262,086,279 |
| 판매수수료 | 236,247,214 | 226,103,019 |
| 기타비용 | 920,989,465 | 197,415,319 |
| 합 계 | 8,060,719,044 | 6,161,283,227 |
28. 주당이익
(1) 당분기 및 전기의 기본주당이익의 내역은 다음과 같습니다.
| (단위 : 원) |
| 구분 | 당분기 | 전분기 |
| 지배기업소유주 귀속 순이익 | (1,155,343,179) | 629,778,768 |
| 가중평균유통보통주식수(*) | 7,154,597 주 | 6,128,930 주 |
| 기본주당이익 | (161 원) | 103 원 |
(*) 연결회사는 2021년 10월 29일을 효력 발생일로 하여 주식발행초과금을 재원으로 무상증자를 실시하였으며 2022년 5월 10일을 기준으로 액면분할을 실시하였습니다. 비교표시된 전기 주당이익은 무상증자와 액면분할을 반영한 가중평균유통보통주식수로 재작성되었습니다.
(2) 당기 및 전기 중 기본주당손실 계산에 사용된 가중평균유통보통주식수는 다음과 같습니다.
| (당분기) | (단위 : 원) |
| 일자 | 내역 | 유통보통주식수 | 가중치 | 가중평균유통주식수 |
| 2023-01-01 | 기초발행보통주식수 | 6,128,930 | 90/90 | 6,128,930 |
| 2023-02-09 | 유상증자 | 1,810,000 | 51/90 | 1,025,667 |
| 합 계 | 7,154,597 | |||
| (전기) | (단위 : 원) |
| 일자 | 내역 | 유통보통주식수 | 가중치 | 가중평균유통주식수 |
| 2022-01-01 | 기초발행보통주식수 | 6,128,930 | 90/90 | 6,128,930 |
| 합 계 | 6,128,930 | |||
(3) 당기말과 전기말 현재 잠재적 보통주로 주식선택권이 있으나, 잠재적 보통주의 희석효과가 존재하지 않아 희석주당이익 산정에 포함하지 않았습니다.
29. 현금흐름표에 관한 정보
(1) 당분기 및 전분기 중 당기순이익 조정내역은 다음과 같습니다.
| (단위 : 원) |
| 구분 | 당분기 | 전분기 |
| 감가상각비 | 82,018,523 | 64,403,687 |
| 사용권자산상각비 | - | 97,181,475 |
| 무형자산상각비 | 17,883,573 | 15,645,072 |
| 주식보상비용 | 45,183,744 | 14,754,258 |
| 재고자산평가손실(환입) | 27,587,442 | (17,288,852) |
| 유형자산처분이익 | - | - |
| 유형자산처분손실 | 338,682 | - |
| 유형자산폐기손실 | - | - |
| 외화환산이익 | (86,117,125) | - |
| 외화환산손실 | 2,493,213 | - |
| 이자수익 | (30,177,789) | (502,942) |
| 이자비용 | 73,919,135 | 25,685,327 |
| 장기금융상품평가이익 | (449,262) | - |
| 장기금융상품평가손실 | - | - |
| 장기금융상품처분이익 | - | (34,891) |
| 대손상각비(환입) | 134,802,546 | - |
| 기타의대손상각비 | - | - |
| 리스해지이익 | - | - |
| 리스해지손실 | - | - |
| 법인세비용(수익) | - | - |
| 합 계 | 267,482,682 | 199,843,134 |
(2) 당분기 및 전분기 중 순운전자본의 변동내역은 다음과 같습니다.
| (단위 : 원) |
| 구분 | 당분기 | 전분기 |
| 매출채권의 감소(증가) | (148,941,021) | (958,120,512) |
| 미수금의 감소(증가) | (254,859,403) | (275,246,387) |
| 선급금의 감소(증가) | (241,336,600) | (1,733,430,693) |
| 선급비용의 감소(증가) | (32,270,557) | (16,125,285) |
| 미수수익의 감소(증가) | 5,829,939 | 503,188 |
| 재고자산의 감소(증가) | (27,730,978) | (278,006,492) |
| 반품자산회수권의 감소(증가) | 1,676,439 | 62,551 |
| 매입채무의 증가(감소) | 530,906,557 | 1,449,365,741 |
| 미지급금의 증가(감소) | 234,365,005 | 150,147,070 |
| 계약부채의 증가(감소) | 215,094,122 | (70,343,295) |
| 미지급비용의 증가(감소) | (27,278,063) | 52,389,674 |
| 예수금의 증가(감소) | 20,047,270 | 16,454,600 |
| 선수금의 증가(감소) | - | 48,000,000 |
| 포인트충당부채의 증가(감소) | (2,149,824) | 3,050,455 |
| 환불부채의 증가(감소) | (3,227,508) | 15,796 |
| 장기미지급금의 증가(감소) | - | - |
| 합 계 | 270,125,378 | (1,611,283,589) |
(3) 당분기와 전분기 중 주요 비현금거래는 다음과 같습니다.
| (단위 : 원) |
| 구분 | 당분기 | 전분기 |
| 재평가잉여금 증가 | - | - |
| 건설중인자산의 본계정 대체 | 62,812,600 | 73,598,887 |
| 사용권자산의 증가 | - | - |
| 무상증자 | - | - |
(4) 재무활동에서 발생한 부채의 당기 중 변동내역은 다음과 같습니다.
| (당분기) | (단위 : 원) |
| 구 분 | 기 초 | 재무활동 현금흐름 | 유동성대체 | 기타 | 기 말 |
| 단기차입금 | 3,200,000,000 | (700,000,000) | - | - | 2,500,000,000 |
| 유동성장기부채 | 1,191,586,675 | (1,191,586,675) | 1,166,586,676 | - | 1,166,586,676 |
| 장기차입금 | 1,983,240,000 | - | (49,980,000) | - | 1,933,260,000 |
| 리스부채 | - | - | - | - | - |
| 장기리스부채 | - | - | - | - | - |
| 합 계 | 6,374,826,675 | (1,891,586,675) | 1,116,606,676 | - | 5,599,846,676 |
| (전분기) | (단위 : 원) |
| 구 분 | 기 초 | 재무활동 현금흐름 | 유동성대체 | 기타 | 기 말 |
| 단기차입금 | 285,000,000 | - | - | - | 285,000,000 |
| 유동성장기부채 | 1,358,389,996 | (1,358,389,996) | 1,258,399,997 | - | 1,258,399,997 |
| 장기차입금 | 2,274,826,675 | - | - | - | 2,274,826,675 |
| 리스부채 | 411,004,902 | (100,532,358) | - | - | 310,472,544 |
| 장기리스부채 | 55,404,849 | - | - | - | 55,404,849 |
| 합 계 | 4,384,626,422 | (1,458,922,354) | 1,258,399,997 | - | 4,184,104,065 |
30. 우발채무 및 약정사항
(1) 견질어음 등
연결회사는 금융기관보증 및 계약보증과 관련하여 금융기관 등에 제공한 어음은 없습니다.
(2) 담보제공자산과 지급보증의 내용
예금 이외에 담보제공(소유권제한 포함)된 자산과 지급보증의 내용은 다음과 같습니다.
1) 담보제공
| (단위 : 원) |
| 담보제공자산 | 장부금액 | 설정금액 | 수혜자 | 설정권자 | 관련채무의 내용 |
| 토지 및 건물 | 5,556,121,776 | 3,540,000,000 | 연결회사 | 국민은행 | 차입금 |
특수관계자를 위한 담보나 기타 타인을 위한 담보제공 내역은 없습니다.
2) 당기말 현재 연결회사가 타인에게 제공한 지급보증내역은 없습니다.
(3) 연결회사가 타인으로부터 제공받은 담보 및 보증의 내용은 다음과 같습니다.
1) 당기말 현재 연결회사가 타인으로부터 제공받은 담보내역은 아래와 같습니다.
2) 타인으로부터 제공받은 보증의 내용
| (단위 : 원) |
| 보증 제공자 | 제공받은 보증내용 |
보증금액 | 보증처 |
| (특수관계자) | |||
| 대표이사 | 차입금지급보증 | 2,270,000,000 | 국민은행 외 |
| 포괄외화지급보증 | USD 990,000 | 국민은행 | |
| 신용장지급보증 | USD 1,200,000 | 신한은행 | |
| 원 소계 | 2,270,000,000 | ||
| USD 소계 | USD 2,190,000 | ||
| (기타) | |||
| 신용보증기금 | 차입금지급보증 | 1,350,000,000 | 하나은행 |
| 서울보증보험 | 이행보증 | 290,000,000 | 거래처 등 |
| 정보보호 | 200,000,000 | 거래처 등 | |
| 소 계 | 1,840,000,000 | ||
| 원 합계 | 4,110,000,000 | ||
| USD 합계 | USD 2,190,000 | ||
(4) 보험가입의 내용
연결회사는 사업의 이행목적으로 서울보증보험의 이행보험에 가입되어 있으며, 이밖에 생산물배상책임보험 및 자동차보험에 가입되어 있습니다.
(5) 금융기관 등과 체결한 주요 약정사항은 다음과 같습니다.
| (단위 : 원) |
| 금융기관명 | 구 분 | 약정한도액 | 실행금액 |
| 하나은행 | 운전자금대출 | 100,000,000 | - |
| 운전자금대출 | 500,000,000 | 500,000,000 | |
| 운전자금대출 | 1,000,000,000 | 1,000,000,000 | |
| 운전자금대출 | 500,000,000 | - | |
| 신한은행 | <기운>일반자금대출(일시상환) 기술평가(TCB) 우수 기업대출 | 500,000,000 | 500,000,000 |
| 기업자유예금 | 150,000,000 | - | |
| 일람불수입신용장 | USD 1,000,000 | USD 491,502 | |
| 국민은행 | KB우수기술기업 TCB신용대출 | 200,000,000 | - |
| KB메가셀러론 | 500,000,000 | - | |
| 일람불수입신용장 | USD 900,000 | - | |
| 원화 합계 | 3,450,000,000 | 2,000,000,000 | |
| USD 합계 | USD 1,900,000 | USD 491,502 | |
(6) 당분기말 현재 연결회사의 계류중인 소송사건은 없습니다.
31. 특수관계자 거래
(1) 당분기말 및 전기말 현재 연결회사의 특수관계자는 다음과 같습니다.
| (단위 : 원) |
| 구 분 | 명 칭 | |
| 당분기말 | 전기말 | |
| 기타특수관계자 | (주)일상의감동 | (주)일상의감동 |
| 기타특수관계자 | 우리사주조합 | 우리사주조합 |
(2) 당분기말 및 전기말 현재 특수관계자와의 거래내역은 다음과 같습니다.
| (단위 : 원) |
| 구분 | 명칭 | 당분기 | 전분기 | ||
| 매출 등 | 매입 등 | 매출 등 | 매입 등 | ||
| 기타특수관계자 | (주)일상의감동 | 2,768,648 | - | - | - |
(3) 당분기말 및 전기말 현재 특수관계자에 대한 채권ㆍ채무 잔액은 다음과 같습니다.
| (단위 : 원) |
| 구 분 | 명칭 | 계정과목 | 당기말 | 전기말 |
| 기타특수관계자 | 우리사주조합 | 대여금 | 655,356,000 | 617,320,000 |
| 기타특수관계자 | (주)일상의감동 | 외상매출금 | 3,045,513 | - |
(4) 당분기와 전기 중 특수관계자와의 자금거래는 다음과 같습니다.
| (당분기) | (단위 : 원) |
| 구 분 | 명칭 | 기초 | 자금대여거래 | 기말 | 출자 | |
| 대여 | 회수 | |||||
| 기타특수관계자 | (주)일상의감동 | - | - | - | - | 499,888,975 |
| 우리사주조합 | 617,320,000 | 500,000,000 | 461,964,000 | 655,356,000 | - | |
| (전기) | (단위 : 원) |
| 구 분 | 명칭 | 기초 | 자금대여거래 | 기말 | 출자 | |
| 대여 | 회수 | |||||
| 기타특수관계자 | 우리사주조합 | - | 617,320,000 | - | 617,320,000 | - |
| 기타특수관계자 | (주)일상의감동 | - | - | - | - | 300,000,000 |
(5) 당기말 현재 특수관계자인 대표이사 및 임직원으로부터 제공받은 지급보증 금액은 2,270 백만원, 2,190 천 USD 입니다. (주석 31 참조)
(6) 주요 경영진에 대한 보상
주요 경영진은 이사(등기 및 비등기), 이사회의 구성원, 재무책임자 및 내부감사책임자를 포함하고 있습니다. 주요 경영진에게 지급되었거나 지급될 보상금액은 다음과 같습니다.
| (단위 : 원) |
| 구 분 | 당분기 | 전분기 |
| 급여 | 279,100,003 | 148,100,010 |
| 퇴직급여 | 11,966,674 | 11,216,676 |
| 주식보상비용 | 7,978,269 | 3,616,452 |
| 합 계 | 299,044,946 | 162,933,138 |
32. 영업부문 정보
연결회사는 단일보고부문으로 구성되어 있으며, 지역별 매출은 다음과 같습니다.
| (단위 : 원) |
| 구 분 | 당분기 | 전분기 |
| 대한민국 | 6,616,019,776 | 5,735,201,299 |
| 기타 | 245,639,428 | 1,085,579,110 |
| 합 계 | 6,861,659,204 | 6,820,780,409 |
4. 재무제표
|
재무상태표 |
|
제 10 기 1분기말 2023.03.31 현재 |
|
제 9 기말 2022.12.31 현재 |
|
(단위 : 원) |
|
제 10 기 1분기말 |
제 9 기말 |
|
|---|---|---|
|
자산 |
||
|
유동자산 |
15,851,381,686 |
8,984,648,899 |
|
현금및현금성자산 |
3,325,923,800 |
177,518,541 |
|
매출채권 및 기타채권 |
3,911,874,216 |
3,488,425,685 |
|
기타금융자산 |
3,745,356,000 |
712,320,000 |
|
기타유동자산 |
543,818,875 |
270,294,565 |
|
재고자산 |
4,315,419,678 |
4,328,997,251 |
|
당기법인세자산 |
8,989,117 |
7,092,857 |
|
비유동자산 |
8,202,461,142 |
7,036,897,440 |
|
장기매출채권 및 기타채권 |
6,101,930 |
6,101,930 |
|
장기기타금융자산 |
824,635,035 |
312,368,821 |
|
종속기업 및 관계기업투자 |
50,000,000 |
50,000,000 |
|
유형자산 |
6,882,717,737 |
6,260,079,276 |
|
무형자산 |
193,781,014 |
163,121,987 |
|
이연법인세자산 |
245,225,426 |
245,225,426 |
|
자산총계 |
24,053,842,828 |
16,021,546,339 |
|
부채 |
||
|
유동부채 |
6,155,560,544 |
5,900,739,990 |
|
매입채무 및 기타채무 |
2,212,575,586 |
1,465,746,601 |
|
단기차입금 |
2,500,000,000 |
3,200,000,000 |
|
유동성장기부채 |
1,166,586,676 |
1,191,586,675 |
|
기타유동부채 |
32,189,920 |
12,142,650 |
|
계약부채 |
244,208,362 |
31,264,064 |
|
비유동부채 |
1,933,260,000 |
1,983,240,000 |
|
장기차입금 |
1,933,260,000 |
1,983,240,000 |
|
부채총계 |
8,088,820,544 |
7,883,979,990 |
|
자본 |
||
|
자본금 |
793,893,000 |
612,893,000 |
|
기타불입자본 |
9,365,203,322 |
602,029,180 |
|
기타자본구성요소 |
213,515,898 |
168,332,154 |
|
기타포괄손익누계액 |
1,230,745,174 |
1,230,745,174 |
|
이익잉여금(결손금) |
4,361,664,890 |
5,523,566,841 |
|
자본총계 |
15,965,022,284 |
8,137,566,349 |
|
자본과부채총계 |
24,053,842,828 |
16,021,546,339 |
|
포괄손익계산서 |
|
제 10 기 1분기 2023.01.01 부터 2023.03.31 까지 |
|
제 9 기 1분기 2022.01.01 부터 2022.03.31 까지 |
|
(단위 : 원) |
|
제 10 기 1분기 |
제 9 기 1분기 |
|||
|---|---|---|---|---|
|
3개월 |
누적 |
3개월 |
누적 |
|
|
매출액 |
6,740,229,215 |
6,740,229,215 |
6,757,997,257 |
6,757,997,257 |
|
매출원가 |
4,899,706,492 |
4,899,706,492 |
4,138,733,773 |
4,138,733,773 |
|
매출총이익 |
1,840,522,723 |
1,840,522,723 |
2,619,263,484 |
2,619,263,484 |
|
판매비와관리비 |
3,046,893,745 |
3,046,893,745 |
1,950,433,424 |
1,950,433,424 |
|
영업이익(손실) |
(1,206,371,022) |
(1,206,371,022) |
668,830,060 |
668,830,060 |
|
금융수익 |
135,525,306 |
135,525,306 |
2,135,120 |
2,135,120 |
|
금융비용 |
81,282,049 |
81,282,049 |
25,876,521 |
25,876,521 |
|
기타수익 |
1,156,745 |
1,156,745 |
922,979 |
922,979 |
|
기타비용 |
10,930,931 |
10,930,931 |
6,895,496 |
6,895,496 |
|
법인세비용차감전순이익(손실) |
(1,161,901,951) |
(1,161,901,951) |
639,116,142 |
639,116,142 |
|
법인세비용(수익) |
||||
|
당기순이익(손실) |
(1,161,901,951) |
(1,161,901,951) |
639,116,142 |
639,116,142 |
|
기타포괄손익 |
||||
|
총포괄손익 |
(1,161,901,951) |
(1,161,901,951) |
639,116,142 |
639,116,142 |
|
주당이익 |
||||
|
기본주당이익(손실) (단위 : 원) |
(162) |
(162) |
104 |
104 |
|
희석주당이익(손실) (단위 : 원) |
(162) |
(162) |
104 |
104 |
|
자본변동표 |
|
제 10 기 1분기 2023.01.01 부터 2023.03.31 까지 |
|
제 9 기 1분기 2022.01.01 부터 2022.03.31 까지 |
|
(단위 : 원) |
|
자본 |
|||||
|---|---|---|---|---|---|
|
자본금 |
기타불입자본 |
기타자본구성요소 |
이익잉여금 |
자본 합계 |
|
|
2022.01.01 (기초자본) |
612,893,000 |
602,029,180 |
68,853,204 |
4,205,091,549 |
5,488,866,933 |
|
주식선택권 부여 |
14,754,258 |
14,754,258 |
|||
|
당기순이익(손실) |
639,116,142 |
639,116,142 |
|||
|
유상증자 |
|||||
|
2022.03.31 (기말자본) |
612,893,000 |
602,029,180 |
83,607,462 |
4,844,207,691 |
6,142,737,333 |
|
2023.01.01 (기초자본) |
612,893,000 |
602,029,180 |
168,332,154 |
6,754,312,015 |
8,137,566,349 |
|
주식선택권 부여 |
45,183,744 |
45,183,744 |
|||
|
당기순이익(손실) |
(1,161,901,951) |
(1,161,901,951) |
|||
|
유상증자 |
181,000,000 |
8,763,174,142 |
8,944,174,142 |
||
|
2023.03.31 (기말자본) |
793,893,000 |
9,365,203,322 |
213,515,898 |
5,592,410,064 |
15,965,022,284 |
|
현금흐름표 |
|
제 10 기 1분기 2023.01.01 부터 2023.03.31 까지 |
|
제 9 기 1분기 2022.01.01 부터 2022.03.31 까지 |
|
(단위 : 원) |
|
제 10 기 1분기 |
제 9 기 1분기 |
|
|---|---|---|
|
영업활동현금흐름 |
(722,592,913) |
(801,895,279) |
|
당기순이익 |
(1,161,901,951) |
639,116,142 |
|
당기순이익에 대한 조정 |
266,287,682 |
200,263,902 |
|
영업활동 자산ㆍ부채의 증감 |
234,601,734 |
(1,617,920,416) |
|
이자수취 |
12,331,412 |
|
|
이자지급 |
(72,015,530) |
(23,279,187) |
|
법인세납부 |
(1,896,260) |
(75,720) |
|
투자활동현금흐름 |
(4,306,412,272) |
(181,628,808) |
|
장기금융상품의 처분 |
14,968,637 |
|
|
단기대여금의 감소 |
466,964,000 |
|
|
단기금융상품의 취득 |
(3,000,000,000) |
|
|
단기대여금의 증가 |
(500,000,000) |
|
|
기타포괄손익인식-금융자산의 취득 |
(499,888,975) |
|
|
장기금융상품의 취득 |
(11,927,977) |
(1,627,671) |
|
유형자산의 취득 |
(716,709,320) |
(192,129,774) |
|
무형자산의 취득 |
(44,850,000) |
(2,840,000) |
|
재무활동현금흐름 |
8,177,420,197 |
(200,522,357) |
|
정부보조금의 수취 |
8,226,054 |
|
|
유상증자(신주발행) |
8,944,174,142 |
|
|
단기차입금의 상환 |
(700,000,000) |
|
|
유동성장기부채의 상환 |
(74,979,999) |
|
|
리스부채의 원금상환 |
(99,989,999) |
|
|
신주발행비 지급 |
(100,532,358) |
|
|
현금및현금성자산에 대한 환율변동효과 |
(9,753) |
|
|
현금및현금성자산의순증가(감소) |
3,148,405,259 |
(1,184,046,444) |
|
기초현금및현금성자산 |
177,518,541 |
2,058,353,410 |
|
기말현금및현금성자산 |
3,325,923,800 |
874,306,966 |
5. 재무제표 주석
| 제 10 (당)분기말 2023년 3월 31일 현재 |
| 제 9 (전)기말 2022년 12월 31일 현재 |
| 주식회사 꿈비 |
1. 일반사항
주식회사 꿈비(이하 '회사')는 2014년 11월 설립되어 경기 수원시 영통구 법조로 25 A동 7층 713호(하동, 광교SK뷰레이크)에 본사를 두고 유아용품 제조 및 도소매 등을 주요 사업목적으로 하고 있습니다. 회사의 당기말 현재 자본금은 793,893천원이며, 주주현황은 다음과 같습니다.
| 주주명 | 소유주식수(주) | 지분율(%) |
|---|---|---|
| 박영건 | 2,158,900 | 27.19% |
| 최연서 | 1,239,695 | 15.62% |
| 최진희 | 983,628 | 12.39% |
| 이은석 | 282,468 | 3.56% |
| 우리사주조합 | 139,943 | 1.76% |
| 꿈비 자사주 | 458,060 | 5.77% |
| 기타 | 2,676,236 | 33.71% |
| 합계 | 7,938,930 | 100.00% |
2. 중요한 회계정책
회사의 재무제표는 한국채택국제회계기준(이하 "기업회계기준")에 따라 작성됐습니다. 한국채택국제회계기준은 국제회계기준위원회가 발표한 기준서와 해석서 중 대한민국이 채택한 내용을 의미합니다.
재무제표 작성을 위하여 채택한 중요한 회계정책은 다음과 같습니다.
(1) 회계정책의 변경과 공시
1) 회사가 채택한 제ㆍ개정 기준서
회사가 2023년 1월 1일 이후 개시하는 회계기간부터 적용한 제ㆍ개정 기준서 및 해석서는 다음과 같습니다.
(가) 기업회계기준서 제1103호 '사업결합' (개정) - 재무보고를 위한 개념체계 참조
식별할 수 있는 취득 자산과 인수 부채는 재무보고를 위한 개념체계의 정의를 충족하도록 개정되었으나, 기업회계기준서 제1037호 '충당부채, 우발부채 및 우발자산' 및 해석서 제2121호 '부담금' 의 적용범위에 포함되는 부채 및 우발부채에 대해서는 해당 기준서를 적용하도록 예외를 추가하고, 우발자산이 취득일에 인식되지 않는다는 점을 명확히 하였습니다. 동 개정사항은 2023년 1월 1일 이후 시작하는 회계연도부터 적용되며, 조기적용이 허용됩니다. 회사는 상기 개정 기준서의 적용이 재무제표에 미치는 중요한 영향은 없습니다.
(나) 기업회계기준서 제1016호 '유형자산' (개정) - 의도한 사용 전의 매각금액
개정 기준서는 경영진이 의도한 방식으로 유형자산을 가동할 수 있는 장소와 상태에 이르게 하는 동안에 생산된 재화를 판매하여 얻은 매각금액과 그 재화의 원가는 당기손익으로 인식하도록 요구하며, 이로 인해 당기손익에 포함한 매각금액과 원가를 공시하도록 요구하고 있습니다. 동 개정사항은 2023년 1월 1일 이후 시작하는 회계연도부터 적용되며, 조기적용이 허용됩니다. 회사는 상기 개정 기준서의 적용이 재무제표에 미치는 중요한 영향은 없습니다.
(다) 기업회계기준서 제1037호 '충당부채, 우발부채 및 우발자산' (개정) - 손실부담계약: 계약이행원가
개정 기준서는 손실부담계약을 식별할 때 계약이행원가는 계약을 이행하는 데 드는 증분원가와 계약을 이행하는 데 직접 관련되는 그 밖의 원가 배분액으로 구성됨을 명확히 하였습니다. 동 개정사항은 2023년 1월 1일 이후 시작하는 회계연도부터 적용되며, 조기적용이 허용됩니다. 회사는 상기 개정 기준서의 적용이 재무제표에미치는 중요한 영향은 없습니다.
(라) 기업회계기준서 제 1116호 '리스' (개정) - 2021년 6월 30일 후에도 제공되는 코로나19 관련 임차료 할인 등
코로나19의 직접적인 결과로 발생한 임차료 할인 등(rent concession)이 리스변경에 해당하는지 평가하지 않을 수 있도록 하는 실무적 간편법의 적용대상이 2022년 6월 30일 이전에 지급하여야 할 리스료에 영향을 미치는 리스료 감면으로 확대되었습니다. 리스이용자는 비슷한 상황에서 특성이 비슷한 계약에 실무적 간편법을 일관되게 적용해야 합니다. 회사는 상기 개정 기준서의 적용이 재무제표에 미치는 중요한 영향은 없습니다.
(마) 한국채택국제회계기준 2018-2020 연차개선
기업회계기준서 제1109호 '금융상품': 금융부채 제거 목적의 10% 테스트관련 수수료에 차입자와 대여자 사이에서 지급하거나 수취한 수수료(상대방을 대신하여 지급하거나 수취한 수수료 포함)만 포함된다는 개정내용을 포함하여 기업회계기준서 제1101호 '한국채택국제회계기준의 최초 채택': 최초채택기업인 종속기업, 기업회계기준서 제1116호 '리스': 리스인센티브, 기업회계기준서 제1041호 '농림어업': 공정가치 측정에 대한 일부 개정내용이 있습니다. 동 연차개선은 2023년 1월 1일 이후 시작하는 회계연도부터 적용되며, 조기적용이 허용됩니다. 회사는 상기 개정 기준서의 적용이 재무제표에 미치는 중요한 영향은 없습니다.
2) 공표되었으나 아직 시행되지 않은 제ㆍ개정 기준서 및 해석서
당기말 현재 제정ㆍ공표되었으나 시행일이 도래하지 아니하였고, 회사가 조기 적용하지 아니한 제ㆍ개정 기업회계기준서 및 해석서는 다음과 같습니다.
(가) 기업회계기준서 제1001호 '재무제표 표시' (개정) - 부채의 유동·비유동 분류
부채의 분류는 기업이 보고기간 후 적어도 12개월 이상 부채의 결제를 연기할 권리의 행사 가능성에 영향을 받지 않으며, 부채가 비유동부채로 분류되는 기준을 충족한다면, 경영진이 보고기간 후 12개월 이내에 부채의 결제를 의도하거나 예상하더라도, 또는 보고기간말과 재무제표 발행승인일 사이에 부채를 결제하더라도 비유동부채로 분류합니다. 또한, 부채를 유동 또는 비유동으로 분류할 때 부채의 결제조건에 자기지분상품의 이전도 포함되나, 복합금융상품에서 자기지분상품으로 결제하는 옵션이 지분상품으로 분류되고 동 옵션을 부채와 분리하여 인식된 경우는 제외됩니다. 동개정사항은 2023년 1월 1일 이후 시작하는 회계연도부터 적용하며, 조기적용이 허용됩니다. 회사는 동 개정으로 인한 재무제표의 영향을 검토 중에 있습니다.
(나) 기업회계기준서 제 1001호 '재무제표 표시' (개정)
개정 기준서는 공시 대상 회계정책 정보를 '유의적인' 회계정책에서 '중요한' 회계정책으로 바꾸고 중요한 회계정책 정보의 의미를 설명하였습니다. 또한, 발행자의 주가변동에 따라 행사가격이 조정되는 조건(리픽싱 조건)이 있는 금융상품의 전부나 일부가 금융부채로 분류되는 경우에는 그 전환권이나 신주인수권에 대해 보고기간에 발생한 평가손익을 제외한 법인세비용차감전계속사업손익을 주석으로 공시하도록 2022년 12월 추가 개정되었습니다. 동 개정사항은 2023년 1월 1일 이후 시작하는 회계연도부터 적용되며, 조기적용이 허용됩니다. 회사는 동 개정으로 인해 재무제표에 중요한 영향은 없을 것으로 예상하고 있습니다.
(다) 기업회계기준서 제1008호 '회계정책, 회계추정의 변경 및 오류' (개정)
개정 기준서는 '회계추정치'를 측정불확실성의 영향을 받는 재무제표상 화폐금액으로 정의하고, 회계추정치의 예를 보다 명확히 하였습니다. 또한 새로운 정보의 획득, 새로운 상황의 전개나 추가 경험의 축적으로 투입변수나 측정기법을 변경한 경우 이러한 변경이 전기오류수정이 아니라면 회계추정치의 변경임을 명확히 하였습니다.
동 개정사항은 2023년 1월 1일 이후 시작하는 회계연도부터 전진 적용되며, 조기적용이 허용됩니다. 회사는 동 개정으로 인해 재무제표에 중요한 영향은 없을 것으로 예상하고 있습니다.
(라) 기업회계기준서 제 1012호 '법인세' (개정)
개정 기준서는 이연법인세 최초 인식 예외규정을 추가하여 단일 거래에서 자산과 부채를 최초 인식할 때 동일한 금액으로 가산할 일시적차이와 차감할 일시적차이가 생기는 경우 각각 이연법인세 부채와 자산을 인식하도록 하였습니다. 동 개정사항은 2023년 1월 1일 이후 시작하는 회계연도부터 적용되며, 조기적용이 허용됩니다.
'단일 거래에서 생기는 자산과 부채에 관련되는 이연법인세'는 비교 표시되는 가장 이른 기간의 시작일 이후에 이루어진 거래에 적용하며, 비교 표시되는 가장 이른 기간의 시작일에 이미 존재하는 (1) 사용권자산과 리스부채, (2) 사후처리 및 복구 관련 부채 및 이에 상응하여 자산 원가의 일부로 인식한 금액에 관련되는 모든 차감할 일시적 차이와 가산할 일시적 차이에 대해 이연법인세 자산과 부채를 인식하며, 최초 적용 누적 효과를 이익잉여금(또는 자본의 다른 구성요소) 기초 잔액을 조정하여 인식합니다. 회사는 동 개정으로 인해 재무제표에 중요한 영향은 없을 것으로 예상하고 있습니다.
(마) 기업회계기준서 제1001호 ' 재무제표 표시 ' - 행사가격 조정 조건이 있는 금융부채 평가손익 공시 (현재 공개초안이며 K-IFRS 개정 공표시 적용)
발행자의 주가 변동에 따라 행사가격이 조정되는 조건이 있는 금융상품의 전부나 일부가 금융부채로 분류되는 경우 그 금융부채의 장부금액과 관련 손익을 공시하도록 하였습니다. 동 개정사항은 2023년 1월 1일 이후 시작하는 회계연도부터 적용하며, 조기적용이 허용됩니다. 회사는 동 개정으로 인해 재무제표에 중요한 영향은 없을 것으로 예상하고 있습니다.
(바) 기업회계기준서 제1117호 '보험계약' 제정
기업회계기준서 제1117호 '보험계약'은 기업회계기준서 제1104호 '보험계약’을 대체합니다. 보험계약에 따른 모든 현금흐름을 추정하고 보고시점의 가정과 위험을 반영한 할인율을 사용하여 보험부채를 측정하고, 매 회계연도별로 계약자에게 제공한 서비스(보험보장)를 반영하여 수익을 발생주의로 인식하도록 합니다. 또한, 보험사건과 관계없이 보험계약자에게 지급하는 투자요소(해약/만기환급금)는 보험수익에서 제외하며, 보험손익과 투자손익을 구분 표시하여 정보이용자가 손익의 원천을 확인할 수 있도록 하였습니다. 동 기준서는 2023년 1월 1일 이후 최초로 시작하는 회계연도부터 적용되며, 기업회계기준서 제1109호 '금융상품'을 적용한 기업은 조기적용이 허용됩니다. 회사는 동 개정으로 인해 재무제표에 중요한 영향은 없을 것으로 예상하고 있습니다.
기준서의 개정으로 기업회계기준서 제1117호를 최초로 적용하는 기업은 비교기간에 대해 선택적 분류 조정('overlay')를 적용할 수 있습니다. 이러한 분류 조정은 기업회계기준서 제1117호의 적용범위에 포함되는 계약과 연관성이 없는 금융자산을 포함한 모든 금융자산에 적용할 수 있습니다. 금융자산에 분류 조정을 적용하는 기업은 기업회계기준서 제1109호의 분류와 측정 요구사항을 해당 금융자산에 적용해왔던 것처럼 비교정보를 표시하며, 이러한 분류 조정은 상품별로 적용할 수 있습니다.
(2) 재무제표 작성기준
1) 회계기준
재무제표는 주식회사 등의 외부감사에 관한 법률에서 규정하고 있는 국제회계기준위원회의 국제회계기준을 채택하여 정한 회계처리기준인 한국채택국제회계기준에 따라 작성되었습니다.
2) 측정기준
재무제표는 금융상품 등 아래의 회계정책에서 별도로 언급하고 있는 사항을 제외하고는 역사적원가를 기준으로 작성되었습니다.
3) 기능통화와 표시통화
재무제표는 회사의 기능통화이면서 표시통화인 "원(KRW)"으로 표시되고 있으며 별도로 언급하고 있는 사항을 제외하고는 "원(KRW)" 단위로 표시되고 있습니다.
(3) 별도재무제표에서 종속기업, 관계기업 및 공동기업에 대한 투자
재무제표는 기업회계기준서 제1027호 '별도재무제표'에 따른 별도재무제표로서 지배기업, 관계기업의 투자자 또는 공동기업의 참여자가 투자자산을 피투자자의 보고된 성과와 순자산에 근거하지 않고 직접적인 지분투자에 근거하여 원가법으로 표시한 재무제표이며, 종속기업, 관계기업 또는 공동기업으로부터 배당을 받을 권리가 확정되는 시점에 그 배당금을 별도재무제표에 당기손익으로 인식하고 있습니다.
(4) 외화환산
기능통화로 외화거래를 최초로 인식하는 경우에 거래일의 외화와 기능통화 사이의 현물환율을 외화금액에 적용하여 기록하며, 보고기간말 화폐성 외화항목은 마감환율로 환산하며, 역사적원가로 측정하는 비화폐성 외화항목은 거래일의 환율로 환산하고, 공정가치로 측정하는 비화폐성 외화항목은 공정가치가 결정된 날의 환율로 환산하고 있습니다.
화폐성항목의 결제시점에 생기는 외환차이와 화폐성항목의 환산에 사용한 환율이 회계기간 중 최초로 인식한 시점이나 전기의 재무제표 환산시점의 환율과 다르기 때문에 생기는 외환차이는 그 외환차이가 생기는 회계기간의 손익으로 인식하고 있으며,
일정요건을 충족하는 위험회피회계를 적용하는 외환차이 등은 기타포괄손익으로 보고하고 있습니다.
비화폐성항목에서 생긴 손익을 기타포괄손익으로 인식하는 경우에 그 손익에 포함된환율변동효과도 기타포괄손익으로 인식하며, 비화폐성항목에서 생긴 손익을 당기손익으로 인식하는 경우에는 그 손익에 포함된 환율변동효과도 당기손익으로 인식하고있습니다.
(5) 현금및현금성자산
회사는 보유현금과 요구불예금, 유동성이 매우 높은 단기 투자자산으로서 확정된 금액의 현금으로 전환이 용이하고 가치변동의 위험이 경미한 자산을 현금 및 현금성자산으로 분류하고 있습니다. 지분상품은 현금성자산에서 제외하고 있으며 다만 상환일이 정해져 있고 취득일로부터 상환일까지의 기간이 단기인 우선주와 같이 실질적인 현금성자산인 경우에는 현금성자산에 포함하고 있으며, 금융회사의 요구에 따라 즉시 상환하여야 하는 당좌차월은 현금및현금성자산의 구성요소에 포함하고 있습니다.
(6) 금융상품
1) 금융자산
금융자산은 금융상품의 계약당사자가 되는 때에만 재무상태표에 인식하고 있으며, 금융자산의 정형화된 매입이나 매도는 매매일 또는 결제일에 인식하고 있습니다. 금융상품의 최초 인식시점에 사업모형과 금융자산의 계약상 현금흐름의 특성에 따라금융자산은 당기손익-공정가치측정금융자산, 기타포괄손익-공정가치측정금융자산,상각후원가측정금융자산으로 분류하고 있습니다.
금융자산은 최초인식시 공정가치로 측정하고 있으며, 당기손익-공정가치금융자산이 아닌 경우 당해 금융자산의 취득과 직접 관련되는 거래원가는 최초인식하는 공정가치에 가산하여 측정하고 있습니다.
(가) 당기손익-공정가치측정금융자산
금융자산을 단기매매목적으로 보유하고 있거나, 당기손익-공정가치측정금융자산으로 지정하는 경우와 기타포괄손익-공정가치측정금융자산 또는 상각후원가측정금융자산으로 분류되지 않는 금융자산은 당기손익-공정가치측정금융자산으로 분류합니다.
또한 당기손익-공정가치측정금융자산의 지정이 서로 다른 기준에 따라 자산이나 부채를 측정하거나, 그에 따른 평가손익 등을 인식함으로써 발생할 수 있는 인식과 측정상의 불일치를 제거하거나 상당히 감소시킬 수 있는 경우에는 당기손익-공정가치 측정금융자산으로 지정할 수 있습니다.
당기손익-공정가치측정금융자산은 공정가치로 측정하며 공정가치 변동으로 인한 평가손익은 당기손익으로 인식하고 있습니다. 금융자산으로부터 획득한 배당금과 이자수익도 당기손익으로 인식합니다.
(나) 기타포괄손익-공정가치측정금융자산
채무증권 중 사업모형이 현금흐름 수취 및 매도 사업모형으로 분류되고 계약상 현금흐름이 원금과 이자만으로 구성되어 있는지에 대한 검토를 만족하는 금융자산이나 단기간 내 매도할 목적이 아닌 지분증권 중 기타포괄손익-공정가치측정금융자산으로 지정한 상품은 기타포괄손익-공정가치측정금융자산으로 분류하고 있습니다. 기타포괄손익-공정가치측정금융자산은 최초인식 후에 공정가치로 측정합니다. 공정가치의 변동으로 인하여 발생하는 손익은 유효이자율법에 따른 이자수익, 배당수익 및 손익으로 직접 인식되는 화폐성자산에 대한 외환차이를 제외하고는 자본의 기타포괄손익항목으로 인식하고 있습니다.
기타포괄손익-공정가치측정금융자산을 처분하는 경우 기타포괄손익으로 인식한 누적손익은 해당 기간의 당기손익으로 인식합니다. 다만, 기타포괄손익-공정가치측정 금융자산으로 지정한 지분증권에서 발생한 누적평가손익은 처분시 해당기간의 당기손익으로 인식되지 않습니다.
외화로 표시된 기타포괄손익-공정가치측정금융자산의 공정가치는 해당 외화로 측정되며 보고기간 말 현재 환율로 환산합니다. 공정가치 변동분 중 상각후원가의 변동으로 인한 환산차이에서 발생한 부분은 당기손익으로 인식하며 기타 변동은 자본으로 인식하고 있습니다.
(다) 상각후원가측정금융자산
사업모형이 현금흐름 수취로 분류되고 계약상현금흐름 특성 평가를 만족하는 금융자산은 상각후원가 측정 금융자산으로 분류합니다. 최초 인식 후에는 유효이자율법을 사용한 상각후원가로 측정하며, 이자수익은 유효이자율법을 사용하여 인식합니다.
(라) 금융자산의 제거
금융자산의 현금흐름에 대한 계약상 권리가 소멸하거나, 금융자산의 현금흐름에 대한 권리를 양도하고 금융자산의 소유에 따른 위험과 보상의 대부분을 이전할 때 금융자산을 제거하고 있습니다. 만약, 금융자산의 소유에 따른 위험과 보상의 대부분을 보유하지도 않고 이전하지도 아니한 경우, 회사가 금융자산을 통제하고 있지도 않다면 금융자산을 제거하고, 금융자산을 계속 통제하고 있다면 그 양도자산에 대하여 지속적으로 관여하는 정도까지 계속하여 인식하고, 관련 부채를 함께 인식하고 있습니다.
2) 금융자산(채무상품)의 기대신용손실
당기손익-공정가치측정금융자산을 제외한 상각후원가측정금융자산 및 기타포괄손익-공정가치측정채무상품은 매 보고기간 말에 기대신용손실을 평가하고 있습니다. 손실충당금의 측정방식은 신용위험의 유의적인 증가 여부에 따라 결정됩니다. 금융자산의 최초 인식 후 신용위험의 유의적인 증가 여부에 따라 아래 표와 같이 3단계로 구분하여 12개월 기대신용손실이나 전체기간 기대신용손실에 해당하는 금액으로 손실충당금을 인식합니다.
|
구 분 |
손실충당금 |
|
|---|---|---|
|
Stage 1 |
최초 인식 후 신용위험이 유의적으로 증가하지 않은 경우(주1) |
12개월 기대신용손실: 보고기간 말 이후 12개월 내에 발생 가능한 금융상품의 채무불이행 사건으로 인한 기대신용손실 |
|
Stage 2 |
최초 인식 후 신용위험이 유의적으로 증가한 경우 |
전체기간 기대신용손실: 기대존속기간에 발생할 수 있는 모든 채무불이행 사건으로 인한 기대신용손실 |
|
Stage 3 |
신용이 손상된 경우 |
|
(주1) 보고기간 말 신용위험이 낮은 경우에는 신용위험이 유의적으로 증가하지 않은 것으로 간주할 수 있음
최초 인식 시점에 신용이 손상된 금융자산에 대하여 최초 인식 후 전체기간 기대신용손실의 누적변동분만을 손실충당금으로 계상합니다.
한편, 매출채권, 계약자산, 리스채권 등에 대해서는 전체기간 기대신용손실에 해당하는 금액으로 손실충당금을 측정하는 간편법을 적용하고 있습니다.
기대신용손실은 일정 범위의 발생 가능한 결과를 확률가중한 값으로, 화폐의 시간가치를 반영하고, 보고기간 말에 과거사건, 현재 상황과 미래 경제적 상황에 대한 예측에 대한 과도한 원가나 노력 없이 이용할 수 있는 정보를 반영해 측정합니다.
3) 금융부채
금융부채는 금융상품의 계약당사자가 되는 때에만 재무상태표에 인식하고 있으며, 금융부채의 최초 인식시 당기손익-공정가치측정금융부채 또는 기타금융부채로 분류하고 공정가치로 측정하고 있습니다. 당기손익-공정가치측정금융부채를 제외하고는 해당 금융부채의 발생과 직접 관련되는 거래비용은 최초 측정시 공정가치에 차감하고 있습니다.
(가) 당기손익-공정가치측정부채
당기손익-공정가치측정금융부채는 최초 인식시점에 당기손익-공정가치측정금융부채로 지정한 금융부채를 포함하고 있습니다. 당기손익-공정가치측정금융부채는 최초 인식 후 공정가치로 측정하며, 공정가치의 변동은 당기손익으로 인식하고 있습니다. 한편,최초 인식시점에 발행과 관련하여 발생한 거래비용은 발생 즉시 당기손익으로 인식하고 있습니다.
(나) 당기손익-공정가치측정부채로 분류되지 않는 금융부채
당기손익-공정가치측정부채로 분류되지 않는 금융부채는 다음의 금융부채를 제외하고는 최초인식 후 유효이자율법을 사용하여 상각후원가로 측정하고 있습니다.
금융자산의 양도가 제거 조건을 충족하지 못하거나 지속적관여접근법이 적용되는 경우에 발생하는 금융부채의 경우, 양도자산을 상각후원가로 측정한다면 양도자산과 관련부채의 순장부금액이 양도자가 보유하는 권리와 부담하는 의무의 상각후원가가 되도록 관련부채를 측정하며, 양도자산을 공정가치로 측정한다면 양도자산과 관련부채의 순장부금액이 양도자가 보유하는 권리와 부담하는 의무의 독립적으로 측정된 공정가치가 되도록 관련부채를 측정하고 있습니다.
금융보증부채(금융자산의 양도가 제거 조건을 충족하지 못하거나 지속적관여접근법이 적용되는 경우에 발생하는 금융부채 제외)와 시장이자율보다 낮은 이자율로 대출하기로 한 약정은 기대신용손실모형에 따른 손실충당금과 최초인식금액에서 이익누계액을 차감한 금액 중 큰 금액으로 측정됩니다.
(다) 금융부채의 제거
금융부채(또는 금융부채의 일부)는 소멸한 경우(즉, 계약상 의무가 이행, 취소 또는 만료된 경우)에만 재무상태표에서 제거하고 있습니다. 기존 차입자와 대여자가 실질적으로 다른 조건으로 채무상품을 교환하거나 기존 금융부채(또는 금융부채의 일부)의 조건이 실질적으로 변경된 경우 최초의 금융부채를 제거하고 새로운 금융부채를 인식하고 있으며, 소멸하거나 제3자에게 양도한 금융부채(또는 금융부채의 일부)의 장부금액과 지급한 대가의 차액은 당기손익으로 인식하고 있습니다.
4) 금융자산과 금융부채의 상계
회사는 인식한 자산과 부채에 대해 법적으로 집행가능한 상계권리를 현재 보유하고 있으면서 순액으로 결제하거나 자산을 실현하는 동시에 부채를 결제할 의도를 가지고 있는 경우에 금융자산과 금융부채를 상계하고 재무상태표에 순액으로 표시하고 있습니다.
5) 부채와 자본의 분류
채무상품과 지분상품은 계약의 실질 및 금융부채와 지분상품의 정의에 따라 금융부채 또는 자본으로 분류하고 있습니다.
(7) 재고자산
재고자산의 취득원가는 매입원가, 전환원가 및 재고자산을 현재의 장소에 현재의 상태로 이르게 하는 데 발생한 기타 원가 모두를 포함하고 있으며, 재고자산의 단위원가는 총평균법을 사용하여 결정하고 있습니다.
재고자산은 취득원가와 순실현가능가치 중 낮은 금액으로 측정하고 있습니다. 순실현가능가치는 통상적인 영업과정의 예상 판매가격에서 예상되는 추가 완성원가와 판매비용을 차감한 금액으로서 매 후속기간에 순실현가능가치를 재평가하고 있습니다.
재고자산의 판매시 관련된 수익을 인식하는 기간에 재고자산의 장부금액을 비용으로인식하고 있으며 재고자산을 순실현가능가치로 감액한 평가손실과 모든 감모손실은 감액이나 감모가 발생한 기간에 비용으로 인식하며, 순실현가능가치의 상승으로 인한 재고자산 평가손실의 환입은 환입이 발생한 기간의 비용으로 인식된 재고자산 금액의 차감액으로 인식하고 있습니다.
(8) 유형자산
유형자산은 최초 인식시점에 원가로 측정하고 최초 인식 이후 취득원가에서 감가상각누계액과 손상차손누계액을 차감한 금액을 장부금액으로 표시하고 있습니다. 유형자산의 원가는 관세 및 환급불가능한 취득 관련 세금을 가산하고 매입할인과 리베이트 등을 차감한 구입가격, 경영진이 의도하는 방식으로 자산을 가동하는 데 필요한 장소와 상태에 이르게 하는 데 직접 관련되는 원가와 자산을 해체, 제거하거나 부지를 복구하는 데 소요될 것으로 최초에 추정되는 원가로 구성되고 있습니다.
후속원가는 자산으로부터 발생하는 미래경제적효익이 유입될 가능성이 높으며, 자산의 원가를 신뢰성 있게 측정할 수 있는 경우 자산의 장부금액에 포함하거나 적절한 경우 별도의 자산으로 인식하고 있으며, 일상적인 수선ㆍ유지와 관련하여 발생하는 원가는 발생시점에 당기손익으로 인식하고 있습니다.
유형자산 중 토지에 대해서는 감가상각을 하지 않으며, 토지를 제외한 유형자산은 아래의 내용연수와 감가상각방법을 적용하여 감가상각하고 있습니다.
| 구 분 | 내 용 연 수 | 감가상각방법 |
|---|---|---|
| 건물 | 40년 | 정액법 |
| 차량운반구 | 5년 | 정액법 |
| 공구와기구 | 5년 | 정액법 |
| 비품 | 5년 | 정액법 |
| 시설장치 | 5년 | 정액법 |
| 금형 | 5년 | 정액법 |
유형자산을 구성하는 일부의 원가가 당해 유형자산의 전체원가에 비교하여 유의적이라면 해당 유형자산을 감가상각할 때 그 부분은 별도로 구분하여 감가상각하고 있습니다.
유형자산의 감가상각방법, 잔존가치 및 내용연수는 매 보고기간말에 재검토하고 있으며, 이를 변경하는 것이 적절하다고 판단되는 경우 회계추정의 변경으로 회계처리하고 있습니다.
유형자산의 장부금액은 처분하는 때, 사용이나 처분을 통하여 미래경제적효익이 기대되지 않을 때 제거하고 있으며 제거로 인하여 발생하는 손익은 자산을 제거할 때 당기손익으로 인식하고 있습니다.
(9) 무형자산
회사는 자산에서 발생하는 미래경제적효익이 기업에 유입될 가능성이 높고 자산의 원가를 신뢰성 있게 측정할 수 있는 경우에 무형자산으로 인식하고 있으며, 최초 인식 후에 무형자산은 원가에서 상각누계액과 손상차손누계액을 차감한 금액을 장부금액으로 하고 있습니다.
1) 개별취득
개별 취득하는 무형자산의 원가는 구입가격(매입할인과 리베이트를 차감하고 수입관세와 환급받을 수 없는 제세금을 포함)과 자산을 의도한 목적에 사용할 수 있도록 준비하는 데 직접 관련되는 원가로 구성되고 있습니다.
2) 영업권
사업결합과 관련하여 이전대가, 피취득자에 대한 비지배지분의 금액 및 단계적으로 이루어지는 사업결합의 경우 회사가 이전에 보유하고 있던 피취득자에 대한 지분의 취득일의 공정가치의 합계금액이 취득일의 식별가능한 취득 자산과 인수 부채의 순액을 초과하는 경우 그 초과금액을 영업권으로 인식하고 있습니다.
3) 사업결합으로 인한 취득
사업결합으로 취득하는 영업권과 분리하여 인식하는 무형자산의 취득원가는 취득일의 공정가치로 측정하고 있습니다.
4) 내부적으로 창출한 무형자산
연구(또는 내부 프로젝트의 연구단계)에서 발생한 지출은 발생시점에 비용으로 인식하고 있으며, 무형자산을 사용하거나 판매하기 위해 그 자산을 완성할 수 있는 기술적 실현가능성,무형자산을 완성하여 사용하거나 판매하려는 기업의 의도, 무형자산을 사용하거나 판매할 수 있는 기업의 능력, 무형자산이 미래경제적효익을 창출하는 방법, 무형자산의 개발을 완료하고 그것을 판매하거나 사용하는 데 필요한 기술적, 재정적 자원 등의 입수가능성, 개발과정에서 발생한 무형자산 관련 지출을 신뢰성 있게 측정할 수 있는 기업의 능력을 모두 제시할 수 있는 경우에만 개발활동(또는 내부 프로젝트의 개발단계)에서 발생한 무형자산을 인식하고 있습니다. 내부적으로 창출한 무형자산의 원가는 무형자산의 인식기준을 최초로 충족시킨 이후에 발생한 지출금액의 합으로 하며 그 자산의 창출, 제조 및 경영자가 의도하는 방식으로 운영될 수 있게 준비하는 데 필요한 직접 관련된 모든 원가를 포함하고 있습니다. 내부적으로 창출한 영업권은 자산으로 인식하지 아니하고 있습니다.
5) 내용연수 및 상각
내용연수가 유한한 무형자산의 경우 상각대상금액은 자산이 사용가능한 때부터 내용연수동안 정액법으로 배분하고 있습니다. 상각대상금액은 잔존가치를 차감하여 결정하고 있으며, 잔존가치는 내용연수 종료 시점에 제 3자가 자산을 구입하기로 한 약정이 있거나, 무형자산의 활성시장이 있어 잔존가치를 그 활성시장에 기초하여 결정할 수 있고 그러한 활성시장이 내용연수 종료 시점에 존재할 가능성이 높은 경우를 제외하고는 영(0)으로 하고 있습니다. 내용연수가 유한한 무형자산의 상각기간과 상각방법은 매 보고기간말에 재검토하고 있으며 이를 변경하는 것이 적절하다고 판단되는 경우 회계추정의 변경으로 회계처리하고 있습니다.
내용연수가 비한정인 무형자산은 상각하지 아니하며, 매 보고기간말 혹은 손상을 시사하는 징후가 있을 때 회수가능액과 장부금액을 비교하여 손상검사를 수행하고 있습니다. 무형자산의 내용연수가 비한정이라는 평가를 계속하여 정당화하는지를 매 보고기간말에 재검토하여 적절하지 않은 경우 회계추정의 변경으로 처리하고 있습니다.
무형자산은 아래의 내용연수와 상각방법을 적용하고 있습니다.
| 구 분 | 내 용 연 수 | 상각방법 |
|---|---|---|
| 소프트웨어 | 5년 | 정액법 |
| 산업재산권 | 5년 | 정액법 |
6) 무형자산의 제거
무형자산은 처분하는 때, 사용이나 처분으로부터 미래경제적효익이 기대되지 않을 때 재무상태표에서 제거하며 무형자산의 제거로 인하여 발생하는 이익이나 손실은 순매각가액과 장부금액의 차이로 결정하고 자산을 제거할 때 당기손익으로 인식하고있습니다.
(10) 정부보조금
회사는 정부보조금에 부수되는 조건의 준수와 보조금 수취에 대한 합리적인 확신이 있을 경우에만 정부보조금을 인식하고 있으며 시장이자율보다 낮은 이자율의 정부대여금의 효익은 정부보조금으로 처리하고 있습니다.
수익관련정부보조금은 정부보조금으로 보전하려 하는 관련원가와 대응시키기 위해 필요한 기간에 걸쳐 체계적인 기준에 따라 정부보조금을 수익으로 인식하며, 자산관련정부보조금은 자산의 장부금액을 결정할 때 차감하여 표시하고 감가상각자산의 내용연수에 걸쳐 감가상각비를 감소시키는 방식으로 당기손익으로 인식하고 있습니다.
이미 발생한 비용이나 손실에 대한 보전 또는 향후의 관련원가 없이 회사에 제공되는즉각적인 금융지원으로 수취하는 정부보조금은 정부보조금을 수취할 권리가 발생하는 기간에 수익으로 인식하며, 비화폐성자산을 정부보조금으로 수취하는 경우 비화폐성자산의 공정가치를 평가하여 보조금과 자산 모두를 그 공정가치로 회계처리하고있습니다. 상환의무가 발생하게 된 정부보조금은 회계추정의 변경으로 회계처리하고 있습니다.
(11) 리스
리스는 리스제공자가 대가와 교환하여 식별되는 자산의 사용 통제권을 일정기간 동안 리스이용자에게 이전하는 계약입니다. 회사는 계약의 약정시점에, 계약 자체가 리스인지, 계약이 리스를 포함하는지를 판단합니다.
리스이용자 및 리스제공자는 리스계약이나 리스를 포함하는 계약에서 계약의 각 리스요소를 리스가 아닌 요소(이하'비리스요소'라고 함)와 분리하여 리스로 회계처리합니다. 다만, 회사는 리스이용자로서의 회계처리에서 실무적 간편법을 적용하여 비리스요소를 리스요소와 분리하지 않고 각 리스요소와 관련 비리스요소를 하나의 리스요소로 회계처리합니다.
회사는 리스개시일에 기초자산을 사용할 권리를 나타내는 사용권자산과 리스료를 지급할 의무를 나타내는 리스부채를 인식합니다. 다만 회사는 단기리스와 소액기초자산리스에 대하여 리스이용자의 인식, 측정 및 표시 규정을 적용하지 않는 예외규정을선택하였습니다.
사용권자산은 리스개시일에 원가로 측정하고, 후속적으로 원가에서 감가상각누계액과 손상차손누계액을 차감하고, 리스부채의 재측정에 따른 조정을 반영하여 측정합니다. 또한 사용권자산은 리스개시일부터 사용권자산의 내용연수 종료일과 리스기간종료일 중 이른 날까지 감가상각합니다.
(12) 충당부채
충당부채는 과거사건의 결과로 현재의무가 존재하고, 당해 의무를 이행하기 위하여 경제적효익을 갖는 자원이 유출될 가능성이 높으며 당해 의무의 이행에 소요되는 금액을 신뢰성 있게 추정할 수 있는 경우에 인식하고 있습니다.
충당부채로 인식하는 금액은 현재의무를 보고기간말에 이행하기 위하여 소요되는 지출에 대한 최선의 추정치로서 최선의 추정치를 구할 때에는 관련된 사건과 상황에 대한 불가피한 위험과 불확실성을 고려하고 있습니다. 화폐의 시간가치 효과가 중요한 경우 충당부채는 의무를 이행하기 위하여 예상되는 지출액의 현재가치로 평가하고 있으며 할인율은 부채의 고유한 위험과 화폐의 시간가치에 대한 현행 시장의 평가를 반영한 세전 이율이며 이 할인율에 반영되는 위험에는 미래 현금흐름을 추정할 때 고려된 위험은 반영하지 아니하고 있습니다. 현재의무를 이행하기 위하여 소요되는 지출 금액에 영향을 미치는 미래사건이 발생할 것이라는 충분하고 객관적인 증거가 있는 경우에는 그러한 미래사건을 감안하여 충당부채 금액을 추정하고 있으며, 자산의 예상처분이익은 충당부채를 측정하는 데 고려하지 아니하고 있습니다.
충당부채를 결제하기 위하여 필요한 지출액의 일부 또는 전부를 제 3자가 변제할 것이 예상되는 경우 회사가 의무를 이행한다면 변제를 받을 것이 거의 확실하게 되는 때에 한하여 변제금액을 인식하고 별도의 자산으로 회계처리하고 있으며 자산으로 인식하는 금액은 관련 충당부채 금액을 초과할 수 없습니다.
매 보고기간말마다 충당부채의 잔액을 검토하고, 보고기간말 현재 최선의 추정치를 반영하여 조정하며 의무이행을 위하여 경제적효익을 갖는 자원이 유출될 가능성이 더 이상 높지 아니한 경우에는 관련 충당부채를 환입하고 있습니다. 충당부채는 최초인식과 관련있는 지출에만 사용하고 있습니다.
(13) 주식기준보상
주식기준보상거래에서 제공받는 재화나 용역은 그 재화나 용역을 제공받는 날에 인식하고 있습니다. 주식결제형 주식기준보상거래로 재화나 용역을 제공받는 경우에는그에 상응한 자본의 증가를 인식하고, 현금결제형 주식기준보상거래로 재화나 용역을 제공받는 경우에는 그에 상응한 부채의 증가를 인식하고 있으며, 주식기준보상거래에서 제공받는 재화나 용역이 자산의 인식요건을 충족하지 못하는 경우에는 비용으로 인식하고 있습니다.
1) 주식결제형 주식기준보상거래
회사가 재화나 용역을 제공받는 대가로 자신의 지분상품(주식 또는 주식선택권 등)을부여하는 주식기준보상거래 혹은 재화나 용역을 제공받지만 이를 제공한 자에게 주식기준보상거래를 결제할 의무가 없는 주식기준보상거래에 대하여, 제공받는 재화나용역과 그에 상응하는 자본의 증가를 제공받는 재화나 용역의 공정가치로 직접 측정하며, 제공받는 재화나 용역의 공정가치를 신뢰성 있게 추정할 수 없다면 제공받는 재화나 용역과 그에 상응하는 자본의 증가는 부여한 지분상품의 공정가치에 기초하여 간접 측정하고 있습니다. 특정기간의 용역을 제공하여야 부여된 지분상품이 가득되는 경우 지분상품의 대가에 해당하는 용역을 미래 가득기간에 제공받는 것으로 보아 당해 용역은 가득기간에 배분하여 인식하며 그에 상응하여 자본의 증가를 인식하고 있습니다.
시장조건이 아닌 가득조건은 거래금액 측정시 포함되는 지분상품의 수량을 조정할 때 고려하여 부여한 지분상품의 대가로 제공받는 재화나 용역에 대해 인식하는 금액이 궁극적으로 가득되는 지분상품의 수량에 기초하여 결정될 수 있도록 하고 있으며 후속적인 정보에 비추어 볼 때 미래에 가득될 것으로 예상되는 지분상품의 수량이 직전 추정치와 다르다면 당해 추정치를 변경하여 가득일에는 궁극적으로 가득된 지분상품의 수량과 일치하도록 당해 추정치를 변경하고 있습니다. 목표주가와 같은 시장조건은 부여한 지분상품의 공정가치를 추정할 때 고려하고 있습니다.
지정된 가득조건(시장조건 제외)이 충족되지 않아 지분상품이 가득되지 못하는 경우를 제외하고는 지분상품을 부여한 당시의 조건을 변경하는지, 부여한 지분상품을 취소하거나 중도청산하는지 여부와 관계없이 제공받는 근무용역은 최소한 지분상품의 부여일당시의 공정가치에 따라 인식하고 있으며 주식기준보상약정의 총공정가치를 증가시키거나 종업원에게 유리하게 조건을 변경하는 경우에는 추가로 조건변경의 효과를 인식하고 있습니다.
부여한 지분상품이 가득기간 중에 취소되거나 중도청산되는 경우에는 취소나 중도청산으로 인해 부여한 지분상품이 일찍 가득된 것으로 보아 취소나 중도청산이 없다면 잔여가득기간에 제공받을 용역에 대해 인식될 금액을 즉시 인식하며, 취소나 중도청산시 종업원 등에게 지급하는 금액은 자기지분상품의 재매입으로 보아 자본에서 차감하고 있습니다.
2) 현금결제형 주식기준보상거래
회사가 재화나 용역을 제공받는 대가로 회사의 지분상품(주식 또는 주식선택권 등)의가격(또는 가치)에 기초한 금액만큼 현금이나 그 밖의 자산을 지급해야 하는 부채를 재화나 용역의 공급자에게 부담하는 주식기준보상거래에 대하여 제공받는 재화나 용역과 그 대가로 부담하는 부채를 부채의 공정가치로 측정하고 부채가 결제될 때까지 매 보고기간말과 결제일에 부채의 공정가치를 재측정하고 공정가치의 변동액은 당기손익으로 인식하고 있으며, 종업원에게서 제공받는 근무용역과 그 대가로 부담하는 부채는 근무용역을 제공받는 기간에 인식하고 있습니다.
(14) 수익
회사는 기업회계기준서 제1115호 '고객과의 계약에서 생기는 수익'의 적용범위에 포함되는 고객과의 모든 계약에 5단계 수익인식모형(① 계약 식별 → ② 수행의무 식별 → ③ 거래가격 산정 → ④ 거래가격을 수행의무에 배분 →⑤ 수행의무 이행 시 수익 인식)을 적용하여 수익을 인식합니다.
1) 수행의무의 식별
회사는 유아용품 등을 제조하여 고객에게 판매하는 사업을 영위하고 있습니다. 회사는 ① 고객이 재화나 용역 그 자체에서 효익을 얻거나 고객이 쉽게 구할 수 있는 다른 자원과 함께하여 그 재화나 용역에서 효익을 얻을 수 있고, ② 고객에게 재화나 용역을 이전하기로 하는 약속을 계약 내의 다른 약속과 별도로 식별해 낼 수 있다면 구별되는 별도의 수행의무로 식별합니다. 고객과의 계약에서 제품의 공급과 배송용역과 같이 구별되는 수행의무를 식별하여 수익을 인식하였습니다. 또한, 각각의 수행의무를 한 시점에 이행하는지 기간에 걸쳐 이행하는지에 따라 회사의 수익인식 시점이 변경되었습니다.
2) 한 시점에 이행하는 수행의무
재화의 판매에 따른 수익은 자산을 이전하여 수행의무를 이행할 때 인식하고 있으며,한 시점에 이행하는 수행의무는 제품이 고객에게 이전되고 고객이 구매를 확정하는 시점에 이행되고 있습니다. 회사는 수행의무를 이행하는 시점을 판단하기 위한 통제 이전의 지표로 다음을 참고하고 있습니다.
① 기업은 자산에 대해 현재 지급청구권이 있다
② 고객에게 자산의 법적 소유권이 있다
③ 기업이 자산의 물리적 점유를 이전하였다
④ 자산의 소유에 따른 유의적인 위험과 보상이 고객에게 있다
⑤ 고객이 자산을 인수하였다
3) 기간에 걸쳐 이행하는 수행의무
회사는 고객에게 회사의 제품을 고객에게 배송용역을 제공하는 계약을 체결하였습니다. 회사는 다음 기준 중 어느 하나를 충족하는 경우 재화나 용역에 대한 통제를 기간에 걸쳐 이전하므로, 기간에 걸쳐 수행의무를 이행하는 것으로 보아 기간에 걸쳐 수익을 인식하고 있습니다.
① 고객은 기업이 수행하는 대로 기업의 수행에서 제공하는 효익을 동시에 얻고 소비한다
② 기업이 수행하여 만들어지거나 가치가 높아지는 대로 고객이 통제하는 자산을 회사가 만들거나 그 자산 가치를 높인다
③ 기업이 수행하여 만든 자산이 기업 자체에는 대체 용도가 없고 지금까지 수행을 완료한 부분에 대해 집행 가능한 지급청구권이 기업에 있다
4) 변동대가
회사는 계약에서 약속한 대가에 변동금액이 포함된 경우에 고객에게 약속한 재화나 용역을 이전하고 그 대가로 받을 권리를 갖게 될 금액을 추정하고 있습니다. 대가는 할인(discount), 리베이트, 환불, 공제(credits), 가격할인(price concessions), 장려금(incentives), 성과보너스, 위약금이나 그 밖의 비슷한 항목 때문에 변동될 수 있습니다. 회사가 대가를 받을 권리가 미래 사건의 발생 여부에 달려있는 경우에도 약속한 대가는 변동될 수 있습니다. 예를 들면 반품권을 부여하여 제품을 판매하거나 특정 단계에 도달해야 고정금액의 성과보너스를 주기로 약속한 경우에 대가는 변동될 수 있습니다.
5) 유의적인 금융요소
회사는 거래가격을 산정할 때, 계약 당사자들 간에 합의한 지급시기 때문에 고객에게재화나 용역을 이전하면서 유의적인 금융 효익이 고객이나 기업에 제공되는 경우에는 화폐의 시간가치가 미치는 영향을 반영하여 약속된 대가를 조정하고 있습니다.
6) 거래가격의 배분
회사는 하나의 계약에서 식별된 여러 수행의무에 상대적 개별 판매가격을 기초로 거래가격을 배분합니다. 회사는 각 수행의무의 개별 판매가격을 추정하기 위하여 '시장평가 조정 접근법'을 사용합니다.
7) 고객충성제도
회사는 고객충성제도를 운영하고 있습니다. 고객은 구매를 통해 누적된 포인트를 미래 구매 시 할인에 사용할 수 있습니다. 보상점수로부터의 수익은 포인트가 상환되거나 소멸될 때 인식합니다. 또한 계약부채는 포인트가 상환되거나 소멸될 때까지 인식합니다. 포인트는 고객이 계약을 체결하지 않았다면 받을 수 없었던 중요한 권리를 고객에게 제공합니다. 따라서, 고객에게 포인트를 제공하는 약속은 별도의 수행의무입니다. 수행의무별 거래가격은 상품과 포인트의 개별 판매가격을 기준으로 배분됩니다. 경영진은 포인트의 개별 판매가격을 포인트가 상환될 때 부여되는 할인과 과거경험에 기초한 상환 가능성에 근거하여 추정합니다.
8) 계약자산 및 계약부채
계약자산은 기업이 고객에게 이전한 재화나 용역에 대하여 그 대가를 받을 기업의 권리이며, 계약부채는 기업이 고객에게서 이미 받은 대가(또는 지급기일이 된 대가)에 상응하여 고객에게 재화나 용역을 이전하여야 하는 기업의 의무로 정의됩니다. 회사는 한 계약에서 발생한 계약자산과 계약부채는 상계하여 순액으로 재무상태표에 표시하고 있습니다.
(15) 종업원급여
1) 단기종업원급여
단기종업원급여는 임금, 사회보장분담금, 종업원이 관련 근무용역을 제공하는 회계기간의 말부터 12개월 이내에 결제될 유급연차휴가 또는 유급병가 등과 같은 단기유급휴가, 종업원이 관련 근무용역을 제공하는 회계기간의 말부터 12개월 이내에 지급될 이익분배금과 상여금 및 현직종업원을 위한 비화폐성급여를 포함하고 있습니다. 종업원이 회계기간에 근무용역을 제공한 때 근무용역과 교환하여 지급이 예상되는 단기종업원급여의 할인되지 않은 금액을 이미 지급한 금액을 차감한 후 미지급비용으로 인식하며, 이미 지급한 금액이 해당 급여의 할인되지 않은 금액보다 많은 경우에는 그 초과액 때문에 미래 지급액이 감소하거나 현금이 환급되는 만큼을 선급비용으로 인식하며, 다른 한국채택국제회계기준서에 따라 해당 급여를 자산의 원가에 포함하는 경우를 제외하고는 비용으로 인식하고 있습니다.
2) 퇴직급여
확정기여제도는 회사가 별개의 실체(기금)에 고정 기여금을 납부하고 회사의 법적의무나 의제의무는 기금에 출연하기로 약정한 금액으로 한정되며 종업원이 받을 퇴직급여액은 회사와 종업원이 퇴직급여제도나 보험회사에 출연하는 기여금과 그 기여금에서 발생하는 투자수익에 따라 결정되는 퇴직급여제도입니다. 일정기간 종업원이 근무용역을 제공하였을 때 그 근무용역과 교환하여 확정기여제도에 납부해야 할 기여금은 이미 납부한 기여금을 차감한 후 미지급비용으로 인식하고, 이미 납부한 기여금이 보고기간말 이전에 제공된 근무용역에 대해 납부하여야 하는 기여금을 초과하는 경우에는 초과 기여금 때문에 미래 지급액이 감소하거나 현금이 환급되는 만큼을 선급비용으로 인식하며, 다른 한국채택국제회계기준서에 따라 해당 기여금을 자산의 원가에 포함하는 경우를 제외하고는 비용으로 인식하고 있습니다.
3) 기타장기종업원급여
기타장기종업원급여는 종업원이 관련 근무용역을 제공한 회계기간의 말부터 12개월이 지난 후에 결제될 것으로 예상되는 장기유급휴가, 그 밖의 장기근속급여, 장기장애급여, 이익분배금과 상여금, 이연보상을 포함하고 있습니다. 기타장기종업원급여와 관련하여 부채로 인식할 금액은 보고기간말 현재 확정급여채무의 현재가치에서 관련 확정급여채무를 직접 결제하는 데 사용할 수 있는 사외적립자산의 보고기간말 현재 공정가치를 차감하여 인식하고 있습니다.
4) 해고급여
해고급여에 대한 부채와 비용은 회사가 해고급여의 제안을 더 이상 철회할 수 없을 때와 기업회계기준서 제1037호 '충당부채, 우발부채, 우발자산'의 적용범위에 포함되고 해고급여의 지급을 수반하는 구조조정에 대한 원가를 인식할 때 중 이른 날에인식합니다.
(16) 자산손상
재고자산, 기업회계기준서 제1115호 '고객과의 계약에서 생기는 수익'에 따라 인식하는 계약자산과 계약을 체결하거나 이행하기 위해 든 원가에서 생기는 자산, 이연법인세자산, 종업원급여에서 생기는 자산,금융자산, 공정가치로 측정되는 투자부동산, 매각예정비유동자산 등을 제외한 모든 자산의 손상은 아래의 방법으로 손상차손을 인식하고 있습니다.
내용연수가 비한정인 무형자산, 아직 사용할 수 없는 무형자산 및 사업결합으로 취득한 영업권에 대해서는 자산손상을 시사하는 징후가 있는지에 관계없이 매년 회수가능액을 추정하고 장부금액과 비교하여 손상검사를 하고 있으며, 그 외의 자산은 매 보고기간말마다 자산손상을 시사하는 징후가 있는지를 검토하고 그러한 징후가 있다면 개별 자산별로 회수가능액을 추정하며 개별 자산의 회수가능액을 추정할 수 없다면 그 자산이 속하는 현금창출단위의 회수가능액을 추정하고 있습니다.
자산의 회수가능액은 자산 또는 현금창출단위의 순공정가치와 사용가치 중 더 많은 금액으로 측정하고 있습니다. 자산의 회수가능액이 장부금액에 미달하는 경우 자산의 장부금액을 회수가능액으로 감소시키며, 손상차손은 즉시 당기손익으로 인식하고 있습니다.
손상검사 목적상 사업결합으로 취득한 영업권은 사업결합으로 인한 시너지효과의 혜택을 받게 될 것으로 기대되는 각 현금창출단위에 취득일로부터 배분되고 있습니다. 영업권이 배분된 현금창출단위에 대해서는 매년 그리고 손상을 시사하는 징후가 있을 때마다 영업권을 포함한 현금창출단위의 장부금액과 회수가능액을 비교하여 손상검사를 하고 있으며 현금창출단위의 장부금액이 회수가능액을 초과하는 경우에는 손상차손을 인식하고 있습니다. 현금창출단위의 손상차손은 우선 현금창출단위에 배분된 영업권의 장부금액을 감소시키고 그 다음 현금창출단위에 속하는 다른 자산에 각각 장부금액에 비례하여 배분하고 있습니다.
매 보고기간말마다 영업권을 제외한 자산에 대해 과거에 인식한 손상차손이 더 이상 존재하지 않거나 감소된 것을 시사하는 징후가 있는지를 검토하여 징후가 있는 경우 당해 자산의 회수가능액을 추정하고 있으며 직전 손상차손의 인식시점 이후 회수가능액을 결정하는 데 사용된 추정치에 변화가 있는 경우에만 환입하고 있습니다. 손상차손환입으로 증가된 장부금액은 과거에 손상차손을 인식하기 전 장부금액의 감가상각 또는 상각 후 잔액을 초과할 수 없으며, 손상차손환입은 즉시 당기손익으로 인식하고 있습니다. 현금창출단위의 손상차손환입은 현금창출단위를 구성하는 자산들(영업권 제외)의 장부금액에 비례하여 배분하며, 영업권에 대해 인식한 손상차손은 후속기간에 환입하지 않고 있습니다.
(17) 법인세
법인세비용(수익)은 당기법인세비용(수익)과 이연법인세비용(수익)으로 구성되고 있습니다. 당기법인세와 이연법인세는 수익이나 비용으로 인식하여 당기손익에 포함하고 있으며, 동일 회계기간 또는 다른 회계기간에 자본에 직접 가감되는 항목과 관련된 당기법인세와 이연법인세는 자본에 직접 가감하고 있습니다.
1) 당기법인세
당기법인세는 회계기간의 과세소득(세무상결손금)에 대하여 납부할(환급받을) 법인세액이며, 과세소득(세무상결손금)은 과세당국이 제정한 법규에 따라 납부할(환급받을) 법인세를 산출하는 대상이 되는 회계기간의 이익(손실)으로서 포괄손익계산서의 손익과는 차이가 있습니다.
당기 및 과거기간의 당기법인세부채(자산)는 보고기간말까지 제정되었거나 실질적으로 제정된 세율(및 세법)을 사용하여, 과세당국에 납부할(과세당국으로부터 환급받을) 것으로 예상되는 금액으로 측정하고 있습니다.
당기 및 과거기간의 당기법인세 중 납부되지 않은 부분을 부채로 인식하며, 과거기간에 납부하여야 할 금액을 초과해서 납부하였다면 그 초과금액은 자산으로 인식하고 있으며, 과거 회계기간의 당기법인세에 대하여 소급공제가 가능한 세무상결손금과 관련된 혜택은 자산으로 인식하고 있습니다.
2) 이연법인세
회사는 모든 가산할 일시적차이에 대하여 이연법인세부채를 인식하고 있습니다. 다만 영업권을 최초로 인식하는 경우와 자산·부채가 최초로 인식되는 거래가 사업결합거래가 아니고 거래 당시의 회계이익이나 과세소득(세무상결손금)에 영향을 미치지 아니하는 거래인 경우 및 종속기업·지점 및 관계기업에 대한 투자자산 그리고 공동약정투자지분과 관련된 가산할 일시적차이에 대하여 지배기업· 투자자 또는 참여자가 일시적차이의 소멸시점을 통제할 수 있고 예측가능한 미래에 일시적차이가 소멸하지 않을 가능성이 높을 경우에 발생하는 이연법인세부채는 인식하지 아니하고 있습니다.
회사는 차감할 일시적차이가 사용될 수 있는 과세소득의 발생가능성이 높은 경우에 모든 차감할 일시적차이에 대하여 이연법인세자산을 인식하고 있습니다. 다만, 자산이나 부채를 최초로 인식할 때 발생하는 거래로 사업결합거래가 아니고 거래 당시 회계이익이나 과세소득(세무상결손금)에 영향을 미치지 않는 거래인 경우 및 종속기업·지점 및 관계기업에 대한 투자자산 그리고 공동약정투자지분과 관련된 모든 차감할 일시적차이에 대하여 일시적차이가 예측가능한 미래에 소멸할 가능성이 높지않거나 일시적차이가 사용될 수 있는 과세소득이 발생할 가능성이 높지 않은 경우에는 이연법인세자산은 인식하지 아니하고 있습니다. 미사용 세무상결손금과 세액공제가 사용될 수 있는 미래 과세소득의 발생가능성이 높은 경우 그 범위 안에서 이월된 미사용 세무상결손금과 세액공제에 대하여 이연법인세자산을 인식하고 있습니다.
이연법인세자산의 장부금액은 매 보고기간말에 검토하며 이연법인세자산의 일부 또는 전부에 대한 혜택이 사용되기에 충분한 과세소득이 발생할 가능성이 더 이상 높지않다면 이연법인세자산의 장부금액을 감액시키고 감액된 금액은 사용되기에 충분한 과세소득이 발생할 가능성이 높아지면 그 범위 내에서 환입하고 있습니다.
이연법인세 자산과 부채는 보고기간말까지 제정되었거나 실질적으로 제정된 세율(및세법)에 근거하여 당해 자산이 실현되거나 부채가 결제될 회계기간에 적용될 것으로 기대되는 세율을 사용하여 측정하고 있으며 이연법인세 자산과 부채는 할인하지 아니하고 있습니다.
회사가 당기법인세자산과 당기법인세부채를 상계할 수 있는 법적으로 집행가능한 권리를 가지고 있으며 동일한 과세당국에 의해서 부과되는 법인세와 관련하여 이연법인세자산과 이연법인세부채를 상계하고 있습니다.
(18) 주당이익
회사는 기본주당이익과 희석주당이익을 보통주에 귀속되는 계속영업손익과 당기순손익에 대하여 계산하고 포괄손익계산서에 표시하고 있습니다.
기본주당이익은 보통주에 귀속되는 특정 회계기간의 당기순손익을 그 기간에 유통된보통주식수를 가중평균한 주식수로 나누어 계산하고 있으며, 보통주에 귀속되는 금액은 계속영업손익과 당기순손익 각각의 금액에서 자본으로 분류된 우선주에 대한 세후우선주 배당금,우선주 상환시 발생한 차액 및 유사한 효과를 조정한 금액입니다.
희석주당이익은 모든 희석효과가 있는 잠재적보통주의 영향을 고려하여 보통주에 귀속되는 당기순손익 및 가중평균유통보통주식수를 조정하여 계산하고 있습니다.
(19) 매각예정비유동자산
비유동자산(또는 처분자산집단)의 장부금액이 계속사용이 아닌 매각거래를 통하여 주로 회수될 것이라면 이를 매각예정으로 분류하며 순공정가치와 장부금액 중 작은 금액으로 측정하고, 그 자산은 감가상각(또는 상각)하지 아니하고 있습니다. 매각예정으로 분류된 비유동자산은 다른 자산과 별도로 재무상태표에 표시하며 매각예정으로 분류된 처분자산집단에 포함되는 자산이나 부채는 다른 자산이나 부채와 별도로 재무상태표에 표시하고 있습니다.
(20) 중단영업
회사는 별도의 주요 사업계열이나 영업지역을 처분하거나 매각예정으로 분류되는 경우 등을 중단영업으로 분류하고 있으며, 중단영업이 있는 경우 세후 중단영업손익 등을 포괄손익계산서에 단일금액으로 표시하고 중단영업의 수익, 비용 및 세전 중단영업손익 등을 공시하고 있습니다. 또한, 회사는 비교표시되는 과거재무제표에 중단영업관련 공시사항을 다시 표시하고 있습니다.
(21) 오류수정
특정기간에 미치는 오류의 영향이나 오류의 누적효과를 실무적으로 결정할 수 없는 경우를 제외하고는 중요한 전기오류가 발견된 이후 최초로 발행을 승인하는 재무제표에 오류가 발생한 과거기간의 재무제표가 비교표시되는 경우 그 재무정보를 재작성하고 있습니다.
(22) 중요한 회계추정 및 판단
재무제표의 작성시 경영진은 회계정책의 적용이나 자산, 부채, 수익, 비용의 장부금액 및 우발부채의 금액에 영향을 미칠 수 있는 판단과 추정 및 가정을 하여야 합니다.보고기간말 현재 이러한 추정치는 경영진의 최선의 판단 및 추정에 따라 이루어지고 있으며 추정치와 추정에 대한 가정은 지속적으로 검토되고 있으나 향후 경영환경의 변화에 따라 실제 결과와는 중요하게 다를 수도 있습니다.
회계정책을 적용하는 과정에서 추정에 관련된 공시와는 별도로 재무제표에 인식되는금액에 가장 유의적인 영향을 미칠 수 있는 경영진이 내린 판단 및 미래에 대한 가정과 보고기간말의 추정 불확실성과 관련하여 다음 회계연도에 자산과 부채의 장부금액에 대한 중요한 조정을 유발할 수 있는 유의적인 위험을 내포하고 있는 사항은 다음과 같습니다.
1) 금융상품의 공정가치
금융상품에 대한 활성시장이 없는 경우 공정가치는 평가기법을 사용하여 결정하고 있으며, 평가기법은 합리적인 판단력과 거래의사가 있는 독립된 당사자 사이의 최근 거래를 사용하는 방법, 실질적으로 동일한 다른 금융상품의 현행 공정가치를 참조하는 방법, 현금흐름할인방법과 옵션가격결정모형 등을 포함하고 있습니다. 회사는 주기적으로 평가기법을 조정하며 관측가능한 현행 시장거래의 가격을 사용하거나 관측가능한 시장자료에기초하여 그 타당성을 검토하는 등 다양한 평가기법의 선택과 가정에 대한 판단을 하고 있습니다.
2) 수익인식
회사는 고객에게 제품 판매 후 고객이 반품할 것으로 예상되는 제품에 대하여 환불부채와 회수할 재화에대한 권리를 인식하고 있습니다. 판매시점에 포트폴리오 수준에서 누적된 경험에 기초하여 기댓값 방법으로 반품율을 예측하고 있으며, 회사의 수익은 예측된 반품율의 변동에 영향을 받습니다.
3) 이연법인세
이연법인세 자산과 부채는 보고기간말까지 제정되었거나 실질적으로 제정된 세율(및세법)에 근거하여 당해 자산이 실현되거나 부채가 결제될 회계기간에 적용될 것으로 기대되는 세율을 사용하여 추정하고 있으며 이연법인세자산의 장부금액은 이연법인세자산의일부 또는 전부에 대한 혜택이 사용되기에 충분한 과세소득이 발생할 가능성이 높은 경우 최선의 추정치로 인식하고 있습니다. 이러한 추정치는 미래의 실제 법인세부담과 다를 수 있습니다.
3. 재무위험관리
(1) 재무위험관리요소
회사는 경영활동과 관련하여 신용위험, 유동성위험 및 시장위험 등 다양한 금융위험에 노출되어 있습니다. 회사는 금융위험이 경영에 미칠 수 있는 불리한 효과를 최소화하기 위해 노력하고 있습니다.
(2) 시장위험
1) 외환위험
당분기말과 전기말 및 현재 현재 회사의 통화별 주요 외화금융자산ㆍ부채의 내역은 다음과 같습니다.
| (단위 : USD, 원) |
| 구 분 | 화폐단위 | 당분기말 | 전기말 | ||
|---|---|---|---|---|---|
| 외화금액 | 원화금액 | 외화금액 | 원화금액 | ||
| 외화자산 | USD | 647,806 | 844,610,089 | 476,948 | 604,436,276 |
| JPY | - | - | 64,976 | 823,441 | |
한편, 당분기말과 전기말 현재 다른 모든 변수가 일정하고 각 외화에 대한 원화의 환율5% 변동시 회사의 세전손익에 미치는 영향은 다음과 같습니다.
| (단위 : 원) |
| 구 분 | 당분기말 | 전기말 | ||
|---|---|---|---|---|
| 상승시 | 하락시 | 상승시 | 하락시 | |
| USD | 42,230,504 | (42,230,504) | 30,221,814 | (30,221,814) |
| JPY | - | - | 41,172 | (41,172) |
2) 이자율 위험
당분기 및 전기 중 다른 모든 변수가 일정하고 이자율이 1% 변동시 회사의 세전손익에미치는 영향은 다음과 같습니다.
| (단위 : 원) |
| 구 분 | 당 분 기 | 전 기 말 |
|---|---|---|
| 상승시 | (22,492,238) | (61,849,863) |
| 하락시 | 22,492,238 | 61,849,863 |
(3) 신용위험
회사는 채무불이행으로 인한 재무적 손실을 경감시키기 위하여 신용도가 일정 수준 이상인 거래처와 거래하고, 충분한 담보 또는 지급보증을 수취하고 있습니다. 회사는신용위험노출 및 거래처의 신용등급을 주기적으로 검토하여 거래처의 여신한도 및 담보수준을 재조정하는 등 신용위험을 관리하고 있습니다.
금융상품 종류별 신용위험의 최대 노출금액은 다음과 같습니다.
| (단위 : 원) |
| 구 분 | 당분기말 | 전기말 |
|---|---|---|
| 현금및현금성자산 (*) | 3,325,876,800 | 177,471,541 |
| 매출채권 및 기타채권 | 3,911,874,216 | 3,488,425,685 |
| 장기매출채권 및 기타채권 | 6,101,930 | 6,101,930 |
| 기타금융자산 | 3,745,356,000 | 712,320,000 |
| 장기기타금융자산 | 824,635,035 | 312,368,821 |
| 합 계 | 11,813,843,981 | 4,696,687,977 |
(*) 현금 시재액은 제외하였습니다.
(4) 유동성 위험
회사는 미래의 현금흐름을 예측하여 단기 및 중장기 자금조달 계획을 수립하여 유동성위험을 관리하고 있으며, 금융부채의 잔존계약 만기에 따른 만기분석내용은 다음과 같습니다.
| (당분기말) | (단위 : 원) |
| 구 분 | 1년 미만 | 1~3년 | 3~5년 | 5년 초과 | 합 계 |
|---|---|---|---|---|---|
| 차입금 | 3,924,652,012 | 1,294,177,716 | 47,849,652 | 597,845,652 | 5,864,525,032 |
| 매입채무 및 기타채무 | 2,212,575,586 | - | - | - | 2,212,575,586 |
| 합 계 | 6,137,227,598 | 1,294,177,716 | 47,849,652 | 597,845,652 | 8,077,100,618 |
| (전기말) | (단위 : 원) |
| 구 분 | 1년 미만 | 1~3년 | 3~5년 | 5년 초과 | 합 계 |
|---|---|---|---|---|---|
| 차입금 | 4,653,792,961 | 1,325,805,357 | 582,995,760 | 186,998,640 | 6,749,592,718 |
| 매입채무 및 기타채무 | 1,465,746,601 | - | - | - | 1,465,746,601 |
| 합 계 | 6,119,539,562 | 1,325,805,357 | 582,995,760 | 186,998,640 | 8,215,339,319 |
(5) 자본위험관리
회사의 자본관리 정책은 투자자와 채권자, 시장의 신뢰 및 사업의 향후 발전을 위해 건전한 자본을 유지하는 것입니다. 경영진은 주주에 대한 배당의 수준과 자본수익률을 감독하고 있습니다. 회사의 자본구조는 차입금에서 현금및현금성자산을 차감한 순차입금과 자본으로 구성되며, 당분기말과 전기말 현재 회사가 자본으로 관리하고 있는 항목의 내역은 다음과 같습니다.
| (단위 : 원) |
| 구분 | 당분기말 | 전기말 |
|---|---|---|
| 차입금 총계 | 5,599,846,676 | 6,374,826,675 |
| 현금 및 현금성자산 | (3,325,923,800) | (177,518,541) |
| 순차입금 | 2,273,922,876 | 6,197,308,134 |
| 자본총계 | 15,965,022,284 | 8,137,566,349 |
| 총자본 | 18,238,945,160 | 14,334,874,483 |
| 순차입금자본비율 | 12.47% | 43.23% |
4. 공정가치 서열체계에 따른 구분
회사는 공정가치측정에 사용된 투입변수의 유의성을 반영하는 공정가치 서열체계에 따라 공정가치측정치를 분류하고 있으며, 공정가치 서열체계의 수준은 다음과 같습니다.
| 서열체계 | 투입변수의 유의성 |
|---|---|
| 수준1 | 측정일에 동일한 자산이나 부채에 대한 접근 가능한 활성시장의 조정되지 않은 공시가격 |
| 수준2 | 수준 1의 공시가격 이외에 자산이나 부채에 대해 직접적으로 또는 간접적으로 관측가능한 투입변수 |
| 수준3 | 자산이나 부채에 대한 관측가능하지 않은 투입변수 |
당분기말 및 전기말 현재 공정가치로 측정되거나 공정가치가 공시되는 자산의 공정가치 서열체계 구분은 다음과 같습니다.
| (당분기말) | (단위 : 원) |
| 구 분 | 수준 1 | 수준 2 | 수준 3 | 합 계 |
|---|---|---|---|---|
| 자산 : | ||||
| 장기금융자산 | ||||
| 당기손익-공정가치측정금융자산 | 24,746,060 | - | - | 24,746,060 |
| 기타포괄손익-공정가치측정금융자산 | - | - | 799,888,975 | 799,888,975 |
| 합계 | 24,746,060 | - | 799,888,975 | 824,635,035 |
| (전기말) | (단위 : 원) |
| 구 분 | 수준 1 | 수준 2 | 수준 3 | 합 계 |
|---|---|---|---|---|
| 자산 : | ||||
| 장기금융자산 | ||||
| 당기손익-공정가치측정금융자산 | 12,368,821 | - | - | 12,368,821 |
| 기타포괄손익-공정가치측정금융자산 | - | - | 300,000,000 | 300,000,000 |
| 합계 | 12,368,821 | - | 300,000,000 | 312,368,821 |
5. 범주별 금융상품
(1) 금융자산
당분기말과 전기말 현재 범주별 금융자산의 내역은 다음과 같습니다.
| (당분기말) | (단위 : 원) |
| 구 분 | 당기손익-공정가치측정금융자산 | 기타포괄-공정가치측정금융자산 | 상각후원가측정 | 합 계 |
|---|---|---|---|---|
| 매출채권 | - | - | 3,000,510,900 | 3,000,510,900 |
| 미수금 | - | - | 899,346,878 | 899,346,878 |
| 단기대여금 | - | - | 745,356,000 | 745,356,000 |
| 장기금융상품 | 24,746,060 | 799,888,975 | - | 824,635,035 |
| 장기보증금 | - | - | 6,101,930 | 6,101,930 |
| 합 계 | 24,746,060 | 799,888,975 | 4,651,315,708 | 5,475,950,743 |
| (전기말) | (단위 : 원) |
| 구 분 | 당기손익-공정가치 측정금융자산 |
기타포괄손익-공정가치 측정금융자산 |
상각후원가 측정금융자산 |
합 계 |
|---|---|---|---|---|
| 매출채권 | - | - | 2,929,884,665 | 2,929,884,665 |
| 미수금 | - | - | 558,541,020 | 558,541,020 |
| 단기대여금 | - | - | 712,320,000 | 712,320,000 |
| 장기금융상품 | 12,368,821 | 300,000,000 | - | 312,368,821 |
| 장기보증금 | - | - | 6,101,930 | 6,101,930 |
| 합 계 | 12,368,821 | 300,000,000 | 4,206,847,615 | 4,519,216,436 |
(2) 금융부채
당분기말과 전기말 현재 회사의 금융부채는 모두 상각후원가로 측정하는 금융부채로 분류하고 있습니다.
(3) 당분기 및 전분기의 금융상품 범주별 순손익의 현황은 다음과 같습니다.
| (단위 : 원) |
| 구 분 | 당분기 | 전분기 |
|---|---|---|
| 상각후원가측정금융자산 | ||
| 이자수익 | 30,177,789 | 502,942 |
| 대손상각비환입 | (134,802,546) | - |
| 외환차손익 | 13,911,429 | 1,406,093 |
| 외화환산손익 | 83,623,912 | - |
| 당기손익-공정가치측정금융자산 | ||
| 장기금융상품평가이익 | - | - |
| 장기금융상품평가손실 | - | - |
| 장기금융상품처분손익 | - | 34,891 |
| 상각후원가측정금융부채 | ||
| 이자비용 | (73,919,135) | (25,685,327) |
| 합 계 | (81,008,551) | (23,741,401) |
6. 현금 및 현금성자산
당분기말과 전기말 현재 현금및현금성자산의 구성내역은 다음과 같습니다.
| (단위 : 원) |
| 구 분 | 당분기말 | 전기말 |
|---|---|---|
| 현금시재액 | 47,000 | 47,000 |
| 은행예금 등 | 3,325,876,800 | 177,471,541 |
| 합 계 | 3,325,923,800 | 177,518,541 |
7. 기타금융자산
(1) 당분기말과 전기말 현재 금융자산의 내역은 다음과 같습니다.
| (단위 : 원) |
| 구분 | 당분기말 | 전기말 |
|---|---|---|
| 단기금융자산 : | ||
| 상각후원가측정기타금융자산 | 3,745,356,000 | 712,320,000 |
| 소계 | 3,745,356,000 | 712,320,000 |
| 장기금융자산 : | ||
| 당기손익-공정가치측정금융자산 | 24,746,060 | 12,368,821 |
| 기타포괄손익-공정가치측정금융자산 | 799,888,975 | 300,000,000 |
| 상각후원가측정기타금융자산 | - | - |
| 소계 | 824,635,035 | 312,368,821 |
| 합계 | 4,569,991,035 | 1,024,688,821 |
(2) 당분기말 및 전기말 현재 당기손익-공정가치측정금융자산의 내용은 다음과 같습니다.
| (단위 : 원) |
| 구분 | 당분기말 | 전기말 |
|---|---|---|
| 장기금융자산 : | ||
| 저축성보험 | 24,746,060 | 12,368,821 |
| 합계 | 24,746,060 | 12,368,821 |
(3) 당분기말 및 전기말 현재 기타포괄손익-공정가치측정금융자산의 내용은 다음과 같습니다.
| (단위 : 원) |
| 구분 | 당분기말 | 전기말 |
|---|---|---|
| 장기금융자산 : | ||
| 지분증권 | 799,888,975 | 300,000,000 |
| 합계 | 799,888,975 | 300,000,000 |
(4) 당분기말 및 전기말 및 현재 상각후원가측정기타금융자산의 내용은 다음과 같습니다.
| (단위 : 원) |
| 구분 | 당분기말 | 전기말 |
|---|---|---|
| 유동항목 : | ||
| 정기예적금 | 3,000,000,000 | - |
| 단기대여금 | 745,356,000 | 712,320,000 |
| 비유동항목 : | ||
| 장기대여금 | - | - |
| 합계 | 3,745,356,000 | 712,320,000 |
8. 매출채권 및 기타채권
(1) 당분기말 및 전기말 및 현재 매출채권 및 기타채권의 상세내역은 다음과 같습니다.
| (단위 : 원) |
| 구 분 | 당분기말 | 전기말 | ||||
|---|---|---|---|---|---|---|
| 총액 | 손실충당금 | 장부금액 | 총액 | 손실충당금 | 장부금액 | |
| 매출채권 | 3,136,900,145 | (136,389,245) | 3,000,510,900 | 2,931,471,364 | (1,586,699) | 2,929,884,665 |
| 미수금 | 899,346,878 | - | 899,346,878 | 558,541,020 | - | 558,541,020 |
| 미수수익 | 12,016,438 | - | 12,016,438 | - | - | - |
| 장기보증금 | 6,101,930 | - | 6,101,930 | 6,101,930 | - | 6,101,930 |
| 합 계 | 4,054,365,391 | (136,389,245) | 3,917,976,146 | 3,496,114,314 | (1,586,699) | 3,494,527,615 |
(2) 당분기말 및 전기말 현재 매출채권에 대해 전체 기간 기대신용손실을 손실충당금으로 인식하는 간편법을 적용하고 있으며, 매출채권 및 기타채권의 신용위험정보의 세부내용은 다음과 같습니다.
| (당분기말) | (단위 : 원) |
| 구 분 | 미연체 | 연체된 일수 | |||||
|---|---|---|---|---|---|---|---|
| 3개월 이내 | 4~6개월 | 6~9개월 | 9~12개월 | 1년초과채권 | 계 | ||
| 총장부금액 | 2,476,640,057 | 841,552,304 | 734,745,600 | - | - | 1,427,430 | 4,054,365,391 |
| 기대손실율 | - | 9.55% | 7.44% | - | - | 100.00% | - |
| 전체기간기대손실 | - | 80,330,210 | 54,631,543 | 62 | - | 1,427,430 | 136,389,245 |
| 순장부금액 | 2,476,640,057 | 761,222,094 | 680,114,057 | (62) | - | - | 3,917,976,146 |
| (전기말) | (단위 : 원) |
| 구 분 | 미연체 | 연체된 일수 | |||||
|---|---|---|---|---|---|---|---|
| 3개월 이내 | 4~6개월 | 6~9개월 | 9~12개월 | 1년초과채권 | 계 | ||
| 총장부금액 | 2,991,956,546 | 493,359,435 | 2,131,703 | 125,400 | 7,113,800 | 1,427,430 | 3,496,114,314 |
| 기대손실율 | - | 0.03% | 0.80% | - | - | 100.00% | - |
| 전체기간기대손실 | - | 123,344 | 17,085 | 18,840 | - | 1,427,430 | 1,586,699 |
| 순장부금액 | 2,991,956,546 | 493,236,091 | 2,114,618 | 106,560 | 7,113,800 | - | 3,494,527,615 |
(3) 당분기와 전기 중 매출채권 및 기타채권의 손실충당금(대손충당금)의 변동내용은 다음과 같습니다.
| (당분기) | (단위 : 원) |
| 구 분 | 기초 | 설정 | 환입 | 기타 | 기말 |
|---|---|---|---|---|---|
| 대손충당금 | 1,586,699 | 134,802,546 | - | - | 136,389,245 |
| 합 계 | 1,586,699 | 134,802,546 | - | - | 136,389,245 |
| (전기) | (단위 : 원) |
| 구 분 | 기초 | 설정 | 환입 | 기타 | 기말 |
|---|---|---|---|---|---|
| 대손충당금 | 4,546,506 | - | (2,959,807) | - | 1,586,699 |
| 합 계 | 4,546,506 | - | (2,959,807) | - | 1,586,699 |
9. 재고자산
당분기말 및 전기말 현재 재고자산의 구성내역은 다음과 같습니다.
| (단위 : 원) |
| 구 분 | 당분기말 | 전기말 | ||||
|---|---|---|---|---|---|---|
| 평가전금액 | 평가충당금(*) | 장부금액 | 평가전금액 | 평가충당금(*) | 장부금액 | |
| 제품 | 1,946,918,712 | (68,696,496) | 1,878,222,216 | 2,183,995,548 | (22,512,434) | 2,161,483,114 |
| 상품 | 1,008,055,276 | (8,279,417) | 999,775,859 | 1,013,437,932 | (82,273) | 1,013,355,659 |
| 원재료 | 54,670,614 | - | 54,670,614 | 105,229,014 | (27,783,764) | 77,445,250 |
| 저장품 | 166,209,748 | - | 166,209,748 | 156,437,492 | - | 156,437,492 |
| 미착품 | 1,216,541,241 | - | 1,216,541,241 | 920,275,736 | - | 920,275,736 |
| 합 계 | 4,392,395,591 | (76,975,913) | 4,315,419,678 | 4,379,375,722 | (50,378,471) | 4,328,997,251 |
(*) 재고자산의 순실현가능가치 평가에 따라 당기 중 평가손실로 계상된 금액은 26,597 천원이며 전기 중 평가손실로 계상된 금액은 808 천원입니다. 재고자산의 평가손실 및 환입액은 매출원가에 포함됩니다.
10. 기타유동자산
당분기말 및 전기말 현재 기타유동자산의 구성내역은 다음과 같습니다.
| (단위 : 원) |
| 구분 | 당분기말 | 전기말 |
|---|---|---|
| 선급금 | 472,146,658 | 230,923,784 |
| 선급비용 | 68,336,416 | 34,146,518 |
| 반품자산회수권 | 3,335,801 | 5,224,263 |
| 합 계 | 543,818,875 | 270,294,565 |
11. 종속기업투자
(1) 종속기업의 세부내역
| (단위 : 원) |
| 회사명 | 소재지 | 당기말 | 전기말 | ||
|---|---|---|---|---|---|
| 지분율(%) | 장부가액 | 지분율(%) | 장부가액 | ||
| 주식회사 소브 | 한국 | 100 | 50,000,000 | 100 | 50,000,000 |
(2) 종속기업에 대한 주요 재무정보
| (당분기말) | (단위 : 원) |
| 기업명 (주1) | 자산 | 부채 | 자본 | 매출 | 당기순이익 |
|---|---|---|---|---|---|
| 주식회사 소브 | 158,619,294 | 179,153,092 | (20,533,798) | 190,231,598 | 6,558,772 |
| (전기말) | (단위 : 원) |
| 기업명 (주1) | 자산 | 부채 | 자본 | 매출 | 당기순이익 |
|---|---|---|---|---|---|
| 주식회사 소브 | 115,435,290 | 148,870,134 | (33,434,844) | 294,649,543 | 569,971 |
(주1) 피투자기업의 재무제표는 별도 재무제표입니다.
12. 유형자산
(1) 당분기말과 전기말 현재 유형자산의 장부금액의 구성내역은 다음과 같습니다.
| (단위 : 원) |
| 구 분 | 당분기말 | 전기말 | ||||||
|---|---|---|---|---|---|---|---|---|
| 취득원가 | 감가상각누계액 | 국고보조금 | 장부금액 | 취득원가 | 감가상각누계액 | 국고보조금 | 장부금액 | |
| 토지 | 2,240,400,000 | - | - | 2,240,400,000 | 2,240,400,000 | - | - | 2,240,400,000 |
| 건물 | 3,360,600,000 | (44,878,224) | - | 3,315,721,776 | 3,360,600,000 | (22,439,112) | - | 3,338,160,888 |
| 차량운반구 | 206,068,838 | (63,865,407) | - | 142,203,431 | 63,068,838 | (58,748,788) | - | 4,320,050 |
| 공구와기구 | 12,965,909 | (11,039,530) | - | 1,926,379 | 12,965,909 | (10,766,386) | - | 2,199,523 |
| 비품 | 270,078,973 | (153,429,550) | - | 116,649,423 | 267,600,211 | (142,767,066) | - | 124,833,145 |
| 시설장치 | 291,051,826 | (173,132,271) | - | 117,919,555 | 286,651,826 | (158,726,744) | - | 127,925,082 |
| 금형 | 621,495,980 | (213,537,554) | (15,847,881) | 392,110,545 | 489,995,980 | (185,190,285) | (16,744,932) | 288,060,763 |
| 건설중인자산 | 564,312,682 | - | (8,526,054) | 555,786,628 | 134,479,825 | - | (300,000) | 134,179,825 |
| 합 계 | 7,566,974,208 | (659,882,536) | (24,373,935) | 6,882,717,737 | 6,855,762,589 | (578,638,381) | (17,044,932) | 6,260,079,276 |
(2) 당분기 및 전기 중 유형자산의 변동내역은 다음과 같습니다.
| (당분기) | (단위 : 원) |
| 구 분 | 기 초 | 취 득 | 재평가 | 처 분 | 감가상각 | 대 체(*) | 기 말 |
|---|---|---|---|---|---|---|---|
| 토지 | 2,240,400,000 | - | - | - | - | - | 2,240,400,000 |
| 건물 | 3,338,160,888 | - | - | - | (22,439,112) | - | 3,315,721,776 |
| 차량운반구 | 4,320,050 | 143,000,000 | - | - | (5,116,619) | - | 142,203,431 |
| 공구와기구 | 2,199,523 | - | - | - | (273,144) | - | 1,926,379 |
| 비품 | 124,833,145 | 4,413,863 | - | (338,682) | (12,258,903) | - | 116,649,423 |
| 시설장치 | 127,925,082 | 4,400,000 | - | - | (14,405,527) | - | 117,919,555 |
| 금형 | 304,805,695 | 131,500,000 | - | - | (28,347,269) | - | 407,958,426 |
| 국고보조금 | (16,744,932) | - | - | - | 897,051 | - | (15,847,881) |
| 건설중인자산 | 134,479,825 | 512,345,457 | - | - | - | (82,512,600) | 564,312,682 |
| 국고보조금 | (300,000) | (8,226,054) | - | - | - | - | (8,526,054) |
| 합 계 | 6,260,079,276 | 787,433,266 | - | (338,682) | (81,943,523) | (82,512,600) | 6,882,717,737 |
(*) 무형자산으로 대체된 내역을 포함하고 있습니다.
| (전기) | (단위 : 원) |
| 구 분 | 기 초 | 취 득 | 재평가 | 처 분 | 감가상각 | 대 체(*) | 기 말 |
|---|---|---|---|---|---|---|---|
| 토지 | 1,715,960,677 | - | 524,439,323 | - | - | - | 2,240,400,000 |
| 건물 | 2,373,859,825 | - | 1,033,465,961 | - | (69,164,898) | - | 3,338,160,888 |
| 차량운반구 | 69,549,175 | - | - | (53,447,172) | (11,781,953) | - | 4,320,050 |
| 공구와기구 | 3,292,099 | - | - | - | (1,092,576) | - | 2,199,523 |
| 비품 | 155,742,776 | 19,124,542 | - | (77,991) | (49,956,182) | - | 124,833,145 |
| 시설장치 | 185,253,846 | - | - | - | (57,328,764) | - | 127,925,082 |
| 금형 | 77,721,137 | 294,170,480 | - | - | (83,285,922) | 16,200,000 | 304,805,695 |
| 국고보조금 | - | (17,941,000) | - | - | 1,196,068 | - | (16,744,932) |
| 건설중인자산 | 94,262,900 | 93,189,058 | - | - | - | (52,972,133) | 134,479,825 |
| 국고보조금 | (26,375,264) | (1,963,082) | - | - | - | 28,038,346 | (300,000) |
| 합 계 | 4,649,267,171 | 386,579,998 | 1,557,905,284 | (53,525,163) | (271,414,227) | (8,733,787) | 6,260,079,276 |
(*) 무형자산으로 대체된 내역을 포함하고 있습니다.
(3) 감가상각비 중 27,603 천원(전분기: 14,588 천원)은 매출원가, 54,340 천원(전기: 49,741천원)은 판매관리비에 포함돼 있습니다.
(4) 당분기말 현재 토지 및 건물은 회사의 차입금에 대하여 담보로 제공되고 있습니다. (주석31참조)
(5) 회사는 유형자산 중 토지와 건물에 대해 재평가모형을 적용하고 있으며, 2022년 9월 30일을 기준일로 하여 회사와 독립적이고 전문적 자격이 있는 평가인인 ㈜정일감정평가법인이 산출한 감정가액을 이용하여 토지와 건물을 재평가하였습니다. 평가방법은 대상 토지와 건물과 가치형성요인이 같거나 비슷한 토지와 건물의 거래사례와 비교하여 대상 토지와 건물의 현황에 맞게 사정보정 시점수정 가치형성요인 비교 등의 과정을 거쳐 대상물건의 가액을 산정하는 거래사례비교법으로 평가하였습니다.재평가에 따른 토지의 장부금액과 원가모형으로 평가되었을 경우의 장부금액은 다음과 같습니다.
| (단위 : 원) |
| 구 분 | 재평가모형 | 원가모형 |
|---|---|---|
| 토 지 | 2,240,400,000 | 1,715,960,677 |
| 건 물 | 3,338,160,888 | 2,327,134,039 |
| 합 계 | 5,578,560,888 | 4,043,094,716 |
한편, 상기 토지 재평가로 인해 전기말까지 기타포괄이익으로 인식한 재평가잉여금의 누계액은 1,230,745 천원(법인세효과 차감 후)입니다.
13. 리스
전기말 리스자산 소멸로 해당사항 없습니다.
14. 무형자산
(1) 당분기말과 전기말 현재 무형자산의 장부금액의 구성내역은 다음과 같습니다.
| (단위 : 원) |
| 구 분 | 당분기말 | 전기말 | ||||
|---|---|---|---|---|---|---|
| 취득원가 | 상각누계액 | 장부금액 | 취득원가 | 상각누계액 | 장부금액 | |
| 산업재산권 | 247,826,433 | (137,573,944) | 110,252,489 | 244,263,833 | (125,254,730) | 119,009,103 |
| 소프트웨어 | 137,620,000 | (54,091,475) | 83,528,525 | 92,770,000 | (48,657,116) | 44,112,884 |
| 합 계 | 385,446,433 | (191,665,419) | 193,781,014 | 337,033,833 | (173,911,846) | 163,121,987 |
(2) 당분기 및 전기 중 무형자산의 변동내역은 다음과 같습니다.
| (당분기) | (단위 : 원) |
| 구 분 | 기 초 | 취 득 | 대 체 | 감가상각 | 기 말 |
|---|---|---|---|---|---|
| 산업재산권 | 119,009,103 | - | 3,562,600 | (12,319,214) | 110,252,489 |
| 소프트웨어 | 44,112,884 | 44,850,000 | - | (5,434,359) | 83,528,525 |
| 합 계 | 163,121,987 | 44,850,000 | 3,562,600 | (17,753,573) | 193,781,014 |
| (전기) | (단위 : 원) |
| 구 분 | 기 초 | 취 득 | 대 체 | 감가상각 | 기 말 |
|---|---|---|---|---|---|
| 산업재산권 | 142,399,628 | 15,079,142 | - | (47,203,454) | 119,009,103 |
| 소프트웨어 | 51,262,910 | 10,545,000 | - | (17,695,026) | 44,112,884 |
| 합 계 | 193,662,538 | 25,624,142 | 8,733,787 | (64,898,480) | 163,121,987 |
(3) 당분기와 전기 중 무형자산 상각비는 전액 판매관리비에 포함되었습니다.
(4) 회사가 비용으로 인식한 연구와 개발 지출의 총액은 211,436천원 (전기: 136,717 천원)입니다.
15. 매입채무 및 기타채무
당분기말과 전기말 현재 장단기 매입채무 및 기타채무의 내역은 다음과 같습니다.
| (단위 : 원) |
| 구분 | 당분기말 | 전기말 |
|---|---|---|
| 매입채무및기타채무 : | ||
| 매입채무 | 1,309,308,576 | 762,617,102 |
| 미지급금 | 710,861,281 | 481,870,515 |
| 미지급비용 | 186,975,482 | 212,349,940 |
| 환불부채 | 5,430,247 | 8,909,044 |
| 합 계 | 2,212,575,586 | 1,465,746,601 |
| 장기기타채무 : | ||
| 장기미지급비용 | - | - |
| 합 계 | - | - |
16. 차입금
(1) 당분기말과 전기말 현재 차입금의 상세내역은 다음과 같습니다.
| (당분기) | (단위 : 원) |
| 차입처 | 내역 | 연이자율 | 당분기 | 전기말 |
|---|---|---|---|---|
| 단기차입금 | ||||
| 국민은행 | 운전자금대출 | 4.76% | 500,000,000 | 500,000,000 |
| KEB하나은행 | 운전자금대출 | 5.70% | 500,000,000 | 500,000,000 |
| 운전자금대출 | 5.47% | 1,000,000,000 | 1,000,000,000 | |
| 신한은행 | 운전자금대출 | 5.86% | 500,000,000 | 500,000,000 |
| 농협은행 | 운전자금대출 | 4.00% | - | 500,000,000 |
| 운전자금대출 | 4.10% | - | 200,000,000 | |
| 단기차입금 소계 | 2,500,000,000 | 3,200,000,000 | ||
| 장기차입금 | ||||
| 국민은행 | 일반자금대출 | 2.90% | 1,100,000,000 | 1,100,000,000 |
| 4.97% | 66,666,676 | 91,666,675 | ||
| 4.57% | 650,000,000 | 650,000,000 | ||
| 시설자금대출 | 5.02% | 900,000,000 | 900,000,000 | |
| 신한은행 | 운전자금대출 | - | - | - |
| 중소벤처기업진흥공단 | 운전자금대출 | 3.11% | 166,600,000 | 191,590,000 |
| 2.99% | 216,580,000 | 241,570,000 | ||
| 장기차입금 소계 | 3,099,846,676 | 3,174,826,675 | ||
| 차감 : 1년이내 만기도래분 | (1,166,586,676) | (1,191,586,675) | ||
| 합계 | 1,933,260,000 | 1,983,240,000 | ||
(2) 장기차입금 상환일정
당분기말 현재 장기차입금 상환일정은 다음과 같습니다.
| (단위 : 원) |
| 구분 | 장기차입금 |
|---|---|
| 1년이내 | 1,166,586,676 |
| 1년초과 2년이내 | 999,940,000 |
| 2년초과 3년이내 | 199,992,000 |
| 3년초과 4년이내 | 183,332,000 |
| 4년초과 5년이내 | 183,332,000 |
| 5년초과 | 366,664,000 |
| 합계 | 3,099,846,676 |
17. 기타유동부채
당분기말과 전기말 현재 기타유동부채의 내역은 다음과 같습니다.
| (단위 : 원) |
| 구분 | 당분기말 | 전기말 |
|---|---|---|
| 예수금 | 32,189,920 | 12,142,650 |
| 합 계 | 32,189,920 | 12,142,650 |
18. 계약부채
(1) 회사가 고객과의 계약에서 생기는 수익과 관련하여 인식하고 있는 계약부채는 아래와 같습니다.
| (단위 : 원) |
| 구분 | 당분기말 | 전기말 |
|---|---|---|
| 고객충성제도 | 4,445,501 | 6,595,325 |
| 선수금성격 | 239,762,861 | 24,668,739 |
| 합 계 | 244,208,362 | 31,264,064 |
(2) 당분기 및 전기 중 계약부채의 변동내역은 다음과 같습니다.
| (단위 : 원) |
| 구분 | 당분기말 | 전기말 | ||
|---|---|---|---|---|
| 고객충성제도 | 계약부채 | 고객충성제도 | 계약부채 | |
| 기초 | 6,595,325 | 24,668,739 | 28,013,748 | 114,792,929 |
| 전입 | (6,595,325) | (24,668,739) | (28,013,748) | (114,792,929) |
| 환입 | 4,445,501 | 239,762,861 | 6,595,325 | 24,668,739 |
| 기말 | 4,445,501 | 239,762,861 | 6,595,325 | 24,668,739 |
19. 퇴직급여
(1) 회사는 확정기여형 퇴직급여제도를 운영중이며, 당분기 및 전기에 비용으로 인식한 금액은 다음과 같습니다.
| (단위 : 원) |
| 구분 | 당분기 | 전분기 |
|---|---|---|
| 매출원가 | 2,389,171 | 4,568,354 |
| 판매비와관리비 | 39,219,547 | 35,706,849 |
| 경상연구개발비 | 8,556,994 | 4,728,423 |
| 합계 | 50,165,712 | 45,003,626 |
20. 자본금
(1) 당분기말과 전기말 현재 자본금의 내역은 다음과 같습니다.
| (단위 : 원) |
| 구 분 | 당분기말 | 전기말 |
|---|---|---|
| 발행할 주식의 총수 | 10,000,000 주 | 10,000,000 주 |
| 주당액면가액 | 100 원 | 100 원 |
| 발행한 주식의 총수 | 7,938,930 주 | 6,128,930 주 |
| 보통주 자본금 | 793,893,000 | 612,893,000 |
(2) 당분기 및 전기 중 유통주식수의 변동내역은 다음과 같습니다.
| (단위 : 주) |
| 구분 | 당분기 | 전기말 |
|---|---|---|
| 기초 | 6,128,930 | 1,225,786 |
| 유상증자(*) | 1,810,000 | - |
| 액면분할 | - | 4,903,144 |
| 자기주식 | (458,060) | (458,060) |
| 기말 | 7,480,870 | 5,670,870 |
(*) 회사는 당분기 중 코스닥시장 상장을 위해 1,810,000 주를 일반공모를 진행하였습니다.
(3) 당분기말과 전기말 현재 기타불입자본의 내역은 다음과 같습니다.
| (단위 : 원) |
| 구 분 | 당분기말 | 전기말 |
|---|---|---|
| 주식발행초과금 | 9,365,203,322 | 602,029,180 |
| 합 계 | 9,365,203,322 | 602,029,180 |
(4) 당분기말과 전기말 현재 기타자본구성요소의 내역은 다음과 같습니다.
| (단위 : 원) |
| 구 분 | 당분기말 | 전기말 |
|---|---|---|
| 주식선택권 | 213,515,898 | 168,332,154 |
| 합 계 | 213,515,898 | 168,332,154 |
(5) 당분기말과 전기말 현재 기타포괄손익누계액의 내역은 다음과 같습니다.
| (단위 : 원) |
| 구 분 | 당분기말 | 전기말 |
|---|---|---|
| 재평가잉여금 | 1,230,745,174 | 1,230,745,174 |
| 합 계 | 1,230,745,174 | 1,230,745,174 |
21. 주식기준보상
(1) 회사는 주주총회 결의에 의거 회사의 임직원에게 주식선택권을 부여하였는 바, 주요사항은 다음과 같습니다.
| (단위 : 주, 원) |
| 약정유형 | 1차 | 2차 | 3차 |
|---|---|---|---|
| 권리부여일 | 2020년 11월 01일 | 2020년 11월 01일 | 2022년 08월 16일 |
| 부여형태 | 신주발행 | 신주발행 | 신주발행 |
| 부여주식수 | 65,223 | 32,616 | 127,720 |
| 기본조건 | 부여일로부터 3년간 근무 | 부여일로부터 2.5년간 근무 | 부여일로부터 2.5년간 근무 |
| 행사가격 | 836 | 836 | 6,050 |
| 공정가치 | 1,598 | 1,642 | 2,564 |
| 행사가능기간 | 2023년 11월 01일~ 2028년 10월 31일 |
2023년 05월 01일~ 2028년 4월 30일 |
2025년 02월 15일~ 2030년 2월 15일 |
(2) 주식선택권의 수량과 가중평균행사가격의 변동은 다음과 같습니다.
| (단위 : 원) |
| 구 분 | 주식선택권 수량 | 가중평균행사가격 | ||
|---|---|---|---|---|
| 당분기 | 전기 | 당분기 | 전기 | |
| 기초 잔여주 | 225,559 | 103,274 | 3,974 | 836 |
| 부여 | - | 127,720 | - | 3,139 |
| 행사 | - | - | - | - |
| 소멸 | - | (5,435) | - | - |
| 기말 잔여주 | 225,559 | 225,559 | 3,974 | 3,974 |
(3) 공정가치 산정에 사용된 방법과 가정은 다음과 같습니다.
| (단위 : 주, 원) |
| 구 분 | 1차 | 2차 | 3차 |
|---|---|---|---|
| 부여일의 주가 | 2,704 | 2,704 | 4,984 |
| 행사가격 | 836 | 836 | 6,050 |
| 기대주가변동성 | 37.42% | 37.42% | 51.15% |
| 옵션만기 | 2028년 10월 31일 | 2028년 04월 30일 | 2030년 02월 15일 |
| 무위험이자율 (주1) | 1.34% | 1.34% | 3.10% |
| 공정가치 | 1,598 | 1,642 | 2,564 |
(주1) 무위험이자율은 5년 만기의 국고채 이자율을 이용하였습니다.
(4) 당분기말 현재 잔여 주식선택권의 만기 및 행사가격은 다음과 같습니다.
| (단위 : 주, 원) |
| 구 분 | 만 기 | 주식선택권 수량 | 주당 행사가격 |
|---|---|---|---|
| 1차 | 2028년 10월 31일 | 65,223 | 836 |
| 2차 | 2028년 4월 30일 | 32,616 | 836 |
| 3차 | 2030년 2월 15일 | 127,720 | 6,050 |
| 합 계 | 219,339 | - | |
(5) 당분기와 전분기 중 비용으로 인식한 주식기준보상은 각각 45,184 천원과 14,754 천원이며, 전액 주식결제형 주식기준보상과 관련한 비용입니다.
22. 이익잉여금
(1) 당분기말과 전기말 현재 이익잉여금 구성내역은 다음과 같습니다.
| (단위 : 원) |
| 구 분 | 당분기말 | 전기말 |
|---|---|---|
| 이익준비금 | 10,787,040 | 10,787,040 |
| 미처분이익잉여금 | 4,350,877,850 | 5,512,779,801 |
| 합 계 | 4,361,664,890 | 5,523,566,841 |
23. 매출액 및 매출원가
(1) 당분기와 전분기 매출액의 내역은 다음과 같습니다.
| (단위 : 원) |
| 구분 | 당분기 | 전분기 |
|---|---|---|
| 제품매출액 | 3,416,453,567 | 5,846,373,866 |
| 상품매출액 | 3,039,612,978 | 527,544,918 |
| 용역매출액 | 284,162,670 | 384,078,473 |
| 합계 | 6,740,229,215 | 6,757,997,257 |
(2) 당분기와 전분기 매출원가의 내역은 다음과 같습니다.
| (단위 : 원) |
| 구분 | 당분기 | 전분기 |
|---|---|---|
| 제품매출원가 | 2,094,216,663 | 3,397,947,039 |
| 상품매출원가 | 2,525,302,159 | 356,708,261 |
| 용역매출원가 | 280,187,670 | 384,078,473 |
| 합계 | 4,899,706,492 | 4,138,733,773 |
24. 판매비와 관리비
당분기 및 전분기 중 판매비와관리비 내역은 다음과 같습니다.
| (단위 : 원) |
| 구분 | 당분기 | 전분기 |
|---|---|---|
| 급여 | 886,819,618 | 595,301,709 |
| 퇴직급여 | 39,219,547 | 35,706,849 |
| 복리후생비 | 105,570,913 | 83,476,393 |
| 여비교통비 | 12,411,939 | 2,267,909 |
| 접대비 | 3,043,400 | 451,600 |
| 통신비 | 3,780,818 | 5,226,019 |
| 수도광열비 | 917,714 | 448,833 |
| 세금과공과 | 55,621,896 | 27,886,880 |
| 감가상각비 | 54,340,110 | 49,740,951 |
| 지급임차료 | 173,076,186 | 11,913,677 |
| 수선비 | - | - |
| 보험료 | 12,991,361 | 12,833,060 |
| 차량유지비 | 1,086,537 | 2,650,868 |
| 경상연구개발비 | 211,436,097 | 136,716,724 |
| 운반비 | 15,107,165 | 12,440,185 |
| 교육훈련비 | 10,287,000 | 316,000 |
| 도서인쇄비 | 9,009,690 | 438,130 |
| 사무용품비 | 2,429,631 | 1,639,264 |
| 소모품비 | 23,715,988 | 39,743,343 |
| 지급수수료 | 742,555,041 | 279,743,145 |
| 광고선전비 | 242,000,712 | 249,391,913 |
| 판매촉진비 | 633,429 | 15,596,409 |
| 대손상각비(환입) | 134,802,546 | - |
| 건물관리비 | 12,771,890 | 11,675,530 |
| 수출제비용 | 9,031,032 | 22,635,438 |
| 판매수수료 | 221,296,168 | 224,611,790 |
| 무형자산상각비 | 17,753,573 | 15,645,072 |
| 사용권자산상각비 | - | 97,181,475 |
| 주식보상비용 | 45,183,744 | 14,754,258 |
| 합계 | 3,046,893,745 | 1,950,433,424 |
25. 금융수익 및 금융비용
(1) 당분기와 전분기 중 금융수익의 내역은 다음과 같습니다.
| (단위 : 원) |
| 구분 | 당분기 | 전분기 |
|---|---|---|
| 이자수익 | 30,177,789 | 502,942 |
| 외환차익 | 18,781,130 | 1,597,287 |
| 외화환산이익 | 86,117,125 | - |
| 장기금융상품처분이익 | - | 34,891 |
| 장기금융상품평가이익 | 449,262 | - |
| 합계 | 135,525,306 | 2,135,120 |
(2) 당분기와 전분기 중 금융비용의 내역은 다음과 같습니다.
| (단위 : 원) |
| 구분 | 당분기 | 전분기 |
|---|---|---|
| 이자비용 | 73,919,135 | 25,685,327 |
| 외환차손 | 4,869,701 | 191,194 |
| 외화환산손실 | 2,493,213 | - |
| 장기금융상품평가손실 | - | - |
| 합계 | 81,282,049 | 25,876,521 |
26. 기타수익 및 기타비용
(1) 당분기와 전분기 중 기타수익의 내역은 다음과 같습니다.
| (단위 : 원) |
| 구분 | 당분기 | 전분기 |
|---|---|---|
| 유형자산처분이익 | - | - |
| 리스해지이익 | - | - |
| 잡이익 | 1,156,745 | 922,979 |
| 합계 | 1,156,745 | 922,979 |
(2) 당분기와 전분기 중 기타비용의 내역은 다음과 같습니다.
| (단위 : 원) |
| 구분 | 당분기 | 전분기 |
|---|---|---|
| 기타의대손상각비 | - | - |
| 기부금 | 10,405,306 | - |
| 유형자산처분손실 | 338,682 | - |
| 리스해지손실 | - | - |
| 잡손실 | 186,943 | 6,895,496 |
| 합계 | 10,930,931 | 6,895,496 |
27. 법인세비용 및 이연법인세
법인세비용은 전체 회계연도에 대해서 예상되는 최선의 가중평균연간법인세율의 추정에 기초하여 인식하였습니다.
28. 비용의 성격별 분류
당분기 및 전분기 중 발생한 비용의 성격별 분류내역은 다음과 같습니다.
| (단위 : 원) |
| 구 분 | 당분기 | 전분기 |
|---|---|---|
| 재고자산의 변동 | 13,577,573 | (276,530,539) |
| 원재료 및 상품의 매입 | 3,060,744,636 | 1,600,885,717 |
| 종업원급여 | 973,168,680 | 699,048,315 |
| 복리후생비 | 109,788,175 | 88,965,893 |
| 감가상각ㆍ무형자산상각비 | 99,697,096 | 177,155,234 |
| 경상개발비 | 211,436,097 | 136,716,724 |
| 지급임차료 | 173,076,186 | 11,913,677 |
| 소모품비 | 147,330,553 | 248,189,869 |
| 외주비 | 1,050,583,272 | 2,452,708,227 |
| 지급수수료 | 746,934,441 | 283,377,195 |
| 광고선전비 | 242,000,712 | 249,391,913 |
| 판매수수료 | 221,296,168 | 224,611,790 |
| 기타비용 | 896,966,648 | 192,733,182 |
| 합 계 | 7,946,600,237 | 6,089,167,197 |
29. 주당이익
(1) 당분기 및 전분기의 기본주당이익의 내역은 다음과 같습니다.
| (단위 : 원) |
| 구 분 | 당분기 | 전분기 |
|---|---|---|
| 당기순이익 | (1,161,901,951) | 639,116,142 |
| 가중평균유통보통주식수(*1) | 7,154,597 주 | 6,128,930 주 |
| 기본주당이익 | (162 원) | 104 원 |
(*) 회사는 2021년 10월 29일을 효력 발생일로 하여 주식발행초과금을 재원으로 무상증자를 실시하였으며 2022년 5월 10일을 기준으로 액면분할을 실시하였습니다. 비교표시된 전기 주당이익은 무상증자와 액면분할을 반영한 가중평균유통보통주식수로 재작성되었습니다.
(2) 당분기 및 전분기 중 기본주당손실 계산에 사용된 가중평균유통보통주식수는 다음과 같습니다.
| (당분기) | (단위 : 원) |
| 일자 | 내역 | 유통보통주식수 | 가중치 | 가중평균유통주식수 |
|---|---|---|---|---|
| 2023-01-01 | 기초발행보통주식수 | 6,128,930 | 90/90 | 6,128,930 |
| 2023-02-09 | 유상증자 | 1,810,000 | 51/90 | 1,025,667 |
| 합 계 | 7,154,597 | |||
| (전분기) | (단위 : 원) |
| 일자 | 내역 | 유통보통주식수 | 가중치 | 가중평균유통주식수 |
|---|---|---|---|---|
| 2022-01-01 | 기초발행보통주식수 | 6,128,930 | 90/90 | 6,128,930 |
| 합 계 | 6,128,930 | |||
(3) 당분기말과 전기말 현재 잠재적 보통주로 주식선택권이 있으나, 잠재적 보통주의 희석효과가 존재하지 않아 희석주당이익 산정에 포함하지 않았습니다.
30. 현금흐름표에 관한 정보
(1) 당분기 및 전분기 중 당기순이익 조정내역은 다음과 같습니다.
| (단위 : 원) |
| 구 분 | 당분기 | 전분기 |
|---|---|---|
| 감가상각비 | 81,943,523 | 64,328,687 |
| 사용권자산상각비 | - | 97,181,475 |
| 무형자산상각비 | 17,753,573 | 15,645,072 |
| 주식보상비용 | 45,183,744 | 14,754,258 |
| 재고자산평가손실(환입) | 26,597,442 | (16,793,084) |
| 유형자산처분이익 | - | - |
| 유형자산처분손실 | 338,682 | - |
| 외화환산이익 | (86,117,125) | - |
| 외화환산손실 | 2,493,213 | - |
| 이자수익 | (30,177,789) | (502,942) |
| 이자비용 | 73,919,135 | 23,202,778 |
| 장기금융상품평가이익 | (449,262) | - |
| 장기금융상품평가손실 | - | - |
| 장기금융상품처분이익 | - | (34,891) |
| 대손상각비 | 134,802,546 | - |
| 기타의대손상각비 | - | - |
| 리스해지이익 | - | - |
| 리스해지손실 | - | - |
| 리스이자비용 | - | 2,482,549 |
| 법인세비용(수익) | - | - |
| 합 계 | 266,287,682 | 200,263,902 |
(2) 당분기 및 전분기 중 순운전자본의 변동내역은 다음과 같습니다.
| (단위 : 원) |
| 구 분 | 당분기 | 전분기 |
|---|---|---|
| 매출채권의 감소(증가) | (205,428,781) | (954,292,660) |
| 미수수익의 감소(증가) | 5,829,939 | 503,188 |
| 미수금의 감소(증가) | (254,688,733) | (275,246,387) |
| 선급금의 감소(증가) | (241,222,874) | (1,735,012,977) |
| 선급비용의 감소(증가) | (34,189,898) | (16,125,285) |
| 재고자산의 감소(증가) | (13,019,869) | (259,737,455) |
| 반품자산회수권의 감소(증가) | 1,888,462 | (46,645) |
| 매입채무의 증가(감소) | 544,208,014 | 1,423,057,206 |
| 미지급금의 증가(감소) | 228,990,766 | 148,957,925 |
| 계약부채의 증가(감소) | 215,094,122 | (70,343,295) |
| 미지급비용의 증가(감소) | (27,278,063) | 52,389,674 |
| 선수금의 증가(감소) | - | 48,000,000 |
| 예수금의 증가(감소) | 20,047,270 | 16,925,840 |
| 포인트충당부채의 증가(감소) | (2,149,824) | 3,050,455 |
| 환불부채의 증가(감소) | (3,478,797) | - |
| 장기미지급금의 증가(감소) | - | - |
| 합 계 | 234,601,734 | (1,617,920,416) |
(3) 당분기와 전분기 중 주요 비현금거래는 다음과 같습니다.
| (단위 : 원) |
| 구분 | 당분기 | 전분기 |
|---|---|---|
| 재평가잉여금 증가 | - | - |
| 건설중인자산의 본계정 대체 | 62,812,600 | 73,598,887 |
| 사용권자산의 증가 | - | - |
| 무상증자 | - | - |
(4) 재무활동에서 발생한 부채의 당기 중 변동내역은 다음과 같습니다.
| (당분기) | (단위 : 원) |
| 구 분 | 기 초 | 재무활동 현금흐름 |
유동성대체 | 기타 | 기 말 |
|---|---|---|---|---|---|
| 단기차입금 | 3,200,000,000 | (700,000,000) | - | - | 2,500,000,000 |
| 유동성장기부채 | 1,191,586,675 | (74,979,999) | 49,980,000 | - | 1,166,586,676 |
| 장기차입금 | 1,983,240,000 | - | (49,980,000) | - | 1,933,260,000 |
| 리스부채 | - | - | - | - | - |
| 장기리스부채 | - | - | - | - | - |
| 합 계 | 6,374,826,675 | (774,979,999) | - | - | 5,599,846,676 |
| (전기) | (단위 : 원) |
| 구 분 | 기 초 | 재무활동 현금흐름 |
유동성대체 | 기타 | 기 말 |
|---|---|---|---|---|---|
| 단기차입금 | 285,000,000 | 2,915,000,000 | - | - | 3,200,000,000 |
| 유동성장기부채 | 1,358,389,996 | (1,358,389,996) | 1,191,586,675 | - | 1,191,586,675 |
| 장기차입금 | 2,274,826,675 | 900,000,000 | (1,191,586,675) | - | 1,983,240,000 |
| 리스부채 | 398,399,028 | (377,087,105) | 3,811,375 | (25,123,298) | - |
| 장기리스부채 | 3,811,375 | - | (3,811,375) | - | - |
| 합 계 | 4,320,427,074 | 2,079,522,899 | - | (25,123,298) | 6,374,826,675 |
31. 우발채무 및 약정사항
(1) 견질어음 등
당사는 금융기관보증 및 계약보증과 관련하여 금융기관 등에 제공한 어음은 없습니다.
(2) 담보제공자산과 지급보증의 내용
예금 이외에 담보제공(소유권제한 포함)된 자산과 지급보증의 내용은 다음과 같습니다.
1) 담보제공
| (단위 : 원) |
| 담보제공자산 | 장부금액 | 설정금액 | 수혜자 | 설정권자 | 관련채무의 내용 |
|---|---|---|---|---|---|
| 토지 및 건물 | 5,556,121,776 | 3,540,000,000 | 당사 | 국민은행 | 차입금 |
특수관계자를 위한 담보나 기타 타인을 위한 담보제공 내역은 없습니다.
2) 당분기말 현재 회사가 타인에게 제공한 지급보증내역은 없습니다.
(3) 회사가 타인으로부터 제공받은 담보 및 보증의 내용은 다음과 같습니다.
1) 당분기말 현재 회사가 타인으로부터 제공받은 담보내역은 없습니다.
2) 타인으로부터 제공받은 보증의 내용
| (단위 : 원) |
| 보증 제공자 | 제공받은 보증내용 |
보증금액 | 보증처 |
|---|---|---|---|
| (특수관계자) | |||
| 대표이사 | 차입금지급보증 | 2,270,000,000 | 국민은행외 |
| 포괄외화지급보증 | USD 990,000 | 국민은행 | |
| 신용장지급보증 | USD 1,200,000 | 신한은행 | |
| KRW 소계 | 2,270,000,000 | - | |
| USD 소계 | USD 2,190,000 | - | |
| (기타) | |||
| 신용보증기금 | 차입금지급보증 | 1,350,000,000 | 하나은행 |
| 서울보증보험 | 이행보증 | 290,000,000 | 거래처 등 |
| 정보보호 | 200,000,000 | 거래처 등 | |
| 소 계 | 1,840,000,000 | - | |
| KRW 합계 | 4,110,000,000 | - | |
| USD 합계 | USD 2,190,000 | - | |
(4) 보험가입의 내용
회사는 사업의 이행목적으로 서울보증보험의 이행보험에 가입되어 있으며, 이밖에 생산물배상책임보험 및 자동차보험에 가입되어 있습니다.
(5) 금융기관 등과 체결한 주요 약정사항은 다음과 같습니다.
| (단위 : 원) |
| 금융기관명 | 구 분 | 약정한도액 | 실행금액 |
|---|---|---|---|
| 하나은행 | 기업운전일반자금대출(통장) (한도) |
100,000,000 | - |
| 운전자금대출 | 500,000,000 | 500,000,000 | |
| 운전자금대출 | 1,000,000,000 | 1,000,000,000 | |
| 운전자금대출 | 500,000,000 | - | |
| 신한은행 | <기운>일반자금대출(일시상환) 기술평가(TCB) 우수 기업대출 | 500,000,000 | 500,000,000 |
| 기업자유예금 | 150,000,000 | - | |
| 일람불수입신용장 | USD 1,000,000 | USD 491,502 | |
| 국민은행 | KB우수기술기업 TCB신용대출 | 200,000,000 | - |
| KB메가셀러론 | 500,000,000 | - | |
| 일람불수입신용장 | USD 900,000 | - | |
| KRW 합계 | 3,450,000,000 | 2,000,000,000 | |
| USD 합계 | USD 1,900,000 | USD 491,502 | |
(6) 당분기말 현재 회사의 계류중인 소송사건은 없습니다.
32. 특수관계자 거래
(1) 당분기말 및 전기말 현재 회사의 특수관계자는 다음과 같습니다.
| (단위 : 원) |
| 구 분 | 명 칭 | |
|---|---|---|
| 당분기말 | 전기말 | |
| 종속기업 | (주) 소브 | (주) 소브 |
| 기타특수관계자 | 우리사주조합 | 우리사주조합 |
| 기타특수관계자 | (주)일상의감동 | (주)일상의감동 |
(2) 당분기와 전분기 중 특수관계자와의 거래 내역은 다음과 같습니다.
| (단위 : 원) |
| 구 분 | 명칭 | 당 분 기 | 전 분 기 | ||
|---|---|---|---|---|---|
| 매출 등 | 매입 등 | 매출 등 | 매입 등 | ||
| 종속기업 | (주) 소브 | 68,801,609 | - | - | - |
| 기타특수관계자 | (주)일상의감동 | 2,768,648 | - | - | - |
(3) 당분기말 및 전기말 현재 특수관계자에 대한 채권ㆍ채무 잔액은 다음과 같습니다.
| (단위 : 원) |
| 구 분 | 명칭 | 계정과목 | 당기말 | 전기말 |
|---|---|---|---|---|
| 종속기업 | (주) 소브 | 대여금 | 90,000,000 | 65,000,000 |
| 외상매출금 | 49,301,161 | - | ||
| 미수금 | - | 2,366,807 | ||
| 기타특수관계자 | (주)일상의감동 | 외상매출금 | 3,045,513 | - |
| 미지급금 | - | - | ||
| 기타특수관계자 | 우리사주조합 | 대여금 | 655,356,000 | 617,320,000 |
(4) 당분기와 전기 중 특수관계자와의 자금거래는 다음과 같습니다.
| (당분기) | (단위 : 원) |
| 구 분 | 기초 | 자금대여거래 | 기말 | 출자 | ||
|---|---|---|---|---|---|---|
| 대여 | 회수 | |||||
| 종속기업 | (주) 소브 | 65,000,000 | 25,000,000 | - | 90,000,000 | 50,000,000 |
| 기타특수관계자 | (주)일상의감동 | - | - | - | - | 499,888,975 |
| 기타특수관계자 | 우리사주조합 | 617,320,000 | 500,000,000 | 461,964,000 | 655,356,000 | - |
| (전기) | (단위 : 원) |
| 구 분 | 기초 | 자금대여거래 | 기말 | 출자 | ||
|---|---|---|---|---|---|---|
| 대여 | 회수 | |||||
| 종속기업 | (주) 소브 | - | 65,000,000 | - | 65,000,000 | 50,000,000 |
| 기타특수관계자 | (주)일상의감동 | - | - | - | - | 300,000,000 |
| 기타특수관계자 | 우리사주조합 | - | 617,320,000 | - | 617,320,000 | - |
(5) 당분기말 현재 특수관계자인 대표이사 및 임직원으로부터 제공받은 지급보증 금액은 2,270백만원, 2,190 천 USD 입니다. (주석 31 참조)
(6) 주요 경영진에 대한 보상
주요 경영진은 이사(등기 및 비등기), 이사회의 구성원, 재무책임자 및 내부감사책임자를 포함하고 있습니다. 주요 경영진에게 지급되었거나 지급될 보상금액은 다음과 같습니다.
| (단위 : 원) |
| 구 분 | 당분기 | 전분기 |
|---|---|---|
| 급여 | 279,100,003 | 148,100,010 |
| 퇴직급여 | 11,966,674 | 11,216,676 |
| 주식보상비용 | 7,978,269 | 3,616,452 |
| 합계 | 299,044,946 | 162,933,138 |
33. 영업부문 정보
회사는 단일보고부문으로 구성되어 있으며, 지역별 매출은 다음과 같습니다.
| (단위 : 원) |
| 구 분 | 당분기 | 전분기 |
|---|---|---|
| 대한민국 | 6,494,589,787 | 5,672,418,147 |
| 기타 | 245,639,428 | 1,085,579,110 |
| 합 계 | 6,740,229,215 | 6,757,997,257 |
34. 보고기간후 사건
해당사항 없음
6. 배당에 관한 사항
가. 배당에 관한 사항
당사는 회사 정관 규정에 의거하여 이사회와 주주총회 결의를 거쳐 배당을 실시할 수 있습니다. 당사는 안정적인 수익창출을 통하여 배당가능재원을 확보할 예정이며, 사업 경쟁력 강화와 함께 주주환원을 통하여 주주가치를 제고할 수 있도록 지속적으로 노력하고 있습니다. 또한, 당사는 상법상 배당가능재원 확보시, 미래성장을 위한 투자재원 확보, 기업의 재무구조 건전성 유지, Cash Flow 등의 종합적인 요인들을 고려하여 배당정책을 결정하고 있습니다. 향후, 대내외 사업 환경 변화를 감안하여 미래를 위한 투자 재원 및 재무구조를 해치지 않는 범위 내에서 배당을 진행하여 주주가치를 극대화하도록 노력하겠습니다. 배당에 관한 회사의 중요한 정책, 배당의 제한에 관한 사항 등은 아래와 같이 당사 정관에서 규정하고 있습니다. 또한, 당사는 자사주에 대한 매입, 처분 등의 계획은 결정된 바 없습니다.
당사의 정관에 기재된 배당에 관한 사항은 다음과 같습니다.
| 정관 조문 | 내용 |
|---|---|
| 제51조 (이익금의 처분) |
회사는 매사업년도의 처분 전 이익잉여금을 다음과 같이 처분한다. 1. 이익준비금 2. 기타의 법정준비금 3. 배당금 4. 임의적립금 5. 기타의 이익잉여금처분액 |
| 제52조 (이익 배당) |
① 이익의 배당은 금전 또는 금전 외의 재산으로 할 수 있다. ② 이익의 배당을 주식으로 하는 경우 회사가 종류주식을 발행한 때에는 각각 그와 같은 종류의 주식으로 할 수 있다. ③ 제1항의 배당은 제14조 제1항에 따라 정한 날 현재의 주주명부에 기재된 주주 또는 등록된 질권자에게 지급한다. ④ 이익배당은 주주총회의 결의로 정한다. |
| 제53조 (분기 배당) |
① 회사는 이사회의 결의로 사업연도 개시일부터 3월, 6월 및 9월이 말일(이하 “분기배당 기준일”이라 한다)의 주주에게 「자본시장과 금융투자업에 관한 법률」 제165조의12에 따라 분기배당을 할 수 있다. ② 제1항의 이사회 결의는 분기배당 기준일 이후 45일 내에 하여야 한다. ③ 분기배당은 직전결산기의 대차대조표상의 순자산액에서 다음 각호의 금액을 공제한 액을 한도로 한다. 1. 직전결산기의 자본금의 액 2. 직전결산기까지 적립된 자본준비금과 이익준비금의 합계액 3. 직전결산기의 정기주주총회에서 이익배당하기로 정한 금액 4. 직전결산기까지 정관의 규정 또는 주주총회의 결의에 의하여 특정목적을 위해 적립한 임의준비금 5. 「상법 시행령」 제19조에서 정한 미실현이익 6. 분기배당에 따라 당해 결산기에 적립하여야 할 이익준비금의 합계액 ④ 제1항의 분기배당은 분기배당 기준일 전에 발행한 주식에 대하여 동등배당한다. ⑤ 제8조의2의 종류주식에 대한 분기배당은 보통주식과 동일한 배당률을 적용한다. |
| 제54조 (배당금지급청구권 소멸시효) |
① 배당금은 배당이 확정된 날로부터 5년이 경과하여도 수령되지 않은 때에는 당 회사는 지급의무를 면하는 것으로 한다. ② 전항의 시효의 완성으로 인한 배당금은 당 회사에 귀속한다. ③ 이익배당금에 대하여는 이자를 지급하지 않는다. |
나. 주요배당지표
| 구 분 | 주식의 종류 | 당기 | 전기 | 전전기 |
|---|---|---|---|---|
| 제10기 1분기 | 제9기 | 제8기 | ||
| 주당액면가액(원) | 100 | 100 | 500 | |
| (연결)당기순이익(백만원) | -1,155 | 1,319 | 1,731 | |
| (별도)당기순이익(백만원) | -1,161 | 1,318 | 1,808 | |
| (연결)주당순이익(원) | -161 | 216 | 1,444 | |
| 현금배당금총액(백만원) | - | - | - | |
| 주식배당금총액(백만원) | - | - | - | |
| (연결)현금배당성향(%) | - | - | - | |
| 현금배당수익률(%) | 보통주 | - | - | - |
| 우선주 | - | - | - | |
| 주식배당수익률(%) | 보통주 | - | - | - |
| 우선주 | - | - | - | |
| 주당 현금배당금(원) | 보통주 | - | - | - |
| 우선주 | - | - | - | |
| 주당 주식배당(주) | 보통주 | - | - | - |
| 우선주 | - | - | - | |
다. 과거 배당 이력
| (단위: 회, %) |
| 연속 배당횟수 | 평균 배당수익률 | ||
|---|---|---|---|
| 분기(중간)배당 | 결산배당 | 최근 3년간 | 최근 5년간 |
| - | - | - | - |
7. 증권의 발행을 통한 자금조달에 관한 사항
7-1. 증권의 발행을 통한 자금조달 실적
| [지분증권의 발행 등과 관련된 사항] |
가. 증자(감자)현황
| (기준일 : | 공시서류 제출 전일 | ) | (단위 : 원, 주) |
| 주식발행 (감소)일자 |
발행(감소) 형태 |
발행(감소)한 주식의 내용 | ||||
|---|---|---|---|---|---|---|
| 종류 | 수량 | 주당 액면가액 |
주당발행 (감소)가액 |
비고 | ||
| 2014.10.27 | - | 보통주 | 5,000 | 10,000 | 10,000 | 설립자본금 |
| 2015.12.03 | 유상증자(주주배정) | 보통주 | 10,000 | 10,000 | 10,000 | - |
| 2015.12.30 | 유상증자(주주배정) | 보통주 | 15,000 | 10,000 | 10,000 | - |
| 2016.01.30 | 유상증자(주주배정) | 보통주 | 10,000 | 10,000 | 10,000 | - |
| 2019.08.31 | 유상증자(주주배정) | 보통주 | 1,500 | 10,000 | 40,000 | - |
| 2020.02.22 | 현물출자 | 보통주 | 3,446 | 10,000 | 46,418 | 특허권 |
| 2020.08.04 | 주식분할 | 보통주 | 853,974 | 500 | - | 액면분할(10,000원→500원) |
| 2021.10.28 | 무상증자 | 보통주 | 296,000 | 500 | - | 1주당 0.33주 비율로 신주 배정 |
| 2021.11.20 | 유상증자(제3자배정) | 보통주 | 30,866 | 500 | 20,000 | - |
| 2022.05.10 | 주식분할 | 보통주 | 4,903,144 | 100 | - | 액면분할(500원→100원) |
| 2023.02.04 | 유상증자(일반공모) | 보통주 | 1,810,000 | 100 | 5,000 | 기업공개(코스닥시장 상장) |
| 2023.05.02 | 주식매수선택권행사 | 보통주 | 32,616 | 100 | 836 | - |
(주1) 2021.11.20 진행된 3자배정 유상증자는 우리사주조합을 대상으로 실시한 유상증자입니다.
나. 향후 지분증권으로 변경될 가능성이 있는 채무증권
공시서류작성기준일 현재, 미상환 전환사채, 신주인수권부사채, 전환형 조건부 자본증권, 신주인수권이 표시된 증서 등 향후 자본금을 증가시킬 수 있는 지분증권은 없습니다.
| [채무증권의 발행 등과 관련된 사항] |
채무증권 발행실적
| (기준일 : | 공시서류 제출 전일 | ) | (단위 : 백만원, %) |
| 발행회사 | 증권종류 | 발행방법 | 발행일자 | 권면(전자등록)총액 | 이자율 | 평가등급 (평가기관) |
만기일 | 상환 여부 |
주관회사 |
|---|---|---|---|---|---|---|---|---|---|
| - | - | - | - | - | - | - | - | - | - |
| 합 계 | - | - | - | - | - | - | - | - | - |
기업어음증권 미상환 잔액
| (기준일 : | 공시서류 제출 전일 | ) | (단위 : 백만원) |
| 잔여만기 | 10일 이하 | 10일초과 30일이하 |
30일초과 90일이하 |
90일초과 180일이하 |
180일초과 1년이하 |
1년초과 2년이하 |
2년초과 3년이하 |
3년 초과 | 합 계 | |
|---|---|---|---|---|---|---|---|---|---|---|
| 미상환 잔액 | 공모 | - | - | - | - | - | - | - | - | - |
| 사모 | - | - | - | - | - | - | - | - | - | |
| 합계 | - | - | - | - | - | - | - | - | - | |
단기사채 미상환 잔액
| (기준일 : | 공시서류 제출 전일 | ) | (단위 : 백만원) |
| 잔여만기 | 10일 이하 | 10일초과 30일이하 |
30일초과 90일이하 |
90일초과 180일이하 |
180일초과 1년이하 |
합 계 | 발행 한도 | 잔여 한도 | |
|---|---|---|---|---|---|---|---|---|---|
| 미상환 잔액 | 공모 | - | - | - | - | - | - | - | - |
| 사모 | - | - | - | - | - | - | - | - | |
| 합계 | - | - | - | - | - | - | - | - | |
회사채 미상환 잔액
| (기준일 : | 공시서류 제출 전일 | ) | (단위 : 백만원) |
| 잔여만기 | 1년 이하 | 1년초과 2년이하 |
2년초과 3년이하 |
3년초과 4년이하 |
4년초과 5년이하 |
5년초과 10년이하 |
10년초과 | 합 계 | |
|---|---|---|---|---|---|---|---|---|---|
| 미상환 잔액 | 공모 | - | - | - | - | - | - | - | - |
| 사모 | - | - | - | - | - | - | - | - | |
| 합계 | - | - | - | - | - | - | - | - | |
신종자본증권 미상환 잔액
| (기준일 : | 공시서류 제출 전일 | ) | (단위 : 백만원) |
| 잔여만기 | 1년 이하 | 1년초과 5년이하 |
5년초과 10년이하 |
10년초과 15년이하 |
15년초과 20년이하 |
20년초과 30년이하 |
30년초과 | 합 계 | |
|---|---|---|---|---|---|---|---|---|---|
| 미상환 잔액 | 공모 | - | - | - | - | - | - | - | - |
| 사모 | - | - | - | - | - | - | - | - | |
| 합계 | - | - | - | - | - | - | - | - | |
조건부자본증권 미상환 잔액
| (기준일 : | 공시서류 제출 전일 | ) | (단위 : 백만원) |
| 잔여만기 | 1년 이하 | 1년초과 2년이하 |
2년초과 3년이하 |
3년초과 4년이하 |
4년초과 5년이하 |
5년초과 10년이하 |
10년초과 20년이하 |
20년초과 30년이하 |
30년초과 | 합 계 | |
|---|---|---|---|---|---|---|---|---|---|---|---|
| 미상환 잔액 | 공모 | - | - | - | - | - | - | - | - | - | - |
| 사모 | - | - | - | - | - | - | - | - | - | - | |
| 합계 | - | - | - | - | - | - | - | - | - | - | |
7-2. 증권의 발행을 통해 조달된 자금의 사용실적
가. 공모자금의 사용내역
| (기준일 : | 공시서류 제출 전일 | ) | (단위 : 백만원) |
| 구 분 | 회차 | 납입일 | 증권신고서 등의 자금사용 계획 |
실제 자금사용 내역 |
차이발생 사유 등 | ||
|---|---|---|---|---|---|---|---|
| 사용용도 | 조달금액 | 내용 | 금액 | ||||
|
기업공개 (코스닥시장 상장) |
- | 2023.02.03 | 시설자금 | 9,050 |
시설자금 및 상장제비용 등 |
3,050 | (주1) |
(주1) 당사는 2023.03.30일자 주요사항보고서(유형자산 양수결정)을 통해 생산공장 및 물류센터 신축을 위한 부지 확보를 위한 계약(양수금액: 약 45억원)을 체결하였으며, 증권신고서 제출일 현재 계약금 및 중도금으로 약 14억원을 사용하였습니다. 또한, 당사는 상장 제비용, 차입금상환, 운영자금 등의 목적으로 약 24억원을 사용하였습니다.
나. 사모자금의 사용내역
| (기준일 : | 공시서류 제출 전일 | ) | (단위 : 백만원) |
| 구 분 | 회차 | 납입일 | 주요사항보고서의 자금사용 계획 |
실제 자금사용 내역 |
차이발생 사유 등 | ||
|---|---|---|---|---|---|---|---|
| 사용용도 | 조달금액 | 내용 | 금액 | ||||
| 유상증자 | 6 | 2021.11.20 | 운영자금 | 617 | 운영자금 | 617 | - |
(주1) 상기 사모자금사용의 내역은 당사의 상장 이전에 진행한 내용으로, 주요사항보고서를 작성한 사실은 없습니다.
다. 미사용자금의 운용내역
| (기준일 : | 공시서류 제출 전일 | ) | (단위 : 백만원) |
| 종류 | 금융상품명 | 운용금액 | 계약기간 | 실투자기간 |
|---|---|---|---|---|
| 예ㆍ적금 | 단기금융상품 | 3,000 | 2023.02 ~ 2023.08 | 3개월 |
| 예ㆍ적금 | MMT | 3,000 | 2023.02 | 3개월 |
| 계 | 6,000 | - | ||
8. 기타 재무에 관한 사항
가. 재무제표 재작성 등 유의사항
(1) 재무제표 재작성 영향 등
해당사항 없음
(2) 합병, 분할, 자산양수도, 영업양수도에 관한 사항
(가) 유형자산 양수 (토지)
1) 자산명 : 경기도 안성시 원곡면 성은리 산22-2 (토지:9,900㎡)
2) 양수금액 : 4,490,000,000원
- 계약금 : 449,000,000원 (2023.03.30)
- 중도금 : 1,000,000,000원 (2023.04.27)
- 잔 금 : 3,041,000,000원 (2023.06.29)
3) 양수목적 : 생산공장 및 물류센터 신축을 위한 부지확보
4) 양수영향 : 생산라인 구축 및 물류센터 통합으로 인한 수익성 개선
5) 양수예정일
- 계약체결일 : 2023.03.30
- 양수기준일 : 2023.06.29
6) 거래상대방 : 주식회사 서광인프라
7) 관련 공시서류 : 주요사항보고서(유형자산양수결정) (공시일:2023.03.30)
(3) 자산유동화와 관련한 자산매각의 회계처리 및 우발채무 등에 관한 사항
해당사항 없음
(4) 기타 재무제표 이용에 유의하여야 할 사항
당보고서의 "Ⅲ. 재무에 관한 사항" - "3. 연결재무제표 주석" - "2. 중요한 회계정책" 및 재무제표 "5. 재무제표 주석" - "2. 중요한 회계정책"을 참고하시기 바랍니다.
나. 대손충당금 설정현황
(1) 대손충당금 설정내용
| (단위 : 원, %) |
| 구 분 | 계정과목 | 채권 총액 | 대손충당금 |
대손충당금 설정률 |
|---|---|---|---|---|
|
제10기 |
매출채권 | 3,109,335,522 | 136,389,245 | 4.39% |
| 미수금 | 899,517,548 | - | - | |
| 미수수익 | 12,016,438 | - | - | |
| 장기보증금 | 6,101,930 | - | - | |
| 합 계 | 4,026,971,438 | - | - | |
|
제9기 |
매출채권 | 2,931,985,388 | 1,586,699 | 0.05% |
| 미수금 | 558,541,020 | - | - | |
| 미수수익 | - | - | - | |
| 장기보증금 | 6,101,930 | - | - | |
| 합 계 | 3,496,628,338 | 1,586,699 | 0.05% | |
|
제8기 |
매출채권 | 775,094,283 | 4,546,506 | 0.59% |
| 미수금 | 17,218,761 | - | - | |
| 미수수익 | 17,450 | - | - | |
| 장기보증금 | 6,101,930 | - | - | |
| 합 계 | 798,432,424 | 4,546,506 | 0.57% |
※ 한국채택국제회계기준(K-IFRS)에 따라 작성된 연결기준입니다.
(2) 대손충당금 변동현황
| (단위 : 원) |
| 구 분 | 제10기 1분기 | 제9기 | 제8기 |
|---|---|---|---|
| 1. 기초 대손충당금 잔액합계 | 1,586,699 | 4,546,506 | 10,270,636 |
| 2. 순대손처리액(①-②±③) | - | - | - |
| ① 대손처리액(상각채권액) | - | - | - |
| ② 상각채권회수액 | - | - | - |
| ③ 기타증감액 | - | - | - |
| 3. 대손상각비 계상(환입)액 | 134,802,546 | (2,959,807) | (5,724,130) |
| 4. 기말 대손충당금 잔액합계 | 136,389,245 | 1,586,699 | 4,546,506 |
※ 한국채택국제회계기준(K-IFRS)에 따라 작성된 연결기준입니다.
(3) 매출채권 등 관련 대손충당금 설정방침
당사는 일반적으로 매출채권에 대해 전체 기간 기대신용손실을 손실충당금으로 인식하는 간편법을 적용하여 대손충당금을 설정하고 있으며, 1년 이상 매출채권에 대해 100% 대손충당금을 설정하고 있습니다. 또한 장기체화된 매출채권에 대하여 영업 부서를 통하여 회수를 요청하는 등 체계적인 채권관리를 수행하고 있습니다.
(4) 경과기간별 매출채권 및 기타채권의 잔액 현황
| (단위 : 원, %) |
| 구 분 | 연체된 일수 | |||||||
|---|---|---|---|---|---|---|---|---|
| 미연체 | 3개월 이내 | 4~6개월 | 6~9개월 | 9~12개월 | 1년 초과 채권 | 계 | ||
|
금액 |
일반 | 1,528,564,675 | 841,552,304 | 734,745,600 | - | - | 1,427,430 | 3,106,290,009 |
| 특수관계자 | 3,045,513 | - | - | - | - | - | 3,045,513 | |
| 계 | 1,531,610,188 | 841,552,304 | 734,745,600 | - | - | 1,427,430 | 3,109,335,522 | |
| 구성비율 | 49.26% | 27.07% | 23.63% | - | - | 0.05% | 100.00% | |
※ 한국채택국제회계기준(K-IFRS)에 따라 작성된 연결기준입니다.
다. 재고자산 현황 등
(1) 최근 3사업연도의 재고자산 보유현황
| (단위 : 원, %, 회) |
| 구분 | 계정과목 |
제10기 1분기 (2023년) |
제9기 (2022년) |
제8기 (2021년) |
|---|---|---|---|---|
|
(주)꿈비 전 부문 |
제품 | 1,920,550,104 | 2,197,217,103 | 1,827,425,446 |
| 상품 | 1,010,887,186 | 1,017,117,467 | 29,570,969 | |
| 원재료 | 56,830,614 | 80,684,725 | 117,104,806 | |
| 저장품 | 169,897,475 | 159,268,053 | 149,337,022 | |
| 미착품 | 1,216,541,241 | 920,275,736 | - | |
| 합계 | 4,374,706,620 | 4,374,563,084 | 2,123,438,243 | |
| 총자산대비 재고자산 구성비율(%) [재고자산합계/기말자산총계*100] |
18.2% | 27.4% | 18.4% | |
|
재고자산회전율(회수) [연환산 매출원가÷{(기초재고+기말재고)÷2}] |
4.2회 | 5.6회 | 6.8회 | |
※ 한국채택국제회계기준(K-IFRS)에 따라 작성된 연결기준입니다.
(2) 재고자산의 실사내역등
(가) 실사일자 및 방법
1) 당사는 재고실사를 기말 연 1회 실행하고 있습니다. 재고실사 기준일 장부상 재고 수량과 실사일 현재 실재 재고 수량을 대사하여 차이내역 확인(실사 기준일과 실제 실사일 사이의 재고자산 변동사항은 입,출고 증빙을 통해 확인)하며, 일부 중요성이 높지않고 품목수가 많은 품목에 한해서는 샘플링 조사를 실시하고 있습니다. 기말 재고실사시에는 외부감사인 입회하에 그 실재성 및 완전성을 확인하고 있습니다.
2) 외주업체 보관 사급자재는 물품보관증 징구 후 주요자재에 대해 전수조사를 실시하고 있습니다.
3) 기말재고 실사는 외부감사인의 입회하에 실시하며, 필요에 따라 연간 수시 재고실사를 병행하고 있습니다.
(나) 실사일자
재고실사는 재고자산의 각 품목별 재고자산 리스트와 실제 보관 중인 재고자산의 수량을 전수 비교하는 방식으로 2023년 1월 3일 외부 감사인의 입회하에 진행되었습니다.
(다) 재고자산의 평가
재고자산은 상품, 제품, 원재료 등으로 구성되어 있으며, 당사의 재고자산은 최종 판매 시점 이후 1년 이상 경과된 품목에 대해서 재고변동 없을시 100%의 충당금을 설정하고 있습니다. 매년말 평가를 통하여 순실현가치가 취득원가에 미달하는 경우 그 차이액에 대하여 평가충당금을 추가적으로 설정하고 있으며, 매 회계연도말 평가기준의 적정성 검토를 진행하고 있습니다. 당기말 현재 재고자산에 대한 평가내역은 다음과 같습니다.
| (기준일 : | 2023.03.31 | ) | (단위 : 원) |
| 계정과목 | 취득원가 | 보유금액 | 평가충당금 | 기말잔액 | 비고 |
|---|---|---|---|---|---|
| 제 품 | 1,989,944,904 | 1,989,944,904 | (69,394,800) | 1,920,550,104 | - |
| 상 품 | 1,019,166,603 | 1,019,166,603 | (8,279,417) | 1,010,887,186 | - |
| 원재료 | 57,820,614 | 57,820,614 | (990,000) | 56,830,614 | - |
| 저장품 | 169,897,475 | 169,897,475 | - | 169,897,475 | - |
| 미착품 | 1,216,541,241 | 1,216,541,241 | - | 1,216,541,241 | - |
| 합 계 | 4,453,370,837 | 4,453,370,837 | (78,664,217) | 4,374,706,620 | - |
※ 한국채택국제회계기준(K-IFRS)에 따라 작성된 연결기준입니다.
(라) 기타사항
재고자산의 담보제공은 없습니다.
라. 공정가치평가 내역
당 보고서에 기재되어 있는 "Ⅲ. 재무에 관한 사항" - "3. 연결재무제표 주석" - "5. 범주별 금융상품" 및 "5. 재무제표 주석" - "5. 범주별 금융상품" 을 참고하여 주시기 바랍니다.
마. 수주계약 현황
당사는 대부분의 매출이 온라인을 통해 고객에게 직접 판매하는 구조로 판매를 진행하고 있어 수주계약은 해당사항 없습니다.
IV. 회계감사인의 감사의견 등
1. 외부감사에 관한 사항
가. 회계감사인의 명칭 및 감사의견
| 사업연도 | 감사인 | 감사의견 | 강조사항 등 | 핵심감사사항 |
|---|---|---|---|---|
| 제10기 1분기(당기) | 동현회계법인 | - | - | - |
| 제9기(전기) | 신우회계법인 | 적정 | 해당사항 없음 | 해당사항 없음 |
| 제8기(전전기) | 신우회계법인 | 적정 | 해당사항 없음 | 해당사항 없음 |
나. 감사용역 체결현황
| 사업연도 | 감사인 | 내 용 | 감사계약내역 | 실제수행내역 | ||
|---|---|---|---|---|---|---|
| 보수 | 시간 | 보수 | 시간 | |||
| 제10기 1분기(당기) | 동현회계법인 | 별도/연결 재무제표 검토 및 감사 | 80 | 710 | - | - |
| 제9기(전기) | 신우회계법인 |
별도/연결 재무제표 검토 및 감사 |
150 | 1,151 | 150 | 1,151 |
| 제8기(전전기) | 신우회계법인 | 별도/연결 재무제표 검토 및 감사 | 80 | 701 | 80 | 701 |
다. 회계감사인과의 비감사용역 계약체결 현황
| 사업연도 | 계약체결일 | 용역내용 | 용역수행기간 | 용역보수 | 비고 |
|---|---|---|---|---|---|
| 제10기 1분기(당기) | - | - | - | - | - |
| 제9기(전기) | - | - | - | - | - |
| 제8기(전전기) | 2021.08.23 | IFRS 도입 자문 | 2021.08.23~2021.08.31 | 30 | 동현회계법인 |
| 2021.09.09 | 스톡옵션 평가 용역 | 2021.09.10~2021.09.17 | 9 | 동현회계법인 | |
| 2021.09.09 | 주식가치 평가 용역 | 2021.09.10~2021.09.17 | 9 | 동현회계법인 | |
| 2021.12.10 | 회계자문 용역 |
2021.12.20~2021.12.23 2022.02.14~2022.02.16 |
35 | 동현회계법인 |
라. 감사기구가 회계감사인과 논의한 결과
| 구분 | 일자 | 참석자 | 방식 | 주요 논의 내용 |
|---|---|---|---|---|
| 1 | 2021.12.23 |
회사측:대표이사, 재무담당이사 등 감사인측:업무수행이사, 담당회계사 등 |
대면회의 | 감사계획 및 감사팀 구성, 감사투입시간과 보수, 경영진 및 감사인의 책임, 감사인의 독립성 등 |
| 2 | 2022.02.16 |
회사측:대표이사, 재무담당이사 등 감사인측:업무수행이사, 담당회계사 등 |
대면회의 | 현장감사 수행 결과 |
| 3 | 2022.11.23 |
회사측:대표이사, 재무담당이사 등 감사인측:업무수행이사, 담당회계사 등 |
대면회의 | 감사계획 및 감사팀 구성, 감사투입시간과 보수, 경영진 및 감사인의 책임, 감사인의 독립성 등 |
| 4 | 2023.02.22 |
회사측:대표이사, 재무담당이사 등 감사인측:업무수행이사, 담당회계사 등 |
대면회의 | 현장감사 수행 결과 |
마. 조정협의회내용 및 재무제표 불일치 정보
해당사항 없음
바. 회계감사인의 변경
당사는 2019년 동현회계법인을 자유선임하여 초도감사를 수감하였습니다. 이후 코스닥시장 상장 추진을 위해 「주식회사 등의 외부감사에 관한 법률」 제11조 제1항 및 제2항, 동법 시행령 제17조 및 「외부감사 및 회계 등에 관한 규정」 제10조 및 제15조 제1항에 의거하여 금융감독원으로부터 제8기(2021.01.01~ 2021.12.31)에 대한 외부감사인으로 신우회계법인을 지정 통지받아 동 회계법인과 감사계약을 체결하였습니다. 제9기(2022.01.01~2022.12.31)도 금융감독원으로부터 신우회계법인을 외부감사인으로 지정받아 감사계약을 체결 하였습니다. 이후 지정감사가 만료됨에 따라 자유선임으로 3년(2023.01.01~2025.12.31)간 동현회계법인으로 감사 계약을 체결 하였습니다.
2. 내부통제에 관한 사항
가. 내부통제
해당사항 없음
나. 내부회계관리제도
당사는 사업연도 말 현재 주권상장법인이 아닌 회사로서 직전 사업연도 말 자산총액이 1천억원 미만이기 때문에 「주식회사 등의 외부감사에 관한 법률」 제2조의2에 의거 내부회계 관리제도 운영에 의무적이지 않습니다. 다만, 코스닥 상장이후 내부통제강화 및 경영투명성을 위하여 내부회계관리제도 구축을 위한 용역계약을 체결하여 시스템을 구축을 2022년 12월초 완료하였으며, 당사는 상장 후 최초로 도래하는 사업연도부터 매 사업연도마다 주권상장법인으로서 내부회계관리자가 사업연도별로 이사회 및 감사에게 내부회계관리제도의 운영실태를 보고하고, 감사는 회계감사인에게 이를 보고하여 회계감사인의 내부회계관리제도에 대한 검토 또는 감사의견을 득할 예정입니다.
다. 내부통제구조의 평가
해당사항 없음
V. 이사회 등 회사의 기관에 관한 사항
1. 이사회에 관한 사항
가. 이사회의 구성
이사는 주주총회에서 선임하며, 주주총회에서 선임할 이사 후보자는 이사회에서 선정하며 주주총회에 제출할 의안으로 확정하고 있습니다. 이러한 절차에 따라 선임된 이사는 사내이사 박영건, 사내이사 박보선, 사외이사 조원섭 총 3명으로 구성되어 있습니다. 당사 정관에 따라 이사회 의장은 대표이사인 박영건이 수행하고 있으며, 이사회에서 따로 정한 이사가 있을 때에는 그 이사가 이사회의 소집권자이며 의장 입니다. 각 이사의 주요 이력 및 업무분장은 "Ⅷ. 임원 및 직원 등에 관한 사항" 을 참조해주시기 바랍니다.
- 사외이사 및 그 변동현황
| (단위 : 명) |
| 이사의 수 | 사외이사 수 | 사외이사 변동현황 | ||
|---|---|---|---|---|
| 선임 | 해임 | 중도퇴임 | ||
| 3 | 1 | - | - | - |
나. 이사회 주요 의결사항 (최근 1사업연도)
| 개최일자 | 의안내용 | 가결여부 | 사내이사 | 사외이사 | |
|---|---|---|---|---|---|
| 박영건 | 박보선 | 조원섭 | |||
| (출석률: 100%) |
(출석률: 100%) |
(출석률: 100%) |
|||
| 찬반여부 | |||||
| 2023.01.30 | 코스닥시장 상장을 위한 신주발행 및 구주매출의 건 | 가결 | 찬성 | 찬성 | 찬성 |
| 2023.02.22 | 임원 상여금 지급의 건 | 가결 | 찬성 | 찬성 | 찬성 |
| 2023.02.27 | 타법인주식 취득의 건 | 가결 | 찬성 | 찬성 | 찬성 |
| 2023.03.15 | 제9기 결산 연결(별도)재무제표 승인의 건 | 가결 | 찬성 | 찬성 | 찬성 |
| 2023.03.16 | 제9기 정기주주총회 소집의 건 | 가결 | 찬성 | 찬성 | 찬성 |
| 2023.03.30 | 유형자산 양수의 건 | 가결 | 찬성 | 찬성 | 찬성 |
| 2023.03.31 | 대표이사 선임의 건 | 가결 | 찬성 | 찬성 | 찬성 |
| 2023.04.17 | 유형자산 양수의 건 | 가결 | 찬성 | 찬성 | 찬성 |
| 2023.05.25 | 유상증자(일반공모) 신주발행의 건 | 가결 | 찬성 | 찬성 | 찬성 |
| 2023.05.25 | 무상증자 신주발행의 건 | 가결 | 찬성 | 찬성 | 찬성 |
다. 이사회 내 위원회
해당사항 없음
라. 이사의 독립성
이사는 상법 등 관련 법령상의 절차를 준수하여 선임됩니다. 작성일 현재 당사의 이사회는 총 3인 중 사내이사(2명), 사외이사(1명) 으로 구성함으로써 독립성을 견지하고 있고, 주주총회에서 최종적으로 선임되고 있습니다. 이러한 절차를 통해 선임된 이사는 다음과 같습니다.
| 직명 | 성명 | 임기만료일 | 연임여부 및 연임 횟수 |
담당업무 | 선임배경 | 추천인 |
회사와의 거래 |
최대주주 또는 주요주주와의 관계 |
|---|---|---|---|---|---|---|---|---|
| 사내이사 | 박영건 | 2026.03.31 |
연임 (3회) |
대표이사 경영총괄 |
당사가 영위하는 산업 전반에 대한 전문지식과 풍부한 업무경험을 가지고 있으며, 이를 바탕으로 당사의 경영활동 전반에 대해 많은 기여를 할 수 있을 것으로 판단됨. 향후에도 검증된 경영능력을 바탕으로 사내이사로서의 역할을 훌륭히 수행하고, 회사의 지속적인 성장과 발전에 큰 역할을 할 것으로 기대되는 바, 당사의 사내이사 적임자로 판단함. | 이사회 |
해당사항 없음 |
최대주주 본인 |
| 사내이사 | 박보선 | 2024.10.01 |
해당사항 없음 |
관리총괄 |
당사의 경영혁신본부의 본부장으로서 다양한 경험과 전문적인 역량을 바탕으로 회사의 의사결정과 경영활동에 많은 기여가 기대되는 바, 당사의 사내이사 적임자로 판단함. | 이사회 |
해당사항 없음 |
해당사항 없음 |
| 사외이사 | 조원섭 | 2024.10.01 |
해당사항 없음 |
전사 경영 전반에 대한 업무 |
브랜드 마케팅 전문가로서 다양한 경험과 전문적인 역량을 바탕으로 회사의 의사결정과 경영활동이 적법하고 합리적으로 이루어지도록 기여할 것으로 판단함. |
이사회 |
해당사항 없음 |
해당사항 없음 |
마. 사외이사후보추천위원회
당사는 보고서 제출일 현재 사외이사후보추천위원회를 구성하고 있지 않습니다.
바. 사외이사의 전문성
당사는 사외이사의 직무수행을 위한 별도의 지원조직은 현재 구성되어 있지 않습니다. 필요시 경영지원본부 등 관련 부서에서 사외이사가 이사회에서 전문적인 직무수행이 가능하도록 보조하고 있습니다. 또한, 이사회 개최 전에 해당 안건 내용을 충분히 검토할 수 있도록 사전에 자료를 제공하고 있으며, 기타 사내 주요현안에 대해서도 수시로 정보를 제공하고 있습니다.
- 사외이사 교육 미실시 내역
| 사외이사 교육 실시여부 | 사외이사 교육 미실시 사유 |
|---|---|
| 미실시 | 당사는 이사회 개최전 의안에 대해 충분한 검토가 될 수 있도록 사전에 자료를 제공하고 있습니다. 또한, 당사의 사외이사는 당사가 영위하는 사업부문에 이해도가 높은 분으로 구성되어 있어, 별도의 내/외부 교육은 실시하고 있지 않습니다. 추후, 필요 및 당사자의 요청이 있는 경우 내/외부 교육을 실시하도록 하겠습니다. |
2. 감사제도에 관한 사항
가. 감사의 인적사항
| 성 명 | 상근여부 | 주 요 경 력 | 결격요건 여부 |
최대주주등과의 관계 |
비고 |
|---|---|---|---|---|---|
| 류재언 | 비상근 |
- 성균관대학교 경영학 학사 - 부산대 법학전문대학원 법학과 졸업 - 법무법인 율본 파트너변호사 |
적격 | 해당사항 없음 | - |
나. 감사의 독립성에 관한 사항
감사는 이사회에 참석하여 독립적으로 이사의 업무를 감독할 수 있으며, 제반업무와 관련하여 관련 장부 및 관계서류를 해당부서에 제출을 요구할 수 있습니다. 또한 필요시 회사로부터 영업에 관한 사항을 보고 받을 수 있으며, 적절한 방법으로 경영정보에 접근할 수 있습니다. 당사의 감사의 직무등과 관련하여 주요규정내용(정관)은 다음과 같습니다.
|
제 45조 (감사의 직무) ① 감사는 당 회사의 업무 및 회계를 감사한다. ② 감사는 회의의 목적사항과 소집의 이유를 기재한 서면을 이사회에 제출하여 임시주주 총회의 소집을 청구할 수 있다. ③ 감사는 그 직무를 수행하기 위하여 필요한 때에는 자회사에 대하여 영업의 보고를 요 구할 수 있다. 이 경우 자회사가 지체 없이 보고를 하지 아니할 때 또는 그 보고의 내용 을 확인할 필요가 있는 때에는 자회사의 업무와 재산상태를 조사할 수 있다. ④ 감사는 회사의 비용으로 전문가의 도움을 구할 수 있다. ⑤ 감사는 필요하면 회의의 목적사항과 소집이유를 적은 서면을 이사에게 제출하여 이사 회 소집을 청구할 수 있다. ⑥ 제5항의 청구를 하였는데도 이사가 지체 없이 이사회를 소집하지 아니하면 그 청구한 감사가 이사회를 소집할 수 있다. ⑦ 감사에 대해서는 제35조 제3항 및 제36조의2의 규정을 준용한다. |
다. 감사의 주요활동내역
| 개최일자 | 의안내용 | 가결여부 |
|---|---|---|
| 2023.01.30 | 코스닥시장 상장을 위한 신주발행 및 구주매출의 건 | 가결 |
| 2023.02.22 | 임원 상여금 지급의 건 | 가결 |
| 2023.02.27 | 타법인주식 취득의 건 | 가결 |
| 2023.03.15 | 제9기 결산 연결(별도)재무제표 승인의 건 | 가결 |
| 2023.03.16 | 제9기 정기주주총회 소집의 건 | 가결 |
| 2023.03.30 | 유형자산 양수의 건 | 가결 |
| 2023.03.31 | 대표이사 선임의 건 | 가결 |
| 2023.04.17 | 유형자산 양수의 건 | 가결 |
| 2023.05.25 | 유상증자(일반공모) 신주발행의 건 | 가결 |
| 2023.05.25 | 무상증자 신주발행의 건 | 가결 |
라. 감사 교육 미실시 내역
감사에 대한 별도의 교육을 실시하고 있지 않으나, 해당 전문적 지식 등을 통해 당사의 다양한 의사결정에 참여하고 있습니다. 향후 「주식회사 등의 외부감사에 관한 법률」개정에 따른 감사의 역할과 책임을 숙지하고, 내부회계관리제도 및 관련 법령에 대한 이해를 높이며, 필요시 회사의 사업 현황 등에 실효성 있는 교육을 실시할 계획입니다.
- 감사 교육 미실시 내역
| 감사 교육 실시여부 | 감사 교육 미실시 사유 |
|---|---|
| 미실시 | 감사의 전문성(변호사) 보유로 별도의 외부교육은 실시하지 않았습니다. 추후, 필요 및 당사자의 요청이 있는 경우 내/외부 교육을 실시하도록 하겠습니다. |
마. 감사 지원조직 현황
당사는 감사의 직무수행을 위한 별도의 지원조직은 현재 구성되어 있지 않습니다. 필요시 경영지원본부 등 관련 부서에서 감사가 이사회에서 전문적인 직무수행이 가능하도록 보조하고 있습니다. 또한, 이사회 개최 전에 해당 안건 내용을 충분히 검토할 수 있도록 사전에 자료를 제공하고 있으며, 기타 사내 주요현안에 대해서도 수시로 정보를 제공하고 있습니다.
바. 준법지원인 등 지원조직 현황
당사는 보고서 제출일 현재 상법 제542조의13에 따른 자산총액 5천억원 미만 법인이으로 해당사항이 없습니다.
3. 주주총회 등에 관한 사항
가. 투표제도 현황
당사는 보고서 제출일 현재 집중투표제, 서면투표제 및 전자투표제를 채택하지 아니하고, 주주총회에 주주 본인이 직접참석 또는 그 대리인이 참석하여 투표권을 행사하고 있습니다.
| (기준일 : | 2023.03.31 | ) |
| 투표제도 종류 | 집중투표제 | 서면투표제 | 전자투표제 |
|---|---|---|---|
| 도입여부 | 배제 | 미도입 | 미도입 |
| 실시여부 | - | - | - |
나. 소수주주권
당사는 공시대상기간 중 소수주주권이 행사된 경우가 없습니다.
다. 경영권 경쟁
당사는 공시대상기간 중 회사의 경영권에 관하여 경쟁이 있었던 경우가 없습니다.
라. 의결권 현황
| (기준일 : | 공시서류 제출 전일 | ) | (단위 : 주) |
| 구 분 | 주식의 종류 | 주식수 | 비고 |
|---|---|---|---|
| 발행주식총수(A) | 보통주 | 7,971,546 | - |
| 우선주 | - | - | |
| 의결권없는 주식수(B) | 보통주 | 458,060 | 자기주식 |
| 우선주 | - | - | |
| 정관에 의하여 의결권 행사가 배제된 주식수(C) | 보통주 | - | - |
| 우선주 | - | - | |
| 기타 법률에 의하여 의결권 행사가 제한된 주식수(D) |
보통주 | - | - |
| 우선주 | - | - | |
| 의결권이 부활된 주식수(E) | 보통주 | - | - |
| 우선주 | - | - | |
| 의결권을 행사할 수 있는 주식수 (F = A - B - C - D + E) |
보통주 | 7,513,486 | - |
| 우선주 | - | - |
마. 주식사무
|
정관상 신주인수권 내용 |
제10조 (신주인수권) ① 이 회사의 주주는 신주발행에 있어서 그가 소유한 주식 수에 비례하여 신주의 배정 을 받을 권리를 가진다. ② 제1항의 규정에도 불구하고 다음 각 호의 경우에는 주주 외의 자에게 신주를 배정할 수 있다. 1. 발행주식 총수의 100분의 50을 초과하니 않는 범위 내에서 「자본시장과 금융투 자업에 관한 법률」 제 165조의 6의 규정에 의하여 이사회의 결의로 일반공모증자 방식 으로 신주를 발행하는 경우 2. 「자본시장과 금융투자업에 관한 법률」 제 165조의 6의 규정에 의하여 주식총수 의 100분의 20 범위 내에서 우리사주 조합원에게 신주를 우선 배정하는 경우 3. 「상법」 제 542조의 3의 규정에 의하여 주식매수선택권의 행사로 인하여 신주를 발행하는 경우 4. 발행주식 총수의 100분의 30을 초과하지 않는 범위 내에서 긴급한 자금조달을 위 하여 국내외 금융기관 또는 기관 투자자에게 신주를 발행하는 경우 5. 발행주식총수의 100분의 30을 초과하지 않는 범위 내에서 사업상 중요한 기술도 입, 연구개발, 생산, 판매, 자본제휴를 위하여 그 상대방에게 신주를 발행하는 경우 6. 주권을 유가증권시장에 상장하거나 코스닥시장에 상장하기 위하여 신주를 모집하 거나 인수인에게 인수하게 하는 경우 ③ 제2항의 각 호 중 어느 하나의 규정에 의해 신주를 발행할 경우 발행할 주식의 종류 와 수 및 발행가격 등은 이사회의 결의로 한다. ④ 주주가 신주인수권의 포기 또는 상실하거나 신주배정에서 단주가 발생하는 경우에 그 처리방법은 이사회의 결의로 정한다. ⑤ 제2항에 따라 주주외의 자에게 신주를 배정하는 경우 상법 제416조 제1호, 제2호, 제2호의2, 제3호 및 제4호에서 정하는 사항을 그 납입기일의 2주 전까지 주주에게 통지 하거나 공고하여야 한다. |
||
| 결 산 일 | 12월 31일 | 정기주주총회 |
결산일로부터 3개월이내 |
| 주권의 종류 |
「주식ㆍ사채 등의 전자등록에 관한 법률」에 따라 주권 및 신주인수권증서에 표시되어야 할 권리가 의무적으로 전자등록됨에 따라 '주권의 종류'를 기재하지 않음 |
||
| 명의개서대리인 |
주식회사 국민은행 서울특별시 영등포구 국제금융로8길 26 (여의도동) |
||
| 주주의 특전 | 없음 | ||
| 공고게재신문 | 인터넷홈페이지(http://www.ggumbi-company.com)에 게재하는 방법으로 한다. 다만, 전산장애 또는 그 밖의 부득이한 사유로 회사의 인터넷홈페이지에 공고를 할 수 없을 때에는서울특별시에서 발행되는 일간 한국경제신문에 공고하기로 한다. | ||
바. 주주총회 의사록 요약
| 주총일자 | 안 건 | 결의내용 | 비고 |
|---|---|---|---|
|
2023.03.31 (정기주총) |
제1호 의안. 제9기(2022.01.01~2022.12.31) 재무제표(이익잉여금처분계산서 포함) 및 연결재무제표 승인의 건 제2호 의안. 정관일부 변경의 건 제3호 의안. 이사 선임의 건 제3-1호 의안 : 사내이사 박영건 선임의 건 제4호 의안. 이사 보수한도액 승인의 건 제5호 의안. 감사 보수한도액 승인의 건 제6호 의안. 임원퇴직금지급규정 개정 승인의 건 |
가결 가결 가결 |
- |
|
2022.09.08 (임시주총) |
제1호 의안. 정관(주식매수선택권) 변경의 건 | 가결 | - |
|
2022.08.26 (임시주총) |
제1호 의안. 정관(공고방법) 변경의 건 | 가결 | - |
|
2022.05.10 (임시주총) |
제1호 의안. 주식매수선택권 부여 승인의 건 | 가결 | - |
|
2022.04.22 (정기주총) |
제1호 의안. 재무제표 승인의 건 제2호 의안. 이사보수 한도 승인의 건 제3호 의안. 감사보수 한도 승인의 건 |
가결 가결 가결 |
- |
|
2022.03.30 (임시주총) |
제1호 의안. 정관 일부 변경의 건 제2호 의안. 회사가 발행할 주식의 총수에 관한 정관변경의 건 제3호 의안. 주식 액면분할을 위한 정관변경(1주의 금액)의 건 제4호 의안. 비상근고문 상여금(퇴직위로금) 지급의 건 |
가결 가결 가결 가결 |
- |
|
2021.11.29 (임시주총) |
제1호 의안. 상호에 관한 정관변경의 건 제2호 의안. 목적에 관한 정관 변경의 건 |
가결 가결 |
- |
|
2021.10.12 (임시주총) |
제1호 의안. 임원보수규정, 임원퇴직금지급규정, 임원상여금 지급규정 제정의 건 |
가결 | - |
|
2021.10.01 (임시주총) |
제1호 의안. 임원변경의 건 | 가결 | - |
|
2021.09.10 (임시주총) |
제1호 의안. 감사인 지정요청 승인의 건 | 가결 | - |
|
2021.03.31 (정기주총) |
제1호 의안. 결산보고서 승인의 건 제2호 의안. 이사보수 한도 승인의 건 제3호 의안. 감사보수 한도 승인의 건 |
가결 가결 가결 |
- |
|
2020.11.01 (임시주총) |
제1호 의안. 주식매수선택권 부여 승인의 건 | 가결 | - |
|
2020.10.27 (임시주총) |
제1호 의안. 임원변경의 건 | 가결 | - |
|
2020.10.06 (임시주총) |
제1호 의안. 주식매수선택권규정 설정의 건 | 가결 | - |
|
2020.07.29 (임시주총) |
제1호 의안. 회사가 발행할 주식의 총수 (정관)변경의 건 | 가결 | - |
|
2020.06.30 (임시주총) |
제1호 의안. 공고방법에 관한 정관변경의 건 제2호 의안. 주식액면분할을 위한 정관변경(1주의 금액)의 건 |
가결 가결 |
- |
|
2020.03.31 (정기주총) |
제1호 의안. 결산보고서 승인의 건 제2호 의안. 이사보수 한도 승인의 건 |
가결 가결 |
- |
VI. 주주에 관한 사항
1. 최대주주 및 특수관계인의 주식소유 현황
| (기준일 : | 공시서류 제출 전일 | ) | (단위 : 주, %) |
| 성 명 | 관 계 | 주식의 종류 |
소유주식수 및 지분율 | 비고 | |||
|---|---|---|---|---|---|---|---|
| 기 초 | 기 말 | ||||||
| 주식수 | 지분율 | 주식수 | 지분율 | ||||
| 박영건 | 본인 | 보통주 | 2,158,900 | 35.22 | 2,158,900 | 27.08 | - |
| 최연서 | 처형 | 보통주 | 1,239,695 | 20.23 | 1,239,695 | 15.55 | - |
| 최진희 | 배우자 | 보통주 | 983,628 | 16.05 | 983,628 | 12.34 | - |
| 이은석 | 동서 | 보통주 | 532,468 | 8.69 | 282,468 | 3.54 | (주2) |
| 이시현 | 조카 | 보통주 | 89,725 | 1.46 | 89,725 | 1.13 | - |
| 이현우 | 조카 | 보통주 | 89,725 | 1.46 | 89,725 | 1.13 | - |
| 이시우 | 조카 | 보통주 | 89,725 | 1.46 | 89,725 | 1.13 | - |
| 박은영 | 자녀 | 보통주 | 89,725 | 1.46 | 89,725 | 1.13 | - |
| 박주혁 | 자녀 | 보통주 | 89,725 | 1.46 | 89,725 | 1.13 | - |
| 계 | 보통주 | 5,363,316 | 87.51 | 5,113,316 | 64.14 | - | |
| - | - | - | - | - | - | ||
(주1) 상기 기초의 발행주식총수는 6,128,930주 입니다. 당사는 당기중 코스닥 시장 상장(상장일:2023.02.09)을 위해 일반공모를 진행 하였습니다. 또한, 당기중 주식매수선택권행사(행사일:2023.05.02)를 통해, 증권신고서 제출일 현재 발행주식총수는 7,971,546주 입니다.
(주2) 당사는 코스닥 시장 상장(상장일:2023.02.09)을 위해 일반공모를 진행하였으며, 특수관계인 이은석의 주식 250,000주를 구주 매출 하였습니다.
나. 최대주주의 주요경력
보고서 작성기준일 현재 당사의 최대주주는 박영건 대표이사이며, 당사 경영을 총괄하고 있습니다. 주요 경력은 다음과 같습니다.
| (기준일 : 2023.03.31) |
| 성명 | 주요경력 | |
|---|---|---|
| 주요경력 | 주요 겸직현황 | |
| 박영건 |
2001.02. 원광대학교 경영학과 졸업 2001.09. ~ 2013.03. ㈜코원 기획팀장 2014.10. ~ 현재 ㈜꿈비 대표이사 |
- |
다. 최대주주의 변동을 초래할 수 있는 특정 거래가 있는 경우 그 내용
해당사항 없음
2. 최대주주 변동현황
당사는 2010년 08월 개인사업자(박영건, 최진희, 최연서)로 시작하여 2014년 박영건 대표이사 및 특수관계인 3인이 지분을 출자하여 설립(법인전환)되었습니다. 설립 이후 2회 최대주주 변경 내역이 존재하나 이는 실질적인 경영권 변동은 발생되지 않은 최대주주의 변경입니다. 현재 최대주주 박영건 대표이사는 2019년 유상증자 참여를 통해 최대주주가 되었고 기준일 현재까지 변동사항은 없습니다. 당사는 공시대상기간 중 실질적인 경영권 변동으로 최대주주가 변동되었던 경우가 없습니다.
3. 주식의 분포
가. 주식 소유현황
| (기준일 : | 공시서류 제출 전일 | ) | (단위 : 주) |
| 구분 | 주주명 | 소유주식수 | 지분율(%) | 비고 |
|---|---|---|---|---|
| 5% 이상 주주 | 박영건 | 2,158,900 | 27.08 | 최대주주 |
| 최연서 | 1,239,695 | 15.55 | 특수관계인 | |
| 최진희 | 983,628 | 12.34 | 특수관계인 | |
| 우리사주조합 | 139,943 | 1.76 | - | |
(주1) 상기 5% 이상 주주 현황은 기준일 현재 대량보유상황보고 내역을 토대로 작성하였으며, 본 보고서 제출일 현재 주식 소유현황과 차이가 발생할 수 있습니다.
나. 소액주주현황
소액주주현황
| (기준일 : | 2022.12.31 | ) | (단위 : 주) |
| 구 분 | 주주 | 소유주식 | 비 고 | ||||
|---|---|---|---|---|---|---|---|
| 소액 주주수 |
전체 주주수 |
비율 (%) |
소액 주식수 |
총발행 주식수 |
비율 (%) |
||
| 소액주주 | 2 | 14 | 14.29 | 76,612 | 6,128,930 | 1.25 | - |
(주1) 상기 소액주주에 관한 사항은 최근 주주명부폐쇄 기준일인 2022년 12월 31일을 기준이며, 본 보고서 제출일 현재 주식 소유현황과 차이가 발생할 수 있습니다.
(주2) 상기 소액주주는 발행주식 총수의 100분의 1에 미달하는 주식을 소유한 주주입니다.
4. 주가 및 주식거래실적
| (단위 : 원,주) |
|
보통주 |
2022년 10월 | 2022년 11월 | 2022년 12월 | 2023년 01월 | 2023년 02월 | 2023년 03월 | |
|---|---|---|---|---|---|---|---|
|
주가 (원) |
최 고 |
- | - | - | - | 19,610 | 33,700 |
|
최 저 |
- | - | - | - | 13,000 | 23,400 | |
|
평 균 |
- | - | - | - | 18,549 | 27,886 | |
|
거래량 (주) |
최 고 |
- | - | - | - | 13,779,128 | 10,158,161 |
|
최 저 |
- | - | - | - | 323,629 | 482,799 | |
|
월간합계 |
- | - | - | - | 55,639,447 | 63,522,104 | |
(주1) 당사는 2023.02.09일자 코스닥 시장에 상장하여 상기 "주가 및 주식거래실적"은 2023.02.09일자를 시작으로 작성하였습니다.
(주2) 상기 주가의 "최고 및 최저"는 종가 기준으로 작성하였으며, 주가의 "평균"은 해당월의 총거래대금/총거래량 으로 작성하였습니다. (KRX Market Data)
VII. 임원 및 직원 등에 관한 사항
1. 임원 및 직원 등의 현황
가. 임원 현황
| (기준일 : | 증권신고서 제출전일 | ) | (단위 : 주) |
| 성명 | 성별 | 출생년월 | 직위 | 등기임원 여부 |
상근 여부 |
담당 업무 |
주요경력 | 소유주식수 | 최대주주와의 관계 |
재직기간 | 임기 만료일 |
|
|---|---|---|---|---|---|---|---|---|---|---|---|---|
| 의결권 있는 주식 |
의결권 없는 주식 |
|||||||||||
| 박영건 | 남 | 1974.09 | 대표 이사 |
사내이사 | 상근 |
경영 |
원광대학교 경영학 학사 (2014.10~현재) 꿈비 대표이사 |
2,158,900 | - | 본인 | 14.10 ~ 현재 |
2026.03.31 |
| 박보선 | 남 | 1969.01 | 이사 | 사내이사 | 상근 | 경영혁신 본부장 |
오산대 세무회계학 학사 (2016.05~2018.12) 대호 부장 (2018.12~현재) 꿈비 경영혁신본부장 |
- | - | - | 18.12 ~현재 |
2024.10.01 |
| 조원섭 | 남 | 1969.03 | 사외 이사 |
사외이사 | 비상근 | 사외 이사 |
서울대 사회복지학 학사 (2018.12~2019.12) MHN모던하우스 브랜드 마케팅 실장 (2021.10~현재) W&BRAND PARTNERS 대표 |
- | - | - | 21.10 ~현재 |
2024.10.01 |
| 류재언 | 남 | 1984.02 | 감사 | 감사 | 비상근 | 감사 |
성균관대학교 경영학 학사 부산대 법학전문대학원 졸업 (2016.01~현재) 법무법인 율본 파트너 변호사 |
- | - | - | 21.10 ~현재 |
2024.10.01 |
| 최진희 | 여 | 1979.12 | 부대표 | 미등기 | 상근 |
연구소 총괄 |
홍익대학교 회화/산업디자인학 학사 (2014.10~현재) 꿈비 연구소장 (2022.03~현재) 소브 사내이사 |
983,628 | - | 배우자 | 14.10 ~ 현재 |
- |
| 신영숙 | 여 | 1976.01 | 이사 | 미등기 | 상근 | 연구 개발 |
숭의여자대학 응용미술학 학사 (2018.01~2018.11) 티엘 아동기획실 실장 (2018.11~현재) 꿈비 혁신상품개발팀 이사 |
- | - | - | 18.11 ∼현재 |
- |
| 유준열 | 남 | 1953.03 | 고문 | 미등기 | 비상근 | 경영 자문 |
서울대학교 정치학 학사 (2021.10~현재) 꿈비 고문 |
- | - | - | 21.10 ∼현재 |
- |
나. 직원 등 현황
| (기준일 : | 2023.03.31 | ) | (단위 : 백만원) |
| 직원 | 소속 외 근로자 |
비고 | |||||||||||
|---|---|---|---|---|---|---|---|---|---|---|---|---|---|
| 사업부문 | 성별 | 직 원 수 | 평 균 근속연수 |
연간급여 총 액 |
1인평균 급여액 |
남 | 여 | 계 | |||||
| 기간의 정함이 없는 근로자 |
기간제 근로자 |
합 계 | |||||||||||
| 전체 | (단시간 근로자) |
전체 | (단시간 근로자) |
||||||||||
| 전사 | 남 | 29 | - | 1 | - | 30 | 2년6개월 | 359 | 12 | - | - | - | - |
| 전사 | 여 | 42 | - | 2 | - | 44 | 2년2개월 | 526 | 12 | - | |||
| 합 계 | 71 | - | 3 | - | 74 | 2년4개월 | 885 | 12 | - | ||||
(주1) 직원수는 2023년 03월 31일 현재 직원수이며, 휴직자는 포함하고 등기임원 4명(사내이사 2명, 사외이사 1명, 감사 1명)은 제외한 기준입니다.
(주2) 연간급여 총액 및 1인평균 급여액은 「소득세법」 제20조에 따라 관할 세무서에 제출하는 근로소득지급명세서의 근로소득 기준(근로소득공제 반영전)입니다.
(주3) 1인 평균 급여액은 평균 재직자 72명(남 29명, 여 43명) 기준으로 산출하였습니다.
마. 미등기임원 보수 현황
| (기준일 : | 2023.03.31 | ) | (단위 : 백만원) |
| 구 분 | 인원수 | 연간급여 총액 | 1인평균 급여액 | 비고 |
|---|---|---|---|---|
| 미등기임원 | 3 | 113 | 37 | - |
2. 임원의 보수 등
| <이사ㆍ감사 전체의 보수현황> |
1. 주주총회 승인금액
| (단위 : 백만원) |
| 구 분 | 인원수 | 주주총회 승인금액 | 비고 |
|---|---|---|---|
| 등기이사 | 3 | 1,000 |
사내이사(2) 사외이사(1) |
| 감사 | 1 | 100 | - |
2. 보수지급금액
2-1. 이사ㆍ감사 전체
| (단위 : 백만원) |
| 인원수 | 보수총액 | 1인당 평균보수액 | 비고 |
|---|---|---|---|
| 4 | 165 | 41 | - |
2-2. 유형별
| (단위 : 백만원) |
| 구 분 | 인원수 | 보수총액 | 1인당 평균보수액 |
비고 |
|---|---|---|---|---|
| 등기이사 (사외이사, 감사위원회 위원 제외) |
2 | 154 | 77 | - |
| 사외이사 (감사위원회 위원 제외) |
1 | 4 | 4 | - |
| 감사위원회 위원 | - | - | - | - |
| 감사 | 1 | 6 | 6 | - |
| <보수지급금액 5억원 이상인 이사ㆍ감사의 개인별 보수현황> |
1. 개인별 보수지급금액
| (단위 : 백만원) |
| 이름 | 직위 | 보수총액 | 보수총액에 포함되지 않는 보수 |
|---|---|---|---|
| - | - | - | - |
2. 산정기준 및 방법
| (단위 : 백만원) |
| 이름 | 보수의 종류 | 총액 | 산정기준 및 방법 | |
|---|---|---|---|---|
| - | 근로소득 | 급여 | - | - |
| 상여 | - | - | ||
| 주식매수선택권 행사이익 |
- | - | ||
| 기타 근로소득 | - | - | ||
| 퇴직소득 | - | - | ||
| 기타소득 | - | - | ||
| <보수지급금액 5억원 이상 중 상위 5명의 개인별 보수현황> |
1. 개인별 보수지급금액
| (단위 : 백만원) |
| 이름 | 직위 | 보수총액 | 보수총액에 포함되지 않는 보수 |
|---|---|---|---|
| - | - | - | - |
2. 산정기준 및 방법
| (단위 : 백만원) |
| 이름 | 보수의 종류 | 총액 | 산정기준 및 방법 | |
|---|---|---|---|---|
| - | 근로소득 | 급여 | - | - |
| 상여 | - | - | ||
| 주식매수선택권 행사이익 |
- | - | ||
| 기타 근로소득 | - | - | ||
| 퇴직소득 | - | - | ||
| 기타소득 | - | - | ||
<주식매수선택권의 부여 및 행사현황>
<표1>
| (단위 : 백만원) |
| 구 분 | 부여받은 인원수 |
주식매수선택권의 공정가치 총액 | 비고 |
|---|---|---|---|
| 등기이사 (사외이사, 감사위원회 위원 제외) |
1 | 57 | - |
| 사외이사 (감사위원회 위원 제외) |
- | - | - |
| 감사위원회 위원 또는 감사 | - | - | - |
| 업무집행지시자 등 | 1 | 30 | - |
| 계 | 2 | 86 | - |
(주1) 공정가치 산출방법에 대한 자세한 사항은 당보고서 "III.재무에 관한사항" - "5. 재무제표 주석" - "21. 주식기준보상"을 참조하시기 바랍니다.
<표2>
| (기준일 : | 증권신고서 제출전일 | ) | (단위 : 원, 주) |
| 부여 받은자 |
관 계 | 부여일 | 부여방법 | 주식의 종류 |
최초 부여 수량 |
당기변동수량 | 총변동수량 | 기말 미행사수량 |
행사기간 | 행사 가격 |
의무 보유 여부 |
의무 보유 기간 |
||
|---|---|---|---|---|---|---|---|---|---|---|---|---|---|---|
| 행사 | 취소 | 행사 | 취소 | |||||||||||
| 박보선 | 등기임원 | 2020.11.01 | 신주교부 | 보통주 | 16,310 | - | - | - | - | 16,310 | 2023.11.01~2028.10.31 | 836 | O | (주4) |
| 신영숙 | 미등기임원 | 2020.11.01 | 신주교부 | 보통주 | 10,870 | - | - | - | - | 10,870 | 2023.11.01~2028.10.31 | 836 | O | (주4) |
| OOO | 퇴직자 | 2020.11.01 | 신주교부 | 보통주 | 32,616 | 32,616 | - | 32,616 | - | - | 2023.05.01~2028.04.30 | 836 | X | - |
| ○○○외 4명 | 직원 | 2020.11.01 | 신주교부 | 보통주 | 43,478 | - | - | - | 5,435 | 38,043 | 2023.11.01~2028.10.31 | 836 | X | - |
| 박보선 | 등기임원 | 2022.08.16 | 신주교부 | 보통주 | 12,615 | - | - | - | - | 12,615 | 2025.02.15~2030.02.15 | 6,050 | O | (주4) |
| 신영숙 | 미등기임원 | 2022.08.16 | 신주교부 | 보통주 | 5,256 | - | - | - | - | 5,256 | 2025.02.15~2030.02.15 | 6,050 | O | (주4) |
| ○○○외 16명 | 직원 | 2022.08.16 | 신주교부 | 보통주 | 109,849 | - | - | - | - | 109,849 | 2025.02.15~2030.02.15 | 6,050 | X | - |
(주1) 공시서류작성기준일(2023년 03월 31일) 현재 종가 : 28,550원
(주2) 상기 2020.11.01일자 부여된 주식매수선택권의 최초부여수량은 무상증자(2021.10.28), 액면분할(2022.05.10) 등을 반영하여 변동된 수량 및 가격을 기재하였습니다. 최초 부여수량은 15,527주→103,274주, 행사가격은 5,562원→836원으로 변동되었습니다.
(주3) 상기 2022.08.16일자 부여된 주식매수선택권의 최초부여수량은 당기중 일반공모 유상증자(2023.02.04)를 반영하여 변동된 수량 및 가격을 기재하였습니다. 행사가격은 6,360원→6,050원, 행사수량은 121,500주→127,720주로 변동되었습니다.
(주4) 의무보유기간은 상장일로 부터 6개월 입니다.
VIII. 계열회사 등에 관한 사항
1. 계열회사 현황
당사는 「독점규제 및 공정거래에 관한 법률」상의 대규모기업집단에 지정되어 있지않으며, 본 보고서 작성기준일 현재 당사를 제외한 1개의 종속회사(비상장)가 있습니다.
가. 계열회사 현황(요약)
| (기준일 : | 2023.03.31 | ) | (단위 : 사) |
| 기업집단의 명칭 | 계열회사의 수 | ||
|---|---|---|---|
| 상장 | 비상장 | 계 | |
| ㈜꿈비 | - | 1 | 1 |
나. 계열회사 계통도
| 회사명 | 상장여부 | 주요업종 | 당사 지분율 |
|---|---|---|---|
| ㈜소브 | 비상장 | 유아용 매트 | 100% |
다. 회사와 계열회사간 임원 겸직 현황
| 겸직자 | 겸직회사 |
겸직회사와 |
||
|---|---|---|---|---|
|
성 명 |
직위 | 회사명 | 직위 | |
| 최진희 | 부대표 |
㈜소브 |
사내이사 |
종속회사 |
2. 타법인 출자 현황
당사는 자산총액 1천억원 미만인 소규모기업에 해당하여 타법인출자 현황에 대한 기재를 생략합니다.
IX. 대주주 등과의 거래내용
1. 대주주 등에 대한 신용공여 등
해당사항 없음
2. 대주주와의 자산양수도 등
해당사항 없음
3. 대주주와의 영업거래
해당사항 없음
4. 대주주 이외의 이해관계자와의 거래
이외의 특수관계자와의 거래 내역은 본 보고서 "Ⅲ.재무에 관한 사항" - "3.연결재무재표 주석" - "31. 특수관계자 거래" 및 "5.재무제표 주석" - "32. 특수관계자 거래"의 내용을 참조하시기 바랍니다.
X. 그 밖에 투자자 보호를 위하여 필요한 사항
1. 공시내용 진행 및 변경사항
|
신고일자 |
제 목 |
신고내용 |
신고사항의 진행사항 |
|---|---|---|---|
|
2023.03.30 |
주요사항보고서 (유형자산 양수 결정) |
- 양수자산 : (토지) 경기도 안성시 원곡면 성은리 산22-2 (면적:9,900㎡) - 양수금액 : 4,490,000,000원 - 양수목적 : 생산공장 및 물류센터 신축을 위한 부지 확보 - 거래상대방 : ㈜서광인프라 - 양수예정일자 1) 계약체결일 : 2023.03.30 2) 양수기준일 : 2023.06.29 3) 등기예정일 : 2023.06.29 - 거래대금지급 1) 계약금 : 449,000,000원 (2023.03.30) 2) 중도금 : 1,000,000,000원 (2023.04.27) 3) 잔 금 : 3,041,000,000원 (2023.06.29) |
진행중 계약금 지급(2023.03.30) |
2. 우발부채 등에 관한 사항
가. 중요한 소송사건
해당사항 없음
나. 견질 또는 담보용 어음ㆍ수표 현황
해당사항 없음
다. 채무보증 현황
해당사항 없음
라. 그 밖의 우발채무 등
본 사업보고서 내 "Ⅲ. 재무에 관한 사항" - "3. 연결재무제표 주석" - "30. 우발채무 및 약정사항" 및 "5. 재무제표 주석" - "31. 우발상황 및 약정사항"을 참조하시기 바랍니다.
3. 제재 등과 관련된 사항
가. 제재현황
1) 수사ㆍ사법기관의 제재현황
해당사항 없음
2) 행정기관의 제재현황
해당사항 없음
나. 한국거래소 등으로부터 받은 제재
해당사항 없음
다. 단기매매차익의 발생 및 반환에 관한 현황
해당사항 없음
4. 작성기준일 이후 발생한 주요사항 등 기타사항
가. 작성기준일 이후 발생한 주요사항
해당사항 없음
나. 중소기업기준 검토표
![]() |
|
2022_꿈비_중소기업기준검토표_1 |
![]() |
|
2022_꿈비_중소기업기준검토표_2 |
XI. 상세표
1. 연결대상 종속회사 현황(상세)
| (단위 : 백만원) |
| 상호 | 설립일 | 주소 | 주요사업 | 최근사업연도말 자산총액 |
지배관계 근거 | 주요종속 회사 여부 |
|---|---|---|---|---|---|---|
| ㈜소브 | 2021.03.18 |
경기도 수원시 영통구 법조로 25, 에이동 1414호 |
유아매트 | 115 |
의결권의 과반수 소유 (K-IFRS 1110호) 지분율 100% |
미해당 |
2. 계열회사 현황(상세)
| (기준일 : | 2023.03.31 | ) | (단위 : 사) |
| 상장여부 | 회사수 | 기업명 | 법인등록번호 |
|---|---|---|---|
| 상장 | - | - | - |
| - | - | ||
| 비상장 | 1 | ㈜소브 | 174911-0017972 |
| - | - |
3. 타법인출자 현황(상세)
당사는 자산총액 1천억원 미만인 소규모기업에 해당하여 타법인출자 현황에 대한 기재를 생략합니다.
| (기준일 : | 2023.03.31 | ) | (단위 : 원, 주, %) |
| 법인명 | 상장 여부 |
최초취득일자 | 출자 목적 |
최초취득금액 | 기초잔액 | 증가(감소) | 기말잔액 | 최근사업연도 재무현황 |
|||||||
|---|---|---|---|---|---|---|---|---|---|---|---|---|---|---|---|
| 수량 | 지분율 | 장부 가액 |
취득(처분) | 평가 손익 |
수량 | 지분율 | 장부 가액 |
총자산 | 당기 순손익 |
||||||
| 수량 | 금액 | ||||||||||||||
| - | - | - | - | - | - | - | - | - | - | - | - | - | - | - | - |
| 합 계 | - | - | - | - | - | - | - | - | - | - | - | ||||
【 전문가의 확인 】
1. 전문가의 확인
해당사항 없음
2. 전문가와의 이해관계
해당사항 없음